Les questions de savoir en quoi consiste la fenêtre en plastique, en quoi consiste la structure générale et les détails, intéressent les élèves des établissements d'enseignement et les propriétaires d'appartements zélés. Si dans le premier cas, le besoin d'étudier le sujet est causé par les exigences des enseignants et du programme, alors dans le second - par le désir de se préparer à commander des fenêtres en PVC. Cette approche est justifiée, car elle vous permet de déterminer rapidement et avec toutes les raisons, en collaboration avec l'entreprise de mesure de l'entreprise d'installation, l'option optimale en termes de prix et de fonctionnalité. Nous présenterons la conception des fenêtres en plastique avec des schémas et en détail de manière à ce que le matériau profite également aux étudiants des écoles de construction, des universités et des propriétaires d'appartements. Si, après lecture, des questions subsistent, veuillez contacter les consultants à Saint-Pétersbourg.
En quoi consiste une fenêtre en plastique - schéma en coupe, détails
D'un point de vue technique, la fenêtre comprend uniquement un cadre en PVC avec des châssis installés, des fenêtres à double vitrage, des joints et des ferrures. Cependant, l'installation d'un rebord de fenêtre, la marée descendante, la finition des pentes sont nécessaires pour que la structure translucide remplisse ses fonctions pendant longtemps et de manière fiable, et que les pièces soient lumineuses et chaudes. Pour cette raison, ces éléments sont également représentés dans le diagramme ci-dessus.

Pour commencer, nous donnerons les noms indiquant la composition et la fonctionnalité principale, et dans les sections suivantes, nous décrirons en détail les détails de la fenêtre en plastique.
- Cadre
Fabriqué en profilé PVC renforcé de métal. Le cadre (les installateurs disent souvent «boîte») occupe tout le périmètre de la fenêtre et sert de base à l'installation de châssis mobiles et fixes (fixes).
- Sash (cadre de châssis)
Élément de fenêtre mobile, cadre assemblé à partir de profilé PVC avec fenêtre à double vitrage installée. L'élément est fixé à des raccords, qui fournissent la fonctionnalité nécessaire - ouverture, fermeture, rotation, etc. La fenêtre à double vitrage dans le châssis est maintenue par un bourrelet de vitrage, la connexion est scellée avec un scellant.
- Unité en verre
Un élément de fenêtre transparent constitué de 2 ou plusieurs feuilles de verre disposées en parallèle. La liaison étanche à l'air et la distance entre les verres sont déterminées par l'entretoise. Une fenêtre à double vitrage est l'élément le plus important d'une fenêtre, car la lumière la traverse dans la pièce. Une surface importante suggère que cet élément est principalement responsable de la conductivité thermique de la structure de la fenêtre en plastique.
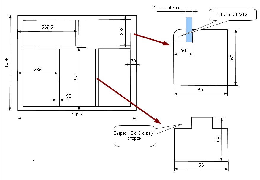
- Shtapik
Couvercle en polychlorure de vinyle (PVC) avec une base caoutchoutée. En raison de son ajustement serré au cadre et à la vitre, le cordon de vitrage protège les locaux du froid extérieur, du vent et de la poussière.
- Impôt
Un élément en profilé PVC, délimitant les zones des vantaux, permettant leur fermeture.
- Raccords
Parfois, ils parlent des raccords comme de la structure du mécanisme des fenêtres en plastique. En effet, il s'agit d'un ensemble d'éléments qui permet de contrôler et de modifier la position actuelle des vantaux. Les lattes, charnières, cintres et autres composants des ferrures sont sélectionnés en tenant compte du poids des vantaux, qui est principalement déterminé par le nombre de chambres dans l'unité de verre et l'épaisseur du verre.
- Rebord de fenêtre
Installé de l'intérieur (à l'intérieur) sous la fenêtre. Il est recommandé de ne pas surcharger le rebord de la fenêtre pendant le fonctionnement, mais d'observer les exigences relatives à la saillie du mur dans la pièce lors de l'installation. Ceci est nécessaire pour qu'en hiver, il y ait un échange d'air suffisant dans l'ouverture de la fenêtre, la condensation ne tombe pas.
- Marée basse
Installé sous la fenêtre de l'extérieur. La tâche de l'élément est d'éliminer l'eau qui coule dans l'ouverture de la fenêtre (pluie, neige fondante), pour empêcher la pénétration et l'accumulation d'humidité sous le cadre.
- Les pentes
Ce sont les surfaces des murs de la maison le long du périmètre de l'ouverture de la fenêtre, qui nécessitent une isolation et une finition protectrice. Une finition protectrice est nécessaire pour éviter la pénétration de l'air froid, de l'humidité, de l'isolation (mousse polyuréthane) des rayons UV. De l'extérieur, des plateaux peuvent être installés sur les pistes.
Dessins et projets
En fonction de leurs paramètres de conception, les projets de fenêtres en bois peuvent être:
- Allemand;
- Les Russes;
- Finlandais.
La première option se distingue par la présence d'une seule partie en bois de séparation. Ce modèle se compose d'un grand coffre et de deux portes, chacune vitrée. En règle générale, un tableau de pin est utilisé pour la fabrication d'une pièce en bois.
Le principal inconvénient de ces structures est la tendance aux déformations.De plus, cela ne permet pas au châssis d'adhérer autant que possible directement à la fenêtre.Par conséquent, en cas de pluie, de l'humidité externe peut pénétrer sur le rebord de la fenêtre. Ces fenêtres sont généralement équipées de poignées et de charnières non réglables, de sorte qu'elles ne prévoient pas le mode de ventilation.


Les fenêtres allemandes sont souvent appelées européennes, car toutes les ferrures sont fabriquées dans les pays de l'Ancien Monde. Cette conception vous permet d'ajuster efficacement la position et l'angle d'inclinaison des châssis et, en outre, prévoit la présence de mécanismes de verrouillage et l'option de ventilation d'air.
Ces fenêtres ont généralement un cadre et un type de châssis à deux chambres. Euro-window comprend un cadre de fenêtre et un châssis. Ces produits sont faciles à utiliser, ils sont légers et se caractérisent par une protection thermique élevée. La durée de vie des fenêtres euro dépasse 60 ans - cette durabilité est due aux propriétés de haute résistance des poutres collées à trois couches, qui sont utilisées dans la production de fenêtres allemandes.
Les dessins des fenêtres finlandaises ont un cadre large et deux châssis avec une méthode d'ouverture en gradins, tandis que le châssis extérieur est conçu en verre ordinaire et le châssis interne est conçu à partir d'une unité à double vitrage à chambre unique.
La matière première pour la production de telles fenêtres est le bois massif, pas le bois, ce qui donne à la fenêtre un aspect très élégant et esthétique, mais elle perd un peu en qualité et en durabilité face à l'allemand.
Construction de profils de fenêtres en plastique
Le profil en polychlorure de vinyle (PVC) sert de base à la construction de la fenêtre, appelée plastique, bien que la surface de l'unité de verre soit plus grande. Par conséquent, nous décrirons d'abord l'élément structurel.


La conception en coupe des fenêtres en plastique illustrée sur la figure est utile en ce qu'elle montre la structure interne non seulement du profil en PVC. Le rôle et la place du profil de support, le reflux et l'appui de fenêtre correctement installés, sont également visibles. En dehors des couleurs et du laminage décoratif, les profilés extérieurs en PVC de tous les fabricants et de toutes les lignes diffèrent peu. Une image différente se révèle si vous regardez le matériau de structure en coupe. Commençons par le fait que la gamme de produits comprend quatre sous-espèces de profils à former:
- Cadres (boîtes)
- Imposta
- Sash (cadre de châssis)
- Shtapika
Dans tous les cas, le matériau principal est le PVC, à partir duquel sont fabriquées les parois extérieure et intérieure du profilé. Les parois intérieures divisent l'espace du cadre en chambres et plus il y a de chambres, plus la résistance au transfert de chaleur est élevée. Autrement dit, la version à 7 chambres protège mieux contre les pertes de chaleur que la version à 5 chambres. Ces indicateurs - 5-7 caméras - sont le meilleur choix pour la Russie centrale, y compris Saint-Pétersbourg. Les fabricants proposent des lignes de profilés avec des parois intérieures et extérieures des épaisseurs suivantes:
- Classe A - 2,8 et 2,5 mm
- Classe B - 2,5 et 2 mm
- Classe C (ou objet, objet, moteur, annexe) - non normalisé
Pour les locaux résidentiels, il est recommandé d'utiliser uniquement la classe A. Les produits de la classe B ont un prix inférieur et sont recommandés pour une utilisation dans les entrées, les locaux non résidentiels. Un nombre considérable d'experts déconseillent l'utilisation de produits de classe C nulle part. Néanmoins, le type d'objet trouve une application dans les bâtiments temporaires, les installations de production secondaires.
Le polychlorure de vinyle est un matériau assez résistant; d'autres propriétés sont également importantes pour les conditions de fonctionnement:
- n'a pas peur de la lumière du soleil, du gel, de l'humidité
- ne se détériore pas à cause des influences chimiques (détergents)
- respectueux de l'environnement, n'émet pas dans l'air non seulement nocif, mais également de substances en général, même avec un fort chauffage
- ne supporte pas la combustion
Cependant, même la résistance du PVC des classes A et B n'est pas si grande qu'il peut supporter longtemps le poids d'éléments aussi lourds que les fenêtres à double vitrage. Par conséquent, le profil est renforcé avec du métal. La forme du métal d'armature joue un rôle important - sans explications supplémentaires, il est clair que la version en U est préférable à la version en L, car elle a une plus grande capacité de charge.
Un autre indicateur significatif du profil en plastique est la largeur, qui détermine la possibilité d'installer de larges fenêtres à double vitrage. Pour le centre de la Russie, Saint-Pétersbourg, une largeur de 70 à 80 mm est considérée comme suffisante, mais si vous souhaitez isoler de manière fiable, choisissez l'option nord - 120 mm.
Phase préparatoire
Tout travail de construction consiste en une étape préparatoire, principale et finale. Lors de la fabrication d'une fenêtre, l'étape préparatoire comprend la sélection des outils de menuiserie et des matières premières optimales. De plus, il est nécessaire de faire un dessin détaillé, dans lequel non seulement les dimensions hors tout du cadre sont marquées, mais également les dimensions de tous les composants.
Outils nécessaires
Pour travailler, vous aurez besoin des outils suivants:
- un marteau;
- percer;
- Tournevis;
- coupe-verre;
- ciseau;
- fraiseuse;
- Rectifieuse;
- vu.
La liste est non exhaustive. Si vous souhaitez économiser le plus possible, vous aurez également besoin d'une circulaire. Dans ce cas, vous pouvez acheter n'importe quelle toile en bois et la dissoudre vous-même dans les flans nécessaires.
Matériel nécessaire
La plupart des cadres de fenêtres en bois sont fabriqués à partir de bois sec ou collé, mais dans certains cas, de nouvelles feuilles de contreplaqué peuvent être utilisées comme matières premières.
Le contreplaqué est l'option la moins chère et la moins bonne qualité. Convient uniquement aux fenêtres intérieures. Même bien traité avec des imprégnations protectrices, le contreplaqué absorbe rapidement l'humidité et commence à s'effriter.
Le bois massif est une bonne solution et relativement peu coûteuse. L'inconvénient est qu'une telle planche peut conduire, ce qui entraînera un changement de géométrie.
De plus, il faut veiller à éviter les fissures et les nœuds.
Le bois collé est un excellent choix pour la construction à ossature. Premièrement, il a un poids léger, mais en même temps, il est assez solide en raison de sa multicouche. Deuxièmement, ce type de bois ne se prête pas aux influences et déformations sédimentaires.
Il est recommandé d'utiliser un bois de 5x5 cm pour le cadre.
De plus, vous aurez besoin de:
- parcloses en bois;
- Colle PVA;
- vis autotaraudeuses pour bois.
Il est conseillé de faire le plein de mastic, de teinture ou d'imprégnation antibactérienne à l'avance.
Double vitrage
Structurellement, une unité à double vitrage est constituée de deux ou plusieurs feuilles de verre trempé, qui sont fixées ensemble et maintenues à la distance requise par des entretoises. L'espace entre les vitres est rempli d'air ou de gaz inertes puis scellé. L'épaisseur des feuilles de verre est de 4 à 8 mm, en outre, il est possible d'utiliser des feuilles de verre triplex collées avec un film.
La section d'une fenêtre en plastique représentée dans la section précédente montre une fenêtre classique à double vitrage à chambre unique. Cependant, selon les conditions climatiques de la partie européenne de la Russie, cette option n'est pas considérée comme suffisante.


Compte tenu des hivers rigoureux, il est recommandé d'isoler les appartements à Saint-Pétersbourg avec des fenêtres à double vitrage à 2 chambres (3 verres) ou à économie d'énergie à une chambre. Dans les constructions à économie d'énergie, l'un des verres de l'intérieur est recouvert d'un nano-film, qui réfléchit dans la pièce 30 à 40% des rayons infrarouges émis par les radiateurs chauffants et les objets chauffés. Une autre option consiste à utiliser une unité à double vitrage à deux chambres afin de réduire la conductivité thermique par rapport à une seule chambre de 1,5 à 1,8 fois.
Comme le montre la figure, un certain nombre de formules pour les vitrages isolants sont utilisées. Il est évident qu'une augmentation de la largeur des chambres et de l'épaisseur du verre diminue la conductivité thermique. Mais une fenêtre en plastique résout également d'autres problèmes, par exemple la protection contre le bruit extérieur. Pour augmenter la protection contre le bruit, de telles solutions constructives sont utilisées comme la fabrication de fenêtres à double vitrage avec verre triplex, avec différentes largeurs de chambres.
En plus des options décrites, des unités en verre de protection solaire et résistantes aux chocs sont également proposées, qui aident à protéger contre la chaleur estivale et les intrus, respectivement.
N'oubliez pas que le profilé PVC doit fournir le "siège" nécessaire à l'unité vitrée. Avec un budget limité, nous vous recommandons de choisir une vitre au minimum, mais de profil large. Si au bout d'un moment il s'avère qu'il est impossible de se passer de l'installation d'une fenêtre à double vitrage multi-chambres plus large (froid, le bruit de la rue pénètre), alors un large profil permettra d'effectuer cette opération sans remplacer l'ensemble. structure.
Comment faire un cadre de fenêtre en bois avec vos propres mains à partir de barres
Dessin de cadre de fenêtre.
Un très bon matériau de travail, souvent utilisé dans la construction, est le bois collé. Vous pouvez également utiliser sa version habituelle en bois massif, mais cela augmente la probabilité que le cadre perde sa forme en raison des effets des précipitations. Cela peut être évité en recouvrant l'arbre d'un composé protecteur spécial.
Le processus technologique de fabrication d'une structure comprend les étapes suivantes:
- La première étape consiste à créer un cadre de fenêtre. Pour ce faire, découpez une rainure dans une planche de 5X15 cm afin que la planche ressemble à la lettre «G» de profil. Un tel peigne est nécessaire pour l'étanchéité de la future fenêtre.
- Les dimensions de la structure sont calculées avec précision et ils commencent à scier les planches.Chacune d'entre elles doit être divisée en quatre parties de la taille souhaitée et elles sont reliées entre elles. L'option la plus fiable pour un tel assemblage est d'utiliser un tenon et une rainure. Pour les fabriquer rapidement, vous avez besoin des outils suivants: un ciseau, un marteau et une scie à main ou un cutter électrique. Les rainures sont réalisées sur les parties verticales du cadre. Les épines sont découpées sur les segments horizontaux. Après la fabrication de toutes ces pièces, elles sont enduites de colle à bois et les pièces du caisson sont reliées, sans oublier d'observer la précision de tous les joints avec un carré métallique à 90 °.
- La prochaine étape des travaux est le renforcement des carrés de fenêtre spéciaux dans les coins des extrémités du cadre. Ils sont achetés sur le marché de la construction ou dans un magasin, et ils sont nécessaires pour donner la rigidité requise à la boîte.
- Laissez sécher la colle et commencez à créer un cadre pour la partie mobile de la fenêtre. La poutre doit avoir une section plus petite que pour le cadre de la fenêtre. Par conséquent, sa section est réduite de sorte que l'écart entre le cadre et le boîtier principal soit compris entre 0,1 et 0,2 cm.
- Les parties du cadre sont connectées dans la même séquence et en utilisant des pointes et des rainures, comme décrit ci-dessus dans la fabrication d'un cadre de fenêtre.
- Après l'assemblage complet de l'intérieur de la fenêtre, celle-ci est fixée à la boîte avec des charnières. Vous devez d'abord insérer une feuille de verre, bien que cela puisse être fait même après que le cadre soit complètement assemblé de vos propres mains.
La structure est prête à fonctionner (fig. 1).
Raccords
Il s'agit d'un ensemble d'éléments qui composent le mécanisme d'une fenêtre en plastique, vous permettent de fixer dans certaines positions, d'ouvrir et de fermer le châssis. Les éléments extérieurs visibles et utilisés de ce mécanisme sont les poignées rotatives, l'observateur extérieur voit l'autre partie du système lorsque les portes sont ouvertes. Nous ne décrirons pas comment les détails des ferrures pour fenêtres en plastique sont appelés, car ils sont représentés sur la figure.


Lors du choix du type et du jeu de raccords, les facteurs suivants sont pris en compte:
- Poids de l'unité de verre sélectionnée et des autres éléments structurels
- La fonctionnalité nécessaire - avec butées d'ouverture, possibilité de micro-ventilation, pour structures coulissantes, portes suspendues horizontalement, portes battantes, etc.
- Exigence de protection contre l'ouverture par les enfants
- Préférences de style et de goût
Option 1 - installation de verre par vous-même - (fenêtres de type ancien)
Une option plus économique, dans laquelle vous n'avez pas besoin d'acheter une vitre prête à l'emploi, perd un peu en termes d'isolation thermique et phonique.
Pour installer du verre dans un cadre de fenêtre, vous devez préparer les outils et le matériel nécessaires. Le verre est un matériau tranchant et des gants de protection sont utilisés pour éviter les coupures. Parmi les outils et les matériaux dont vous aurez besoin:


Avant de commencer à couper du verre, vous devez décider des dimensions requises. À l'aide d'un ruban à mesurer, mesurez la distance entre les rainures du cadre. Étant donné que pendant les changements de température, l'arbre a tendance à rétrécir et à se dilater, le verre est coupé de 4 mm de moins que les chiffres obtenus. Sinon, il peut éclater lorsqu'il est compressé. Processus de découpe et d'installation du verre:
- Le matériau est placé sur une table ou une autre surface horizontale.
- Couvrir avec un chiffon et marquer en fonction de la taille.
- Tout d'abord, une coupe est faite du côté court du verre, puis du côté long.
- Une règle est appliquée sur les marques, le long de laquelle une coupe est faite avec un coupe-verre.
- Le verre est placé avec une ligne de coupe sur le bord de la table et doucement pressé dessus. Il va se casser en deux.
- De petites zones de verre (de 0,5 à 0,20 cm) sont mordues avec des pinces.
Scellés
Dans les critiques douteuses sur Internet, il existe des recommandations mutuellement exclusives concernant les joints en silicone et en caoutchouc. Certains disent de n'utiliser que la première option, d'autres - seulement la seconde. Ces allégations s'expliquent par l'incompétence ou les préférences gustatives. En fait, les joints en silicone VMQ et en caoutchouc EPDM servent pendant longtemps, de manière fiable, ne craignent ni la chaleur ni le gel. Bien entendu, il faut tenir compte du prix élevé de l'option VMQ.


Les joints TPE-S et PVC ne sont pas recommandés pour l'utilisation. Le premier est dû à la courte durée de vie, le second est dû à la déformation à des températures inférieures à zéro.
Comment faire?
Les fenêtres en bois peuvent être fabriquées indépendamment, mais cela nécessite au moins une compétence minimale dans le travail du bois et un ensemble d'outils nécessaires.
Pour travailler, vous aurez besoin de:
- coupe-verre;
- percer;
- scie sauteuse ou routeur;
- un marteau;
- roulette;


- ciseau;
- avion.
- Naturellement, vous aurez également besoin de matériaux:
- bois lamellé-collé;
- colle pour bois;
- vis autotaraudeuses;
- chevilles;
- parcloses;
- mastic.


Le travail est effectué dans un ordre précis.
La première étape consiste à construire une boîte en bois. Selon la taille de la fenêtre, elle peut être grande ou petite.
Pour faire un cadre, il est nécessaire d'utiliser des planches de 15x5 cm.Dans la pièce, il est nécessaire de percer un petit trou de rainure en forme de L d'une profondeur d'environ 1,5 cm.Tous les éléments de base sont fixés les uns aux autres à l'aide de colle à bois , et pour une plus grande fixation des joints, ils sont renforcés avec une tige d'une longueur allant jusqu'à 3 cm, c'est lui qui sera le principal fixateur des éléments structurels restants.
Vient ensuite l'installation de la boîte directement dans l'ouverture de la fenêtre préparée à l'avance.Pour ce faire, vous devez percer des trous dans le mur, y fixer les chevilles et fixer la boîte avec des vis autotaraudeuses, après quoi les joints sont traités avec un scellant.


Le deuxième bloc de travail est associé à la fabrication d'un cadre, pour cela une barre de 5x7 cm est utilisée, cependant, son épaisseur peut varier en fonction de l'épaisseur et des dimensions du verre qui y sera fixé. Si un profilé à simple vitrage est monté, seuls deux trous de rainure suffiront. Si le profil est plus épais, le nombre de trous doit être augmenté.
Lorsque toutes les pièces principales sont réalisées, il faut procéder directement à l'assemblage du cadre. Pour cela, les planches sont sciées à un angle de 45 degrés et, à l'aide du profilé, une connexion tenon-rainure est formée, elle est renforcée par des vis autotaraudeuses.


Comment fabriquer et installer un cadre
La fabrication de charpentes en bois pour les chalets d'été ne s'arrête pas au montage du box. Une fois prêt, vous devez prendre soin du rebord de la fenêtre. Pour sa fabrication, vous aurez besoin d'une poutre de 50x50 mm: le profil souhaité en est découpé, dont la forme dépend du type de design de votre fenêtre et de la largeur sur laquelle vous installerez le parclose.
Le cadre lui-même doit être légèrement plus petit que la boîte pour pouvoir y être placé. L'espace doit être d'environ 2 mm. Vous aurez besoin d'un avion pour créer un profil. L'élément fini doit être soigneusement poncé.
La production de cadres en bois pour fenêtres suit le même principe que l'assemblage de la boîte. Sciez la serrure dans la structure, recouvrez-la de colle et connectez les éléments. À l'extérieur, vous pouvez installer des coins métalliques, grâce à eux, la structure deviendra plus durable.
Avant d'installer la structure, il est recommandé de la peindre ou de la teindre. Une fois la peinture sèche, les charnières et les châssis peuvent être installés si la structure est ouvrable.
On fabrique une boite, si ce n'est pas du tout ingénieux c'est simple
Si une boîte n'est pas montée dans le mur, où votre fenêtre sera installée, vous devrez également la fabriquer vous-même. Il sert à empêcher la charge du poids des murs de tomber sur des cadres de fenêtres fragiles, ce qui est assez dangereux. Il n'y aura certainement rien de compliqué ici, tout est simple, vous avez besoin d'une boîte ordinaire de taille, que vous devez mesurer vous-même.
- Prenez une planche ou du bois d'une section de 15x5 centimètres, ce qui sera tout à fait suffisant pour faire une boîte.
- Dans la pièce, vous devez choisir une rainure d'un centimètre et demi de profondeur, en forme de lettre G.
- Au départ, vous pouvez connecter les parties de la structure à l'aide de colle à bois ordinaire.
- En outre, des trous sont percés dans les coins, jusqu'à trois centimètres de profondeur, dans lesquels des broches en bois sont insérées pour fixer rigidement la structure à un angle de 90 degrés standard (angle droit).
Il est nécessaire de monter le boîtier dans le mur pour qu'il soit complètement immobile. Autrement dit, vous devez percer les trous où les ancrages ou les chevilles sont insérés et visser fermement la boîte. Il est recommandé de souffler toutes les fissures avec de la mousse de polyuréthane, ce qui est tout à fait conseillé si vous n'oubliez pas par la suite la chaleur et l'imperméabilisation.
Cadres de fenêtres en bois bricolage, vidéo, commentaires
Vous devez d'abord savoir que dans votre travail, vous aurez besoin d'un faisceau spécial, mesurant 6x4 centimètres de section transversale, et peut-être même plus. Tout dépend de la taille principale du bloc de fenêtre. La forme du profil de la monture peut être variée, tout dépend du nombre prévu de verres, de leur épaisseur d'origine, ainsi que de la taille des parcloses d'usine achetées à l'avance.
- La version à simple vitrage du profilé de fenêtre devra avoir deux rainures rectangulaires, nécessaires pour l'installation dans une boîte et pour le vitrage.
- Si le profil est censé avoir deux verres, il est impératif de faire une rainure supplémentaire pour le deuxième verre.
- Pour une perle d'un centimètre, vous devrez choisir une rainure rectangulaire, ainsi que du verre de quatre millimètres d'épaisseur.
- Le cadre sera assemblé à partir du profil avec des rainures prédécoupées.Pour cela, vous devez le marquer, le mesurer soigneusement et le couper à un angle de 45 degrés.
- Il est nécessaire de réaliser un joint de fixation "épine-rainure" de type standard, et de le poser sur la colle de menuiserie pour une plus grande fiabilité et assurer l'immobilité de la structure.
Vous pouvez également fixer le cadre en plus avec des vis autotaraudeuses. Cependant, ici, vous devez vous assurer que leurs capuchons affleurent dans le bois, sinon ils gêneront la fermeture et l'ouverture des portes, ce qui est inacceptable.
Nous insérons du verre dans les cadres de fenêtres de nos propres mains, vidéo
Lorsque tous les travaux de fabrication des cadres sont terminés, il ne reste plus qu'à insérer du verre dans la structure, puis vous pouvez déjà vous engager dans l'installation du bloc de fenêtre dans la boîte dans le mur. Comment organiser correctement le processus d'installation d'une fenêtre en bois peut et doit être lu sur le site. Une mesure et une découpe correctes et précises du verre garantissent qu'il n'y a pas de ponts froids, en raison de l'ajustement serré du verre au bois.
- Il est impératif d'observer les précautions de sécurité, par conséquent, lorsque vous travaillez avec du verre, vous devez immédiatement mettre des gants spéciaux. Les lunettes sont également utiles pour empêcher la poussière de verre de pénétrer dans les yeux.
- Le verre doit être coupé avec une erreur ne dépassant pas un millimètre et poncer tous les bords avec un petit caillou.
- Après avoir essayé au préalable, les verres sont insérés sur la monture enduite de mastic, juste dans la rainure sélectionnée spécifiquement pour cela. Les restes de scellant doivent être immédiatement enlevés avec un chiffon propre, sinon il sera difficile de le décoller plus tard lorsqu'il sèche.
- Si la fenêtre se compose d'une paire de pièces, un impôt en bois spécial devra être vissé à la partie médiane du cadre, qui doit également être faite, comme un cadre, avec toutes les rainures nécessaires.
- Les châssis ouvrants sont en bois plus mince et sont fixés au cadre principal au moyen de charnières articulées. C'est sur ce châssis que la poignée devra être fixée, et sur la partie opposée du cadre, sélectionnez la rainure appropriée pour la languette du loquet.
Processus de fabrication de cadre de fenêtre
Cette partie importante de la fenêtre est en bois collé. La section est de 5 × 5 cm L'installation des évents se fait à l'aide d'un panneau plus petit. Les parties principales du cadre sont fixées de la même manière que la fabrication de la boîte. Il est impératif de fixer les pièces avec des coins métalliques et une épingle en bois. Après tout, le cadre de la fenêtre joue un rôle essentiel et, par conséquent, la demande augmente.
Après avoir monté le profil, à l'aide d'un routeur ou d'un avion électrique, coupez la carte en flans. Après cela, un verrou de pointe est effectué. Ensuite, le cadre est assemblé et de l'huile de séchage est appliquée sur sa base. N'oubliez pas d'utiliser des coins métalliques.
Dès que le cadre est prêt, le verre doit être inséré et la base doit être renforcée avec de fines bandes et des parcloses. N'oubliez pas leur traitement à l'huile de lin. Le cadre en verre peut être recouvert d'émail ou de vernis. L'utilisation d'huile de séchage mettra en valeur la beauté naturelle de l'arbre. À ces fins, la peinture à l'huile conventionnelle est le plus souvent utilisée.
























