Bonne année et joyeux Noël à tous ! Nous vous souhaitons tout le meilleur et espérons vous voir bientôt dans la nouvelle année! Horaires d'ouverture les jours fériés : du 31.12 au 4.01, ainsi que 7.01 - week-end 5,6,8,9 janvier - jours ouvrables
Nous avons commencé à travailler avec un nouveau système de profilés premium à 6 chambres Ivaper82, dans de tels produits, vous pouvez installer une fenêtre à double vitrage d'une épaisseur de 40 à 52 mm.
Chers amis! Nous vous félicitons pour le 70e anniversaire de la Grande Victoire! Les jours fériés, les 9, 10, 11 mai, les bureaux seront fermés. Le 12 mai, nous travaillons comme d'habitude et nous nous ferons un plaisir de répondre à vos questions.
L'élément principal de toute fenêtre est un profil. C'est lui qui assure le bruit et l'étanchéité, protège des courants d'air et assure la fiabilité de la structure. Aujourd'hui, nous allons considérer quatre fabricants qui occupent des positions de leader sur le marché des systèmes de profilés, VEKA, REHAU, Schuco et IVAPER. Il est impossible de dire sans équivoque laquelle des options sera la meilleure : c'est le cas lorsque tout est appris en comparaison.
Cette entreprise allemande est l'une des plus célèbres en Russie et à l'étranger. Le profilé peut être en plastique blanc ou coloré : sa particularité est qu'il ne se décolore pas au soleil. Le joint en caoutchouc ne laisse pas passer le froid et ne gèle pas même en hiver le plus rigoureux. La ligne de modèle moderne est représentée par des échantillons d'une largeur de 58 à 90 millimètres.
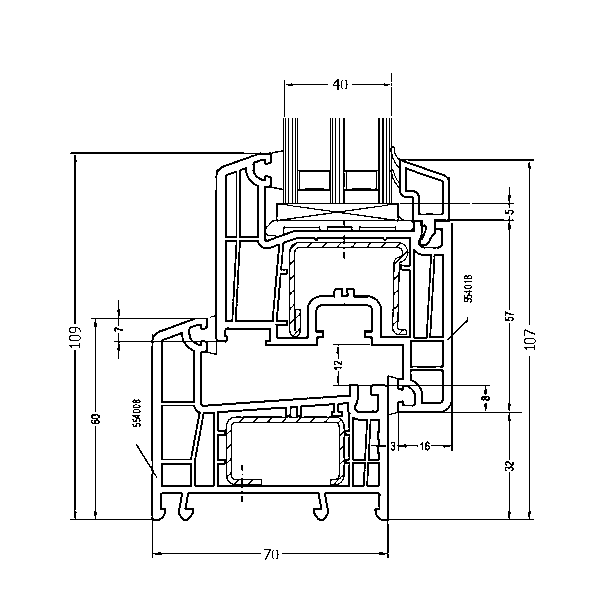
Un concurrent du fabricant précédent, similaire en prix et en qualité. Mais bien sûr, il y a des différences. REHAU est considéré comme le plus innovant parmi les autres fabricants, ses ingénieurs améliorent et complètent constamment la conception des profilés. Une attention particulière est portée à la sécurité des matériaux et aux économies d'énergie. Les profilés sont produits avec une largeur de 60 millimètres.
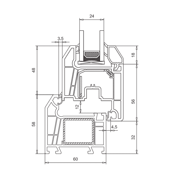
Ce constructeur allemand est entré sur le marché russe en 1996. Les profilés IVAPER se sont bien comportés dans des conditions météorologiques difficiles et sont souvent utilisés pour résoudre des problèmes architecturaux. La variété des modèles permet même d'insérer ces fenêtres dans des objets de restauration. L'entreprise produit des profilés d'une largeur de 62 à 82 millimètres.
Quel profil de fenêtre est le meilleur ?
Auparavant, la réponse à cette question était sans ambiguïté - l'allemand ! En effet, les fabricants allemands présents sur le marché depuis de nombreuses années se sont imposés comme des entreprises fiables et éprouvées. Pourtant, aujourd'hui la donne a changé, et les profils des constructeurs nationaux ne sont pas pires que les allemands !
Le fait est que les entreprises russes ont commencé à adopter l'expérience de leurs collègues européens, ainsi qu'à se soumettre aux contrôles qualité d'un institut allemand, ce qui a permis et permet aujourd'hui de créer des profils de haute qualité aux caractéristiques européennes !
Windows of the Century ou Rehau - quel est le meilleur ?
Veka et Rehau sont des fabricants de profilés en plastique, mais pas la fenêtre elle-même. Dans une fenêtre plastique en profilé PVC : cadre, ouvrant, impostes, tous les accostages et éléments complémentaires. Par conséquent, la qualité de la fenêtre est associée à la qualité du profilé PVC.
Les deux marques - VEKA et Rehau - sont allemandes. Ils ont la qualité des profilés pour fenêtres produits dans des usines en Russie, confirmée par des tests. VEKA a ouvert une usine en Russie - en 1999, Rehau - en 2002. Chacune des entreprises a derrière elle un demi-siècle d'histoire.
Lequel des fabricants produit le meilleur profilé PVC - aucun expert ne répondra, tout comme il n'y a pas de réponse définitive quelle voiture est la meilleure : Mercedes, Porsche, Rolls-Roys ou Lamborghiny. Chaque produit est adapté à un usage spécifique.
Comparaison des profilés en plastique Rehau et Veka
Les données du tableau proviennent de sources officielles des sociétés Veka et Rehau.
| Système Rehau | Système Veka |
| — |
|
|
|
|
|
|
| — |
|
|
|
|
Que signifient les chiffres : 60/3/2 / 0,64 60 - Largeur du cadre, mm 3 - Nombre de chambres, pcs. 2 - Nombre de joints, pcs. 0,64 - Isolation thermique, m2С / W
* — Noter:
Rehau Blitz et Rehau Delight Design représentent une gamme de profilés économiques pour le vitrage d'objets (l'épaisseur de la paroi avant est inférieure à 3 mm), il n'y a pas d'analogues sous la marque Veka. Pourquoi l'épaisseur de paroi du profilé est-elle importante ?
Les analogues de Rehau Blitz et Rehau Delight Design sont produits par Veka sous les marques WHS Halo et Satels.
Comparaison de Rehau Blitz et Rehau Delight avec Veka WHS Halo, SATELS
| Système Rehau | Système Veka |
|
|
|
|
Quels profils choisissons-nous ?
La société ETALON WINDOWS travaille avec deux profils fiables :
Exprof
Fabricant russe. Se distingue par une longue expérience sur le marché, la fiabilité des structures, le respect de l'environnement et une large gamme de profils.
IVAPER
Une entreprise allemande qui a réussi à s'imposer comme une entreprise tout aussi fiable sur le marché international. Il a un prix inférieur combiné à des performances élevées, mais offre une sélection de profils plus restreinte.
Quel profil est le meilleur ? C'est difficile à dire : tout dépend de vos préférences. Les profilés des deux fabricants sont fabriqués en Russie, ce qui permet des économies importantes sur leur transport depuis l'Allemagne.
Vous pouvez acheter des fenêtres Exprof (Exprof) et IVAPER (Ivaper) chez nous aux prix les plus abordables !
Commandez des fenêtres en PVC en février avec jusqu'à 35% de réduction


Nikita Chef de file
Comparaison d'Ivaper avec les marques de fenêtres importées
En règle générale, les utilisateurs dans leurs avis comparent souvent le profil Ivaper avec des marques étrangères plus connues. Par exemple, son prototype est Gealan.
Vous pouvez distinguer un vrai profil d'un faux par le marquage sur la boite : GEALAN IVAPER
Dmitry écrit sur le forum Okna-firm : « J'ai décidé d'acheter Gealan, mais le mesureur m'a persuadé d'utiliser Ivaper. Je ne serais pas séduit, mais parce que le prix était inférieur de 10 %... Du coup, la vitrine était rendue obscène, les scellés tiennent à peine. Soyez prudent dans le choix d'un profil et d'une entreprise !"
En effet, l'entreprise doit être choisie avec soin. Nous vous conseillons de prendre les fenêtres Ivaper directement auprès du fabricant. Sinon, vous risquez de tomber sur un faux grossier. (Dmitry a peut-être réussi).
Souvent, dans les critiques, vous pouvez trouver une comparaison entre ivaper et veka, rehau, etc. "J'ai acheté un profil de fenêtre ivaper - les critiques de mes amis m'ont poussé. À mon avis, ils ne sont pas différents des importés. Ils sont debout depuis 4 ans et tout va bien. La seule chose est que leur prix est inférieur et qu'il n'y a pas de réputation bruyante », admet Roman sur le même site.
Comment choisir le meilleur profil ?
Rehau et Ivaper offrent tous deux plusieurs options de profil qui diffèrent par différentes caractéristiques. Pour comprendre quel profil pour les fenêtres en plastique est le meilleur, vous devez décider de vos souhaits:
- Valeur souhaitée
- Performances optimales d'isolation phonique et thermique
- Caractéristiques des vitrages
- Forme et couleur du profil
Nous offrons le meilleur rapport qualité-prix et faisons de notre mieux pour que le client soit satisfait du vitrage, c'est pourquoi nous parlons honnêtement et en détail de tous les avantages et inconvénients des profilés ! Appelez-nous ! Des artisans expérimentés, un personnel amical et des matériaux de la plus haute qualité sont à votre service !
Vous pouvez poser vos questions via le formulaire sur le site ou par téléphone : +7 (812) 424-32-75
Fenêtres VEKA, REHAU, Schuco et IVAPER : laquelle choisir ?
L'élément principal de toute fenêtre est un profil. C'est lui qui assure le bruit et l'étanchéité, protège des courants d'air et assure la fiabilité de la structure. Aujourd'hui, nous allons considérer quatre fabricants qui occupent des positions de leader sur le marché des systèmes de profilés, VEKA, REHAU, Schuco et IVAPER. Il est impossible de dire sans équivoque laquelle des options sera la meilleure : c'est le cas lorsque tout est appris en comparaison.
caractéristiques générales
VEKA
Cette entreprise allemande est l'une des plus célèbres en Russie et à l'étranger. Le profilé peut être en plastique blanc ou coloré : sa particularité est qu'il ne se décolore pas au soleil. Le joint en caoutchouc ne laisse pas passer le froid et ne gèle pas même en hiver le plus rigoureux.La ligne de modèle moderne est représentée par des échantillons d'une largeur de 58 à 90 millimètres.
REHAU
Un concurrent du fabricant précédent, similaire en prix et en qualité. Mais bien sûr, il y a des différences. REHAU est considéré comme le plus innovant parmi les autres fabricants, ses ingénieurs améliorent et complètent constamment la conception des profilés. Une attention particulière est portée à la sécurité des matériaux et aux économies d'énergie. Les profilés sont produits avec une largeur de 60 millimètres.
IVAPER
Ce constructeur allemand est entré sur le marché russe en 1996. Les profilés IVAPER se sont bien comportés dans des conditions météorologiques difficiles et sont souvent utilisés pour résoudre des problèmes architecturaux. La variété des modèles permet même d'insérer ces fenêtres dans des objets de restauration. L'entreprise produit des profilés d'une largeur de 62 à 82 millimètres.
Schuco
Les fenêtres de ce fabricant proviennent également d'Allemagne. Schuco se concentre sur une efficacité énergétique maximale, une excellente isolation thermique, une résistance à l'effraction et une facilité d'utilisation. Nous vous avons présenté les principaux profils de cette entreprise :
- Alu Inside à sept chambres avec trois niveaux d'étanchéité et technologie d'assemblage brevetée PVC-aluminium.
- Des modèles de vie qui répondent à la technologie de la maison passive.
- Corona SI 82 à six chambres avec trois niveaux de joints et une profondeur d'installation de 82 mm.
- Corona CT 70 AS avec cinq chambres. La profondeur d'installation de la structure est de 70 mm.
Nombre de caméras
Les chambres sont l'espace dans un profil qui est rempli d'air. Plus il y en a, meilleure est l'isolation. C'est d'eux que dépendent la température et le silence dans la pièce. Les normes modernes mettent en avant les exigences suivantes : le profil doit comporter au moins trois caméras. Absolument toutes les fenêtres modernes de n'importe quel fabricant répondent à cette exigence. Le nombre maximum possible est de huit caméras. Cependant, comme le montre la pratique, les acheteurs préfèrent choisir le juste milieu. Par exemple, les fenêtres populaires IVAPER 82 ont six caméras, tandis que Schuco Alu Inside en a sept.
Hermiticité
Les joints, qui sont l'un des éléments les plus importants de la fenêtre, sont responsables de cela. Ils sont dans tous les profils, que ce soit Veka, Rehau ou IVAPER. La seule question est sa qualité. Les experts estiment que, entre autres, les joints allemands à haute ductilité bien lubrifiés avec du silicone gagnent. Cependant, le plus souvent, une version domestique ou chinoise robuste est incluse dans la configuration standard. Si vous voulez que la pièce soit vraiment chaude, commandez un sceau allemand (généralement une option supplémentaire). Cela vaut la peine de payer un supplément pour cet élément, car vous obtiendrez ainsi une fenêtre coupe-vent qui retiendra la chaleur même par temps extrêmement froid.
Renforcement
C'est lui qui est responsable de la rigidité de l'ensemble de la structure. Ainsi, selon GOST, tous les profilés en plastique de plus de 50 cm doivent être renforcés en plus avec un renfort. La résistance de la fenêtre finie en dépend. Les fabricants utilisent des profilés de renfort de différentes formes (carré ou en U). Il n'est pas fondamental que l'épaisseur du renfort soit d'au moins 1,4 mm, car de nombreux fabricants, essayant d'économiser de l'argent, utilisent du fer de 1,2 mm voire 1,0 mm d'épaisseur, ce qui réduit considérablement la rigidité de la fenêtre.
Voulez-vous que votre maison soit lumineuse, chaleureuse et confortable? Choisissez des constructions de haute qualité produites par Titan Windows. Pour en savoir plus sur les profils, appelez le : +7 (812) 339-22-90
Comparatif des profils Rehau
La comparaison des profils Rehau par caractéristiques techniques donnera une image plus claire de chaque type, ce qui simplifiera la sélection. Nous examinerons chaque système séparément, en fournissant des avantages, des spécifications et des objectifs.
Rehau blitz nouveau


Caractéristiques du système :
- un profil de trois caméras ; - épaisseur du système 60 mm ; - isolation thermique 0,70 m2 * C / W; - profilé de renfort en U de 1,5 ou 2 mm ; - sécurité anti-effraction avec renfort supplémentaire; - deux contours fermés du joint avec chevauchement ; - la résistance à la chaleur et l'ouverture sont augmentées par rapport au profil de base Rehau ; - la surface est lisse, la stratification dans n'importe quelle teinte est possible.
Avantages du profil :
- Isolation phonique et thermique classe 4 ; - pas de courants d'air et de pénétration d'humidité ; - plusieurs options pour les parcloses ; - prix raisonnables.
Rehau Blitz New doit être choisi pour le vitrage des fenêtres, des vérandas, des balcons dans les appartements, les maisons et les espaces publics. Adapté aux climats froids, vitrage des maisons situées à proximité des autoroutes. Si l'on considère le profil Rehau Action, sa différence avec Blitz est minime et le coût est inférieur. Vous pouvez commander des fenêtres basées sur ce profil ici.
Rehau thermo


Caractéristiques du profil:
- épaisseur 60 mm ; - système à quatre chambres; - isolation thermique 0,70 m2 * C / W; - renfort en acier standard; - mastic avec chevauchements de trois types, blanc, gris, noir; - Protection anti-effraction - WK3, isolation acoustique classe B ; - étanchéité à l'air jusqu'à la classe A.
Avantages du modèle :
- design classique, dimensions restreintes ; - l'isolation thermique correspond à des systèmes Rehau plus chers en comparaison ; - résistance aux charges ; - protection contre les courants d'air, étanchéité ; - prix abordable, différentes nuances.
Rehau Thermo est un excellent choix pour un vitrage fiable et bon marché (premium) dans n'importe quelle partie de la Russie. Vous pouvez commander des fenêtres basées sur ce profil ici.
Rehau grazio


Caractéristiques du système :
- profil à cinq chambres pour le prix de trois; - profondeur 70 mm, mais la structure n'est pas lestée, car les faces avant des profilés ont des biseaux d'origine ; - excellente isolation thermique et phonique; - isolation thermique 0,85 m2 * C / W; - isolation double chevauchement, en trois couleurs; - double protection contre les courants d'air, la poussière de la rue.
Avantages du modèle:
- recommandé pour une utilisation dans les zones climatiques avec des températures inférieures à -400S. - classe premium; - vous pouvez commander des dimensions non standard; - épaisseur de renfort - 1.5.
Grazio peut être installé aussi bien du côté ensoleillé que du côté ombragé des bâtiments, maisons et appartements. Recommandé pour l'installation dans les maisons situées à proximité des aéroports. Vous pouvez commander des fenêtres basées sur ce profil ici.
Délice de réhau


Caractéristiques du profil :
- cinq caméras ; - largeur de montage 70 mm ; - isolation thermique 0,80 m2 * C / W; - Rehau Delight, par rapport à Grazio, dispose d'une protection renforcée contre l'effraction, grâce au déplacement des rainures de l'appareil de 13 mm ; - isolation à double circuit en trois couleurs; - haute résistance à l'humidité et étanchéité.
Avantages du modèle :
- jusqu'à 90 % de conservation de la chaleur dans la maison ; - en été, la fenêtre réfléchit les rayons infrarouges du soleil sur la rue, créant ainsi un climat frais dans la pièce - c'est également une différence significative entre Rehau Grazio et Delight ; - système de drainage ; - la transmission lumineuse est supérieure de 10 % à celle des analogues, en raison de la réduction de la hauteur du profil.
Modèle de luxe, a un design spectaculaire, des options de couleurs. Il peut être utilisé pour l'agencement d'appartements, de façades de maisons, de reconstruction de bâtiments, de vitrages industriels. Les fenêtres conviennent à une utilisation sur les côtés ombragés car elles laissent entrer plus de lumière. Vous pouvez commander des fenêtres basées sur ce profil ici.
Réhau brillant


Caractéristiques du système :
- cinq et six caméras ; - largeur de montage 70 mm et 80 mm, respectivement ; - isolation thermique 0,79 m2 * С / W; - protection anti-effraction renforcée - déplacement des rainures de 13 mm et ferrures spéciales ; - étanchéité et résistance à l'humidité; - joint double circuit ; - surfaces lisses, entretien facile.
Avantages de conception:
- variabilité du décor du châssis en trois phrases ; - protection thermique accrue ; - système de drainage ; - isolation complète du bruit de la rue; - convient aux portes de balcon.
Brillant appartient à la classe premium, idéal pour une installation dans des bâtiments économes en énergie, adapté aux fenêtres et balcons. Ce modèle de fenêtres Rehau, par rapport aux analogues, répond aux exigences les plus élevées, a un design exclusif. Vous pouvez commander des fenêtres basées sur ce profil ici.
Rehau Intelio 80


Caractéristiques du profil de fenêtre :
- six caméras ; - épaisseur du système 80 mm; - isolation thermique 0,98 m2 * C / W; - résistance au vent classe A ; - perméabilité à l'air et résistance à l'humidité classe A ; - joint double circuit et joint central - étanchéité totale ; - surfaces lisses, entretien facile.
Avantages de conception :
- le plus haut niveau d'isolation acoustique - la réputation d'un profilé "silencieux" ; - protection contre les déperditions thermiques ; - limiteur de convection ; - protection contre la poussière, les courants d'air ; - options d'ombre, beau design.
Intelio 80 convient à une installation dans des appartements, des maisons, tous les bâtiments, y compris dans les régions du nord. C'est une excellente solution en termes d'isolation phonique. Vous pouvez commander des fenêtres basées sur ce profil ici.
Généo Rehau


Caractéristiques:
- unité de fenêtre à double vitrage 44 mm; - profondeur du profilé 86 mm ; - la plus haute protection thermique 1,05 m2 * C / W; - isolation phonique classe 5 selon les normes européennes ; - protection contre l'effraction à partir de la classe 2 ; - haute résistance sans renfort, grâce à la fibre optique - les profilés des fenêtres Rehau Geneo sont 40 % plus légers par rapport aux analogues ; - entretien facile et belles surfaces lisses.
Avantages du produit :
- poids léger de toute la structure; - l'économie de chaleur est la plus élevée jusqu'à 76% ; - protection contre le bruit, le vent ; - convient aux fenêtres arrondies, possibilité d'utiliser différentes options de modèle; - évacuation des condensats ; - assortiment de nuances.
Geneo est destiné à être utilisé dans la construction de grands immeubles de grande hauteur en raison de sa construction légère. Cette option est idéale pour le vitrage de maisons, appartements, terrasses, serres, balcons écoénergétiques. Vous pouvez commander des fenêtres basées sur ce profil ici.
Avantages et inconvénients de l'utilisation des tuyaux Rehau
Systèmes de polyéthylène réticulé Rehau a gagné la plus grande popularité, dépassant le fabricant polonais KAN et israélien Golan.
De plus, les produits sont plus chers que les canalisations en acier ou en polypropylène. Mais le prix élevé est entièrement récompensé par les avantages, ce qui garantit une forte demande.
Avantages des canalisations Rehau
- Simplicité et rapidité d'installation. Le tuyau peut être facilement coupé avec des ciseaux. Après avoir obtenu la longueur souhaitée, il suffit d'insérer le raccord et de serrer la connexion avec le tendeur. Aucun joint torique en caoutchouc n'est requis. Au fil du temps, une telle connexion ne perdra pas son étanchéité, car il n'y a pas de pièces en caoutchouc dégradantes. Par conséquent, après avoir assemblé la canalisation, elle peut être installée dans la chape sans craindre d'éventuelles fuites. Ceci est important, car avec une installation cachée, un accident entraînera de graves conséquences.
- La géométrie des tuyaux peut être modifiée sans perte de qualité. Le polypropylène ou le plastique renforcé ne peuvent pas être pliés de manière aussi sûre. Par conséquent, les produits Rehau sont bien adaptés aux structures complexes.
- Le polyéthylène de haut poids moléculaire se distingue par ses excellentes propriétés d'isolation acoustique. Cela augmente considérablement le confort d'utilisation.
- Durabilité. Le fabricant garantit le fonctionnement sans problème de ces canalisations pendant 50 ans. Comparé aux produits fabriqués à partir d'autres matériaux, il s'agit d'une durée de vie exceptionnelle.
- Le polyéthylène réticulé ne se corrode pas et ne forme pas de tartre à l'intérieur. Par conséquent, avec le temps, la qualité de fonctionnement ne se détériore pas.
- Les produits sont fabriqués en Allemagne, ce qui est un gage de qualité supplémentaire.


Inconvénients des tuyaux XLPE de Rehau
- Le coût élevé du système. Un excès de tés et de coudes entraîne une augmentation des prix. Cela est dû au coût élevé des raccords. Ces pièces en polypropylène coûteront plusieurs fois moins cher.
- Mauvaise élasticité. Cela rend difficile l'alignement. Cela ne peut être fait que lors de l'utilisation de supports supplémentaires.
- Outil coûteux pour l'installation. Lors de l'installation de tuyaux jusqu'à 32 diamètres, vous pouvez vous en tirer avec un ensemble coûtant environ 400 $. Mais si le diamètre du tuyau commence à partir de 40 mm, les prix des outils augmentent considérablement. Dans ce cas, vous devrez payer au moins 2 000 dollars pour l'achat. Mais vous pouvez toujours économiser de l'argent en louant du matériel auprès d'un fournisseur de matériel.
Gamme de tubes Rehau XLPE
- Rautitan le sien. Il est utilisé pour l'approvisionnement en eau chaude et froide, résiste à un chauffage jusqu'à 70 degrés.
- Rautherm S. Conçu pour les systèmes de chauffage, résistant à la pression et aux températures élevées.Il a une grande flexibilité, de sorte qu'il peut être monté à basse température.
- Flex Rautitan. Une option universelle qui peut être utilisée pour le chauffage et l'approvisionnement en eau.
- Stable Rautitan. Possède les mêmes capacités que le type de tuyaux précédent. En même temps, il résiste mieux à une augmentation de température à court terme. L'avantage est la présence d'une couche d'aluminium qui protège les tuyaux de la dilatation linéaire. Il augmente également la rigidité du produit, ce qui simplifie la mise en œuvre de structures linéaires.
- Rautitan basique. Il est rarement utilisé dans les systèmes modernes, car il est fourni avec des raccords à compression radiale. La technologie est considérée comme obsolète.
- Rautitan rose. Légèrement inférieur aux tuyaux flexibles, mais le coût est inférieur.
Grande variété de tuyaux XLPE Rehau simplifie la sélection de produits pour un projet spécifique. En raison de la grande étanchéité des joints, une complexité structurelle élevée est disponible.















