Caractéristiques des dispositifs à combustible solide
Les chaudières en acier et en fonte pour combustibles solides diffèrent en ce que:
- faciles à installer, ils peuvent être assemblés à la main, car cela ne nécessite généralement pas l'utilisation d'équipements de soudage et de raccords de tuyauterie complexes;
- avoir une longue durée de vie - une unité bien conçue peut fonctionner sans panne pendant au moins dix ans;
- pour l'installation de chaudières à combustible solide avec un échangeur de chaleur en fonte, aucun permis n'est requis, la seule condition est une bonne conception de la cheminée;
- ils ont une longue période de combustion, bien que tous les appareils n'aient pas cette caractéristique, mais de nombreux fabricants s'efforcent pour cela;
- avoir une consommation de carburant économique - cette qualité est la principale raison pour laquelle les chaudières de chauffage en fonte à combustible solide ont acquis une grande popularité;
- répartir efficacement la chaleur - elle ne pénètre pas dans la cheminée, mais entre dans la pièce par des vannes spéciales;
- chauffer rapidement les locaux, notamment pour les générateurs de chaleur;
- dans les unités à combustion longue, la durée du travail sur un onglet de bois de chauffage atteint 10 à 12 heures;
- ils ont un fonctionnement autonome, car les appareils, en règle générale, ne sont pas volatils.
Pour que les chaudières de chauffage à combustible solide en fonte fonctionnent longtemps, lors de leur achat, vous devez faire attention aux conditions de service offertes par l'entreprise de fabrication, aux garanties qu'elle fournit pour ses produits.

Le fait est que sur le marché des appareils de chauffage, vous pouvez acheter un faux - un appareil fabriqué de manière artisanale. Souvent, ces chaudières à combustible solide en acier et en fonte sont de bonne qualité, mais elles n'ont pas d'obligations de service et de garantie. Les acheteurs de telles unités en cas de panne ne peuvent faire de réclamation à personne.
Variété de types de chaudières
Dans les centres commerciaux spécialisés pour les équipements de chauffage, en plus des chaudières en acier et en fonte pour combustibles solides, ils vendent des unités fonctionnant aux huiles usagées, à l'essence, au diesel, etc. Une grande variété de ces produits vous permet de choisir exactement l'appareil qui peut offrir un séjour confortable dans la maison.


Les chaudières à combustible solide se distinguent:
- produits à base de charbon;
- appareils pour lesquels des granulés sont utilisés;
- fours à combustion longue;
- générateurs de chaleur.
Dispositif de chaudière à combustible solide en configuration classique
Chaudière au design classique, la fonte à combustible solide est un mécanisme complexe dans lequel chaque élément a sa propre fonction et remplit certaines fonctions. La résistance structurelle élevée, la fiabilité des connexions des éléments structurels individuels garantissent un fonctionnement sûr de l'unité.


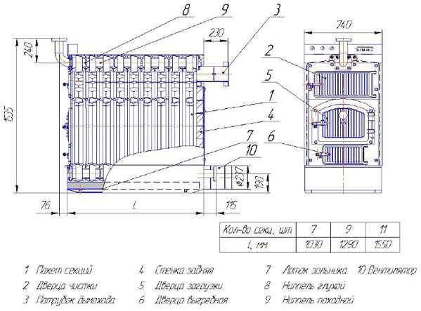
Le nombre de sections dans les chaudières en fonte pour combustibles solides est toujours fixe. Le schéma montre la conception d'une chaudière en fonte, l'emplacement des principaux éléments structurels. Les principaux composants d'une chaudière en fonte sont:
- sections;
- tuyau de dérivation (sortie de cheminée);
- mamelons;
- chambre de combustion avec une porte;
- cendrier;
- Ventilateurs.
Presque toutes les pièces et tous les assemblages de la structure sont interchangeables, ce qui rend la chaudière en fonte très pratique et pratique à entretenir. L'absence de produits et de dispositifs structurels complexes simplifie le fonctionnement de la chaudière dans des conditions domestiques.La conception de la chaudière est simple et compréhensible même pour un profane qui n'est pas familier avec l'équipement de la chaudière.
Quant au mécanisme de contrôle, la situation est ici ambiguë. Les chaudières en fonte pour le charbon ou d'autres combustibles fossiles ont, dans la plupart des cas, un système de commande mécanique. Le mécanisme de réglage principal est le régulateur de tirage, qui est chargé de contrôler la diminution ou l'augmentation de la température de chauffage du liquide de refroidissement. Les appareils modernes, produits principalement par des sociétés étrangères, sont équipés de contrôleurs et de ventilateurs soufflants
Pour référence: des ventilateurs de soufflage sont installés sur des chaudières en fonte à combustible solide pour éliminer la résistance apparaissant dans le conduit.
De tels dispositifs ont un effet insignifiant sur la capacité de la chaudière à être ajustée, cependant, en raison d'un équipement supplémentaire, l'efficacité de la chaudière augmente. La chambre de combustion et les sections en fonte ne sont pas fantaisistes pour la qualité du carburant. Contrairement aux chaudières à pyrolyse, où un combustible sec (maximum 20% d'humidité) est nécessaire, les chaudières en fonte à combustion longue peuvent traiter tout type de combustible, dans toutes les conditions.
Chaudières à charbon
La particularité de la production de ces appareils réside dans le fait qu'ils utilisent un métal ultra-résistant, pour le soudage des éléments dont une technologie spéciale est utilisée. Cette conception vous permet de brûler du carburant dans la chambre de combustion sans casser son étanchéité.


Les chaudières de ce type peuvent non seulement fonctionner au charbon, mais également utiliser des granulés, de la sciure de bois, etc. Leur inconvénient est qu'une chaudière à combustible solide en fonte de ce modèle est coûteuse.
Chaudières par type de combustible
Les chaudières à combustibles solides fonctionnent principalement avec des matériaux à base de bois. Avant d'acheter tel ou tel modèle, il vaut la peine de lire dans son passeport le type de carburant utilisé et les options alternatives.


Diagramme schématique
Les unités modernes sont divisées en plusieurs variétés:
- La combustion du bois.
- Pastille.
- Universel.
- Charbon.
- Génération de gaz.
Examinons chacun d'eux plus en détail afin de comprendre leurs caractéristiques et leurs aspects positifs.
Universel
Il est recommandé d'acheter des chaudières universelles pour une maison privée, à laquelle la conduite de gaz n'a pas encore été connectée. De telles unités peuvent fonctionner à la fois au gaz et au combustible solide. Par conséquent, lors de la connexion de la maison aux communications, il sera facile pour le propriétaire de passer à un autre combustible - gaz. Les avantages de l'unité sont donc évidents.
La combustion du bois


Travailler le bois
Une chaudière à bois pour une maison privée permet non seulement d'utiliser du bois de chauffage, mais également d'autres types de bois. Lors de l'achat de carburant, vous devez faire attention au degré de sa teneur en humidité, car un arbre trop humide réduit considérablement l'efficacité de l'équipement. En règle générale, ces chaudières sont en acier et ont un faible coût.
Charbon


Options de carburant
Une chaudière à charbon pour chauffer une maison privée peut fonctionner avec de la pierre, du brun ou du charbon de bois. De plus, certains fabricants recommandent d'utiliser du bois de chauffage ordinaire comme combustible alternatif.
Une telle sélection de matériaux solides pour le chauffage permet aux propriétaires de les acheter beaucoup plus facilement. Un autre avantage de l'unité est sa haute performance environnementale.
Génération de gaz
Les chaudières à gaz sont une solution idéale non seulement en termes d'économie, mais aussi d'écologie.
Important! Les matières premières de ces équipements brûlent lentement et complètement, ce qui explique le rendement élevé de l'appareil par rapport aux autres modèles de chaudières à combustible solide.
Ces produits fonctionnent avec du bois et du combustible pressé.Le seul inconvénient de la chaudière est son coût trop élevé, ainsi que des prix solides pour le carburant, qui devraient avoir des indicateurs d'humidité minimaux.
Pastille


Conteneur à granulés
Les chaudières à pellets pour chauffer une maison privée ne prévoient l'utilisation que de matières premières en bois hautement purifiées, qui sont pressées en briquettes spéciales.
L'équipement diffère des analogues en ce que tous les processus qu'il contient sont entièrement automatisés. Le propriétaire est seulement tenu de remplir le réservoir de carburant avec du carburant et d'activer l'unité. Lors de la combustion de 1 kilogramme de pellets, jusqu'à 5 kW / h d'énergie sont générés, ce qui est considéré comme l'indicateur le plus élevé pour les chaudières à combustible solide.
Un tel équipement est assez cher, mais il se rentabilise très rapidement. Un autre avantage de la chaudière à granulés est sa durée maximale de fonctionnement avec une fréquence minimale de pannes et de réparations du programme.
Chaudières à pellets
Ils ont une solution de conception intéressante et sont capables de chauffer efficacement les locaux. Le dispositif d'une telle unité est simple: un entonnoir spécial pour les granulés de carburant est fixé à son cadre. A un certain moment, de petites quantités de granulés sont introduites dans la chambre de combustion.


Lors de l'achat d'un tel équipement, il faut tenir compte du degré de sa volatilité. Lorsqu'il est lié au fonctionnement de l'entonnoir, c'est-à-dire à l'alimentation en granulés, cela est acceptable, car lorsque l'alimentation est coupée, le carburant peut être rempli manuellement. Mais si le fonctionnement de la chaudière nécessite le fonctionnement de l'automatisation électronique, vous devez alors réfléchir à la faisabilité de son achat.
Fours à combustion longue
Fondamentalement, de tels dispositifs sont des chaudières à combustible solide standard en acier ou en fonte. Ils sont capables de travailler avec différents matériaux en bois (bois de chauffage, sciure de bois, broussailles), ainsi que des graines de fruits, etc.
En règle générale, ils ne fonctionnent pas à partir de charbon ou de granulés du fait que la technologie de fabrication de la chambre de combustion ne permet pas de brûler ce type de combustible. Les experts vous recommandent d'étudier attentivement les caractéristiques du modèle sélectionné avant d'acheter une chaudière à combustible solide en fonte à combustion longue.


Habituellement, ces unités sont achetées aux fins suivantes:
- pour la fourniture de chaleur des ménages de banlieue et des chalets d'été;
- pour chauffer les locaux techniques;
- pour l'installation et l'exploitation dans les serres et les foyers;
- pour chauffer les bâtiments industriels;
- pour bâtiments agricoles.
Si vous devez chauffer de grands bâtiments de plusieurs pièces, il est préférable d'acheter une version modifiée d'une unité à combustion longue, à savoir un générateur de chaleur. Bien sûr, cela coûte beaucoup plus cher, mais ce prix se justifie pleinement.
Le dispositif d'une chaudière en fonte pour combustibles solides
Une chaudière de chauffage à combustible solide en fonte avec un circuit d'eau est une structure sectionnelle gainée de panneaux de revêtement. Entre le corps et le matériau de revêtement, il y a une couche (jusqu'à 100 mm) de feuille isolante résistante à la chaleur. Le plus souvent, il s'agit de nattes en laine de basalte résistantes au feu.
Pour le raccordement au système d'évacuation des fumées, toutes les chaudières en fonte sont équipées d'un conduit d'évacuation des fumées. Pour le raccordement au système de chauffage de l'eau, deux tuyaux de dérivation correspondants sortent de l'appareil. La chambre à combustible et le bac à cendres sont équipés de portes qui, selon la conception, peuvent être aveugles ou avec des inserts en verre ignifuge. Selon la conception, certains modèles de chaudières à combustible solide en fonte sont équipés d'un ventilateur à air pulsé.
En raison de la température élevée des gaz d'échappement, tous les modèles à combustible solide sont fabriqués exclusivement avec un échangeur de chaleur en acier ou en fonte.C'est pourquoi les chaudières à combustible solide ne peuvent être qu'en acier ou en fonte. L'échangeur de chaleur est le composant le plus important de toute chaudière à combustible solide. L'échangeur de chaleur d'une chaudière en fonte se compose de modules individuels et constitue généralement le corps de l'ensemble de la chaudière.


Les sections sont connectées les unes aux autres à l'aide de connexions filetées. Un scellant haute température est utilisé pour sceller les joints. Les cavités internes des sections sont remplies d'un liquide de refroidissement et l'espace interne est utilisé comme chambre de combustion.
Important! Cette conception des échangeurs de chaleur en fonte permet d'effectuer des travaux de remplacement de sections en cas de panne ou d'augmenter leur nombre pour augmenter la puissance de l'appareil. Les chaudières à combustible solide en fonte diffèrent de leurs homologues en acier par le mode de production des modules, la méthode d'assemblage et le matériau de l'échangeur de chaleur, dont dépendent largement la fonctionnalité et l'efficacité du travail.
Générateurs de chaleur
Ce sont des fours à convection auxquels un ventilateur électrique appelé «escargot» est connecté. Il y a des ouvertures spéciales sur la surface de cet équipement pour connecter des tuyaux flexibles.
Les générateurs de chaleur fonctionnent d'une certaine manière: le carburant est chargé dans la chambre de combustion, allumé, puis un ventilateur est mis en marche, qui y injecte de l'air. Grâce à cela, le bois de chauffage brûle mieux et l'air chauffé, se déplaçant le long des manches, est plus rapide sur la cible. Les tuyaux flexibles sont de différentes longueurs et leurs extrémités peuvent être insérées dans des pièces.


Avantages des générateurs de chaleur:
- la durée de la combustion continue sur un remplissage est d'environ 8 heures;
- consommation de carburant économique;
- les appareils peuvent être utilisés pour chauffer n'importe quel local;
- les unités sont capables de chauffer de très grandes surfaces;
- il est possible d'augmenter la puissance si nécessaire, pour laquelle une section est ajoutée à la structure de la chaudière.


Les inconvénients des générateurs de chaleur sont les suivants:
- la nécessité d'installer des tuyaux flexibles pour déplacer l'air chaud;
- en l'absence d'électricité, le ventilateur, le ventilateur ne peut pas fonctionner, ce qui affecte la distribution de l'air chauffé dans des «tuyaux» séparés.
Caractéristiques des chaudières en fonte
Il est à noter que presque toutes les chaudières à combustible solide en fonte peuvent fonctionner au bois et au coke. Il coûte plus cher qu'un produit en acier, mais ses caractéristiques justifient le prix. Le fait est que leur production prend beaucoup plus de temps que l'assemblage d'un appareil en acier.
Une chaudière de chauffage à combustible solide en fonte est plus durable qu'une chaudière en acier, elle est capable de résister à des températures plus élevées. La fonte refroidit beaucoup plus lentement, ce qui économise du carburant.


De plus, pour les appareils en fonte:
- il y a un avantage significatif - c'est la durabilité, car leur durée de vie atteint 25 ans;
- ils prennent moins de place que les unités en acier;
- la fonte est plus résistante aux processus de corrosion que l'acier.
Cet équipement de chauffage présente des inconvénients:
- Une chaudière à combustible solide avec un échangeur de chaleur en fonte est sensible aux sollicitations mécaniques sous forme de chocs. Le corps en fonte peut se fissurer sous une certaine charge. Pour cette raison, il doit être manipulé avec précaution.
- En cas de forte baisse de température, la fonte peut se fissurer.Par conséquent, les experts ne recommandent pas de refroidir ces chaudières avec de l'eau froide ou de charger du carburant froid dans une chambre de combustion chauffée.
- Il faut beaucoup de temps pour chauffer un boîtier en ce matériau.


Pour encore mieux comprendre quelle est la différence entre une chaudière de chauffage en fonte et une chaudière en acier, vous devez vous familiariser plus en détail avec les propriétés des unités en acier à combustible solide:
- la résistance aux chocs des appareils est particulièrement importante pendant le transport, même s'ils tombent ou se renversent, alors avec une probabilité de 99%, on peut affirmer que le corps restera intact et que l'étanchéité de la chambre de combustion ne souffrira pas;
- même de grandes baisses de température ne sont pas dangereuses pour les chaudières en acier;
- les produits sont relativement légers;
- si l'un des éléments se casse dans l'équipement de chauffage, il peut être soudé sans problème.


Parmi les points négatifs, il convient de noter la sensibilité aux processus corrosifs, ainsi que l'incapacité d'augmenter la puissance.
Avantages et inconvénients
Les chaudières en fonte présentent de nombreux avantages:
- autonomie de travail;
- aucune autorisation spéciale requise pour l'installation;
- le carburant est abordable et bon marché;
- les échangeurs de chaleur en fonte sont résistants à la corrosion;
- un tel échangeur de chaleur réduit la possibilité de condensation sur les parois internes de la chambre de combustion du carburant;
- un grand choix de puissance de chaudière, vous pouvez choisir l'option la plus optimale pour votre maison, en fonction de sa taille;
- durabilité d'utilisation - plus de 10 ans.
Le prix final d'une chaudière en fonte dépend de nombreux facteurs : puissance, fabricant, caractéristiques de conception.
Inconvénients des chaudières à combustible solide en fonte:
- Faible efficacité - jusqu'à 70%.
- Poids important de la structure; sur le site d'installation, le coulage de la fondation est nécessaire.
- Chauffage prolongé.
- Le bac à cendres doit être nettoyé régulièrement.
- Sensibilité aux fluctuations de température.
Chaudières en fonte à double circuit
Les appareils sectionnels sont subdivisés en circuits simples et doubles. Le premier d'entre eux ne fonctionne que pour la fourniture de chaleur. Un équipement de chauffage tel qu'une chaudière en fonte à double circuit à combustible solide est capable de fournir à la fois le chauffage du logement et l'alimentation en eau chaude. La chaudière à combustible solide à double circuit à combustion longue a un gril intégré, qui peut être situé sous l'enveloppe extérieure.


Un tel dispositif structurel d'une chaudière en fonte à combustible solide implique l'installation d'une pompe pour assurer la circulation de l'eau. Les appareils à double circuit diffèrent des autres modèles par de grandes tailles.
Types de chaudières à combustible solide
À première vue, le principe de fonctionnement de toute chaudière est le même: le combustible (solide, liquide ou gazeux) est brûlé et la chaleur qui en résulte est envoyée pour chauffer le liquide de refroidissement. En fait, il peut y avoir plusieurs modes de combustion et la conception des chaudières est sensiblement différente les unes des autres.
En ce qui concerne les dispositifs à combustible solide, il est possible de distinguer des types de chaudières tels que:
- chaudière à combustible solide en fonte simple - le mot «simple» signifie que le combustible brûle simplement dans la chambre de combustion. Ils peuvent travailler sur le bois, le charbon, les granulés, les déchets de l'industrie du bois, etc.


Schéma d'une simple chaudière
- type de générateur de gaz (il s'agit d'une chaudière à combustion longue ou à pyrolyse) - dans ce cas, l'accent est mis sur la combustion la plus complète du combustible. Pour cela, le four est constitué de 2 zones, l'une contient du combustible et l'autre est utilisée pour la postcombustion du gaz de pyrolyse. En savoir plus sur le principe de fonctionnement de ces appareils - plus loin dans l'article;


Le diagramme montre que le gaz de pyrolyse sur le chemin de la sortie a le temps de brûler complètement
- chaudière Stropuva - est intéressant principalement pour sa conception. La chambre de combustion en forme de cylindre est placée dans un autre cylindre et l'espace entre les murs est rempli d'un liquide de refroidissement. En raison du grand volume du four, une telle chaudière peut fonctionner jusqu'à plusieurs jours.


Chaudière Stropuva
Noter! Le fonctionnement d'une telle chaudière est assez facile à réguler; sa simplicité de conception contribue également à sa popularité. En comparaison, par exemple, avec une chaudière à granulés, le prix d'une telle "poupée gigogne" sera beaucoup plus bas.
- appareils entièrement automatiques - toutes les chaudières répertoriées doivent être nettoyées régulièrement, car le combustible ne brûle pas à 100%.Par conséquent, même dans les chaudières les plus modernes, les fabricants organisent des cendriers pour le nettoyage. Dans les chaudières automatiques, non seulement le processus de nettoyage est automatisé, mais également le processus d'alimentation en combustible du four.
Noter! L'approvisionnement en carburant est généralement organisé par un tapis roulant, de sorte qu'un tel système de chauffage dépendra de l'électricité. Cela doit être pris en compte lors de la conception du chauffage en dehors des zones urbaines, où les pannes d'électricité ne sont pas si rares.


L'alimentation automatique en carburant est organisée par un convoyeur à bande


