Comprendre une vanne d'arrêt
La vanne d'arrêt est installée pour une interférence mécanique avec la libre circulation des liquides et des gaz dans la canalisation. L'arrêt et la vidange de la ligne du contenu peuvent être nécessaires en raison de fuites, de dépressurisation, de changements critiques de température ou de pression. Autrement dit, le contenu est soit complètement chassé du site, soit son mouvement est bloqué.
Les appareils sont installés sur le réseau avec les gaz, les produits pétroliers, l'eau chaude et froide. Il peut s'agir à la fois de services publics domestiques, de stations-service et de structures plus industrielles ou, par exemple, d'un réseau de chauffage urbain.

Vanne d'arrêt
Il existe des dispositifs jetables qui sont équipés de valves remplaçables ou qui sont sujets à un remplacement complet après utilisation. Ils sont généralement en plastique. Les équipements métalliques réutilisables sont très demandés en raison de leur longue durée de vie.
Caractéristiques de conception
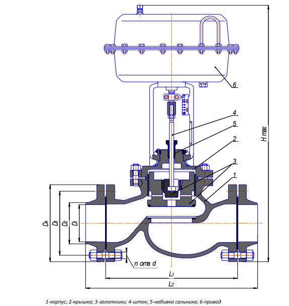
L'appareil est basé sur un corps, un siège et un couvercle moulés sous pression. Ils sont fabriqués en fonte, en acier galvanisé, en laiton ou en matériaux polymères à haute résistance. Le deuxième élément sert à installer la vanne dans la canalisation.
Le mécanisme d'obturation se présente comme suit :
- ressort qui entraîne l'appareil (obturateur et rappel);
- la tige responsable de la dynamique de la vanne ;
- Coussin absorbant pour éviter la condensation et les fuites.
Des actionneurs électriques ou pneumatiques sont responsables du déclenchement de l'appareil. La vanne est commandée de deux manières : manuellement par l'opérateur ou automatiquement. Sans intervention humaine, le déclenchement se produit, en règle générale, grâce à des capteurs intégrés.


Appareil avec capteur
Principe d'opération
La fonctionnalité du dispositif d'arrêt est de garantir que le contenu du pipeline arrête son mouvement dans une section spécifique ou le long de la ligne dans son ensemble. Dans ce cas, une vanne d'arrêt doit couper le débit rapidement afin de minimiser les risques d'accidents. Il y a plusieurs raisons à leur apparition :
- violations de la technologie d'installation du pipeline, filtres;
- non-respect des exigences de sécurité ;
- fin de vie des composants constitutifs ;
- divers types de dysfonctionnements;
- changements inattendus de pression ou de température à l'intérieur des structures.
Les appareils équipés de capteurs spéciaux sont considérés comme plus pratiques. Cela est dû au fonctionnement automatique pendant une courte période (de la fraction de seconde à la minute). La vitesse dépend des caractéristiques des capteurs et de la qualité des réglages matériels. Le personnel de service formé est responsable de ce dernier.
Caractéristiques de l'appareil
La conception de la vanne d'arrêt se compose d'un siège au moyen duquel elle est installée dans le système de processus. L'écoulement du fluide est assuré par un système d'approches situé sur le côté du dispositif. Au centre du mécanisme se trouve une section de soupape à l'intérieur de laquelle se trouve un joint qui empêche les fuites de liquide et la formation de condensation.
La principale différence entre une vanne d'arrêt et d'autres vannes d'arrêt est l'actionnement automatique de l'appareil. L'actionneur entre en action lorsque les paramètres du système changent (par exemple, lorsque la pression chute ou que la température de l'eau augmente de manière critique). Les modifications des paramètres de fonctionnement sont perçues par des dispositifs de contrôle et de mesure équipés de capteurs intégrés sensibles.


Le système est réglé sur une plage spécifique de températures, pressions et autres paramètres physiques. Selon le niveau de sensibilité des capteurs, le variateur peut se déclencher quasi instantanément ou au bout de quelques secondes/minutes, bloquant la partie secours du système. La vitesse de la vanne d'arrêt dépend de la sensibilité des capteurs. Dans les zones critiques du système, la prévention des accidents peut dépendre d'une fraction de seconde, ce qui oblige les ingénieurs à configurer soigneusement l'équipement.
Aspects positifs de l'utilisation d'une vanne d'arrêt
Par rapport aux vannes, qui assumaient initialement la tâche d'arrêter le mouvement des liquides et des gaz, les vannes d'arrêt sont équipées de divers types de mécanismes de réponse automatique. Elle consiste soit à donner des signaux aux opérateurs, soit à bloquer directement le libre passage dans la canalisation.


Vanne d'arrêt
Aujourd'hui, les appareils éliminent certains des inconvénients des prototypes d'équipement. Par example:
- en raison des coulées de boue et des impuretés, les fausses alarmes sont exclues ;
- des boîtiers plus étanches sont mieux à même de gérer de petites chutes de pression ;
- la vitesse de réponse est réduite à quelques secondes.
De plus, les vannes d'arrêt modernes arrêtent le mouvement dans les deux sens. Et il y a des éléments supplémentaires dans les conceptions. Par exemple, des rondelles élastiques en silicone ou des cales.
Variétés
La vanne d'arrêt de gaz a plusieurs variétés, qui diffèrent par leur principe de fonctionnement. Il existe deux types, normalement ouvert (NO) et normalement fermé (NC). Le principe du fonctionnement BUT est assez simple. S'il n'y a pas de tension, la vanne restera ouverte tout le temps. La différence avec la vanne NC est que l'absence de tension va, au contraire, fermer la vanne. Après cela, vous devrez l'ouvrir manuellement.
Ces deux appareils sont des électrovannes à action directe. Cela signifie que la fermeture se produira en raison de l'action de l'électro-aimant et que la coupure de l'écoulement du fluide de travail sera notée des deux côtés de la canalisation.
Cependant, de tels dispositifs présentent un inconvénient important, qui réside dans le fait que la plage de fonctionnement des pressions et des diamètres est assez petite.


Les principaux types d'appareils
Les raccords de tuyauterie diffèrent par leur conception et leur fonction. Ainsi, les appareils normalement ouverts sont distingués. Ils sont chargés de gérer les flux par rapport au trafic. Les dispositifs d'arrêt normalement fermés sont généralement actionnés manuellement et ouverts en cas d'urgence pour libérer le contenu d'un réservoir ou d'une conduite.
Les appareils pour l'eau, les produits pétroliers et le gaz sont considérés séparément. L'actionnement peut être effectué au moyen d'une charge mécanique, d'un mécanisme à ressort, d'un entraînement pneumatique ou magnétique. Les appareils sont également différents par leurs caractéristiques, leurs méthodes de connexion, fonctionnent dans un ou deux sens. Et selon les matériaux utilisés, les fabricants proposent des vannes d'arrêt jetables et réutilisables.
Angulaire


Vanne d'équerre
Le domaine d'application comprend les lignes pour produits liquides circulant sous haute pression. Le corps de l'équipement est en acier à haute résistance. L'équipement a un entraînement hydraulique à piston. Le principe de fonctionnement est conçu pour les mouvements d'entrée et de distribution.
Point de contrôle
Il est important d'installer une vanne d'arrêt à action directe dans les canalisations où il y a un risque de fuite. Le contenu dans ce cas peut être à la fois propre et avec des impuretés ou des impuretés, des inclusions de bulles. Dans le même temps, les microparticules ne se déposent pas et ne s'accumulent pas dans les articulations nodales. En ce qui concerne les matériaux, les principaux critères sont la résistance aux chocs, la résistance à l'usure et la protection contre les dommages causés par la corrosion.
Deux places
Cet instrument a deux sièges et des fiches. L'installation est autorisée sur des canalisations de grande section et de fortes pertes de charge. Les vannes d'arrêt à double siège sont utilisées dans des conditions explosives et des réactions chimiques actives.
Monoplace
Un tel dispositif d'obturation est installé sur des canalisations de diamètre relativement petit. Il en est de même pour l'amplitude des faibles pertes de charge. L'appareil a un piston intégré qui bloque le débit dans une direction.


Vanne à siège simple
Auto
Les vannes d'arrêt de ce type ont généralement un amortisseur à vapeur. Il fonctionne dans les 1,5 à 10 secondes après un dysfonctionnement. Ils se caractérisent également par une durabilité et une sensibilité minimale à la déformation. Pour une plus grande efficacité, les appareils sont équipés de contrôleurs spéciaux. Ils réagissent aux changements de pression, de température, de composition du contenu, qui doivent rester constants.
Types d'arrêt
La classification des dispositifs d'arrêt est basée sur plusieurs paramètres clés. Selon le principe d'action, ils sont divisés en:
- Normalement ouvert - dans l'état normal, les appareils sont en position ouverte, laissant passer librement le courant de l'environnement de travail. Lorsque l'actionneur est déclenché, la vanne se ferme, coupant le débit d'eau ou de gaz.
- Normalement fermé - jusqu'à ce qu'une alarme se produise, la vanne est fermée et lorsque l'actionneur est déclenché, il s'ouvre et libère du liquide ou du gaz. Certains types d'appareils nécessitent une ouverture manuelle de la vanne.
Selon le type d'installation et le fluide de fonctionnement, les vannes d'arrêt peuvent être classées en dispositifs pour l'eau et le gaz. Les vannes d'arrêt de gaz sont divisées en vannes à simple siège et à double siège. Le premier type de coupure ferme le système d'un seul côté du pipeline lorsque l'extraction de gaz s'arrête. Les vannes à double siège coupent le débit de gaz des deux côtés du gazoduc lorsque la pression dans le système augmente / diminue.
Nous vous recommandons de vous familiariser avec : Comment faire la transition lors du remplacement des tuyaux du métal au polypropylène ?
Les vannes d'arrêt de liquide sont de quatre types :
- postes de contrôle ;
- coin;
- monoplace;
- double selle.
Les vannes sont également classées en quatre catégories en fonction de leur mode de fermeture :
- dispositifs qui ferment le flux du fluide de travail au moyen d'un impact de charge ;
- appareils avec mécanisme à ressort;
- appareils à entraînement pneumatique;
- vannes à entraînement électromagnétique.
Important! Les vannes d'arrêt modernes fonctionnent en moyenne 10 à 15 secondes après une urgence. Mais lors du choix d'un appareil, vous devez faire attention à la vitesse de réponse, car vous pouvez acheter par erreur un appareil à l'ancienne qui fonctionne beaucoup plus lentement et est moins serré.
Guide de sélection des vannes d'isolement
L'un des principaux critères est la vitesse de réponse de l'appareil. Surtout si le flux de liquide ou de gaz se produit sous haute pression. Cependant, ce n'est pas le seul paramètre. Ce qui suit est également important :
- Champ d'application. Ce concept cache les substances qui coulent, leur composition, le degré d'agressivité.
- Les conditions de fonctionnement incluent la pression et la température.
- Le débit fait référence à la section transversale de la ligne.
- Étanchéité. La fiabilité de l'équipement dépend de cet indicateur.
- La durabilité affecte la durabilité des appareils.


Vanne en fonte
Lors du choix d'une vanne d'arrêt, la conception et l'action dans une ou deux directions sont prises en compte. En ce qui concerne les matériaux, non seulement le corps est pris en compte, mais également les joints, les joints d'huile, les joints.
Que rechercher lors du choix d'une vanne
Le choix de la vanne d'arrêt doit être une personne ayant un diplôme d'ingénieur, car il est difficile pour un profane de naviguer dans une variété d'appareils.Lors du choix et de l'installation d'une vanne d'arrêt, les professionnels sont guidés par les paramètres suivants:
- Le degré d'étanchéité est une caractéristique importante pour un système d'ingénierie. Les types d'appareils modernes sont équipés de joints torsadés qui empêchent les fuites de liquide et de gaz.
- La vitesse de réponse est le paramètre le plus important du fonctionnement de l'appareil, particulièrement critique pour les systèmes d'ingénierie à haute pression. Plus la vanne est déclenchée rapidement en cas d'urgence, moins d'eau ou de fluide de service sera perdu.
- Le matériau de fabrication est l'acier ou d'autres alliages durables, ainsi que des joints d'étanchéité et des joints d'étanchéité supplémentaires. Le plus important est la capacité du matériau à résister à des températures et des pressions élevées sans perdre ses propriétés physiques et technologiques.
- Le type d'environnement de travail. Il peut s'agir d'eau propre, légèrement ou fortement polluée, de produits pétroliers, de gaz et d'autres fluides. Les dispositifs de coupure modernes sont conçus de manière à ne pas être affectés par la présence de particules mécaniques dans l'eau, ainsi que par la densité, la viscosité et la fluidité du fluide de travail.
Attention! Le prix est un paramètre secondaire lors du choix de l'équipement de verrouillage, en particulier dans les systèmes d'ingénierie complexes et critiques. Les économies se traduisent par une réduction de la durée de vie et de la durée de vie de l'équipement.
La fourchette de prix des vannes à clapet dépend du fabricant ainsi que de la taille du modèle. Les petits appareils avec un lecteur électromagnétique jusqu'à 20 mm peuvent coûter en moyenne 1,9 à 2 000 roubles. Les vannes jusqu'à 100 mm peuvent coûter plus cher à l'acheteur - de 20 à 30 mille roubles.
Nous vous recommandons de vous familiariser avec : Comment fixer correctement le tuyau d'égout au mur - types de fixations et méthodes d'installation
Selon le type d'appareil, le choix de la vanne est plus compliqué, car chaque type de système d'ingénierie a certains paramètres de fonctionnement qui affectent l'équipement d'arrêt. Par exemple, pour les systèmes de plomberie simples, vous pouvez choisir un simple robinet à soupape, ce qui est suffisant pour éviter les fuites d'eau en cas d'urgence. Mais pour les systèmes dans lesquels l'eau circule sous haute pression, il est préférable de choisir un volet d'angle double face.
Règles d'installation des vannes d'arrêt
L'installation du dispositif d'arrêt est effectuée conformément aux instructions du fabricant. L'auto-installation n'est autorisée que sur le système d'approvisionnement en eau du secteur privé. Dans ce cas, le service de garantie et le fonctionnement de l'appareil peuvent ne pas correspondre à ceux déclarés en raison de l'inexpérience de l'installateur. Par conséquent, il serait juste de confier le travail à des spécialistes.
Montez les robinets-vannes dans des endroits accessibles pour l'entretien ou le remplacement de l'équipement. Dans le même temps, les zones dans lesquelles la stagnation et les « sacs » hydrauliques peuvent se former doivent être exclues. Il existe également des règles concernant l'emplacement:
- sur les réservoirs verticaux, le fond supérieur est considéré (ou sur un tube de casque) ;
- sur l'horizontale - dans la zone en phase vapeur (génératrice supérieure du cylindre).
Un point important est l'élimination du gel du contenu de la canalisation dans les connexions nodales. Et la section transversale du tuyau de dérivation doit être 1,25 fois supérieure à l'indicateur analogue total par rapport aux vannes installées dessus.


Le rapport du diamètre du tuyau et de la vanne
Caractéristiques de l'utilisation des dispositifs de sécurité
- Chaque dispositif de protection installé devant le brûleur (raccord rapide, clapet anti-retour) obstrue le passage du gaz
- Selon la quantité requise de débit de gaz requis, différentes tailles de clapets anti-retour doivent être utilisées.
- La pression d'entrée du clapet anti-retour est toujours supérieure à la pression de sortie du clapet anti-retour
- La pression de service requise (réglée) doit être disponible à la sortie de la soupape de retour
- Chaque clapet anti-retour à l'intérieur de l'appareil se salit à cause du rebond pendant l'utilisation en raison du gaz sale, de sorte que la pression de sortie diminuera avec le temps
- Plus de contamination conduit à moins de débit de gaz
- La capacité de débit du clapet anti-retour indique combien de temps il peut être utilisé
- Chaque clapet anti-retour doit être vérifié une fois par an.
Conseil opérationnel
Il est interdit d'utiliser des équipements pour réguler le débit du contenu de la ligne. Par conséquent, les vannes doivent être en position complètement ouverte ou fermée. Lors de l'installation et de la maintenance, il est important d'exclure tout colmatage de la surface interne du boîtier et la pénétration de corps étrangers. L'exploitation n'est possible que dans le strict respect des instructions, toute autre fin est inacceptable.
Les moments liés à la sécurité sont énoncés dans les GOST 12.2063-2015 et 32569-2013, dans les normes établies par des organisations telles que Rostekhnadzor, l'Union douanière, la Commission eurasienne. Il est également important d'utiliser des équipements de protection individuelle. Et seuls des spécialistes formés et autorisés sont autorisés à entretenir les appareils, à les remplacer.
Les vannes d'arrêt sont largement utilisées en raison de leur destination. Grâce à ces dispositifs sur les autoroutes, il est possible de localiser les conséquences des problèmes, de les corriger et de les remettre en service. Cela est vrai à la fois pour les réseaux de services publics et les pipelines à grande échelle.
Vanne d'arrêt hydraulique
L'invention concerne l'ingénierie mécanique, en particulier les vannes d'arrêt de canalisation conçues pour fermer et contrôler le débit d'un fluide passant, et peut être utilisée dans le développement de vannes d'arrêt, en particulier de vannes d'arrêt et d'actionneurs pour vannes. La vanne d'arrêt contient un corps avec des canaux d'alimentation en fluide de travail, une tige à ressort, réalisée avec possibilité de mouvement axial et installée à l'intérieur dudit corps. Une extrémité de la tige est réalisée avec la possibilité de fournir une interaction mécanique avec l'actionneur de la vanne d'arrêt, principalement le robinet-vanne, et à l'autre extrémité de la tige se trouve un vérin hydraulique réalisé avec la possibilité de mouvement axial ensemble avec la tige. Un piston fixe est installé à l'intérieur du cylindre hydraulique spécifié, fixé à une extrémité sur le boîtier de l'entraînement hydraulique et réalisé sous la forme d'un cylindre profilé, principalement creux. Les canaux d'alimentation en fluide de travail sont reliés à la cavité entre le vérin hydraulique mobile et le piston fixe. L'invention vise à simplifier la conception de l'ensemble de l'entraînement hydraulique et de la vanne d'arrêt, d'assurer l'autonomie de son fonctionnement, d'améliorer les caractéristiques massiques et d'augmenter la fiabilité de son fonctionnement. 3 malades
L'invention concerne l'ingénierie mécanique, en particulier les vannes d'arrêt de canalisation conçues pour fermer et contrôler le débit d'un fluide passant, et peut être utilisée dans le développement de vannes d'arrêt, en particulier de vannes d'arrêt et d'actionneurs pour vannes.
Actionneur de vanne hydraulique connu contenant un vérin hydraulique à deux cavités avec un piston dont la tige est reliée mécaniquement à la vanne située entre les tuyaux d'entrée et de sortie, et les cavités du vérin hydraulique sont reliées par un distributeur avec un tuyau d'entrée et une ligne de vidange, tandis que le piston est équipé d'une tige installée coaxialement à celui-ci (AC USSR N 1420293, CL F16K 47/02, 1988).
La raison des capacités technologiques limitées de l'entraînement hydraulique connu est la libération du milieu dans l'atmosphère et le manque de moyens pour fixer la vanne dans des positions intermédiaires, c'est-à-dire. impossibilité de réguler la section de passage de la vanne.
Actionneur de vanne hydraulique connu contenant un vérin hydraulique à deux cavités avec un piston dont la tige est reliée mécaniquement à la vanne située entre les tuyaux d'entrée et de sortie, et les cavités du vérin hydraulique sont reliées par un distributeur avec le tuyau d'entrée et une conduite de vidange, alors qu'elle est équipée d'un accumulateur et d'un clapet anti-retour, et la conduite de vidange est reliée à la cavité de l'accumulateur, et à travers le clapet anti-retour - avec le tuyau d'admission (brevet RF 2052701, IPC : F16K 31/122).
L'entraînement hydraulique spécifié fonctionne comme suit.
Pour ouvrir la vanne, allumez le distributeur. Le milieu liquide du tuyau de dérivation pénètre dans la cavité sous-piston et commence à s'écouler de la cavité au-dessus du piston le long de la conduite à travers la vanne dans le tuyau de dérivation. Lorsque la pression dans le tuyau de dérivation commence à dépasser la pression dans la ligne, la vanne se ferme et le fluide s'écoule dans l'accumulateur, le remplissant et comprimant l'air ou le gaz qu'il contient. Dans la position extrême du piston, sa protubérance pénètre dans la poignée, soit l'aimant attire le piston, soit la tige est attirée par l'aimant, ce qui assure la fixation du clapet. Ensuite, le distributeur est éteint, tandis que les deux cavités du vérin hydraulique sont sous la même pression du milieu, soutenu par le réapprovisionnement à travers l'espace entre la tige et la paroi du vérin hydraulique, tandis que la ligne sur le distributeur est bouchée, le la vanne est fermée. La vanne est commutée pour fermer la vanne. Le fluide provenant du tuyau de dérivation entre dans la cavité du piston ci-dessus et est évacué de la cavité du sous-piston dans l'accumulateur. Lorsque la pression dans l'accumulateur dépasse la pression dans le tuyau de dérivation, la vanne s'ouvre et le fluide provenant de la cavité du sous-piston et de l'accumulateur s'écoule dans le tuyau de dérivation. Le distributeur est éteint, tandis que la vanne sera plaquée contre le siège par la pression du fluide, tandis que les deux cavités du vérin hydraulique sont sous la même pression. Dans un milieu vaporeux, l'entraînement hydraulique fonctionne comme décrit ci-dessus, sauf que le milieu dans l'accumulateur se condense.
Les inconvénients sont une complexité de conception importante et une faible fiabilité opérationnelle.
Entraînement hydraulique connu d'une vanne de verrouillage et de régulation, contenant un entraînement hydraulique à deux cavités avec un piston, dont la tige est reliée mécaniquement à la vanne située entre les buses d'entrée et de sortie, et les cavités du vérin hydraulique sont reliées par un distributeur avec un tuyau d'admission et une conduite de vidange, et le piston est équipé d'une tige installée coaxialement avec De plus, il est équipé d'un accumulateur et d'un clapet anti-retour, et la conduite de vidange est reliée à la cavité de l'accumulateur, et à travers le clapet anti-retour avec un tuyau de sortie, en outre, le vérin hydraulique est équipé d'un tuyau borgne avec une poche radiale, et la tige située sur le piston est réalisée avec des dépressions situées sur sa surface latérale et installées avec la capacité de se déplacer dans la cavité du tube borgne axial, tandis que le piston est équipé d'un dispositif de retenue situé dans la poche radiale du tube borgne avec la possibilité d'interagir avec les dépressions de la tige (brevet RF №2051306, IPC : F16K 31/122).
L'entraînement hydraulique spécifié fonctionne comme suit.
La tige de piston d'un vérin hydraulique à deux cavités est reliée mécaniquement à une vanne située entre les buses d'entrée et de sortie. Les cavités du vérin hydraulique sont reliées par un distributeur avec un tuyau d'admission et une conduite de vidange. Le piston est équipé d'une tige installée coaxialement avec lui. La conduite de vidange est connectée à la cavité de l'accumulateur par l'intermédiaire d'un clapet anti-retour avec un tuyau de sortie. Le vérin hydraulique est équipé d'un tuyau borgne avec une poche radiale. La tige est réalisée avec des dépressions situées sur sa surface latérale et est installée avec la capacité de se déplacer dans la cavité du tuyau borgne axial. Le piston est équipé d'un dispositif de retenue situé dans la poche avec la possibilité d'interagir avec les évidements de la tige.
Entraînement hydraulique connu pour une vanne de fontaine à entraînement hydraulique à fermeture automatique, contenant un vérin hydraulique à deux cavités avec un piston à ressort, dont la tige est reliée mécaniquement au corps de vanne d'arrêt situé entre les buses d'entrée et de sortie, tandis qu'en le corps du vérin hydraulique, il y a des canaux pour l'alimentation du fluide de travail (Vanne à entraînement hydraulique. Description technique et mode d'emploi ZFG.3.021-00.000 TO. Voronej mécanique, 394055, Voronej, rue Voroshilov, prototype 22).
L'entraînement hydraulique spécifié fonctionne comme suit.
Le fluide de travail est fourni sous pression à la cavité au-dessus du piston du vérin hydraulique et agit sur le piston. Le piston avec la tige se déplace vers le centre de la vanne, comprime le ressort, tandis que l'élément d'arrêt, dans ce cas, la vanne, se déplace et ouvre la vanne. Pour fermer la vanne, la pression du fluide de travail est relâchée et le piston avec la tige revient à sa position d'origine sous l'action des forces du ressort. Dans ce cas, le portail reprend également sa position d'origine et le portail se ferme.
Les principaux inconvénients de cet entraînement hydraulique sont la lourdeur importante de sa fabrication, la nécessité de lignes de commande fixes, la complexité de la conception et des encombrements importants, notamment diamétrales.
L'objectif de l'invention est d'éliminer ces inconvénients et de créer une vanne d'arrêt hydraulique dont l'utilisation simplifiera la conception de l'entraînement hydraulique et de la vanne d'arrêt dans son ensemble, assurera son autonomie, améliorera le rapport massique-dimensionnel caractéristiques et augmenter la fiabilité de son fonctionnement.
La solution à ce problème est obtenue par le fait que la vanne d'arrêt hydraulique proposée contenant un corps avec un corps d'arrêt, un entraînement hydraulique d'un corps d'arrêt avec une chambre pour fournir un fluide de travail, un piston et un ressort de rappel, situé sur le corps et coopérant avec le corps d'obturation, selon l'invention, contient en outre un système autonome de commande, situé sur le boîtier de l'actionneur hydraulique, comprenant au moins un réservoir hydraulique d'un fluide de travail avec une main pompe, un accumulateur hydraulique, un distributeur, des points de raccordement d'une vanne de régulation basse et haute pression ou une vanne de régulation basse et haute pression, des points de raccordement d'un bouchon fusible ou d'un bouchon fusible, une vanne électromagnétique, manomètre, vanne à bille, interconnectés dans un système hydraulique unique, dont l'entrée débouche dans le réservoir hydraulique du fluide de travail, et la sortie s'ouvre dans la chambre pour fournir le fluide de travail de l'entraînement hydraulique, et relâcher la pression dans l'entraînement hydraulique de la vanne d'arrêt à la commande de la vanne haute ou basse pression ou lorsque le bouchon fusible est détruit par l'effet de la température, ou par une commande de la vanne électromagnétique, et l'entrée de l'accumulateur est connectée au réservoir hydraulique par le clapet anti-retour, et la sortie de l'accumulateur est connectée à la ligne allant à l'entrée de la vanne de régulation basse et haute pression et du bouchon fusible et à l'entrée un distributeur dont la sortie est reliée à la ligne de la vanne de régulation basse et haute pression et du bouchon fusible, tandis que l'électrovanne est connecté entre la conduite de refoulement de la vanne de régulation basse et haute pression et la conduite d'alimentation du fluide de travail à l'entrée de la vanne de régulation basse et haute pression et du bouchon de fusion, et la conduite de vidange est connectée à la cavité du réservoir hydraulique , tandis que l'entraînement hydraulique contient un boîtier avec un canal d'alimentation en fluide de travail, une tige à ressort réalisée avec possibilité de mouvement axial et installée à l'intérieur dudit corps, tandis qu'une extrémité de la tige spécifiée est configurée pour fournir une interaction mécanique avec l'actionneur le corps de la vanne d'arrêt, et un vérin hydraulique est installé à l'autre extrémité de la tige, réalisé avec la possibilité d'un mouvement axial avec la tige, tandis qu'un piston fixe est installé à l'intérieur du vérin hydraulique spécifié,fixé à une extrémité sur le corps de l'entraînement hydraulique et réalisé sous la forme d'un cylindre profilé, tandis que la partie de sortie du canal d'alimentation en fluide de travail est reliée à la cavité entre ledit cylindre hydraulique mobile et le piston fixe.
L'essence de l'invention est illustrée par les dessins, dans lesquels la fig. 1 montre un schéma hydraulique schématique d'un clapet de sécurité, la Fig. la figure 2 montre une vue générale du clapet de sécurité ; 3 montre une coupe longitudinale de l'entraînement hydraulique. L'attachement de la fig. 3 n'est pas représenté de manière conventionnelle. Sur le schéma hydraulique, la ligne continue montre la ligne d'alimentation du fluide de travail, la ligne pointillée - la ligne de drainage.
La vanne d'arrêt hydraulique contient un boîtier 1 avec un corps d'obturation 2, un entraînement hydraulique 3 d'un corps d'obturation avec une chambre d'alimentation en fluide de travail 4, un piston 5 et un ressort de rappel 6, situés sur le corps 1 et interagissant avec le corps d'obturation 2. L'entraînement hydraulique contient en outre un système de commande autonome situé sur le boîtier de l'actionneur hydraulique 3, et comprenant au moins un réservoir hydraulique 7 d'un fluide de travail avec une pompe à main 8, un accumulateur hydraulique 9, un distributeur 10, emplacements pour raccorder une vanne de régulation basse et haute pression ou une vanne de régulation basse et haute pression 11, emplacements pour raccorder un bouchon fusible ou un bouchon fusible 12, vanne électromagnétique 13, manomètre 14, vanne à boisseau sphérique 15 , interconnectés en un seul système hydraulique dont l'entrée 16 débouche dans le réservoir hydraulique 7 du fluide de travail, et la sortie 17 débouche dans la chambre 4 d'alimentation en fluide de travail de l'entraînement hydraulique. L'entrée de l'accumulateur 9 est reliée au réservoir hydraulique 7 par l'intermédiaire d'un clapet anti-retour (non indiqué), et la sortie de l'accumulateur 9 est reliée à la conduite allant à l'entrée de la vanne de régulation basse et haute pression 11 et du fusible bouchon 12 et à l'entrée du distributeur 10. Le schéma montre les points de raccordement et de vidange vanne 11 contrôle basse et haute pression et bouchon fusible 12.
La sortie du distributeur 10 est reliée à la ligne de la vanne de régulation basse et haute pression 11 et au bouchon fusible 12 par l'intermédiaire d'une rondelle papillon pour contrôler la dilatation thermique du système hydraulique (non indiqué). L'électrovanne 13 est connectée entre la conduite de refoulement de la vanne de régulation basse et haute pression 11 et la conduite d'alimentation du fluide de travail à l'entrée de la vanne de régulation basse et haute pression 11 et du bouchon fusible 12. La conduite de vidange/vidange est relié à la cavité du réservoir hydraulique 7.
L'actionneur hydraulique 3 du corps d'obturation 2 comprend un boîtier 18 avec des canaux 19 d'alimentation en fluide de travail, une tige à ressort 20 réalisée avec possibilité de mouvement axial et installée à l'intérieur dudit boîtier 18. La tige 20 est à ressort -chargé au moyen d'un ressort de travail 6. Une extrémité 21 de la tige spécifiée 20 est réalisée avec la possibilité d'interaction mécanique avec la vanne 22 de l'élément d'obturation, dans ce cas, le robinet-vanne 23. À l'autre extrémité de la tige 20, un vérin hydraulique 24 est installé, réalisé avec la possibilité d'un mouvement axial avec la tige 20. A l'intérieur du vérin hydraulique mobile 24, un piston fixe 5 est installé, fixé à une extrémité sur le boîtier 18 de l'entraînement hydraulique et réalisé sous la forme d'un cylindre creux profilé. Les canaux d'alimentation en fluide de travail 19 sont reliés à la cavité 25 entre ledit vérin hydraulique mobile 24 et le piston fixe 5.
La vanne d'arrêt hydraulique proposée fonctionne comme suit.
L'actionneur hydraulique est installé sur la vanne d'isolement de manière à assurer l'interaction mécanique de l'extrémité 21 de la tige 20 avec la position réciproque du corps exécutif de la vanne d'isolement, en l'occurrence, la vanne 22 du robinet-vanne 23.
Auparavant, à l'aide de la pompe à main 8, la pression du fluide hydraulique provenant du réservoir hydraulique 7 est créée dans l'accumulateur 9. Le clapet anti-retour (non indiqué) sert à faire passer le liquide dans un sens, à partir de la pompe à main. 8 à l'accumulateur 9.En outre, le fluide hydraulique sous pression pénètre dans le distributeur 10, et après celui-ci, dans le canal 17, qui débouche dans la chambre 4 d'alimentation en fluide de travail de l'entraînement hydraulique 3 à travers le canal 19 d'alimentation en fluide de travail. La pression dans le système est surveillée à l'aide d'un manomètre 14.
Lorsque le fluide de travail est amené à travers le canal d'alimentation en fluide de travail 19, le fluide de travail pénètre dans la cavité 25 entre le vérin hydraulique mobile 24 et le piston fixe 5 et commence à agir sur la face d'extrémité du vérin hydraulique mobile 24. Sous l'action du fluide de travail, le vérin hydraulique mobile 24, avec la tige 20, déplace vers la partie centrale le corps de vanne 23, dans ce cas, vers le bas, et comprime ainsi le ressort de rappel 6. Lorsque la tige 20 se déplace, la vanne 22 , reliée mécaniquement à l'extrémité 21 de la tige 20, se déplace également vers le bas et ouvre la section de passage de la vanne 23. Dans ce cas, l'élément d'obturation 2/vanne 22 est en position "ouverte".
Pour fermer l'élément d'obturation 2, la pression du fluide de travail est relâchée, le ressort de rappel 6 commence à revenir à son état d'origine et appuie avec une extrémité sur le vérin hydraulique mobile 24. Le vérin hydraulique mobile 24 sous l'action de la force élastique du ressort de rappel 6 se déplace le long du piston fixe 5 dans le sens opposé, les extrémités du cylindre hydraulique mobile 24 et du piston fixe 5 se rapprochent, tandis que la cavité 25 entre le cylindre hydraulique mobile 24 et le piston fixe 5 est réduite et le fluide de travail est refoulé dans le canal d'alimentation 19. Avec le vérin hydraulique mobile 24, la tige 20 et la vanne 22 se déplacent vers la position initiale.22 occupe la position initiale dans laquelle la zone d'écoulement de la vanne 23 est complètement fermée. Dans ce cas, la vanne 23 est en position "Fermée".
S'il est nécessaire d'ouvrir la vanne, le processus est répété.
Lorsque la pression du fluide transporté dans la canalisation dévie au-dessus / en dessous de celle spécifiée, la soupape de commande basse et haute pression 11 est déclenchée, tandis que la pression du fluide de travail est libérée du canal 17, et la vanne d'arrêt se ferme. .
Lorsque la température ambiante sur le lieu d'installation du bouchon fusible 12 de la vanne de coupure hydraulique est supérieure à celle prédéterminée, le bouchon fusible 12 est détruit et le fluide de travail est ensuite évacué du canal 17 dans le réservoir hydraulique 7 Dans ce cas, le vérin hydraulique mobile 24 sous l'action de la force élastique du ressort 6 se déplace le long du piston fixe 5, les extrémités du vérin hydraulique mobile 24 et du piston fixe 5 se rapprochent, tandis que la cavité 25 entre le vérin hydraulique mobile 24 et le piston fixe 5 diminuent et le fluide de travail est expulsé dans le canal d'alimentation 19, puis dans le canal 17, après quoi le fluide de travail est évacué du canal 17 dans le réservoir hydraulique 7, et la fermeture la vanne d'arrêt est fermée.
Pour la fermeture à distance contrôlée de la vanne d'arrêt, on utilise une vanne électromagnétique 13. Lorsqu'elle est allumée, le fluide de travail est évacué du canal 17 dans la vidange, puis dans le réservoir hydraulique 7 et la vanne d'arrêt est fermée .
Pour la fermeture locale contrôlée de la vanne d'arrêt, on utilise une vanne à bille 15. Lorsqu'elle est ouverte, le fluide de travail est évacué du canal 17 dans la vidange, puis dans le réservoir hydraulique 7 et la vanne d'arrêt est fermée.
Les tests de la vanne d'arrêt à commande hydraulique proposée ont confirmé l'exactitude de la conception et des solutions technologiques.
L'utilisation de la solution technique proposée permettra de créer un entraînement hydraulique autonome du clapet de sécurité dont l'utilisation simplifiera la conception, assurera l'autonomie du clapet de sécurité, améliorera les caractéristiques massiques-dimensionnelles de l'entraînement et augmenter la fiabilité de son fonctionnement.
Vanne d'arrêt hydraulique contenant un corps avec un corps d'arrêt, un entraînement hydraulique d'un corps d'arrêt avec une chambre pour fournir un fluide de travail, un piston et un ressort de rappel, situé sur le corps et interagissant avec le robinet d'arrêt -hors corps,caractérisé en ce qu'il contient en outre un système de commande autonome situé sur le boîtier de l'entraînement hydraulique, comprenant au moins un réservoir hydraulique d'un fluide de travail avec une pompe à main, un accumulateur hydraulique, un distributeur, des emplacements pour connecter une commande basse et haute pression vanne ou une vanne de régulation basse et haute pression, emplacements de raccordement d'un bouchon fusible ou d'un bouchon fusible, d'une vanne électromagnétique, d'un manomètre, d'un robinet à tournant sphérique, reliés entre eux dans un seul système hydraulique, dont l'entrée débouche dans le réservoir hydraulique du fluide de travail, et la sortie s'ouvre dans la chambre pour fournir le fluide de travail de l'entraînement hydraulique, et relâcher la pression dans l'entraînement hydraulique du clapet de sécurité à la commande de la vanne haute ou basse pression, ou lorsque le bouchon fusible est détruit sous l'effet de la température, ou à la commande de l'électrovanne, et l'entrée de l'accumulateur est reliée au réservoir hydraulique par l'intermédiaire d'un clapet anti-retour, et la sortie de l'accumulateur est reliée à la ligne allant à l'entrée de la vanne de régulation basse et haute pression et du bouchon fusible et à l'entrée du distributeur dont la sortie est reliée à la ligne de la vanne de régulation basse et haute pression et au bouchon fusible, tandis que l'électrovanne est connectée entre la ligne de refoulement de la basse et de la haute pression vanne de régulation et la conduite d'alimentation du fluide de travail à l'entrée de la vanne de régulation basse et haute pression et du bouchon fusible, et la conduite de vidange est connectée à la cavité du réservoir hydraulique, tandis que l'entraînement hydraulique contient
un corps avec un canal pour fournir un fluide de travail, une tige à ressort configurée pour un mouvement axial et installée à l'intérieur dudit corps, tandis qu'une extrémité de ladite tige est configurée pour fournir une interaction mécanique avec un actionneur de la vanne d'arrêt, et un vérin hydraulique est installé à l'autre extrémité de la tige, configuré pour un mouvement axial avec la tige, tandis qu'un piston fixe est installé à l'intérieur du vérin hydraulique spécifié, fixé à une extrémité sur le carter d'entraînement hydraulique et réalisé sous la forme d'un cylindre profilé, tandis que la partie de sortie du canal d'alimentation en fluide de travail est reliée à la cavité entre ledit vérin hydraulique mobile et le piston fixe.


