Directions de style dans la conception
Les cheminées électriques modernes ne sont pas limitées dans leur conception. Il existe de nombreux modèles magnifiques, réalisés dans des styles classiques ou modernes. Des modèles simples de cheminées au sol et des conceptions architecturales complexes de cheminées latérales sont présentés sur le marché. La conception des cheminées latérales peut être entièrement prise sous votre contrôle. Vous pouvez choisir vous-même la pierre de parement, la couleur et le matériau de l'étagère, tous les accessoires.
De plus, dans tous les foyers électriques, le foyer lui-même peut avoir sa propre conception. Ici, vous pouvez choisir parmi presque tous les matériaux, du bois au marbre.
7 photo
Comment construire un foyer électrique dans un mur
- Le type de mur est pris en compte.
- Réfléchir au futur revêtement.
- Les exigences de sécurité électrique sont prises en compte.
Dans quels types de murs une cheminée peut-elle être intégrée?
Les foyers avec fonction de chauffage de l'air ont certaines limitations liées à la sécurité incendie. Lors des travaux, la profondeur d'installation et d'autres caractéristiques sont prises en compte.
Les travaux sont exécutés conformément aux recommandations suivantes:
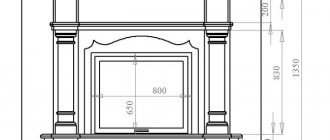
- Les cheminées électriques sont produites avec une épaisseur minimale de 15 cm, le corps ne doit pas être proche du contour de la niche. L'épaisseur minimale du mur pour l'installation doit être supérieure à 20 cm.
- Exigences de sécurité incendie - les règles vous permettent d'installer un foyer électrique avec une fonction de chauffage dans les cloisons sèches, le gypse, la brique et tout autre matériau non combustible. Une cheminée encastrée dans une niche en bois peut facilement provoquer un incendie lorsqu'elle est chauffée.
- Portail amovible, fixé au mur avec des ancrages, couvrant toutes les irrégularités. Les attaches sont cachées par un panneau avant spécial.
Comment carreler un foyer électrique encastrable
cheminées d'angle en carreaux de céramique
Le revêtement n'est pas acheté séparément et, en règle générale, est inclus dans le prix du foyer électrique. Ainsi, un portail imitant une pierre artificielle en MDF coûtera 20 à 25 000 roubles. Le coût d'un modèle avec un revêtement naturel s'élève à 50-60 mille roubles.
Exigences de sécurité électrique
Grâce aux technologies modernes, il est devenu encore plus facile de créer du confort dans un appartement ou une maison. Il y a plusieurs décennies, il était difficile d'imaginer et encore plus difficile d'équiper une cheminée dans votre maison. Aujourd'hui, il est abordable et réalisable même dans un petit espace.
Cheminée à l'intérieur de la pièce

Conception d'une pièce avec une cheminée


Pièce intérieure avec cheminée
Les foyers électriques sont de plus en plus populaires chaque année, car ils présentent un certain nombre d'avantages par rapport à leur homologue à bois:
- une vaste sélection de modèles - du petit au large mural, avec et sans télécommande, avec chauffage, son et autres solutions de conception et de design;
- simplicité d'utilisation et facilité d'installation - il suffit de déterminer le lieu et d'acheter l'appareil lui-même pour plaire à l'œil avec un foyer confortable;
- soins - pour maintenir la propreté, il suffit d'essuyer la poussière et, si nécessaire, l'écran;
- sécurité - il n'y a pas de risque d'inflammation des éléments intérieurs, puisque le feu est artificiel, il ne s'agit que d'une image sur l'écran;
- coût - les appareils électriques sont beaucoup moins chers que les appareils classiques.


Cheminée à l'intérieur de la pièce
Conception d'une pièce avec une cheminée
Le principe de base du foyer électrique est une imitation d'un vrai feu.
Il est basé sur un mannequin de bûches ou de charbon et de feu. L'imitation du bois de chauffage est très simple, plus difficile avec l'imitation du feu. Pour cela, des réflecteurs et des projecteurs, des LED supplémentaires et d'autres solutions de conception sont utilisés.Les effets sonores sont transmis via des haut-parleurs, mais ne sont pas disponibles sur tous les modèles.
Les éléments chauffants, s'ils sont fournis par le fabricant, sont situés en bas ou en haut. La chaleur est libérée progressivement et uniformément, ce qui ressemble au fonctionnement d'un appareil de chauffage.
Pièce intérieure avec cheminée


Cheminée à l'intérieur de la pièce
Dans certains modèles, le chauffage infrarouge est fourni - il ne chauffe pas l'air, mais les objets. En conséquence, moins d'oxygène est consommé et l'effet thermique est obtenu plus rapidement.
Une autre caractéristique fonctionnelle est la faible consommation d'énergie. La plupart des modèles ont une puissance de 2 kW, ce qui est comparable à une bouilloire électrique.


Conception d'une pièce avec une cheminée
Cheminée à l'intérieur de la pièce
Comment travaillent-ils?
Un foyer électrique de qualité au design élégant créera une flamme de feu réaliste qui irradie une chaleur agréable. Cette touche illuminera n'importe quel salon.
Les modèles électriques modernes utilisent des serpentins de chauffage et des ventilateurs silencieux capables de produire de la chaleur réelle. Ils sont équipés d'un réflecteur qui réfléchit la lumière des lampes LED, créant un scintillement réaliste du feu et de la flamme elle-même. Les lumières LED remplacent le vrai feu, mais les flammes semblent vraiment réalistes. Certains modèles électriques ont même un appareil spécial qui émet un crépitement, ce qui améliore également l'effet.
Lorsque l'on compare les foyers à gaz traditionnels aux options électriques, il peut sembler que les coûts de fonctionnement n'en valent pas la peine. Mais ici, il est nécessaire de considérer le coût non seulement d'installation, mais également de maintenance. Dans ce combat, le modèle électrique l'emporte également, car des coûts de maintenance importants ne sont pas nécessaires.
Caractéristiques des foyers électriques encastrés
En quoi ces appareils de chauffage diffèrent-ils de leurs homologues? Pour comprendre, vous devez comprendre quels sont les types de cheminées électriques, quelles sont leurs caractéristiques et leurs fonctions.
Cheminées murales
Ils représentent un foyer électrique, enfermé dans un boîtier, qui est encastré dans le mur à n'importe quel endroit pratique. Selon le modèle, ils peuvent être classiques ou grand format, décoratifs ou combinés, combinant la fonction de chauffage avec la visualisation de la flamme.
L'inconvénient de telles cheminées est la profondeur insuffisante du foyer, qui ne permet pas de créer l'effet d'un foyer à bois naturel.


Cheminée murale
Cheminées encastrées murales et d'angle
Ce type de cheminée est fabriqué dans un boîtier métallique et est conçu pour être installé n'importe où dans la pièce, en fonction de la forme. Ils peuvent également combiner une fonction décorative avec une fonction de chauffage, tandis que la profondeur de la chambre de combustion peut être quelconque, et à mesure que le prix augmente, le réalisme du foyer augmente également: certains modèles sont équipés non seulement d'une imitation de flamme, mais également avec son, un générateur de fumée, des bûches décoratives et des charbons. Le seul inconvénient de cette série de modèles est que la conception de la cheminée ne peut pas être modifiée ou adaptée à la conception globale de la pièce.
8069f471283777469fda6168b161b79b.jpe
Cheminée murale en fonte
Cheminées encastrables
Peut-être le type de cheminée électrique le plus polyvalent, car il combine tous les avantages des foyers mentionnés ci-dessus avec la possibilité de l'installer dans n'importe quel portail, niche et même de le construire directement dans le mur. En même temps, le réalisme de la chambre de combustion vous permettra d'oublier que devant vous ne se trouve pas une vraie cheminée à bois, mais un appareil électrique, pour lequel il suffit d'appuyer sur un bouton de la télécommande.


Cheminée encastrable avec un portail en bois
Types de cheminées et lieux de leur application
Tout d'abord, il convient de se renseigner sur les types de cet équipement.La classification principale est effectuée en fonction du carburant utilisé:
- bois de chauffage,
- gaz,
- électricité,
- de l'alcool.
Chacun d'eux a ses propres caractéristiques, qui méritent d'être examinées plus en détail.
La combustion du bois
Ces modèles peuvent utiliser des bûches entières, des pastilles de combustible ou du charbon. Structurellement, il peut s'agir précisément de foyers dans le portail ou de foyers. La première option est idéalement située dans le salon, mais le poêle peut être placé dans la cuisine. Les appareils équipés d'une cuisinière à un ou deux brûleurs s'intègrent particulièrement bien dans la salle de cuisson. Une autre excellente solution serait une cheminée à bois dans la salle de bain, où elle accentuera l'intérieur et aidera à créer la température désirée.
En choisissant un appareil à bois, il faut garder à l'esprit que sa construction est un processus complexe qui nécessite une certaine préparation. Il est lourd et doit être posé sur une fondation. Une autre condition préalable est une cheminée, organisée conformément à toutes les règles et réglementations. Seulement dans ce cas, le foyer s'intégrera bien dans la pièce, ne s'affaissera pas avec le temps et commencera à détourner les gaz de combustion vers la rue en entier.
Souvent, les appareils sont en briques, mais il existe une option avec une chambre de combustion en acier. Ces foyers sont constitués d'alliages durables qui résistent aux températures élevées. En utilisant une chambre de combustion similaire, vous pouvez obtenir une plus grande commodité pour faire fonctionner le foyer, ainsi que sa durée de vie accrue.
Gaz
En apparence, ces appareils sont très similaires aux modèles à combustible solide. La différence réside dans leur besoin d'être connectés à une source de gaz - un pipeline ou une bouteille. Il existe des appareils fixes classiques, ainsi que des appareils mobiles qui sont relativement légers et peuvent être déplacés d'une pièce à une autre. Installez les foyers à gaz au même endroit que les foyers à bois.
L'avantage des appareils à gaz est un allumage rapide, un haut niveau de sécurité de fonctionnement, un fonctionnement très silencieux, presque silencieux, une maintenance facile. Les unités n'ont pas besoin d'un nettoyage constant et leur conception peut être équipée de nombreux éléments de commande.
Électrique
Ce type de foyer est le plus pratique, mais a une valeur esthétique et une capacité de chauffage légèrement inférieures. Ce sont des radiateurs électriques (convecteurs, radiateurs soufflants ou unités infrarouges), qui se présentent sous la forme d'un foyer. Comme décoration imitant un portail, un faux panneau MDF est utilisé, recouvert de pierre, de placage ou de film décoratif.
Les fours électriques reproduisent de manière très réaliste la combustion du feu. Cet effet est obtenu grâce à l'éclairage LED et à l'imitation du bois de chauffage à l'aide d'éléments décoratifs en céramique. Il existe des modèles qui utilisent également des miroirs - ils créent une sensation complète de flammes. Il existe également des cheminées avec un humidificateur intégré, dont la vapeur est très similaire à la fumée.
L'utilisation de cheminées électriques n'est accompagnée d'aucun travail d'entretien obligatoire. De tels appareils ne nécessitent qu'un nettoyage périodique de la poussière - comme tout autre objet dans la pièce. Ils n'ont pas besoin d'une cheminée et d'un endroit spécial pour l'installation, ils ont seulement besoin d'une connexion à l'alimentation électrique domestique. En raison de ces caractéristiques, les appareils sont souvent achetés non seulement pour une maison privée, mais également pour un appartement.
De l'alcool
Les foyers alimentés au bioéthanol n'émettent aucune fumée et créent en même temps un véritable feu, c'est-à-dire combinent les avantages des modèles électriques et à bois. Les foyers écologiques peuvent être très petits pour une installation sur table, de taille moyenne, ainsi que des lignes entières, jusqu'à deux voire trois mètres de long.
Le champ d'application des biomodèles est large.Ils peuvent être placés sur des tables dans un restaurant, encastrés dans le mur d'une salle d'exposition, décorés avec une telle composition avec du feu dans un salon, ou confortés sur une terrasse de café en plein air.
Comparaison de différents types de cheminées
Pour structurer les informations sur les agrégats, il vaut la peine de rassembler toutes les informations les concernant dans un seul tableau.
| Paramètre / Type de cheminée | Au bois | Gaz | Électrique | Alcoolique |
| Lieu d'installation | maisons privées | maisons privées | n'importe quel salle | n'importe quelle pièce, rue |
| Temps de chauffe | pendant que le carburant brûle | pendant que le carburant brûle | à tout moment au besoin | pendant que le carburant brûle |
| Zone de chauffage | jusqu'à 300 m2 | jusqu'à 60 m2 | jusqu'à 25 m2 | jusqu'à 15 m2 |
| Permission d'hébergement | nécessaire | nécessaire | non requis | non requis |
| Un service | cendrier, fournaise, nettoyage de cheminée | nettoyage de cheminée | nettoyer la surface de la poussière | nettoyage de la chambre de combustion |
Comme cela devient immédiatement clair, seuls les appareils à bois et à gaz peuvent être utilisés pour le chauffage principal. Les modèles électriques et à alcool ont plus de valeur artistique et peuvent être une bonne source de chaleur supplémentaire.
Beaux exemples à l'intérieur
En utilisant le bord du mur du rebord de la baie vitrée sous le téléviseur, une cheminée est placée à côté, encastrée dans le mur. La proximité semble harmonieuse.


Un exemple complexe mais réussi de combinaison de deux accents: le placement d'une télévision avec une étagère au-dessus de la cheminée avec des portes, combiné avec la maçonnerie de la partie inférieure du rebord de la cheminée.


Une démonstration claire de la domination de la télévision: un rebord avec une niche sous le panneau de télévision met en valeur la place pour la cheminée. Le contraste de taille des deux accents crée l'effet souhaité.


Une solution intéressante pour l'espace invité avec l'utilisation d'un rebord et de niches: la zone TV est accentuée avec une couleur sombre pour correspondre aux détails du mobilier. La place pour la cheminée est limitée, le modèle est encastré dans une niche et n'a pas un design accrocheur.


Réception forcée dans des conditions de manque d'espace: un plasma et une petite cheminée décorative à pattes ont été choisis. Pour l'entourage, un stand a été choisi qui imite un rebord de cheminée.


L'utilisation de rayonnages. Une grande étagère est réservée au téléviseur, la cheminée est encastrée dans le mur et est ombragée d'une teinte beige. En raison du mobilier, la composition semble appropriée et harmonieuse.


L'utilisation de petits accents sur le rebord dans un salon spacieux est magnifique et les accents ne se font pas concurrence.


Bel accueil avec une étagère et une cheminée en maçonnerie, des nuances contrastées. Le téléviseur est incliné.
Vous pouvez regarder un exemple de conception intéressante d'une cheminée avec un cinéma maison dans cette vidéo.
Le rôle de la cheminée dans notre vie: le processus de fonctionnement de l'appareil
Aujourd'hui, les cheminées encombrantes traditionnelles, constituées d'une chambre de combustion et d'une cheminée, sont déjà devenues une chose du passé, et leur construction est extrêmement rare et nécessite des coûts importants. Et tous les locaux ne sont pas adaptés à leur construction, ce qui a également contribué à leur oubli partiel. Cependant, de telles difficultés ne signifient en aucun cas que le foyer ne doit pas du tout être utilisé.
Les cheminées électriques sont une sorte d'exemple des technologies modernes qui ont permis de renfermer l'énergie de la cheminée dans une petite boîte et de la freiner.
Une version moderne d'un foyer électrique. Le parement du portail est en bois
En soi, un produit similaire est absolument sûr, car il ne chauffe pas du tout pendant le fonctionnement, prend peu de place et permet d'admirer un foyer à part entière. Cependant, le principal avantage du produit est l'absence de produits de combustion, ce qui lui permet d'être placé dans n'importe quelle pièce, malgré sa taille et son orientation stylistique. Dans le même temps, l'apparence de l'analogue électrique ressemble à une petite boîte rectangulaire qui, lorsqu'elle est éteinte, ne ressemble pas du tout à une cheminée traditionnelle.La construction d'un portail, qui est une caractéristique distinctive de tout système de cheminée, ou même de sa carte de visite, contribuera à lui donner une apparence classique.
Les portails pour cheminées électriques sont des structures purement décoratives conçues pour mettre en valeur structurellement le foyer sur le fond de tout l'intérieur, en le séparant et en délimitant visuellement la pièce. Ils peuvent être constitués d'absolument tous les matériaux, sans crainte d'incendie ou de dommages, car le corps du produit ne chauffe pratiquement pas pendant le fonctionnement, projetant une image uniquement sur l'écran. Sur cette base, nous pouvons conclure que les portails ne sont utilisés que pour créer un accent sur la cheminée et ne doivent pas violer l'intégrité de la conception existante.
Fonctionnalités de sélection
En fait, le choix d'un tel appareil est une tâche assez intéressante et non triviale que les gens ne rencontrent pas si souvent. Les recommandations suivantes vous permettront de faire le choix d'un foyer électrique plus consciemment:
Choix de l'emplacement et du style de l'appareil
Il est très important de choisir le bon endroit sur le mur où votre machine sera suspendue. Habituellement, le mur central de la pièce est libéré pour lui, et l'endroit est choisi au niveau des yeux.
Les dimensions de la cheminée électrique sont corrélées à la taille de la pièce.Par conséquent, pour les grandes pièces, des systèmes massifs de format rectangulaire sont appropriés, et pour les petites, ce sont des appareils plats et nets, souvent ronds. Un foyer électrique mural doit convenir à la pièce avec style, par exemple, les appareils rectangulaires avec une finition en métal ou en verre conviennent aux directions minimalistes simples et les appareils carrés décorés de bois et de métal forgé sont parfaits pour les intérieurs classiques.
Sélection de la fonctionnalité requise. Vous devez immédiatement définir les tâches de l'appareil. La cheminée électrique sera-t-elle un accessoire exclusivement décoratif, ou aurez-vous besoin de son aide pour chauffer la pièce, ou peut-être qu'elle illuminera la pièce comme une veilleuse originale ou jouera de la musique comme un centre de musique. Par exemple, les cheminées électriques infrarouges font un excellent travail avec des fonctions de chauffage dans les appartements et les maisons, leur efficacité peut atteindre 100%. La détermination de la fonctionnalité principale vous permettra de sélectionner correctement la puissance de l'appareil.


L'accent principal du salon spacieux
Un large assortiment de cheminées électriques montées est présenté dans divers magasins, sur des sites Internet. Après avoir fait un choix calme et délibéré, vous passerez certainement à l'étape passionnante de l'installation de l'équipement.
Méthodes d'installation
La séquence d'actions à effectuer pour installer un foyer de vos propres mains dépend du type de foyer. Nous listons les algorithmes pour les travaux d'installation, indiquant comment vous pouvez tout faire vous-même.
Bon à savoir: L'appareil d'une cheminée électrique, qu'est-ce qu'un thermostat et à quoi sert-il
Appareil stationnaire dans le coin
Les cheminées d'angle sont encadrées par un portail en forme de pyramide triangulaire ou pentagonale. Un coin est forcément droit. Le portail avec la cheminée électrique est installé de manière à ce que les espaces entre le corps et les murs soient minimes. Dans la plupart des cas, cela sera évité par la plinthe, qui devra être coupée.
Des bouchons spéciaux masqueront la coupure, mais si vous souhaitez déplacer la cheminée dans une autre pièce, les plinthes devront être remplacées. Le routage des fils est le même dans tous les cas, donc à chaque fois nous ne nous attarderons pas sur cette manipulation, mais nous rappellerons simplement sa nécessité.


La version d'angle originale
Système mural
L'installation de foyers électriques dans ce cas est une action triviale. En fonction de la largeur de la plinthe, elle peut également être coupée. Après avoir évalué l'écart, vous prendrez une décision à ce sujet.
Un portique en forme de parallélépipède rectangulaire est moins stable qu'un portique d'angle, envisagez donc la possibilité de fixer le corps du portique au mur.N'oubliez pas que déplacer le foyer vers un autre endroit laissera un trou dans le mur, alors réfléchissez bien à son emplacement.
Option suspendue
La cheminée sur le mur est originale et moderne. L'installation a certaines exigences qui fourniront une apparence esthétique et soignée.


Système de cheminée grand format suspendu dans le salon
Vous devez monter une telle cheminée sur une plaque de montage. Mais avant de commencer à l'installer, tracez une ligne horizontale avec un niveau. Si l'horizon est même légèrement perturbé, cela aura un effet néfaste sur l'esthétique et sera frappant.
Utilisez un poinçon pour percer 3-4 trous. Ils devraient suffire, car la masse des cheminées suspendues varie de 10 à 20 kg. À l'aide de chevilles 6x60 mm, fixez la barre. Lors de la décoration des murs avec des plaques de plâtre, vous devrez vous soucier à l'avance de la future cheminée, en renforçant le point de fixation avec une barre en bois. Sinon, vous devrez utiliser des boulons avec de grandes rondelles et augmenter leur nombre d'une barre. N'oubliez pas la connexion. Il est préférable de faire passer le fil sous des feuilles de cloison sèche.
Bon à Savoir: Cheminées électriques murales: leurs avantages, règles de sélection et subtilités de placement à l'intérieur
À l'intérieur du salon
Un foyer électrique mural est un moyen simple et abordable d'ajouter de la chaleur et du confort à votre salon. L'installation ne nécessitera aucun changement majeur et la plupart des gens peuvent effectuer l'installation eux-mêmes, car tout ce que vous avez à faire est de l'accrocher au mur et de le brancher.
Voici quelques idées intéressantes et inhabituelles pour installer un foyer électrique dans le salon.
Foyer électrique mural au-dessus du canapé
L'une des idées les plus populaires pour créer un intérieur moderne dans le salon est l'installation d'un foyer électrique mural dans la pièce au-dessus du canapé. Une cheminée suspendue dans un tel endroit deviendra le centre d'attention et créera une atmosphère chaleureuse et confortable dans la zone de loisirs. Les hôtes et les invités pourront se sentir bien et à l'aise même par temps froid.
Au lieu d'un téléviseur
De nos jours, de plus en plus de gens désactivent la télévision par câble et certains ne veulent pas du tout de téléviseur chez eux. Pour une telle catégorie de citoyens, un foyer électrique mural peut être un bon substitut à un téléviseur. Cela créera une belle concentration et une atmosphère accueillante.
Foyer électrique sous la télé
Si vous avez besoin à la fois d'un téléviseur et d'une cheminée, vous pouvez installer l'appareil directement sous le téléviseur, car le modèle électrique de la cheminée peut être installé en toute sécurité en dessous, à condition que les propriétaires respectent la distance minimale recommandée (30 à 60 cm). .
Foyer électrique de petite taille dans le salon
Les cheminées électriques murales sont idéales pour être placées sur le mur d'un petit salon qui est peint d'une couleur différente ou se distingue structurellement du reste.
La cheminée est la pièce maîtresse de toute maison ou pièce, unifiant sa conception et ajoutant confort et hospitalité. Depuis des siècles, le foyer symbolise la proximité de la famille et l'accueil des étrangers et des voisins. Les modèles sont de formes et de styles différents, de sorte que ces modifications sont également idéales pour les appartements, car elles apportent chaleur et confort à la maison, elles sont un excellent ajout à la maison.
Alors que les cheminées traditionnelles peuvent parfois être difficiles à entretenir et coûteuses à entretenir, les cheminées électriques modernes sont la solution idéale pour chauffer n'importe quelle pièce.
Foyer électrique à l'intérieur
Dans un intérieur moderne, les cheminées jouent un rôle plutôt décoratif, mais les modèles modernes de caines peuvent bien devenir des sources de chaleur à part entière ou servir de sources de chaleur supplémentaires. Les fabricants réfléchissent aux cheminées électriques et à leur conception dans les moindres détails, en se concentrant parfois sur leur extérieur.Les foyers électriques de style classique compléteront harmonieusement l'intérieur du salon ou de la chambre correspondant. Pour les locaux de petite taille, les constructeurs ont prévu des modèles encastrables. Ces derniers ne prennent pas beaucoup de place et ressemblent à un élément décoratif. De plus, les foyers électriques encastrés sont considérés comme les plus sûrs.


Cheminée dans un intérieur minimaliste
La popularité croissante des intérieurs modernes a fourni aux fabricants de nombreuses possibilités de choisir la forme et l'apparence des cheminées électriques. Les cheminées électriques pour un appartement décoré dans un tamis high-tech ou moderne ont acquis une pertinence et une popularité particulières. La cheminée à notre époque n'est pas seulement un attribut du hall ou du salon, elle a progressivement migré vers les cuisines rustiques, champêtres, ainsi que les chambres à coucher. Les cheminées électroniques peuvent être situées dans presque toutes les pièces de l'appartement.
Installé dans des meubles
Les technologies avancées permettent d'intégrer harmonieusement les inserts de cheminée dans les armoires finies. Cette solution originale est une décoration non seulement pour la pièce, mais aussi pour l'ensemble de meubles. Le foyer est encadré et monté dans une niche préparée. L'idée d'appareils électroménagers à mortaise a longtemps été pratiquée dans les ensembles de cuisine.
Le MDF ou le plastique, à partir desquels les éléments de mobilier sont fabriqués, ne peuvent qu'imposer des restrictions aux cheminées qui y sont intégrées. Cela est dû à la sensibilité des surfaces aux changements de température.
Le foyer encastrable ne doit avoir pour fonction que l'illusion du feu. L'option la plus neutre et la plus réussie serait un foyer électrique sans fonction de chauffage. Une autre solution alternative peut être une cheminée bio intégrée, dont la chaleur est également minime.


Solution de conception non triviale
Pour résumer le sujet de la classification, il convient de noter que les foyers encastrés présentent des avantages et des inconvénients caractéristiques. Les propriétés positives incluent la facilité d'installation, la possibilité de chauffage des deux côtés, un design élégant, un gain de place. Les inconvénients sont la nécessité d'une cheminée et l'impossibilité d'utiliser la fonction chauffage de la cheminée intégrée au meuble.
Quels foyers électriques peuvent être encastrés (type d'installation)
Les foyers électriques encastrés décoratifs, avec l'effet d'un feu vif, sont une imitation complète d'un foyer naturel. Certains modèles, pendant le fonctionnement, en plus des images visuelles, recréent le bruit d'une flamme et le crépitement du bois de chauffage lors de la combustion.
S'il y a un besoin de chauffage supplémentaire d'un appartement ou d'une maison privée, ils achètent un foyer électrique moderne encastré dans le mur avec une fonction de chauffage. Pour augmenter la productivité et le transfert de chaleur, des ventilateurs sont installés à l'intérieur de l'appareil, augmentant l'intensité de circulation des flux de convection.
Montage frontal
La différence entre l'encastrement interne du foyer électrique et celui frontal réside dans l'emplacement et l'installation de la structure. Dans le premier cas, seul un portail dépasse du mur, tout le remplissage se trouve dans une niche spécialement aménagée dans le mur. L'efficacité de chauffage des foyers électriques encastrables est supérieure. Les modèles frontaux sont principalement utilisés comme l'un des éléments décoratifs.
Installation à l'intérieur
Distribution d'air chauffé : l'aspiration et le retour s'effectuent par des canaux de convection. Le chauffage se fait par convection. L'air froid est prélevé au niveau du sol, après chauffage, il monte jusqu'au plafond. Les éléments chauffants sont cachés dans un boîtier thermo-isolant, donc le corps de l'appareil électrique chauffe légèrement.
Les foyers électriques sont utilisés comme source de chaleur supplémentaire et maintiennent efficacement la température requise dans la pièce. Mais, chauffer la pièce exclusivement avec une cheminée de type électrique est économiquement peu pratique.
Installation d'un foyer électrique encastrable
La chose la plus difficile à installer est un foyer électrique encastré dans le mur. Cependant, c'est l'option la plus esthétique et la plus présentable. Cette méthode est la plus acceptable au stade de la rénovation générale des locaux. Ensuite, vous pouvez laisser libre cours à votre imagination et créer un portail de cheminée, une niche pour une cheminée électrique, une imitation de cheminée et de nombreux autres éléments du plafond et des murs en plaques de plâtre, en les recouvrant de matériaux décoratifs ou même de pierre naturelle.
Cependant, même si vous n'allez pas faire de réparations majeures, vous pouvez toujours construire votre foyer électrique préféré dans n'importe quelle partie de la pièce en utilisant des structures de cloisons sèches faciles à ériger.
Avec cette méthode de montage, la douille peut être positionnée à l'intérieur du cadre. Et la décoration et la décoration de l'espace cheminée dépendent uniquement de vos goûts et préférences personnels.
Il existe de nombreuses méthodes pour installer un foyer électrique même dans un petit appartement en ville. Avec lui, chaleur et confort viendront chez vous !
Comment choisir?
Pour choisir le bon appareil de chauffage à effet de flamme, certains aspects importants doivent être pris en compte.
- Style. Les appareils de chauffage à effet de flamme se présentent sous une grande variété de formes, y compris des tiroirs en métal modernes et élégants, de vieux modèles de style poêle et même des cheminées complètes avec de fausses bûches, une charpente en pierre ou en bois et des cheminées.
- Contrôler. Ces appareils de chauffage sont généralement fabriqués avec un contrôle assez simple : deux modes de chauffage standard et avec la possibilité de contrôler l'effet de flamme sans chauffage. Certains modèles ont une télécommande.
- Thermostat. Certains modèles ont également un thermostat qui allume et éteint les éléments chauffants pour maintenir une température ambiante définie.
- Longueur de la corde. Assurez-vous que le cordon électrique de l'appareil de chauffage est suffisant pour le brancher dans la prise murale, car l'utilisation d'une rallonge n'est pas recommandée pour de tels appareils.
- Sécurité. Un foyer électrique doit avoir les caractéristiques de sécurité standard de tout radiateur électrique. Aucune des surfaces extérieures ne doit être chaude au toucher. Les modèles portables devraient avoir un interrupteur à bascule qui éteint le radiateur lorsqu'il se renverse, ainsi qu'un mécanisme de sécurité conçu pour éteindre le foyer lorsqu'il surchauffe.
- Remplacement des ampoules. La plupart des appareils de chauffage à effet de flamme utilisent des ampoules de type bougie transparentes standard pour créer un effet de flamme, alors assurez-vous de pouvoir les remplacer à tout moment avant d'acheter un foyer électrique. Si la lumière s'éteint, le modèle doit continuer à fonctionner comme un appareil de chauffage à convection conventionnel.
- Efficacité et coûts de fonctionnement. Les appareils de chauffage tels qu'un foyer électrique sont similaires à bien des égards aux appareils de chauffage électriques à convection typiques en termes d'efficacité et de coûts de fonctionnement. En d'autres termes, ils ne sont pas aussi efficaces qu'un climatiseur à cycle inversé, mais peuvent tout de même être une bonne option pour chauffer une petite pièce.
Quel type privilégier
Il ne suffit pas d'avoir des finances pour installer un foyer encastrable chez soi. Il est nécessaire de prendre en compte tous les paramètres et de déterminer le type d'appareil adapté à l'installation. Lors du calcul de la puissance, vous pouvez utiliser une règle simple : 1 kW de puissance doit tomber sur 10 m2 de surface. La puissance de la cheminée est indiquée dans son passeport, et la superficie de la pièce est facile à mesurer.
Si une cheminée avec un foyer à double face a une profondeur supérieure à l'épaisseur du mur, ne vous précipitez pas pour abandonner l'idée avec ce modèle. De nombreux artisans laissent la porte du foyer dépasser du mur à une certaine distance.
Un foyer avec un système de simulation de flamme peut fonctionner selon différents principes. Vérifiez auprès de votre revendeur quelle technologie est implémentée dans le modèle que vous avez choisi.L'imitation de la plus haute qualité, difficile à distinguer d'un vrai feu, est possédée par une cheminée à vapeur avec un générateur de vapeur à ultrasons.
331b3b413fc922409bd391110e46dacd.jpe
En conclusion, nous notons que de tels produits s'intègrent parfaitement dans un intérieur moderne, dont la particularité est une simplicité et une fonctionnalité maximales.
Comment choisir un foyer électrique de qualité ?
Avantages et inconvénients
Avant de vous rendre en magasin pour un nouvel achat, vous devez clairement comprendre les avantages et les inconvénients que vous pouvez rencontrer lors de l'installation et de l'utilisation.
Parmi les avantages, on peut noter les composants suivants :
- Comme déjà mentionné, tout le monde peut installer le produit ; l'auto-assemblage permettra d'économiser une partie de l'argent qui peut être dépensé pour d'autres besoins. De plus, le processus lui-même ne demande pas beaucoup de travail et est plutôt "propre".
- Il n'est pas nécessaire d'acheter du bois de chauffage et du charbon, l'appareil fonctionne sur secteur, il est allumé par le panneau de commande, qui est équipé d'un bouton de contrôle de la température. Lorsque l'appartement est chaud, vous pouvez éteindre le chauffage et ne laisser que le feu flamboyant pour conserver l'aspect esthétique.
- L'appareil consomme une petite quantité d'électricité, ce qui signifie que vous n'avez pas à payer des montants fabuleux de factures de services publics. Fait intéressant, la cheminée est tout à fait capable de remplacer temporairement le chauffage du radiateur. Cela est particulièrement vrai à la veille de la saison de chauffage, lorsque le chauffage n'est pas encore allumé et qu'à l'extérieur de la fenêtre, ce n'est plus le temps de mai.
- Si désiré, le foyer électrique peut être éteint.
- L'unité est totalement sûre pour les petits enfants, comme en témoigne l'inspection incendie (si cela est confirmé par les documents pertinents joints à l'équipement).
- Certains modèles sont équipés d'un simulateur de sons naturels, par exemple le crépitement du bois, qui apaise et détend le système nerveux humain.
- Après l'achat, vous pouvez transporter l'appareil dans une voiture ordinaire, car il a un faible poids et des dimensions appropriées, vous permettant de transporter et de transporter la cheminée d'une pièce à l'autre, si nécessaire.
- Pour installer un appareil électrique, vous n'avez pas besoin de faire la queue et d'obtenir l'autorisation des employés des autorités compétentes.


Il est maintenant temps de parler des inconvénients du produit :
- Ceux qui n'ont pas du tout déconnecté l'appareil du secteur assurent que le plaisir de profiter de l'esthétique et du luxe du design 24 heures sur 24 coûte une somme ronde. Si vous calculez les coûts, même le coût du chauffage au gaz pour un mois est inférieur au paiement pour l'utilisation d'un foyer électrique.
- Les maîtres font attention au fait que tous les câblages ne peuvent pas supporter une charge 24 heures sur 24, cela peut causer certains problèmes.
- L'appareil est doté de spirales et de ventilateurs intégrés qui, lorsqu'ils fonctionnent, créent un léger bruit.
- Bien entendu, les flammes naturelles ne remplaceront jamais les effets créés artificiellement. Par conséquent, si vous êtes partisan d'un naturel exceptionnel, cet appareil ne vous conviendra pas.
Critères de choix
Cela n'a aucun sens de commencer à installer un foyer électrique qui ne fonctionne pas bien. Votre tâche consiste à choisir le modèle le plus approprié qui répond à vos préférences gustatives personnelles, fonctionnant sans interruptions ni pannes.
Tout d'abord, vérifiez auprès du vendeur quelle est la puissance du produit qui vous intéresse. C'est bien si un kilowatt de puissance est dépensé pour chauffer un mètre carré de la pièce.


Avant d'acheter un foyer électrique, considérez tous les avantages et inconvénients des modèles que vous aimez
Lorsque vous décidez du coût, ne vous précipitez pas dans les extrêmes et ne suivez pas l'exemple des distributeurs - un appareil trop bon marché et, au contraire, un appareil coûteux n'est pas votre option. Un analogue bon marché ne peut pas avoir de bonnes caractéristiques, ne serait-ce que parce que dans la fabrication de tels modèles, on utilise les fondations, les métaux, les attaches et les pièces les plus médiocres qui peuvent se briser à tout moment.
Dans le même temps, le coût des produits coûteux est surestimé de manière injustifiée et ne dépend souvent pas de la fonctionnalité des appareils, mais de la qualité de la finition. Par exemple, l'encadrement d'un cadre en acajou coûte beaucoup plus cher au fabricant que d'autres types de bois.
Quels fabricants sont testés par le temps
Il est important de savoir à quel fabricant vous pouvez faire confiance. Si vous entendez le nom de la marque pour la première fois, ne prenez pas cet équipement, laissez quelqu'un d'autre devenir son premier "test", vous n'avez pas besoin de problèmes et de problèmes inutiles.
Aujourd'hui, les foyers électriques domestiques sont très populaires parmi les acheteurs. Bien que la production soit concentrée en Russie, toutes les pièces et composants sont achetés à l'étranger. Ainsi, vous n'avez pas à payer de frais de douane considérables et la qualité de l'appareil à un prix abordable n'est pas inférieure à celle des concurrents étrangers du même secteur.


La société irlandaise GLEN DIMPLEX se distingue parmi les fabricants étrangers. Ici, le consommateur a la possibilité de décider de manière indépendante s'il a besoin d'un assemblage complet de l'appareil ou s'il suffit d'acheter des accessoires avec le portail pour la construction. D'accord, une approche pratique pour ceux qui ont confiance en leurs capacités et peuvent assembler un seul appareil à partir de nombreux composants.


Cette entreprise se distingue également par une large offre d'équipements, suggérant une grande variété d'options de conception.
Décor de portail pour foyer électrique
Le design décoratif du portail du foyer électrique peut être n'importe quoi. Cependant, il ne faut pas oublier qu'en aucun cas il ne doit violer l'intégrité de la composition de la pièce, mais ne déplacer que légèrement l'accent sur le côté. Une bonne solution pour décorer un objet est la pose de carreaux de céramique, ce qui le rend immédiatement élégant et naturel. De plus, il est assez simple d'installer le matériau sur une base plate en placoplâtre.
De plus, vous pouvez recouvrir le bâtiment de plâtre structurel, de papier peint ou de peinture, à condition qu'il soit associé à d'autres revêtements et objets situés dans la pièce.
Pour obtenir l'effet souhaité, la décoration de l'objet fini est réalisée en fonction de l'orientation stylistique de toute la pièce et uniquement en fonction de celle-ci. C'est le seul moyen d'être sûr d'obtenir un résultat positif, qui non seulement s'intégrera laconiquement dans le design de la pièce, mais l'embellira également de manière significative.
A la fin de l'article, regardez la vidéo : Cheminées électriques modernes à l'intérieur.
Peut-être qu'après cela, vous aimerez encore plus le foyer électrique.
Installer un foyer électrique
Selon option de montage
Les conceptions diffèrent les unes des autres par le mode d'installation, elles peuvent être:
- étage;
- mural;
- incrusté dans des objets ;
- coin;
- préfabriqué.
Le principal détail structurel est son foyer. Cependant, sans la décoration nécessaire, il ne peut agir que comme un appareil de chauffage médiocre. C'est la conception correcte qui coïncide avec l'idée de conception globale de toute la pièce qui peut la transformer en un élément décoratif inoubliable.
Vous pouvez installer l'échantillon mural à côté de la prise à laquelle le cordon d'alimentation est réellement connecté. Le modèle mural est encadré et monté à un mètre du revêtement de sol. Une cheminée d'angle vous permettra d'utiliser économiquement la superficie de la pièce.


Les experts ne recommandent pas de placer les unités intégrées dans la direction opposée à la source lumineuse - les effets intégrés dans l'équipement peuvent s'estomper sensiblement. Essayez de garder le foyer profond, cela ajoutera du réalisme à la flamme.
Dans tous les cas, l'installation d'un foyer électrique commence par la formation d'un portail pour celui-ci. Créer un filaire est un jeu d'enfant. Il suffit de construire un profilé métallique et de placer des panneaux de placoplâtre dessus. N'oubliez pas de couvrir les joints formés, les irrégularités et les fissures avec un mélange de mastic et d'apprêt.La prise est montée à côté de la cheminée dans une niche spéciale.


L'inscription ultérieure ne dépend que de vous. Comme décoration, vous pouvez utiliser des matériaux naturels - bois ou pierre, plâtre, ainsi que des composants artificiels. Récemment, les propriétaires d'appartements ont préféré les finitions en verre entrecoupées de fibres naturelles. Le montant d'argent dont vous disposez vous aidera à déterminer la variété des options.
Prise en compte de l'emplacement de l'appareil dans l'appartement
Un foyer électrique a fière allure dans un studio, où la cuisine est combinée avec le salon. Ici, le produit s'adapte bien le long du mur, qui est perpendiculaire aux fenêtres. Laissez les canapés moelleux et confortables se tenir à un mètre de la cheminée électrique, placez une table basse entre eux. Idéalement, lorsque vous êtes assis sur le canapé, vous pouvez facilement atteindre l'étagère avec des livres sur le côté et légèrement en arrière. Un attribut obligatoire d'un tel intérieur est un tapis moelleux.


Sur le foyer électrique de la chambre, il est agréable de contempler allongé sur le lit, avec un être cher ou seul, se reposer après une journée de travail. Il est conseillé de construire de petites étagères pour les photos et les cartes postales dans le portail de l'appareil.


L'essentiel est de veiller à une finition ultérieure de haute qualité.
Les adeptes des enseignements du Feng Shui doivent placer la structure dans la partie sud de l'appartement, à l'écart des égouts et des tuyaux qui peuvent « éteindre » l'énergie du feu.
Cheminée électrique créative à l'intérieur
Avec un grand choix, il est toujours difficile d'en faire un. Essayons de discuter des principales caractéristiques et propriétés des foyers électriques, ainsi que de comprendre quelle place un foyer électrique peut prendre à l'intérieur d'un appartement. Les foyers intérieurs transforment instantanément le design. Il y a un sentiment immédiat de détente et de compréhension qu'il s'agit d'une zone de détente et de confort. Mais, la cheminée électrique décide non seulement du zonage du lieu de repos dans les appartements, mais participe également à la solution du projet de conception de toute la pièce et directement au chauffage de la pièce.


Lors du choix d'un foyer électrique, vous devez tenir compte de la conception de la pièce et de sa superficie.
Les foyers électriques peuvent être divisés conditionnellement:
- Sur le lieu d'installation et de fixation ;
- Par design d'intérieur;
- Pour des fonctionnalités supplémentaires.
Sur le lieu d'installation, les foyers électriques sont autoportants, ils ne nécessitent pas d'installation particulière, au sol, généralement installés près du mur. Les options murales sont celles qui sont installées dans une niche appropriée et les options mobiles qui peuvent être déplacées à n'importe quel endroit si vous le souhaitez.
Ils sont intégrés, par exemple, dans une niche ou un faux mur, et un coin, installés directement dans le coin. En termes de solutions intérieures, les cheminées peuvent être choisies dans des solutions de style complètement différentes, adaptées spécifiquement au design développé de la pièce. Comme caractéristique supplémentaire de la cheminée électrique, il peut y avoir une solution pour la combiner avec un meuble qui a du style.
Comment installer une cheminée dans un appartement ?
De nombreux résidents d'appartements en ville ne se demandent même pas s'il est possible d'installer une cheminée dans un immeuble résidentiel de plusieurs étages. Il semble que ce soit irréaliste. Cependant, si vous voulez vraiment quelque chose, alors tout est réel. Bien sûr, avec quelques réserves et restrictions.
Foyer au bois dans l'appartement
Si nous parlons d'une cheminée à bois classique, l'installer dans un appartement en ville est en effet presque irréaliste.
La seule exception dans certains cas concerne les appartements situés au dernier étage et initialement équipés de poêles avec cheminées en état de fonctionnement. Mais même cela nécessitera un accord complexe et coûteux, qui pourrait bien se solder par un échec. Dans de nombreuses régions de notre pays, cela est totalement interdit.
Par conséquent, vous devez rechercher des options. Et si ici vous pouvez commander n'importe quel portail pour la cheminée, sans regarder exactement où vous prévoyez d'installer l'appareil, alors vous devrez réfléchir plus sérieusement à la chambre de combustion.
Quels types de foyers peuvent être installés dans l'appartement ?
Plusieurs types de foyers conviennent aux appartements :
- Biocarburant - son principal avantage réside dans le fait qu'un véritable feu y brûle, mais en même temps, il ne nécessite ni la pose de cheminée ni la coordination de l'installation. Comment est-ce possible? Le fait est que le biocarburant brûle dans un biocarburant, c'est-à-dire un alcool spécial. Qui, dans le processus de combustion, émet de la vapeur d'eau et du dioxyde de carbone, il suffit donc de ventiler la pièce.
- Un foyer électrique est un modèle, qui est essentiellement un radiateur électrique, uniquement avec un écran spécial sur lequel le processus de combustion est visualisé. Il existe des modèles qui simulent des tirs réels assez réalistes.
- Fausse cheminée - produits constitués d'un seul portail, dont l'espace interne est rempli de divers éléments décoratifs.


Choisir un portail pour un appartement
Il a été dit ci-dessus que quel que soit l'emplacement d'installation, vous pouvez choisir n'importe quel portail. C'est vrai, mais il est encore nécessaire de prendre en compte certains facteurs.
On parle de la masse totale du futur produit. Les grands portails peuvent s'avérer trop lourds. Par conséquent, pour les installer, il sera nécessaire de renforcer en outre le sol et les sols afin qu'ils ne tombent pas, avec la cheminée, à l'étage inférieur aux voisins.
Cependant, si vous le souhaitez, vous pouvez trouver des modèles légers de portails en pierre naturelle ou choisir un autre matériau. Suivez le lien pour trouver des échantillons de produits adaptés.


Toutes les images et le matériel photographique sont fournis par le site : https://www.askkt.ru/Nouvelles sur Bloknot-Volgodonsk






































