Conditions générales de la maçonnerie
Lors de la mise en place d'un écran thermique, vous devez vous rappeler:
- La pose optimale de cet appareil est considérée comme une demi-brique.
- La température principale des gaz d'échappement du four ne doit pas être inférieure à 110-125 ℃.
- L'utilisation de vannes de régulation installées dans la cheminée.
- Vous pouvez faire le coiffage vous-même.
- L'utilisation de mortier d'argile est plus durable.
Pour un poêle ventru, ce bouclier est nécessaire pour augmenter le transfert de chaleur, car il est compact et ne peut pas produire un chauffage suffisant de la pièce. Toute la chaleur de ces poêles va à l'extérieur avec les gaz. Cela est dû à la température élevée, qui peut dépasser plus de 300 ℃.
Pour un four métallique, ce dispositif est indispensable, car il augmente le rendement.
Grâce à ce paramètre, vous pouvez éviter les hivers froids et créer une atmosphère cosy et chaleureuse dans votre maison.
Les fours métalliques présentent un certain nombre d'avantages par rapport aux fours en brique. Ils chauffent rapidement, en peu de temps, ils sont capables de chauffer un grand volume de la pièce. Mais ils présentent un inconvénient majeur: ils ne chauffent que lorsqu'ils sont chauffés. Le bois a brûlé et le poêle refroidit instantanément.
Par conséquent, la question se pose souvent devant les fabricants de poêles: est-il possible de connecter un poêle en métal à un panneau de brique.
Sur la base de l'expérience de nos propres maîtres et d'autres (nombre de nos cuisiniers familiers), nous pouvons répondre par l'affirmative. Cependant, il y a deux choses à garder à l'esprit:
Premièrement, tous les modèles de poêles en acier et en fonte ne vous permettent pas de le faire. Les fours Bavaria, La Nordica, Jotul, Tim Sistem, EUROKOM, META fonctionnent bien en combinaison avec un écran d'accumulation de chaleur.
Deuxièmement, de nombreuses conceptions de fours prévoient la possibilité de brûler dans un mode de combustion lente. Dans le même temps, la température des fumées est très basse, le bouclier ne chauffe pas et de la condensation s'y forme.
Par conséquent, lors du chauffage du bouclier, le poêle doit être chauffé en mode normal, il est INTERDIT de chauffer le poêle en mode combustion lente avec le bouclier en brique connecté! En règle générale, nos boucliers de brique ont deux modes: été et hiver.
En mode été, il est facile de faire fondre le poêle et une partie du bouclier ne se réchauffe pas.
En mode hiver, les fumées sont commutées avec une vanne dans un grand cercle. Le bouclier se réchauffe complètement.
La construction du type de poêle en métal - un bouclier en brique est la meilleure option pour les maisons de campagne, qui ne sont visitées par leurs propriétaires que le week-end. Il vous permet de réchauffer rapidement la maison gelée pour assurer l'accumulation de chaleur. Dans ce cas, les murs du bouclier peuvent être disposés en moitié ou en quart (brique par tranche) d'une brique. Dans ce dernier cas, le bouclier se réchauffe plus rapidement, mais se refroidit également plus rapidement.
Nous avons une vaste expérience dans l'assemblage de fours en acier et en fonte en combinaison avec un écran thermique et n'avons pas reçu de plaintes de clients jusqu'à présent. Ci-dessous vous pouvez voir des exemples de travail. Certaines photos ne sont pas de notre travail et sont données à titre d'exemple.
1 poêle Gucha Lava avec un bouclier. 2 Méta poêle avec abattant dans une tuile. 3 Four Nordica avec couvercle.
4 Bavière avec une assiette avec un bouclier. 5 Plaque de cadre avec écran. 6 Plaque de cuisson avec un bouclier.
5 Bavière avec un four avec un bouclier. 6 Four META avec couvercle. 7 Poêle en fonte avec un bouclier.
Tandem au travail
Avant d'allumer, j'ouvre le clapet et les gaz de combustion suivent le chemin le plus court entre le poêle et le sandwich, le réchauffant rapidement. Dès que le poêle s'enflamme et que le tuyau chauffe, je ferme le volet du volet - maintenant la fumée descend à travers le volet.
Ensuite, je règle le mode lorsque l'intensité de la combustion est légèrement inférieure à la moyenne.Le corps en fonte du poêle et le brûleur chauffent rapidement au-dessus de 100°C. Dans le même temps, le bouclier reste à température ambiante. Dans la première heure du four, aucun signe d'échauffement de la maçonnerie n'est observé.
Lorsque le premier onglet de bois de chauffage brûle, j'ajoute des bûches. Il est préférable d'ouvrir la porte lorsque le volet est ouvert - c'est ainsi que la fumée est garantie de ne pas entrer dans la pièce.
En mode de combustion lente (ou proche de celle-ci), le poêle fonctionne pendant plusieurs heures. Tous les experts disent à l'unanimité: dans ce mode, le bouclier ne chauffera pas et il y aura des rivières de condensat à cause de son utilisation. Dans mon cas, la température de surface du tableau de bord commence à augmenter à la quatrième ou cinquième heure. Quant au condensat, il n'y en a presque pas.
La cheminée unique sortant du volet n'est pas chaude, juste agréablement chaude. Vous pouvez enrouler vos mains autour de lui. Et la surface extérieure du sandwich est froide. On peut voir que le bouclier fait face à sa tâche - la récupération de chaleur.
Avantages d'un bouclier chauffant en brique
Le remplissage des fondations est considéré comme une partie importante du processus de construction. Lors de la construction de tels appareils pour un poêle de sauna de vos propres mains, vous devez examiner attentivement chaque détail du processus de construction, car toute erreur entraînera un fonctionnement incorrect de l'ensemble du système à l'avenir.
Principales recommandations:
Lors de la construction de tels appareils pour un poêle de sauna de vos propres mains, vous devez examiner attentivement chaque détail du processus de construction, car toute erreur entraînera un fonctionnement incorrect de l'ensemble du système à l'avenir. Principales recommandations:
Au stade initial, la fondation en ciment de la structure est posée, de préférence de manière à ne pas être connectée à la base de la pièce. Le niveau supérieur de la fondation est à 150 mm sous le niveau du sol. Une fois la couche d'imperméabilisation du matériau de toiture posée, la pose supplémentaire est effectuée conformément à la commande. La solution de travail, qui se compose de sable tamisé et d'argile filtrée imbibée, est importante à bien mélanger. L'épaisseur de la couture du système thermique ne doit pas dépasser 3 mm, le maximum autorisé en fonctionnement est de 5 mm. Chaque niveau de maçonnerie est mesuré avec un niveau de bâtiment et un fil à plomb. L'excès qui reste à la surface de la solution est éliminé et l'intérieur du passage de gaz est essuyé avec une serviette humide.
Plaque chauffante en brique
Afin d'organiser un bon approvisionnement en chaleur, un grand nombre de personnes choisissent un appareil tel qu'un radiateur rabat... Un avantage important de cet appareil est la possibilité de réchauffer rapidement l'air de la pièce. De plus, il est facile de l'assembler de vos propres mains, en utilisant les guides d'Internet. Et puisque pendant le travail il est appliqué brique
, qui se distingue par sa capacité calorifique et sa bonne conductivité thermique, vous pouvez ainsi économiser beaucoup sur le chauffage. Également
rabat
- appareil parfait pour chauffer dans des endroits où il n'y a pas d'alimentation principale en gaz. Cependant, afin de s'équiper d'un bon travail, il est nécessaire de connaître plus d'informations sur cet appareil.
Four de cuisson équipé d'un bouclier
poêle de sauna à faire soi-même

Lors du choix d'un poêle pour votre sauna, vous devez tout d'abord décider ce que nous voulons obtenir et ce que nous sommes prêts à dépenser. L'option la plus simple, la moins chère et la plus durable est un poêle soudé à partir de métal avec des ébauches en fonte dans un poêle, il est inutile de lister tous les avantages d'un tel poêle, ils sont tous sur le visage-bain soviétique ala "un mineur est venu du visage au lavage" dans une telle baignoire, pas besoin de finir avec des étagères en clins non cirées et un sol carrelé, il vaut mieux laisser au moins 1 ampoule pour 40 watts dans le coin pour que vous puissiez voir où vous avez accroché le serviette. Une option complètement différente si votre bain a une bonne finition, un bon éclairage et que vous n'y entrez pas pour vous laver, mais pour détendre votre corps et votre âme. Dans ce cas, la meilleure option serait un poêle de sauna en brique joliment plié.Un tel poêle aura une capacité thermique élevée, de la vapeur sèche, une apparence agréable à l'œil avec son naturel, la grâce des lignes et des proportions. La vapeur de ce pei ne dégagera pas de rouille et aura une température proche de 90 degrés.
En plus du tavo, un minimum d'outils et de compétences sont nécessaires pour la pose de ce poêle. Tout ce qui vous est demandé, c'est la précision dans le travail, le respect du dessin ordinal dessiné ci-dessous et un minimum de briques avec des garnitures de poêle et des connaissances générales sur la pose de poêles que vous pouvez facilement trouver sur notre site Web.


Matériaux et outils


Un matériau de toiture ou du polyéthylène peut être utilisé pour imperméabiliser la fondation du poêle et le bouclier chauffant.
Les boucliers ont généralement des options d'été et d'hiver pour le travail. Dans la version d'été, les passages sont bloqués à l'aide d'une valve, ce qui fait que le volet entier ne se réchauffe pas et seule la plaque chauffe. Pendant la saison de chauffage, il est conseillé d'ouvrir la vanne et de réchauffer toute la structure. La maçonnerie est réalisée dans le strict respect des exigences de sécurité incendie. L'appareil doit être placé sur une base solide avec une imperméabilisation obligatoire.
Les conceptions peuvent être variées et le transfert de chaleur du bouclier en dépend. Des volets de désenfumage sont installés dans la partie supérieure du bouclier. La deuxième vanne est utilisée pour la version été du débit de gaz. Dans ce cas, le troisième doit être fermé. La troisième vanne ouvrira le flux hivernal des gaz, mais la seconde devra être fermée en même temps. Pendant que les gaz traversent les canaux, ils se refroidissent, dégageant de la chaleur sur les parois et quittent déjà le tuyau à l'état refroidi. Les boucliers eux-mêmes sont de type canal et cloche - leur ordre est sensiblement différent. Cette conception a un cours d'été et d'hiver, mais les vannes sont situées en haut et en bas du bouclier. Son poids est de 1210 kg et ses dimensions sont de 89 x 38 x 224 cm.Ce bouclier est à paroi épaisse, le transfert de chaleur avec un foyer est de 430 kcal / h, avec deux - 600 kcal / h. Le mouvement des gaz est régulé au moyen de trois volets de fumée. Modes de fonctionnement :


Panneau chauffant avec volets de fumée : 1 - poêle ; 2 - bouclier chauffant; 3, 4, 5 - volets de désenfumage pour réguler le flux de chaleur en mode été et hiver.
- Option hiver - la troisième vanne est fermée et les première et deuxième vannes doivent être ouvertes. Dans ce cas, les fumées traversent tout le volet en lui dégageant de la chaleur.
- Option été - les première et troisième vannes sont ouvertes, la seconde est fermée. Les gaz contournent la cheminée du volet et vont directement dans le tuyau Pour assurer la ventilation de la pièce, un canal spécial est aménagé dans le tuyau de buse, qui est fermé par une grille. Il a des valves qui fournissent 3 modes - partiellement ouvert, fermé et ouvert.
Outils nécessaires au travail :
- une truelle combinée, qui sert à niveler, poser, couper l'excès de mortier;
- marteau-piqueur - couper des briques et couper;
- assemblage;
- fil à plomb;
- niveau;
- ruban à mesurer ou règle pliante;
- carré;
- corde;
- règle.


Equipement du four : plaques de cuisson, volets de fumées, grille de ventilation.
Matériaux et accessoires :
- brique - 309 pièces;
- sable - 3-4 seaux;
- argile - 6 seaux;
- toiture toiture pour imperméabilisation - 1,5 m;
- soupapes de fumée 13x13 - 3 pièces;
- grille de ventilation - 15-20 cm;
- portes de nettoyage - 3 pièces.
Lors de la pose de la fondation en hauteur, elle n'est pas amenée au niveau du sol par 2 rangées de hauteur. 1 rangée de briques est placée sur le dessus de la fondation et une imperméabilisation est posée dessus. Tracez ensuite la forme du four. Ensuite, une deuxième rangée de briques est posée, dont la surface coïncide avec le niveau du sol dans une version épurée. L'étape suivante est la commande du rabat.
Bricolage panneau chauffant maçonnerie
Instruments
Pour plier vous-même le bouclier du four en briques, vous devez utiliser les outils suivants :
- Truelle - le mortier est appliqué et nivelé avec celui-ci;
- Roulette - utilisée pour le marquage ;
- Corde;
- Niveau - pour contrôler l'horizontale et la verticale pendant la pose;
- Fil à plomb;
- Marteau perforateur;
- Tournevis;
- Meuleuse d'angle;
- Disque diamant pour la coupe;
- Récipients pour l'eau et le mélange;
- Outil pour joindre les coutures.
Matériaux (modifier)
Pour plier le bouclier du four en briques, vous aurez besoin de matériaux :
- Briques réfractaires - la quantité est calculée en fonction de la taille de la structure;
- Sable, argile pour la préparation du mélange de maçonnerie.
- Vous pouvez acheter un mélange sec :
- Vanne de cheminée ;
- Nettoyer les portes des trous;
- Matériau de toiture pour l'imperméabilisation ; Grilles pour la ventilation
Commande


Recommandations de maçonnerie :
- Ne pas utiliser de mortier de ciment, il ne doit être qu'à base d'argile ;
- Retirez immédiatement les restes du mélange de maçonnerie utilisé de l'intérieur;
- La construction du bouclier commence par la pose des fondations. Il ne doit pas être attaché par les fondations du bâtiment. Il est nécessaire de le rendre étanche avec un matériau de toiture. Il existe de nombreux schémas d'auto-assemblage de boucliers pour poêles en fer, nous présentons l'une des options pour construire un bouclier chauffant en briques pour un poêle en fer.
- Il doit être disposé avec une attention particulière, car la régularité de l'ensemble de la colonne montante en dépend. Tout d'abord, posez la brique au sec. Il est nécessaire de mesurer toutes les dimensions (vérifier la maçonnerie horizontale, verticale, diagonale).
- Après avoir vérifié tous les paramètres, nous l'avons mis à la solution. Il est nécessaire de faire un coupe-feu. S'il y a un mur en bois contre le dosseret, transformez-le en brique. Avec une cloison incombustible - dans une demi-brique. L'épaisseur optimale des joints dans la maçonnerie est de 7 mm. Avec une telle couture, la contremarche sera plus esthétique, il est plus facile de l'entretenir à l'avenir.
- Pour limiter le tirage de fumée et fermer le trou de fumée dans la partie supérieure du bouclier, installez un volet de porte (ou vue).
- Conformément aux exigences des règles de sécurité incendie, les 2 premières rangées sont sourdes, c'est-à-dire sans canaux de fumée. Empilé dans le respect de l'habillage.
Deuxième option de conception


Un poêle avec un écran chauffant et une chambre de combustion indépendante a une conception et un ordre différents.
Ci-dessous se trouve un poêle avec un bouclier qui a une chambre de combustion indépendante. Le bouclier dispose également de systèmes de circulation des fumées d'été et d'hiver. Vous pouvez chauffer séparément un poêle ou un bouclier chauffant. Dimensions - 140x102x217 cm.Poids total - 2800 kg. Avec deux fours, le transfert thermique est d'environ 3100 kcal/h.
Matériel et appareils requis:
- brique ordinaire - 680 pièces;
- sable - une moyenne de 20 seaux;
- argile - 22 seaux;
- coin en acier (30x30x4 mm) - 4 mètres;
- bande d'acier (50x22 mm) - 55 cm;
- tôle d'acier (pré-four) - 50x70 cm;
- plaques en fonte avec deux brûleurs (52x20 cm) - 6 pcs.;
- grilles de grille (300x130 mm et 300x262 mm) - 2 pièces;
- portes soufflantes (14x13 cm) - 2 pièces;
- portes de four (205x130 mm et 205x205 mm) - 2 pièces;
- nettoyage des portes (14x13 cm) - 2 pièces;
- volets de fumée (13x24 cm.) - 2 pcs.;
- ballon d'eau chaude (56x34x12 cm);
- porte (14x13 cm) ou samovar (10 cm de diamètre).
Avant le début de la pose, une base solide est posée sur la couche d'étanchéité, qui doit être préalablement installée.
Vient ensuite la commande :


Un schéma approximatif de la commande d'un poêle avec un écran chauffant et un foyer indépendant.
1er et 2ème rangs - conformément à la commande. 3ème rangée de briques - similaire aux 1ère et 2ème, tout en laissant le cendrier sous la chambre de combustion. 4e rangée - en cours de pose, 4 portes sont installées (portes de nettoyage et de soufflage) et 2 vannes (pour les flux de fumée d'été et d'hiver). Les portes sont propres à l'intérieur et ont des signets en brique. 5ème - similaire au quatrième
Une attention particulière doit être portée ici au pansement des sutures. 6ème - lors de la maçonnerie, tous les canaux sont réduits, les portes installées sont bloquées, le four et la boîte à eau chaude sont installés. 7ème rangée - posez les grilles du poêle et le pare-feu. Les briques situées des deux côtés des grilles doivent être ébréchées
Dans l'ordre, cela est indiqué par des tirets. Le long canal, qui se situe à gauche, est bouché pour former 2 courts. 8e rangée - installez 2 portes de carburant, la plus petite pour le bouclier et la plus grande pour le poêle. Les 9e et 10e sont posées selon l'ordre. Au 10e, une bande d'acier est posée sur le four.11ème rangée - ils chevauchent les portes, enduisent le dessus du four avec une solution d'argile d'environ 1 cm d'épaisseur.À gauche de la boîte, le canal d'eau chaude est laissé libre et à droite, il est fermé avec une brique . La 12e rangée de briques complète la maçonnerie. Un plancher en fonte est installé et le cadre est fixé sur tout le périmètre de la dalle. En outre, l'ordre indique la séquence de pose du bouclier de carburant. 16ème rangée - la brique à droite du deuxième canal est coupée. dans la 19ème rangée, une vanne est installée qui ferme le tuyau. À partir de cette rangée et jusqu'au 25e, cinq canaux sont formés de trois canaux. 22e rangée - un samovar est installé. Et plus loin dans la maçonnerie des rangées suivantes, il reste un canal - c'est un tuyau. Le bouclier est recouvert de maçonnerie en 3 rangées. 31e rangée - une brique taillée est installée pour élargir le canal du tuyau. Les 32e et 33e rangées forment un canal séparé pendant le processus de pose et installent une grille de ventilation.
Lors de la pose du rabat, veillez à respecter l'habillage des coutures, indiqué dans la commande, et à observer l'épaisseur des coutures - elle doit être comprise entre 3 et 5 mm. Si nécessaire, des briques inégales sont pressées ensemble.
Conceptions de luminaires
Les conceptions de panneaux radiants se répartissent en deux grandes catégories : elles peuvent être à parois épaisses ou minces.
À propos de l'épaisseur de paroi


Commande d'un appareil à paroi mince.
- Les boucliers à paroi épaisse s'insèrent dans une demi-brique. Ils doivent être bien réchauffés au préalable. Lorsqu'une plaque de cuisson avec plaque chauffante est utilisée en permanence, un tel appareil est conseillé. Entre autres, les structures à parois épaisses sont préférables du point de vue de la sécurité incendie.
- Un écran chauffant à paroi mince est placé dans un quart de brique. Pour répondre aux exigences de protection contre l'incendie, ces structures sont souvent recouvertes d'enceintes métalliques.
- La surface des murs peut être enduite, revêtue de carrelage ou, après avoir élargi les joints, laissée sans finition. Un poêle-cheminée avec un écran chauffant doit être doublé lors de l'installation.


Modes de fonctionnement de l'appareil.
- Les appareils peuvent fonctionner selon deux modes de fonctionnement - hiver et été. Dans le premier d'entre eux, la structure s'échauffe complètement, dans le second, elle l'est partiellement.
Noter! Lorsque le bouclier chauffant est posé, des exigences accrues en matière de sécurité incendie leur sont appliquées. Par exemple, un appareil doit être construit sur une fondation distincte. Il doit être imperméabilisé.
Quel type de maçonnerie préférer


Conception de rabat à paroi épaisse.
Des boucliers chauffants à faire soi-même sont disposés en tenant compte de plusieurs recommandations.
- Il est plus rationnel de construire en une demi-brique. Les structures à parois minces chauffent plus rapidement, mais se refroidissent rapidement.
- La pose de briques à ¼ nécessite en outre des mesures de sécurité incendie accrues. Ainsi, il est conseillé de prendre de tels boucliers dans un boîtier en acier.
- La température des produits de combustion évacués ne doit pas être inférieure à + 100 °. Sinon, le tirage dans la fournaise peut baisser considérablement et le condensat commencera à se déposer sur ses éléments.
- Comme pour toutes les cheminées de poêle, des vannes de réglage doivent être utilisées dans les boucliers. Sinon, par temps froid, la température dans les pièces baissera très rapidement.
- Le bouclier chauffant est commandé à partir de briques rouges ordinaires. Ils doivent être corsés, les lacunes dans le matériau sont nécessaires pour l'isolation thermique, et dans ce cas, cela ne sert à rien.
- Pour fixer la maçonnerie, vous devez utiliser un mortier de four en argile. Le mélange ciment-sable ne résiste pas aux températures élevées.
Types de boucliers


Il existe deux types de boucliers : le conduit et la cloche. Ils diffèrent les uns des autres par leur conception et leur méthode d'installation.
Le bouclier de type conduit implique une cheminée sinueuse complexe, dont la conception ne subit pas de changement de diamètre sur toute sa longueur. Au lieu de cela, les cloisons sont situées sur toute leur longueur, qui peut être verticale ou horizontale. Il n'est pas difficile de deviner le principe de fonctionnement du système.Comme son nom l'indique, le gaz chaud passe à travers le canal aménagé et dégage de la chaleur vers les murs, qui à leur tour chauffe l'air de la pièce.
Un dispositif pratique pour le four est constitué de cavaliers spéciaux qui vous permettent de régler le volet pour fournir de la chaleur à la table de cuisson sans chauffer la pièce. Cela peut être fait dans les poêles conventionnels, mais c'est totalement inadapté aux cheminées. Si vous envisagez d'assembler une cheminée, vous devez être prêt au fait qu'il ne sera pas possible de l'utiliser en été. Si, toutefois, la conception est prévue pour être standard, avec toutes les exigences habituelles, il est fortement recommandé de les monter.
La deuxième option est un rabat de type capuchon. Ici, une ou deux surfaces sont connectées l'une à l'autre à l'aide de canaux. Les points extrêmes doivent être inférieurs à la limite supérieure, ce qui permet à l'air chauffé de circuler de lui-même. Sur la base des lois de la physique, l'air chauffé se déplace vers le haut, puis, en passant par le canal, il se refroidit et descend, et s'il est poussé par un autre gaz chauffé, il continue à être déplacé vers le haut.
Sur la base de cette théorie, nous pouvons conclure qu'un bouclier chauffant à deux cloches a un effet positif sur la température ambiante. Par conséquent, si l'installation du poêle est prévue dans une grande pièce, il est préférable d'utiliser un système à deux canaux.
Le bouclier thermique d'angle est une excellente solution pour les petits espaces. La création d'un tel bouclier vous permet de gagner de la place sans compromettre les propriétés de chauffage. Si vous l'équipez d'un foyer en métal, vous pouvez l'utiliser comme poêle à part entière pour chauffer toute la maison, quel que soit le nombre d'étages.
https://youtube.com/watch?v=jhl-P4_QMzI
Types de boucliers chauffants
Les boucliers chauffants peuvent différer les uns des autres par le type de construction et certaines caractéristiques de l'installation.
Il est donc habituel de distinguer deux types principaux de ces appareils:
Bouclier de conduit
Un tel dispositif de dispositif implique l'installation d'une cheminée sinueuse ayant le même diamètre sur toute sa section. De plus, la conception du tuyau suppose la présence de cloisons, qui peuvent être situées à la fois horizontalement et verticalement. Ce schéma d'installation tire son nom précisément du dispositif particulier du soi-disant canal, à travers lequel le gaz chauffé dégage de la chaleur vers les murs et, par conséquent, chauffe la pièce.
Il ne sera pas superflu de s'occuper de l'installation de cavaliers spéciaux qui font le tour des passages et sont séparés par des cloisons spéciales. Le rôle principal attribué à ces éléments est d'éviter que la pièce ne chauffe pendant la saison chaude et de diriger toute l'énergie thermique uniquement vers la plaque de cuisson.
Bien sûr, si le bouclier fait partie d'une structure avec une cheminée, l'installation de cavaliers dans une telle situation sera superflue, car la cheminée est conçue uniquement pour chauffer la pièce. Mais si l'appareil est standard, il est préférable de se protéger de la chaleur excessive dans la pièce en été et d'installer les cavaliers nécessaires. Voir aussi : "Cheminée au biocarburant - le dispositif des biocheminées par des exemples."


Plaque chauffante de type cloche
Cette conception se présente sous la forme d'une ou de deux surfaces planes, dont la connexion est réalisée à l'aide de canaux. Les points de départ et d'arrivée de la cheminée sont alors définis en dessous de la limite du plan supérieur. Cela est dû, tout d'abord, au fait que l'air chauffé, comme vous le savez, se déplace vers le haut. S'il pénètre à l'intérieur de la cloche, il y restera jusqu'à ce qu'il se refroidisse, puis, déplacé par un gaz plus chauffé, il remontera dans le tuyau.
Bien sûr, un bouclier à deux dômes fournira plus de nombre qu'un appareil à un seul dôme. Mais cela n'affecte en rien le coût de ces produits, ce qui s'explique par une quantité de matières absolument identique pour la commande du four à cloche.
De plus, il est habituel de mettre en évidence certaines autres caractéristiques qui distinguent la conception des boucliers les uns des autres:
- il y a des cas où la forme de la plaque chauffante n'est pas droite, mais angulaire.Cela n'affecte en rien la productivité du travail, mais cela permet d'économiser de l'espace dans la pièce et, en raison de la plus grande surface, fournit plus de chaleur à la pièce;
- certains experts conseillent d'installer des boucliers équipés d'une chambre de combustion, qui sépare complètement l'appareil du four et le rend complètement indépendant de son fonctionnement. Une telle conception prévoit généralement la chambre de combustion comme un élément supplémentaire de faible puissance, ce qui peut cependant simplifier le travail avec le volet et permettre d'accélérer toutes les manipulations effectuées avec celui-ci.
En suivant toutes ces recommandations et en étudiant en outre divers supports photo et vidéo sur l'installation et la pose d'écrans chauffants, vous pouvez concevoir un excellent appareil avec lequel vous pouvez non seulement cuisiner des aliments, mais également chauffer l'espace de vie avec une haute qualité.
La maçonnerie de Varanti en particulier
À la connexion avec cela, la chaleur des cuisinières est très faible, la puanteur n'est pas trop nauséabonde, l'odeur de la nourriture n'est pas dans le monde principal. La première entrée dans la situation sera un bouclier brûlé.
Le volet brûlant pousse la chaleur du poêle deux fois, vous permettant d'économiser de l'argent sur les ressources pour le brûlage.
Il est produit avec un taux de chaleur plus élevé, une capacité calorifique accrue du four en 2 fois et le KKD est passé de 30 à 45 % à 50 à 65 %. Avec beaucoup de vitrati pour l'ensemble, les accessoires et l'heure sont robustes, le chemin est encore plus populaire et docile. Le bouclier est un filet du chiffre d'affaires au milieu du pays.
La maçonnerie du volet peut être installée dans le pivceglin et dans le quart du tsegli. La meilleure option serait la première option, la puanteur apaisera mieux la chaleur et le programme le plus trivial sera meilleur. Jusque-là, une telle trappe était plus grande en termes d'ignifugation. Subtil - pour être réchauffé plus rapidement, mais cela peut être réalisé plus rapidement, il est recommandé de saisir de telles constructions avec un boîtier métallique, de sorte que vous devez suivre les règles de sécurité incendie.
Options et caractéristiques de maçonnerie
En raison du fait que la capacité thermique totale des poêles en brique de cuisine ou des poêles en fonte est très faible, ils ne sont pas en mesure de chauffer la pièce 24 heures sur 24 au maximum. Et un excellent moyen de sortir de cette situation sera un bouclier chauffant.


La plaque chauffante double la capacité thermique d'un four en brique, économisant ainsi les ressources de chauffage.
Il est érigé entièrement en brique, augmente la capacité calorifique du four de 2 fois et porte le rendement de 30 à 45 % à 50 à 65 %. Dans le même temps, les coûts des briques, des raccords et du temps de travail sont pleinement justifiés. Cette méthode est donc très populaire et pratique. Le bouclier est un mur de briques avec de la fumée à l'intérieur.
Le rabat peut être posé en demi-brique et en quart de brique. La première option serait optimale, car ils retiennent la chaleur plus longtemps, mais nécessitent en même temps un chauffage plus long. De plus, un tel bouclier est plus préférable en termes de sécurité incendie. À paroi mince - il se réchauffe plus rapidement, mais se refroidit également plus rapidement, il est recommandé de clôturer ces structures avec un boîtier métallique afin de se conformer aux règles de sécurité incendie.
Pourquoi est-ce nécessaire?
La plaque chauffante est un échangeur de chaleur en brique fixé au poêle. On l'appelle parfois une colonne montante ou une chemise de four. En la traversant, les fumées incandescentes chauffent les parois, qui conservent longtemps la chaleur et la transfèrent dans l'air ambiant. Un bouclier thermique pour un four métallique améliore l'efficacité du four et présente les avantages suivants :
- Chauffe la maison beaucoup plus rapidement.
- Facile à faire vous-même.
- Permet au four de rester chaud pendant une longue période.
La fabrication d'un bouclier chauffant pour un poêle en métal permet de rapprocher ses paramètres d'un poêle en brique. Cette conception maintient la température requise pour un chauffage de haute qualité de la pièce pendant longtemps et économise la consommation de carburant. Sa construction est la meilleure option, combinant les avantages d'un four en métal et d'un four en briques.


Pose de la série principale
poryadovkoy:
Le schéma approximatif poryadovkoy (maçonnerie de briques) dans la régénération du panneau chauffant.
- 1ère rangée se propage complètement à partir d'une brique.
- 2 e et 3 e - poryadovkoy basé.
- 4ème rangée de briques - fenêtre gauche pour une connexion supplémentaire au bouclier et ensemble 2 de nettoyage.
- 5ème - similaire à la quatrième rangée, mais devrait faire attention aux coutures de pansement.
- 6ème - pendant la pose, le canal 2 est laissé.
- 7e rangée et toutes les rangées impaires, 25e inclus - conformément à la forme et poryadovkoy 3 canaux.
- 8e rangée et toutes les rangées paires, 26e inclus - par poryadovkoy.
- 10, 11, 17, 23, 24-ème rangées - similaires à la précédente, mais pour améliorer la fiabilité, les sutures de ligature fonctionnent différemment d'embrayage.
- 18ème - mêmes 10ème et 24ème séries. Le canal a mis le loquet sur le côté droit.
- 21, 22 - pose avec l'installation samovarnika.
- 27ème rangée de briques - combiné 2 canal gauche 1 canal. Samovarnik superposé.
- 28e rangée - vanne montée.
- 29e - placé sous le poryadovkoy. Dans le même temps, faites attention à l'habillage.
- 30e rangée - à droite, placez le loquet sur le chevauchement du canal gauche.
- 31 ème et 32 ème rangs - vous devez faire attention aux coutures des pansements. Le surplomb est placé sur 3 rangées, ce qui est entièrement conforme à la sécurité incendie. Tout cela peut être vu de poryadovki-.
- Les 33e, 34e et 35e rangs mettent respectivement poryadovkoy.
- 36e rangée - toujours en cours de pose, laissez-le et canaux de ventilation des fumées.
Usage général de la plaque chauffante
Avant de parler de la manière dont l'écran chauffant doit être posé, il convient de décrire plus en détail où cet élément est utilisé.
Comme vous le savez, l'un des principaux avantages des plaques de cuisson standard et des poêles en acier et en fonte réside dans leurs dimensions réduites et pratiques (plus en détail: "Poêle à faire soi-même - options de fabrication"). Cependant, il y a aussi un côté négatif à cela : la surface de travail est très petite, ce qui est plutôt gênant.
Par ailleurs, il est également important de se souvenir de la température de fonctionnement de ces appareils, qui est généralement très élevée (au moins 300°C). En raison de la grande valeur de ce paramètre, il existe un risque d'incendie sérieux, il est donc extrêmement urgent d'isoler soigneusement le tuyau de cheminée.
Et si cette procédure est effectuée de manière incorrecte, la chaleur disparaîtra en grandes quantités, ce qui, bien sûr, affectera l'efficacité de l'équipement.
Afin de résoudre le problème de perte de chaleur, vous pouvez utiliser l'une des deux méthodes les plus efficaces :
Cela est dû au fait que la conductivité thermique de la brique est élevée.Par conséquent, lorsque la pièce est chauffée, le chauffage sera garanti pendant un temps considérable.
La puissance de travail d'un tel appareil varie de 7 à 14 kW. Une fois le combustible solide épuisé, la chaleur dans la pièce restera longtemps (son volume sera d'environ un kW).


Plaque chauffante - connaissance
Pour rendre la description de l'écran chauffant plus compréhensible, imaginons quelques situations courantes. Par exemple, vous avez acheté et installé un beau poêle en métal dans votre maison - une cheminée. Deuxième option : vous utilisez une plaque de cuisson en brique. Dans les deux cas, en chauffant la cheminée, on remarque que la part du lion de la chaleur provenant de la combustion du bois de chauffage vole littéralement dans la cheminée. Ainsi, les boucliers chauffants sont conçus pour piéger cette chaleur et la diriger pour chauffer la maison.
En fait, un bouclier en brique est une sorte d'échangeur de chaleur gaz-air attaché à un poêle de n'importe quelle conception. Il est considéré comme du gaz-air car il prend la chaleur des gaz de combustion, se réchauffe, puis la transfère dans l'air de la pièce. Extérieurement, la structure ressemble à une partie d'un mur épais droit ou incliné en briques. À l'intérieur de ce mur, des canaux verticaux et horizontaux sont disposés, le long desquels les produits de combustion se déplacent du foyer du poêle ou de la cheminée. Le tirage naturel de la cheminée les incite à se déplacer.
En passant tout le long des passages à l'intérieur du bouclier, les gaz de combustion se refroidissent inévitablement, dégageant de la chaleur vers les murs de briques. Et si leur température initiale pouvait atteindre 300°C, alors à la sortie de la cheminée verticale elle sera d'environ 150°C. De plus, le corps chauffé du bouclier a une capacité calorifique considérable et se refroidit longtemps après l'extinction du poêle, continuant à dégager de la chaleur dans la pièce.
Ainsi, un bouclier chauffant pour un poêle ou une plaque de cuisson en métal est une extension en brique conçue pour augmenter l'efficacité d'utilisation de l'énergie thermique libérée lors de la combustion du bois et du charbon.
Matériaux (modifier)
Dans le processus, vous aurez besoin d'une truelle.
Ce n'est pas seulement l'exactitude du travail effectué qui affecte le résultat. La qualité de l'appareil dépend également de l'inventaire et des matériaux de travail correctement sélectionnés. Les parois intérieures et extérieures de la cheminée sont construites en briques régulières, dépourvues de copeaux. Il est recommandé de consacrer des efforts à un jointoiement de haute qualité de toutes les coutures et joints de l'appareil.Les briques ordinaires sont utilisées dans les travaux de construction de boucliers, mais le matériau ne doit pas être creux. Les joints sont recouverts d'une masse d'argile, le mélange de ciment ne convient pas. La liste des équipements nécessaires est présentée dans le tableau :
Consommables
| Inventaire | Niveau et carré |
| Pioche et marteau | |
| Fil à plomb | |
| Roulette | |
| Corde | |
| Truelle | |
| Règle | |
| Matériaux (modifier) | Briques réfractaires |
| Argile | |
| Le sable | |
| Matériau imperméabilisant | |
| Les portes sont propres | |
| Grilles d'aération | |
| Clapets anti-fumée |
Instruments matériels
Pour l'hydro-isolation de la fondation du poêle et du bouclier opalescent, il est possible de vikorisovuvati ruberoid ou polyéthylène.
Les boucliers se réveillent dans les options d'été et d'hiver pour les robots. Lorsque l'option été est trop tordue, optez pour un soufflage supplémentaire, pour lequel le volet entier ne se réchauffe pas, si seule la plaque chauffante est chaude. En période de canicule, vérifiez docritiquement le débit d'air et programmez l'ensemble de la structure. Maçonnerie Viroblyayut, suvoro dotrimuyuchis vimog pozhezhnoy bezpek. Razmіschuvati pristіy a glissé sur mіtsnomu baseі z obov'yazkovoj hydroizolyatsіyu.
Les constructions peuvent être utiles, à cause d'elles et pour fixer la puissance calorifique du bouclier. Des gradateurs sont installés à la partie supérieure du bouclier. Une autre aspiration est utilisée pour la version lithium du flux de gaz. Dans le même temps, un troisième culti culti est fermé. La troisième course est due à la course hivernale du gaz, mais à un ami en même temps elle sera fermée. A cette heure, si le gaz passe par les canaux, la puanteur atteint, la chaleur des murs est sortie, et les cheminées passent par la cheminée dans le moulin froid. Les boucliers eux-mêmes sont canalisés et ceux de Kolpakov - l'ordre est significatif. La construction Tsya est un grand moment et hiver, ale le souffle de la rosace dans les montagnes et au bas du tableau de bord. Poids Yogo - 1210 kg et dimensions - 89 x 38 x 224 cm. Blindage de toute la charge, puissance calorifique avec un toit - 430 kcal / h, avec deux - 600 kcal / h. Modes robotiques :
Bouclier Opalyuvalny avec coups dimovy: 1 - plaque-2 - dimovy shchіtok- 3, 4, 5 - dimovіs soufflant pour réguler le flux de chaleur en modes été et hiver.
- Option hiver - la troisième manche est fermée et le blâme est dû à la faute de votre ami et de votre ami. Avec beaucoup de dimovi, les gaz traversent tout le tableau de bord, ce qui lui donne de la chaleur.
- Option Lіtnіy - persuasion première et troisième aspiration, une autre fermeture. Gazi passe la fossette du rabat et entre dans le tuyau sans entrer au milieu. Pour assurer la ventilation de l'installation, un canal spécial est inséré dans le tuyau monté sur le dessus, qui est fermé avec des bavures. Il n'y a pas de vannes, qui fourniront 3 modes - pression partielle, fermée et ouverte.
Outils nécessaires pour les robots :
- truelle combinovana, yak pour servir à façonner, empiler, augmenter le surdimensionnement;
- marteau-Kirochka - aux tas du tsegli et de l'abattage;
- roshivannya;
- saisi;
- rіven;
- mètre à ruban ou mètre pliant;
- kutnik;
- corde;
- ligne.
Accessoires alimentaires : plaques de cuisson, dims, grilles de ventilation.
Matériaux et accessoires :
- tsegla - 309 pièces;
- pisok - 3-4 seaux;
- argile - 6 seaux;
- uniquement pour sécuriser l'hydroisolation - 1,5 m;
- aspiration dimovi 13x13 - 3 pièces;
- grilles de ventilation - 15-20 cm;
- portes propres - 3 pièces.
Avec la fondation de la fondation le long de la hauteur, ne mettez pas le pidlogi au niveau pendant 2 rangées le long de la hauteur. Posez 1 rangée de tsegli sur le dessus de la fondation et posez l'hydro-isolant sur le nouveau. Changeons la figurine du four. Ensuite, posez une autre rangée, dont la surface doit être extraite du pidlogi dans une version pure. Passons pas à pas et commandons le rabat.
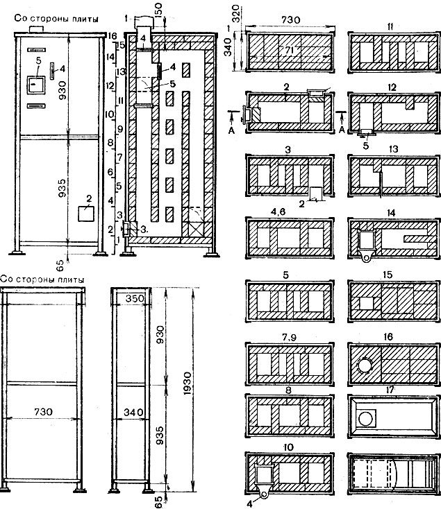
Conception légère
À quoi cela ressemble-t-il


Le bouclier chauffant léger est assemblé dans un cadre métallique, doublé de tôles ou d'asbophane. Dans les deux cas, les feuilles de revêtement sont préalablement découpées selon des gabarits préparés en fonction des dimensions des parois du poêle et en tenant compte de tous les trous de support.
Caractéristiques de maçonnerie
- Le plancher en bois sur lequel il est prévu d'installer le bouclier est pré-préparé - deux couches de feutre doivent être posées sur la zone de construction, qui doit être préalablement imbibée de mortier d'argile (en option, l'amiante peut être utilisé pour un tel base, recouvert de tôle d'acier sur le dessus).
- Le cadre du bouclier sur un cadre soudé constitué d'un coin en acier est installé strictement verticalement, avec un support solide sur la base à quatre pieds.
- Le cadre est vérifié, après quoi la rangée inférieure de feuilles de revêtement est posée.
- La première rangée de briques est posée à plat sur une base préparée.
- Une fois le sol prêt, la maçonnerie doit être ramenée au niveau de la première rangée de revêtement.
- Dès que la première rangée est posée, installez le bardage du cadre pour la deuxième rangée et poursuivez la pose.
Dimensions à guider par:
- Longueur - 730 mm.
- Largeur - 340 mm.
- Hauteur - 1930 mm.
- Poids - 650 kg.
- Le niveau de la première rangée de bardage est de 625 mm.
- La hauteur des pieds du cadre est de 65 mm.
- Dimensions d'un cadre soudé constitué d'un coin en acier - 30x30x5 mm.
Dispositions générales
Dans tous les cas, la pose du bouclier chauffant est réalisée en tenant compte de certaines conditions aux limites communes à toutes les structures.
- Pose optimale dans une demi-brique... Le bouclier chauffant à paroi mince se réchauffe plus rapidement, mais se refroidit également plus rapidement. De plus, une maçonnerie en quart de brique vous fait sérieusement craindre la sécurité incendie: il est recommandé de clôturer de telles structures avec un boîtier métallique.


Commande possible du panneau chauffant avec maçonnerie demi-brique. Les parois épaisses permettent de stocker une grande quantité de chaleur.
- La température des gaz du four à la sortie ne doit pas être inférieure à 100-120 degrés... Une nouvelle baisse de température est dangereuse en raison d'une baisse des courants d'air et d'une condensation abondante.
- Comme dans toute cheminée, des vannes de réglage sont utilisées dans l'écran chauffant.... Sans eux, la température de la pièce baissera trop vite en hiver.
- Les boucliers chauffants à faire soi-même sont disposés en brique rouge ordinaire... Bien sûr, corsé: les vides servent d'isolant thermique, dont nous n'avons pas besoin dans ce cas.
- Pour la maçonnerie, on utilise du mortier d'argile, comme dans les fours.... Le ciment ne résiste pas aux températures élevées.
- La base du bouclier est séparée de la fondation par une couche d'étanchéité... Le plus souvent, un matériau de toiture ordinaire est utilisé.
Usage général
Avant de commencer la construction du bouclier de four, comprenez son besoin et la technologie pour sa mise en œuvre. Les plaques de cuisson et les poêles en fonte présentent un énorme avantage en raison de leur taille compacte. Cependant, cela affecte négativement les points opérationnels. Si vous envisagez de l'utiliser comme plaque de cuisson pour un grand nombre de personnes, la cuisson prendra beaucoup de temps et d'efforts. Par conséquent, les poêles de ce type sont utilisés dans des bâtiments temporaires ou des chalets d'été.
Toutes les unités ne sont pas capables de supporter une telle tension, l'appareil peut prendre feu. Par conséquent, isolez le tuyau de cheminée aussi soigneusement que possible. Dans le même temps, il est nécessaire de calculer correctement ses paramètres, car une énorme quantité de chaleur pénètre dans les gros tuyaux avec la fumée. Cela affectera non seulement la qualité du travail, mais aussi la durée de vie.
Il existe deux méthodes efficaces pour résoudre le problème de la perte de chaleur :
- La direction de l'énergie thermique, qui est obtenue à la suite de la combustion du combustible, vers le chauffage de l'élément responsable de l'échange thermique. Le système d'alimentation en eau familier peut servir d'exemple. Dans celui-ci, le liquide de refroidissement peut circuler à la fois à l'aide d'une pompe et de manière naturelle.
- Équiper la cuisinière d'un bouclier chauffant. Ainsi, vous obtenez un système où les produits de combustion passant par la cheminée encastrée dans le mur minimiseront les pertes de chaleur.
L'inconvénient de la première option est l'instabilité de l'état du liquide dans les tuyaux. Alors si tu admets


gel de l'eau, les tuyaux peuvent éclater ou se dépressuriser. Pour éviter cette situation, il est préférable d'utiliser la deuxième méthode.
Le système en brique garantit une faible perte de chaleur du four et une capacité thermique élevée assure un refroidissement prolongé. La plaque chauffante est capable de remplacer complètement le poêle traditionnel habituel. De plus, vous obtenez plus de chaleur avec moins de coûts physiques et financiers.
Inconvénients des fours de cuisson en métal et comment les réparer


Modification de l'efficacité d'un four métallique lors de l'utilisation d'un bouclier.
- Les dimensions compactes des poêles métalliques ont également un inconvénient - la surface d'échange thermique de l'air est trop petite.
- De plus, les produits de combustion gazeux ont une température très élevée - de + 300 ° C et plus. Il faut donc penser à la sécurité incendie et isoler la cheminée.
- Comme vous le savez, l'efficacité des poêles est inversement proportionnelle à la température des déchets de combustion des gaz d'échappement. Pour la cuisson, cependant, les unités de cuisson utilisent loin de toute l'énergie thermique générée.
- De plus, ces poêles ont généralement des conduits de cheminée courts. Par conséquent, ils absorbent également un peu de chaleur.
Noter! Sur la base de tout cela, l'instruction note que la perte de chaleur maximale des unités tombe sur la cheminée, à travers laquelle les produits de combustion sont rejetés dans l'atmosphère. C'est, en fait, qu'un grand pourcentage de la chaleur du combustible utilisé est dépensé par les cuisinières pour « chauffer la rue ».
- De telles pertes de chaleur sont irrationnelles à tout point de vue. Il faut les minimiser. L'un des moyens les plus courants de réduire les pertes d'énergie du poêle consiste à équiper l'unité d'un bouclier chauffant de vos propres mains.
Quel est l'appareil
- Le bouclier est un petit mur de briques attaché au poêle, à l'intérieur duquel se trouve un système de cheminée développé.
- De tels appareils ne sont presque jamais fabriqués avec un foyer.... Le bouclier se réchauffe en raison des gaz évacués du poêle. Structurellement, le mur n'est pas capable d'émettre beaucoup de chaleur dans l'environnement.


Un panneau avec un foyer.
- Il existe des conceptions plus complexes et pratiques, dont le prix est plus élevé.... Ils sont équipés de leurs propres petits foyers. Ils peuvent être rendus indépendants de la plaque de cuisson et fixés, par exemple, à des poêles avec cheminée.
- La brique a une bonne conductivité thermique et, surtout, une capacité thermique élevée... Se réchauffant lors de l'allumage du poêle ou de la préparation des aliments, il dégage de la chaleur dans la pièce pendant plusieurs heures. Ainsi, vous pouvez obtenir un analogue d'un poêle en brique. Seulement plus constructivement plus simple et pour moins d'argent.
Noter! Un poêle de chauffage et de cuisson avec un écran est capable d'avoir une puissance calorifique de 7/14 kW. Lorsque le combustible s'épuise, le mur dégage environ 1 kW de chaleur dans l'environnement pendant une longue période. Cela ne suffit pas pour réchauffer la pièce tout seul, mais pour qu'elle ne se refroidisse pas rapidement, il y a suffisamment d'énergie.
Principe de fonctionnement
Le plus souvent, les poêles et poêles Zhirnov sont utilisés dans les maisons de campagne russes, qui sont des unités de chauffage compactes du type "suédois". Un tel four est facile à installer, chauffe rapidement et ne nécessite pas de soins particuliers pendant le fonctionnement. Il est idéal pour les petits chalets d'été. Son inconvénient est l'impossibilité de passer en mode été.
Les plus connus sont plusieurs types de commande d'un tel four, mais, malgré les nuances distinctives, ils sont unis par les caractéristiques suivantes : la puissance du four atteint 3,5 kW ; il y a 4 hottes dans la chambre de cuisson et le tuyau de cheminée ne dépasse pas les dimensions de 270 × 140 mm.
Le bouclier de beauté peut être fini avec du plâtre, des tuiles ou de la brique de gauche.
La signification des volets chauffants
En raison de leur taille compacte et de leur excellente fonctionnalité, les poêles suédois Zhirnov et les poêles ventru sont très populaires. Ils n'ont qu'un seul inconvénient important : une petite surface de travail, qui ne permet pas de réchauffer complètement la pièce.
De plus, les fours ont une température de fonctionnement élevée, ce qui peut provoquer un incendie.
Pour éviter que cela ne se produise, il est important d'équiper correctement une cheminée isolée. Parfois, l'erreur minimale lors de sa construction est suffisante pour que la chaleur pénètre dans le tuyau dans des volumes énormes, sans avoir le temps de chauffer la pièce. Comment ce problème peut-il être résolu ?
Comment ce problème peut-il être résolu ?
Il existe deux solutions : soit monter un système de chauffe-eau à circulation naturelle ou forcée du liquide de refroidissement, ce qui nécessite une surveillance constante, soit construire un poêle avec un bouclier chauffant. C'est lui qui est capable de presque doubler la capacité calorifique du poêle, ce qui permettra régulièrement d'économiser sur les matières premières. Une diminution des pertes de chaleur dans ce cas est due au passage des produits de combustion à travers une cheminée en briques à haute conductivité thermique.
Dispositif de plaque chauffante


Un bouclier ou un boîtier en brique sert à l'accumulation et à la libération de la chaleur
Une plaque chauffante en brique pour un poêle en fer est une extension supplémentaire, un échangeur de chaleur. Il est parfois appelé boîtier. Il s'agit d'une conception avec des cheminées à l'intérieur. Un gaz incandescent les traverse, tout en chauffant les murs. La brique gardera longtemps au chaud et chauffera la pièce. Grâce à l'installation d'un écran thermique, l'efficacité du four est augmentée. L'appareil lui-même présente les avantages suivants :
- le bouclier est facile à fabriquer vous-même, cela ne nécessite pas de connaissances et de compétences particulières;
- grâce à cette conception, la pièce se réchauffe beaucoup plus rapidement;
- il reste chaud longtemps.
L'installation d'un bouclier chauffant sur un poêle en métal le rapproche en propriétés d'un poêle en brique. La conception est capable de retenir la chaleur pendant longtemps, économisant ainsi du carburant.
Classification
En règle générale, le volet est alimenté par des gaz chauds émis par la plaque de cuisson du four. Mais dans certains cas, un foyer individuel peut y être intégré.
Le résultat est une structure dans laquelle le renouvellement de la chaleur ne dépend en aucune façon du poêle.
Par épaisseur de paroi
Les boucliers sont des types suivants :
- avec des murs épais (posés dans une demi-brique);
- à parois minces (poses au de la brique).
L'option parois épaisses est avantageuse en termes de faible inflammabilité et dans le cas où une exploitation à long terme de la dalle est attendue.
La deuxième option nécessite un respect plus clair des règles de sécurité incendie, car la structure ne se réchauffe pas partiellement, mais complètement. De plus, ces boucliers sont posés sur une fondation imperméabilisée. Et s'ils décident de décorer avec des carreaux, cela doit être fait pendant le processus de construction. Ces fours doivent être équipés d'une coque métallique - un boîtier.
La plaque chauffante doit être réglée différemment pour un fonctionnement en été et en hiver. Cela vous permet d'utiliser uniquement la plaque de cuisson dans la chaleur sans chauffer les murs, et en hiver d'obtenir le chauffage maximum possible. Le principe de fonctionnement ressemble à ceci: dans la version d'été, les passages de fumée sont bloqués au moyen d'une vanne, à la suite de laquelle seul le poêle chauffe, et en hiver la vanne est repoussée, ce qui donne une impulsion à chauffer toute la surface du bouclier.
Intentionnellement
De plus, les blindages, selon les caractéristiques de conception et d'installation, peuvent être :
- Genre cloche. Cette unité se compose de 2 surfaces de briques verticales reliées par des canaux. En entrant dans une hotte spéciale, l'air chauffé y est retenu et chauffe efficacement la pièce.
- Type de canal. Il s'agit du fonctionnement d'une cheminée sinueuse avec un tuyau métallique de même diamètre. Dans ce cas, des cavaliers doivent être installés, qui ne permettent pas à toute la surface de chauffer en été.
Fondamentalement, les boucliers ont une configuration droite, mais parfois ils peuvent aussi être angulaires.
Variétés et schémas


La maçonnerie autour du poêle assure la sécurité incendie
Les boucliers chauffants sont divisés en deux grands groupes :
- à paroi mince;
- à parois épaisses.
La deuxième option est aménagée en ½ brique. Cette conception répond autant que possible aux exigences de sécurité incendie, mais elle a une caractéristique : un tel poêle peut bien se réchauffer s'il est chauffé longtemps.
Les boucliers à paroi mince sont disposés dans un quart de brique. Pour assurer la sécurité incendie, il est recommandé d'équiper en plus des couvercles métalliques.
Selon la saison d'utilisation, les appareils sont divisés en été et en hiver. Les options d'été ne sont que partiellement réchauffées, l'hiver - complètement.
Il existe deux types de boucliers, selon la disposition interne.
Canal


La disposition en forme de cloche des canaux est considérée comme plus efficace - l'air froid sort
Le circuit des volets est un réseau de cheminées situées verticalement les unes par rapport aux autres. Avant de sortir, la fumée passe par tous les canaux, les réchauffant.
Cloche
Un tel système est utilisé comme extension d'un four en fonte. L'appareil est équipé de deux caméras situées verticalement. Le gaz y restera jusqu'à ce qu'il refroidisse complètement. Ce n'est qu'alors qu'il sort. Étant donné que la fumée chaude est à l'intérieur de la structure pendant une longue période, le bouclier se réchauffe beaucoup plus. Le principal avantage d'un tel système est la possibilité d'installer une vanne supplémentaire. De cette façon, il sera possible d'ajuster le niveau de chauffage.
Les protecteurs de conduits sont faciles à plier seuls, même les débutants peuvent les manipuler. Les constructions de casquettes ne peuvent être confiées qu'à des professionnels.
Étapes de travail
Avant de commencer le travail, vous devez acheter un médiator, des fils à plomb, une règle, un niveau, un ruban à mesurer et un carré, un cordon, un marteau et une truelle combinée, qui sert à éliminer l'excès de mortier.
Du matériel pour la construction d'un bouclier chauffant standard et de raccords, vous aurez besoin de briques réfractaires (environ 310 pièces), environ 6 seaux d'argile et environ 4 seaux de sable, 1,5 mètre de goudron de toiture imperméabilisant, 3 portes de nettoyage spéciales, une grille de 20 cm pour la ventilation et 3 pièces de vannes (fumée) mesurant 13 × 13 cm.
Comme mentionné ci-dessus, les boucliers sont érigés sur la fondation. Par conséquent, le processus commence par la disposition et l'imperméabilisation de la base.
Construction de fondations
Le mortier dans la fondation est nivelé avec un niveau, sans atteindre environ 10 cm au sol. Une brique est posée sur la couche séchée, la base de la structure est traitée avec un matériau imperméabilisant, le contour de l'ensemble est esquissé. Ensuite, une deuxième couche de brique est placée, la comparant enfin au niveau du sol.
L'algorithme de base pour la pose des fondations est le même pour la commande d'un écran chauffant de n'importe quelle configuration.
Panneau de maçonnerie sans foyer autonome
1 rangée - entièrement doublée de briques. Les 2e et 3e rangées sont disposées dans l'ordre. Au niveau de la 4ème rangée, 2 nettoyages sont placés et une fenêtre est laissée parmi la brique pour une connexion ultérieure avec le bouclier. Au 5ème rang, le même travail est effectué, mais une attention particulière est également accordée à l'habillage des coutures du four. La 6ème rangée est posée, sans oublier de laisser 2 canaux.
- À partir du 7, y compris toutes les rangées impaires restantes (jusqu'au 25), disposez les briques dans l'ordre en laissant 3 canaux.
- À partir du 8e et y compris toutes les lignes paires, ils agissent strictement selon l'ordre du schéma.
- Au niveau des 10e, 11e, 17e, 23e et 24e rangs, une maçonnerie différente est utilisée, ce qui permet d'obtenir un tas de coutures plus solide.
- Aux 10e, 18e et 24e rangs, n'oubliez pas de mettre la valve à droite.
- Au niveau des 21e et 22e couches, un samovar est installé, qui sera bloqué sur la 27e rangée, combinant 2 canaux gauches en un seul commun.
- Une valve fiable est placée sur la 28e couche et la 29e est disposée, selon la commande, sans oublier le pansement.
- Au 30e rang, le canal de gauche se chevauche et la vanne est également réinstallée.
- Le bandage des coutures et le chevauchement d'une épaisseur de 3 rangs doivent être assurés par les 31e et 32e rangs.
- Les niveaux 33, 34 et 35 de couches sont posés en fonction de la commande, et au dernier - 36ème rang, il est impératif qu'ils prennent soin de sortir des conduits (aération avec fumée).
Diagrammes schématiques du travail
Selon le principe de fonctionnement, deux types d'appareils sont distingués.
Boucliers de canal
Construction de canaux.
- A l'intérieur d'un tel dispositif, il y a une sorte de labyrinthe de cheminées qui ont la même section transversale.
- Lorsque de tels écrans chauffants sont posés, leurs commandes peuvent avoir des cloisons à la fois horizontales et verticales.
- Les produits de combustion dégagent de l'énergie thermique aux parois lors de leur mouvement uniforme sur toute la longueur des canaux.
- Dans les appareils de type canal, des cavaliers sont souvent équipés, contournant la cheminée. Ils sont clôturés par des cloisons. Cela est nécessaire pour qu'en été, la cuisinière ne chauffe pas la pièce.
Dans les poêles-cheminées, les cavaliers ne sont pas nécessaires, car ils sont équipés de boucliers pour un meilleur transfert de chaleur. Un appareil pour une unité métallique puissante, par exemple pour la Bavière (puissance thermique 14 kW), ne doit pas être fabriqué sans un tel cavalier. (Voir aussi l'article Biocarburants pour cheminées : caractéristiques.)
Cap appareils
Appareil cloche.
Un bouclier chauffant de type cloche se compose d'une ou plusieurs cavités, qui sont reliées par des cheminées. La sortie et l'entrée du canal dans toutes les majuscules se font beaucoup plus bas que le haut de son plan.
Pourquoi est-ce nécessaire? L'air réchauffé et les gaz de chauffage s'écoulent toujours vers le haut. Après avoir pénétré dans la cloche, les gaz s'y logeront jusqu'à ce qu'ils se refroidissent. Lorsqu'ils cèdent leur chaleur, ils seront déplacés par une nouvelle portion de produits de combustion chauffés, et ils s'écouleront par la cheminée dans la rue.
Noter! Il convient de garder à l'esprit qu'un bouclier à deux cloches prendra plus d'énergie thermique des déchets de combustion qu'un homologue à une seule cloche. Leur coût est le même, tk. les coûts matériels sont équivalents.
Caractéristiques de la mise en œuvre du circuit de volet
- En plus des appareils rectangulaires, lorsqu'il y a peu d'espace dans la pièce, un bouclier d'angle est souvent équipé. Outre le fait qu'une telle conception permet d'économiser du volume utilisable, grâce à une plus grande surface d'échange thermique, elle dégage plus d'énergie.
- Si vous équipez le volet d'un foyer séparé, il est converti d'un élément supplémentaire du poêle en un équipement de chauffage à part entière.
- Votre propre chambre à combustible est nécessaire afin de ne pas chauffer inutilement la cuisinière. (Voir aussi l'article Chauffer une maison privée au bois : caractéristiques.)