Installation de la porte
L'installation de portes coupe-feu a plusieurs caractéristiques et exigences, par conséquent, un travail indépendant n'est pas recommandé. L'essentiel est que les portes installées doivent nécessairement être conformes aux actes normatifs de SNiP et GOST. Par conséquent, lors du choix des portes, elles étudient d'abord les normes et les exigences. Nous parlerons dans l'article des documents réglementaires pris comme base lors de l'installation de structures ignifuges et de la manière dont l'installation elle-même est réalisée.

Les principales dispositions du SNiP
Pour les portes coupe-feu, les normes SNiP 21-09-97 sont appliquées:
- Les matériaux utilisés pour la construction sont divisés en deux classes: combustibles et incombustibles. De plus, les matériaux de classe I peuvent être légèrement inflammables, modérément inflammables, normalement inflammables et hautement inflammables. De plus, cette classe de matériaux peut être: difficilement inflammable, modérément inflammable et inflammable avec une fonction de génération de fumée petite, modérée ou élevée.
- Les matériaux et produits fabriqués à partir de ceux-ci diffèrent par la classe de sécurité incendie, la limite de résistance au feu et le type de remplissage anti-feu.
L'état du vantail de la porte, lorsqu'il perd plusieurs de ses caractéristiques, est appelé limite de résistance au feu, ainsi la porte perd:
- capacité d'isolation thermique,
- intégrité,
- capacité portante.
En fonction du niveau de sécurité incendie, les matériaux sont divisés en:
- ininflammable,
- faible risque d'incendie,
- moyennement dangereux d'incendie,
- incendie dangereux.
Selon le type de remplissage de vantail de porte, trois classes sont distinguées:
- la première classe comprend les structures avec une limite de résistance au feu allant jusqu'à 60 minutes;
- le deuxième type comprend des portes avec une limite de résistance au feu allant jusqu'à 30 minutes;
- la troisième classe comprend les structures avec une limite de résistance au feu allant jusqu'à 15 minutes.
Caractéristiques des modèles
- Leur tâche est de séparer les pièces avec différentes classes de risque d'incendie les unes pour les autres (dans ce cas, on peut parler d'une sorte de zonage de la structure) et devenir un obstacle à la propagation de la fumée, des flammes et des substances toxiques.
- Inertie aux effets thermiques. Le concept est quelque peu relatif, car toutes les portes de ce type ont leur propre classe de résistance à la température. Mais par rapport aux modèles conventionnels, ils sont capables de résister à des valeurs élevées pendant un certain temps, et sans destruction matérielle ni perturbations fonctionnelles. Le dernier indicateur comprend les déformations des toiles, le coincement des barres transversales, les serrures et autres défauts qui empêchent l'évacuation rapide des personnes.
C'est pourquoi il est important de savoir comment les portes de la classe «ignifuge» sont classées et où elles sont installées dans les bâtiments.


Où installer les portes selon les normes SNiP
Les portes coupe-feu, conformes aux normes SNiP, sont installées aussi bien dans des locaux d'habitation que dans des conditions industrielles. La réglementation définit ces portes comme des barrières coupe-feu qui empêchent la masse de feu de se propager à une autre partie du bâtiment. Certains modèles assurent également la protection de la pièce contre les produits de combustion, la fumée ou le gaz.
Cette disposition contient une clause selon laquelle la porte coupe-feu peut être utilisée ouverte, à condition qu'elle soit équipée d'un mécanisme permettant de fermer automatiquement la porte en cas d'incendie. Par conséquent, son installation est effectuée par un spécialiste qui dispose d'une autorisation spéciale pour cela - une licence.
Le vantail de porte est équipé du système anti-panique pour éviter l'encombrement en cas d'incendie.Il est interdit d'installer une serrure qui s'ouvre uniquement de l'intérieur.
Les portes de cette catégorie sont ininflammables, elles sont donc équipées de ferrures aux propriétés ignifuges. Dans certains cas, le vantail de porte peut avoir un seuil résistant au feu.
Les structures anti-incendie étant fiables en cas d'incendie : le vantail de la porte ne se bloque pas et le mécanisme de verrouillage ne se brise pas, le site d'installation est réglementé par les normes SNiP. Sur cette base, ils peuvent être installés:
- dans les bâtiments à risque d'incendie immédiat, dans les cuisines de restauration et les ateliers d'entreprises industrielles;
- dans les entrepôts où se trouvent des objets de valeur inflammables;
- en ingénierie des communications exécutant des fonctions spéciales;
- dans les couloirs et les cages d'ascenseur;
- dans les bâtiments à fort trafic;
- dans les bâtiments ou les couloirs utilisés pour l'évacuation.
Les structures anti-incendie et leur installation doivent être conformes aux normes spécifiées dans GOST, qui spécifie la qualité des matériaux utilisés, les règles d'installation et l'emplacement.


Portes installées dans un bâtiment public
GOST R 53307-2009: Méthode d'essai pour la résistance au feu des portes
GOST 53307 2009 contient une description de la méthode à utiliser lors des tests de résistance au feu des portes, portails et trappes. L'essence de la méthode est de suivre le temps écoulé depuis le début de l'exposition au feu sur le bloc de porte jusqu'à l'apparition de l'un des signes qui composent les seuils de résistance au feu - états limites, par exemple:
- perte d'intégrité (E), exprimée par l'apparition d'une flamme stable sur l'échantillon pendant 10 secondes. et de plus, dans l'apparition d'une flamme ou de la combustion d'un tampon de coton à la suite de la pénétration de feu ou de gaz combustibles à travers les fissures, en présence de trous traversants dans le bloc de porte testé;
- perte de capacité d'isolation thermique (I). Une température de 140 ° C et plus est enregistrée sur la surface du prototype.


GOST 53307 2009 contient une description de la méthode par laquelle la porte est testée pour le seuil de résistance au feu.
Les tests, selon GOST 53307 2009, des portes coupe-feu métalliques pour la perméabilité aux fumées et aux gaz (S) ne sont pas effectués.
Comme équipement de recherche, on utilise un four, des canaux de fumée qui fournissent la pression requise dans la partie de cuisson du four, ainsi que des instruments de mesure qui enregistrent les paramètres de température. Le four pendant le test a un effet thermique sur un côté de la porte de l'échantillon.
Exigences pour les portes installées conformément à GOST et SNiPu
Selon les normes SNiP et GOST, certaines exigences sont également imposées aux panneaux de porte installés dans les pièces:
- Les bâtiments, dont la hauteur atteint 50 m et ont une superficie d'appartements jusqu'à 500 m2. m sur un étage, doit avoir une sortie par le hall ou le vestibule. Le vantail de la porte, monté dans de tels endroits ou sur l'escalier, doit être résistant au feu jusqu'à 30 minutes.
- Les portes utilisées pour l'installation dans un entrepôt, chambre de ventilation, doivent être résistantes au feu jusqu'à 30 minutes.
- En plus de la résistance au feu, le vantail de porte installé dans le hall de l'ascenseur est équipé d'un ferme-porte et d'une feuillure d'étanchéité.
- Dans les complexes hôteliers où la sortie est destinée à l'évacuation, il est nécessaire d'installer des structures avec une résistance au feu de 30 minutes.
- Les structures installées dans les salles de serveurs ou d'archives doivent avoir une résistance au feu allant jusqu'à 30 minutes et faire partie du deuxième type de sécurité incendie.
Exigences d'installation selon SNiP et GOST
Dans les documents normatifs SNiP et GOST, il est précisé quelles exigences sont avancées pour l'installation d'une porte coupe-feu. Ils sont basés sur la sélection correcte de matériaux capables de résister à une certaine charge en cas de risque d'incendie.
Une attention particulière est portée au site d'installation de l'unité de porte.Toutes les exigences spécifiées sont basées sur les réglementations de sécurité incendie. Par conséquent, lors de l'installation, les paramètres suivants sont pris en compte:
- résistance au feu du vantail de porte: plus la classe de la porte est élevée, plus ses propriétés de résistance au feu sont élevées;
- résistance à la déformation. Cette propriété s'ajoute à la résistance au feu et montre combien de temps un vantail de porte peut résister à un risque d'incendie et ne pas se déformer;
- l'isolation des fumées montre à quel point ce modèle résiste aux charges de feu et protège contre les produits de combustion. Sa qualité dépend d'une bonne isolation ;
- l'isolation thermique montre la durabilité de la toile sous l'influence des températures élevées. Les valeurs optimales pour cette valeur sont de 140 à 180 degrés à l'extérieur de la porte lorsqu'elle est exposée au feu.


La résistance au feu est la principale qualité de la porte
Les portes coupe-feu peuvent être à un ou deux battants. Le deuxième type de portes peut être utilisé comme structure à porte unique, et en cas d'incendie, l'autre moitié sera également déverrouillée.
C'est important! La largeur minimale de la porte ne doit pas être inférieure à 1 mètre, ce qui permet non seulement à une personne en bonne santé de quitter la pièce sans entrave, mais également de sortir les blessés.
GOST 30247.0-94: le contenu principal de la norme
Le contenu de cette norme vise à réglementer les exigences générales pour la réalisation d'essais au feu des structures de bâtiment. Autrement dit, il est fondamental pour tester les méthodes pour différents types de portes. Lors des processus de certification (établissant la possibilité d'admettre les produits en exploitation), les conditions techniques spécifiées dans ce document doivent être créées.
L'essence de la méthode est de déterminer le temps entre le début de l'action thermique sur l'échantillon et l'apparition de l'un des états limites.
Équipement de banc pour tester les structures des bâtiments, y compris les portes coupe-feu métalliques, GOST 30247.0-94 définit ce qui suit:
- fours spéciaux dans lesquels le combustible est fourni et brûlé;
- un dispositif pour installer et fixer l'éprouvette d'essai;
- instruments de mesure des paramètres, équipement d'enregistrement du processus (équipement vidéo, photographique).


GOST 30247.0-94 définit quels fours et dispositifs spéciaux devraient être pour mesurer les paramètres d'une porte coupe-feu.
La température dans la chambre du four est mesurée en au moins cinq points. Les échantillons de produits soumis aux essais doivent avoir des dimensions de conception et les matériaux de fabrication doivent être conformes à la documentation technique.
Sur une note! Si vous souhaitez obtenir des informations plus détaillées sur la conduite de recherches, vous devez vous référer au contenu original du document «GOST 30247.0-94 Construire des structures. Méthodes d'essai de résistance au feu. Exigences générales".
Matériaux (modifier)
Les produits anti-incendie peuvent être constitués de plusieurs types de matériaux conformes à GOST. Le marché des portes coupe-feu propose une large gamme de produits à cet effet:
- portes métalliques, dans la fabrication desquelles des métaux réfractaires sont utilisés, qui assurent la protection des locaux en cas d'incendie;
- portes en bois, dans la fabrication desquelles des toiles MDF sont utilisées, qui ont subi un traitement avec des composés spéciaux qui rendent le bois résistant au feu;
- portes en verre, pour la fabrication desquelles des alliages réfractaires et des pièces en acier renforcé sont utilisés.
Il est devenu à la mode d'installer des structures de protection contre l'incendie dans les appartements de la ville ou les maisons privées, mais les économies de coûts rendent ce zèle inutile. La plupart des consommateurs qui souhaitent sécuriser leur maison les installent eux-mêmes, ce qui n'est pas toujours conforme aux normes SNiP.


Matériaux (modifier)
Pour éviter que l'installation de portes coupe-feu ne provoque la panique, vous devez connaître certains aspects.Une porte coupe-feu n'est rien de plus qu'un vantail de porte, amélioré par des technologies supplémentaires pour obtenir une résistance au feu.
Le vantail de porte est créé selon le principe du gainage du cadre avec des feuilles de matériau réfractaire, tandis que la face extérieure d'une telle structure est réalisée avec un afflux. L'épaisseur de cette structure varie de 5 à 10 cm, et le cadre est constitué d'un profilé plein, qui est mis en forme sous l'influence des températures élevées. Pour rendre le produit plus réfractaire, tous les vides sont remplis d'un composé isolant réfractaire.
C'est important! Un détail obligatoire des portes coupe-feu est un seuil, qui assurera l'étanchéité de la structure.
GOST 31173-2003: portes en acier, classification des produits
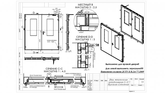
Cette section se concentre sur les structures internes en acier. Ils sont installés à la fois dans des bâtiments industriels et civils et disposent de dispositifs de verrouillage. Les portes coupe-feu métalliques (GOST 31173-2003 définit les exigences techniques des produits) sont classées selon plusieurs critères:


GOST 31173-2003 régit le site d'installation, les caractéristiques de conception, le sens d'ouverture et la méthode de finition des portes coupe-feu en acier.
1. Lieu d'installation. Cela peut être à la fois des options d'entrée et d'intérieur.
2. Caractéristiques de conception. Le bloc de porte est équipé d'un caisson fermé ou en forme de U. L'ensemble complet peut être complété par un seuil.
3. Sens d'ouverture: vers l'intérieur ou vers l'extérieur.
4. Méthode de finition. Il en existe plusieurs:
- peinture standard ou poudre. Le premier réduit le coût de la structure, le second fournit un revêtement durable, mais le prix augmente en même temps;
- rembourrage naturel ou artificiel: similicuir, éco-cuir, garniture carrelée;
- couvertures de verre et de miroir;
- gravure.
5. Caractéristiques mécaniques et caractéristiques du système de sécurité (résistance aux charges statiques, aux effets dynamiques et aux chocs conformément à GOST 31173 2003) des portes coupe-feu:
- portes standard. Ils sont équipés de serrures de troisième classe (non inférieures) et de goupilles anti-amovibles ;
- blocs de porte renforcés. Serrures non inférieures au deuxième niveau avec un grand nombre de barres transversales, charnières renforcées;
- blocs de protection. Identique à renforcé, mais la serrure est installée de première classe.


GOST 31173 2003 régule la résistance aux charges statiques, aux chocs et aux effets dynamiques sur les portes coupe-feu.
Noter! Le fabricant est tenu de fournir un certificat de qualité pour le matériau utilisé pour la finition.
La principale exigence pour les portes en acier est l'utilisation pour la fabrication de tôles et de profilés pliés. Le soudage doit être utilisé pour la connexion. D'autres méthodes sont autorisées, mais elles devraient avoir une résistance supérieure aux méthodes de soudage.
L'ouverture et sa préparation
Afin de ne pas enfreindre les normes SNiP lors de l'installation du bloc de porte, il est nécessaire de préparer correctement la porte. La procédure elle-même n'implique pas d'actions inconnues, tout est fait comme dans le cas d'une conception conventionnelle. Il est nécessaire de retirer la boîte précédente et de nettoyer les surfaces.
La zone adjacente est également nettoyée des objets étrangers. Lors de la fixation de la porte, vous devrez l'ouvrir plusieurs fois pour vérifier si elle a été correctement installée, de sorte que des objets étrangers interfèrent avec cela. De plus, ils peuvent créer une source supplémentaire d'inflammation.
Si la boîte à feu n'est pas très fiable, elle est renforcée par un cadre spécial. Elle participera également à la charge.


Processus préparatoire
Montage de la boîte
La fixation du cadre de porte est l'une des étapes importantes. Il ressemble à un cadre métallique, sur lequel une feuille anti-incendie est ensuite accrochée. Par conséquent, une attention particulière est accordée à sa force dans les dispositions de GOST et SNiP.
En cas d'incendie, le caisson doit, avec le vantail de la porte, empêcher la propagation du feu.Si le cadre est fait de matériaux de mauvaise qualité ou si des erreurs ont été commises lors de l'installation, les fonctions de lutte contre l'incendie ne seront pas pleinement exécutées et vous n'êtes pas assuré contre le flux de produits de combustion.
L'installation du cadre commence par des marquages et la détermination des dimensions des parties du butin. La mesure est effectuée selon le schéma standard pour tous les types de portes, nous ne nous attarderons donc pas dessus. Les différences se trouvent ailleurs - dans les détails de fixation. Dans le cas des structures anti-incendie, des attaches ignifuges sont utilisées pour la fixation.
Les joints sont traités avec un scellant spécial qui ne craint pas les températures élevées. Ses propriétés vous permettent de protéger les locaux de la pénétration du feu ou de la fumée.


Installation du cadre de porte
Portes coupe-feu: prix en fonction de la conception
Il n'est pas difficile de répondre aux exigences de GOST s'il est nécessaire d'installer des portes coupe-feu internes et externes. L'industrie produit une tonne d'options certifiées. Très souvent, le choix dépend du coût. Par exemple, le prix d'une porte métallique ignifuge pour la peinture n'est que de 3600 roubles. La même toile, mais déjà peinte, coûtera 6-7 mille roubles.


Le prix moyen d'une porte ignifuge en métal à un vantail est de 12 mille roubles.
Sur une note! Le revêtement est très important pour une porte métallique. Par conséquent, il ne vaut la peine d'entreprendre sa mise en œuvre par vous-même que s'il est certain que le résultat sera de haute qualité, c'est-à-dire que le revêtement se révélera durable et esthétique.
Le prix moyen d'une porte coupe-feu métallique à un étage est de 12 à 13 000 roubles.
Les portes métalliques ignifuges à double face ont une fourchette de prix de 22 à 45 000 roubles. Les produits contenant un traitement de surface décoratif de la toile se distinguent par un coût élevé. Une porte métallique à un étage avec vitrage et revêtement en poudre peut être achetée pour environ 15 à 19 000 roubles. Pour une structure faite des mêmes matériaux, mais double face, vous devrez payer 28 à 30000 roubles.
Les portes réalisées conformément aux dispositions et exigences des documents réglementaires font partie du système de sécurité incendie. Tout écart par rapport aux normes, même mineur, peut entraîner des conséquences tragiques en cas d'incendie. Pour protéger votre vie et votre santé et celles de votre entourage, vous ne devez pas négliger les règles. GOST vous aidera à choisir la structure de porte nécessaire.
Installation de la toile
La dernière étape est l'installation d'un vantail anti-incendie. Pour le sélectionner, vous devez vous référer aux dispositions de SNiP et GOST, qui indiquent quelle classe de portes est installée dans certaines conditions. Les charnières de porte doivent assurer une ouverture totale du vantail de la porte et la largeur entre le cadre et le vantail ne doit pas dépasser 3 mm. La structure de protection incendie est équipée d'un ferme-porte.
Après avoir installé le bloc de porte, il est nécessaire de fermer les vides à l'aide de laine minérale ou de plâtre réfractaire. La garniture des coutures est fermée avec des bandes.


Installation du bloc de porte
Il est conseillé que l'installation de ces produits soit effectuée par les entreprises appropriées qui détiennent des permis et licences spéciaux. Et bien que ces portes ne diffèrent pas des structures conventionnelles dans les données externes, en cas d'incendie, elles protégeront la pièce du feu. La limite de résistance au feu vous permet d'appeler les pompiers ou d'évacuer des personnes.
Voté plus de 229 fois avec une note moyenne de 4,8
Commentaires (1)
Sergey 28/06/2017 13:42 L'article est intéressant seule la référence aux documents normatifs est de nature informative générale, il n'y a ni numéros ni noms. Et vous avez besoin d'informations sur l'épaisseur du plâtre protecteur, du mastic, etc., ou sur l'endroit où il se trouve dans quel document réglementaire.
Évaluation
Ajouter un commentaire Annuler la réponse
Recommandé à lire
Serrures, installation de porte Comment démonter la serrure d'une porte intérieure - conseils, recommandations Si la serrure commence à se coincer: la poignée ne descend pas, la languette s'enfonce, alors ...
Installation de la porte Vestibule d'entrée dans une maison privée: idées et recommandations pour la construction
Installation de porte La technologie d'installation de portes intérieures non standard par étapes L'installation de portes intérieures n'est pas très difficile, mais responsable ...
Installation des portes Comment isoler les portes de garage de l'intérieur de vos propres mains: les inconvénients et les avantages des différentes méthodes d'isolation Une voiture sans garage est comme une personne sans logement. Pensée ...
Les portes en bois ignifuges sont absentes du document GOST
Le bois est un matériau sujet à une combustion rapide. Pour l'enflammer, 300°C suffisent. Et si un incendie se déclare, la température monte à 900 ° C. Alors, est-il possible de fabriquer une porte coupe-feu à partir de ce matériau? C'est possible, mais ces blocs de porte doivent être caractérisés par un certain nombre de caractéristiques structurelles et technologiques.
Le processus de fabrication des portes en bois se compose de plusieurs étapes:
- traitement des matières premières avec des composés spéciaux qui augmentent le niveau de résistance au feu;
- assembler un bloc à partir d'un matériau traité;
- appliquer des composés polymères résistants à la chaleur sur la structure finie.
Les portes coupe-feu en bois à un vantail et les portes à deux vantaux sont soumises au même processus d'imprégnation et de revêtement. Le but principal du traitement est d'éviter la combinaison de la cellulose présente dans le bois avec l'oxygène. Cette réaction est à la base de la combustion. L'imprégnation bloque la pénétration de l'oxygène dans le bois.


Il n'y a pas de "portes coupe-feu en bois" dans le GOST. Le cadre et le panneau des portes coupe-feu en bois sont beaucoup plus puissants que ceux des structures conventionnelles. Des joints expansibles sont également utilisés, les pièces métalliques (poignées, auvents) ont une couche de protection thermique qui réduit la différence de température entre le bois et le métal en cas d'incendie.
Noter! Le concept de «portes coupe-feu en bois» est absent de GOST.





















