Exigences SNiP
Tous les travaux de construction, y compris l'installation de radiateurs de chauffage, sont effectués conformément à certaines règles et réglementations. La fiche technique de chaque appareil de chauffage contient des informations détaillées sur le type de support de batterie. Néanmoins, il ne sera pas superflu de vous familiariser avec les exigences spécifiées dans SNiP 3.05.01-85.

Voici les principales normes :
- L'emplacement du radiateur est considéré comme optimal si son point central est aussi proche que possible ou coïncide complètement avec l'axe vertical central de la fenêtre. Une déviation dans un sens ou dans l'autre n'est pas autorisée de plus de 20 mm.
- La largeur de l'appareil de chauffage doit être d'environ 50 à 75 % de la taille de la fenêtre. Cette règle n'est pas strictement contraignante et est plutôt de nature consultative. Le fait est que la fiabilité de la fixation des batteries de radiateur de chauffage ne dépend pas de leur taille - cela n'affectera que la quantité de transfert de chaleur.
- La distance entre le radiateur et le revêtement de sol doit être d'au moins 60 mm - il s'agit d'une exigence de sécurité incendie.
- Il doit y avoir un espace d'au moins 25 mm entre le radiateur de chauffage et le mur, et encore mieux - 30-50 mm.
- Il doit également y avoir un espace d'au moins 50 mm entre le rebord de la fenêtre et la batterie.
- Il est important de choisir le bon nombre de points de support, c'est-à-dire des supports muraux pour les radiateurs de chauffage. Pour un radiateur avec 6-8 sections, vous aurez besoin de deux supports supérieurs et d'un support inférieur. Pour chaque 5 à 7 sections suivantes, il sera nécessaire d'ajouter un autre support en haut et en bas.
- De la même manière, le nombre de supports au sol pour radiateurs est sélectionné. Une batterie pour 6-8 dents est installée sur deux points de support, et avec l'ajout de chacune des 5-7 sections suivantes, un support supplémentaire est installé.
- Le nombre de cellules sur le radiateur de chauffage ne doit pas être trop important. Si le système fonctionne dans des conditions de circulation naturelle de l'eau, par exemple dans une maison privée, pas plus de 12 dents consécutives ne peuvent y être installées. Si nous parlons de bâtiments à plusieurs étages dans lesquels le liquide de refroidissement circule sous une pression constante, il est permis d'installer un radiateur avec un total de 24 sections maximum.


Veuillez noter qu'afin de réduire les pertes de chaleur résultant d'un échauffement insensé de la paroi extérieure, il est recommandé de placer un matériau en feuille isolant thermique derrière le radiateur. Il redirigera les vagues de chaleur dans la pièce.
montage mural
Méthode de montage mural pour les batteries le plus courant lors de l'installation de systèmes de chauffage. Le choix des fixations est effectué en tenant compte de la masse de la batterie et du matériau dans lequel elle est fabriquée.
Fixations pour batteries en fonte
Ces clips se distinguent par leur massivité et leur résistance accrue. En règle générale, ils sont marqués "améliorés" dans les listes de prix.


Photo 1. Supports pour radiateurs de chauffage en fonte. Les produits sont très durables.
Pour montage mural de radiateurs en fonte utilisez les types de fixations suivants :
- Raccords en fonte non réglables.
- Réglable, en acier. Ils permettent de modifier la distance entre le mur et le radiateur, ce qui permet de faire des réglages en hauteur et en horizontal.
- Porte-goupilles en acier.
- Titulaires sur la barre.Il s'agit d'une bande d'acier avec deux crochets pour fixer les collecteurs supérieur et inférieur de la batterie, qui est montée verticalement au mur.
Attention! Lors de l'installation de radiateurs en fonte, il est important non seulement de choisir des fixations appropriées, mais également comptabilisation du matériau du mur. Pour la brique et le béton, en règle générale, des supports de suspension standard sont suffisants. Pour les murs en plaques de plâtre ou en bois, on utilise des fixations de sol renforcées pouvant supporter la charge principale.
Pour radiateurs en aluminium et bimétalliques
Contrairement à leurs homologues en fonte, les attaches sont plus légères et moins massives.


Pour une utilisation murale retenues des variétés suivantes:
- Équerres d'angle en acier. Selon le poids du radiateur, des modèles conventionnels ou renforcés sont utilisés. Ils possèdent deux évidements permettant de le fixer aussi bien par les collecteurs inférieurs que supérieurs.
- Porte-goupilles en acier. Ils sont divisés en modèles moulés et ronds.
- Supports muraux universels enduits de polymère. Les supports eux-mêmes sont en acier et le tampon en polymère sert à empêcher la batterie de se déplacer en raison de la dilatation thermique.
Fixations pour batteries en fonte
Les radiateurs en fonte, très populaires à l'heure actuelle, se distinguent par un poids important. Par conséquent, un support pour batterie en fonte doit être suffisamment fiable pour supporter une telle charge. En règle générale, pour les radiateurs en fonte, on utilise des broches métalliques pliées en forme de section.
La technologie d'installation dans ce cas est assez simple. Tout d'abord, un trou du diamètre requis est percé dans la brique, puis un goujon y est inséré et la goupille de fixation est vissée. S'il est nécessaire de fixer le support dans un mur en béton armé, la technologie sera légèrement différente.


Comme il est assez difficile de faire un trou profond dans une dalle en béton armé, la goupille de fixation est fixée à une petite plaque métallique. Il est fixé à la dalle en quatre points, mais à une profondeur moindre. La fiabilité d'une telle pièce jointe dans les deux versions est approximativement la même.
La base d'un radiateur en fonte est parfois une plaque de montage avec deux points d'appui. Une telle fixation est fixée au mur de telle sorte que les équerres supérieures et inférieures supportent approximativement le même poids du radiateur. En vente, vous pouvez trouver des bandes avec des supports fixés à une certaine distance, ainsi que des éléments réglables.
Assez souvent, des supports de montage au sol sont utilisés pour les batteries en fonte. Tout comme les bandes verticales, les racks sont monolithiques et réglables.


Notez qu'il existe deux façons de fixer la batterie au support. L'option standard est de monter avec un support en métal. Certains modèles utilisent une chaîne à maillons multiples flexible pour la fixation.
Il est à noter que les marquages sur les supports de radiateur en fonte indiquent qu'ils sont renforcés. Ces informations doivent être prises en compte lors de la sélection des supports de montage.
L'essentiel est de réparer correctement
Une bonne rétention de la batterie dépend de supports correctement dimensionnés et installés. Ainsi, aujourd'hui, on utilise des pinces murales et au sol qui, par leur forme et leur résistance, prennent en compte toutes les caractéristiques des équipements de chauffage. Les dimensions des supports de radiateur sont choisies en fonction de la taille des sections de chauffage.
Le matériau de construction doit être adapté aux charges qui agiront sur la fixation tout au long de sa durée de vie. Pour les radiateurs en fonte, des colliers en fonte et en acier renforcé conviennent. Pour les batteries bimétalliques et en aluminium, en plus de ce qui précède, des attaches d'angle sont également utilisées. Les radiateurs en acier nécessitent également une fixation renforcée.Comment monter correctement les supports pour radiateurs, la vidéo vous aidera:
Supports pour radiateurs en acier
Les batteries en acier sont disponibles en plusieurs configurations - elles peuvent être tubulaires ou en panneau. À cet égard, le support pour le radiateur de chauffage doit être sélectionné individuellement, en fonction du type de fixation.
Pour monter les batteries de chauffage par panneau sur le mur, des supports spéciaux sont produits qui ressemblent à des coins métalliques. Une aile du support mural pour le radiateur de chauffage est fixée au mur avec des ancrages et l'autre est équipée de crochets spéciaux pour suspendre la batterie. Sur le radiateur de type panneau lui-même, il y a des supports avec lesquels il est fixé aux crochets.


Certains modèles de radiateurs à panneaux en acier ne contiennent pas de supports de montage, ils sont donc montés sur des bandes verticales avec des clips. Étant donné que ces batteries sont légères, ce type de support est tout à fait acceptable.
Les radiateurs tubulaires en acier sont fixés d'une manière légèrement différente. En raison du faible poids de la structure, seuls 2 supports supérieurs suffisent à la fixer. Au bas du radiateur, des clips en plastique sont installés, qui butent contre le mur pour maintenir la batterie en position verticale.
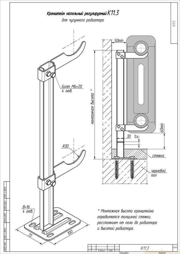
Choisir un support pour un radiateur en fonte


Support de sol réglable К 11.3.
Le support pour un radiateur en fonte doit être de résistance et de dimensions accrues. La conception de la fixation est influencée par les paramètres de l'élément chauffant lui-même. Les batteries en fonte (Konner et STI Nova) sont lourdes et massives parmi tous les types de radiateurs.
Pour fixer les appareils de chauffage en fonte, les types de pinces suivants sont utilisés:
- fonte, fonte;
- acier, 300 mm de long, goupille avec un goujon;
- acier avec une bande;
- acier avec la possibilité d'ajuster la position horizontalement, distance du mur.
Le choix de l'ancrage est également influencé par le matériau du mur de construction. Ainsi, pour un mur de briques et de béton, un support à broche convient. Les appareils jusqu'à 10 sections sont montés au mur à l'aide de deux supports en haut et un en bas. Un appareil de chauffage avec des dimensions de plus de 10 sections a besoin d'un support supplémentaire à l'aide de supports-supports au sol. Pour une installation sur des matériaux muraux souples (plaques de plâtre et bois), seules les fixations au sol conviennent. Il peut être équipé d'un dispositif de réglage de la hauteur et il peut être produit sans celui-ci.
Le support de la batterie en fonte doit être renforcé. Ceci est attesté par l'inscription correspondante sur l'emballage avec la fermeture - "renforcée".
Fixation des batteries bimétalliques et aluminium
Si nous parlons de la masse des radiateurs bimétalliques et en aluminium, alors dans ce paramètre, ils sont presque identiques. Par conséquent, le support pour radiateur bimétallique peut être utilisé avec succès pour monter une batterie en aluminium.


Une fixation de ce type ne diffère pratiquement pas d'un support pour radiateur en fonte. La seule différence est la capacité portante inférieure. En règle générale, ces pinces sont des coins universels, dont un côté est fixé au mur et l'autre contient des évidements des deux côtés. Cette configuration permet à ces attaches d'être montées dans n'importe quelle direction.
Il est à noter que les batteries bimétalliques et en aluminium ne prévoient pas initialement la possibilité d'un montage au sol. Cependant, il n'est pas possible de fixer des radiateurs sur des surfaces telles que du verre, des cloisons sèches ou des panneaux sandwich. Dans ce cas, un support de sol pour radiateurs en aluminium est utilisé, similaire aux supports pour batteries en fonte.
Comment accrocher un radiateur de chauffage sur les supports
Avant de commencer l'installation d'un radiateur de chauffage, il est recommandé de le préparer : le recouvrir de peinture (si nécessaire), installer un robinet Mayevsky, un thermostat et une prise.
Pour installer un radiateur, vous avez besoin de:
- plusieurs supports (de plus, plus le radiateur est long, plus vous aurez besoin de supports) et le nombre de chevilles requis pour leur fixation ;
- perceuse à percussion et perceuse adaptée au travail avec des matériaux muraux (béton, bois, etc.);
- niveau (niveau à bulle), ruban à mesurer, règle de mètre.


Les supports doivent être réalisés dans le même matériau que les radiateurs eux-mêmes (fonte, acier ou aluminium).
Les radiateurs en fonte sont les plus lourds de tous les appareils de chauffage. Pour eux, des supports spéciaux sont utilisés pour les radiateurs de chauffage en fonte, qui ont une marge de sécurité suffisante pour supporter un poids aussi important. Avec ces supports, vous pouvez régler la distance entre le mur et le radiateur.
Le support pour radiateurs bimétalliques doit également avoir une résistance suffisante. De tels radiateurs ne sont pas très lourds, mais si un grand nombre de sections est utilisé, ils sont capables de créer une charge importante sur le mur.
Les radiateurs en aluminium sont beaucoup plus faciles à installer car ils sont légers. Leur installation s'effectue à l'aide de supports pour radiateurs en aluminium de longueur fixe.
Lors de l'installation de radiateurs, vous devez être guidé par les règles suivantes:
- la distance entre le sol et le radiateur est de 10 à 12 cm;
- hauteur sous le bord du rebord de la fenêtre –8–10 cm;
- la distance du mur est de 2 à 5 cm.
Pour éviter que des bulles d'air ne s'accumulent dans le radiateur, celui-ci est placé sous une légère pente. De telles exigences pour l'installation sont imposées dans les cas où le liquide de refroidissement est fourni par le haut.


Les points de support et leur nombre sont déterminés en fonction du type et de la taille de la batterie. Pour monter un radiateur en fonte à six sections, deux supports en fonte en haut et un en bas suffisent. Au fur et à mesure que le nombre de sections augmente, plus de supports sont nécessaires (1 support pour 3 sections).
Les radiateurs en aluminium sont également montés sur des supports dont le nombre dépend du nombre de sections. Lors de l'installation de radiateurs avec moins de 8 sections, 3 supports suffiront. Si le nombre de sections est supérieur à 8, alors 4 à 5 parenthèses sont utilisées.
La séquence d'étapes pour l'installation des radiateurs:
- Préparation des murs (plâtre et papier peint).
- Marquage des points d'attache des équerres en tenant compte de la distance entre les tronçons (afin que les crochets passent librement entre les tronçons).
- Des trous sont percés aux endroits marqués, des goujons y sont installés et des supports sont fixés.
- Vérifiez l'emplacement de tous les crochets du support (doit être alignés).
- Accrochez les radiateurs sur les supports et créez une petite force dessus pour vous assurer qu'il est solidement fixé et n'a pas de jeu.
- La position horizontale du radiateur est vérifiée en fonction du niveau et, si nécessaire, des entretoises de l'épaisseur requise sont placées sur le côté du biais.
- Les tuyaux sont fournis et raccordés, et ils sont hermétiquement raccordés au radiateur.
Lisez le matériel sur le sujet: Types de radiateurs de chauffage
Technologie de travail
Les propriétaires de maisons privées peuvent remplacer les radiateurs à tout moment qui leur convient. Pour ce faire, il suffit d'éteindre la chaudière et de vidanger l'eau du circuit de chauffage. Mais dans l'appartement d'un immeuble à plusieurs étages, le remplacement du radiateur devra être coordonné à l'avance avec l'organisme de service public.
Si tous les travaux d'installation sont effectués en été, lorsque le chauffage est éteint, il y aura moins de difficultés. Cependant, vous devez toujours préciser si l'eau a été évacuée du système ou non.


Veuillez noter que de nombreux serruriers expérimentés conseillent de remplacer les radiateurs uniquement dans les conditions d'un chauffage central en état de marche.Ceci est fait car lorsque le liquide de refroidissement est fourni au circuit sous pression, vous pouvez immédiatement vérifier le fonctionnement du radiateur - si l'installation a été effectuée de manière incorrecte, des fuites se produiront.
L'efficacité de leur travail dépendra de la qualité de la fixation des radiateurs au sol ou au mur. Les fixations doivent être installées de manière absolument uniforme, car en cas d'inclinaison, des problèmes peuvent survenir lors de la connexion du système.
À l'aide des outils à portée de main - un crayon, un niveau, un fil à plomb et un ruban à mesurer - effectuez le marquage initial. Marquez l'axe central de la fenêtre, qui doit coïncider avec le milieu du radiateur. Une ligne horizontale est tracée à travers ce point le long duquel les supports supérieurs seront fixés.


Dans les cas où il n'y a qu'un seul élément de support inférieur, il est monté sur l'axe central. S'il y en a plusieurs, une autre ligne horizontale est tracée parallèlement à la ligne supérieure. Après le marquage, commencez à percer des trous et des supports de montage.
Distances et nombre de supports normalisés
La plupart des radiateurs de chauffage sont montés sur le mur sous l'ouverture de la fenêtre dans la pièce afin de créer un rideau thermique, car la majeure partie de la chaleur est perdue par le vitrage de la fenêtre.


Lors de l'installation d'un radiateur sous une fenêtre, il est important de respecter les distances standard suivantes :
- l'appareil est monté de manière à ce que du sol à son bord inférieur soit au moins 8-12 cm;
- il doit y avoir au moins 3 à 5 cm de la surface verticale arrière de la batterie au mur ;
- il doit y avoir une distance libre d'au moins 6 à 10 cm jusqu'au rebord de la fenêtre.
Il est tout aussi important de calculer correctement le nombre de fixations et de décider du lieu de leur installation. Le nombre total de supports requis pour monter une batterie dépend de la longueur du radiateur. Si le nombre total de sections ne dépasse pas 8 à 10 pièces, seuls deux supports en haut et un crochet en bas sont nécessaires pour monter la batterie.
Si le nombre total de sections dépasse 10, alors trois supports doivent être installés en haut et deux supports sont placés en bas. Avec l'ajout ultérieur de 5 à 7 sections aux appareils de chauffage en fonte et de 10 sections aux radiateurs en aluminium ou bimétalliques, le nombre total de fixations est augmenté de deux (un support en haut et un en bas).












