Portes coulissantes
Lors de l'installation des portes, tout d'abord, des calculs préliminaires sont effectués, au cours desquels les dimensions des éléments de la structure de la porte sont déterminées. Sans cela, un grand nombre de problèmes se poseront pendant le processus d'installation, car vous devrez ajuster le châssis monté aux paramètres de l'ouverture dans le mur. Dans certains cas, l'installation est en principe impossible.

Schéma de calcul initial
Dimensions standard de l'ouverture des portes intérieures coulissantes
Lors du processus d'installation d'une porte intérieure, une attention accrue doit être portée à la taille de la porte, à sa configuration et à un certain nombre d'autres critères. C'est avec les dimensions qu'il convient de décider à l'avance afin d'exclure la survenue de situations indésirables, par exemple la commande d'un vantail et d'un cadre de porte non standard ou d'une décoration murale supplémentaire. Il ne vaut pas la peine de mentionner que les portes intérieures et le processus de leur installation, en cas de divergence entre les dimensions du produit et les dimensions de l'ouverture dans son ensemble, coûteront plusieurs fois plus cher au propriétaire qu'il ne pourrait l'être. .
Ouverture pour portes intérieures
Que faire si les dimensions ne correspondent pas à la norme
Si les dimensions de l'ouverture de votre maison se sont avérées loin d'être idéales, il sera alors conseillé de les ramener à celles standard en installant des extensions. Cette approche est plus rapide, plus fiable et plus économique que de commander une porte sur mesure spécifiquement pour votre ouverture pour plusieurs raisons:
- Les vantaux de porte en série sont moins chers que les portes sur mesure en fonction des dimensions spéciales et des souhaits du client.
- Les portes standard sont fabriquées à l'aide d'un équipement automatisé qui garantit une grande précision des paramètres du produit.
- Les portes standard d'usine, les ferrures standard et leurs composants sont soumis à un contrôle scrupuleux à toutes les étapes de la production - du stade des matières premières à celui de la livraison des toiles finies aux entrepôts.
- Les portes standard sont disponibles dans une variété de couleurs et de designs. Le plus souvent, la variation requise par le client se trouve déjà dans l'entrepôt - la commande n'est pas attendue et vous la recevrez immédiatement dans l'entrepôt.
- Fabriquées en usine, les portes standard sont garanties par le fabricant.
Par conséquent, dans le cas d'une ouverture trop large, les murs sont "construits" à l'aide d'extensions. Dans une situation avec portes d'entrée, ils se tournent vers la maçonnerie, poutre hypothécaire. Et puis - plâtre et alignez les ouvertures "étendues".
Si le passage est trop étroit, la situation se complique: vous devez retirer les parties supplémentaires du mur. Selon le matériau, une meuleuse, des haches, des ciseaux sont utilisés. Déjà après le meulage de l'excès de matériau, les saillies inutiles sont nivelées, la surface est enduite - l'ouverture est prête pour l'installation d'une porte standard.
La hauteur du vantail et sa norme sont de 200 cm (2 m). En conséquence, la hauteur du passage pour un tel alignement est de 206 à 210 cm.Dans le cas d'une hauteur d'ouverture non standard, il existe deux types de solutions:
- Moins de 206 cm Le vantail de porte standard lui-même est scié à la hauteur requise.
- Plus de 210 cm L'ouverture est réduite à l'aide de bois supplémentaire, maçonnerie.
En ce qui concerne la commande de structures de porte de hauteurs non standard, il s'agit d'une option plutôt rare que tous les fabricants n'offrent pas. Même s'il existe une telle opportunité, soyez prêt au fait que l'achat coûtera 30 à 50% de plus que l'achat standard.
Dimensions standard des portes intérieures
Il est important de noter qu'aujourd'hui, les fabricants de portes intérieures produisent une vaste gamme de produits. La plupart des produits ont des tailles standard:
- 200 cm - hauteur;
- 60, 70 ou 80 cm - largeur.
Mais certains fabricants produisent des structures de porte dans lesquelles la largeur est de 55 cm, la hauteur est de 190 cm.En plus des dimensions du vantail de porte, les paramètres de la boîte varient également: la largeur peut être de 1,5 à 4,5 cm.
Ces informations sont extrêmement importantes pour déterminer la taille de l'ouverture de la structure intérieure. Si ces valeurs sont négligées, alors une situation peut bien apparaître lorsque les portes intérieures ne rentrent pas dans la porte existante.
Cela entraînera inévitablement un gaspillage de fonds supplémentaires en raison de son élargissement. De plus, la présence d'un câble électrique et d'autres communications, un cadre métallique dans des clôtures en plaques de plâtre auront également un effet néfaste sur l'élargissement de l'ouverture d'une porte intérieure.
La situation se révélera être une impasse lorsque la porte dépassera les dimensions standard du vantail de la porte. Réduire la porte entraînera également la nécessité de contacter des entreprises spécialisées et des coûts supplémentaires. Pour calculer correctement la taille des ouvertures de porte requises, vous devrez connaître un certain nombre de paramètres:
- la hauteur du vantail proposé et sa largeur;
- épaisseur avec la largeur du cadre de porte;
- largeur de la bande de plat;
- la présence du seuil et ses dimensions.
Outre la largeur et la hauteur, l'épaisseur caractérise également les portes. Dans une disposition typique d'un appartement, l'épaisseur pour les dimensions standard de l'ouverture est prévue pour 7,5 cm.Conformément à ce fait, les fabricants de portes intérieures produisent des boîtes pour l'installation de la même épaisseur.
Cela doit être pris en compte lors de l'installation de la structure. Sinon, on peut parler d'installer un extenseur pour la boîte ou de la scier en même temps. Si vous ne fournissez pas toutes les données, l'installation de plateaux à l'avenir peut poser des problèmes et ne pas répondre aux exigences d'attractivité et d'apparence de la structure de la porte.
Il est recommandé de mesurer l'épaisseur à trois endroits pour déterminer les paramètres du mur. Avec différents indicateurs sur tout le périmètre de l'ouverture, vous devrez commander des draps intérieurs atypiques. Lorsque l'épaisseur en trois points est différente, vous devrez couper le cadre de la porte ou installer des extensions. L'épaisseur inégale témoigne de la courbure des murs. Sans prendre ces mesures, vous ne pouvez pas vous attendre à une installation de plateaux de haute qualité.
Astuces utiles
- Pour obtenir une précision de mesure élevée, ils sont fabriqués à différentes hauteurs de niche. En cas de doute sur l'exactitude des calculs, le mesureur doit être appelé.
- Il se peut que le vantail de la porte soit plus grand que la taille autorisée et qu'il doive être coupé. Cette procédure ne convient pas à tous les vantaux de porte. Dans la plupart des cas, le faire vous-même n'est pas pratique. Ce travail nécessite un équipement professionnel.
- Pour installer des structures qui ne nécessitent pas de boîte et de plateaux (compartiment, rotatif, pendule), un alignement strict de l'espace est requis sur tout le périmètre.
- Lors de l'installation de blocs intérieurs et d'entrée dans un nouveau bâtiment, l'écart d'installation est un peu plus grand avec l'attente d'un rétrécissement.
L'aspect général de la future porte dépend en grande partie du respect de règles simples.
- L'ouverture ne doit pas être adjacente à un mur adjacent. La distance minimale par rapport à celui-ci est de 100 mm.
- Elle doit toujours être légèrement plus large: la règle des 100 mm pour la taille de la boîte se justifie. Réduire une ouverture est toujours plus facile que de l'élargir.
- Les portes de l'ouverture sont installées en dernier, après l'achèvement de tous les travaux de finition.
- Les murs doivent être absolument uniformes: cela doit être vérifié au niveau des ouvertures. C'est le seul moyen d'éviter les vides après l'installation de la platine.
- Si le papier peint est collé, il doit chevaucher l'ouverture de 10 à 20 mm.
- Épaisseur de la bande - jusqu'à 8 mm. La distance entre le revêtement de sol et le mur doit être inférieure à cette valeur.
Les règles sont simples, mais elles éviteront de nombreux problèmes lors de l'installation de la porte.
Portes coulissantes: placement correct
Les portes coulissantes confortables remplacent aujourd'hui les portes battantes standard. Ils s'écartent souvent le long du mur. Les produits coulissants peuvent être fabriqués dans différents matériaux: bois massif, panneaux MDF collés, panneaux de particules, profilés en aluminium avec remplissage translucide. Les structures peuvent également être de type léger, par exemple en tissu ou en papier de riz, qui sont tirées sur un cadre ou un cadre.
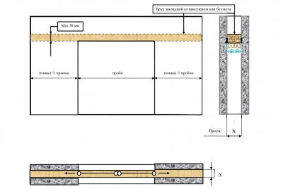
Dans le cas de l'installation de vantaux de porte coulissante, il sera nécessaire de prévoir un espace libre près de l'ouverture, dont la taille doit correspondre à la largeur de la porte coulissante. Sur le mur où le dispositif de guidage sera placé, il ne doit y avoir aucun obstacle sous forme de niches, de tuyaux, de saillies, de conduits de ventilation, etc.
Si l'option de masquage de la structure coulissante dans le mur est plus attrayante, ce mur doit être installé pendant la période de réparation et un guide ou une cassette spéciale contenant la porte doit y être placé. S'il n'est pas possible de construire une nouvelle clôture, il est plus conseillé de placer un mécanisme coulissant à côté du mur ou de fixer un guide et de le sceller avec des feuilles de cloison sèche.
Solutions de conception
Les portes coulissantes sont utilisées dans les styles loft et campagnard. Ils sont légers et remplissent les fonctions qui leur sont assignées - zonage, création de confort. L'insonorisation de ces groupes d'entrée est pire que celle des modèles traditionnels, mais l'espace n'est pas occupé par des groupes beaucoup moins articulés.
Lors de la décoration de l'intérieur, de telles structures remplacent les cloisons séparant la cuisine et la salle à manger. Cela permet de diviser l'espace libre en zones. Les modèles conviennent pour aménager l'entrée du dressing. Utilisé dans l'aménagement de la chambre.
Les matériaux et la conception de la structure dépendent entièrement des goûts des utilisateurs et de leurs préférences. Les modèles sont adaptés au style de la maison. Lors du choix d'un modèle, vous devez comprendre à quoi il ressemblera dans l'intérieur prévu. Si les dimensions du passage et de la porte ne correspondent pas, vous devrez modifier les dimensions du passage ou choisir un autre modèle de structure de passage.
Systèmes de portes coulissantes
Tout produit peut être acheté prêt à l'emploi, ou vous pouvez le commander selon des tailles individuelles en fonction de vos propres goûts. Quelle option est la meilleure pour une situation d'installation coulissante? Veuillez noter que la toile en position ouverte doit aller contre le mur, sinon les fissures deviendront visibles.
Les portes du produit coulissant fini ont des dimensions standard: 205 cm - hauteur et 60-100 cm - largeur. L'épaisseur de ces portes n'excède pas dans la plupart des cas 4 cm.Lors de l'auto-érection d'un mur pour ce type de porte, il est tout à fait possible de "adapter" les dimensions à la toile existante. Il existe plusieurs systèmes de portes coulissantes:
- Système de compartiments. Lors de l'installation d'un système coulissant, dans lequel les châssis glissent le long de la surface du mur lors de l'ouverture, les toiles doivent être sélectionnées légèrement plus grandes que les dimensions de l'ouverture. Par exemple, avec une largeur d'ouverture de 68 cm, on choisit une toile d'une largeur de 70 cm. Il y a des exigences correspondantes pour le profil qui compose le guide de diapositives: sa longueur doit être deux fois la largeur de la toile.
- Système d'étui à crayons. Lors de l'installation du châssis (afin qu'il s'insère dans une cassette spéciale), une structure est sélectionnée dans laquelle les châssis à l'état étendu dépasseront légèrement de la niche. Dans ce cas, les dimensions des volets sont rendues égales à l'ouverture ou ne dépassant sa largeur que de quelques centimètres. Avec une largeur d'entrée de 70 cm, la largeur de l'étui à crayons est égale à 60 cm, mais le résultat dépend uniquement des préférences des propriétaires. Par exemple, il est possible de monter un produit de sorte que toute la masse de la toile entre dans la cassette.
- Systèmes de châssis pliants.Les portes intérieures qui se replient lors de l'ouverture sont des structures coulissantes de dimensions variables, qui sont influencées par le nombre de panneaux de vantaux fixés. Un segment séparé mesure 10 à 12 cm de large. Une ouverture standard peut accueillir des châssis, qui comprennent 6 à 7 sections de ce type.
Avec des dimensions non standard de la pièce et de la porte, ainsi qu'en l'absence de confiance dans l'exactitude du choix du produit fini, il est préférable de commander des portes auprès de spécialistes qui effectueront des mesures complètes et fabriqueront exactement le produit qui s'adaptera idéalement à tous les paramètres.
Comment installer des portes avec un mécanisme coulissant dans le mur de vos propres mains
Tout d'abord, déterminez la largeur de la porte. Le paramètre détermine les caractéristiques de l'ensemble de la structure. Le type de mur est également soumis à considération. Les recommandations des spécialistes sont étudiées séparément. Le dessin suppose un élément tel que l'isolation phonique. Pour le renforcement, des barres spéciales sont utilisées si le cadre est d'un profil mince et peu coûteux. Et lorsque l'épaisseur est jusqu'à 0,5 mm. Sinon, le mouvement des toiles entraîne des vibrations, puis l'élément de guidage tombe simplement hors de la structure. Le produit ne fonctionnera pas correctement.
Pendant le processus d'installation, la porte est temporairement fixée avec une entretoise-cravate. Cela aide à éviter l'inclinaison, la violation de la position verticale des jambages. Un profilé ou une barre en acier est utilisé pour fabriquer indépendamment un tel élément. La largeur de l'étui à crayons doit être déterminée aussi précisément que possible, sinon la structure de la porte ne peut pas être installée.


Pendant le processus d'installation, la porte est temporairement fixée avec une entretoise.
Il existe d'autres astuces qui accompagnent le mécanisme rétractable et son installation:
- Si la porte est trop étroite, le cadre et la toile s'accrochent l'un à l'autre;
- De grands espaces mènent à une apparence ruinée;
- Les propriétés d'isolation thermique se détériorent également dans de telles circonstances.
Il sera difficile de fermer la toile si elle passe complètement derrière la niche à l'état ouvert. Des appareils supplémentaires sont indispensables.
Il est important de déterminer la position extrême. La surface du sol est idéalement traitée, une préparation préalable est nécessaire. Les nuances technologiques sont prises en compte avant de gainer l'étui à crayons. Les cloisons sèches l'exigent également.


Il sera difficile de fermer la toile si elle passe complètement derrière la niche à l'état ouvert.
Étapes de l'installation d'une porte coulissante dans une trousse à crayons
L'équipement et les compétences sont nécessaires à toutes les étapes de l'installation de la structure. Tout d'abord, il est recommandé d'étudier le manuel et de préparer les outils, puis de passer à l'action.
L'instruction n'est pas compliquée:
- Il est recommandé de commencer par les dessins transférés sur les surfaces murales. Ensuite, la probabilité d'erreurs diminue. Lors du marquage, il est plus facile de décider dans quelles zones le démontage est effectué.
- Comptabilité séparée - pour les dimensions de l'étui à crayons. Les volets deviendront le point de référence pour les mesures. La longueur des rails qui spécifiait la direction est déterminée par une simple multiplication de deux et la longueur à l'une des vantaux. Nous devons tenir compte de la même manière des cavaliers, des guides, des espaces du bas et du haut. L'étui à crayons diffère de 2 cm de plus par rapport à la ceinture. La profondeur des cassettes incluses dans le kit de salle peut atteindre 8 cm.
- L'achèvement des travaux implique l'indication de toutes les dimensions en détail dans les dessins. Les faux murs ne peuvent pas être réalisés sans profilés. Pour les surfaces murales porteuses, les racks sont dans la même rangée. Lors de la collecte de faux murs, ils placent un mur non distant, une niche est formée de deux rangées de crémaillères. La longueur du rack est la même que la distance entre les sols et les murs. C'est là que les profils sont fixés.
- Le cavalier est placé à l'intérieur de la niche. La prochaine étape consiste à réparer le guide. Le même nombre d'éléments est monté pour le sol. Il est souhaitable qu'il y ait un élément en caoutchouc sous le rail qui puisse amortir le bruit pendant le fonctionnement. La conception sera sûre.
Les détails de l'assemblage dépendent du composant principal sélectionné. Parfois, les rouleaux ne se trouvent qu'à l'extrémité supérieure et un couteau de guidage est fixé par le bas. Ou les deux côtés sont équipés de tels composants. Une fois le travail terminé, un espace d'au moins 5 mm doit être obtenu pour que le mécanisme de recul fonctionne correctement. Après la verrière, essayez le mécanisme de la porte, comment il fonctionne. Les butées servent d'accent au châssis roulant. Le cadre de la niche peut être gainé de plaques de plâtre lorsque le travail est terminé. D'autres étapes sont liées à la finition décorative.


Une fois le travail terminé, un espace d'au moins 5 mm doit être obtenu pour que le mécanisme de recul fonctionne correctement.
La technologie de montage des portes à cassette ne semble compliquée qu'à première vue. Mais ne prenez pas cette question trop simplement, ce comportement ne mènera à rien de bon. Les conceptions de ces portes ne laisseront pas le bruit et les odeurs pénétrer dans la pièce. Les fermetures ajoutent du confort pendant le fonctionnement. Cette solution est particulièrement pratique pour les résidents d'appartements urbains.
Nous calculons la taille de l'ouverture pour la porte 800x2000
Si vous décidez d'acheter et d'installer une porte intérieure, vous devez d'abord effectuer les mesures nécessaires, puis acheter un vantail de porte avec un cadre. Sur le marché, les portes de dimensions standard et celles de dimensions inhabituelles sont en vente. C'est pourquoi vous devez étudier toutes les nuances afin de mesurer correctement l'ouverture de la porte 800x2000.


Portes avec un cadre caché


Une solution très intéressante est les portes avec un cadre caché. Cette option présente des avantages par rapport aux portes avec plateaux:
- Une boîte cachée rend la porte discrète pour les gens.
- En raison de l'absence de plateaux, quelques centimètres d'espace précieux sont économisés ou il devient possible d'installer la porte dans un endroit peu pratique.
- L'absence de boîte visible augmente l'ouverture de la lumière.
- Lors de la décoration de deux pièces dans un style différent l'une de l'autre, une porte telle qu'un caméléon s'adapte à l'intérieur dissemblable de différentes pièces.
- La gamme de tailles des portes cachées offre aux propriétaires un large choix de produits non standard, grâce auxquels chaque ouverture de la maison est facilement conçue.
Mais cette conception a un certain nombre de qualités négatives:
- La porte ne sera cachée de la vue que d'un côté, de l'autre, le vantail de la porte sera approfondi dans le mur.
- Il est nécessaire de prévoir l'installation d'une porte encastrée dans les premiers stades de la construction.
- L'installation ne sera pas bon marché, car elle nécessitera l'intervention de spécialistes qualifiés.
Avant d'acheter une porte, les propriétaires doivent mesurer avec précision toutes les ouvertures de la maison, car vous ne pouvez pas venir au magasin et acheter une version standard - elles sont trop différentes les unes des autres. La variété des modèles vous permettra de choisir le modèle parfait pour chaque maison.
Dimensions de l'ouverture pour le vantail de porte 200 par 80 cm
Le calcul de la taille de l'ouverture est assez simple. Le plus souvent, les portes en bois massif, en MDF, en panneaux de particules et en panneaux de fibres ont une largeur de 60 à 70 à 80 centimètres (à condition qu'elles soient à un vantail).


Dans les bâtiments soviétiques à plusieurs étages, construits à l'aide de la technologie des panneaux, la largeur des allées est de 80 à 100 centimètres. Il s'agit d'une valeur standard due aux GOST. Cette approche a de nombreux avantages. Ainsi, les portes de dimensions standard ont:
- Une large gamme de modèles qui vous permet d'acheter un produit pour tous les goûts;
- Permettre une installation facile;
- Ils ont un prix bas.
Lorsque la question de l'achat d'une porte se pose, le propriétaire de la maison est certainement confronté à la tâche de mesurer les dimensions de l'ouverture. Afin de ne pas faire d'erreur et de ne pas compliquer le processus d'installation avec des travaux supplémentaires, il est nécessaire de calculer correctement les dimensions, en tenant compte des lacunes technologiques et des dimensions du vantail de porte avec le cadre.
Différences entre les types de portes
Le propriétaire de la maison doit tenir compte du fait que les portes sont classées en plusieurs types en fonction des matériaux et des valeurs fonctionnelles.
Les portes sont des portes d'entrée, elles ont une résistance accrue aux influences extérieures et les portes intérieures sont utilisées pour séparer les pièces. Dans tous les cas, la porte est insérée dans l'ouverture à l'aide d'une boîte.
Les deux types, à leur tour, diffèrent de plusieurs manières, la division selon laquelle permet d'éviter des coûts inutiles pour l'acquisition d'un nouvel échantillon, son installation et son installation.
- Par emplacement dans le bâtiment: externe et interne.
- En guise d'ouverture: balançoire, coulissante (compartiments à deux vantaux, par exemple), rabattable ("accordéon"), rotative.
- Par le nombre de toiles: simple étage, double étage, un étage et demi.
- Par le nombre de soupapes: simple vantail, double vantail.
- En remplissant le vantail de la porte: sourd et vitré.
Méthode de calcul
Lors du calcul des dimensions du passage pour une porte intérieure, tenez compte des éléments suivants:
- La largeur du cadre de la porte;
- Son épaisseur;
- La présence ou l'absence de seuils;
- Y a-t-il des éléments décoratifs;
- Dimensions (hauteur et largeur) du vantail de la porte.
Il vaut mieux calculer l'ouverture d'une porte de 80 sur 200 cm sans tenir compte du seuil. Par exemple, un vantail de porte a des dimensions de 200 × 80, l'épaisseur de son cadre est de 25 millimètres. Tout d'abord, vous devez ajouter l'épaisseur de la boîte et la largeur du vantail de la porte. La valeur de 25 mm doit être comptée deux fois, car le cadre de porte est monté des deux côtés de l'ouverture. À la quantité résultante, il est nécessaire d'ajouter 20 à 40 millimètres, qui comblent l'écart technologique requis lors de l'installation. En conséquence, vous obtiendrez 870-890 millimètres - c'est l'ouverture nécessaire pour les portes de 80 centimètres de large.
De plus, nous vous recommandons de faire attention au matériau de fabrication de la porte intérieure. S'il est en bois massif, sa boîte sera d'environ 2 centimètres plus épaisse.
Le seuil est important lors du calcul de la hauteur de l'ouverture. L'ordre est le même que lors du calcul de la largeur du passage. L'épaisseur du dormant est prise en compte et, s'il y a un seuil, sa hauteur est ajoutée.


Avant de procéder aux travaux d'installation, il est nécessaire d'étudier attentivement l'état des murs et, si nécessaire, d'éliminer toutes les lacunes. Les portes ne doivent pas être installées sur une base non fiable (structures en plaques de plâtre, pièces en bois sur lesquelles du ciment est appliqué). Si une porte de compartiment est en cours d'installation, sa largeur doit être supérieure à la largeur de l'ouverture.
Dimensions de la boîte
Le cadre de la porte est un rectangle qui encadre le vantail de la porte et tient les charnières pour l'accrocher. Les dimensions désignent généralement le contour extérieur de la boîte (hauteur, largeur, épaisseur), car cela dépend si la boîte s'insère dans l'ouverture. Si vous achetez ou commandez une boîte séparément, vous devrez également prendre en compte la profondeur du quartier (rainure, siège pour l'ouvrant), qui correspond généralement à l'épaisseur du vantail. Les dimensions standard du cadre de porte recommandées par le GOST actuel sont indiquées dans le tableau.


Pour différents types de structure en caisson, GOST recommande différentes dimensions de la structure
Étant donné que les documents réglementaires ne prennent pas en compte toute la diversité du marché moderne, tout le monde ne pourra pas y trouver des recommandations pour son cas. Si possible, vérifiez les dimensions standard sur le site Web du fabricant et n'hésitez pas à mesurer les portes et les cadres que vous aimez directement dans le magasin. Parfois, pour économiser de l'argent, vous pouvez commander une boîte à un menuisier ou la fabriquer vous-même.
Les cadres de porte faits maison sont une histoire compliquée à part entière. Pour la plupart des hommes avec des bras droits et un routeur fonctionnel, il semble qu'ils seront en mesure d'assembler un rectangle à partir de quatre morceaux de bois à coup sûr. L'ego de mon homme, en tout cas, le pensait. Mais en raison du manque de compétences en menuiserie, les coins ont été collectés pour le joint le plus simple, le soi-disant quartier. En position couchée, la boîte finie, alignée sous un carré, semblait le comble de la perfection, du moins exactement à son créateur.Mais en essayant de le soulever et de le déplacer, une secousse minimale a été trouvée. Une tentative d'installation de la boîte dans l'ouverture a abouti à une heure et demie de danse avec un tambourin, un carré, un niveau et des coins en bois de toutes les tailles possibles, rabotés juste là sur le genou. Enfin, la boîte s'est stabilisée dans les coins et a cessé de tomber dans n'importe quel plan. Il semblerait que la victoire soit la nôtre. Mais au stade de la suspension de la porte, il s'est avéré que la toile ne rentre pas dans la boîte: Meshal mesure littéralement un millimètre de hauteur et un minuscule «ventre» au milieu de la barre verticale gauche. Sauvé uniquement par le fait que la boîte était en bois - cela valait un peu de travail avec un moulin et la porte se dressait comme un indigène. Si nous travaillions avec des matériaux stratifiés, ce problème n'a certainement pas été résolu. La morale de l'histoire a abouti à la nouvelle loi de Murphy: "Si vous n'êtes pas charpentier, soyez prêt à vous tourner lorsque vous fabriquez des produits en bois."


La différence d'épaisseur de la boîte et de l'add-on est normale.
Taille des portes standard
Afin d'effectuer facilement des calculs, vous pouvez utiliser un tableau spécial des dimensions typiques des ouvertures pour les portes intérieures:
| Taille d'ouverture | Taille de la porte | ||
| Hauteur, mm | Largeur, mm | Hauteur, mm | Largeur, mm |
| 2055-2060 | 700-710 | 2000 | 600 |
| 2055-2060 | 800-810 | 2000 | 700 |
| 2055-2060 | 900-910 | 2000 | 800 |
| 2055-2060 | 1000-1100 | 2000 | 900 |
| 2055-2060 | 1330-1340 | 2000 | 1200 (porte à deux vantaux) |
| 2055-2060 | 1530-1540 | 2000 | 1400 (porte à deux vantaux) |
Le tableau montre les dimensions des portes que l'on trouve le plus souvent en vente dans les quincailleries et sur les marchés. Cependant, il existe également des modèles non standard qui nécessitent des calculs supplémentaires. En cas de doute, vous devez contacter les professionnels qui vous aideront à effectuer les calculs sans erreur.
Modèles standard
Le processus d'installation des groupes de portes standard dépend de la disposition de l'appartement. Dans de tels cas, il est recommandé d'acheter un modèle spécifique parmi l'assortiment proposé par le magasin. Les paramètres standard sont respectivement 600/700 / 800x2000 / 2100 mm de largeur et de hauteur. Selon GOST, les toiles d'une largeur de 600 à 800 mm et d'une hauteur de 2000 à 2100 mm conviennent à une ouverture de 640 à 840 mm de largeur et de 1976 à 2076 mm de hauteur.
Pour les allées d'une largeur de 1145 à 1745 mm, il est nécessaire de sélectionner une option avec deux segments ou plus. La largeur des volets coulissants est de 110 à 170 cm et chaque volet individuellement est de 60 à 90 cm Si les dimensions de l'ouverture sont beaucoup plus grandes que celles indiquées, une conception composée d'un plus grand nombre de volets est utilisée. Cependant, ces modèles d'intérieur sont fabriqués sur commande.
Déterminez la taille
La taille de la maison dépendra de l'âge de l'enfant. Une maison en bois pour enfants peut être de petite taille, mais n'oubliez pas que l'enfant grandit et que dans quelques années, la structure devra être démantelée si elle a maintenant des paramètres de 1,5X2.


Voulez-vous construire de vos propres mains une maison plus durable pour votre fille ou votre fils? Ensuite, vous devrez créer des structures d'une hauteur d'au moins deux mètres. Plus le toit. La hauteur totale du contreplaqué sera de 2,5 mètres. Ceci est pour la partie avant. Pour les murs latéraux, des feuilles d'une hauteur de 2 mètres conviennent.


Dimensions non standard des groupes d'entrée
Il y a des moments où vous devez mettre des portes avec des paramètres non standard de hauteur et de largeur. À cette fin, les fabricants établissent une structure pour certains paramètres de l'ouverture. Dans le processus de développement, non seulement la hauteur et la largeur du produit sont prises en compte, mais également sa conception, qui s'intégrerait dans l'ensemble de l'intérieur. Le projet peut être rédigé par un designer expérimenté ou présenté par le client lui-même, conformément à sa vision du résultat.
Dans la plupart des cas, les portes intérieures sur mesure sont fabriquées à la main, surtout si les portes coulissantes doivent suivre la forme d'un arc. Dans le processus de fabrication de telles structures, il est nécessaire de passer plus de temps que lors de la création de produits standard aux dimensions définies par GOST.
Ces options peuvent être utilisées non seulement comme groupes d'entrée dans la pièce, mais également comme:
- clôture de vestiaire,
- cloison au milieu de la pièce,
- niche de portes d'armoire.
Les portes sont installées lors de la restauration des anciens locaux. Auparavant, lors de la construction de maisons, ils ne respectaient pas des normes spécifiques, par conséquent, chaque maison pouvait avoir ses propres dimensions. Dans le processus de création, des facteurs tels que la finition de surface et la couleur sont également pris en compte, car des composants parfaitement assortis peuvent parfaitement compléter l'intérieur de la pièce.
Que devez-vous considérer d'autre?
Il est temps de mettre en place, maintenant nous éliminons l'espace entre le déflecteur et le rouleau inférieur. Il y a un contrecoup entre ces éléments. Pour régler cette zone, placez la lame d'un tournevis à tête plate à l'extrémité de la plaque de roue (en face de la fente elliptique).


À l'aide d'un marteau, nous faisons tourner le boîtier du rouleau autour du trou central. En tapotant doucement avec l'outil, supprimez l'espace. Retirez à nouveau la cloison et serrez complètement les vis autotaraudeuses pour fixer fermement la roue inférieure. Nous installons la structure en place.
Pour plus de détails sur les instructions d'assemblage, regardez la vidéo suivante.
Vous savez maintenant comment assembler non seulement les portes de compartiment, mais aussi les portes intérieures coulissantes de vos propres mains, et vous pouvez facilement le faire à la maison!



















