On pense que les dimensions de la porte de la salle de douche ne sont pas quelque chose d'important du point de vue de la disposition de la pièce. Cependant, la salle de bain est une pièce aux conditions de fonctionnement difficiles. Une humidité élevée, une condensation, de la vapeur, des chutes de température et d'autres facteurs négatifs n'ont pas le meilleur effet sur les matériaux de finition. Le cadre de la porte est également exposé à cet effet.

De plus, il protège le reste des locaux de la propagation de l'humidité, des micro-organismes et autres. Les dimensions de la porte d'entrée affectent directement la qualité de l'exécution de ses fonctions. Par conséquent, il est nécessaire de sélectionner correctement le chevauchement intérieur pour assurer des soins appropriés à domicile. Cependant, dans ce cas, il existe un assez grand nombre de pièges et de nuances.
Naturellement, lors du choix de la taille du cadre de porte, tous, sans exception, doivent être pris en compte. En attirant un spécialiste possédant l'expérience nécessaire, vous pouvez éviter les problèmes qui se sont posés, mais que faire lorsque vous devez tout faire vous-même? En principe, le choix de la porte d'entrée de la salle de bain est une question assez simple. Pour commencer, vous devez trouver toutes les informations nécessaires sur l'assortiment, ainsi que la méthode de sélection du chevauchement intérieur des tailles standard ou non standard.
Taille de la porte de bain
Les paramètres des évidements de porte dans les appartements neufs et anciens peuvent différer. Par conséquent, tout d'abord, vous devez prendre en compte l'âge de l'espace de vie. Dans les appartements de plus de vingt ans, la taille était standard et faisait 2 mètres de haut. La largeur de l'ouverture de la porte est de 600 millimètres.


Tailles de porte de bain existantes
La largeur des portes installées dans les appartements modernes est de 700 millimètres. La différence de largeur est due au fait que les options de conception de la salle de bain ont changé. Par conséquent, il est impossible d'amener de gros et gros équipements et articles pour décorer l'intérieur de la salle de bain dans une pièce avec une largeur d'ouverture mal calculée. C'est pourquoi nous avons élargi la taille de la structure. Quel que soit le matériau choisi pour la porte, il convient de prendre en compte les dimensions du vantail de la porte. Les portes des dimensions suivantes sont achetées sur le marché de la construction:
- 40 centimètres de large;
- 60 centimètres;
- 70 centimètres;
- 80 centimètres;
- 90 centimètres;
- 1 mètre.
Ces tailles conviennent à l'installation et à la vie confortable de tous les membres de la famille. En règle générale, la hauteur de l'ouverture dans les structures préparées est exactement de 2 mètres. Mais vous pouvez jouer avec la largeur, en la faisant varier au besoin selon vos préférences.


Dimensions des portes sur le plan de l'appartement
Options non standard
Pour certains modèles de blocs de porte, les dimensions du vantail ne correspondent pas à la norme, ce qui peut ne pas être indiqué dans la documentation. Par exemple, la spécification dit «porte 600x2000 mm», alors que la largeur réelle est de 605 mm ou plus. La différence est due au fait que la feuille est gainée de placage à l'extrémité. Par conséquent, lorsque vous vous rendez au magasin, vous devez emporter un ruban à mesurer afin de mesurer les dimensions réelles du bloc de porte et de comprendre s'il entrera dans l'ouverture.
L'ouverture elle-même peut également être non standard. En cas de divergence, ils agissent de deux manières:
- Ajustez l'ouverture. Habituellement, il doit être élargi. Lors de l'installation d'une porte accordéon ou d'une cassette coulissante au lieu d'un bloc pivotant, cela ne peut pas être fait sans elle. Le mur est coupé avec une meuleuse armée d'un disque diamant.Dans le processus, l'assistant verse de l'eau froide sur le disque. L'opération est poussiéreuse, il est nécessaire de protéger les voies respiratoires avec un respirateur, des meubles et de l'équipement - avec du polyéthylène.
- Personnalisez la porte... La barre transversale supérieure de la boîte est coupée avec n'importe quel outil pratique; avec la toile, la situation est plus compliquée. Une coupe parfaitement droite est nécessaire, donc une scie à main ou une scie sauteuse ne fonctionnera pas. Il est préférable d'effectuer cette opération sur une scie circulaire stationnaire. S'il n'y a pas d'accès à cet outil, l'excédent de matière est progressivement éliminé avec un plan.


Portes de salle de bain 200 x 60 cm
Le réglage n'est pas possible pour deux types de portes en bois :
- creux;
- en MDF.
La coupe de telles toiles permet à l'humidité d'accéder à l'intérieur du produit, ce qui entraînera son gonflement. Le "creux" ne peut être découpé qu'à la condition qu'il ait un cadre en forme de cadre fait de barres. Dans ce cas, après élimination de l'excès de matière, la cavité du produit restera étanche à l'air.
La correction des dimensions des portes en verre et en métal-plastique est exclue. Par conséquent, les fabricants fabriquent souvent de tels produits sur commande, après avoir préalablement demandé à leur employé de mesurer l'ouverture.
Quelle doit être la taille de la porte des toilettes
Les portes de la salle de bain, des toilettes, des dimensions, qui ne diffèrent pratiquement pas, doivent être sélectionnées correctement. En règle générale, pour l'harmonie, une structure du même métrage est installée dans les toilettes et dans la salle de bain.


Schéma avec dimensions de la porte des toilettes
C'est ainsi que les entrées des locaux s'intégreront dans l'espace. Cependant, il y a des moments où la porte des toilettes est plus petite ou plus grande. Tout dépend de la disposition prévue des locaux. La hauteur de la porte des toilettes peut aller de 195 centimètres à 210 centimètres. Les largeurs de porte varient généralement de 400 à 1000 centimètres. Par conséquent, choisir une structure pour une toilette est aussi simple que de choisir un design d'intérieur pour un appartement dans son ensemble.
Erreurs fréquentes
Erreurs typiques lors du calcul de la taille du vantail de porte:
- Installation d'une porte scellée dans la salle de bain. Ne laissez pas d'espace de 1 cm entre la toile et le revêtement de sol pour assurer une ventilation naturelle.
- Le calcul est effectué sans tenir compte des dégagements nécessaires pour l'installation et l'ouverture. N'oubliez pas la nécessité de laisser 3 mm entre le vantail et le cadre pour que la porte puisse s'ouvrir librement.
- Détermination de la taille de l'ouverture en un point. L'arche de la porte peut être inégale.
- Les calculs ne prennent pas en compte l'épaisseur de la couche de plâtre.
- La porte installée s'ouvre, bloquant le passage dans le couloir ou touchant l'équipement. Avant l'installation, vous devez considérer dans quelle direction il s'ouvrira.
Lors de la mesure, des mesures doivent être prises en plusieurs points; il est impératif de laisser un espace entre la toile et le sol.
Quelques exemples de calculs de taille de porte standard
Lors du choix d'une structure de porte standard, tenez compte de l'épaisseur des murs, ainsi que de la hauteur et de la largeur du mobilier. Vous trouverez ci-dessous plusieurs options de conceptions standard que vous pouvez acheter dans les quincailleries:
| Largeur et hauteur des vantaux en centimètres | Largeur de la structure de la porte en centimètres | Hauteur du cadre de porte en centimètres |
| 55 à 190 | 59-65 | 195-200 |
| 60 à 190 | 64-70 | 195-200 |
| 60 à 200 | 64-70 | 205-210 |
Il y a toujours une issue
La situation la plus difficile est celle des propriétaires de certains appartements typiques de construction ancienne. Qui, pour trouver une nouvelle porte, doivent se concentrer sur les paramètres de l'ancienne toile. Et cela signifie que ce ne sont pas les caractéristiques de conception ou la palette de couleurs qui seront le facteur déterminant ici, mais uniquement les dimensions (550 mm de large et 1900 mm de haut).
Lorsque l'ancien kit a déjà été démonté et qu'il n'est pas possible de calculer ses dimensions, lors du choix d'un bloc de porte, il faut partir des dimensions de l'ouverture existante. De plus, de sa largeur, il faut soustraire au moins 70 mm et de la hauteur (si le seuil n'est pas prévu) environ 50 mm.
Très souvent, même un réaménagement mineur de l'ancien parc de logements entraîne des réparations majeures. Parce que vous devez abandonner la mezzanine et renforcer en plus la nouvelle ouverture. Mais le désir de sortir du cadre limité conduira certainement au fait que plus tard, si vous devez installer un kit de porte standard, vous n'aurez pas à effectuer une réparation à part entière. Et les options de portes 600 x 2000 disponibles aujourd'hui ne ressemblent à rien d'autre.
[s'effondrer]
Mesure des paramètres de l'ouverture: recommandations de mesure
Naturellement, avant d'aller magasiner pour une structure de porte, vous devez faire des calculs entre le plafond et le cadre, la hauteur de la largeur, mesurer la largeur même de l'ouverture et la hauteur de la structure. Paramètres de mesure de base:
- Largeur;
- Hauteur.
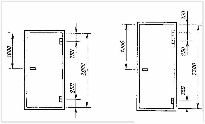
Largeur
Les calculs sont effectués au stade de la planification des réparations. Tout d'abord, lors de la mesure, vous devez prendre en compte la taille de l'espace entre la porte et le cadre. Selon la norme, il est de 10 à 15 millimètres. Il est également nécessaire de retirer 30 millimètres entre la toile et la boîte pour un écart.


Ensuite, les mesures de la porte sont effectuées, la taille de l'espace entre la porte et le cadre de la porte, ainsi qu'entre la toile et le cadre, est soustraite du chiffre obtenu. Les mesures d'ouverture sont multipliées par deux. Ce sera la largeur de la structure de la porte.
Hauteur
La mesure de la hauteur est différente de la mesure de la largeur d'une structure. Ajoutez 30 millimètres de dégagement à la hauteur. Et aussi, vous devez prendre en compte l'écart qui constitue le seuil de la salle de bain ou des toilettes. Que vous choisissiez une porte vitrée pour la salle de bain ou une porte en bois, dans tous les cas, il devrait y avoir un espace d'un centimètre entre le sol et la porte. Indépendamment du fait que la structure d'entrée est équipée d'un seuil ou non. Vous devez calculer la profondeur de la boîte en faisant attention à l'épaisseur du mur lui-même. C'est cette mesure qui détermine le paramètre de la structure de la porte en profondeur.
Problèmes typiques
La porte ne va pas large
Si la largeur de la porte ne rentre pas dans la porte étroite de la salle de bain de l'ancien aménagement, vous devez l'agrandir. Un maître novice fera tout à fait face au travail, en l'exécutant dans un certain ordre.
Tout d'abord, vous devez préparer les outils nécessaires. Pour un mur de briques, vous avez besoin d'un broyeur avec un disque en pierre. Un ciseau peut être nécessaire.
Si le mur est en bois ou en cloison sèche, il est pratique de le couper avec une scie sauteuse électrique ou une scie à main électrique.
Encore une fois, vérifiez soigneusement les mesures et appliquez les marquages en tenant compte des dégagements d'installation. Pour un mur de briques, il est appliqué des deux côtés.
Coupez tout l'excédent, abattez les copeaux saillants sur le mur de briques avec un ciseau.
Prolonger une porte est beaucoup plus facile que, comme certains disent, de «couper proprement» la porte. Bien qu'en principe, il soit possible de couper, mais après cela, en tenant compte des matériaux modernes et de leur traitement, il est peu probable qu'il soit possible de conserver l'aspect d'origine.


La porte ne rentre pas en hauteur
Dans ce cas, il existe deux options. La porte est en dessous de l'ouverture et la porte est au-dessus.
Pour une porte haute, la solution la plus acceptable consiste à augmenter la hauteur de l'ouverture. Le même travail est effectué lors de son expansion.
Si la conception et le matériau de fabrication le permettent, vous pouvez réduire la hauteur de la porte en coupant soigneusement l'excédent. Ensuite, l'ouverture restera inchangée.
Seules les portes en bois peuvent tolérer une telle opération sans douleur. Et puis, vous devez le couper très soigneusement pour ne pas endommager le revêtement décoratif. La coupe doit être recouverte de teinture, de peinture et de vernis.
Mais il est fortement déconseillé de découper des portes en MDF et des portes avec des vides à l'intérieur. L'humidité pénétrera librement à l'intérieur, la porte gonflera et perdra sa forme. De plus, la moisissure fongique commencera à se développer.
Pourquoi est-il important de mesurer correctement la taille des portes?
Fondamentalement, la taille de la porte est choisie en fonction des facteurs suivants:
- Exécution des fonctions directes de la pièce.
- Possibilité de passage sans entrave des personnes dans l'ouverture.
- Aussi, en tenant compte des dimensions des meubles et des articles de plomberie qui seront apportés dans la pièce.
- Un paramètre tel que l'ajustement harmonieux à l'intérieur de l'appartement joue également un rôle.


Dessin de porte de toilette
Déterminer la taille des portes n'est pas si difficile, l'essentiel est de prendre en compte toutes les nuances et tous les facteurs. La largeur, la hauteur et la profondeur correctement choisies du cadre de porte et de la porte elle-même aideront à organiser un espace confortable et agréable pour la vie. Chaque propriétaire d'un appartement ou d'une maison peut utiliser la fantaisie et réaliser une variété d'idées. Cela vous permettra de verser une pièce d'âme à l'intérieur et de charger l'atmosphère de l'espace de vie d'harmonie et d'humeur.
Conseils de sélection
Lors du choix d'une porte intérieure ordinaire, nous nous concentrons le plus souvent sur son apparence, la façon dont elle complétera harmonieusement l'intérieur de la pièce, sa durabilité et les propriétés environnementales du matériau utilisé.
La salle de bain, selon sa destination et ses conditions de fonctionnement, présente plusieurs autres exigences, à savoir une protection accrue contre l'humidité et une résistance aux changements climatiques.
Lors de l'achat de nouvelles portes, il n'est pas recommandé de privilégier les produits avec finition en placage naturel. Ce matériau est susceptible de se déformer lorsqu'il est exposé à l'humidité. Et pourtant, si vous aimez le placage naturel, choisissez uniquement ce modèle, dont la surface du placage est recouverte d'un vernis protecteur spécial contre l'humidité.
Veuillez noter que la meilleure option serait de choisir un produit qui comprend une boîte, cela garantira qu'après l'installation, la porte s'ouvrira et se fermera correctement.
Dimensions optimales
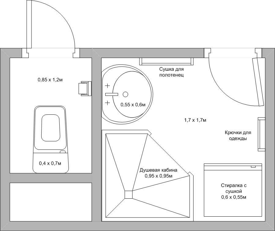
- L'entrée doit être suffisamment large pour accueillir de grands appareils de plomberie - une baignoire ou une douche.
- Une porte trop large, une fois ouverte, s'appuiera contre le mur du couloir, si celui-ci est étroit.
- Avec une grande largeur d'ouverture, il peut y avoir un manque d'espace pour installer une machine à laver ou un tiroir pour le linge sale.
Ainsi, un terrain d'entente doit être trouvé. Certaines baignoires et cabines de douche modernes ne rentrent pas dans une porte de 600 mm de large (la norme de la construction de logements soviétiques).
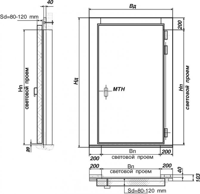
Profondeur du bloc de porte
Pour différents blocs, la profondeur varie de 70 à 200 mm. Choisissez un modèle avec un paramètre correspondant à l'épaisseur de la paroi ou le plus petit le plus proche. C'est-à-dire qu'avec une épaisseur de mur de 130 mm (cloison en brique avec décoration), une porte d'une profondeur de 120 et non de 140 mm est acquise. Le manque de profondeur est simplement compensé - la boîte est constituée de bandes supplémentaires spécialement conçues à cet effet. Si la profondeur s'avère excessive, il faudra la couper. Ceci n'est pas autorisé pour les produits MDF.
En plus de mesurer l'épaisseur du mur, vous devez vérifier sa verticalité. Il y a des cas fréquents où la partition est débordée sur le côté. Si l'écart est faible, il peut être compensé en installant une porte moins profonde.
Avec des écarts importants, le mur est nivelé ou la porte est installée avec le même écart par rapport à la verticale. Dans ce dernier cas, la toile, non fixée par le loquet, tournera sous son propre poids.
Lors du choix de la taille de la porte de la salle de bain et des toilettes, vous devez prendre en compte un certain nombre de facteurs. Sur la base de nos conseils, le lecteur prendra la bonne décision et dépensera de l'argent avec un effet maximal.
Il peut sembler aux personnes inexpérimentées en réparation que la taille des portes de la salle de bain et des toilettes est un problème qui ne nécessite pas d'attention. En fait, même lors de l'achat de tailles de porte standard pour une salle de bain, il vaut la peine d'étudier en détail la géométrie de cette structure. En particulier, le calcul des paramètres de la porte est important si vous prévoyez d'installer la structure vous-même dans l'espace mural.











