Quand remplacer un ancien rebord de fenêtre

Appui de fenêtre cassé
Rien ne dure éternellement, nous le savons tous, donc de temps en temps, tout doit être réparé ou remplacé. Il y a plusieurs raisons à cela. Quelles sont les raisons du remplacement du rebord de la fenêtre? En voici quelques-uns:
- Des dommages se sont formés à la surface du revêtement, réduisant l'attrait général du rebord de la fenêtre. L'aspect esthétique se perd en présence de petites rayures, fissures, éclats et toutes sortes de déformations, lorsque les appuis de fenêtre sont en bois.
- Des violations de l'intégrité du produit apparaissent - des éclats profonds, de grandes fissures, à cause desquelles le rebord de la fenêtre peut s'effondrer à tout moment. Souvent, le rebord de la fenêtre nous sert d'étagère supplémentaire, où nous mettons généralement nos pots de fleurs, plants ou autres choses. Par conséquent, lorsqu'un tel dommage profond se forme, son remplacement est obligatoire.
- Effritement du mur adjacent au rebord de la fenêtre ou destruction complète du revêtement lui-même. Cela conduit souvent au fait que le rebord de la fenêtre peut tomber au moment le plus inopportun. De plus, la qualité de l'étanchéité dans ce cas est fortement dégradée, ce qui permet à l'air froid de l'extérieur de pénétrer librement dans la pièce. Ceci est particulièrement désagréable en hiver.
- La dernière raison est de réorganiser tout l'espace et de changer la conception générale de votre pièce, dans laquelle l'ancien rebord de fenêtre peut ne pas s'intégrer. Il se peut que vous ayez juste besoin d'un appui de fenêtre plus grand - à des fins diverses.


Trop étroit
Quelle que soit la raison, le rebord de la fenêtre doit être changé, même si vous en avez juste assez. Est-il possible, si vous le souhaitez, de procéder vous-même au démontage et à l'installation du rebord de fenêtre? Vous trouverez la réponse plus loin en vous familiarisant avec la technologie d'installation du rebord de fenêtre. Mais avant de le monter, vous devez décider de quel matériau le futur rebord de fenêtre sera. Jetons un coup d'œil à certains d'entre eux.
Raisons du remplacement du rebord de fenêtre


Le remplacement du rebord de fenêtre est le plus souvent nécessaire en raison de fissures ou de la destruction du plastique
Vous devez changer le rebord de la fenêtre dans les cas suivants:
- L'apparition de dommages mécaniques à la surface du produit, des déformations. Ils rendent le rebord de la fenêtre moins fonctionnel et moins attrayant.
- Violation de l'intégrité d'un élément, conduisant à sa destruction totale ou partielle. Dans le même temps, les plantes d'intérieur ou tout autre objet ne peuvent plus être placés sur sa surface.
- Changer l'intérieur de la pièce, remplacer les anciens cadres de fenêtres.
- Processus destructifs dans le mur adjacent. Dans ce cas, la fixation du rebord de fenêtre est affaiblie, elle peut tomber. La dépressurisation de la structure conduit à des courants d'air. En hiver, cela entraîne une augmentation du coût de chauffage de la maison.
Parfois, il est nécessaire d'augmenter la taille du rebord de la fenêtre afin de disposer les plantes d'intérieur ou de l'intégrer à la zone de travail.
Qu'est-ce qu'il serait
Nous vivons à une époque de progrès technologique. De nos jours, il y a tellement de matériaux pour la construction, et ils sont tous si divers et polyvalents que nos ancêtres nous auraient enviés. Et cela ne s'applique pas seulement à la durabilité et à la qualité. C'est aussi une belle apparence esthétique, ce qui est important.
Si nous parlons d'appuis de fenêtre, sur le marché, les modèles modernes sont présentés en différentes versions. La gamme de produits est si grande que vous pouvez choisir un modèle qui s'intègre parfaitement dans la décoration intérieure, remplit pleinement ses fonctions, présente diverses caractéristiques de conception, supporte toutes sortes de charges et offre un prix très raisonnable.


Appui de fenêtre en plastique
Produits en plastique... Ils sont parmi les matériaux les plus recherchés sur le marché car ils sont disponibles pour la plupart.Malgré son prix bas, le rebord de fenêtre en plastique peut être qualifié de pratique et fiable, résistant à la lumière et à la chaleur, capable de vous servir longtemps, car il ne pourrit pas. Cependant, sous de fortes contraintes mécaniques, il peut casser. Compte tenu du fait que le matériau est d'origine synthétique, un tel rebord de fenêtre présente un bon respect de l'environnement, ce qui est très important, en particulier pour les familles qui ont de jeunes enfants. Et bien sûr, l'un des avantages importants des produits en plastique est une large gamme de couleurs et de configurations de produits, ainsi que leur faible poids. Ce fait vous permettra de choisir exactement le rebord de fenêtre qui sera en harmonie avec l'intérieur général de votre maison. Il convient également de noter qu'un tel rebord de fenêtre peut être remplacé selon un schéma simplifié.


Appui de fenêtre en bois
Artisanat en bois. L'arbre sera toujours à la mode. Le naturel fascine toujours et donne de la noblesse au produit. Ce matériau était encore utilisé par nos lointains ancêtres, mais est resté pertinent à notre époque et ne perd pas sa popularité. Les appuis de fenêtre en bois donneront une sensation de chaleur et de confort dans la maison, d'autant plus qu'ils ont un beau motif naturel et une texture agréable à l'oeil. Si vous êtes un connaisseur de matériaux écologiques et naturels, vous devriez privilégier uniquement cette option. Grâce aux technologies modernes, le traitement préliminaire des matières premières permet de garantir que les produits finis ne pourriront pas, ne se déformeront pas ou ne se casseront pas pendant le fonctionnement. Mais, bien sûr, vous devez payer pour tout cela, et beaucoup. Le prix des produits du bois est beaucoup plus cher que celui du plastique, donc tout le monde n'a pas les moyens de les acheter. Si vous êtes un connaisseur de la race la plus élevée, des seuils en bois massif coûteux vous conviennent.
Il existe également des options à petit budget fabriquées à partir de matériaux tels que le MDF et les panneaux de particules.


Acrylique
Produits acryliques. Appuis de fenêtre très durables et fiables, qui gagnent de plus en plus en popularité en raison de leurs qualités. Oui, ils coûtent 2 à 3 fois plus cher que les produits en PVC (plastique), mais vous ne payez pas en vain. Après tout, ces appuis de fenêtre sont capables de supporter le poids non seulement des objets qui y seront installés, mais également du poids d'une personne. Souvent, à l'aide de ces appuis de fenêtre, ils équipent une zone de loisirs, agrandissent la toile et ajoutent des oreillers pour plus de confort.Vous pouvez ici vous asseoir avec une tasse de thé en regardant ce qui se passe dans la rue depuis la fenêtre. Ils présentent de nombreux avantages: ils ne sont pas rayés, ils n'ont pas peur du poids lourd, du liquide renversé ou d'une cigarette tombée. Ils sont faciles à entretenir et à nettoyer. Ils ne perdent pas leur aspect d'origine, malgré la longue durée de vie. Et ce qui est important, ces produits peuvent être de n'importe quelle couleur et forme. C'est le cas lorsque le prix est parfaitement cohérent avec la qualité, et même plus.


De Pierre
Produits en pierre naturelle et artificielle. Comme auparavant, et maintenant, la pierre reste également un matériau populaire dans la construction. Mais de tels appuis de fenêtre peuvent ne pas s'intégrer à l'intérieur de votre pièce. Ce n'est que lorsque tout est correctement sélectionné, que les revêtements de marbre et de granit ajoutent de la solidité et de la sophistication à la décoration d'une maison ou d'un appartement. Leur principal avantage est la durabilité et la fiabilité. Néanmoins, les appuis de fenêtre en pierre ne peuvent pas toujours être qualifiés de sûrs, car ils sont suffisamment lourds et radioactifs.
Ce ne sont pas tous les matériaux à partir desquels les appuis de fenêtre peuvent être fabriqués, mais ce sont les principaux et les plus populaires. La décision de choisir le matériau vous appartient. Partez de vos moyens, des fins auxquelles le rebord de fenêtre servira et de la décoration intérieure. D'accord, un rebord de pierre près d'une fenêtre en plastique est le plus souvent inapproprié, surtout lorsqu'il n'y a pas d'éléments de décoration en pierre dans la pièce. Compte tenu de tous les facteurs, vous pouvez obtenir l'option parfaite.Vous ne devez pas lésiner sur la qualité, car cela peut affecter l'avenir.
Une nuance importante lors du choix d'un design approprié est ses paramètres et ses dimensions. Lors du choix d'un produit, veuillez noter que sa longueur doit dépasser la largeur de la fenêtre de quelques centimètres (10–20), mais la largeur est choisie en fonction des préférences personnelles, mais uniquement pour qu'elle ne recouvre pas le radiateur de chauffage. Il est seulement important de ne pas en faire trop pour que le rebord de fenêtre installé ne se brise pas dans un endroit où il n'y a pas de support.
Nous avons décidé du rebord de la fenêtre, regardons des instructions détaillées sur la façon de l'installer correctement de nos propres mains.
Comment retirer un rebord de fenêtre d'une fenêtre en plastique? Démontage du rebord de la fenêtre
POLITIQUE DE CONFIDENTIALITÉ:
Cette politique de confidentialité pour les données personnelles (ci-après dénommée la politique de confidentialité) s'applique à toutes les informations qui se trouvent sur le site Web https://ecookna.su/, peuvent obtenir sur l'utilisateur lors de l'utilisation du site, des programmes et des produits.
- DÉFINITION DES TERMES
1.1. Les termes suivants sont utilisés dans cette politique de confidentialité:
1.1.1. «Administration du site (ci-après dénommée« Administration du site »)» - les employés autorisés à gérer le site, agissant au nom d'Okon Territory LLC, qui organisent et (ou) traitent les données personnelles, et déterminent également les finalités du traitement des données personnelles, le composition des données personnelles faisant l'objet d'un traitement, actions (opérations) effectuées avec des données personnelles
1.1.2. «Données personnelles» - toute information relative directement ou indirectement à un individu spécifique ou identifiable (sujet des données personnelles).
1.1.3. «Traitement des données personnelles» - toute action (opération) ou un ensemble d'actions (opérations) effectuées à l'aide d'outils d'automatisation ou sans utiliser de tels outils avec des données personnelles, y compris la collecte, l'enregistrement, la systématisation, l'accumulation, le stockage, la clarification (mise à jour, modification) , extraction, utilisation, transfert (distribution, mise à disposition, accès), dépersonnalisation, blocage, suppression, destruction de données personnelles.
1.1.4. La « confidentialité des données personnelles » est une exigence obligatoire pour l'opérateur ou toute autre personne qui a eu accès aux données personnelles pour empêcher leur diffusion sans le consentement du sujet des données personnelles ou d'autres motifs juridiques.
1.1.5. «Utilisateur du site (ci-après dénommé l'utilisateur)» - une personne qui a accès au site via Internet et utilise le site.
1.1.6. Les «cookies» sont un petit morceau de données envoyé par un serveur Web et stocké sur l'ordinateur de l'utilisateur, que le client Web ou le navigateur Web envoie au serveur Web à chaque fois dans une requête HTTP lors d'une tentative d'ouverture de la page du site correspondant.
1.1.7. «Adresse IP» est une adresse réseau unique d'un nœud dans un réseau informatique construit à l'aide du protocole IP.
- DISPOSITIONS GÉNÉRALES
2.1. L'utilisation du site par l'Utilisateur implique l'acceptation de la présente Politique de Confidentialité et des conditions de traitement des données personnelles de l'Utilisateur.
2.2. En cas de désaccord avec les termes de la Politique de confidentialité, l'Utilisateur doit cesser d'utiliser le site.
2.3. Cette politique de confidentialité s'applique uniquement au site Web https://ecookna.su/. Le site ne contrôle pas et n'est pas responsable des sites tiers vers lesquels l'Utilisateur peut cliquer sur les liens disponibles sur le site.
2.4. L'administration du site ne vérifie pas l'exactitude des données personnelles fournies par l'utilisateur du site.
- OBJET DE LA POLITIQUE DE CONFIDENTIALITÉ
3.1. Cette politique de confidentialité établit les obligations de l'administration du site de ne pas divulguer et d'assurer la protection de la confidentialité des données personnelles que l'utilisateur fournit à la demande de l'administration du site ou lors du remplissage de formulaires de commentaires sur le site, de l'inscription sur le site ou lorsque passer une commande pour acheter les marchandises.
3.2.Les données personnelles autorisées pour le traitement en vertu de cette politique de confidentialité sont fournies par l'utilisateur en remplissant tous les formulaires de commentaires sur le site https://ecookna.su/, et peuvent inclure les informations suivantes:
3.2.1. nom, prénom, patronyme de l'utilisateur;
3.2.2. Numéro de téléphone de contact de l'utilisateur;
3.2.3. adresse e-mail (e-mail);
3.2.4. adresse de livraison des marchandises;
3.2.5. lieu de résidence de l'utilisateur.
- OBJECTIFS DE LA COLLECTE DES RENSEIGNEMENTS PERSONNELS DES UTILISATEURS
4.1. Les données personnelles de l'Utilisateur peuvent être utilisées par l'Administration du Site aux fins suivantes:
4.1.1. Identification de l'Utilisateur inscrit sur le site pour passer une commande et (ou) conclure un contrat de vente de biens à distance avec LLC Territoire de Windows.
4.1.2. Fournir à l'Utilisateur un accès aux ressources personnalisées du Site.
4.1.3. Établir un retour d'expérience avec l'Utilisateur, y compris l'envoi de notifications, des demandes concernant l'utilisation du Site, la fourniture de services, le traitement des demandes et applications de l'Utilisateur.
4.1.4. Déterminer l'emplacement de l'utilisateur pour assurer la sécurité, prévenir la fraude.
4.1.5. Confirmation de l'exactitude et de l'exhaustivité des données personnelles fournies par l'utilisateur.
4.1.6. Création d'un compte pour effectuer des achats, si l'Utilisateur a accepté de créer un compte.
4.1.7. Notifications de l'Utilisateur du Site sur l'état de la Commande.
4.1.8. Traiter et recevoir des paiements, confirmer des avantages fiscaux ou fiscaux, contester un paiement, déterminer le droit de l'Utilisateur à recevoir une ligne de crédit.
4.1.9. Fournir à l'Utilisateur un support client et technique efficace en cas de problèmes liés à l'utilisation du Site.
4.1.10. Fournir à l'utilisateur son consentement, des mises à jour de produits, des offres spéciales, des informations sur les prix, des bulletins d'information et d'autres informations au nom d'Okon Territory LLC ou au nom des partenaires d'Okon Territory LLC.
4.1.11. Mise en œuvre d'activités publicitaires avec le consentement de l'utilisateur.
4.1.12. Fournir à l'Utilisateur un accès aux sites ou services de partenaires de "Territory of Windows" LLC afin de recevoir des produits, mises à jour et services.
- MÉTHODES ET MODALITÉS DE TRAITEMENT DES RENSEIGNEMENTS PERSONNELS
5.1. Le traitement des données personnelles de l'Utilisateur est effectué sans limite de temps, de quelque manière légale que ce soit, y compris dans les systèmes d'information sur les données personnelles en utilisant des outils d'automatisation ou sans utiliser de tels outils.
5.2. L'Utilisateur reconnaît que l'Administration du Site a le droit de transférer des données personnelles à des tiers, en particulier des services de messagerie, des organisations postales, des opérateurs de télécommunications, uniquement dans le but d'exécuter la commande de l'Utilisateur passée sur le Site https://ecookna.su /, y compris la livraison des marchandises ...
5.3. Les données personnelles de l'Utilisateur ne peuvent être transférées aux organes autorisés du pouvoir d'État de la Fédération de Russie que pour les motifs et de la manière établis par la législation de la Fédération de Russie.
5.4. En cas de perte ou de divulgation de données personnelles, l'Administration du site informe l'Utilisateur de la perte ou de la divulgation de données personnelles.
5.5. L'administration du site prend les mesures organisationnelles et techniques nécessaires pour protéger les informations personnelles de l'Utilisateur contre l'accès non autorisé ou accidentel, la destruction, la modification, le blocage, la copie, la distribution, ainsi que contre d'autres actions illégales de tiers.
5.6. L'administration du site, en collaboration avec l'utilisateur, prend toutes les mesures nécessaires pour éviter les pertes ou autres conséquences négatives causées par la perte ou la divulgation des données personnelles de l'utilisateur.
- OBLIGATIONS DES PARTIES
6.1. L'utilisateur est obligé:
6.1.1.Fournir des informations sur les données personnelles nécessaires à l'utilisation du site.
6.1.2. Mettre à jour, compléter les informations fournies sur les données personnelles en cas de modification de ces informations.
6.2. L'administration du site est tenue de:
6.2.1. Utilisez les informations reçues uniquement aux fins spécifiées dans la clause 4 de la présente politique de confidentialité.
6.2.2. Assurer le stockage des informations confidentielles en secret, ne pas les divulguer sans l'autorisation écrite préalable de l'Utilisateur, et également ne pas vendre, échanger, publier ou divulguer par d'autres moyens possibles les données personnelles transférées de l'Utilisateur, à l'exception de cl. 5.2. et 5.3. de cette politique de confidentialité.
6.2.3. Prendre des précautions pour protéger la confidentialité des données personnelles de l'Utilisateur conformément à la procédure habituellement utilisée pour protéger ce type d'informations dans les transactions commerciales existantes.
6.2.4. Bloquer les données personnelles relatives à l'Utilisateur concerné à partir du moment où l'Utilisateur ou son représentant légal ou l'organisme habilité pour la protection des droits des personnes concernées postule ou demande la période de vérification, en cas de révélation de données personnelles inexactes ou d'actions illégales
- RESPONSABILITÉ DES PARTIES
7.1. L'administration du site, qui n'a pas rempli ses obligations, est responsable des pertes subies par l'utilisateur en relation avec l'utilisation illégale de données personnelles, conformément à la législation de la Fédération de Russie, à l'exception des cas prévus à la cl. 5.2., 5.3. et 7.2. de cette politique de confidentialité.
7.2. En cas de perte ou de divulgation d'informations confidentielles, l'Administration du site n'est pas responsable si ces informations confidentielles:
7.2.1. Devenu domaine public avant sa perte ou sa divulgation.
7.2.2. A été reçu d'un tiers avant d'être reçu par l'administration du site.
7.2.3. A été divulgué avec le consentement de l'utilisateur.
- RÉSOLUTION DES DIFFÉRENDS
8.1. Avant de saisir les tribunaux avec une réclamation pour litige découlant de la relation entre l'utilisateur du site et l'administration du site, il est obligatoire de soumettre une réclamation (une proposition écrite de règlement volontaire du litige).
8.2 Le destinataire de la réclamation, dans un délai de 30 jours calendaires à compter de la date de réception de la réclamation, informe le demandeur de la réclamation par écrit des résultats de l'examen de la réclamation.
8.3. Si aucun accord n'est trouvé, le différend sera soumis à une autorité judiciaire conformément à la législation en vigueur de la Fédération de Russie.
8.4. La législation actuelle de la Fédération de Russie s'applique à cette politique de confidentialité et à la relation entre l'utilisateur et l'administration du site.
- CONDITIONS ADDITIONNELLES
9.1. L'administration du site a le droit d'apporter des modifications à cette politique de confidentialité sans le consentement de l'utilisateur.
9.2. La nouvelle politique de confidentialité entre en vigueur à partir du moment où elle est publiée sur le site, sauf disposition contraire de la nouvelle édition de la politique de confidentialité.
9.3. Toute suggestion ou question concernant cette politique de confidentialité doit être signalée indiquer une section du site
9.4. La politique de confidentialité actuelle est publiée sur la page https://ecookna.su/.
Mis à jour le 16 juin 2021
Séquence de travail


Activités de remplacement des appuis de fenêtre
Pour terminer l'installation d'un nouveau rebord de fenêtre, vous devrez effectuer une gamme complète de mesures. Comme vous le savez, la planification mène au succès. Par conséquent, il est important de tout préparer à l'avance, de se familiariser avec le travail à venir et d'avoir une idée de ce qui devra être fait. Regardons le travail qui devra être fait en plusieurs étapes:
- préparation d'outils pour le travail;
- démontage d'un rebord de fenêtre inutilisable;
- installation d'un nouveau rebord de fenêtre.
Comme mentionné précédemment, le moyen le plus simple est de remplacer les produits en plastique, cela s'applique non seulement aux appuis de fenêtre, mais également aux fenêtres. S'ils sont faits d'autres matériaux, la séquence du processus d'installation sera la même, ce n'est que maintenant que vous devez accorder plus d'attention à la précision du travail. Alors, découvrons de quels matériaux vous aurez besoin dans le processus de travail.
Préparation au remplacement
Avant de démonter l'ancien, vous devez choisir et acheter un nouveau rebord de fenêtre, dans le matériau que vous jugez le plus approprié. Fiabilité, simplicité, beau design varié, prix abordable plaident en faveur des éléments en PVC. L'aggloméré a presque les mêmes propriétés, vous pouvez en fabriquer vous-même un rebord de fenêtre, mais un inconvénient majeur d'un tel matériau est sa capacité à absorber l'humidité et la fragilité.
Pour commencer le démontage, vous devrez vous approvisionner en outillage suivant:
- Ciseau.
- Un marteau.
- Mousse polyuréthane pour sécuriser la nouvelle structure et fermer les fissures.
- Perceuse puissante ou perceuse à percussion.
- Sciez si vous allez utiliser du bois ou du plastique.
- Ciment.
- Scellant à base de silicone.


Le remplacement d'un rebord de fenêtre en plastique commence par le démontage de l'ancien élément, le cas échéant. Pour ce faire, vous devrez retirer l'ancien mortier de ciment de l'extrémité de la structure. Cela peut être fait avec un poinçon ou un ciseau.


Dépose de l'ancien rebord de fenêtre
Une fois le ciment retiré, le seuil est abattu avec un marteau, frappant par le bas. Quand il se détache, la structure peut être enlevée. L'ouverture libérée est nettoyée de divers débris, poussières, dégraissée. Si les irrégularités sont très visibles, vous devez vous en débarrasser, sinon le nouveau rebord de la fenêtre se tiendra inégalement et risque de se fissurer ou de paraître négligé.
Il existe également des moyens d'ouvrir une fenêtre en plastique de l'extérieur. il y a des situations où non seulement les voleurs y pensent.
Préparation des instruments


Préparation des outils
Si vous souhaitez installer un nouveau rebord de fenêtre rapidement, efficacement et sans accroc, préparez à l'avance les outils suivants:
- roulette;
- niveau;
- un marteau;
- ciseau;
- scie à métaux;
- abandonner;
- perceuse ou perceuse à percussion;
- mousse de polyurethane;
- scie sauteuse;
- mastic silicone;
- papier de verre;
- mortier de ciment;
- couteau à mastic;
- respirateur;
- couteau d'assemblage;
- planches avec une petite section;
- peinture pour pentes.
Si vous n'avez pas quelque chose dans cette liste, ne vous précipitez pas dans le magasin. Lorsque vous n'êtes pas sûr d'avoir besoin de ces outils à l'avenir, vous pouvez les emprunter à de bons amis ou connaissances, ou encore mieux - à des proches. Après avoir rassemblé tout l'équipement nécessaire, vous pouvez commencer à démonter le rebord de la fenêtre.
Matériaux et outils
Pour remplacer vous-même le rebord de la fenêtre en plastique, vous devez acheter les matériaux suivants:
- un appui de fenêtre en bois massif, PVC, MDF, pierre artificielle ou naturelle;
- deux cylindres de mousse de polyuréthane;
- coin et ruban (métal perforé);
- mélange de plâtre;
- vis autotaraudeuses.
À partir des outils dont vous avez besoin pour préparer:
- un levier ou un petit pied de biche;
- scie à métaux pour métaux;
- couteau bien aiguisé;
- marteau, ciseau, poinçon;
- tournevis ou tournevis cruciforme;
- Marteau en caoutchouc;
- broyeur avec un cercle de pierre;
- niveau du bâtiment;
- couteau à mastic.
Avec tout le matériel et les outils nécessaires à portée de main, vous pouvez vous mettre au travail.


Démontage de l'ancien rebord de fenêtre


Démontage du rebord de la fenêtre
En fait, retirer l'ancien rebord de fenêtre n'est pas aussi difficile que cela puisse paraître à première vue. L'essentiel est le strict respect de la direction. Il est également important que vous soyez prudent, prudent et précis pendant le travail afin de ne rien endommager d'inutile. Vous n'avez pas besoin de fissures et de copeaux près de la fenêtre. Voyons comment vous pouvez supprimer différents types d'appuis de fenêtre.
Portez des gants pour protéger vos mains contre les blessures.
Si le rebord de la fenêtre est en bois, une scie à métaux et un pied de biche viendront à la rescousse. Vous devez d'abord vérifier de quelle manière le rebord de la fenêtre est fixé. Lorsqu'il est fixé au mur, frappez plusieurs fois le bas du rebord de la fenêtre avec un marteau pour desserrer la fixation. Essayez de le soulever avec un pied de biche. Alors essayez juste de l'obtenir. Échec de votre tentative? Utilisez un ciseau et un marteau. Sinon, utilisez une scie à métaux. Faites des coupes à différents endroits et utilisez un pied de biche pour retirer les morceaux. Il arrive qu'il y ait de la laine de verre sous le rebord de la fenêtre en bois, ce qui peut endommager vos voies respiratoires. Portez un respirateur pour éviter les blessures.
Avec un rebord de fenêtre en béton, les choses sont plus compliquées, car il faudra faire plus d'efforts. Un tel travail ne peut pas se passer de poussière et de débris, il est donc important de protéger vos organes respiratoires et vos yeux. Pour le retirer, vous aurez besoin d'un marteau perforateur ou d'une meuleuse. Sinon, vous pouvez utiliser un marteau et un ciseau, mais cela réduira considérablement la vitesse.


Retrait du rebord de fenêtre en plastique
Il est assez facile de retirer le rebord de fenêtre en plastique, car il se fixe principalement grâce à la mousse. Il existe deux façons de démonter un rebord de fenêtre en plastique. Le premier est simple, mais avec une grande destruction. L'essence du travail consiste à retirer soigneusement les pentes et à éliminer le plâtre. Ensuite, il reste à couper la mousse de polyuréthane avec un couteau bien aiguisé. Après cela, le rebord de la fenêtre en plastique peut être facilement retiré avec un mouvement brusque vers le haut et vers vous. La deuxième option est plus douce, grâce à laquelle vous pouvez conserver le plâtre et les pentes. Tout d'abord, limez la mousse, grâce à laquelle le rebord de la fenêtre est fixé, avec une scie à métaux. De même, vous devez retirer le plastique liquide restant au niveau des joints des pentes du rebord de la fenêtre. Lorsque vous coupez cette couche, tirez doucement le produit vers vous. Si tout le reste échoue, coupez à nouveau la mousse sous le rebord de la fenêtre et recommencez.
Une fois le rebord de la fenêtre retiré, la surface doit être préparée pour en installer une nouvelle. Retirez tous les débris, la poussière, le mortier et la mousse de polyuréthane. La surface est maintenant prête pour un nouveau revêtement.
Phase préparatoire des travaux
Avant de retirer l'ancienne structure, vous devez déplacer le papier peint autour avec un couteau ou une spatule. Démontez ensuite les pentes de la fenêtre qui chevauchent les bords du bloc de rebord de fenêtre. Les pentes sont en panneaux ou monolithiques (à partir de mortier de plâtre). Les pentes des panneaux sont supprimées comme suit :
- Les plateaux d'angle décoratifs sont supprimés.
- Reste de la colle, le silicone est enlevé.
- Les vis autotaraudeuses sont dévissées sur lesquelles le panneau est maintenu.
- Un couteau est utilisé pour enlever le joint dans les espaces entre le cadre, le rebord de la fenêtre et les pentes.
- Le panneau lui-même est extrait.
Les pentes monolithiques devront être coupées avec une meuleuse, puis abattre la structure avec un marteau ou un ciseau.
Installation de l'appui de fenêtre


Il est important de bien s'adapter
Ne supposez pas que pour remplacer le rebord de fenêtre, il vous suffit de retirer l'ancien rebord de fenêtre et d'en insérer un nouveau à sa place. Il existe quelques règles pour préparer ce créneau et le produit lui-même. Ces règles sont obligatoires, il est donc très important de les respecter.


Schéma d'installation d'un rebord de fenêtre en plastique
Donc, pour installer un nouveau seuil, vous devez suivre cette séquence:
- Pour adapter le rebord de fenêtre dans l'ouverture de la fenêtre aussi précisément que possible, vous devez découper les pièces en excès à l'endroit où le rebord de fenêtre sera installé, en tenant compte de ses dimensions. Vérifiez également la rainure elle-même où la toile sera installée. Mesurez toutes les tailles pour préparer une nouvelle toile. Non seulement l'apparence générale, mais aussi la résistance de la structure, ainsi que la fonctionnalité du rebord de la fenêtre, dépendent de la compétence des mesures.Si l'ancien rebord de fenêtre reste intact, il peut être utilisé comme modèle pour créer une nouvelle toile, si la taille du rebord de fenêtre précédent vous convient. Vous pouvez couper une nouvelle lame avec une scie sauteuse ou une scie. Il est important que les défauts et les fissures ne se forment pas pendant la coupe, vous ne devez donc pas pousser trop fort contre le rebord de la fenêtre.
- Lors de l'installation d'un rebord de fenêtre en bois, tous les bords coupés des extrémités doivent être traités avec un antiseptique pour protéger le matériau de la moisissure et réduire la perméabilité à l'humidité.
- Préparez l'ouverture elle-même, sur laquelle le rebord de la fenêtre sera installé. Si la hauteur du rebord de fenêtre acheté est inférieure à celle de l'ancien, il est nécessaire de fabriquer une chape en ciment sur la base horizontale. Si le seuil est plus épais, la niche doit être approfondie.
- Si, au cours des travaux, des interstices et des fissures se sont formés dans les murs qui jouxtent le site d'installation, ils doivent être réparés. Pour ce faire, utilisez du mastic ordinaire ou du mortier de ciment.


Application de scellant
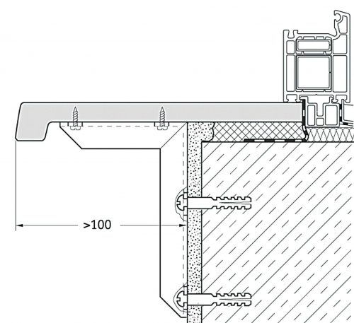
À l'endroit où le rebord de la fenêtre jouxte le cadre, un mastic silicone doit être appliqué sur toute la largeur de l'ouverture de la fenêtre. Ainsi, vous pouvez obtenir une étanchéité et éliminer la formation de vides qui contribuent à la pénétration du froid dans votre maison ou votre appartement.- Vous devez mettre des planches préparées dans l'ouverture. Ils serviront de support au nouveau rebord de fenêtre et prendront la charge principale.
- À l'aide d'un niveau, vérifiez que toute la structure est horizontale. Les défauts doivent être corrigés en rendant tout parfaitement lisse.
- Placez maintenant la dalle de seuil sur les planches préparées.


Contrôle de niveau
Utilisez à nouveau un niveau à bulle pour vous assurer qu'il est correctement installé.- Placez une charge sur le rebord de la fenêtre. Cela peut être des livres, une lourde boîte, des bouteilles d'eau ou quelque chose à portée de main.
- Prenez de la mousse de polyuréthane et soufflez-la dans toutes les rainures latérales et arrière. Si une structure en plastique est installée, certains fabricants ajoutent des profils spéciaux au kit, ce qui facilitera encore plus le processus d'installation d'un nouveau rebord de fenêtre.


Moussant
Le bord sous le seuil qui dépasse doit être scellé avec du mortier de ciment ou de la mousse pour le fixer.- Faites maintenant une pause technique, d'une journée, pour que la mousse ou la solution soit complètement congelée.
- Si les espaces ont été traités avec du mortier de ciment, la surface doit être poncée avec un flotteur ou du papier de verre fin.
- Il ne reste plus qu'à protéger les extrémités du rebord de la fenêtre avec un bouchon et à retirer le revêtement protecteur de la toile.
- Pour donner à la fenêtre un aspect naturel et esthétique, la pente doit être enduite ou peinte.


Cargaison
Il convient également de noter que le rebord de la fenêtre ne doit pas empêcher la chaleur du radiateur de monter et de se répandre dans l'appartement, il est donc recommandé de faire un rebord de 6 à 8 cm.Maintenant, votre rebord de fenêtre est prêt!
Séquence de remplacement du rebord de fenêtre bricolage


Niveler l'espace pour un nouveau rebord de fenêtre à l'aide d'un niveau laser
Pour remplacer les appuis de fenêtre larges, après le démontage, il est nécessaire de préparer la base, d'ajuster les saillies, de fixer le rebord de fenêtre et de sceller les pentes. L'auto-assemblage permet les manipulations suivantes:
- Préparation de la base. Il est nettoyé de la saleté, de la mousse de polyuréthane et des restes de mortier de béton. L'isolation est remplacée sous le cadre et à l'intérieur de l'ouverture de la fenêtre.
- Découpez les toiles. Le nouvel élément a une forme rectangulaire, il est donc coupé de sorte que la jambe large passe sous les pentes et une partie de la paroi intérieure. Dans le même temps, il est pris en compte que la largeur du produit doit être telle qu'elle bloque les radiateurs de chauffage. Si le cadre de la fenêtre n'est pas installé parallèlement à la fenêtre, il est nécessaire de couper le rebord de la fenêtre. Lors du calcul de la taille d'un élément décoratif, les paramètres suivants sont pris en compte: il doit s'insérer dans la rainure du mur de 2-3 cm, la longueur de la saillie derrière la pente est différente, mais elle doit chevaucher la finition.
- Installation d'un rebord de fenêtre.


Le processus d'installation du produit lui-même prévoit les travaux suivants:
- Le bord supérieur du produit est fermement pressé contre le cadre de la fenêtre (profilé de support).
- La toile est ajustée à l'aide de cales de montage ou de cales. Cela doit être fait pour que l'avion ait une pente de 2 mm vers la pièce.
- Le joint isolant sous le cadre est restauré; pour cela, l'élément est temporairement retiré.
- Installation de ruban pare-vapeur.
- Pour la fixation du rebord de la fenêtre, de la mousse est utilisée, mais l'élément lui-même n'est installé qu'après une légère expansion.
- Après la pose, une charge est placée sur le produit: il peut s'agir de bidons d'eau de trois litres (grâce à cela, il est possible d'obtenir un ajustement serré de la toile sur tout le plan de la base).
- Après 20 minutes, de la mousse de polyuréthane est appliquée à la jonction du rebord de la fenêtre avec le cadre, puis 7 à 10 kg supplémentaires de charge sont installés sur la structure.
Le vide sous la toile est moussé, laissant 3-4 cm vide du bord du mur. Le ruban perforé n'est installé qu'après séchage de la substance.
Résumons
Vous pouvez voir qu'il est possible de remplacer le rebord de la fenêtre par vos propres mains. Cette procédure est simple et ne nécessite pas de compétences professionnelles, vous pouvez tout faire en 2 jours, en tenant compte de la pause séchage. En remplaçant un rebord de fenêtre, vous pouvez facilement le faire avec d'autres fenêtres. De plus, grâce à l'auto-installation, vous pouvez économiser de l'argent sur l'embauche de travailleurs.


Se soucier
Pour augmenter la durée de vie d'une nouvelle toile, lors de l'installation, vous devez:
- choisissez la bonne largeur et la bonne longueur du futur rebord de fenêtre;
- mesurer et couper correctement la toile;
- utiliser des consommables de haute qualité;
- suivre toutes les règles d'installation;
- soyez prudent et prudent lors de l'exécution du travail;
- après l'installation, entretenez régulièrement la surface.
Nous espérons que nos conseils vous aideront à remplacer votre ancien rebord de fenêtre avec compétence et rapidité. Si vous avez réussi, écrivez-nous dans les commentaires, cela inspirera non seulement nous, mais aussi ceux qui liront cet article!
Lorsqu'il est impossible d'installer de nouveaux appuis de fenêtre sans remplacer les anciennes fenêtres
Même s'il y a une confiance absolue que les compétences personnelles vous permettront de faire un remplacement par vous-même, il est toujours recommandé d'inviter un maître expérimenté pour une consultation. Lui seul est en mesure de déterminer comment cette procédure peut affecter l'intégrité et l'étanchéité de la structure de la fenêtre.
Habituellement, les moindres problèmes surviennent lorsque les appuis de fenêtre sont en plastique. De telles surfaces, qui sont principalement installées avec des fenêtres en PVC, sont les plus faciles à remplacer. Les mesures de remplacement de ces éléments sont effectuées dans un ordre strictement défini et les caractéristiques de toute la structure de la fenêtre dépendent en grande partie du respect des technologies de démontage et d'installation des appuis de fenêtre, en savoir plus sur OknaTrade.
En bois


L'installation d'un rebord de fenêtre en bois est plus difficile que son homologue en plastique. Tout d'abord, faites attention au matériel source. La planche sous le rebord de la fenêtre ne doit pas présenter de défauts sous forme de défauts et de nœuds. Il doit être bien séché.
Ainsi, pour remplacer le rebord d'une fenêtre en bois, vous aurez besoin de:
- Ciseau / marteau.
- Mousse de polyurethane.
- Roulette.
- Scie à métaux / scie sauteuse à dents fines.
- Mélange sec contenant du ciment.
- Papier de verre pour le ponçage.
Pour démonter le seuil, utilisez un marteau et un ciseau. Ensuite, battez soigneusement la toile autour du périmètre de sa fixation à l'ouverture de la fenêtre et au cadre. En tapotant légèrement sur la toile, elle peut être démontée du site d'installation. Ensuite, le lieu de démontage doit être débarrassé des débris de construction.
Les surfaces horizontales de l'espace du sous-châssis et l'ouverture de la fenêtre doivent être nivelées avec du mortier. Une fois le mélange de construction séché, vous devez appliquer une couche continue de mousse de polyuréthane sur la surface, sur laquelle vous devez ensuite installer un rebord de fenêtre prédimensionné.Pour que la structure soit fixée plus fermement, la nouvelle toile doit être fixée avec deux vis autotaraudeuses à travers l'espace inter-cadres jusqu'au cadre de la fenêtre.
S'il n'y a pas assez de hauteur entre la surface de l'ouverture et le plan du nouveau rebord de fenêtre, plusieurs doublures en bois doivent être installées sous la nouvelle toile. Leur fixation est réalisée à l'aide de mousse de polyuréthane.


Pour fixer l'horizontale sur la toile, des poids de plusieurs kilogrammes doivent être installés pendant 4 à 5 heures. Ensuite, scellez le joint sous le rebord de la fenêtre avec un mastic acrylique. L'espace sous le rebord de la fenêtre doit être expansé uniformément d'un tiers du rebord de la fenêtre. Lorsque la mousse durcit, la cavité restante doit être remplie d'un mortier préparé à partir du mélange de construction, en l'alignant avec le mur.
À la fin, fixez les pentes et traitez les joints avec un mastic acrylique. Peut-être qu'après avoir installé un rebord de fenêtre en bois, vous devrez le masticer, le poncer et le peindre.
Bon aspect du rebord de fenêtre par le choix du matériau et la qualité de pose de cet élément. Si vous avez des questions sur le sujet, demandez à notre spécialiste en rédigeant un commentaire sur l'article.
Lorsqu'il est impossible d'installer de nouveaux appuis de fenêtre sans remplacer les anciennes fenêtres
Même s'il y a une confiance absolue que les compétences personnelles vous permettront de faire un remplacement par vous-même, il est toujours recommandé d'inviter un maître expérimenté pour une consultation. Lui seul est en mesure de déterminer comment cette procédure peut affecter l'intégrité et l'étanchéité de la structure de la fenêtre.
Habituellement, les moindres problèmes surviennent lorsque les appuis de fenêtre sont en plastique. De telles surfaces, qui sont principalement installées avec des fenêtres en PVC, sont les plus faciles à remplacer. Les mesures de remplacement de ces éléments sont effectuées dans un ordre strictement défini et les caractéristiques de toute la structure de la fenêtre dépendent en grande partie du respect des technologies de démontage et d'installation des appuis de fenêtre, en savoir plus sur OknaTrade.
Travaux de démantèlement
Lorsque vous retirez un rebord de fenêtre de vos propres mains, vous devez tenir compte du fait que les méthodes de démontage dépendront du type de rebord de fenêtre: bois, béton, plastique.
Planches de bois
Un seuil en bois massif peut être fixé de plusieurs manières:
- sur des supports métalliques;
- avec pincement sous le cadre de la fenêtre;


- avec fixation mécanique à travers le profilé de fenêtre avec vis autotaraudeuses;


- sur de la colle supportée sur des matrices en bois;
- sur mousse de colle polystyrène.


Fixation avec de la colle.
Il est plus facile de retirer le seuil des supports métalliques. Pour ce faire, il suffit de dévisser les vis autotaraudeuses sur lesquelles la planche est fixée et de la sortir des rainures préalablement nettoyées.


Dans d'autres options d'installation, le panneau de seuil est arraché du plan de support à l'aide d'un levier ou d'un marteau. Cela doit être fait avec soin pour éviter d'endommager le cadre ou de fendre la planche dans le sens du fil du bois.
Tout d'abord, vous devez surélever le bord en surplomb du rebord de la fenêtre de 2 à 3 cm et, en le desserrant légèrement, tirez-le vers vous.
S'il n'y a pas de fixation sur les vis autotaraudeuses, la planche sera retirée immédiatement, sinon il est nécessaire de trouver et de dévisser toutes les fixations à vis: elles peuvent être installées sous le reflux de l'extérieur de la fenêtre ou sous le caoutchouc d'étanchéité à l'intérieur la chambre.
Dalle de béton monolithique
Étant donné que le démontage d'un rebord de fenêtre en béton s'accompagne d'une grande quantité de poussière et de débris, avant de commencer les travaux, il est nécessaire de recouvrir les meubles et les sols d'une pellicule plastique ou d'un autre matériau pour se protéger contre d'éventuels dommages et contamination.
Pour la destruction du béton, vous pouvez utiliser:
- perceuse à percussion ou perceuse à percussion;
- broyeur - pour couper un monolithe en béton;
- burin et marteau - pour le démontage manuel.
Le démontage le plus simple et le plus précis sera obtenu avec une combinaison raisonnable des trois options.


Appui de fenêtre en plastique
Comment remplacer un rebord de fenêtre en plastique? Les panneaux de PVC sont retirés de la même manière que les produits en bois.Avec ce démontage, le rebord de la fenêtre reste intact et peut être réinstallé.
Si le matériau ne sera pas utilisé à l'avenir, lors de l'installation, il peut être cassé avec un marteau, cassé avec un levier et retiré en plusieurs parties. Cependant, vous devez toujours faire attention à ne pas endommager le profil de la fenêtre.





















