Démontage d'un rebord de fenêtre d'une fenêtre en plastique
Habituellement, les fenêtres en PVC sont complétées par des appuis de fenêtre du même matériau. Et contrairement à ceux en béton et en bois, il est plus souvent fixé au mur de l'ouverture avec de la mousse de polyuréthane. Compte tenu des propriétés adhésives élevées de la mousse et de la grande surface de contact de la surface des pièces, il existe deux façons de retirer le rebord de fenêtre en plastique :
- sans destruction ;
- les pièces.
Il est plus facile de démonter le rebord de la fenêtre en plastique sans destruction au niveau du bloc de balcon - un seul bord est pincé dans le mur.

La séquence des opérations est la suivante :
- Renverser une couche d'enduit de finition recouvrant le joint d'assemblage entre le produit et l'ouverture.
- Avec une scie à métaux pour le bois ou toute plaque longue et fine, coupez la mousse sur toute la longueur de la couture, en essayant d'atteindre le profil de support.
- En desserrant légèrement le bord libre (non pincé), faites glisser le panneau vers vous et vers la porte du balcon.
Si vous ressentez une résistance importante du bord pincé dans l'ouverture ou du côté du profilé de support, il est probable que la mousse dans le joint de montage soit mal coupée. Dans ce cas, repassez la mousse avec une scie à métaux.
Pour une fenêtre ordinaire, pas un bloc de balcon, le rebord peut être remplacé plus rapidement s'il est coupé en morceaux. Pour ce travail, en plus d'une scie à métaux, vous aurez besoin d'une mini scie à main rechargeable (réseau) ou d'une petite meuleuse avec un disque en plastique.
Avant de retirer le rebord de la fenêtre en plastique, faites quelques coupes aussi près que possible des pentes. La coupe est effectuée très soigneusement, en essayant de ne pas endommager la coque en plastique du cadre. Par conséquent, ils commencent à couper à partir de la fenêtre et la partie située près du cadre lui-même est coupée avec un couteau de botte ou un ciseau.
Lorsque le panneau est coupé, découpez la mousse du joint d'assemblage, puis sortez la partie centrale, principale, partie. Les restes pincés sont assommés avec un marteau, infligeant de légers coups dans le coin.
Comment enlever la structure en plastique?


Les structures en plastique sont démontées selon l'algorithme suivant :
- L'excès de mousse est coupé du bas de la fenêtre avec un couteau de bureau.
- Supprimer les pentes des fenêtres (comment les installer correctement ?). Cela peut être fait avec un tournevis plat. Si les plateaux sont enduits, utilisez un ciseau et dégagez les bords inférieurs du joint avec l'ouverture de la fenêtre.
- Habituellement, l'ouverture sous le rebord de la fenêtre et le mur est remplie de mousse de polyuréthane. Il joue le rôle d'un coussin isolant. Dans le même temps, la mousse conserve la géométrie du bloc d'appui de fenêtre, l'empêchant de tomber. Vous devrez soulever légèrement le bloc et couper la mousse qui le maintient en position horizontale avec une fine lame de couteau ou de lime. En dernier recours, un pied de biche peut être utilisé pour décoller la mousse restante.
- Essayez de tirer le bloc brusquement. Cela fonctionne généralement la première fois. Si la structure ne cède pas, desserrez le bloc avec de légers mouvements de haut en bas et retirez-le à nouveau.
Si vous faites tout correctement, alors l'ancien appui de fenêtre en PVC peut être soigneusement démoussé, lavé et réutilisé (comment installer un appui de fenêtre en PVC ?).
Afin de remplacer ce bloc de rebord de fenêtre par le même en plastique, vous devriez lire cet article, et vous pouvez découvrir comment l'installer selon toutes les règles ici.
Vous avez décidé d'installer ou de remplacer un ancien rebord de fenêtre sur un balcon, dans une maison ou dans un appartement et ne savez pas comment le faire correctement. Prenez votre temps, car vous pouvez d'abord essayer de restaurer un rebord de fenêtre.Nous vous expliquerons comment mettre à jour de vos propres mains un bloc de rebord de fenêtre composé de différents matériaux, aligner la structure en cas de déformation ou même créer une version isolée.
Démontage d'un appui de fenêtre en béton
C'est un cas rare, mais parfois vous savez comment retirer un rebord de fenêtre d'une fenêtre en plastique s'il est en béton. Par exemple, une telle combinaison de matériaux est possible si l'ancien panneau a été conservé ou si une nouvelle dalle de béton marbré a été installée avec une fenêtre en PVC (de telles propositions sont désormais pertinentes sur le marché des matériaux de construction).
Ici, il y a aussi deux options pour le démontage : entier et en morceaux.


Pour démonter un ancien spécimen monté sur lisier, il est plus facile de le diviser en deux moitiés. Ils le font de cette façon :
- Avec un marteau ou un marteau et un ciseau, ils cassent le béton au centre du cadre au bord perpendiculairement au côté long - ils exposent l'armature.
- Une meuleuse avec une meule diamantée est utilisée pour couper le fil.
- En balançant le produit de haut en bas, affaiblissez l'adhérence avec la solution. Sortez chaque pièce séparément.
L'avantage de cette méthode est d'endommager les pentes au minimum.
Si vous souhaitez conserver la dalle de béton intacte, vous devez nettoyer le plâtre ci-dessous et le casser partiellement sur les pentes le long de la ligne d'accouplement. Ensuite, la dalle doit être desserrée et tirée vers elle-même - le joint froid ne forme pas un joint monolithique.
La dalle marbrée relativement récente pourrait être installée sur de la mousse-colle. Dans ce cas, ouvrez le joint d'assemblage du plâtre et coupez la mousse de la pente à la pente.
Noter. Les pentes constituées de panneaux PVC simplifient grandement le démontage. Il vous suffit de démonter les parois latérales et d'ouvrir l'ouverture en bas.
Travaux de démontage
Lorsque vous retirez un rebord de fenêtre de vos propres mains, vous devez tenir compte du fait que les méthodes de démontage dépendront du type de rebord de fenêtre: bois, béton, plastique.
Planches de bois
Un seuil en bois massif peut être fixé de plusieurs manières :
- sur supports métalliques;
- avec pincement sous le cadre de la fenêtre;


- avec fixation mécanique à travers le profilé de la fenêtre avec des vis autotaraudeuses;


- sur colle à base de matrices en bois;
- sur de la colle polystyrène expansée.


Fixation avec de la colle.
Il est plus facile de retirer le seuil des supports métalliques. Pour ce faire, il suffit de dévisser les vis autotaraudeuses sur lesquelles la planche est fixée et de la retirer des rainures préalablement nettoyées.


Dans d'autres options d'installation, le panneau de seuil est arraché du plan de support à l'aide d'un levier ou d'un marteau. Cela doit être fait avec soin pour éviter d'endommager le cadre ou de fendre la planche le long du grain du bois.
Vous devez d'abord relever le bord en surplomb du rebord de la fenêtre de 2-3 cm et, en le desserrant légèrement, le tirer vers vous.
S'il n'y a pas de fixation sur des vis autotaraudeuses, la planche sera retirée immédiatement, sinon il faut trouver et dévisser toutes les fixations à vis : elles peuvent être installées sous le reflux de l'extérieur de la fenêtre ou sous le caoutchouc d'étanchéité à l'intérieur la chambre.
Dalle de béton monolithique
Étant donné que le démantèlement d'un rebord de fenêtre en béton s'accompagne d'une grande quantité de poussière et de débris, avant de commencer les travaux, il est nécessaire de recouvrir les meubles et les sols d'une pellicule de plastique ou d'un autre matériau pour les protéger contre d'éventuels dommages et contaminations.
Pour la destruction du béton, vous pouvez utiliser :
- perceuse à percussion ou perceuse à percussion;
- broyeur - pour couper un monolithe en béton;
- ciseau et marteau - pour le démontage manuel.
Le démontage le plus simple et le plus précis sera obtenu avec une combinaison raisonnable des trois options.


Appui de fenêtre en plastique
Comment remplacer un rebord de fenêtre en plastique ? Les panneaux de PVC s'enlèvent de la même manière que les produits en bois. Avec ce démontage, le rebord de la fenêtre reste intact et peut être réinstallé.
Si le matériau n'est pas utilisé à l'avenir, il peut être cassé lors de l'installation avec un marteau, cassé avec un levier et retiré en plusieurs parties. Cependant, vous devez toujours faire attention à ne pas endommager le profil de la fenêtre.
Démontage d'un rebord de fenêtre en bois


Des fenêtres en PVC sont également installées dans les maisons en bois. Et bien souvent, pas de plastique, mais des planches de bois sont installées, qui doivent être retirées. Mais ce n'est pas toujours possible.
Si la fenêtre est dans une fenêtre de finition, rien ne sera supprimé - la partie du rebord de la fenêtre du boîtier agit comme une planche de finition.
Lors de l'installation d'une fenêtre dans une boîte de dégrossissage, vous devez d'abord retirer les plateaux intérieurs et ouvrir le boîtier. Ensuite, libérez la planche de bois de finition des fixations - dévissez les vis ou faites pivoter le pied de biche et retirez les clous.
Noter. Parfois, dans une maison en bois, un rebord de fenêtre est planté sur de la mousse-colle et non sur un rouleau d'isolant. Dans ce cas, la mousse est découpée à la scie à métaux.
Comment réparer un rebord de fenêtre ?
Restauration d'un rebord de fenêtre en béton - un ensemble de travaux pour éliminer les dommages et restaurer l'intégrité de l'objet. Lors de la rénovation de fenêtres, peu de personnes ont désormais recours à la restauration de charpentes en bois. Ils les démontent simplement et installent des fenêtres en plastique à double vitrage, mais vous pouvez toujours vous battre pour les rebords de fenêtre et ne pas les démonter, mais les restaurer. Un avantage solide des produits en béton est qu'ils sont beaucoup plus solides que les structures en plastique courantes. De plus, en évitant de démonter le rebord de la fenêtre, vous pouvez économiser de l'argent. La seule condition est que le rebord de la fenêtre soit intact (non fissuré).


Dimensions, paramètres, temps d'installation
Il existe une certaine liste de recommandations à suivre lors du choix, de l'installation et du remplacement de cet élément du bloc de fenêtre:
- Hauteur au-dessus de la surface du sol. C'est le seul paramètre qui ne peut pas être modifié - la position est définie par le profil de base. Mais vous pouvez corriger la position de la batterie si elle n'est pas correctement positionnée. La distance entre le radiateur et le bas du rebord de la fenêtre doit être d'au moins 50 mm. Et si ce n'est pas le cas, la batterie doit être abaissée plus bas, mais pas à moins de 100 mm de la surface du sol. Ces lacunes offrent les conditions de convection naturelle les plus favorables.
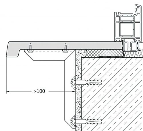
- Largeur... Cette dimension est déterminée par la profondeur de l'ouverture de la fenêtre. Plus précisément, la partie de celui-ci qui se situe à l'intérieur de la pièce par rapport au profilé support. En règle générale, la largeur du panneau d'appui de fenêtre est choisie de telle sorte que son bord ne dépasse pas de la surface du mur (avec la finition) de plus de 50 mm. Cela est dû aux particularités de la convection de l'air chaud de la batterie pendant la période de chauffage. Et s'il est nécessaire d'avoir un large rebord de fenêtre, il est alors nécessaire d'y insérer un treillis décoratif.
- Longueur... Habituellement, le produit installé pénètre dans la paroi de l'ouverture de 30 à 50 mm par rapport à la surface du revêtement de la pente. S'il s'agit d'un bloc de balcon, le surplomb dans la zone de la porte est d'environ 15-25 mm (en tenant compte de l'angle de l'aube, cette distance est d'environ 50-60 mm le long du bord de l'ouverture de la porte de balcon).


Noter. En choisissant la largeur, tenez compte du fait que le rebord de la fenêtre s'insère dans le profilé de support 10 mm plus profondément que la surface avant du cadre. Et lors de son remplacement, avant de terminer les travaux, la profondeur du revêtement est prise en compte. C'est facile à faire s'il existe déjà des balises pour le plâtrage ou un cadre pour le revêtement mural.
C'est mieux lorsque le remplacement du rebord de la fenêtre a lieu lors d'une réparation esthétique (avec une révision majeure, les cadres sont également changés). Et ils le font au dernier moment, avant de terminer, lorsque le principal travail "sale" est terminé - une couche de base de plâtre est appliquée ou le cadre du revêtement mural est recouvert de plaques de plâtre (clin). A ce moment, les risques de détérioration de la surface sont moindres.
Dans quelles situations pouvez-vous avoir besoin de remplacer le rebord de la fenêtre
Étant donné que dans la plupart des cas, le remplacement du rebord de la fenêtre est effectué simultanément avec l'installation de nouvelles fenêtres, les cas d'installation séparée ne sont pas si courants.Fondamentalement, de telles activités sont effectuées lorsqu'un ancien élément structurel est devenu inutilisable ou lorsqu'une équipe d'installateurs a terminé l'installation de blocs de fenêtre et qu'il a été décidé d'installer des appuis de fenêtre lors des travaux de réparation à venir. Pour plus d'informations sur les cas d'un remplacement séparé, consultez un article spécial sur WindowsTrade.
Préparation de l'installation
Avant de remplacer le rebord de la fenêtre en plastique, vous devez préparer l'endroit. La séquence des opérations est la suivante :
- Enlevez tous les "excédents" laissés après le démontage de l'ancien produit : cales et supports de montage, restes d'ancien mortier ou mousse, enduit émietté des bords de l'ouverture.
- Si, lors du démontage, à travers des fissures formées dans le joint de montage de la fenêtre sous le profilé d'installation, elles sont "soufflées" avec de la mousse ou recouvertes d'un mélange de réparation ciment-sable.
- Avec une augmentation de la longueur du nouveau produit par rapport à l'ancien, les rainures sont en outre approfondies dans les pentes de l'ouverture.
- Les blocs lâches sont renforcés dans le mur de briques dans la partie inférieure de l'ouverture - si nécessaire, ils peuvent être retirés du "nid" et déposés sur un nouveau mortier de maçonnerie.
- Niveler la zone d'ouverture. Si un nouveau produit est installé sur de la colle mousse, l'espace entre celui-ci et la surface de la plate-forme doit être d'environ 10-15 mm pour que le tube de la bombe aérosol ou le pistolet de montage puisse entrer. Lors de l'installation de panneaux en pierre naturelle ou en matériaux composites, des adhésifs spéciaux sont utilisés avec une épaisseur de couche ne dépassant pas 5 mm.
Installer un nouveau rebord de fenêtre
- Nous nettoyons la surface des débris et de la poussière.
- Nous approfondissons les parties inférieures des pentes - 5 centimètres pour chaque pente. Dans ces niches, nous insèrerons les bords du rebord de la fenêtre pour une fixation plus rigide ;
- Nous avons coupé le rebord de la fenêtre.
- Nous le plaçons à la fenêtre, mettons des blocs de bois, nivelons le plan horizontalement et le «saisissons» avec des vis autotaraudeuses aux endroits où il est possible de le faire.
Réglage du seuil "par niveau" - Humidifiez légèrement les surfaces en pierre sous le rebord de la fenêtre avec de l'eau et soufflez le tout avec de la mousse de polyuréthane.
Astuce : pour que la mousse ne « soulève » pas le rebord de la fenêtre lors de l'expansion, mettez quelque chose de lourd sur la surface du produit pendant qu'il sèche. Il peut s'agir de bouteilles d'eau, de briques, etc.


Un exemple de "charge" sur un rebord de fenêtre
En principe, c'est tout - le travail est terminé. Il reste à nettoyer après soi et la structure peut être utilisée. Nous espérons que vous vous souviendrez comment laver le rebord de la fenêtre en plastique après la réparation, nous en avons déjà parlé ci-dessus.
Qu'est-ce qu'il serait
Nous vivons à une époque de progrès technologique. De nos jours, il y a tellement de matériaux de construction, et ils sont tous si divers et polyvalents que nos ancêtres nous auraient enviés. Et cela ne s'applique pas seulement à la durabilité et à la qualité. C'est aussi une belle apparence esthétique, ce qui est important.
Si nous parlons de rebords de fenêtre, les modèles modernes sur le marché sont présentés en différentes versions. L'assortiment de produits est si grand que vous pouvez choisir un modèle qui s'intégrerait idéalement dans la décoration intérieure, remplirait pleinement ses fonctions, présenterait diverses caractéristiques de conception, supporterait toutes sortes de charges et aurait un prix très raisonnable.


Appui de fenêtre en plastique
Produits en plastique... Ils sont parmi les matériaux les plus recherchés sur le marché car ils sont disponibles pour la plupart. Malgré le bas prix, le rebord de fenêtre en plastique peut être qualifié de pratique et fiable, résistant à la lumière et à la chaleur, capable de vous servir longtemps, car il ne pourrit pas. Cependant, sous de fortes contraintes mécaniques, il peut casser. Compte tenu du fait que le matériau est d'origine synthétique, un tel appui de fenêtre présente un bon respect de l'environnement, ce qui est très important, en particulier pour les familles qui ont de jeunes enfants.Et bien sûr, l'un des avantages importants des produits en plastique est une large gamme de couleurs et de configurations de produits, ainsi que leur faible poids. Ce fait vous permettra de choisir exactement le rebord de fenêtre qui sera en harmonie avec l'ensemble de l'intérieur de votre maison. Il convient également de noter qu'un tel appui de fenêtre peut être remplacé selon un schéma simplifié.


Appui de fenêtre en bois
Artisanat en bois. L'arbre sera toujours à la mode. Le naturel fascine toujours et donne de la noblesse au produit. Ce matériau était encore utilisé par nos lointains ancêtres, mais est resté pertinent à notre époque et ne perd pas sa popularité. Les appuis de fenêtre en bois donneront une sensation de chaleur et de confort dans la maison, d'autant plus qu'ils ont un beau motif naturel et une texture agréable à l'œil. Si vous êtes un connaisseur des matériaux écologiques et naturels, vous devriez privilégier cette option. Grâce aux technologies modernes, le traitement préliminaire des matières premières permet de garantir que les produits finis ne pourriront pas, ne se déformeront pas ou ne se briseront pas pendant le fonctionnement. Mais, bien sûr, vous devez payer pour tout cela, et beaucoup. Le prix des produits en bois est beaucoup plus élevé que celui du plastique, donc tout le monde ne peut pas se les payer. Si vous êtes un connaisseur de la race de la plus haute classe, les seuils en bois massif coûteux vous conviennent.
Il existe également des options à petit budget fabriquées à partir de matériaux tels que le MDF et l'aggloméré.


Acrylique
Produits acryliques. Des appuis de fenêtre très durables et fiables, qui gagnent de plus en plus en popularité en raison de leurs qualités. Oui, ils coûtent 2 à 3 fois plus cher que les produits en PVC (plastique), mais vous ne payez pas en vain. Après tout, de tels appuis de fenêtre sont capables de supporter non seulement le poids des objets qui y seront installés, mais également le poids d'une personne. Souvent, à l'aide de tels appuis de fenêtre, ils équipent une zone de loisirs, agrandissant la toile et ajoutant des oreillers pour plus de confort. Ici, vous pouvez vous asseoir avec une tasse de thé et regarder ce qui se passe dans la rue depuis la fenêtre. Ils présentent de nombreux avantages : ils ne se rayent pas, ils n'ont pas peur des poids lourds, du liquide renversé ou d'une cigarette tombée. Ils sont faciles à entretenir et à nettoyer. Ils ne perdent pas leur aspect d'origine, malgré la longue durée de vie. Et ce qui est important, ces produits peuvent être de n'importe quelle couleur et forme. C'est le cas lorsque le prix est tout à fait cohérent avec la qualité, et même plus.


De Pierre
Produits en pierre naturelle et artificielle. Comme avant, et maintenant, la pierre reste également un matériau populaire dans la construction. Mais de tels appuis de fenêtre peuvent ne pas s'intégrer à l'intérieur de votre pièce. Ce n'est que lorsque tout est correctement sélectionné que les revêtements de marbre et de granit ajoutent de la solidité et du raffinement à la décoration d'une maison ou d'un appartement. Leur principal avantage est la durabilité et la fiabilité. Néanmoins, les appuis de fenêtre en pierre ne peuvent pas toujours être qualifiés de sûrs, car ils sont suffisamment lourds et radioactifs.
Ce ne sont pas tous les matériaux à partir desquels les appuis de fenêtre peuvent être fabriqués, mais ce sont les principaux et les plus populaires. La décision du matériau à choisir vous appartient. Commencez par vos moyens, les fins auxquelles le rebord de la fenêtre servira et par la décoration intérieure. D'accord, un rebord en pierre près d'une fenêtre en plastique est le plus souvent inapproprié, surtout lorsqu'il n'y a pas d'éléments de décoration en pierre dans la pièce. Compte tenu de tous les facteurs, vous pouvez obtenir l'option parfaite. Vous ne devez pas lésiner sur la qualité, car cela peut affecter l'avenir.
Une nuance importante lors du choix d'un design approprié réside dans ses paramètres et ses dimensions. Lors du choix d'un produit, veuillez noter que sa longueur doit dépasser la largeur de la fenêtre de quelques centimètres (10-20), mais la largeur est choisie en fonction des préférences personnelles, mais uniquement pour qu'elle ne recouvre pas le radiateur de chauffage. Il est seulement important de ne pas en faire trop pour que le rebord de la fenêtre installé ne se brise pas à un endroit où il n'y a pas de support.
Nous avons choisi le rebord de la fenêtre, regardons les instructions détaillées sur la façon de l'installer correctement de nos propres mains.
Raisons de la popularité
La demande de fenêtres sur le marché est associée à un certain nombre d'avantages qui les rendent attrayantes.Ces avantages incluent :
- caractéristiques d'isolation acoustique;
- propriétés d'isolation thermique;
- haute résistance à l'humidité;
- la sécurité incendie;
- sécurité sanitaire tout en respectant les normes de fabrication environnementales et technologiques ;
- facilité de soins;
- facilité d'installation, de démontage, de remplacement des pièces endommagées ;
- compatibilité avec presque tous les intérieurs;
- longue durée de vie (40-50 ans) avec un bon fonctionnement;
- prix abordable pour le consommateur moyen.


Les éléments
désavantages
Il n'y a pas de choses idéales, le métal-plastique a aussi des caractéristiques négatives.
En raison de l'étanchéité, lorsque la différence de température entre les locaux et l'extérieur, la condensation s'accumule dans les fenêtres, elles sont donc plus souvent ouvertes et ventilées que celles en bois.
Le côté faible des fenêtres en plastique est un élément structurel vulnérable - un rebord de fenêtre. En raison de son emplacement horizontal et de son objectif, il est plus à risque d'impacts négatifs.
Le plastique ne résiste pas aux charges importantes, notamment aux chocs. Par conséquent, il n'est pas recommandé de placer des objets lourds sur le rebord de la fenêtre.
Le plastique ne doit pas être exposé à des influences de températures élevées (fond, change de forme). Il est difficile d'imaginer que l'hôtesse mettrait une bouilloire ou un fer chaud sur la surface, mais elle est endommagée de la manière la plus inattendue. Le bocal en verre avec l'oignon agit comme une lentille qui focalise les rayons. La surface s'échauffe, se déforme.
Il n'est pas recommandé de faire un rebord de fenêtre de plus de trois mètres de long. Sous les rayons du soleil, la surface se réchauffe, elle peut gonfler au centre - un remplacement est nécessaire.
Le seuil chauffe les dépôts de boue plus rapidement que les pentes. Pendant les réparations, de la peinture, du mastic et de la mousse de polyuréthane peuvent accidentellement pénétrer. Tenter de nettoyer le rebord de la fenêtre avec des substances abrasives endommagera le revêtement.
Ne nettoyez pas les pièces en plastique des taches avec des substances agressives (acides, acétone, alcalis forts). Sous leur action, des fissures microscopiques se forment dans le PVC, qui se dilatent et endommagent le revêtement.
Le rebord de la fenêtre peut changer de couleur (foncé, jaune). Une construction de mauvaise qualité en plastique de second ordre s'effondre rapidement. Par conséquent, il est recommandé d'acheter des fenêtres auprès de fabricants ayant une bonne réputation sur le marché.
Matériaux et outils


Vous aurez besoin d'une nouvelle toile d'une forme, d'une couleur et d'une taille appropriées. Après l'achat d'un modèle, vous devez vous procurer tous les outils nécessaires. Tu auras besoin de:
- roulette;
- niveau du bâtiment;
- marteau ou ciseau;
- perforateur;
- scie sauteuse;
- mousse de montage;
- couteau d'assemblage;
- papier de verre;
- mastic silicone;
- petits blocs de bois;
- peinture pour pentes.
Conseil La largeur du produit est arbitraire, mais la longueur doit être supérieure de 10 à 20 centimètres à la largeur de la fenêtre.
























