Si vous décidez d'acheter de nouvelles belles portes, faites attention à savoir si le kit, qui comprend le vantail de la porte, le cadre, la poignée et la serrure, les charnières de la porte. Si le design est vendu sans charnières, vous devez les choisir et les installer vous-même sur la porte. Ce processus doit être traité de manière responsable, car des ferrures inadaptées peuvent gâcher l'apparence de la porte et une mauvaise installation peut entraîner un vantail de porte de travers et des problèmes pendant le fonctionnement.
Aujourd'hui, il existe de nombreux types de charnières de porte, qui diffèrent par leur apparence, leur méthode de fixation et leur fonctionnalité.
Types de boucles
Si vous regardez comment les boucles du master sont coupées, il semble que ce soit une question difficile. En réalité, le travail est simple, il suffit de choisir les bons accessoires. Par constructions les types de produits suivants sont le plus souvent utilisés :
- Droit. La plus courante, consistant en une charnière avec des plaques de montage latérales. Les auvents sont appelés cartes ou papillons.

- Coin. Les ferrures sont destinées aux portes intérieures avec un "euro-quart" (un rebord qui cache l'espace entre le vantail et le cadre de la porte). Semblable aux précédents, seules les plaques latérales sont constituées de coins.


- Visser. La conception des charnières est un axe de pivot avec des goujons soudés sur le côté au lieu de plaques de fixation. Conçu pour les toiles légères.


- Caché. Les ferrures sont installées sur des portes d'entrée coûteuses. La conception de la charnière dissimulée est une charnière encastrée lorsqu'elle est installée dans le corps du bloc de porte.


- Italien. Le matériel diffère des charnières cachées dans la conception de la charnière. Le mécanisme est installé sur des portes importées coûteuses.
Par méthode d'installation il existe trois types de boucles :
- Aérien. Les ferrures sont simplement fixées avec des vis autotaraudeuses à la surface de la porte et du cadre sans découpe préalable de l'évidement.


- Mortaise. Les évidements sont choisis pour les raccords. Les plaques de fixation affleurent les surfaces de la porte et du cadre.


- Visser. Les raccords ont des goupilles au lieu de plaques de fixation. Lors de l'installation, ces goupilles sont vissées dans le corps du bloc de porte.


Par sens d'ouverture de la porte les boucles sont :
- Gaucher. L'ouvrant ne peut être ouvert que vers la gauche.
- Côté droit. L'ouvrant ne peut être ouvert que vers la droite.
- Universel. L'ouvrant peut être ouvert à droite et à gauche.


Les charnières universelles peuvent être fixées sur le côté droit ou gauche de la porte, ce qui crée un avantage de montage. L'inconvénient est la difficulté d'enlever rapidement l'ouvrant.
Outils requis
L'installation de la charnière commence par la préparation des outils. Il suffit d'avoir l'ensemble le plus simple :
- marteau avec un ciseau;
- tournevis droit et bouclé;
- Tournevis;
- perceuse électrique;
- crayon;
- niveau à bulle.


Si un grand nombre de coupes est prévu, il est pratique d'utiliser une toupie à main. Parmi les matériaux, des cales sont nécessaires pour les entretoises de la toile dans la boîte et les vis autotaraudeuses.
Balisage
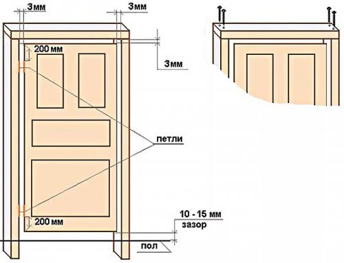
Commencez l'installation des charnières de porte avec un marquage. Selon la conception des raccords, le processus d'installation a ses propres caractéristiques. Le point général est que les charnières des portes intérieures sont installées à une distance de 20 à 25 cm des bords supérieur et inférieur. Il ne doit y avoir aucun nœud, éclat ou autre dommage au point de fixation. S'il y a un défaut dans la bande, les boucles sont déplacées.


Le processus de marquage lors de l'installation de charnières sur une porte consiste à délimiter le contour des plaques de montage ou des broches. Les étapes suivantes dépendent du type de raccords. Les modèles suspendus sont simplement fixés avec des vis autotaraudeuses. Pour les fixations à mortaise, choisissez un évidement avec un ciseau ou une fraise. Pour les modèles à visser, des trous sont percés.
Vous devez marquer pour que l'échantillon fabriqué ne s'avère pas trop profond. Cela fera plier la porte. Lorsqu'une telle nuisance se produit, la profondeur de l'échantillon est réduite avec des tampons en carton.


Si beaucoup de travail est censé être fait, un dispositif spécial aidera à le simplifier - un gabarit pour couper en boucles. Le modèle peut être acheté ou fabriqué à partir de contreplaqué. Le gabarit est fixé avec des pinces sur la section marquée du vantail de la porte et un évidement est sélectionné dans sa partie intérieure avec une fraise.
Après marquage, la porte est placée dans une boîte en la calant avec des cales de manière à obtenir le même écart d'environ 3 mm autour du périmètre. Les prochaines étapes consistent à déterminer le lieu de fixation de la contrepartie de la charnière sur le cadre. La position du vantail est vérifiée avec un niveau pour éviter les déformations. Lorsque la toile est uniformément exposée, le lieu de fixation de la deuxième partie de la boucle est marqué sur la boîte.
Méthode professionnelle et fonctionnalités d'application
Beaucoup de gens préfèrent la méthode professionnelle, dont l'avantage est la rapidité et la facilité de mise en œuvre. Le plus souvent, les travailleurs professionnels utilisent cette méthode pour assurer une installation rapide.
Ce genre de travail nécessite les bons outils. Tout d'abord, vous avez besoin d'une fraiseuse à main. Il est utilisé pour organiser une coupe nette. Aussi, armez-vous à l'avance des outils qui vous permettront de réaliser l'encart lui-même. Cet outil suppose une sorte de superposition dont la tâche est d'exclure les dommages au vantail de la porte.
Vous aurez besoin d'outils qui vous permettront de supporter les dimensions sous les auvents. Cela simplifiera le processus d'installation. Équipement qui permet de créer une rainure à la fois sur la boîte et sur la toile. Cela permet à deux parties du cadre de la porte d'être reliées entre elles. Le résultat est qu'il n'est pas nécessaire d'utiliser un alignement de rainure.
Si de tels outils ne sont pas disponibles, car ils appartiennent au type d'équipement professionnel, ne vous découragez pas. Il sera possible de terminer le travail à l'aide d'une fraiseuse. Aucune compétence spécialisée n'est requise pour cela. vous pouvez apprendre à travailler avec l'appareil en cours d'utilisation. L'inconvénient dans ce cas est le besoin de beaucoup de temps.
Traitez le mécanisme lui-même avec soin. Cela éliminera l'apparition de rayures sur la toile. L'apparence de la structure de la porte restera inchangée. Enduire la fraiseuse d'un matériau de protection spécial y contribuera. Vous pouvez privilégier le feutre.
Diverses options de charnière
Comment installer des charnières de porte?
À la fin du marquage, ils commencent à installer les charnières de la porte, mais déterminent d'abord la présence de nuances supplémentaires. Le principal problème peut être le poids important de la toile. Les portes intérieures sont généralement creuses et légères. Si le châssis est en chêne massif ou autre bois lourd, deux charnières ne le supporteront pas. La solution consiste à insérer le troisième élément au centre de la toile. Ensuite, les boucles supérieure et inférieure peuvent être rapprochées du bord.


Lors de l'installation de charnières sur les portes intérieures de vos propres mains, il est utile de prévoir à l'avance dans quelle direction elles s'ouvriront. Pour que le vantail n'endommage pas le meuble ou le mur, des butées sont montées dans le sens du mouvement.
Méthodes d'installation
Il est monté de différentes manières, selon le type de raccords. L'installation de charnières universelles nécessite une analyse distincte, principalement elles sont fixées aux portes intérieures. Trois options pour la réalisation des travaux :
- Méthode de superposition. La fixation s'effectue par le haut, sans découper la structure. L'élément est fixé avec du matériel;
- Barre latérale. Avant de fixer la pièce, le bois est retiré de la boîte et la porte est percée. Les plaques sont installées au même niveau;
- Méthode de vissage. Pour cela, des trous sont percés et l'attache elle-même comporte des broches qui relient la boîte et la toile. La moitié de l'œillet va dans le corps de la porte.
Selon la façon dont la porte s'ouvrira, il existe des charnières pour le côté gauche, le côté droit et une option universelle. Le dernier type est le plus optimal. C'est lui qui est racheté par tous les maîtres qui viennent faire appel à la pose de portes. Le seul inconvénient de ce produit est qu'il est difficile de retirer la toile si vous devez réaccrocher la structure ou l'ajuster.


Comment installer des charnières papillon sur une porte intérieure ?
Il est possible d'installer des charnières papillons suspendues même après avoir monté la boîte. Les plaques de fixation ne sont pas fixées à l'extrémité de la toile, mais à la surface avant. Effectuez des actions similaires sur le cadre. La porte est fermement calée dans le cadre, en observant les espaces autour du périmètre. Vérifiez l'horizontalité, la verticalité avec un niveau. Un papillon est appliqué, les points d'emplacement des vis sont marqués, des trous sont percés. Les évidements pour les plaques de montage ne sont pas sélectionnés. Les charnières sont simplement vissées sur le corps du bloc de porte.


Installation de charnières coupées
Il est plus facile de faire l'installation des charnières sur les portes intérieures de vos propres mains lorsque la boîte n'est pas encore fixée dans l'ouverture. Cette règle s'applique à l'installation de raccords standards qui nécessitent un raccordement. Tout d'abord, une partie de la charnière est appliquée à l'extrémité du châssis. Avec un crayon, tracez le contour de la plaque de montage, marquez l'emplacement des trous pour les vis. En marquant, choisissez un évidement avec un ciseau ou une fraise. Un trou est percé sous les vis. Lorsque tous les travaux préparatoires sont terminés, les ferrures sont fixées à l'extrémité du vantail.
Il est conseillé de couper les boucles avec une toupie, car l'outil peut sélectionner avec précision l'évidement. Des burins ou un échantillonnage supplémentaire sont obtenus à partir du burin. La profondeur est réduite avec des tampons en carton, mais ils se détériorent avec le temps. La porte commence à vaciller et à s'affaisser.
Pour continuer à insérer les charnières dans les portes intérieures, la boîte est placée horizontalement. Une toile est posée à l'intérieur du cadre. Un marquage similaire, ainsi que la découpe de rainures, est effectué sur la crémaillère de la boîte pour la partie de fixation correspondante du papillon. Lorsque les ferrures sont solidement fixées avec des vis autotaraudeuses, le bloc de porte est placé verticalement et ils essaient d'ouvrir le vantail. Si tout va bien, la toile est retirée et l'installation du tuyau dans l'ouverture commence.
Insertion de charnières à visser
L'insertion de raccords cachés et vissés est plus difficile à réaliser. Vous aurez certainement besoin d'un outil électrique. Pour installer des charnières cachées, vous avez besoin d'un routeur manuel. Procédez comme suit :
- Au bout de la toile et du rack de la caisse, l'emplacement des auvents est marqué.
- Les rainures sont sélectionnées avec une fraise. Si une coupe supplémentaire est nécessaire, un ciseau est utilisé pour donner à la rainure la forme souhaitée.
- L'auvent caché est en deux parties. Les raccords sont démontés avant l'installation. Pour insérer correctement les charnières cachées, vous devez faire attention à la taille des détails. Une partie de la verrière de grandes dimensions est toujours montée sur le caisson. Une partie plus petite est attachée au châssis.
- Les deux parties de la verrière sont fixées dans les évidements avec des vis autotaraudeuses. La porte est placée dans une boîte, les ferrures sont reliées, serrées avec une vis de fixation.
Pour installer des charnières à vis, il suffit d'avoir une perceuse électrique. Les raccords sont généralement vendus avec un gabarit de montage.


Le point d'entrée des broches de fixation est marqué sur la toile et la boîte. Les trous sont percés selon le marquage. Les auvents à visser sont divisés en moitiés, ce qui simplifie grandement leur installation. Chaque élément est fixé au caisson et au châssis.Lorsque vous suspendez la porte, connectez simplement les deux moitiés de la verrière à vis.
Choisir les charnières
Avant d'acheter un produit, comptez leur nombre, décidez de l'orientation des pièces. Et si dans le cas d'une porte à deux vantaux, tout est clair: une partie de la structure est fixée aux charnières droites et pour la seconde, il faut utiliser la verrière gauche, alors pour un système à un vantail, tout est beaucoup plus compliqué. Par conséquent, déterminez la direction des produits. Faites-le comme suit. Tenez-vous du côté où la structure s'ouvre. Ensuite, inspectez les charnières. Si la verrière est à droite, alors elle est droitière, à gauche est gaucher.


Exemples de charnières de porte sur le marché de la quincaillerie
Déterminez correctement le nombre d'éléments. Ceci est fait en tenant compte du poids total de la structure intérieure. En règle générale, le choix des ferrures pour portes intérieures ordinaires implique l'achat de deux produits.
Ainsi, pour une porte à deux vantaux, utilisez 2 éléments. Mais pour une conception à un seul vantail, qui est plus lourde, vous avez besoin de 3 charnières. Les systèmes d'entrée peuvent être fixés sur 4 auvents.
C'est important à savoir ! Lors de l'achat de charnières, il sera correct de les tester pour l'ouverture-fermeture. Cette approche vous permettra d'identifier les défauts, la courbure de la tige. Comme le dit la pratique, il s'agit d'une panne courante.


Conception bien installée
Assurez-vous que les produits correspondent à la couleur des autres types de quincaillerie de porte. La même règle doit être prise en compte lors de l'achat de vis et de vis autotaraudeuses. Ensuite, ces détails seront moins visibles et s'intégreront dans le style de conception général. Il convient également de comprendre que l'achat de vis autotaraudeuses exclura le travail avec une perceuse, ce qui réduira le risque d'endommager le vantail et le cadre de la porte.
Installation de charnières à barres
La découpe des charnières de porte à barreaux s'effectue différemment en raison de la conception. Le produit se compose de deux abris de printemps. Le châssis peut s'ouvrir dans n'importe quelle direction avec un retour ultérieur à sa place d'origine.


Pour encastrer les charnières à barres, les instructions d'installation prévoient les éléments suivants :
- Une clé est incluse avec les auvents de bar. S'il n'est pas là, vous pouvez prendre un hexagone de taille appropriée et relâcher la tension sur les ressorts.
- Un marquage est appliqué sous les plaques de fixation à l'extrémité du vantail et du cadre de porte.
- L'installation implique une sélection obligatoire des évidements. Sans eux, l'écart entre la toile et le cadre sera d'environ 12 mm.
- Les éléments des ferrures sont fixés avec des vis autotaraudeuses.
D'autres étapes visent à ajuster les ressorts. Ils peuvent casser, vous devez donc les enfiler, mais n'en faites pas trop. Le serrage s'effectue avec une vis dans le sens des aiguilles d'une montre. Au cours du réglage, vérifiez la régularité de l'ouverture de la porte. Lorsque le ressort est bien serré, le vantail est tiré fermement sur le côté. Si la tension est relâchée, la fermeture brutale du vantail de la porte se terminera par un choc contre le coffre en raison de l'échec du mécanisme de déclenchement. La compression des ressorts est vérifiée périodiquement pendant le fonctionnement. Au fil du temps, ils s'affaiblissent, nécessitant un ajustement supplémentaire.


N'importe qui pourra insérer des auvents de tout type. Le matériel spécifique tel que les charnières de barre est couramment utilisé sur les portes des bars, des magasins et d'autres lieux publics. À la maison, de tels auvents ne sont pas demandés.
Poids du vantail intérieur
C'est l'une des caractéristiques de base, compte tenu des ferrures sélectionnées. Il est clair que les modèles suspendus en alliage d'aluminium ne supporteront pas une feuille de verre lourde, ils ne peuvent donc pas être fixés, et les puissants cachés rendront l'ouverture et la fermeture d'un châssis en plastique léger assez difficile.
Les matériaux les plus courants pour les portes intérieures sont les suivants.
- Le plastique est une option pour le bureau. Économique, léger, mais pas trop durable. Il nécessitera les raccords légers les plus simples.
- Panneau ouvrant - est un cadre en bois doublé de feuilles de MDF. Le poids est minime, la résistance est faible, l'apparence est beaucoup plus présentable. Vous pouvez accrocher la facture, et les raccords à mortaise.
- Panneau de particules - une toile composée d'une feuille entière a une résistance assez décente. Ainsi, vous pouvez installer tous les raccords adaptés au poids.
- MDF - un châssis intérieur en MDF pèse beaucoup plus, est plus solide, plus durable, n'a pas peur de l'eau, a un aspect très esthétique. Les ferrures peuvent être fixées de toutes sortes - modèles suspendus forgés, cachés, mortaises, etc. Il peut être nécessaire d'installer plus de 2 éléments pour les plus grandes tailles.
- La toile en bois massif est l'option la plus élégante et la plus chère. Le plus difficile - ici, vous n'aurez probablement pas besoin de 2, mais de plusieurs éléments.























