Portes de balcon en plastique
La porte de balcon en PVC est une fenêtre ordinaire.ótaille plus grande.

Dans notre entreprise, Leningradskie Windows and Plafonds, un loquet de balcon + une poignée en pétale est déjà inclus dans le paquet de matériel. Lorsque vous sortez sur le balcon devant la porte, il y a une poignée en pétale. Si vous fermez la porte derrière elle, la porte ne pendra pas, mais s'encliquera sur le ressort dans le loquet du balcon. Si vous avez besoin de rentrer dans la pièce, il suffira de pousser la porte.
Dans de nombreuses entreprises, ce loquet de balcon n'est PAS installé par défaut, mais est ajouté moyennant des frais supplémentaires de l'ordre de 300 à 500 roubles. et seulement si le client lui-même l'a demandé.
Pour les portes de balcon, les ferrures de fenêtre Roto NT avec deux charnières de fenêtre sont utilisées.
Que sont les GOST et à quoi servent-ils?
Les GOST sont compris comme certaines normes établies à l'époque soviétique. À ce jour, ils sont à la base de la conception des locaux, ils sont clairement observés par les organismes de construction à chaque étape de la construction de l'installation.
Les GOST ont été développés dans un seul but: protéger les citoyens du pays et leurs biens lors de l'utilisation des chantiers de construction. Le respect des normes établies permet aux constructeurs de créer des conditions vraiment confortables et sûres pour l'utilisation des bâtiments, quelle que soit leur destination.
Il existe plusieurs options pour les paramètres des portes et des toiles sur les balcons et les loggias, en choisissant lesquelles, vous devez prendre en compte plusieurs points importants.
Portes d'entrée en plastique
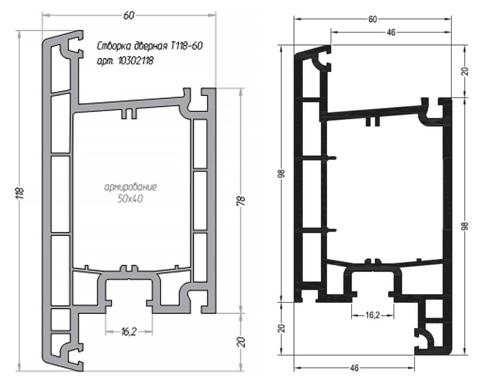
La porte d'entrée en métal-plastique est une porte avec un haut degré d'exploitation, par conséquent, un type différent de profilé à battant est utilisé - "vantail de porte". Contrairement au châssis de fenêtre habituel, dont la hauteur est d'environ 80 mm, le profil de châssis de porte spécial a une hauteur de 118 mm:


C'est un châssis renforcé pour des charges opérationnelles élevées en raison de la grande section de soudure et des poutres d'ouvrant.
Important! Dans ce type de châssis, le renfort est installé presque 2 fois plus en section transversale que dans les fenêtres, ce qui augmente considérablement la résistance de ce type de porte, réduit l'affaissement, les flèches, la torsion, etc.
De plus, lors du soudage des vantaux de porte, un insert spécial de renfort en PVC est inséré à l'intérieur des chambres (dans le cordon de soudure). Le résultat est un cordon de soudure continu dans les portes, pas seulement le long du contour de la section transversale. (dans les fenêtres, la soudure est soudée uniquement le long de la section des parois profilées). Tout cela augmente considérablement les caractéristiques techniques statiques de la structure.
Ces portes en PVC sont idéales pour les magasins, les bureaux, les centres commerciaux, ainsi qu'une porte d'entrée en plastique pour une maison privée ou une maison de campagne.
Exigences de sécurité incendie
Par défaut, les portes d'entrée en PVC doivent s'ouvrir dans le sens du mouvement lors de l'évacuation des locaux (exigences de sécurité incendie). Pour que la porte s'ouvre vers l'extérieur, tandis que les parcloses restent à l'intérieur de la pièce, au lieu du «vantail en Z», un «vantail en T» est utilisé. Dans ce cas, l'ouverture de la porte vers l'extérieur, s'articule de l'extérieur, tandis que les parcloses de vitrage de l'intérieur de la pièce.


Sinon, si les parcloses sont à l'extérieur - la porte peut être facilement ouverte - retirez les parcloses, sortez la fenêtre à double vitrage et entrez dans la pièce sans casser les serrures et sans casser le verre). Le dessin montre les deux types de châssis (châssis Z et T).
Les fenêtres à guillotine en T ne sont pratiquement utilisées par aucun fabricant de profilés.Dans le même temps, les fenêtres avec ouverture vers l'extérieur (vers la rue) ne doivent pas être installées au-dessus du premier étage pour des raisons de sécurité!
Notre production utilise deux types de systèmes de profilés pour les portes d'entrée en plastique:
- Brusbox 60-3, épaisseur 60 mm, 3 chambres, classe A, épaisseur de la paroi avant = 3 mm. Le cadre est utilisé à partir du profil Brusbox 60-4. Hauteur du cadre 64 mm, épaisseur 60 mm. Hauteur d'ouvrant 118 mm
- Rehau Termo (cadre de porte hauteur 68 mm + vantail 118 mm). Épaisseur 60 mm, 3 chambres, classe A, épaisseur de la paroi avant = 3 mm.
Caractéristiques des ferrures pour portes d'entrée en PVC
Pour les portes d'entrée en plastique, des ferrures de porte spéciales sont utilisées:


- set push-fit bidirectionnel blanc / blanc ou marron / marron
- ou stylos banane blanche ou brune.
D'autres options de couleur doivent être convenues lors de la commande.


- Verrouiller la clé / clé ou clé / enrouler
- trois grandes charnières de porte renforcées! Blanc ou brun (les charnières sont toujours situées sur le côté de l'ouverture de la porte. Si vers l'intérieur - puis à l'intérieur, si vers l'extérieur, puis à l'extérieur de la pièce).
Par défaut, dans presque toutes les industries, un ensemble de type poussoir avec un verrou à point unique est utilisé, c.-à-d. toute la porte est pressée d'un côté par 3 charnières et de l'autre côté en 1 point - la "languette" de la serrure. Il n'y a plus de pinces. Cela conduit à une opération complète sans garantie, le châssis peut être pressé de manière inégale en hauteur et en largeur, ce qui entraîne des fissures à travers lesquelles il commence à souffler. Ce n'est PAS un cas de garantie - tous les ajustements de châssis sont payés et sont temporaires.
Dans l'entreprise Leningradskie Windows and Ceilings, le coût d'une serrure à un point et des serrures à plusieurs points pour la hauteur de la porte avec un ensemble de poussoirs le même... Ceux. en plus d'un push-fit avec serrure, un lecteur avec 4 broches de hauteur est installé (déjà inclus dans le prix). Lors du démarrage d'une commande de travail dans le TK, il est nécessaire nécessairement prescrire le type de serrure à installer (point unique ou multipoint à partir de l'extrémité de l'ouvrant).


C'est un énorme avantage de notre entreprise. Lors de l'ajout d'une serrure multipoint dans de nombreuses industries, le coût d'une porte peut augmenter jusqu'à 2000 roubles.
Dans presque toutes les entreprises de fenêtres, par défaut, ce verrou n'est pas annoncé au client lors des pré-calculs, et dans la grande majorité des cas, après la mesure, il n'est pas non plus annoncé.
Soumettez votre candidature
Demander un appel
8 (812) 313-23-43
Si le client a besoin d'installer le support de poignée au lieu de l'emboîtement, le mécanisme de verrouillage multiple n'est PAS installé. Cette position est coordonnée avec la production moyennant un paiement supplémentaire. (en fait, pour presque toutes les portes avec poignées, un support ou une banane ne commandez pas de mécanismes de verrouillage multiple).
Attention: par défaut, toutes les portes sont fabriquées avec un seuil bas en aluminium (environ 20-25 mm), c'est-à-dire au lieu d'un cadre en PVC, un seuil en aluminium est installé en bas. Conçu pour des charges de fonctionnement élevées et en toute sécurité, car bas pour ne pas trébucher)
Lors de l'installation d'un seuil en aluminium, la porte cesse automatiquement d'être étanche à la garantie, car au bas du seuil en aluminium, il n'y a pas de deuxième circuit d'étanchéité. Dans ce cas, au moindre changement dans la stabilité de forme du vantail et / ou à la déformation du joint (la partie inférieure de la porte - charge de fonctionnement élevée et saleté), le soufflage / congélation commencera le long du bas de la porte. Ceci n'est PAS un cas de garantie.


Si vous avez besoin d'une meilleure étanchéité - au lieu d'un seuil en aluminium, nous pouvons fabriquer un seuil de cadre en PVC.


Dans ce cas, un deuxième contour de joint apparaît, ce qui améliore l'étanchéité et réduit les risques de soufflage. Avec cette conception, la hauteur du seuil en PVC sera de 60 (Brusbox) ou 68 mm (Rehau Termo) + l'épaisseur du joint d'assemblage inférieur (voir Fig.)
Ceux. il est nécessaire de marcher avec précaution pour ne pas endommager le «plancher».Cette version doit être utilisée pour les portes des maisons (s'il s'agit de la porte principale en pvc). S'il s'agit d'une deuxième porte de vestibule en pvc supplémentaire, alors, comme convenu avec le client, laissez l'aluminium, mais prévenez les conséquences possibles.
Les portes d'entrée en PVC ne sont pas des conceptions «standard». Ils sont fabriqués dans l'atelier / département de non standard (arches, trapèzes, tregolniks, portails, portes intérieures, etc.), de sorte que le temps de production est légèrement différent du temps de production standard de la fenêtre.
Définitions basiques
Afin de renforcer la structure de la porte, le profilé PVC est renforcé par des inserts en aluminium à l'intérieur. C'est pourquoi ces produits sont également appelés métal-plastique. Leurs exigences sont définies dans GOST «Blocs de portes en profilés PVC» (GOST 30970-2002). La taille et la forme des produits sont déterminées par le client.
Le GOST de la Fédération de Russie a été introduit le 1er mars 2003. Il définit les règles de désignation des blocs de portes en PVC et leur classification:
- sur rendez-vous;
- solution constructive;
- type de remplissage;
- conceptions de profil;
- finition.
Les fabricants produisant des produits en plastique PVC doivent être guidés par la norme. Les acheteurs apprendront également de GOST de nombreuses informations utiles qui les aideront à ne pas se tromper lors du choix d'un produit.
Les blocs de porte ont le but suivant :
- à l'extérieur, ceux-ci comprennent les portes d'entrée et les vestibules;
- intérieur, sont subdivisés en interchambre, balcon, salle de bains et WC.
Variétés de blocs de porte sur rendez-vous
De par leur conception, les blocs de porte sont divisés en un étage et un étage double. Un seul champ ouvert à droite et à gauche et sont désignés respectivement (P, L). Les doubles ailes sont le plus souvent équipées d'un système de fermeture shtulp. De plus, des blocs sont disponibles avec et sans seuil, avec une traverse sur le dessus ou sur le côté.
Le vantail de porte par type de remplissage peut être:
- sourd (rempli d'isolant);
- vitré (une fenêtre à double vitrage ou une plaque de verre est installée);
- léger (le fond est en toile et le dessus est en verre);
- décoratif.
Options de vantail de porte par type de remplissage
Le profil PVC des produits diffère par le nombre de chambres internes: deux, trois ou plus.
La finition de profil est divisée selon les types suivants:
- coloré dans toute la masse (blanc ou coloré);
- feuilleté;
- peint (vernis ou peintures).
Portes intérieures légères en plastique


Une porte intérieure en plastique ou «porte en plastique léger» est utilisée pour l'installation entre des pièces à charges d'exploitation modérées. Avec la nécessité d'installer une poignée sur 2 côtés et une serrure.
Fabriqué à partir de Brusbox Aero Z-sash. il s'agit d'un châssis en Z de fenêtre ordinaire, alors si la porte s'ouvre vers l'extérieur, les parcloses seront également à l'extérieur. Il n'y a pas de feuilles en T pour les portes intérieures en plastique. Dans ce cas, il est nécessaire de se mettre d'accord lors de la commande et de l'enregistrer dans la fiche technique.
Les ferrures pour portes intérieures en PVC sont installées dans deux configurations:
- Ferrures à pousser, clé de verrouillage / clé ou clé / enveloppe, mécanisme de verrouillage multiple comme dans les portes d'entrée, seuil en aluminium - tout est pareil que sur les portes d'entrée en PVC + 2 charnières de fenêtre sont installées.
- Ferrures à sertir, serrure clé / clé ou clé / enveloppe, mécanisme de verrouillage multiple comme dans les portes d'entrée, seuil en aluminium - tout est pareil que sur les portes d'entrée en PVC + 3 contribution boucles.
Il est impossible d'installer une poignée banane sur une porte intérieure en plastique, donc si le client est intéressé par une poignée banane, il est alors nécessaire de compter la "porte d'entrée en plastique", ce qui entraînera une augmentation des coûts.
Attention! En plus du mécanisme de verrouillage multiple sur les portes en PVC, qui ne sont installés qu'à partir de l'extrémité du vantail en hauteur, nous avons la possibilité d'installer un mécanisme de verrouillage multiple supplémentaire avec une pression sur le haut et le bas du vantail sur le portes d'entrée et intérieures en plastique.
Le coût d'un mécanisme de verrouillage multiple supplémentaire en haut et en bas du châssis est de 2500 roubles, des pinces sont installées en haut et en bas du châssis (sur les portes d'entrée en PVC, tous les fabricants n'installent PAS de pinces similaires autour du périmètre). Dans le même temps, au lieu d'un seuil en aluminium, un seuil de cadre en PVC est installé. Lors de la fermeture du verrou multipoint sur la porte (en soulevant la poignée), toutes les goupilles (rouleaux) sont fermées à partir de l'extrémité, du haut et du bas du châssis.
Cela vous permet de répartir le serrage de la ligne autant que possible le long du périmètre, ce qui réduit considérablement le risque de souffler à travers la porte en plastique. Ceci est recommandé pour les portes en PVC dans les maisons privées.
Il n'est pas possible d'installer une pince supplémentaire en haut et en bas avec un seuil en aluminium. Il est toujours nécessaire de sonner la pince supplémentaire séparément du mécanisme multipoint habituel, car presque dans toutes les entreprises, il n'est pas possible d'installer, en plus du mécanisme de verrouillage multiple de l'extrémité, des pinces du haut et du bas de l'ouvrant.
Sélection de ferrures et de profils
Lors du choix des ferrures pour portes de balcon en PVC, vous ne devez pas économiser d'argent, car l'efficacité et la durabilité de l'ensemble du système dépendent directement de sa qualité. Le moyen le plus sûr est d'opter pour des produits de fabricants renommés qui garantissent la qualité des produits. De plus, il est important que les raccords aient différentes options et leur adéquation dans chaque cas spécifique.
Lors du choix d'un profil, vous devez également faire attention au fabricant. Une marque bien connue valorise toujours sa réputation et ne produira pas de produits de mauvaise qualité. Avant d'acheter, vous devez lire les instructions et faire attention à la profondeur du profil. Ce paramètre affecte la capacité à installer diverses fenêtres à double vitrage, différant par le degré d'absorption du bruit et d'isolation thermique.
Caractéristiques de la commande de portes en PVC pour les magasins, les bureaux, etc.
Lors de la commande de portes de magasins, bureaux et centres commerciaux, il est impératif de se mettre d'accord sur la largeur NON de la porte, mais de «l'ouverture de la lumière de la porte propre». Conformément aux exigences de sécurité incendie, la largeur minimale d'une ouverture propre doit être d'au moins 800 mm.
Dans les portes à deux vantaux en plastique à deux vantaux, l'exigence est la même: ouverture claire de 800 mm dans le vantail actif actif, et non dans la largeur totale de l'ouverture entière. (Porte en PVC Shtulpovaya ci-dessous sur la photo - se compose de 2 portes, une fois ouvertes, il n'y a pas de poutre verticale (impost) entre elles au milieu.


Par exemple: si la largeur de la porte est de 1400 mm et la division est en deux, c.-à-d. l'ouvrant de travail selon les axes de 700 mm, puis l'ouverture claire et claire du vantail de travail = 700 - hauteur du châssis - la moitié de la largeur du châssis, soit = 600 mm, ce qui ne répond pas aux exigences de sécurité incendie des bâtiments publics.
L'ensemble des paramètres ci-dessus permet à notre société de vous proposer des portes PVC conformes à toutes les exigences et avec une étanchéité maximale.
Soumettez votre candidature
Demander un appel
8 (812) 313-23-43
Appelez-nous et nos responsables vous feront une estimation détaillée des coûts de l'option de porte dont vous avez besoin!
Portes en plastique
Portes intérieures
Portes d'entrée en métal
Désignations techniques
Les exigences définies dans GOST s'appliquent aux produits dont la superficie ne dépasse pas six mètres carrés. Dans ce cas, la surface de la toile d'ouverture ne doit pas dépasser 2,5 m2. La limite de poids de la bande est de 80 kilogrammes.
Lors de la fabrication de produits avec une surface ou un poids plus important, des calculs supplémentaires ou des tests de résistance doivent être effectués.
Lors de l'achat de portes en plastique, il est conseillé de comprendre les désignations données dans la documentation. Par exemple, déchiffrons la désignation du DPVM GB L 2200-1500 GOST 30970-2002.
Les premières lettres sont déchiffrées comme suit: DPV - bloc de porte PVC interne (ou DPN - externe). Il est permis de compléter avec un quatrième chiffre précisant le but de la porte: M - intérieur. Le type de remplissage interne de la bande est indiqué par un espace: D - sourd.Le sixième chiffre signifie: B - pas de seuil. La septième lettre L désigne une conception à un seul étage avec une indication de la direction du mouvement. La double porte est désignée par Dv. Les nombres 2200-1500 indiquent la taille du vantail de porte: hauteur et largeur.
Les dimensions de la porte des locaux d'habitation sont déterminées par les codes du bâtiment et ont les significations suivantes:
- hauteur - de 2170 à 2419 mm;
- largeur - de 70 à 910 mm.
Selon GOST, l'ouverture pour entrer dans l'appartement doit avoir une taille d'au moins 910 mm
Les dimensions maximales des toiles en plastique - la hauteur et la largeur pour des marques spécifiques sont prescrites dans la documentation technique (TU) pour un produit spécifique.
Documents normatifs applicables
La production de masse de portes et fenêtres en plastique a commencé à la fin du siècle dernier. En 1999, le GOST 30673-99 a été adopté, qui réglementait les exigences relatives aux profilés en PVC, à partir desquels les blocs de fenêtres et de portes étaient assemblés. La norme d'État permettait de mettre de l'ordre dans la production de produits en plastique, qui étaient auparavant fabriqués selon des spécifications techniques développées par chaque entreprise indépendamment.
Aujourd'hui, les portes de balcon en PVC sont produites conformément aux exigences des normes GOST 30674-99 et GOST 232166-99.
Pour les blocs en plastique de porte extérieure et les portes intérieures en PVC, GOST 30970-2002 est utilisé. Ce document réglementaire décrit la technologie de fabrication des portes en plastique, les valeurs standard des paramètres et les éventuels écarts par rapport aux normes.













