Défendant sa position sur le marché très concurrentiel des profilés de fenêtres en PVC, Rehau a renouvelé sa gamme de produits. Les fenêtres en plastique Rehau sont traditionnellement réputées pour la qualité du profilé. L'une des nouveautés les plus intéressantes de cette marque européenne populaire n'a pas fait exception. Les fenêtres Rehau Grazio ont déjà conquis les consommateurs par leur beauté, leur grâce et leur ergonomie. Le nouveau système de profils est structurellement différent des autres profils de cette entreprise et mérite une attention particulière.
| de 8 500 frotter | de 13 500 frotter | de 20 500 frotter | de 17 200 frotter |
Gamme de produits Rehau
L'assortiment de profils pour fenêtres de Rehau comprend les modèles suivants, dont les principales différences deviendront immédiatement claires:
—ConceptionFaire glisser - le modèle à trois chambres (coulissant) le plus abordable avec une profondeur technique de 60, un circuit d'étanchéité, un indice de conservation de la chaleur de 0,54 m2 ° C / W. Conçu pour le vitrage des bâtiments à parois minces ou anciens, ainsi que des vérandas, belvédères, tous locaux résidentiels non résidentiels situés dans des zones «chaudes» sans baisse significative de température en hiver.
euro- Euro-Design 60 - le même que le modèle précédent, mais non extensible et légèrement amélioré. Il y a encore trois chambres, la profondeur standard est de 60 mm, mais elle peut être augmentée à 70 (il y aura cinq chambres), le nombre de circuits d'étanchéité est augmenté à 2, ce qui augmente le taux de stockage de chaleur à 0,65 m2 ° C / W. Conçu pour le vitrage des appartements, des bureaux dans les zones à climat tempéré.
- Blitz- le modèle de base, en demande dans le segment «économique» en raison du prix abordable et des indicateurs techniques décents - profondeur d'installation 60 mm, 0,64 m2 ° C / W.
- action - une qualité abordable d'un fabricant de renommée mondiale en réponse aux concurrents nationaux. Le modèle a été développé par la société pour promouvoir des fenêtres vraiment solides, durables, chaudes et silencieuses parmi les consommateurs russes de classe économique. Le modèle à trois chambres a une profondeur de 60 mm et l'indice de stockage de chaleur est de 0,64 m2 ° C / W.
- Thermo—Conception- un classique mis à jour, connu depuis longtemps sur le marché russe, mais amélioré par le fabricant. Il y a maintenant quatre chambres avec la même profondeur de 60 mm, le coefficient de résistance au transfert de chaleur est passé à 0,78 m2 ° C / W - un profil idéal en termes de rapport qualité-prix pour les vitrages d'appartements dans les immeubles de grande hauteur.
- Sib—Conception- un modèle à trois chambres de la classe standard avec un thermobloc supplémentaire et une profondeur de 70 mm. L'indice de rétention de chaleur a été augmenté à 0,72 m2 ° C / W, les fenêtres peuvent facilement tolérer des températures allant jusqu'à -45 degrés, c'est-à-dire qu'elles conviennent pour une utilisation dans le Grand Nord.
- Plaisir—Conception - la version originale à cinq chambres, qui a une hauteur de cadre réduite à une profondeur de 70 mm (l'ouvrant + cadre ne fait que 109 mm par rapport à la norme 116-120), ce qui contribue à une plus grande pénétration de la lumière dans la pièce (de 10- 15%). Le coefficient de résistance aux déperditions thermiques est porté à 0,80 m2°C/W. Le modèle est recommandé par le fabricant pour les vitrages situés du côté «sombre» du bâtiment.
- Grazio - un profil à cinq chambres conçu par le fabricant pour les connaisseurs de formes gracieuses. Il a des valeurs d'isolation thermique élevées (0,85 m2 ° C / W) avec une profondeur de construction de 70 mm.
- Brillant-Design - une caractéristique distinctive de ce profil à cinq chambres est un design exclusif et une approche innovante de la fabrication de la structure. Toutes les caractéristiques techniques sont à un niveau élevé, la profondeur est de 70 mm et la résistance au transfert thermique est de 0,81 m2 ° C / W.
- Intelio - l'un des nouveaux produits haut de gamme, d'une profondeur de 80 mm, d'excellentes performances d'isolation hydraulique, phonique et thermique (0,95 m2 ° C / W). Convient pour le vitrage des appartements, des maisons dans des zones à forte baisse de température, ainsi que dans des endroits très bruyants.
- Geneo- innovation à six chambres du fabricant. Léger (40% de réduction de poids grâce à la technologie unique de renforcement de fibre RAU-FIPRO) mais cadre très solide qui peut être installé même dans les vieilles maisons. Le modèle de 86 mm de profondeur a le meilleur taux de rétention de chaleur de 1,05 m2 ° C / W, ainsi que des possibilités de conception illimitées.
Avantages et inconvénients des profils Rehau
La familiarisation avec la gamme de profils Rehau a permis de se faire une idée des options pour les futures fenêtres, ainsi que de voir la différence entre les modèles. Pour compléter le tableau, il convient d'analyser les avantages et surtout les inconvénients des produits de l'entreprise.
Avantages des profils
La comparaison des profils Rehau avec les propositions d'autres fabricants populaires (Veka, KBE) a permis d'identifier leurs principaux avantages:
, dont chacun a son propre objectif. La meilleure option pour eux-mêmes peut être facilement trouvée par les personnes à revenu moyen (produits de classe économique) et par les acheteurs matériellement sécurisés (modèles de classe standard et premium).

Vaste assortiment de modèles- Excellentes performances d'isolation thermique, même pour les modèles de base - le maximum est de 1,05 m2 ° C / W.
- Caractéristiques d'isolation acoustique élevées - jusqu'à 47 dB.
- La force du profil est au plus haut niveau, ce qui signifie que les fenêtres de celui-ci seront en sécurité pendant toute la période de fonctionnement.
- Application de technologies innovantes (RAU-FIPRO) a permis au fabricant de réduire le poids du cadre, ce qui élargit le champ d'application de ses fenêtres, entraîne moins d'usure sur les ferrures.
- Imperméabilisation des structures de fenêtres Rehau, en comparaison avec les produits de tous les autres fabricants, occupe une position de leader en termes d'indicateurs, et tout cela grâce à la forme particulière du joint (deux feuilles).
- Composition spéciale du profil (plus de 50 composants contre 20 pour la plupart des concurrents) le rend plus résistant, assure la préservation de la blancheur et de la brillance tout au long de la durée de vie.
- Surface de profil extra lisse contribue à réduire sa pollution, c'est-à-dire qu'il facilite grandement l'entretien - les fenêtres n'ont pratiquement pas besoin d'être lavées, il suffit de les essuyer 1 à 2 fois par an avec un chiffon humide.
- Le fabricant donne la garantie maximale pour le profil - 60 ans, confirmés par de nombreux tests en chambre à temps accéléré.
Contre des profils


La comparaison et la description des fenêtres Rehau seront incomplètes si nous gardons le silence sur leurs inconvénients, à savoir:
- Beaucoup de faux. Le meilleur a toujours été contrefait à tout moment. Les produits de Rehau n'y ont pas échappé non plus. Cependant, l'entreprise a trouvé un moyen de protéger ses clients contre les fraudeurs. Chacun de leurs produits est marqué d'un code de série unique. Pour vérifier l'originalité du profil, appelez la hotline (pour la Russie c'est le 8-800-555-33-55) et donnez ce code.
- Coût élevé. La plupart des modèles du fabricant se distinguent par un prix plus élevé par rapport aux produits des concurrents nationaux et également chinois. Cela est particulièrement vrai pour les profilés qui sont produits directement en Allemagne. Cependant, les produits de qualité avec une garantie de 60 ans ne peuvent pas coûter le même prix que les produits bon marché et de qualité inférieure qui doivent être remplacés tous les 10 ans.
- Déviation des normes. Tous les modèles de la société en termes d'épaisseur de la paroi extérieure ne sont pas conformes aux normes internationales existantes et au russe GOST 30674-99, selon lesquelles ce paramètre ne doit pas être inférieur à 3 mm. Dans certains modèles de la classe économique Rehau, l'épaisseur de la paroi est de 2,8 mm. L'écart par rapport à la norme de 0,3, bien que de manière insignifiante, affecte la résistance du produit, même s'il peut en même temps réduire considérablement son coût (de 10 à 15%).
Avantages Plasokna
Chaque client plasokna peut bénéficier d'un certain nombre d'avantages lors de la commande de produits pour fenêtres, dont le principal est le faible coût avec des produits de haute qualité.


La société plasokna présente des avantages indéniables par rapport aux autres fabricants, car elle est un partenaire agréé de la société de renommée mondiale REHAU, tous les produits sont donc soumis au contrôle de qualité le plus strict. Les composants utilisés en production sont certifiés sans faute.Les spécialistes de l'installation n'y sont admis qu'après une formation à la Rehau Academy et l'obtention du certificat approprié.
Examen des profils Rehau populaires
Pour en savoir plus sur les fonctionnalités des profils Rehau les plus populaires, il est nécessaire de comparer leurs caractéristiques techniques.
Blitz nouveau


Modèle à petit budget Blitz New, qui offre des performances d'isolation hydraulique, phonique et thermique décentes. Le cadre a un dessus plat et lisse et le châssis a une feuillure incurvée. Cette conception élimine l'accumulation d'humidité et la contamination de la fenêtre.
Caractéristiques principales (en mm) :
- Chamberness - 3.
- L'épaisseur de la paroi extérieure est de 2,8.
- La profondeur du système de profil est de 60.
- Indice d'isolation thermique - 0,70 m2 ° C / W.
- Le nombre de circuits d'étanchéité est de 2.
- Fenêtres à double vitrage - jusqu'à 32.
- Isolation acoustique - jusqu'à 20 dB.
| Données techniques | |
| Renfort, mm | 1,5 |
| Couleur du sceau | le noir |
| Hauteur du cadre, mm | 105 |
| Protection anti-effraction | décalage de 13 mm de l'axe de la rainure |
Conception THERMO


Le modèle économique THERMO-Design, éprouvé en action avec des défauts corrigés et des performances améliorées. Trois modèles de châssis sont disponibles - classique droit, design arrondi ou mono-plan.
Principales caractéristiques (en mm):
- Chamberness - 4.
- Épaisseur de la paroi extérieure - 3.
- La profondeur du système de profil est de 60.
- Indice d'isolation thermique - 0,78 m2 ° C / W.
- Le nombre de circuits d'étanchéité est de 2.
- Unité en verre - jusqu'à 40.
- Isolation acoustique - jusqu'à 25 dB.
| Données techniques | |
| Renfort, mm | 1,5 |
| Couleur du sceau | noir, blanc, gris |
| Hauteur du cadre, mm | 112 |
| Protection anti-effraction | décalage de 13 mm de l'axe de la rainure |
Rehau brillant


Un système de fenêtre Brillant unique de première classe, dont le design exclusif ajoutera noblesse et charme à l'apparence de n'importe quelle maison. Les modèles de ceinture sont élégants, arrondis, décalés ou biseautés, caractérisés par des formes douces.
Principales caractéristiques (en mm):
- Chamberness - 5.
- Épaisseur de la paroi extérieure - 3.
- La profondeur du système de profil est de 70.
- L'indice d'isolation thermique est de 0,81 m2 ° C / W.
- Le nombre de circuits d'étanchéité est de 2.
- Unité en verre - jusqu'à 40.
- Isolation acoustique - jusqu'à 36 dB.
| Données techniques | |
| Renfort, mm | En forme de U, 1,5 |
| Couleur du sceau | blanc |
| Hauteur du cadre, mm | 120 |
| Protection anti-effraction | décalage de 13 mm de l'axe de la rainure |
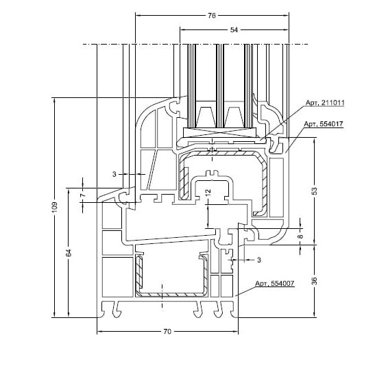
Rehau grazio


La forme gracieuse du profil Grazio est capable de satisfaire la nature la plus sophistiquée et de s'intégrer à l'intérieur avec n'importe quelle idée de design. Une approche de fabrication innovante a conduit à une augmentation des propriétés d'isolation thermique, ainsi qu'à une diminution du coût total du cadre.
Principales caractéristiques (en mm):
- Chamberness - 5.
- L'épaisseur de la paroi extérieure est de 2,8.
- La profondeur du système de profil est de 70.
- L'indice d'isolation thermique est de 0,85 m2 ° C / W.
- Le nombre de circuits d'étanchéité est de 2.
- Unité en verre - jusqu'à 41.
- Isolation acoustique - jusqu'à 45 dB.
| Données techniques | |
| Renfort, mm | En forme de U, 1,5 |
| Couleur du sceau | le noir |
| Hauteur du cadre, mm | 104 |
| Protection anti-effraction | décalage de 13 mm de l'axe de la rainure |
Délice de Rehau


La fonction Delight est une hauteur de profil réduite (vantail + cadre), ce qui augmente la pénétration des rayons lumineux de 10 à 15%. Une excellente solution pour les pièces sombres.
Principales caractéristiques (en mm):
- Chamberness - 5.
- Épaisseur de la paroi extérieure - 3.
- La profondeur du système de profil est de 70.
- Indice d'isolation thermique - 0,80 m2 ° C / W.
- Le nombre de circuits d'étanchéité est de 2.
- Unité en verre - jusqu'à 41.
- Isolation acoustique - jusqu'à 32 dB.
| Données techniques | |
| Renfort, mm | En forme de U, 1,5 |
| Couleur du sceau | blanc |
| Hauteur du cadre, mm | 105-109 |
| Protection anti-effraction | décalage de 13 mm de l'axe de la rainure |
Intelio 80


Fabriqué principalement en Allemagne, le nouvel Intelio 80 est l'un des plus silencieux de la gamme. Grâce à une solution innovante - le limiteur conventionnel dans l'ouvrant, ce profil se distingue par un haut niveau de protection contre la pénétration d'humidité et d'air indésirables.
Principales caractéristiques (en mm):
- Chamberness - 6.
- Épaisseur de la paroi extérieure - 3.
- La profondeur du système de profil est de 80.
- L'indice d'isolation thermique est de 0,95 m2 ° C / W.
- Le nombre de circuits d'étanchéité est de 2.
- Fenêtres à double vitrage - jusqu'à 51.
- Isolation acoustique - jusqu'à 47 dB.
| Données techniques | |
| Renfort, mm | En forme de U, 1,5 |
| Couleur du sceau | Gris blanc |
| Hauteur du cadre, mm | 115 |
| Protection anti-effraction | décalage de 13 mm de l'axe de la rainure |
Rehau geneo


Le dernier développement de la société est le profil Geneo avec renfort en fibre dans la masse (technologie RAU-FIPRO, éliminant le besoin d'insérer une base de renfort). Construction légère et durable avec des châssis de toute forme, design et couleur, permettant de produire les fenêtres les plus chaudes et les plus silencieuses.
Principales caractéristiques (en mm):
- Chamberness - 6.
- Épaisseur de la paroi extérieure - 3.
- La profondeur du système de profil est de 86.
- Indice d'isolation thermique - 1,05 m2 ° C / W.
- Le nombre de circuits d'étanchéité est de 3.
- Unité en verre - jusqu'à 54.
- Isolation acoustique - jusqu'à 47 dB.
| Données techniques | |
| Renfort, mm | en masse |
| Couleur du sceau | gris |
| Hauteur du cadre, mm | 115 |
| Protection anti-effraction | décalage de 13 mm de l'axe de la rainure |
Tableau comparatif des profils Rehau
Le tableau suivant présente les caractéristiques techniques de toute la gamme de modèles de profilés Rehau, ce qui permettra une comparaison de types de fenêtres similaires.
| Thermo | Plaisir | Gracio | Brillant | Intelio | Geneo | |
| Profil Rehau | quatre chambres | cinq chambres | cinq chambres | cinq chambres | six chambres | à six chambres |
| Profondeur mm | ||||||
| Renfort de 1,5 mm à 2,5 | ✔ | ✔ | ✔ | ✔ | ✔ | ✔ |
| Couleur du caoutchouc d'étanchéité | ||||||
| Unité à double vitrage résistant aux chocs | ✔ | ✔ | ✔ | ✔ | ✔ | ✔ |
| Paquet thermique | ✔ | ✔ | ✔ | ✔ | ✔ | ✔ |
| Garantie à vie pour les vitrages isolants | ✔ | ✔ | ✔ | ✔ | ✔ | ✔ |
| Contrôle climatique mécanique | ✔ | ✔ | ✔ | ✔ | ✔ | ✔ |
| Épaisseur du profil, mm | 60 | 70 | 70 | 70 | 80 | 86 |
| Épaisseur du verre, mm | jusqu'à 32 | Jusqu'à 40 | Jusqu'à 40 | Jusqu'à 40 | jusqu'à 50 | jusqu'à 53 |
| Coefficient de protection thermique, m2С / W | 0.75 | 0.85 | 0.80 | 0.79 | 0.95 | 0.98 |
| Coefficient d'isolation acoustique, dB | -35 | -40 | -39 | -40 | -45 | -47 |
| Transmission de la lumière | ||||||
| Prix | à partir de 2860 frotter. | à partir de 3 570 frotter. | à partir de 2990 frotter. | à partir de 4300 frotter. | à partir de 3 870 frotter. | à partir de 9 480 frotter. |
Sur la base des valeurs du tableau, les deux modèles ont des caractéristiques identiques. D'un point de vue technique, Rehau Action ne diffère pas du tout de Blitz, et les petites différences existantes sont les suivantes:
- Blitz est le modèle de base, Action est un produit de relations publiques utilisé par l'entreprise pour promouvoir des profils allemands de haute qualité en Russie.
- Les jeux d'action sont tous moins chers pour la même raison.
- L'action par rapport au Blitz n'est pas colorée en masse.
Si l'on compare deux modèles Rehau Delight et Grazio avec des caractéristiques similaires dans le tableau, on peut noter qu'avec la même profondeur de système et le même nombre de chambres, le deuxième modèle (Grazio) est beaucoup plus chaud (0,85 contre 0,80 m2 ° C / W) et plus silencieux (45 vs 32 dB).
Une analyse plus approfondie des caractéristiques des modèles Rehau Grazio et Delight a révélé les différences suivantes:
- Rehau Delight a une paroi profilée extérieure de 3 mm d'épaisseur, ce qui signifie qu'il est plus résistant que le modèle Grazio avec une épaisseur de 2,8 mm.
- Les deux modèles ont une hauteur réduite de la structure profilée (ouvrant + cadre) - pour Rehau Delight 109 mm, pour Grazio - 104 mm, ce qui signifie qu'il laisse entrer encore plus de lumière dans la pièce.
Conception
OKNO.ru - La qualité passe avant tout!
Appeler le +7 (495) 278-1-888
Jusqu'à la fin du mois seulement, il y a des remises spéciales à partir de 30% sur les fenêtres et balcons !
je veux une remise


Une caractéristique de tous les systèmes REHAU est une surface parfaitement lisse. Il peut être mat ou brillant. Un peu anguleux - dans la série Blitz, aux lignes douces - en Brillant, miroir - en Geneo. Le profil Delight est reconnaissable à ses coins de cadre arrondis. Le remplissage de n'importe quel modèle n'est pas limité dans la conception - il peut être du vitrail, teinté, coloré, avec stratification pour le bois, le métal. Le plastique est peint en blanc ou dans tout autre ton, y compris en bois.
Comparaison des caractéristiques techniques de Rehau
Tous les types de profils Rehau ont des caractéristiques techniques différentes, la comparaison des valeurs maximales / minimales vous aidera à comprendre la différence entre les modèles économiques et premium.
Nombre de caméras
L'une des principales différences entre les profils Rehau est leur chambre, c'est-à-dire le nombre d'espaces internes remplis d'air. Plus il y en a dans la structure, meilleures sont les performances de conservation de la chaleur et de protection contre le bruit.
En comparaison:
- Les modèles de classe économique à trois chambres ont une résistance au transfert de chaleur de 0,54 à 0,64 m2 ° C / W et une isolation phonique de 32 à 35 dB.
- Le profil à six chambres des meilleurs modèles de la gamme Rehau, appartenant à la classe premium (Intelio, Geneo), offre des économies de chaleur de 0,95 et 1,05 m2 ° C / W et une isolation phonique de 47 dB.
Profondeur de montage


Une autre différence significative entre les profils Rehau est leur profondeur d'installation.
Il existe trois options:
- Economy - profondeur 60 - modèles Euro-Design Slide, Euro-Design 60, Blitz, Action, Thermo-Design.
- Standard - profondeur 70 - Modèles Sib-Design, Delight-Design, Grazio, Brillant-Design.
- Premium - profondeur 80, 86 - modèles Intelio, Geneo.
Pourquoi ce paramètre est-il si important? Plus le profil est profond, plus le:
- Plus de chambres peuvent y être, respectivement, des caractéristiques d'isolation thermique et phonique plus élevées.
- Une unité à double vitrage peut être utilisée plus largement, les avantages sont les mêmes que dans le paragraphe précédent.
- Conception plus solide et plus sûre.
Largeur maximale autorisée d'une vitre
Le paramètre précédent considéré - la profondeur de montage du profilé - est directement lié à la prochaine différence importante entre les modèles de fenêtres Rehau - la largeur maximale possible du vitrage.
Les différentes classes de la ligne de modèle ont les valeurs suivantes:
- Économie, par exemple, Blitz - 32 mm.
- La norme, par exemple, Grazio ou Delight-Design - 41 mm.
- Premium, Intelio, Geneo - 51-54 mm.
Qu'est-ce que cela affecte? Plus le verre est large, plus le verre peut être utilisé épais, plus leur nombre est grand, donc le nombre et la largeur des chambres entre eux. Tous ces indicateurs déterminent la qualité de conservation de la chaleur dans la pièce et son isolement par rapport à la pénétration du bruit de la rue.
Rendez-vous
La série a été créée en tenant compte du climat russe. Il convient au vitrage dans les régions du nord du pays, protège de manière fiable la pièce du froid. Le système le plus polyvalent, adapté au remplacement des fenêtres dans tous les locaux. Le profilé PVC REHAU Grazio est installé dans des appartements de ville, des maisons de campagne. C'est une bonne solution pour les fenêtres ombragées sortantes. Le modèle permet d'économiser sur l'électricité, le chauffage.


Quel profil Rehau choisir et à quelles fins


La comparaison du profil Rehau permet de comprendre à quelles fins un modèle particulier est le plus adapté. Par example:
- Diapositive Euro-Design - une excellente option à petit budget pour le vitrage des gazebos, loggias, vérandas.
- euro—Conception 60, Blitz, action - des options économiques, simples mais fiables pour des bureaux, des locaux d'habitation dans des bâtiments neufs et anciens situés dans des zones à climat tempéré.
- Thermodans la version mise à jour, et Sib-Design peut facilement résister à des températures allant jusqu'à -45 degrés, par conséquent, ils peuvent être utilisés pour vitrer des bâtiments dans des zones aux hivers glaciaux.
- Délice-Design et Grazio en termes d'isolation thermique et autres indicateurs, ils conviennent aux zones à tout climat. Leur caractéristique est une capacité de transmission lumineuse accrue, ce qui les rend indispensables pour une utilisation dans les régions à temps principalement nuageux (Moscou, Saint-Pétersbourg), ainsi que dans les fenêtres situées du côté non ensoleillé du bâtiment. Le design sophistiqué de ces modèles sera apprécié par les personnes les plus exigeantes.
- Brillant-Design - idéal pour les maisons de campagne et les appartements design. Son design exclusif et sa surface super brillante complèteront et compléteront n'importe quel intérieur. En termes de conditions climatiques et autres, ce profil n'a aucune restriction.
- Intelio - le modèle a été développé par le fabricant spécifiquement pour les régions froides et les endroits bruyants. Il a d'excellents taux de rétention de chaleur, ainsi que la protection la plus élevée contre la pénétration des sons de la rue, qui à l'intérieur de la pièce seront similaires au murmure le plus silencieux et presque imperceptible à l'oreille humaine.
- Geneo - un modèle innovant, dans lequel toutes les caractéristiques techniques sont au plus haut niveau. Il peut être utilisé dans n'importe quelle région. La dernière technologie de renforcement en vrac (sans insert de renforcement) conduit à une réduction significative du poids de la structure de la fenêtre (jusqu'à 40%) sans perte de résistance. Ce fait permet d'utiliser des fenêtres Geneo épaisses, à plusieurs chambres, extrêmement chaudes et silencieuses, même dans les vieilles maisons. De plus, le degré d'usure des raccords est considérablement réduit et la durée de sa durée de vie est augmentée.En ce qui concerne la conception des fenêtres, alors à ce modèle, comme aucun autre, la caractéristique «il n'y a pas de limite à l'imagination» est applicable.
Ainsi, l'assortiment Rehau est digne de respect. L'entreprise a vraiment fait de son mieux pour satisfaire les besoins des acheteurs de toutes les catégories, en leur donnant la possibilité de choisir les fenêtres en fonction de leur conception, de leurs caractéristiques d'isolation thermique et phonique et de leur coût.
Pour passer une commande de fenêtres Rehau avec livraison et installation clé en main à Moscou, Zelenograd et dans la région, laissez une demande sur notre site Web ou appelez les responsables. Nous ferons un calcul approximatif et vous conseillerons sur les prix, les options de laminage et le type d'unité de verre.
Comment rendre les fenêtres en plastique plus chaudes et plus silencieuses?
L'utilisation de fenêtres fonctionnelles à double vitrage améliorera les caractéristiques d'isolation thermique et phonique des structures de fenêtres à base de profilés en plastique:
| Économie d'énergie - reflète les vagues de chaleur dans la pièce, contribuant à une isolation thermique accrue et à des économies de chauffage; |
| Multifonctionnel - il a la capacité de réfléchir la chaleur en été dans la rue, en hiver dans la pièce, il est donc particulièrement utile pour aménager le côté sud des bâtiments. |
| Résistant au bruit - réduit considérablement le niveau de bruit, le rendant approprié pour une installation dans des maisons donnant sur des autoroutes bruyantes et d'autres zones à bruit constant |
| Antichoc - la présence d'un film spécial antichoc en fait un excellent remplacement pour les grilles, car il résiste à la fois aux chocs involontaires et aux tentatives délibérées de briser le verre et de pénétrer à l'intérieur; |



























