Le vitrage avec des profilés en aluminium gagne en popularité en raison des caractéristiques techniques élevées des structures. Ils sont installés dans des ouvertures de fenêtres, des groupes d'entrées et des façades de forme. La solidité de l'aluminium permet de recouvrir complètement les bâtiments de vitraux. La résistance à l'usure, la simplicité et la sécurité environnementale rendent le métal approprié pour une installation dans des complexes résidentiels, publics, de vente au détail, commerciaux et médicaux.
Les profilés en aluminium sont produits en deux variétés: chaud et froid. Les produits froids se distinguent par leur minceur, leur faible poids, leur coût abordable, mais ils ont une conductivité thermique élevée, ils sont donc installés dans des locaux non résidentiels non chauffés - vestibules, balcons, immeubles de résidence saisonniers. Les profilés chauds sont équipés d'un insert thermique ou d'une coupure thermique en polyamide, qui empêche la chaleur de s'échapper de la pièce. Ces produits conviennent à toutes les zones publiques et résidentielles.
Parmi les fabricants de structures en aluminium, Alutech et Sial se distinguent - lors du choix de la meilleure, il convient de se concentrer sur les besoins ou la conformité des profilés avec les caractéristiques techniques requises pour garantir les conditions nécessaires dans la salle vitrée.
Catalogue des systèmes de profilés SIAL

SIAL KP40


SIAL KP45


SIAL KP50


SIAL KP60


SIAL KPT74


SIAL KP75M
Parmi les nombreux produits proposés, les plus appréciés aujourd'hui sont les types de profilés aluminium SIAL suivants:
- Le profilé en aluminium SIAL KP 45 de type froid est le plus demandé dans la fabrication de cloisons de bureau, portes, cadres de balcon et autres produits. Le système permet la production de châssis de différents types et de différentes configurations.
- Les systèmes de profilés SIAL KP40 sont conçus pour la fabrication de structures coulissantes, façades en verre continues.
- Les produits de la gamme SIAL KP70 sont utilisés pour installer des cloisons à ossature. La grande popularité est fournie par la facilité d'installation, la possibilité d'intégrer des fenêtres transparentes, des stores, la pose d'isolation phonique et de câblage électrique.
- Le profilé aluminium SIAL KPT74 est classé comme chaud. Il a des racks renforcés à l'intérieur qui vous permettent de monter des systèmes de façade continus, ainsi que des fenêtres chaudes de divers degrés de complexité, des vestibules, des châssis et d'autres structures.
Spécifications Sial


Les systèmes de profilés Sial sont également conformes aux normes de qualité et de sécurité. Les produits sont fabriqués à partir de Krasnoïarsk. L'entreprise a été l'une des premières à lancer la production de structures de vitrage en aluminium. L'utilisation d'innovations en combinaison avec la conformité aux GOST confère aux produits résistance, légèreté et durabilité.
Les structures et profilés en aluminium du système Sial sont fabriqués à l'aide de machines nationales et étrangères, ce qui leur confère les caractéristiques suivantes:
- douceur de la surface;
- résistance 22-25 kg / mm carré;
- épaisseur de 40 à 90 mm.
Les structures sont peintes avec des peintures en poudre de haute qualité qui offrent une esthétique et une protection supplémentaire contre l'usure. Les systèmes Sial et les structures en aluminium conviennent à l'installation de fenêtres, de toits transparents, de clôtures de bureaux, de vitrages de loggias, de balcons, de façades. Toutes les méthodes d'ouverture, les portes fixes sont prises en charge.
L'un des avantages importants de ce fabricant est la variété des systèmes en aluminium Sial. Les concepteurs ont développé plus de 20 options de profil. Cela garantit la flexibilité dans le choix de la meilleure méthode de vitrage pour chaque cas spécifique.
Pourquoi choisir les systèmes de profilés SIAL?
Aujourd'hui, le fabricant propose les types de produits suivants:
- systèmes de façade;
- 20+ types différents de systèmes de profilés en aluminium;
- produits résistants au feu;
- Profil en aluminium "chaud" et "froid";
- produits avec un transfert de chaleur minimal, ce qui est important pour les régions du nord.
L'utilisation de profilés en aluminium de la société Krasnoïarsk SIAL présente les avantages suivants:
- Faible densité tout en conservant une résistance élevée grâce à l'utilisation d'aluminium.
- Équipement technologique moderne offrant une précision de traitement élevée.
- Résistance à la corrosion grâce au revêtement en poudre des systèmes.
- Coût abordable en raison de l'absence d'un élément de change et de droits d'importation.
La société SIAL améliore constamment ses produits. La preuve en est le développement d'environ 250 nouvelles variantes de profilés en aluminium chaque année, qui naissent dans le propre bureau d'études de l'entreprise, en étroite collaboration avec des organisations de construction, des concepteurs et d'autres parties intéressées.
Si vous recherchez un entrepreneur pour la conception et l'installation de structures translucides basées sur le profil SIAL, contactez l'entreprise de construction, qui est le partenaire officiel du SIAL. Nous offrons des prix abordables, une qualité élevée et la capacité de résoudre des problèmes techniques de toute complexité.
Calculez le projet
Caractéristiques techniques d'Alutech


Le profilé en aluminium Alutech, produit en Biélorussie, est fabriqué à partir d'un alliage d'aluminium pur, de magnésium et de silicium. Le métal résultant acquiert une résistance accrue, la capacité de résister à des charges accrues, tout en maintenant un faible poids. Les structures deviennent universelles, ce qui leur permet d'être installées dans des bâtiments de tout type.
Les paramètres techniques du profilé de fenêtre Alutech varient en fonction de la série. Le fabricant produit des solutions froides et chaudes. Les produits froids ont une épaisseur de 48 à 90 mm, le verre de support d'une épaisseur de 4 à 6 mm ou les unités de verre de 18 à 30 mm. Les structures chaudes mesurent 62 à 72 mm de large et peuvent accueillir des fenêtres à double vitrage de 32 à 50 mm d'épaisseur.
Différentes méthodes d'ouverture sont proposées: coulissante, relevable et coulissante, coulissante parallèle, pivotante, pliante. Une combinaison de châssis fixes et ouvrants est possible.
Tous les profilés en aluminium Alutech répondent aux exigences internationales de qualité, de sécurité et d'esthétique. Les produits ont passé la certification de l'UE. Il est possible de choisir une teinte adaptée pour correspondre au mieux à l'intérieur ou à l'extérieur du bâtiment, ou pour donner au profil une imitation de bois. Durée de vie estimée - 80 ans.
Assortiment de profilés Alutech
Cette marque contient les designs suivants:
- Profil Alutech C48. Conçu pour le vitrage à froid des balcons, terrasses, portes de tous bâtiments. Dépourvu d'insert d'isolation thermique. La largeur de montage est de 48 mm. Isolation thermique - Ropr = 0,61 m2 ∙ ° C / W. Fournit une isolation phonique jusqu'à 33 dB. Supporte les vitrages isolants jusqu'à 30 mm d'épaisseur.
- Profilé aluminium Alutech F50 - système post-traverse pour façades translucides. La perméabilité à l'air et la perméabilité à l'eau correspondent à la classe A. La largeur visible des racks avec barres transversales est de 50 mm. Le remplissage pris en charge est de 4 à 56 mm.
- Profil Alutech W62 destiné aux fenêtres isolées, portes, autres structures translucides de locaux résidentiels, industriels, publics, commerciaux. Insert thermique de 24 mm d'épaisseur en polyamide avec renfort en fibre de verre. Largeur - 62 mm. Le remplissage atteint 40 mm. Jusqu'à 33 dB de bruit sont coupés. Le niveau d'isolation thermique est de 0,61 W ∙ m2 / ° C. Perméabilité à l'air, perméabilité à l'eau - classe A.
- Profil chaud Alutech W72 conçu pour les fenêtres, les portes et autres produits plus complexes avec des exigences accrues en matière d'isolation thermique et phonique. Equipé d'un insert thermique de 34 mm, coussin en mousse souple. Largeur - 72 mm. Le remplissage maximum est de 50 mm. Niveau d'isolation acoustique - jusqu'à 43 dB.Isolation thermique - 1 W ∙ m2 / ° C Perméabilité à l'air - classe A, perméabilité à l'eau - classe A0.
Tous les modèles prennent en charge la peinture dans toutes les nuances de la palette RAL. Un niveau élevé de sécurité environnementale et incendie est assuré.


La coopération
Au cours de l'existence de notre société, nous avons pu mettre en œuvre avec succès de nombreux projets de vitrage avec le profil Sial d'une grande variété de bâtiments et de locaux. Nous avons dû installer des vitraux verticaux et inclinés, diverses entrées et des jardins d'hiver. Tout cela nous permet d'utiliser l'expérience accumulée pour la mise en œuvre des nouveaux projets les plus ambitieux.
Nous proposons une coopération mutuellement avantageuse pour les développeurs et les architectes. Si le client souhaite effectuer les travaux de manière autonome, nos spécialistes fourniront des conseils professionnels et une formation sur le vitrage avec le profil Sial. A la demande du client, nous réalisons une gamme complète de travaux d'installation. De plus, nous effectuons une supervision terrain sur la mise en œuvre du projet de vitrage. Cela comprend le contrôle documentaire et visuel du respect des exigences de conception et de la conformité des structures érigées aux attentes du client.
Nous travaillons avec chaque client individuellement, ce qui nous permet de fournir les conditions les plus favorables pour nos clients aux meilleurs prix. Appelez-nous au +7 (925) 777-33-06 et passez votre commande dès maintenant!
Site officiel de la société SIAL


Vitrage d'un immeuble résidentiel dans la région de Moscou
https://www.sial-group.ru/ est très pratique. Sur la première page, il contient des catalogues de profils SIAL. Il suffit de sélectionner le design qui vous intéresse et de cliquer sur le dossier qui lui est dédié. Le catalogue des composants de ce système de profil s'ouvre. Ici, vous pouvez également télécharger des certificats pour chaque produit SIAL spécifique.
Si le site présente un défaut, c'est l'absence de forum. Cependant, il n'est pas moins pratique de suivre les discussions sur les structures du SIAL sur dwg.ru qu'il ne serait possible de le faire sur un site Web d'entreprise (dwg.ru est un forum pour les spécialistes de la construction).


Vitrage du Palais de la République à Almaty
Le réseau officiel de concessionnaires se reflète également sur le site Internet du SIAL. Il comprend deux douzaines et demie d'entités juridiques en Russie et dans les pays de la CEI. Par exemple, le SIAL à Moscou est représenté par SIAL-Profile LLC et Facade Systems. Et LLC "SIAL-KMV" représente les intérêts d'un groupe d'entreprises dans le territoire de Krasnoïarsk.
En général, avec un tel nombre de revendeurs officiels, il ne sera pas difficile pour une personne morale ou physique de commander des produits SIAL sans quitter son lieu de base permanent.
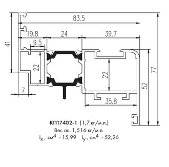
Systèmes de profilés chauds pour la fabrication de fenêtres, portes, vitraux SIAL KPT74
Rendez-vous
Fabrication de structures "chaudes" à partir d'un profilé aluminium (façades, vitraux, portes, fenêtres).
Caractéristiques architecturales
Tous les profils principaux du système sont conçus selon le principe des trois chambres. Pour créer une coupure thermique, un thermostat en polyamide de 24 mm de large est utilisé. L'épaisseur de la structure est de 74 mm. Le système comprend environ 30 profils «chauds» et 20 «froids», ce qui permet la production de vitraux «chauds», fenêtres, portes de balcon, balustrades de balcon, à la fois aveugles et avec portes battantes intégrées. Une large gamme de montants renforcés permet un vitrage continu des façades. L'utilisation de profilés spécialement conçus permet une rotation à un angle de 90 ° à 270 °. Les portes en profilés système KPT74 peuvent être utilisées comme portes extérieures avec ouverture vers l'extérieur ou vers l'intérieur, du côté droit et du côté gauche, dans les façades, les vitraux des groupes d'entrées, dans les ouvertures de structures d'enceinte de bâtiments de diverses structures résidentielles, publiques, bâtiments industriels. Le vantail de la porte battante peut être accroché au montant du vitrail à l'aide de la feuillure. Un meuble à double vitrage d'une épaisseur de 24 et 32 mm avec verre ordinaire, teinté ou blindé est utilisé comme remplissage translucide.Les portes et les châssis se montent facilement dans les vitraux des systèmes KP50, KP50K, KP60.
Caractéristiques techniques
Le système de poteau-traverse est attaché à l'ouverture ou aux structures de support du bâtiment. Les crémaillères et les poutres sont reliées les unes aux autres à l'aide d'inserts en aluminium ou à l'aide de vis. Une fenêtre à double vitrage (ou autre remplissage) est fixée dans le cadre ou le châssis avec des doublures en polyéthylène et fixée avec des parcloses. Différents joints sont utilisés pour sceller les joints et les obturations. Les rainures pour raccords (pivotantes, pivotantes, pivotantes et pivotantes) sont conçues pour les produits de fabricants européens renommés. Cela permet la fabrication d'un châssis jusqu'à 2400 mm de hauteur, jusqu'à 1600 mm de largeur et un poids maximum de 130 kg. La conception est certifiée, selon la résistance réduite au transfert de chaleur, elle correspond à la classe B1 (0,55 m² x ° C / W). Avec l'utilisation de Vilaterm, ce chiffre s'élève à 0,64 m² x ° C / W.
Biens de consommation
Le système est caractérisé par de nombreuses opportunités pour la mise en œuvre d'une variété de solutions architecturales, fournit une isolation fiable de l'environnement externe.
Système de fenêtre "chaud" KPT70
Rendez-vous
Fabrication de fenêtres, portes de balcon.
Caractéristiques architecturales
Le système KPT70 vous permet de réaliser des fenêtres, sourdes et équipées de châssis à charnières, portes de balcon, blocs de balcon (porte + vitre latérale). La largeur visible du profil est de 53 à 124 mm, l'épaisseur est de 70 mm. Le remplissage peut avoir une épaisseur de 20, 24, 28, 34, 36 mm. Dans la partie translucide de la structure, des fenêtres à double vitrage sont installées. Dans la partie opaque, des panneaux de porte et d'autres types de remplissage d'épaisseur appropriée sont installés, qui ont des propriétés d'isolation thermique élevées. L'unité de verre principale (de base) - 36 mm (TOP, gaz inerte). La présence dans la structure de la "Euro-rainure" permet l'utilisation de ferrures des sociétés ROTO, SIGENIA, SOBINCO, etc. Différents types d'ouverture d'ouvrant sont possibles (rotatif, pivotant, rabattable). Le système se caractérise par une résistance accrue au transfert de chaleur (jusqu'à 0,7 m² x ° C / W).
Caractéristiques techniques
Un profilé à cinq chambres avec des ponts supplémentaires à l'intérieur de la jonction thermique bloque l'accès de l'air froid à l'intérieur de la pièce. La largeur du thermostat est de 34 mm. L'unité en verre est fixée dans le cadre avec des revêtements en polyéthylène et fixée avec des parcloses. Pour augmenter le coefficient de résistance au transfert de chaleur, un Vilatherm d'un diamètre de 10 mm est installé sous le vitrage autour du périmètre. Le châssis a un joint à trois ports. La présence de trous de drainage et de ventilation pour l'évacuation de l'humidité et la ventilation du joint de fenêtre à double vitrage contribue à une augmentation de la durée de vie de la fenêtre à double vitrage.
Biens de consommation
Un système de profilés de fenêtre de première classe qui répond aux exigences les plus élevées en matière d'isolation thermique. Assure un fonctionnement sans problème des produits pendant une longue période.
Système de balançoire léger "chaud" SIAL KPT60
Rendez-vous
Fabrication de fenêtres économiques, portes de balcon, portes en vitrail.
Caractéristiques architecturales
Le système KPT60, comme le KPT70, permet la fabrication de fenêtres, sourdes et équipées de vantaux battants, portes de balcon, blocs de balcon (porte + vitre latérale). Une caractéristique distinctive est la possibilité de monter le châssis dans tous les systèmes de façade (KP50, KP50K, KP60), grâce à un profil spécialement développé. Il est recommandé d'installer le châssis dans un vitrail vertical. Dans un vitrail incliné, si nécessaire, il est à la mode d'utiliser un châssis avec une ouverture en éventail. La largeur visible du profil est de 53 à 124 mm, l'épaisseur est de 60 mm. le remplissage peut avoir une épaisseur de 10, 14, 18, 24, 26 mm. Des fenêtres à double vitrage sont installées dans la partie translucide des structures. Des panneaux de porte et d'autres types de remplissage d'épaisseur appropriée sont installés dans la partie translucide. Différents types d'ouverture d'ouvrant sont possibles (rotative, oscillo-battante, oscillo-battante).
Caractéristiques techniques
Les profilés KPT60 sont réalisés sur la base de profils "froids" inclus dans les profils "chauds" du système KPT70, mais disposent d'un thermostat de 24 mm de large.Le système dispose de 4 profils "chaud" et 9 "froid". L'unité de verre est fixée dans le cadre ou le châssis avec des doublures en polyéthylène et fixée avec des parcloses. Les joints utilisés sont les mêmes que dans le KPT70, à l'exception du KPU-17 et du TPU-004-01. Dans le système KPT60, ces joints sont remplacés par KPU-18 et TPU-04 MM. L'ouvrant est fixé dans la structure avec des doublures en aluminium et polyéthylène, a les dimensions du remplissage principal et est fixé de la même manière que le remplissage principal. La présence de la "euro-rainure" permet l'utilisation de ferrures pivotantes, pivotantes et inclinables des fabricants européens.
Biens de consommation
Un système attrayant qui est idéal pour les projets avec des exigences d'isolation thermique relativement faibles.
Système SIAL KPT86
Caractéristiques architecturales
Le système SIAL KPT86 permet la réalisation d'ouvrant "chaud", ouvrant vers l'extérieur et intégré dans la façade. La largeur visible du profil est de 51 mm, l'épaisseur du cadre est de 86 mm, l'épaisseur du cadre avec l'ouvrant complet est de 96 mm. Le remplissage peut avoir une épaisseur de 24 et 32 mm. Les fenêtres à double vitrage servent de remplissage translucide. Le remplissage non translucide est constitué de panneaux sandwich ou d'autres types de remplissage d'épaisseur appropriée avec les propriétés d'isolation thermique requises. Le vantail est uniquement suspendu, pour cela, il est recommandé d'utiliser la poignée GIESSE et les raccords à ciseaux. L'utilisation de "Euro-rainure" dans la conception permet l'utilisation de ferrures de verrouillage de GIESSE, ROTO, SIEGENIA, SOBINCO, etc.
Caractéristiques techniques
Un profilé à trois chambres avec un insert thermique de 20 mm de large empêche l'air froid de pénétrer dans la pièce. La fenêtre à double vitrage est fixée dans le châssis avec des doublures en polyéthylène et fixée avec des parcloses. Le châssis a un joint à trois fils. La présence de trous de drainage et de ventilation pour l'évacuation de l'humidité et la ventilation du joint de fenêtre à double vitrage contribue à une augmentation de la durée de vie de la fenêtre à double vitrage. Le système dispose de 2 profils "chaud" et 2 "froid". L'ensemble complet peut être produit avec différentes options de joints. La conception ne prévoit pas l'utilisation d'impôts.
Biens de consommation
Le système de profilés de fenêtre permet des exigences architecturales spécifiques telles que l'ouverture vers l'extérieur du châssis dans une façade continue.
Avantages du vitrage profilé Sial
Les profilés en aluminium de la série Sial ont une large gamme et ont plus de 2000 noms différents. En raison de leur compatibilité polyvalente, ils peuvent être utilisés dans n'importe quelle combinaison les uns avec les autres. De plus, il vous permet de mettre en œuvre presque toutes les solutions architecturales en utilisant un profil de la même série.
Dans cette gamme de profilés en aluminium, quatre domaines principaux peuvent être distingués:
- systèmes de vitraux;
- Systèmes de profilés "chauds";
- Systèmes de profilés "froids";
- systèmes pour cloisons et clôtures de bureaux.
Pour chacun de ces systèmes, il existe une grande variété de modèles et divers accessoires.











