Les profilés en alliage AD31 sont fabriqués conformément à GOST 22233-2001. L'état du matériau est T1. L'alliage est résistant à la corrosion et permet la production de profilés de haute précision
Tous les profilés de poteau et de traverse ont des rainures dans la zone d'installation du vitrage isolant, qui servent à ventiler la zone de joint du vitrage isolant et à en éliminer l'humidité. Un joint spécial KPU-206 est utilisé lorsqu'il est nécessaire de vidanger le condensat interne
Comme base de remplissage des structures du système SIAL KP 50, il est possible d'utiliser du verre d'une épaisseur de 6 mm selon GOST 111-90, des fenêtres à double vitrage à une chambre d'une épaisseur de 24 mm et des fenêtres à double vitrage à deux chambres fenêtres vitrées d'une épaisseur de 32 et 42 mm selon GOST 24866-99, ou panneaux d'une épaisseur de 6, 24, 32 et 42 mm
Le produit peut être peint dans n'importe quelle couleur
Caractéristiques techniques d'Alutech

Le profilé en aluminium Alutech, produit en Biélorussie, est fabriqué à partir d'un alliage d'aluminium pur, de magnésium et de silicium. Le métal résultant acquiert une résistance accrue, la capacité de résister à des charges accrues, tout en maintenant un faible poids. Les structures deviennent universelles, ce qui leur permet d'être installées dans des bâtiments de tout type.
Les paramètres techniques du profilé de fenêtre Alutech varient en fonction de la série. Le fabricant produit des solutions froides et chaudes. Les produits froids ont une épaisseur de 48 à 90 mm, le verre de support d'une épaisseur de 4 à 6 mm ou les unités de verre de 18 à 30 mm. Les structures chaudes mesurent 62 à 72 mm de large et peuvent accueillir des fenêtres à double vitrage de 32 à 50 mm d'épaisseur.
Différentes méthodes d'ouverture sont proposées: coulissante, relevable et coulissante, coulissante parallèle, pivotante, pliante. Une combinaison de châssis fixes et ouvrants est possible.
Tous les profilés en aluminium Alutech répondent aux exigences internationales de qualité, de sécurité et d'esthétique. Les produits ont passé la certification de l'UE. Il est possible de choisir une teinte adaptée pour correspondre au mieux à l'intérieur ou à l'extérieur du bâtiment, ou pour donner au profil une imitation de bois. Durée de vie estimée - 80 ans.
Portes en aluminium
Où l'aluminium chaud est utilisé pour les groupes d'entrée Sial KPT 74
Le système SIAL KPT74 est conçu pour la fabrication de portes «chaudes», d'entrées, de fenêtres et de vitraux. La base du système est formée par des profilés en aluminium à trois chambres de poteaux et de traverses avec une rupture thermique. L'épaisseur de montage du profilé de cadre est de 74 mm, l'épaisseur des châssis de fenêtre jusqu'à 84 mm. À l'aide de profilés spéciaux, les portes et les châssis peuvent être facilement intégrés dans n'importe quel système de façade.
Objectif:
Halls d'entrée, fenêtres, portes, portes battantes, portes coulissantes électriques, vitraux à rupture de pont thermique.
Caractéristiques techniques du profil Sial CBT 74
Sial CBT 74


- Surface peinte en RAL
- Décorer sous un arbre
- Largeur du cadre de montage - 74 mm
- Rupture thermique - 24 mm.
- Nombre de chambres dans le cadre et le châssis - 3
- Épaisseur de remplissage 24-32 mm
- Coefficient de résistance au transfert de chaleur - 0,55 m2 х ºС / W
- U - conductivité thermique du système renforcé - 2,54 W / Km
- Épaisseur de la paroi externe - 1,6 mm
- Durée de vie de plus de 40 à 50 ans
Où l'aluminium froid est utilisé pour les groupes d'entrée Sial KP 45
Le système KP45 est destiné aux portes et halls d'entrée, à la production de vitraux et de faux vitraux, aux cloisons intérieures sourdes et à vantaux battants intégrés, aux portes. Les portes en profilés du système KP 45 peuvent être utilisées aussi bien à l'intérieur qu'à l'extérieur dans les façades des vitraux des groupes d'entrées.Dans les ouvertures de bâtiments renfermant des structures de divers immeubles résidentiels, publics, industriels, de bureaux.
Objectif:
Halls d'entrée, portes, portes battantes, portes coulissantes électriques, vitraux, cloisons de bureaux.
Caractéristiques techniques du profil Sial KP 45
Sial KP 45


- Surface peinte en RAL
- Décorer sous un arbre
- Largeur du cadre de montage - 45 mm
- Profil froid
- Pas de rupture thermique (monobloc)
- Épaisseur de la paroi externe - 1,6 mm
- Épaisseur de remplissage 6 - 24 mm.
- Alliage AD 31T1
- Durée de vie de la chaudière 30-40 ans
Où l'aluminium froid est-il utilisé pour les variateurs Provedal P-400?
Le système Provedal P-400 est un système de profilé à chambre unique. Largeur du cadre 40 mm. Il est utilisé pour la fabrication de vantaux battants et battants et de portes battantes. Il est applicable pour le vitrage de balcons et loggias de toute forme, le vitrage de vérandas et de terrasses, dans la fabrication de mobilier de bureau et de cloisons. Il convient de noter la grande fiabilité et la durabilité des produits du profilé en aluminium Provedal P-400. La durée de vie des portes et fenêtres est de 20 à 30 ans. Et la peinture est même difficile à rayer exprès! Et surtout, le vitrage avec le profil Provedal P-400 est le plus abordable.
Objectif:
Groupes d'entrées, portes, vitraux, cloisons de bureaux, vitrages de balcons et loggias
Caractéristiques techniques du profil Provedal P-400
Provedal P-400


- Surface peinte en RAL
- Décorer sous un arbre
- Largeur du profil 40 mm
- Isolation acoustique 20-27 dB
- Épaisseur de remplissage 4-5-6-18 mm
- La plage de température d'utilisation est de -50 à + 50 ° C.
- Combinaison de vantaux fixes et articulés (possible)
- Durée de vie supérieure à 20-30 ans
Caractéristiques des portes en plastique
Spécifications Sial


Les systèmes de profilés Sial sont également conformes aux normes de qualité et de sécurité. Les produits sont fabriqués à partir de Krasnoïarsk. L'entreprise a été l'une des premières à lancer la production de structures de vitrage en aluminium. L'utilisation d'innovations en combinaison avec la conformité aux GOST confère aux produits résistance, légèreté et durabilité.
Les structures et profilés en aluminium du système Sial sont fabriqués à l'aide de machines nationales et étrangères, ce qui leur confère les caractéristiques suivantes:
- douceur de la surface;
- résistance 22-25 kg / mm carré;
- épaisseur de 40 à 90 mm.
Les structures sont peintes avec des peintures en poudre de haute qualité qui offrent une esthétique et une protection supplémentaire contre l'usure. Les systèmes Sial et les structures en aluminium conviennent à l'installation de fenêtres, de toits transparents, de clôtures de bureaux, de vitrages de loggias, de balcons, de façades. Toutes les méthodes d'ouverture, les portes fixes sont prises en charge.
L'un des avantages importants de ce fabricant est la variété des systèmes en aluminium Sial. Les concepteurs ont développé plus de 20 options de profil. Cela garantit la flexibilité dans le choix de la meilleure méthode de vitrage pour chaque cas spécifique.
Méthodes de fixation du système SIAL
|
|
|
|
| Système "SIAL P-T-K-Km" | Système "SIAL P-G-Km-P" | Système "SIAL P-G-Kp-S" | Système "SIAL G-S" |
| Pour le revêtement de bâtiments en grès cérame, méthode de fixation visible. | Pour la fixation de l'aluminium en grès cérame. guides. | Pour le revêtement avec des dalles en grès cérame, méthode de fixation cachée. | Pour le revêtement et l'isolation des murs extérieurs avec un revêtement en aluminium. |
|
|
|
|
| Système "SIAL MKL" | Système "SIAL P-G-TP" | Système "SIAL P-NK" | Système "SIAL P-G-Pl" |
| Pour le revêtement des murs extérieurs des bâtiments avec des cassettes de panneaux composites. | Pour le revêtement des bâtiments avec des carreaux de céramique en terre cuite. | Pour le revêtement des bâtiments avec de la pierre naturelle, méthode de fixation cachée. | Pour le revêtement des murs de bâtiments avec des plaques plates en fibrociment. |
Assortiment de profilés Alutech
Cette marque contient les designs suivants:
- Profil Alutech C48. Conçu pour le vitrage à froid des balcons, terrasses, portes de tous bâtiments. Dépourvu d'insert d'isolation thermique. La largeur de montage est de 48 mm. Isolation thermique - Ropr = 0,61 m2 ∙ ° C / W. Fournit une isolation phonique jusqu'à 33 dB. Supporte les vitrages isolants jusqu'à 30 mm d'épaisseur.
- Profilé aluminium Alutech F50 - système post-traverse pour façades translucides. La perméabilité à l'air et la perméabilité à l'eau correspondent à la classe A. La largeur visible des racks avec barres transversales est de 50 mm. Le remplissage pris en charge est de 4 à 56 mm.
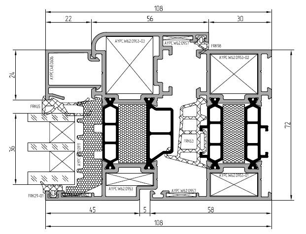
- Profil Alutech W62 destiné aux fenêtres isolées, portes, autres structures translucides de locaux résidentiels, industriels, publics, commerciaux. Insert thermique de 24 mm d'épaisseur en polyamide avec renfort en fibre de verre. Largeur - 62 mm. Le remplissage atteint 40 mm. Jusqu'à 33 dB de bruit sont coupés. Le niveau d'isolation thermique est de 0,61 W ∙ m2 / ° C. Perméabilité à l'air, perméabilité à l'eau - classe A.
- Profil chaud Alutech W72 conçu pour les fenêtres, les portes et autres produits plus complexes avec des exigences accrues en matière d'isolation thermique et phonique. Equipé d'un insert thermique de 34 mm, coussin en mousse souple. Largeur - 72 mm. Le remplissage maximum est de 50 mm. Niveau d'isolation acoustique - jusqu'à 43 dB. Isolation thermique - 1 W ∙ m2 / ° C Perméabilité à l'air - classe A, perméabilité à l'eau - classe A0.
Tous les modèles prennent en charge la peinture dans toutes les nuances de la palette RAL. Un niveau élevé de sécurité environnementale et incendie est assuré.


Profilé en aluminium Système de façade SIAL-KP50


Système de crémaillère et poutre en profilé aluminium de façade SIAL KP50
utilisé pour la production de murs rideaux verticaux et de vitraux à partir de profilés en aluminium chauds. L'assortiment de profilés vous permet de choisir la meilleure option pour la résistance et les caractéristiques économiques. Le système peut être combiné avec des portes battantes et coulissantes.
Caractéristiques techniques du système SIAL-KP50
En raison de la faible largeur de la surface avant (5 cm) du profilé, le système met l'accent sur la transparence et la légèreté des structures. Les cadres de roulement permettent d'encastrer des portes et des châssis de fenêtre «froids» et «chauds». L'épaisseur des entretoises varie de 4,8 à 17,2 cm avec un moment d'inertie de 0,09 m4 à 3,73 m4, ce qui permet de sélectionner de manière optimale les entretoises en tenant compte de la charge du vent. La barre de serrage est reliée au montant à l'aide de vis autotaraudeuses en acier inoxydable (pas de 25 cm) sans perçage supplémentaire. Les bandes de serrage sont fermées par le haut avec des couvercles décoratifs de 0,12 cm à 1 cm de hauteur.
Système de drainage
La protection de la structure contre la pénétration d'eau est assurée par un système de trous de drainage réalisés dans les bandes de serrage horizontales, des couvercles décoratifs. Pour sceller les obturations et les joints translucides, des joints de différentes hauteurs et configurations sont utilisés.
Remplissages
Pour le remplissage, le système utilise des plaques de verre d'une épaisseur de 0,6 cm, des vitrages isolants de 0,24 cm et 0,32 cm. Des panneaux sandwich d'une épaisseur de 0,6 cm, 0,24 ou 0,32 cm sont utilisés pour le remplissage opaque.
Système de fixation
Les éléments de façade (cadres, piliers) sont fixés aux éléments structurels du bâtiment à l'aide d'ancrages spéciaux en aluminium ou en acier. Leurs pièces sont fixées du côté de l'extrémité des racks aux murs, plafonds, structures métalliques par soudage, chevilles ou ancrages. Les éléments en acier qui entrent en contact avec des pièces en aluminium doivent être entièrement galvanisés.Si des revêtements d'apprêt sont utilisés conformément à GOST 21519-84, ils sont isolés des pièces en aluminium. Les barres transversales et les crémaillères sont reliées les unes aux autres à l'aide de profilés spéciaux en aluminium intégrés.
Le système comprend également des bandes de recouvrement, des adaptateurs, des éviers - un ensemble de pièces auxiliaires spécialement conçues pour intégrer des vitraux finis dans des ouvertures pour étendre la fonctionnalité.
Système de façade SIAL-KP50:
Catalogue en pdf
Pour commander un profil ou contactez-nous par téléphone ou remplissez le formulaire
Façades réalisées sur le système Sial KP50:
Assortiment de profilés Sial
Le système de profilés en aluminium Sial comprend les structures suivantes:
- Sial KP 19 - 8 types de cloisons sanitaires légères pour vestiaires, douches, salles de stockage, buanderies de toute installation, des hôpitaux aux industries, supermarchés, bureaux. Épaisseur - 19 mm.
- Sial KP 40 - structures froides pour clôtures de bureaux, fenêtres de balcon, vestibules, vitrines, vitraux de tout type de bâtiment. Remplissage - 3-24 mm, profondeur d'installation - 40 mm.
- Profil Sial KP 45 applicable pour les balcons sans isolation, les vitraux, les portes, les produits de fenêtre, les clôtures intérieures. Ils sont universels dans leur application. Le remplissage est de 4 à 24 mm.
- KP 45 GOS-S utilisé pour les portes, les structures de fenêtres, les cloisons de type froid. Méthode d'ouverture - coulissement, levage et coulissement standard. Convient pour une utilisation en intérieur, balcons, loggias.
- CBT 45 GOS-S - profilés de porte et de fenêtre de type levant-coulissant à rupture de pont thermique.
- Le profil Sial KP 50 est utilisé pour les façades chaudes, les murs transparents, les entrées. Rupture thermique - 18 ou 26 mm. Fenêtres à double vitrage - 6-42 mm. La largeur des racks est de 48 à 172 mm.
- KP 50 K - utilisé dans la création de structures de vitrail droites et inclinées, de toits en pente, à pignon, d'éléments bombés, voûtés, pyramidaux, de jardins d'hiver. Hauteur - jusqu'à 6 M. Équipé de fentes de ventilation, évacuation de l'humidité. L'installation des portes, des trappes est prise en charge.
- KP 50L - des lamelles qui protègent du soleil, vous permettant d'ajuster la luminosité des rayons du soleil pénétrant dans le bâtiment.


- Sial KP 60 - systèmes de toitures en pente transparentes, structures pyramidales, en forme de dôme, de façade, jardins d'hiver. La largeur extérieure des profilés est de 60 mm. Deux niveaux d'élimination de l'humidité.
- KP 60 EI - pour vestibule, toit, vitrage de porte avec protection incendie. Convient pour les clôtures, les lanternes. Installé à l'extérieur ou à l'intérieur.
- CBT 60 - Profilés chauds de 60 mm avec insert thermique pour fenêtre, porte, vitrail, vitrage d'entrée. Les châssis de fenêtre mesurent jusqu'à 70 mm. La profondeur maximale des fenêtres à double vitrage est de 50 mm. Profils à trois chambres. Rupture thermique 24 mm.
- CBT 60 EI - fenêtres, portes et petits vitraux ignifuges.
- Sial KP 70 - murs transparents esthétiques du bureau. L'installation dans les centres d'affaires, les salles de marché, les pavillons, etc. est possible.
- CBT 70 - profilés à cinq chambres de 70 mm à économie de chaleur pour portes, fenêtres, vitraux. Convient aux balcons chaleureux. Des volets aveugles et rotatifs sont pris en charge. Les raccords sont insérés dans la rainure Euro.
- KP 75 M - vitrages chauds modulables de façades, toitures. L'installation nécessite la présence de planchers entre les étages, portant des colonnes.
- KP 50 K TX, KP 80 TX - systèmes de profilés séparant les zones chaudes et froides sans différences visuellement visibles.
- Profile Sial KPT 74 est un système à trois chambres de 74 mm pour fenêtres chaudes, vitraux, portes. Profondeur des châssis de fenêtre jusqu'à 84 mm, épaisseur maximale des vitrages supportés - 54 mm. Insert à rupture thermique 24 mm.
- CBT 78 EI - type ignifuge de clôtures, de portes, de vitraux, de structures de fenêtres.
- CBT 82 - Systèmes de profilés de 82 mm de fenêtres de balcon, portes. Les volets aveugles, battants, rabats et pivotants sont pris en charge. Des fenêtres à double vitrage de 24 à 48 mm sont insérées.
- CBT 86 - technologie pour portes sans isolation, insérées dans la façade. Ils s'ouvrent vers l'extérieur. Rempli de verre de 6 mm. La largeur du profil visible est de 50 mm, ce qui lui confère légèreté et élégance.
- Coulissant-45, -60, -90 - systèmes isolés pour le vitrage des balcons des bâtiments publics et résidentiels. Protéger de manière fiable des précipitations, de la pollution extérieure, du bruit, du froid.
Les conceptions de différentes séries peuvent être combinées, complétées les unes par les autres. Tous les systèmes prennent en charge la peinture dans les tons de la palette RAL.


Description des structures
Le système SIAL KP 50 est conçu pour la fabrication de clôtures murales légères suspendues et de remplissage. La base du système est formée par des profilés en aluminium de poteaux et de traverses d'une largeur visible de 50 mm.
Les critères de détermination de la méthode de construction de la façade (élément par élément, post-traverse ou mixte) sont basés sur la construction et les paramètres physiques du bâtiment et doivent être déterminés au stade de la conception.
Le système est basé sur l'interchangeabilité des crémaillères et des barres transversales et permet de faire pivoter le rideau à un angle allant jusqu'à 45 ° dans le plan
Un large assortiment de racks (avec des moments d'inertie de 9,22 cm4 à 1227 cm4) permet de choisir une option de conception économique. Les étais pivotants à 90 ° peuvent avoir un pylône pour le montage avec des ancres femelles. Le faux boulon peut être utilisé pour créer un support supplémentaire pour une grande vitre ou pour attacher la façade à la dalle de plancher sans claquage visible de l'extérieur.
L'introduction de joints de dilatation le long de la hauteur des crémaillères dans la structure de la façade permet de mettre en œuvre un assemblage élément par élément de la façade et de compenser la dilatation thermique. Une crémaillère de compensation est utilisée sur toute la longueur du vitrail pour compenser la dilatation thermique.
Le vitrage, ainsi que l'installation de blocs de fenêtres et de portes, est effectué de l'extérieur à l'aide de joints en caoutchouc de supports en aluminium, fixés avec des vis autotaraudeuses en acier inoxydable. Les supports sont fermés de l'extérieur avec des couvercles décoratifs. La gamme de couvertures de pylônes décoratives (avec une saillie jusqu'à 100 mm) contribuera à donner une expressivité architecturale à la façade.
Les montants et les cadres sont fixés à la structure du bâtiment à l'aide d'ancrages spéciaux en acier ou en aluminium. Les pièces d'ancrage sont fixées de l'extrémité des poteaux aux plafonds, aux murs ou aux structures métalliques à l'aide de chevilles de montage, d'ancrages ou de soudure
Comparaison des profils Alutech et Sial
Le tableau vous aidera à décider lequel est le meilleur, Alutech ou Sial. Il présente les trois séries les plus utilisées des deux fabricants.
| Alutech C48 | Alutech W62 | Alutech W72 | Sial KP45 | Sial KPT60 | Sial KPT74 | |
| Un type | du froid | chaud | chaud | du froid | chaud | chaud |
| Largeur, mm | 48 | 62 | 72 | 45 | 60 | 74 |
| Max. remplissage, mm | 30 | 40 | 50 | 24 | 50 | 54 |
| Rupture thermique | ne pas | il y a | il y a | ne pas | il y a | il y a |
| Avantages | Durabilité. Les caractéristiques dépendent des paramètres des fenêtres à double vitrage. | Longue durée de vie, haute performance de protection contre le bruit, froid à faible épaisseur. | La meilleure isolation thermique et phonique. Idéal pour les pièces écoénergétiques. | Polyvalence, utilisation intérieure et extérieure. | Possibilité de créer un châssis d'une hauteur de 3 m et d'une largeur de 2,5 m. Facilité d'installation. | Prise en charge des raccords de fabricants européens renommés. Large gamme de températures de tenue. Support d'ouvrant 2x3 m pesant jusqu'à 200 kg. |
Alors, quel est le meilleur - Sial ou Alutech


Les deux fabricants produisent des systèmes en aluminium de qualité qui peuvent être utilisés dans une variété d'environnements. Lors du choix du meilleur, Alutech ou Sial, vous devez prendre en compte l'épaisseur des profilés, leur capacité à noyer le bruit et les caractéristiques d'isolation thermique.
Alutech C48 et Sial KP45 conviennent également pour le vitrage à froid des balcons et loggias. Pour offrir la meilleure protection contre le froid, vous pouvez choisir le profilé aluminium Sial 74 ou Alutech W72.
Un avantage supplémentaire des produits Alutech est une longue durée de vie allant jusqu'à 80 ans. Les produits de Sial sont plus diversifiés - tous les systèmes de profilés sont bien combinés les uns aux autres, ce qui donne une liberté illimitée dans la conception du vitrage de n'importe quel bâtiment, y compris des objets avec des exigences de sécurité incendie accrues.
Les caractéristiques finales des fenêtres des deux marques et le coût dépendront des ferrures sélectionnées, des paramètres des fenêtres à double vitrage, des options supplémentaires (peinture, imitation bois, pose de verre trempé, serrures, etc.) et de la qualité de l'installation .
Si vous souhaitez commander des vitrages basés sur Alutech ou Sial, contactez notre responsable pour les mesures et le calcul du coût des structures.







