Vous pouvez installer vous-même des fenêtres dans un panneau sandwich à partir d'un profilé thermique si vous avez confiance et des connaissances dans le secteur de la construction. Des mains non professionnelles et un manque de compétences peuvent saper tous les efforts visant à créer un environnement confortable.
Dans le même temps, l'assemblage et l'installation de blocs de fenêtre dans une maison construite à partir de panneaux sandwich ne sont pas difficiles par rapport aux structures en brique ou en béton. Le réchauffement des pentes des fenêtres dans un immeuble de faible hauteur avec des matériaux isolants prêts à l'emploi peut être effectué par quiconque a déjà tenu un outil de construction entre ses mains.
Comment installer des panneaux sandwich pour les fenêtres - les secrets des pentes chaudes et belles
Les panneaux sandwich pour fenêtres sont un matériau spécial à trois couches pour le montage des pentes. Avec leur aide, vous pouvez non seulement concevoir magnifiquement une ouverture de fenêtre, mais aussi la rendre aussi chaude et sèche que possible, la seule chose à faire est de suivre une certaine technologie d'installation. Par conséquent, ci-dessous, je vous expliquerai en détail comment créer des pentes de fenêtre à partir de panneaux sandwich de vos propres mains.

Pentes de panneaux sandwich
Astuces utiles
Lors de la création de pentes à partir de panneaux sandwich, vous devez respecter les recommandations suivantes:
- Pour les climats chauds, il est préférable de choisir un matériau avec un revêtement renolith. Un tel film protégera les pentes des températures élevées et de la déformation.
- Lors du travail, il est important de prendre en compte le coefficient de dilatation linéaire.
- Pour éviter la fissuration de la couche supérieure des panneaux lors de la coupe, il convient d'utiliser une scie circulaire avec un petit pas de dent.
- Ne coupez pas de pièces à une température ambiante basse (inférieure à +5). De telles conditions conduisent à la fragilité et à la fissuration du matériau.
- Lors du choix d'un profil de départ, il est nécessaire de prendre en compte les recommandations du fabricant du panneau.
- Avant l'installation, les lattes de bois doivent être séchées et traitées avec une imprégnation antiseptique.
- Le mastic à joint doit correspondre exactement à la couleur des panneaux. Une fois sec, la différence de teinte sera frappante.
La finition des pentes des fenêtres avec des panneaux sandwich est une option facile pour terminer l'installation de nouvelles fenêtres. Ce matériau se caractérise par des performances élevées, une facilité d'installation et une facilité d'entretien.
Quelques mots sur les panneaux sandwich
Les panneaux sandwich pour pentes pour fenêtres se composent de deux feuilles de plastique, entre lesquelles se trouve un radiateur. Ce dernier peut être utilisé:
- mousse de polyurethane;
- mousse de polystyrène extrudé;
- plastique mousse gratuit.
En raison de la présence d'isolant, la quantité de perte de chaleur à travers l'ouverture de la fenêtre est réduite. Quant au plastique lui-même, il est disponible dans une variété de couleurs. Cela permet aux panneaux de correspondre à n'importe quelle fenêtre.
Beaucoup de gens pensent qu'un panneau sandwich est destiné aux fenêtres en plastique, mais il peut également être utilisé pour les fenêtres à double vitrage en bois. Grâce à cette finition, ils ne gèleront pas.
Un autre avantage de cette solution est que les fenêtres des panneaux sandwich ne s'embuent pas (à condition que l'humidité à l'intérieur de la pièce soit normale). De plus, le matériau est facile à assembler, comme vous pouvez le voir ci-dessous, et ne nécessite pas non plus de finition supplémentaire, ce qui est également son gros plus.
Ainsi, la finition avec des panneaux de fenêtre sandwich est l'une des meilleures solutions.


Je note qu'il existe également des panneaux sandwich métalliques, qui sont souvent utilisés pour la construction de toutes sortes de cabines, hangars, etc.L'installation de fenêtres en PVC dans un panneau sandwich présente un certain nombre de difficultés.
Le plus souvent, pour cela, l'ouverture est gainée d'un profilé ou d'une planche (si la pièce est chauffée), et seulement après cela, les fenêtres sont installées dans le panneau sandwich. Cependant, c'est déjà un sujet pour un autre article, dont nous parlerons la prochaine fois.


Pour simplifier l'installation des fenêtres dans un panneau sandwich, utilisez des attaches spéciales
Une fois l'installation de la fenêtre dans un panneau sandwich terminée, la zone expansée de l'extérieur doit être immédiatement cachée par les plateaux, sinon la mousse se transformera rapidement en poussière sous l'influence de la lumière du soleil.
Sandwich - sur les fenêtres en bois et en plastique
Les panneaux sont très résistants aux rayons ultraviolets, ce qui est important pour la décoration extérieure. Pour décorer les façades, les fabricants proposent aujourd'hui de nombreuses options de panneaux, de texture et de couleur différentes, les panneaux sandwich sont largement utilisés pour équiper les structures temporaires, les panneaux d'affichage.
Un autre avantage important est la compatibilité avec les fenêtres en PVC. L'ouverture de la fenêtre aura l'air complète et noble. Les pentes externes dureront très longtemps, le matériau sans conséquences sur l'apparence et la fonctionnalité tolère l'action des intempéries et des produits chimiques nocifs. Le fonctionnement est grandement simplifié par un entretien facile, il suffit d'essuyer les panneaux avec du savon et de l'eau et ils seront comme neufs.
N'oubliez pas que si vous ne faites pas la décoration extérieure de la façade, des problèmes peuvent survenir sous forme de condensation dans la pièce, de courants d'air. Des champignons peuvent apparaître dans les pièces, ce qui est très difficile à éliminer, il ne vaut donc pas la peine de retarder la finition. Les configurations de fenêtres peuvent être absolument quelconques, les panneaux conviennent aux balcons, loggias, vérandas ouvertes, cafés, restaurants, hôtels.
Technologie d'installation
L'installation des pentes se compose de plusieurs étapes:
Les principales étapes de l'installation
Il est à noter que la finition des pentes des fenêtres en plastique avec des panneaux sandwich et des panneaux de bois est réalisée de la même manière. Ensuite, je vais vous dire en détail. comment le travail est effectué à chacune de ces étapes.


Un exemple d'alignement d'une ouverture de fenêtre avec des lattes de bois
Préparation de surface
Avant que. comment installer des panneaux sandwich sur les fenêtres, il est impératif de préparer la surface. Cela se fait comme suit:
- alignez d'abord l'ouverture de la fenêtre. Pour ce faire, retirez les vieux morceaux de plâtre et autres irrégularités. Dans certains cas, pour niveler l'ouverture, des lattes de bois sont installées autour du périmètre à l'aide de vis autotaraudeuses ou même d'une cheville de clous. Lors du processus d'installation des lattes, assurez-vous d'utiliser le niveau du bâtiment afin que l'ouverture de la fenêtre soit uniforme;
- vous devez également couper la mousse entre la vitre et l'ouverture de la fenêtre, ce qui peut interférer avec les travaux ultérieurs;
- alors l'ouverture doit être nettoyée de la poussière. Pour ce faire, passez l'aspirateur sur la surface ou essuyez avec un chiffon humide.
Maintenant que l'ouverture est préparée, vous pouvez procéder directement à l'installation.


Installation du profil de départ
L'installation de pentes de fenêtre à partir de panneaux sandwich implique l'installation d'un profilé en U le long du périmètre de la fenêtre. Ce travail est effectué dans l'ordre suivant:
- tout d'abord, mesurez le cadre de la fenêtre autour du périmètre;
- puis coupez le profil en bandes de la longueur requise. Pour ce faire, vous pouvez utiliser un couteau de montage ou des ciseaux spéciaux;
- À présent à l'aide d'un niveau de bâtiment, marquez la position du profil sur le dormant de la fenêtre... Ceci est nécessaire pour que les guides verticaux soient situés strictement verticalement, et l'horizontale, respectivement, horizontalement;


Un exemple de fixation d'un profil de départ
- fixez maintenant les guides au cadre de la fenêtre le long des marques à l'aide de vis autotaraudeuses. Ces derniers doivent être espacés par incréments d'environ 20 centimètres.
Ceci termine l'installation des guides.
Coupe
La découpe est une étape très importante, le travail doit donc être effectué avec soin et attention.... L'instruction ressemble à ceci:
- tout d'abord, mesurez les côtés extérieurs de l'ouverture de la fenêtre;
- après cela, mesurez la profondeur de l'ouverture de chaque côté à plusieurs endroits;


- maintenant, selon les données obtenues, il est nécessaire d'appliquer un marquage sur les panneaux, en tenant compte du fait que leurs extrémités intérieures, c'est-à-dire à côté de l'unité vitrée doit correspondre à la longueur des guides. Pour simplifier cette tâche, vous pouvez utiliser un goniomètre spécial (petit), qui vous permettra de mesurer les angles de l'ouverture, afin que vous puissiez ensuite l'utiliser comme modèle pour le marquage;
- maintenant, selon le marquage, vous devez découper les blancs. Pour ce faire, vous pouvez utiliser une scie sauteuse, un couteau d'assemblage ou même une scie à métaux pour le métal.
Il existe sur le marché un matériau de qualité inférieure qui jaunit rapidement au soleil et se fissure même. Par conséquent, il est conseillé de faire un achat dans une grande quincaillerie. Cependant, gardez à l'esprit que le prix du panneau commence à partir de
600 roubles par m2.
Article connexe: Comment déterminer le nombre de fenêtres en plastique de la chambre
Lorsque les trois vides sont prêts, vous pouvez commencer à les installer.


Mousser l'espace entre la pièce et l'ouverture
Installation de pentes
Au stade final, des pentes de panneaux sandwich sont installées sur les fenêtres. Cela se fait comme suit:
- commencer l'installation avec l'installation de la pente supérieure. Pour ce faire, insérez la pièce dans le guide;
- remplissez maintenant l'espace entre le panneau et l'ouverture de la fenêtre avec de la mousse, comme indiqué sur la photo ci-dessus;
- alors vous devez fixer la pièce en position horizontale. Pour ce faire, utilisez du ruban de masquage, qui doit être collé dessus avec des bandes avec une boucle sur les murs;
- en outre, les pentes verticales sont installées selon le même schéma;


Sur la photo - coins de collage
- puis des coins en PVC doivent être installés le long du périmètre de l'ouverture de la fenêtre, ce qui donnera aux pentes un aspect complet et masquera les fissures.
L'épaisseur du matériau varie de 6 à 32 mm. Plus ils sont épais, plus leurs qualités d'isolation thermique sont d'autant plus élevées.
Il faut noter que il existe une autre façon de monter les pentes. Il consiste à utiliser un profil en forme de F, qui est fixé aux murs le long du périmètre de l'ouverture.... Dans ce cas, la pente est insérée entre les deux queues du profil, sinon le travail est effectué selon le schéma décrit ci-dessus.
Ce sont peut-être toutes les informations concernant l'installation des pentes, que j'ai voulu partager avec vous.
Comment couper à la bonne taille
En commençant les travaux de réparation, chaque constructeur est confronté à la tâche principale - les mesures de mesure correctes. En effet, l'intégrité de la structure et son aspect attractif dépendront de la qualité des dimensions sélectionnées et des feuilles coupées finies. Par conséquent, la préparation des plaques SIP doit être effectuée comme suit:
- Vous devez d'abord préparer la surface pour l'installation des pentes, niveler les murs, couper les matériaux de montage en excès après l'installation de la fenêtre ou des portes;
- Ensuite, l'étape des mesures et du transfert des données vers les couches de produits de construction est effectuée.
- Il est nécessaire d'effectuer des travaux de mesure par étapes, d'abord en haut, d'un coin à l'autre et en profondeur, puis à l'aide de dispositifs de découpe de panneaux SIP (une scie sauteuse convient tout à fait), coupez la taille souhaitée de la plaque.
- En utilisant le niveau du bâtiment, il est nécessaire de fixer le panneau sandwich fini à la future pente et de voir si le produit s'adapte parfaitement au mur, à angle droit ou non.
- Si tout est fait correctement, les mêmes manipulations sont effectuées avec les parois latérales et le fond (si nécessaire) de l'ouverture.
- Lors du transfert des données de la largeur de la pente vers une feuille de construction multicouche, 10 mm doivent être ajoutés à cet indicateur. Ceci est nécessaire pour un couplage de haute qualité du produit avec le cadre de la fenêtre.
Important à retenir! Pour que la conception des pentes ait un bel aspect intégral, les plaques de panneaux sandwich de largeur strictement mesurée doivent être coupées de manière à ce que les plaques ne dépassent pas des bords des murs. Dans ce cas, après la finition, le mur passera en douceur dans la pente construite. En outre, lors de la réalisation de mesures de mesure, les éventuelles irrégularités des murs doivent être prises en compte.Par conséquent, les mesures doivent être prises à partir du haut, du milieu et du bas du mur (ou, respectivement, dans plusieurs sections de la bande supérieure et inférieure. de la fenêtre et de la porte).
Installation de panneaux sandwich
Bonjour les amis, dans l'article Installation de panneaux sandwich, vous apprendrez comment et sur quels panneaux sandwich sont montés, quels outils sont utilisés, les règles d'installation, mon histoire est comment nous avons monté des panneaux pour la première fois sur un chantier de construction. Je fournirai un album technologique à télécharger sur l'installation de panneaux sandwich avec des assemblages de fenêtres, de portes, un faîtage sur le toit et bien plus encore.


installation de panneaux sandwich
Dans l'article, l'installation de structures métalliques, j'ai promis d'écrire un article sur ce sujet et de fournir un album à télécharger au niveau des nœuds de montage du panneau.
Les travaux d'installation des panneaux sandwich commencent, après l'installation des structures métalliques du bâtiment, un socle est aménagé sur tout le périmètre, complété de panneaux, de fixations (livraison et réception sur le chantier) pour l'ensemble du bâtiment. Ce que doit être la base et comment elle est fabriquée peut être lue dans l'article "Appareil de base".
Les travaux d'installation des structures métalliques sont complétés par la pose d'un revêtement anticorrosion (nettoyage et peinture) de tous les joints de soudure et la vérification des dimensions géométriques, de la verticalité, de la planéité du cadre. Le dispositif du sous-sol se termine par la pose de l'étanchéité.
La fourniture de panneaux sandwich commence bien avant leur installation, lors de l'installation des structures métalliques et de l'installation du sous-sol. L'essentiel est de préparer un lieu de stockage; sur une plate-forme inégale, les panneaux s'affaissent sous leur poids et deviennent inutilisables.
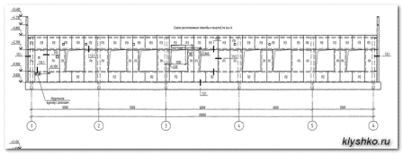
Les panneaux sont commandés en usine sur la base des dessins de la partie architecturale de l'AR selon la disposition, qui indique les dimensions, l'emplacement de chaque panneau et leur couleur. Les panneaux sont livrés sur le chantier sur des palettes avec des feuilles d'insertion, qui indiquent l'objet, le volume en mètres carrés, le type (mur ou toit) et des informations sur les fabricants.


Schéma de disposition des panneaux sandwich
Début de l'installation des panneaux sandwich.
Lorsque tout est prêt et terminé, l'ordre d'installation sera déterminé. Selon la taille du bâtiment, les panneaux peuvent être montés horizontalement ou verticalement.
Bande de panneau sandwich
Avant d'installer le panneau sur les colonnes et les barres transversales, dans les endroits de contact, des rubans auto-adhésifs spéciaux sont collés. Les courroies réduisent les vibrations et assurent un ajustement serré entre les panneaux et la structure du bâtiment.
Les panneaux sont fixés avec des vis autotaraudeuses spéciales en acier au carbone ou en acier inoxydable avec un joint, avec une perceuse pour le métal, s'ils sont fixés à des structures métalliques.
Si le cadre du bâtiment est en bois, le panneau est pré-percé et fixé avec des vis autotaraudeuses sur le bois. Les panneaux et les structures en béton sont fixés au béton avec des chevilles spéciales. La longueur des vis des vis autotaraudeuses est choisie en fonction de l'épaisseur des panneaux.
Si le panneau a une épaisseur de 50 mm, utilisez une vis de 75 mm ou un panneau de 200 mm, puis utilisez une vis de 240 mm.
Article connexe: La hauteur du linteau au-dessus de la fenêtre
L'installation des panneaux sandwich commence aux coins du bâtiment. Les panneaux sont montés à l'aide de dispositifs de serrage spéciaux. La pince est une poignée à vis spéciale avec des mâchoires caoutchoutées, avec des boucles pour le levage par une grue.
Des traversées avec une pince à vide sont également utilisées pour soulever les panneaux. Si le panneau n'est ni grand ni lourd, il est permis de le soulever et de le fixer manuellement. Les panneaux sont montés en tenant compte de toutes les ouvertures technologiques spécifiées dans le projet.


Installation de panneaux sandwich pour toiture
Les trous pour les fenêtres, les portes, les réseaux d'ingénierie sont marqués et découpés au sol. Dans ce cas, le proverbe "mesurer sept fois et couper une fois" est très pratique, les panneaux coûtent à partir de 1500 roubles pour 1 m2 et s'ils n'ont pas été coupés correctement, dans la plupart des cas, vous ne pouvez pas les mettre n'importe où.
Les trous sont marqués sur le sandwich des deux côtés et coupés avec une scie sauteuse électrique avec des scies à métaux. Couper avec une meuleuse, avec une roue de coupe pour le métal, les bords du panneau sont déchirés. Des tournevis sont également utilisés pour fixer les panneaux avec des vis à la structure du bâtiment. De la technologie, une grue et une tour télescopique sont utilisées, qui fonctionnent par paires.
Sélectionnez le nœud qui vous intéresse dans le menu rapide:
1.1. Dispositif de base / plinthe


1.2. Dispositif de base / plinthe


1.3. Dispositif de base / plinthe


1.4. Dispositif de base / plinthe


2.1. Joint de panneau, installation horizontale (sur un support métallique et sur une colonne en béton armé)


2.2. Joint de panneau (sur colonne en béton armé à travers bois à colombages et avec installation verticale)


2.3. Joint de panneau (épaisseur différente)


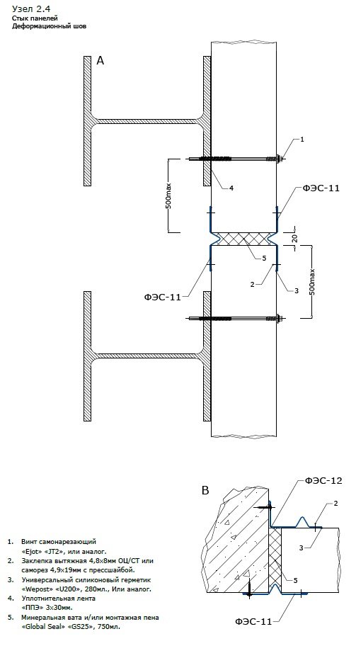
2.4. Joint de panneau (joint de dilatation)


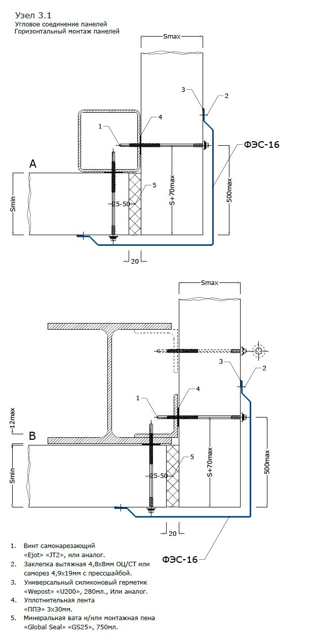
3.1. Joint d'angle des panneaux (coin extérieur, installation horizontale)


3.2. Joint d'angle des panneaux (coin extérieur, installation verticale)


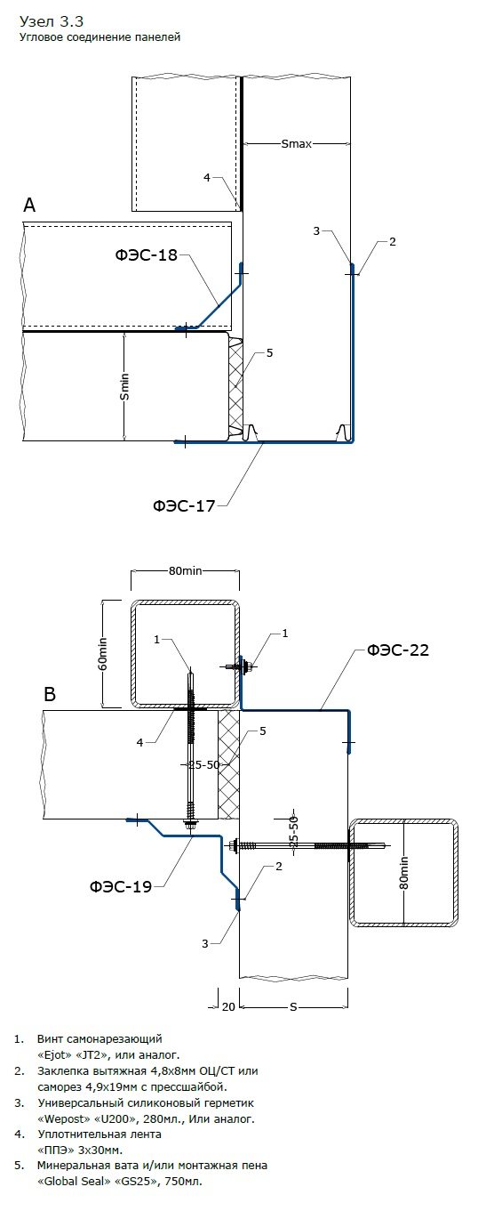
3.3. Joint d'angle des panneaux (coin extérieur, installation verticale)


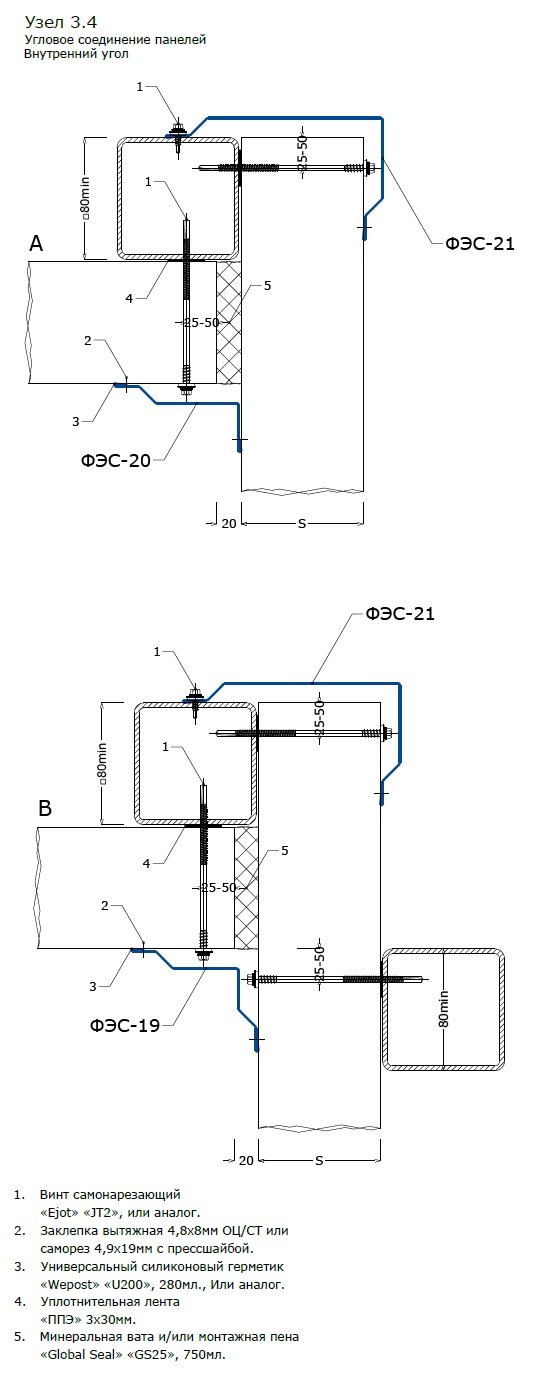
3.4. Joint d'angle des panneaux (coin intérieur)


4. Encadrement du panneau


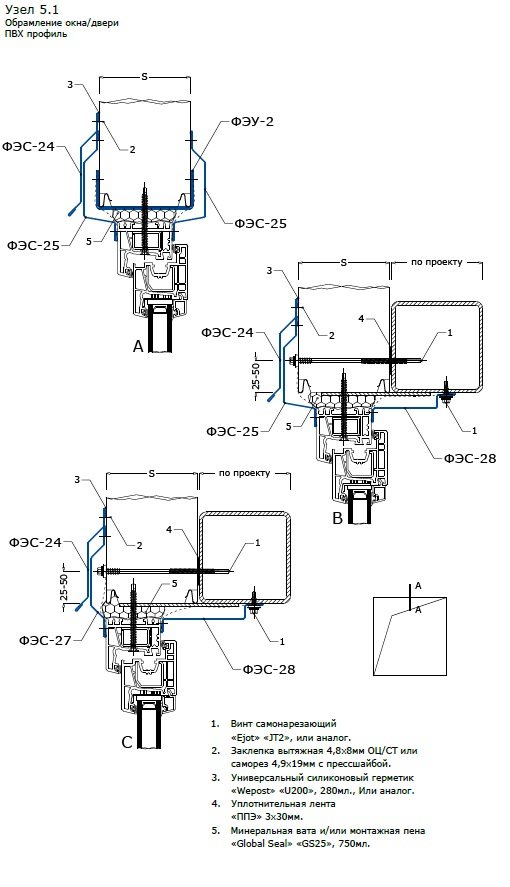
5.1. Encadrement de fenêtre / porte (partie supérieure)


5.2. Châssis de fenêtre (partie inférieure)


5.3. Encadrement de fenêtre / porte (partie latérale)


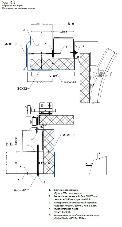
6.1. Encadrement de l'ouverture de la porte (portes sectionnelles)


6.2. Encadrement de l'ouverture de la porte (portes sectionnelles)


6.3. Encadrement de l'ouverture du portail (portails battants)


Assemblages de panneaux sandwich pour toiture.
7.1. Parapet (adjacent aux panneaux sandwich muraux)


7.2. Parapet (jonction faîtière des panneaux sandwich de toiture aux panneaux sandwich muraux)


7.3. Parapet (butée longitudinale d'extrémité des panneaux sandwich de toiture à un mur existant)


7.4. Parapet (jonction faîtière des panneaux sandwich de toiture au mur existant)


8.1. Avancées en surplomb, gouttière.


8.2. Les avant-toits surplombent le toit.


8.3. Joint de panneau longitudinal (extension de panneau).


9.1. Porte-à-faux du toit (faîte de toit en pente).


9.2. Porte-à-faux du toit (faîte de toit en pente).


9.3. Surplomb d'extrémité d'un panneau sandwich de toiture (barre de vent).


9.4. Porte-à-faux d'extrémité d'un panneau sandwich de toiture (barre de vent) avec un porte-à-faux de panneau de toit.


9.5. Porte-à-faux d'extrémité d'un panneau sandwich de toiture, joint de dilatation.


10. faîte de toit.


Par la présente, agissant librement, de mon plein gré et dans mon propre intérêt, j'accepte le traitement par la société à responsabilité limitée TD SteelPanel (site Web https://steelpan.ru/, INN 7722358616, OGRN 1167746283660, emplacement: 111020, Moscou, Yuryevsky per., Maison 11, bureau 45) de mes données personnelles: nom, prénom, patronyme, lieu de résidence (ville, région), numéros de téléphone, adresses e-mail (e-mail), autres données reçues de ma part, y compris y compris des copies électroniques de documents.
TD SteelPanel LLC se conforme aux mesures appropriées pour protéger les informations confidentielles reçues des personnes qui ont envoyé des données personnelles sur le site Web https://steelpan.ru/, indépendamment de l'existence d'une relation contractuelle, n'envoie pas et n'a pas l'intention d'envoyer du matériel publicitaire à ces personnes.
Je suis également informé qu'en plus des mesures habituelles de diligence raisonnable pour la protection des informations confidentielles, TD SteelPanel LLC est prêt à prendre des mesures accrues pour protéger les informations confidentielles à la demande du demandeur.
Achèvement des travaux d'installation de panneaux sandwich
Une fois les panneaux installés, des travaux préparatoires sont en cours pour l'installation des fenêtres et des portes. Les fenêtres et les portes ne sont pas fixées aux panneaux eux-mêmes, mais à des plaques métalliques soudées aux colonnes ou aux impostes du bâtiment. Après cela, les fenêtres, les portes sont installées et la dernière étape est l'installation d'éléments façonnés.


Montage pour la fixation de la fenêtre aux panneaux sandwich
Avant d'assembler les raccords, remplissez toutes les fentes vides avec de la mousse de polyuréthane. Les éléments façonnés se composent de bandes de recouvrement, d'appuis de fenêtre, de reflux, de coins extérieurs, de corniches.
L'installation de bandes verticales est introduite de bas en haut, de sorte que les fouets soient situés le long du cours de l'écoulement de l'eau pour éviter de la pénétrer à l'intérieur. Les éléments profilés sont fixés avec des vis autotaraudeuses et les joints sont scellés avec des produits d'étanchéité.Comment sceller correctement et les conséquences d'un travail mal effectué peuvent être trouvés dans cet article.
Mon expérience de l'installation de panneaux sandwich
Tout le monde a dû faire une sorte de travail pour la première fois. C'était donc avec mon travail d'édition. Il semble que vous ayez lu toutes les instructions, étudié les dessins et, toujours en cours de travail, vous vous demandez si vous faites la bonne chose. Tout cela parce que vous ne savez pas à quel résultat vous attendre.
L'article «Mon chantier 3» décrit le début de mon prochain quart de travail sur un chantier et ma première connaissance de l'installation de panneaux sandwich dès leur démontage. À ce point de contrôle, des panneaux sandwich ont été installés et démontés 5 fois.
Les panneaux sont montés une fois, car ils se cassent facilement, l'isolant se décolle. Notre vision de ces panneaux est très gâtée après des installations répétées.
Les premières erreurs n'ont pas vérifié la géométrie des structures métalliques. Lors de l'installation des panneaux, tout cela n'est pas sorti même des coins, j'ai dû couper des panneaux le long et de grands espaces.
Les panneaux de toit ont dû être coupés en raison du non-respect des diagonales de la charpente du bâtiment, car les joints et la sortie le long des bords du bâtiment des panneaux ne correspondaient pas.
Nous n'avons pas pu trouver de poignées, de pinces pour l'installation. Des trous ont été faits le long des bords du panneau sandwich, un fil a été fileté pour le levage avec une grue et de cette manière ils ont été montés. À plusieurs reprises, des fils ont coupé à travers le métal mince des panneaux, les faisant tomber et se briser.
Les panneaux ont été installés, mais les joints de soudure de la charpente métallique n'ont pas été peints, le client leur a fait démonter le ruban. Après de nombreuses erreurs, le travail d'installation du panneau sandwich s'est bien passé et tout s'est bien passé.
Il y avait, cependant, de telles erreurs sur d'autres objets, les ouvriers ont découpé l'ouverture en taille, ils ont dû commander un nouveau panneau.
Les panneaux arrivent sur le chantier dans un film, qui sert à protéger le revêtement pendant le transport, le film à l'extérieur est enlevé immédiatement lors de l'installation, et à l'intérieur peut être enlevé après l'achèvement des travaux. Sur certains sites, j'ai vu une telle image, les travailleurs ont déchiré le film sur les panneaux sandwich en petits morceaux, car ils ne l'ont pas immédiatement déchiré, il est resté longtemps et la colle a séché.
Vidéo du chantier de construction, comment le cadre des colonnes est monté (les enfants de moins de 16 ans ne sont pas autorisés à regarder des blasphèmes) et à la fin de la vidéo le travail sur l'installation de panneaux sandwich
Quels sont les types de panneaux sandwich, vous pouvez le découvrir dans l'article "Panneaux sandwich PVC". Après avoir effectué l'installation des panneaux sandwich, la prochaine opération est l'installation d'appartements, comment les écueils peuvent être en la matière, lisez ici.
Articles Liés:
Vos remerciements pour mon article sont un clic sur n'importe quel bouton ci-dessous. Merci!
Article associé: Vanne de fenêtre pour fenêtres en plastique
Les nuances de l'installation d'éléments supplémentaires de panneaux sandwich
Aujourd'hui, les bâtiments préfabriqués en panneaux sandwich sont devenus une technologie de pointe pour la construction de divers types de pavillons, d'entrepôts et de hangars, ainsi que de parkings et de petits immeubles de bureaux. Tout d'abord, c'est rapide, ce sont les excellentes caractéristiques d'isolation thermique des bâtiments, leur sécurité, ainsi qu'une apparence attrayante. Mais toutes ces qualités positives ne seront observées que si des éléments supplémentaires sont utilisés lors de l'installation de panneaux sandwich. Et leur choix doit être abordé de la même manière que pour le mur porteur et les panneaux de toit eux-mêmes. Autrement dit, ils doivent être de haute qualité, tout d'abord, et deuxièmement, ils doivent être installés correctement.


La principale exigence pour l'installation d'éléments façonnés est le respect exact de la documentation de conception et d'installation, dans laquelle les nœuds qui doivent être fermés avec des profils supplémentaires sont clairement définis. Les concepteurs déterminent avec précision l'emplacement d'installation de chaque type, par conséquent, leur emplacement d'installation ne peut être modifié dans aucune condition.
Bien entendu, qui peut dire que lors de l'installation des panneaux sandwich eux-mêmes, des situations se présentent qui n'affectent pas la géométrie de l'installation.C'est-à-dire que les trous de montage sont déplacés les uns par rapport aux autres, ce qui réduit la qualité d'installation des profilés profilés. Mais, premièrement, une mauvaise installation des panneaux est un facteur purement humain. Par conséquent, le conseil est de recourir aux services d'équipes de montage professionnelles. Deuxièmement, si le projet a été réalisé par un concepteur possédant une vaste expérience, il doit alors prendre en compte certains déplacements des panneaux les uns par rapport aux autres et les éléments porteurs du bâtiment. il ne devrait donc pas y avoir de problèmes à cet égard.
En ce qui concerne l'installation des éléments supplémentaires elle-même, vous ne pouvez commencer à les utiliser qu'après avoir terminé toutes les opérations d'installation associées à la formation de la structure générale du bâtiment. Autrement dit, tous les joints doivent être isolés thermiquement, les extrémités des panneaux sandwich doivent être coupées aux coins du bâtiment, le film protecteur doit être complètement retiré, etc.


Le reste des nuances de l'installation des bandes:
- Le film protecteur des éléments supplémentaires est retiré avant leur installation directe.
- Les profils verticaux sont posés de bas en haut avec un léger chevauchement. Horizontal, en tenant compte de la pression du vent, c'est-à-dire de sorte que le chevauchement aille dans le sens du mouvement des masses d'air.
- Pour éviter que les précipitations et l'humidité ne pénètrent sous les raccords, il est nécessaire d'utiliser un mastic silicone ou un ruban d'étanchéité lors de leur installation.
- Assurez-vous d'être traité avec un scellant et des chevauchements.
- Si la bande ferme la jonction des panneaux sandwich avec d'autres éléments de construction, alors le rognage des éléments supplémentaires est effectué localement, en tenant compte de la configuration du joint et de ses dimensions.
- Pour la fixation de profilés profilés, vous devez utiliser des vis ou des rivets spéciaux. L'étape de fixation est de 40 cm, mais dans chaque projet, les développeurs doivent indiquer l'étape pour chaque élément séparément.
- Le serrage du profilé supplémentaire doit être effectué en tenant compte de la force de vissage. Autrement dit, la fixation ne doit pas être vissée ou tordue de manière lâche. Dans le premier cas, l'humidité peut tomber sous le profil supplémentaire, entre lequel un espace décent reste et le panneau, dans le second cas, la pièce se pliera, ce qui entraîne une diminution de la qualité de l'apparence.
- Les bandes verticales sont installées sur un fil à plomb, horizontales sur des fils étirés horizontalement
Lors de l'installation d'éléments supplémentaires de panneaux sandwich, vous aurez peut-être besoin de vis autotaraudeuses galvanisées de 240 mm.
Articles similaires