Les avantages des panneaux de façade
Construire une maison en pierre ou en brique est une entreprise très coûteuse. Les panneaux de façade pour le revêtement d'une maison, en revanche, sont un matériau moderne populaire et facile à installer.
Avantages:
- En raison du fait que les panneaux sont fabriqués en polymère de haute qualité mais peu coûteux, leur coût est plusieurs fois inférieur à celui des briques et des pierres pour le revêtement.
- Le matériau est durable, résistant aux intempéries et peut être facilement lavé avec un tuyau.
- La finition de la façade est rapide et facile car seules quelques attaches sont nécessaires pour installer un panneau. Il peut être réalisé sans l'aide de la technologie, de manière indépendante. Les matériaux de fixation peuvent toujours être trouvés dans n'importe quelle quincaillerie.
- À condition que des panneaux avant soient utilisés, il est possible d'isoler en plus la maison. Le revêtement est installé sur une caisse, sous laquelle divers matériaux isolants peuvent être posés. C'est le deuxième objectif principal des panneaux de façade après la décoration.
- Le revêtement peut avoir une apparence pour absolument toutes les textures: bois, pierre, brique. La palette de nuances est variée.
Les inconvénients comprennent le fait que les panneaux sont susceptibles de subir des dommages mécaniques. Pour résoudre ce problème en toute sécurité, vous devez acheter un matériau de revêtement avec une petite marge, en cas de dommage et de remplacement.

En peu de temps, une maison ordinaire se transformera en un bâtiment élégant et noble.
Panneaux en fibrociment
La base comprend du ciment, du bois et des additifs synthétiques qui confèrent au matériau une plasticité. Cette option est la plus écologique. Imprègne parfaitement l'humidité vers l'extérieur, ne brûle pas, résiste aux processus de putréfaction et protège de manière fiable la structure principale.


L'installation à faire soi-même des panneaux de façade s'effectue sur le cadre de 2 manières:
- Ouvert. Principalement utilisé pour les panneaux de fibrociment jusqu'à 14 mm d'épaisseur. Des trous traversants sont réalisés dans l'élément à travers lesquels des vis autotaraudeuses galvanisées sont vissées dans le cadre. Une fois l'ensemble du processus terminé, les bouchons doivent être peints dans une couleur appropriée. Cela aidera à la fois à masquer les attaches et à les protéger de l'humidité. Un petit espace est laissé entre les carreaux pour le remplissage avec une composition hermétique.
- Caché. Convient aux carreaux plus lourds, plus épais que 16 mm. Dans ce cas, des pinces sont utilisées comme attaches. Cette méthode vous permet de fixer l'élément de manière plus sûre et de masquer la couture horizontale.
Types de panneaux de façade
Il existe de nombreux types, ils diffèrent par le matériau de fabrication, la méthode d'installation, les tailles, les couleurs. Sur le plus demandé en outre.
Bardage en métal
Les modèles en aluminium et en acier inoxydable sont de construction fiable et durable. Le revêtement en métal est parfait pour faire face aux chalets d'été, aux maisons à un étage. Les panneaux reproduisent bien "l'effet" du bois et sont faciles à assembler. L'entretien est très simple - laver la partie contaminée de la maison.
L'installation est la suivante:
- Un drainage est appliqué à la base.
- Le profil en U est fixé à des supports en forme de P.
- La barre initiale est placée dans le joint au système de drainage.
- Le revêtement métallique est monté.
Installation de revêtement métallique
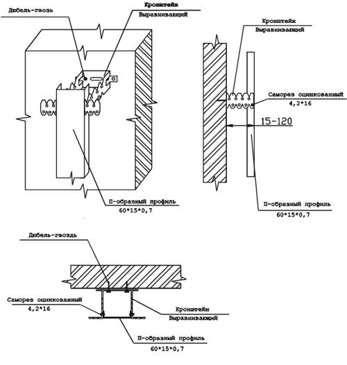
Le revêtement est monté sur une surface solide et plane. Si cette condition n'est pas remplie, vous devez utiliser le système de nivellement. Il peut être en bois (bois d'une épaisseur d'au moins 25 mm), mais, compte tenu des lacunes du bois, une structure composée de supports de nivellement galvanisés et de profilés en U est plus efficace (Figure 4).
Les supports de mise à niveau sont fixés au mur existant avec des clous de cheville (ancrages) avec un pas de 1,0 m sur la longueur du profilé en U. Le profilé en U est installé perpendiculairement à la direction des panneaux de revêtement tous les 0,5 ... 1,0 m. Cette conception permet, si nécessaire, d'installer de l'isolant.


Figure. 4. Système de nivellement.
Avant l'installation des panneaux de revêtement, les éléments suivants sont installés:
• barre de départ; • éléments d'angle; • éléments d'encadrement des ouvertures de fenêtres et de portes - bandes, plateaux ou coins en pente; • aux endroits des joints prévus - bandes de recouvrement.
1. Pose de la planche initiale (disposition horizontale des panneaux de revêtement)
Dans ce cas, l'installation se fait de bas en haut. La planche initiale, qui assure l'ancrage nécessaire du premier panneau de revêtement, est installée le long du bord inférieur du revêtement (figure 5).
Pour une installation correcte, à l'aide d'un niveau (de tout type), marquez le mur le long duquel la planche initiale est installée.
Disposition verticale des panneaux de revêtement
Selon la situation, l'élément de départ pour la disposition verticale du parement peut être: la planche initiale, la planche finale, les planches d'angle (figure 6), ainsi que les planches inclinées. L'élément de départ est de niveau et fixé avec un pas de 300 mm.


Figure. 5. Installation de la planche initiale pour l'installation de parement horizontal.


Fig. 6. Utilisation d'un coin extérieur pour l'installation de revêtement vertical.
2. Installation de coins et de bandes.
Placer les coins extérieurs et intérieurs le long d'un fil à plomb, fixer avec un pas de 300 mm des deux côtés (Fig. 7, vue A). De la même manière, une bande est installée aux endroits des joints prévus (Fig. 7, vue B).
3. Installation de cadres pour portes et fenêtres.
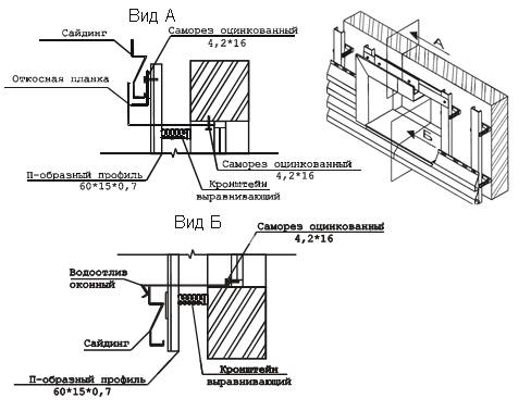
L'encadrement des ouvertures de fenêtres et de portes peut être: une bande de pente (Fig.9, vue A), une platine ou une bande de finition (Fig.8), dans certains cas, des coins extérieurs (85 * 85; 50 * 50; 30 * 30) sont utilisés, qui sont déjà installés sur le parement monté. Le rebord de la fenêtre est généralement placé sur le rebord de la fenêtre (Fig. 9, vue B).
Lors de l'installation des cadres de porte et de fenêtre, installez d'abord les parties supérieures, puis les latérales. Une fois le revêtement monté, un drain est installé. Fixations au pas de 300 mm. S'il est nécessaire de carreler les murs des ouvertures, il est préférable de le faire avant le revêtement mural.


Fig 7. Installation des coins et des bandes.
Fig 8. Encadrement de la porte avec un platband.


Fig 9. Encadrement d'une ouverture de fenêtre avec une bande de pente.
Montage du parement autour des fenêtres.
| Figure. 10. Pose du revêtement sur la fenêtre. | Essayez d'abord le panneau de sorte que les bords dépassent des deux côtés de l'ouverture de la fenêtre. Marquez ensuite la largeur de la fenêtre dessus, en ajoutant 6 à 10 mm. Les marques obtenues montreront les coupes verticales. (fig.10a) Faites un échantillon de coupe horizontale. Pour ce faire, renforcez un petit morceau de parement près de la fenêtre et faites-y des marques 6 mm sous le rebord (Figure 10b) des deux côtés de l'ouverture de la fenêtre, car il n'y a aucune certitude que le niveau de la fenêtre soit parfait. Transférez les marques des échantillons sur le panneau. Ensuite, effectuez la coupe souhaitée. Le montage du revêtement sur le dormant de la porte s'effectue de la même manière. 4. Installation de panneaux Dans le cas d'une conception horizontale, les panneaux sont montés de bas en haut. Accrocher le premier panneau avec la base à la bande de départ (Fig.11, vue B), puis fixer le bord supérieur du panneau avec des vis autotaraudeuses (dans le cas d'un lattage en bois, des clous), en partant de son centre. Avant de le fixer, assurez-vous que le panneau est fermement saisi sur toute sa longueur. Installez une vis autotaraudeuse (clou) au centre du trou, mais ne serrez pas fermement, en laissant un espace d'environ 0,8 mm pour un éventuel mouvement thermique du matériau. Tous les panneaux suivants sont accrochés sur déjà montés (Fig. 11, vue B) et fixés de la même manière. Assurez-vous de vérifier l'horizontalité des panneaux à monter.Afin d'éviter les déformations lors de la dilatation thermique, un espace de 6-9 mm doit être laissé. entre l'extrémité du panneau de parement et les composants verticaux (Fig. 11, vue A). Si vous décidez néanmoins de placer le parement verticalement, alors tout en fixant le panneau, installez le boulon le plus haut (clou) de sorte que le panneau y pende librement, puis installez tous les autres au centre des trous. Comme pour l'installation horizontale, il est nécessaire de vérifier la verticalité des panneaux et de laisser des espaces. |


Figure. 11. Installation de panneaux
5. Achèvement de l'installation.
| Figure. 12. Encadrement du bord supérieur du bardage avec une bande de finition. | La touche finale est l'encadrement du bord supérieur du bardage. Cela peut être fait, selon la situation, avec un reflux supérieur (Fig. 13), une barre de finition (Fig. 12) ou un coin extérieur (85 * 85; 50 * 50; 30 * 30). Tous ces éléments sont fixés avec des boulons autotaraudeurs. Pas de boulon 300 mm. | Figure. 13. Encadrement du bord supérieur du revêtement avec le solin supérieur. |
Types de fixations et de fixations utilisées pour les façades de ventilation
Un grand nombre de types de fixations différents sont destinés aux travaux d'installation, en fonction du type de panneaux. Pour déterminer la quantité requise de fixations, vous devez être guidé par les images de la maison, le nombre de fixations pour chaque revêtement. Parmi eux se trouvent:
- vis de façade;
- rivets;
- toutes sortes de chevilles;
- boulons de montage dissimulés;
- attaches façade duo et autres.
Vis autotaraudeuse pour façade
Attaches pour une façade ventilée - vis en acier inoxydable (pour éviter la rouille). Les vis avant ne sont pas utilisées pour les systèmes galvanisés, les rivets leur conviennent. Et pour les panneaux en aluminium, ils s'adaptent parfaitement.
Il est important de serrer correctement la vis autotaraudeuse, vous ne devez pas serrer et tordre les fixations.


Comment travailler: le revêtement est uniformément appliqué sur la caisse, puis vissé un à un sur les vis autotaraudeuses.
Des rivets


Les rivets en aluminium et en acier inoxydable sont également utilisés dans l'installation de façades ventilées en profilés en aluminium. Ils ont des côtés élargis et saillants. Le diamètre correspond à la taille du côté.
Le rivet se compose d'un manchon (acier inoxydable ou aluminium) et d'un manchon (acier inoxydable). Un manchon installé dans la structure relie le support au profil. La manche est étirée dans la manche. Les attaches sont fiables.
Cheville avant pour supports de montage


Dans les systèmes de façades ventilées, des chevilles de différentes configurations sont utilisées. Lors de leur choix, vous devez faire attention aux nuances suivantes:
- la cheville doit se plier facilement, ne pas se casser;
- épaisseur de 12 à 16 mm;
- le couvre-goujon doit être adapté à la fixation des carreaux de façade;
- le diamètre de la cheville dépend de la charge, du poids du gainage;
- le plus souvent, des chevilles en forme de plat (parapluies, champignons) sont utilisées pour fixer l'isolation thermique: un trou est percé légèrement plus grand que la taille de la fixation et la cheville est installée.
Boulons cachés
C'est une ancre ou une vis pour les attaches cachées d'une façade en pierre, plastique, fibrociment. Il est installé dans un trou pré-percé, sécurisé mécaniquement.
Comment recouvrir une maison avec des panneaux avant de vos propres mains
Les panneaux de façade peuvent être montés de plusieurs manières différentes. Le choix dépend de plusieurs facteurs:
- État de la fondation. Sur un mur bien préparé, les panneaux sont fixés sans utiliser de colle ou de mousse sur des chevilles et des ancrages autotaraudeurs. Si la base est inégale, les panneaux sont montés avec de la colle ou de la mousse de construction. La méthode d'installation sur le cadre est également utilisée. Il consiste en la création d'une base plate et solide à partir de profilés métalliques ou de lattes en bois pour la pose de panneaux monocouches ou multicouches.
- Sur les murs gainés de feuilles isolantes, les panneaux de façade monocouche sont installés uniquement le long du cadre. Cette technologie s'appelle une façade ventilée. Il y a une fine couche d'air entre l'isolant et le revêtement. Il s'agit d'un conduit de ventilation pour la ventilation avec l'intérieur de la façade suspendue.
L'installation est précédée d'un calcul matériel et de travaux préparatoires
Le calcul est fait selon le croquis de la façade. Un motif à plat est dessiné sur le croquis indiquant toutes les dimensions hors tout, le nombre de fenêtres et de portes. Pour un calcul précis, il est préférable de contacter un conseiller commercial. Dans les grands magasins, on leur apprend à effectuer rapidement le calcul.
Les travaux préparatoires commencent par la rénovation de la façade et l'identification des zones à problèmes. Ensuite, la surface est nettoyée des restes de l'ancien revêtement. Tout ce qui est accroché sur la façade de l'extérieur est démantelé. Les grosses fissures et éclats sont brodés et réparés avec du mortier de ciment-sable.
Si la façade est affectée par des champignons ou des moisissures, une désinfection est effectuée. La méthode la plus efficace pour la gravure consiste à imprégner la surface avec un sol de sulfate de cuivre.
Le sulfate de cuivre est toxique. Il est dangereux pour le corps humain, c'est pourquoi le travail est effectué avec un respirateur et des gants en caoutchouc.
Installation de panneaux thermiques de façade de vos propres mains
Ils peuvent être installés de deux manières:
- Pas de colle.
- Sur la colle.
Pas de colle
Une base absolument de niveau est requise. Un panneau glisse sur l'autre et s'enclenche avec un verrou spécial. Cette méthode d'installation réduit le temps global et l'intensité de travail des travaux.
Avant de fixer les panneaux thermiques de quelque manière que ce soit, le marquage est effectué. À l'aide d'un niveau laser ou d'un niveau sur la façade, la ligne d'horizon est déterminée. Il peut coïncider ou non avec la ligne de zone aveugle. Si les lignes correspondent, il n'y aura pas de problème. Le papier de verre dépasse la marque du joint entre le panneau et la base.
Si la maison est sur une butte et que la zone aveugle n'est pas horizontale, la ligne de départ est tracée parallèlement à la zone aveugle. La deuxième ligne de cote rebondit le long du niveau de l'horizon, à une hauteur égale à la taille du panneau à partir du point inférieur de la façade. Ainsi, en découpant le bas des panneaux de la première rangée, le haut passe strictement horizontalement.
Les panneaux sont coupés avec une meuleuse avec une meule diamantée. Les lunettes sont utilisées pour protéger les yeux. Le broyeur ne coupe que le revêtement protecteur. Une scie à bois ordinaire est utilisée pour couper l'isolant.
Le profil de départ est défini sur la marque du bas. Il est fixé au mur avec des chevilles autotaraudeuses.
L'installation commence au coin de la maison. Pour fixer les panneaux de façade, des chevilles de disque à grande tête plate sont utilisées. Un trou peu profond est percé sous chaque cheville dans l'isolant pour le diamètre de la tête. Pour qu'après l'installation, la cheville affleure l'isolant et n'interfère pas avec le joint des panneaux.
Pour une fixation supplémentaire des panneaux, des chevilles autotaraudeuses sont utilisées. Des trous sont percés sous eux dans les joints entre les carreaux. Après l'installation, les traces de fixation peuvent être facilement masquées avec un mastic adapté au mur.
Après avoir fixé le premier panneau, le second y est attaché sur la serrure. Ainsi, toute la façade est revêtue. Les coins extérieurs entre les panneaux sont fermés avec des éléments supplémentaires.
Sinon, les extrémités des coins sont coupées à un angle de 45 degrés. Après la fin de l'installation, le joint est scellé avec du mastic. Pour connecter les éléments, vous n'avez pas besoin de mettre trop de pression sur eux. Si cela ne fonctionne pas, l'un des panneaux est incliné ou il y a une bosse sur le mur. Les deux lacunes sont éliminées, continuez à éditer.
Sur la colle
L'installation de panneaux sur colle est pertinente lorsque la base est ondulée avec des écarts de 10-30 mm dans le plan horizontal ou vertical. L'adhésif agit comme un matériau de nivellement. Une fois la façade terminée, il n'y a pas de vide d'air entre le mur et les panneaux.
Le marquage et le sciage des panneaux thermiques de façade sont réalisés selon l'algorithme de la méthode sèche.
Le profil de départ est fixé le long de la ligne horizontale inférieure. C'est le support du système de façade. Pour améliorer la connexion du panneau au profilé, de la mousse de polyuréthane est appliquée sur l'étagère. La première rangée de panneaux est montée sur la mousse.
L'installation commence à partir du coin inférieur de la maison.Pour l'installation de panneaux thermiques, une colle spéciale est utilisée, qui est achetée avec les éléments de revêtement. Si ce n'est pas le cas, un mélange sec convient à l'installation de mousse ou d'isolant minéral sur une base en brique, en béton ou en béton cellulaire.
L'adhésif est appliqué en couche mince sur toute la surface du panneau à l'aide d'une truelle crantée. Pour une fixation supplémentaire, des chevilles à disque sont utilisées. Lors de l'assemblage des panneaux, il est nécessaire de s'assurer que la taille des joints entre les carreaux au niveau des joints ne diffère pas des joints voisins.
Tous les joints du lieu et du lieu d'installation des chevilles autotaraudeuses sont scellés avec du mastic de la couleur de la surface.
Il faut se rappeler que le matériau à partir duquel le mur est fabriqué affecte le choix de l'isolation du panneau thermique. Il est préférable de recouvrir des structures poreuses telles que le béton cellulaire, les blocs de silicate avec des panneaux thermiques à base d'isolation minérale.
La laine minérale évacue bien l'humidité. Pour les murs en brique et en béton, vous pouvez utiliser un revêtement à base de polystyrène.
Règles de base pour l'installation des panneaux
Le revêtement est installé de deux manières: caché et ouvert.
L'installation de type ouvert consiste à renforcer les panneaux sur les pannes en perçant simplement des trous pour la fixation et la fixation. Toutes les fixations sont visibles dans ce cas. Mais ils peuvent être assortis à la couleur des panneaux ou des capuchons décoratifs peuvent être utilisés, ou simplement peints dans la couleur des panneaux.
La méthode de fixation cachée fixe solidement la structure et reste invisible en même temps.
Pour les panneaux de façade pour la brique, la pierre, des bandes de fixation supplémentaires sont utilisées. La méthode cachée est plus difficile que la méthode ouverte et plus coûteuse. Cependant, l'extérieur du bâtiment est parfait. Souvent, ils utilisent une installation cachée, en partie au niveau des portes, la partie inférieure de la maison et la partie supérieure et les façades arrière sont renforcées de manière ouverte.
Lors de l'installation du revêtement, vous devez vous rappeler les règles de base:
- L'installation doit commencer par le bas de la maison et par les coins.
- La disposition des lignes doit être vérifiée avec un niveau. Avec un assemblage correct, toutes les coutures sont jointes et une feuille de façade solide est obtenue.
- L'installation du revêtement est un élément important, elle réduit la charge sur les murs, permet d'isoler en plus la maison, masque les défauts et les inégalités des vieux murs.
Installation à faire soi-même
Aujourd'hui, il existe trois façons d'installer des panneaux qui attirent chaque consommateur dans sa tâche:
Sur des surfaces planes
Cette méthode est économique et la plus simple à utiliser., il est à noter que l'installation est réalisée sur des murs parfaitement plats. Sinon, la courbure de l'installation gâchera l'aspect de la maison et perdra ses propriétés protectrices. Pour un revêtement sans cadre, il est nécessaire d'acheter des panneaux de clinker avec isolation interne.
Fixez la toile au mur avec de la colle. Si le mur est lisse, il peut être fixé sur une masse adhésive spéciale, un grand nombre d'entre eux sont maintenant vendus, l'essentiel est qu'il résiste au gel.
À l'aide d'une truelle crantée, le mélange est appliqué sur la surface et la plaque est posée, de la même manière, la seconde est installée. Vous n'avez pas besoin de créer une grande couche, le panneau flottera. Le niveau vérifie la verticale et l'horizon, après quoi la taille de la couture est fixée avec des croix en mosaïque.
Il est important que la colle n'obstrue pas le joint, elle doit être frottée avec une autre substance.
Sur des murs inégaux
Tout d'abord, des irrégularités sont révélées, qui sont corrigées à l'aide de suspensions en plaçant une barre ou un profil le long des bords du bâtiment et au niveau requis.
Pour rendre le plan entier uniforme, le lacet est tiré sur les profils déjà exposés sur les bords, qui serviront également de guides pour le reste des profilés métalliques.
Un panneau est fixé au cadre avec une vis autotaraudeuse et l'isolation est posée dans le vide créé. Cette opération doit être effectuée sur tout le plan.
Installation de façade ventilée
La méthode de montage est similaire à la méthode de la deuxième option., mais seulement entre l'isolant et le panneau, il y a un espace pour la circulation des masses d'air.La technologie de façade ventilée nécessite un système de fixation spécial. Le support nécessaire est inclus avec les panneaux.
Outils pour le travail:
- roulette;
- niveau du bâtiment;
- Bulgare;
- dentelle;
- Tournevis;
- percer;
Pour la méthode humide, vous n'avez besoin que d'un ruban à mesurer, d'une scie à métaux ou d'une meuleuse, d'une spatule et d'un seau pour mortier.
Technologie d'installation des panneaux muraux externes
L'installation doit être effectuée conformément à toutes les exigences et instructions dans un ordre spécifique. Avant d'acheter des matériaux, il est impératif de s'assurer que les carreaux de façade sont compatibles avec la fixation.


Préparation des surfaces, des outils et des matériaux
Les murs de la maison sont préparés à l'avance pour les travaux:
- Les murs sont nettoyés de la saleté, les drains et les corniches sont enlevés. Les façades en bois sont traitées avec des antiseptiques contre les moisissures.
- Les nids-de-poule et les irrégularités dans les murs sont nivelés et mis à la terre.
- Pour chaque type de fixation de façade, certains matériaux, fixations et outils sont préparés.
- Si une isolation murale, une étanchéité est fournie, des matériaux isolants sont en outre préparés.
Tournage pour montage sur panneau


Pour l'installation du bardage, une caisse en bois ou en métal est installée. Le métal est préférable - il est plus solide et plus durable. Le lattage est installé à l'aide de supports, de profilés, nivelés avec un niveau. L'isolation est posée. Avec des murs plats, l'installation de certains panneaux (sans isolation) peut être effectuée immédiatement.
Façade ventilée
La fixation des panneaux de façade doit suivre le principe d'une façade ventilée. Pour cela, un cadre constitué de poutres en bois ou d'un profilé métallique est monté directement sur le mur de la maison. Les professionnels recommandent d'utiliser la deuxième option. Le métal est plus résistant aux environnements agressifs et est capable de supporter de lourdes charges.


L'arbre, à son tour, doit être traité avec des agents protecteurs pour prolonger sa vie. Lors de l'installation, vous devez absolument vous assurer que les sections inférieures ne touchent pas le sol, sinon elles absorberont l'humidité du sol et deviendront rapidement inutilisables.
Le lattage est créé à partir de guides verticaux et horizontaux. Les pièces verticales sont installées en premier. 10-15 cm s'éloignent des coins du mur et les premiers éléments sont fixés. Chaque détail suivant est placé tous les 40 à 50 cm, tout dépend de la largeur de l'isolant et de la taille des panneaux qui seront installés. Ensuite, ils traitent des guides horizontaux.
Il est impératif de contrôler la régularité de l'attachement des profils. Pour ce faire, utilisez un niveau de bâtiment et un fil à plomb. Lorsque toutes les pièces sont solidement fixées, vous pouvez commencer à poser le matériau isolant.
Si le propriétaire a peur d'installer lui-même les panneaux de façade, il est préférable de faire appel aux services d'une équipe de professionnels. Ils savent comment faire les choses correctement et dans les plus brefs délais.
À quoi servent les panneaux?
Tout d'abord, les panneaux ont été inventés non seulement pour décorer la façade d'un bâtiment, mais également pour masquer une isolation supplémentaire. Leur principal avantage est que dans l'espace entre le panneau et le mur, où se trouvent des friches à ossature, vous pouvez en outre mettre une couche d'isolation.


Tarte aux panneaux d'isolation et de façade
Contrairement aux pierres et briques décoratives, cette méthode d'amélioration de la façade isole en outre et vous permet de garder la chaleur à l'intérieur du bâtiment. De plus, comme déjà mentionné, les panneaux sont très faciles à installer de vos propres mains, sans l'utilisation d'équipements, de matériaux et de personnes tiers.
Panneaux décoratifs en clinker
Comparé à d'autres types de panneaux de façade, ce matériau est apparu relativement récemment. Avec son aide, vous pouvez augmenter considérablement les caractéristiques d'isolation thermique de la maison et donner à la façade un aspect esthétique et élégant. Les panneaux sont constitués d'une isolation et d'une couche décorative externe avec imitation de différents matériaux, maçonnerie, etc.
Un avantage important du matériau est la vitesse de travail élevée, l'absence de nécessité de créer un cadre. Il se monte directement sur le mur et l'alignement se fait avec différentes épaisseurs de colle. Bien sûr, le cadre peut être créé, cela n'est nécessaire que s'il est nécessaire d'installer une isolation thermique supplémentaire - tout dépend de la tâche à accomplir.


Un tel revêtement ne nécessite pas de soins particuliers, de plus, il ne craint pas les influences extérieures. La maintenabilité accrue des plaques plaide également en faveur de ce matériau. Contrairement aux modèles en plastique, vous n'avez pas à démonter toute la façade ici. Il vous suffit de retirer l'élément endommagé et de le remplacer par un neuf. Cela vous fera économiser beaucoup d'argent et de temps, ce qui est très important à notre époque.
Parmi les inconvénients, seul le coût important des panneaux de clinker peut être noté. D'autre part, vous n'avez pas besoin de dépenser de l'argent pour l'isolation, qui est également coûteuse. Ainsi, ce matériau peut être considéré comme l'un des meilleurs pour isoler et décorer les façades des bâtiments résidentiels et autres. Les fabricants proposent différentes options de conception, de sorte que vous pouvez facilement choisir un modèle à votre goût et une solution qui convient à l'architecture environnante.
Quant au processus d'installation, il est similaire au travail avec des carreaux conventionnels. À l'aide d'une truelle crantée, une solution adhésive est appliquée, après quoi le produit est appliqué sur le mur et pressé. Certains fabricants d'adhésifs recommandent de déchirer le panneau après quelques minutes, puis de le remettre en place. Cela vous permet d'augmenter le degré d'adhérence de la surface de travail de la planche à la base. Dans tous les cas, n'oubliez pas de lire les recommandations du fabricant de l'adhésif sélectionné et des panneaux de façade eux-mêmes - c'est important.
Il est également important de définir la première rangée horizontalement - ce n'est plus nécessaire, vous n'avez besoin que d'un niveau vertical perpendiculaire au mur. Si vous n'êtes pas sûr de la résistance de l'adhésif de construction, vous pouvez également utiliser des vis pour panneaux. Ils sont utilisés comme attaches supplémentaires, la base est toujours de la colle. Au stade final, les joints sont remplis de composés spéciaux.
Il existe une exigence importante pour le processus d'installation des panneaux thermiques à clinker: l'installation doit être effectuée pendant la saison chaude. Cela est dû aux propriétés chimiques des adhésifs. Le fait est qu'avant solidification, ils sont sensibles aux basses températures et leurs propriétés diminuent, mais après avoir gagné en force, ni la chaleur ni le gel ne sont terribles. Le fabricant indique des informations sur les températures limites sur l'emballage - faites attention à cela.








