La nécessité d'une circulation d'air dans une chaufferie à gaz
Même avec une faible présence de monoxyde de carbone, le bien-être des habitants de la maison se détériore. Maux de tête, douleurs dans les yeux, léthargie - c'est le moins qui accompagne une personne intoxiquée au gaz.
Ses fuites les plus dangereuses, car elles provoquent souvent une explosion ou un incendie. De plus, une hotte mal calculée affecte directement les performances de la chaudière.
Cela est dû au fait que de l'oxygène frais est nécessaire pour la combustion normale du carburant. Et si cela ne suffit pas en raison d'une mauvaise ventilation, le gaz brûle pire et, en conséquence, la chaudière dégage moins de chaleur.
ATTENTION! Une mauvaise hotte d'extraction avec une chaudière au sol sert de source de gaz et de combustion à l'intérieur du tuyau d'échappement, ce qui réduit son passage, le tirage se détériore et la pièce devient enfumée.

Hotte pour chaudière à gaz dans une maison privée
Une hotte d'extraction pour une chaudière à gaz dans une maison privée remplit deux fonctions principales:
- Il est nécessaire au fonctionnement efficace de l'équipement;
- Le processus de combustion qui s'y déroule est impossible sans un apport régulier d'oxygène.
Deuxièmement, la ventilation assure la sécurité des personnes vivant dans la maison. La circulation des courants d'air empêche l'accumulation d'humidité, ce qui, à son tour, empêche l'apparition de moisissures et de champignons dangereux pour la santé. En cas de situations imprévues, la ventilation protège contre l'intoxication au monoxyde de carbone, les incendies et les explosions. Dans cet article, nous examinerons en quoi consiste un système d'échappement pour équipement à gaz et comment l'installer vous-même dans votre maison.


Hotte pour chaudière à gaz dans une maison privée
Exigences relatives à la pièce où se trouve la chaudière à gaz
Des chaudières à faible puissance (jusqu'à 30 kW) peuvent être placées dans la cuisine si elles répondent à un certain nombre d'exigences:
- le coin cuisine est d'au moins 15 m2;
- le plafond est situé à une hauteur de 2,2 m et plus;
- vitrage suffisant (surface totale de la fenêtre) - au moins 3 cm2 par m3 de cuisine;
- les fenêtres sont équipées d'impostes et d'évents;
- il y a une distance de 10 cm entre l'appareil à gaz et le mur;
- les murs sont finis avec un matériau résistant au feu;
- la circulation de l'air est assurée par des fentes, par exemple, au bas de la porte.
Pour que des appareils puissants (à partir de 30 kW) puissent fonctionner longtemps et être en même temps sûrs, les experts recommandent fortement d'équiper une pièce séparée - une chaufferie. Bien sûr, toutes les pièces de la maison ne conviennent pas à de telles fins. Son volume doit être d'au moins 13,5 m3 pour les appareils d'une capacité de 30 à 60 kW et d'au moins 15 m3 pour 60 kW.
Comment choisir le matériau de la capuche?
À ces fins, la brique, l'acier galvanisé et inoxydable et la céramique peuvent être utilisés. Examinons chacun d'eux de plus près et explorons également les autres options offertes par le marché et l'ingénierie.
Hotte de maçonnerie
Bien que la brique soit utilisée par les constructeurs lors de l'organisation de la ventilation, ses propriétés ne permettent pas d'économiser sur d'autres matériaux. Premièrement, la maçonnerie est de courte durée. Les conditions les plus confortables pour elle sont les conditions de contact constant avec les gaz chauds. Sinon, de la condensation se forme, ce qui conduit à sa destruction rapide. Deuxièmement, une cheminée en brique est laborieuse à installer, a une structure complexe et un coût déraisonnablement élevé. Par conséquent, si vous êtes confronté à la tâche d'aménager une cheminée pour une chaudière à gaz, il est préférable de faire attention à d'autres options. Dans cette situation, une mine est faite de briques.La même option peut être choisie si, pour une raison quelconque, chauffer la maison au gaz est désormais impossible, mais qu'il est prévu de l'utiliser à l'avenir.
Si la maçonnerie est choisie comme matériau pour la mine, la cheminée elle-même est assemblée à partir de tuyaux galvanisés à circuit unique. L'épaisseur de leurs parois est choisie en tenant compte de la température des gaz de sortie.


Composants de cheminée à l'intérieur d'un puits de brique
Capot en acier
Dans cette situation, les tuyaux en acier sont très pratiques. Ils sont faciles à installer par rapport, par exemple, à la maçonnerie. L'épaisseur de la paroi est choisie en fonction du chauffage. Les chaudières à gaz produisent un gaz d'échappement assez chaud, de l'ordre de 400 à 450 ° C, les parois doivent donc avoir une épaisseur de 0,5 à 0,6 mm. Cependant, il y a aussi des pièges ici. Bien entendu, l'acier résiste aux effets négatifs de la condensation. Mais en moyenne, sa résistance à l'usure est bien inférieure à, par exemple, la résistance à l'usure des produits céramiques. De plus, les tuyaux à paroi mince brûlent rapidement s'ils sont utilisés avec des dispositifs à combustible solide, de sorte que cette option n'est pas optimale dans le cas de l'utilisation de différents types d'éléments chauffants à des moments différents. L'acier est choisi par:
- pendant la reconstruction;
- s'il n'y a pas de place pour une hotte en céramique.
Étant donné que les conduits de ventilation en acier gâchent souvent l'extérieur d'une maison privée, ils sont recouverts de briques ou d'autres matériaux de finition.
Les tubes en acier sont commercialisés en deux variantes: simple circuit et double circuit. La deuxième option est appelée «sandwich» dans le jargon. Il se compose de deux tuyaux emboîtés l'un dans l'autre, dont l'écart est rempli de laine de basalte réfractaire. L'épaisseur du tuyau intérieur est déterminée par la température des gaz de sortie (rappelons que cette valeur est de 0,5-0,6 mm pour les dispositifs considérés dans l'article).


Appareil de cheminée à double circuit en acier
Les sandwiches sont considérés comme la plus économique de toutes les options de hotte en acier. Cette conclusion se suggère, si l'on prend en compte une bonne isolation thermique, ce qui augmente l'efficacité de l'appareil de chauffage.
Les cheminées en acier à double circuit sont en acier inoxydable et galvanisé. Les deux métaux sont combinés en "sandwiches", car il est économiquement peu pratique d'utiliser uniquement de l'acier inoxydable. La différence entre l'acier galvanisé et l'acier inoxydable est la plus grande résistance de ce dernier à la condensation, ce qui affecte négativement son prix. Sinon, les propriétés de ces deux matériaux ne sont pas inférieures l'une à l'autre.
Il est extrêmement important que la partie intérieure de la structure à double circuit soit en acier inoxydable, le matériau de la partie extérieure ne jouant pas un rôle particulier. Cela est dû aux propriétés du zinc. Son échauffement est supérieur à 419,5 ° С, c'est dangereux. Dans cette situation, le métal est oxydé, une réaction chimique supplémentaire conduit à la libération de fumées toxiques. Les choses empirent encore avec une humidité élevée, ce qui ne peut être évité lors de la mise en service d'une chaudière à gaz. Par conséquent, lors de l'achat d'une construction sandwich, faites attention à cela.
En principe, une cheminée à double circuit peut être fabriquée indépendamment sans compétences particulières. Pour ce faire, enveloppez un tuyau en acier inoxydable dans un matériau isolant thermique réfractaire. Lors du choix de ce dernier, vous pouvez faire attention à la fibre de basalte, à l'argile expansée ou au polyuréthane. Ensuite, placez tout ensemble dans un tuyau galvanisé de plus grand diamètre.


Schéma d'installation de la hotte en acier
Caractéristiques de l'installation d'une colonne de ventilation en acier:
- Les segments sont assemblés en utilisant la méthode tuyau à tuyau dans l'ordre, en commençant par le bas;
- Pour faciliter le nettoyage ultérieur du poste, prévoir un nombre suffisant de puits de révision;
- Pour plus de stabilité, les supports muraux sont fixés par incréments d'environ 150 cm;
- Lors de la conception, faites attention aux segments horizontaux - ils ne peuvent pas dépasser 1 mètre de long s'il n'y a pas de tirage forcé.


Conduit de ventilation en acier inoxydable
Hotte en céramique
Ce type de hotte est le plus polyvalent, c'est donc une option idéale si vous prévoyez de passer du gaz ou du gaz. Ils sont faciles à nettoyer, résistants à la saleté, en raison de leur haute densité de gaz et des composés chimiques agressifs, vous n'avez donc pas à vous soucier de la pénétration de substances toxiques dans les pièces à vivre. Et, bien sûr, la céramique est durable.
Mais il y a aussi des inconvénients. Les tuyaux en céramique sont très absorbants. Si vous les avez optés, vous devrez prévoir une bonne ventilation extérieure et équiper la structure de drains de condensats, sinon les efforts et l'argent investis ne seront pas rentables.
Dans les cheminées, la céramique n'est pas utilisée seule. Pour tirer le meilleur parti de ses propriétés positives, il est combiné avec de la laine minérale et de la pierre. En termes simples, un tuyau en céramique est enveloppé dans un matériau isolant puis placé dans une coque en béton d'argile expansée.


Structure de cheminée en céramique


Conception de la hotte en céramique
Structure de ventilation coaxiale
Lors de la conception de la ventilation des chaudières à gaz, faites attention à la conception compacte tuyau dans le tuyau ou, en d'autres termes, à la cheminée coaxiale.


Comment fonctionne le système de ventilation coaxiale


Composants d'une cheminée coaxiale
Les systèmes coaxiaux, en raison de leurs caractéristiques, conviennent aux générateurs de chaleur avec une chambre de combustion fermée (qui est une chaudière à gaz). L'oxygène nécessaire à la combustion entre par le tuyau extérieur et les gaz d'échappement sont évacués par le tuyau intérieur. Cette conception a ses avantages:
- sécurité (les gaz d'échappement sont refroidis par l'air froid circulant dans le tuyau extérieur);
- l'air entrant se réchauffe et augmente l'efficacité de la chaudière;
- un rendement élevé signifie que la conception coaxiale est plus respectueuse de l'environnement que d'autres;
- peut être utilisé avec l'appareil dans la cuisine (il est situé à l'extérieur de la pièce et n'affecte pas le confort).
Caractéristiques de l'installation d'une cheminée coaxiale
- une cheminée coaxiale horizontale ne peut pas être utilisée si un tirage forcé n'est pas prévu;
- essayez de vous débrouiller avec pas plus de deux genoux;
- s'il y a plusieurs chaudières, formez une cheminée séparée pour chacune, la combinaison n'est pas souhaitable.
Vidéo - dispositif et installation d'une cheminée et d'une hotte pour une chaudière à gaz
Ventilation naturelle et forcée de la chaufferie
Selon la méthode de renouvellement de l'espace aérien, on distingue la ventilation naturelle et artificielle (ou forcée).
La ventilation naturelle fonctionne sans l'utilisation de ventilateurs, son efficacité est due uniquement au tirage naturel, et donc aux conditions météorologiques. La traction est influencée par deux aspects: la hauteur de la colonne d'échappement et la différence de température entre la pièce et la rue. Dans ce cas, la température de l'air extérieur doit être inférieure à celle de la pièce. Si cette condition n'est pas remplie, un contre-courant se produit et la ventilation de la chaufferie n'est pas assurée.
La ventilation forcée permet l'installation de ventilateurs d'extraction supplémentaires.
Habituellement, ces types sont combinés dans un système d'échappement de chaufferie. Lors du calcul, il est important de prendre en compte que le volume d'air aspiré dans la rue doit être égal en volume à l'air injecté dans la pièce. Pour garantir que cette condition est remplie, des clapets anti-retour sont installés.
Calcul du système de ventilation
Selon les normes de construction, tout l'espace aérien de la chaufferie doit être remplacé par un nouveau toutes les 20 minutes. Pour assurer la bonne circulation de l'air, vous devrez vous armer d'une calculatrice et de formules.
Si les plafonds sont situés à une hauteur de 6 mètres, alors sans dispositifs spéciaux, l'air de la pièce est renouvelé trois fois par heure.Les plafonds de six mètres sont un luxe pour une maison privée. La diminution des plafonds est compensée lors du calcul dans la proportion suivante - pour chaque mètre en dessous, l'échange d'air augmente de 25%.
Supposons qu'il y ait une chaufferie avec des dimensions: longueur - 3 m, largeur - 4 m, hauteur - 3,5 m. Pour résoudre ce problème, il est nécessaire d'effectuer un certain nombre d'actions.
Étape 1. Découvrez la quantité de volume d'espace aérien. Nous utilisons la formule v = b * l * h, où b est la largeur, l est la longueur, h est la hauteur du plafond. Dans notre exemple, le volume sera de 3 m * 4 m * 3,5 m = 42 m3.
Étape 2. Faisons une correction pour le plafond bas en utilisant la formule: k = (6 - h) * 0,25 + 3, où h est la hauteur de la pièce. Dans notre chaufferie, l'amendement s'est avéré: (6 m - 3,5 m) * 0,25 + 3 ≈ 3,6.
Étape 3. Calculons l'échange d'air assuré par la ventilation naturelle. Formule: V = k * v, où v est le volume d'air dans la pièce, k est la correction de la diminution de la hauteur du plafond. Nous avons obtenu un volume égal à 151,2 m3 (3,6 * 42 m3 = 151,2 m3).
Étape 4. Il reste à obtenir la valeur de la section transversale de la cheminée: S = V / (w * t), où V est l'échange d'air calculé ci-dessus, w est la vitesse d'écoulement de l'air (dans ces calculs il est pris égal à 1 m / s) et t est le temps en secondes. On obtient: 151,2 m3 / (1 m / s * 3600 s) = 0,042 m2 = 4,2 cm2.
Les dimensions du canal dépendent également de la surface de la surface intérieure de la chaudière. Ce numéro est indiqué par le fabricant dans la documentation technique de l'appareil. Si ce nombre n'est pas indiqué, calculez-le vous-même en fonction du volume de l'appareil. Comparez ensuite la taille de la zone avec le rayon de la section en fonction de l'inégalité:
2πR * L> S, où
R est le rayon intérieur de la section de cheminée,
L est sa longueur,
S est la surface de la surface intérieure de la chaudière.
Si, pour une raison quelconque, un tel calcul est difficile, vous pouvez utiliser le tableau.
| Puissance de la chaudière, kW | Diamètre du tuyau de cheminée, mm |
| 24 | 120 |
| 30 | 130 |
| 40 | 170 |
| 60 | 190 |
| 80 | 220 |
La dernière étape du calcul est la hauteur de la girouette par rapport au faîte du toit. La nécessité de cela est due à la création d'une traction supplémentaire par le vent, ce qui augmente l'efficacité de toute la structure d'échappement. À ce stade, ils sont guidés par les principes suivants:
- la hauteur de la girouette au-dessus d'un toit plat, ou à une distance maximale de 1,5 mètre de son faîte, doit être d'au moins 0,5 mètre;
- à une distance de 1,5 à 3 mètres - pas en dessous du faîte du toit;
- à une distance de plus de 3 mètres - non inférieure à une ligne conventionnelle tracée à partir du faîte du toit à un angle de 10˚;
- la girouette doit être 0,5 mètre plus haut que le bâtiment, qui est attaché à la pièce chauffée;
- si le toit est fait de matériaux combustibles, la cheminée doit être surélevée de 1 à 1,5 mètre au-dessus du faîte du toit.


Calcul de la hauteur de la cheminée par rapport au toit
Installation de ventilation naturelle


Options de placement du système de ventilation


Conception de la cheminée en fonction de l'emplacement
La ventilation naturelle de la chaufferie est assurée par l'installation de conduits d'alimentation et d'évacuation.
Pour installer le canal d'alimentation dont vous avez besoin:
- Prenez un morceau de tuyau en plastique, une grille appropriée et un clapet anti-retour. Le diamètre du premier est choisi en tenant compte de la puissance de la chaudière. Si la puissance est inférieure à 30 kW, 15 cm suffisent, plus la puissance est élevée, plus le diamètre est grand.
- Pour que l'air passe directement dans la chambre de combustion, un trou traversant est percé dans la rue à côté de l'appareil de chauffage et non au-dessus de sa zone de travail. Ensuite, un tuyau de dérivation est placé dans le trou, les interstices à l'intérieur sont remplis de mortier ou de mousse de polyuréthane.
- À l'extérieur, l'ouverture est fermée par une fine maille pour la protéger de la saleté et des animaux. Un clapet anti-retour doit être installé de l'intérieur pour empêcher le refoulement vers la rue.
Le conduit d'évacuation est conduit à travers une ouverture au-dessus de la chaudière en haut de la pièce. Habituellement, il est également équipé d'un clapet anti-retour pour empêcher l'air de pénétrer dans la rue. La cheminée peut également être équipée d'une housse de pluie ou d'une girouette, de drains de condensats et de fenêtres d'inspection pour le nettoyage.


Schéma de conception du système de ventilation
Ventilation artificielle
Un tirage supplémentaire dans le système d'échappement est créé à l'aide de ventilateurs. Leur puissance et leur nombre dépendent de la charge d'air sur le conduit et du volume de la pièce.
- la puissance est tirée du calcul: charge maximale plus une marge de 25-30%:
max * 1,25, où max est la charge maximale;
- le nombre d'appareils est choisi proportionnellement au volume d'air requis pour le pompage (le volume de la pièce doit être multiplié par trois):
(h + b + l) * 3, où h est la hauteur du plafond, b est la largeur, l est la longueur;
- la longueur de la cheminée, sa géométrie et le nombre de coudes sont pris en compte.
Le ventilateur est protégé par un boîtier d'installation. Cette boîte est faite de matériaux incombustibles et inoxydables. Le cuivre ou les alliages d'aluminium sont généralement utilisés.
La conception de la ventilation artificielle est similaire à l'installation de la ventilation naturelle. Après avoir installé le tuyau d'alimentation, le ventilateur de conduit est installé. Ensuite, les constructeurs posent le câblage pour alimenter le moteur, installent des capteurs, un absorbeur de bruit et un filtre. De la même manière que lors de l'installation d'une ventilation naturelle, des grilles sont fixées aux deux extrémités du tuyau. L'appareil pour la cheminée est installé de la même manière, avec la seule considération que l'air est aspiré et non forcé.
La ventilation artificielle nécessite des coûts énergétiques constants. Parfois, ils économisent de l'argent pendant la construction en installant un ventilateur uniquement sur la hotte d'extraction ou uniquement sur l'alimentation en air. Cependant, une circulation plus efficace est obtenue en utilisant les deux.
Le système de ventilation automatique vous permet d'éteindre les ventilateurs avec l'arrêt de la chaudière et de les allumer avec le démarrage.
Exigences d'échappement
Dans les chaufferies à gaz, des exigences accrues sont imposées au système de ventilation.
De plus, ces locaux peuvent être équipés:
- En tant que bâtiment séparé.
- Attachez les maisons au bâtiment.
- Au sous-sol.
- Dans une salle dédiée dans un immeuble.
Si l'équipement est conçu pour le gaz liquéfié, les sous-sols et les greniers ne peuvent pas être utilisés à ces fins, car la densité du gaz est supérieure à celle de l'air.
En conséquence, il coule en cas de fuite et sera explosif. En plus de l'attribution de pièces séparées, des chaudières murales modernes peuvent être placées dans la cuisine.
Nous vous recommandons de vous familiariser avec: Caractéristiques de l'utilisation et de l'installation des conduits d'air flexibles


Malgré la cheminée coaxiale, les pièces qui leur sont destinées doivent répondre aux exigences suivantes:
- La superficie est d'environ 12 m2.
- Hauteur des plafonds supérieure à 220 cm.
- La taille de la fenêtre doit être d'au moins 0,05 m2 pour 1 m³ du volume de la pièce.
- La présence d'une fenêtre ou d'une fenêtre qui s'ouvre.
- La chaudière est accrochée à un mur en matériau incombustible, tandis que la distance de la cloison adjacente doit être d'au moins 20 cm.
- Ouvertures adéquates pour l'entrée d'air de la pièce adjacente.


Ventilation de la chaufferie dans la maison - toutes les exigences du système
A partir de cette trémie, le charbon est périodiquement versé dans la benne transporteuse 6, puis par le treuil 10 le long des supports de guidage 9 il est introduit dans le silo de la chaudière 5 de la chaufferie. Les qualités ordinaires de combustible arrivent dans les entrepôts, généralement de gros morceaux, et en hiver, il peut geler, par conséquent, pendant le fonctionnement des fours mécaniques et du combustible brûlant dans un état pulvérisé, le charbon fourni à la chaufferie ne devrait pas avoir plus de morceaux de 20 mm, pour lequel il est soumis à un écrasement.
L'installation de concassage est choisie en fonction du type de dispositif de combustion et des exigences pour le combustible brûlé: pour la combustion de couches de combustible - à dents de rouleau, pour la combustion de chambre - marteau.


Figure.
134. Schéma de préparation préliminaire du combustible:
1, 2, 8 et 14 - convoyeurs à bande, 3 - trémie de réception de combustible, 4 - wagon de chemin de fer, 5 - entrepôt de déchargement de combustible, 6 - séparateur électromagnétique, 7 - copeaux de bois, 9 et 15 - bacs à charbon et à combustible broyé, 10 - chargeur, 11 - tamis, 12 - manchon, 13 - broyeur à marteaux
En figue.
134 montre un diagramme schématique du prétraitement du carburant. Le carburant dans les wagons 4 va à l'entrepôt 5, où il est déchargé dans des soutes de réception en béton armé 3, et de ceux-ci va aux convoyeurs à bande 1 à 2 et est acheminé vers la salle de broyage du charbon.
Le carburant est généralement obstrué par des copeaux de bois et des corps étrangers (boulons, écrous, clous, ferraille) et contient également de la pyrite.
La présence de ces impuretés dans le carburant détruit les équipements de concassage et de broyage. Ainsi, le long du trajet d'alimentation, le carburant passe à travers des séparateurs électromagnétiques 6, des récupérateurs mécaniques de copeaux 7 et des récupérateurs de pyrite, puis entre dans le convoyeur 8, à l'aide duquel il est distribué sur les trémies de réception 9 de l'installation de concassage. Du bunker 9, le carburant est acheminé par le chargeur 10 vers le tamis 11, où les fractions fines (ne nécessitant pas de concassage) sont criblées, qui sont envoyées à travers le manchon de dérivation 12, en contournant les concasseurs à marteaux 13, vers le réservoir de carburant broyé 15. situé sous le concasseur.
Les plus gros morceaux de carburant restant sur le tamis sont acheminés vers le concasseur à marteaux 13, à partir duquel ils sont broyés dans le même bunker 15, et à partir de celui-ci par le convoyeur 14, sur lequel des balances automatiques sont installées pour enregistrer la quantité de carburant entrant, sont alimenté dans les bunkers des chaudières. Le séparateur électromagnétique est réalisé sous la forme d'un tambour, à l'intérieur duquel un aimant est placé.
Les objets métalliques libérés du carburant sont attirés vers la surface du tambour puis nettoyés dans un bunker spécial.
Le récupérateur de copeaux 7, installé à l'endroit où le carburant sort du tambour du convoyeur 1, est un rotor en peigne à lames courbes montées de manière décalée.
Les lames peignent le flux de carburant, capturent les copeaux et les déposent sur un petit tamis pour en séparer mécaniquement le carburant accidentel. La pyrite de soufre est capturée dans des séparateurs d'air fonctionnant sur le principe de l'utilisation de la différence de densité du combustible et de la pyrite.
Normes de ventilation des chaufferies à gaz selon SNiP
Lors de l'exécution du système d'alimentation et d'échappement, vous devez strictement vous conformer à toutes les exigences des codes du bâtiment et des règlements de 2.04. 05-91.
Pour les chaudières fonctionnant au gaz, il est nécessaire de prendre en compte trois fois l'échange d'air en 1 heure, et si une telle ventilation ne se crée pas naturellement, alors il est nécessaire de prévoir une évacuation forcée.
Le schéma de circulation d'air doit être pris conformément à l'appendice. 11 SNiP:
- La chaufferie à gaz doit être équipée d'une ventilation, tandis que la sortie du conduit d'air doit être située au plafond.
- L'alimentation en air est assurée par le conduit de ventilation ou par les ouvertures dans la partie inférieure des portes.
- Le débit est calculé en fonction de la puissance de la chaudière: pour 1 kW de puissance, il doit y avoir au moins 0,08 m2 d'air.
- Venant d'une pièce adjacente: pour 1 kW de puissance - plus de 0,3 m2 de trous.
D'autres réglementations sur l'équipement du système de ventilation peuvent être trouvées dans les documents juridiques.


Variétés de systèmes de ventilation
La ventilation pour les pièces équipées de chauffage au gaz, ainsi que pour d'autres objets, est de deux types: naturelle et forcée. Le dispositif de ventilation naturelle et l'installation de ventilation forcée sont autorisés et réglementés par la réglementation en vigueur.
Ventilation naturelle des chaufferies
La ventilation naturelle permet de ventiler la pièce au moyen de tuyaux de différentes tailles et de trous pré-percés dans les murs, le plafond ou le sol. En fait, la ventilation naturelle fonctionne en raison des chutes de pression.
Il permet la construction de coudes verticaux et horizontaux. Conformément aux exigences des SNiP, le système peut avoir des sections horizontales jusqu'à 8 m de long, mais il est préférable de les faire ne pas dépasser 2 m de long.


La conception de grandes sections horizontales du système d'échappement n'est pas une violation flagrante, mais la vitesse de circulation de l'air à travers elles est assez faible, ce qui rend difficile la ventilation normale
Le plus souvent, les évents d'évacuation sont situés au-dessus de la chaudière. La ventilation naturelle ne prévoit pas l'utilisation d'équipements spéciaux d'alimentation et d'évacuation.
Le calcul de l'échange d'air pour la ventilation naturelle dans une chaufferie avec une chaudière à gaz est assez simple: il faut ajouter 5 degrés pour les températures de l'air extérieur et 18 degrés pour l'intérieur. Le contrôle de la ventilation est effectué sous réserve de la différence de température spécifiée.
Lors de l'acceptation d'un système d'échappement naturel, des calculs sont effectués pour déterminer s'il fonctionnera en été. Sinon, vous devrez concevoir une ventilation forcée, car selon les normes, la hotte doit fonctionner toute l'année.
Système de ventilation forcée
La ventilation forcée (artificielle) est un système automatisé complet avec un conduit d'évacuation et l'installation de ventilateurs et de climatiseurs.
La puissance de cette structure d'ingénierie peut être ajustée à l'aide de programmes ou de mécanismes (en fonction des caractéristiques de l'équipement). De plus, il est préférable de concevoir un système de contrôle automatique qui démarre lorsque la chaudière est allumée et s'éteint lorsque le carburant est complètement brûlé.
Cependant, il est totalement dépendant de l'approvisionnement en électricité. Lors de l'installation d'une hotte artificielle, il est recommandé d'installer un générateur supplémentaire. Si possible, il est préférable d'utiliser un système d'échappement combiné, dans lequel les dispositifs automatisés ne démarrent que lorsque la ventilation naturelle ne peut pas faire face à l'échange d'air.
Diamètre du trou d'écoulement dans les systèmes de ventilation
Selon les normes, la ventilation naturelle et artificielle diffère par le diamètre du conduit d'air (en d'autres termes, on l'appelle l'entrée) pour assurer une traction normale et une vitesse d'air standard dans les conduits de ventilation. Bien que le diamètre puisse également être calculé en fonction du volume de la pièce.


Lors du choix de tuyaux d'un certain diamètre pour les systèmes de ventilation, il est nécessaire de prendre en compte l'effet des réseaux et des informations sur la consommation de gaz, ce qui est indiqué dans le passeport des équipements à gaz
Pour une ventilation de type naturel, la valeur doit être la suivante: 30 cm2 de la section transversale de l'ouverture d'entrée pour 1 kW de puissance de la chaudière à gaz. Pour la ventilation forcée d'une chaufferie à gaz, selon les normes, la section transversale peut être inférieure à - 8 cm2.
Types de ventilation pour le fonctionnement des chaudières à gaz
Le système de ventilation est une liste d'éléments pour l'aspiration et l'évacuation de l'air, et il diffère des manières suivantes:
- Selon le principe de la formation d'échange d'air (tirage naturel et forcé).
- Sur rendez-vous. Échappement, soufflage et ventilation combinée.
- Par conception (canal et simple).
Examinons plus en détail les deux premiers types de ventilation.


Ventilation naturelle dans une chaufferie à gaz
S'il y a une chaudière dans la maison d'une capacité allant jusqu'à 30 kW, il suffit alors d'assurer l'alimentation en air en équipant une hotte aspirante au bas du mur ou de la porte. Un trou d'un diamètre de 10 à 15 cm peut servir de source.
Pour créer un conduit de ventilation pour le flux d'air, vous avez besoin de:
- Installez un tuyau coupé de n'importe quel matériau (plastique, amiante-ciment) dans le trou.
- Fixez une moustiquaire à l'extérieur de son extrémité.
- Il est conseillé d'installer l'entrée d'air à côté de la chambre de combustion dans le mur afin que l'air puisse être aspiré dans la chambre de combustion sans créer de poussière dans la pièce.
- Le conduit d'évacuation est monté à travers le toit. Il ressemble à un tuyau du même diamètre, et en même temps, il est équipé d'un filet de protection contre les insectes et d'un parapluie au sommet pour le protéger des précipitations.
IL EST IMPORTANT DE SAVOIR! Les diamètres des tuyaux d'évacuation et de ventilation d'alimentation doivent être de la même taille pour un échange d'air optimal.
La porte de la chaufferie, si elle est équipée d'une grille en partie basse, peut également servir d'élément d'échappement.
Nous vous recommandons de lire: Ventilation dans la salle de bain et les toilettes


Quelles sont les exigences d'une pièce pour une chaudière à gaz?
Les travaux d'installation d'équipements à gaz ne sont pas une période d'expérimentation. Vous devez agir uniquement en stricte conformité avec les règles et règlements établis dans la construction. Avant de commencer les travaux, vous devez vous familiariser avec plusieurs SNiP sur l'approvisionnement en gaz - ils sont disponibles gratuitement sur Internet, et il est impératif d'étudier les instructions jointes à la chaudière par le fabricant. Il est également important de choisir le bon endroit pour son installation.


Par exemple, une cuisinière à gaz et une chaudière au gaz naturel de faible puissance peuvent être placées dans une cuisine ou un couloir avec une hauteur sous plafond d'au moins 2,2 m, une superficie de 15 m², s'il y a une fenêtre avec un évent. Si, toutefois, une chaudière à gaz au sol doit être installée, dont la puissance dépasse 30 kW et que les produits de combustion sont évacués dans la cheminée, une pièce séparée (chaufferie) est nécessaire. Pour l'équipement d'une telle chaufferie, selon SP 62.13330.2011 (édition mise à jour du SNiP 42-01-2002), vous pouvez utiliser:
- bâtiment séparé,
- une extension du bâtiment principal,
- grenier,
- Rez-de-chaussée,
- salle du sous-sol.
De plus, il est permis d'utiliser le sous-sol et le sous-sol pour aménager une chaufferie à gaz uniquement s'il y a des ouvertures de fenêtres qui fournissent un éclairage naturel. Une chaufferie autonome doit avoir sa propre structure de support en dessous, qui n'est pas liée à la fondation du bâtiment principal.
Quel que soit l'emplacement de la chaufferie, celle-ci doit être équipée d'un système de ventilation efficace assurant trois fois le renouvellement de l'air en une heure.
De plus, cette salle doit répondre à un certain nombre d'exigences, à savoir:
- une superficie d'au moins 4 m² par appareil de chauffage,
- volume - pas moins de 13,5 m³,
- hauteur sous plafond - à partir de 2,2 m,
- entrée indépendante avec largeur d'ouverture à partir de 80 cm,
- une ouverture d'entrée d'air d'une section transversale d'au moins 25 cm² dans la partie inférieure du vantail ou du mur de la porte ou un petit espace entre l'extrémité de la porte et le revêtement de sol,
- fenêtres avec châssis ouvrants. La norme de la surface de vitrage de 1 m³ dans les zones explosives est d'au moins 0,05 m²,
- surface murale plâtrée. Non autorisé à décorer avec du papier peint, des panneaux inflammables,
- plancher plat en matériaux de construction incombustibles.
L'unité à gaz doit être accessible de tous les côtés. Les masses d'air oxygénées, nécessaires au processus de combustion du combustible, pénètrent dans la fournaise par le conduit de ventilation. Il est disposé en haut des murs ou dans le plafond. Et pour faciliter le nettoyage de ce conduit, une trappe spéciale est équipée à 300 mm en dessous, qui est un petit trou fermé par un bouchon ou un volet.
Ventilation forcée
Une hotte artificielle peut non seulement être fournie, mais également combinée, c'est-à-dire alimentation et évacuation.
Ce processus se produit lorsque l'air est forcé à travers les tuyaux d'alimentation et d'échappement par les ventilateurs - de force. Pendant une heure, un tel appareil pompe plus d'une dizaine de mètres cubes d'air frais.
Dans les unités de ventilation modernes, il existe des équipements de contrôle et de régulation qui vous permettent de maintenir non seulement le microclimat de la chaufferie au niveau approprié, mais également d'assurer le bon fonctionnement de la chaudière.
Ces systèmes de ventilation sont subdivisés:
Installations monobloc. Les appareils de ce type peuvent être installés dans n'importe quelle pièce.
Systèmes d'alimentation et d'échappement.L'entrée et l'évacuation de l'air ici se fait par une méthode forcée. Ces équipements sont généralement installés dans les sous-sols, principalement là où des chaudières à gaz à haute performance sont utilisées.
Le type de ventilation forcée le meilleur et le plus sûr est une chaudière à cheminée coaxiale. Dans ce tuyau combiné, l'air frais de la rue est aspiré le long de l'espace extérieur et les gaz d'échappement de monoxyde de carbone s'échappent par le trou intérieur.
De plus, une telle ventilation augmente l'efficacité de la chaudière, car de l'air déjà chauffé est fourni dans la pièce, en raison de la contre-émission de gaz d'échappement à travers le tuyau intérieur.


Comment choisir le matériau de la hotte
Pour résoudre ces problèmes, on utilise de la brique, de l'acier inoxydable, de l'acier galvanisé ou de la céramique. Analysons chacun d'eux plus en détail.
Ventilation coaxiale
Cette hotte de chaudière à gaz dans une maison privée se compose d'un court tuyau extérieur et d'un long tuyau intérieur. De plus, il comprend toutes sortes d'accessoires: pinces, coudes, joints, ainsi qu'un réservoir de condensat. Cette conception est également appelée «tuyau dans tuyau» et est utilisée dans les appareils de chauffage au gaz avec une chambre de combustion fermée.


L'appareil et le principe de fonctionnement sont les mêmes pour toutes les chaudières de ce type:
- Le tuyau situé à l'intérieur est connecté d'un côté à la buse de la chaudière, et son autre côté est conduit dans la rue et des produits de combustion en sortent. Il est en acier inoxydable et peut résister à des températures extrêmes.
- Un tuyau situé à l'extérieur est connecté avec une extrémité à l'entrée et l'autre extrémité est dirigée hors de la pièce. De l'air frais est fourni dans ce canal.
- Pendant le fonctionnement de l'unité, les produits d'échappement de la combustion sont évacués à l'extérieur en raison de la poussée à travers le canal interne, et en même temps de l'air frais pénètre dans la chambre de combustion par le canal externe.
Cet appareil coaxial présente les avantages suivants:
- La cheminée est sûre. Ceci est possible car les produits de combustion chauds sortants sont immédiatement refroidis par de l'air froid provenant de l'extérieur.
- Augmentation de la productivité. L'air frais se réchauffe lorsqu'il est fourni et augmente l'efficacité de l'unité.
- Respect de l'environnement du système.
- Installation dans la cuisine. Un tel appareil de chauffage mural ne gâche pas l'intérieur général de la pièce.
Une autre caractéristique de l'installation de telles chaudières à circulation d'air coaxiale est qu'une cheminée peut être montée à la fois verticalement et horizontalement dans une maison privée.
Maçonnerie
Maintenant, la brique est de moins en moins utilisée pour les puits de ventilation.
Cela est dû à deux raisons principales:
d'abord, sa fragilité, après 7 à 10 ans, la brique commence à s'effriter et la maçonnerie perd son étanchéité, ce qui signifie qu'elle perd sa fonction. Il s'effondre en raison du fait que la température dans le canal change et, par conséquent, se forme un condensat qui gèle en hiver. Il est plus acceptable de faire des cheminées à partir de ce matériau lorsque les murs sont constamment en contact avec des déchets chauds.
en deuxième, la maçonnerie est un processus laborieux, un tel conduit de ventilation a un dispositif complexe et des coûts injustifiés.
À cet égard, une meilleure option serait une mine de briques avec un tuyau galvanisé pour la ventilation à l'intérieur. Il est assemblé en pièces à partir de circuits de 2 mètres, et l'épaisseur de paroi est choisie en tenant compte de la température des gaz d'échappement.


Capot en acier
Les gaz d'échappement pendant le fonctionnement d'une chaudière à gaz ont une température d'environ 430 degrés, et même plus pendant le fonctionnement des chaudières à combustible solide. Par conséquent, les tuyaux pour la chaudière à gaz d'échappement dans une maison privée sont en acier inoxydable avec une épaisseur de paroi de 0,7 à 1 mm. Ces produits sont assez stables à l'action de la condensation à la surface des murs.
Il est à noter que la durée de fonctionnement de ces tuyaux de ventilation est sensiblement plus courte que celle de la brique et de la céramique.Dans le même temps, les hottes en acier standard sont plus faciles à remplacer car elles sont plus légères et n'ont pas besoin de bases spécialisées pour fournir de la résistance.
Ces canaux sont fabriqués en différentes versions :
- Hébergement dans un puits en brique spécialement revêtu;
- Des circuits d'usine. De plus, chaque circuit est un tuyau sandwich à deux parois. Ici, un tuyau est situé dans un autre et l'espace est rempli de matériau isolant thermique.
L'utilisation de telles hottes simplifie l'installation, alors qu'elles sont montées à la fois à l'intérieur et à l'extérieur.
Hotte en céramique
Il convient de noter que le canal en céramique est une solution idéale pour tous les types de chaudières dans une maison privée. Ce matériau résiste aux températures élevées. Il a également une attitude neutre vis-à-vis des composés chimiques toxiques qui peuvent se former lors de la combustion de divers carburants. Les canaux de la hotte en céramique sont principalement disposés verticalement à partir de modules à un ou deux évidements.
Dans cette dernière version, le deuxième canal est utilisé pour ventiler la chaufferie ou pour fournir de l'air au brûleur de la chaudière. En règle générale, ces sandwichs sont isolés avec de la laine minérale pour les protéger du refroidissement et de la condensation. De plus, le tirage naturel augmente dans le tuyau isolé. Lors de l'installation d'une telle hotte en céramique, il devrait y avoir un espace pour le passage de l'air libre entre l'isolant et la surface du puits.
Sur le marché des matériaux de construction, vous pouvez trouver des ensembles de hottes en céramique dans un boîtier métallique. Un tel modèle n'a pas besoin de trous de ventilation et est monté sur un appareil de chauffage à la fois à l'intérieur et à l'extérieur de la maison. Ils peuvent être utilisés avec des températures de gaz d'échappement allant jusqu'à 450 degrés.
Dans le même temps, les céramiques absorbent bien l'humidité, de sorte qu'elles ont généralement un plateau pour recueillir l'humidité condensée. Et le canal lui-même est fourni avec un accès gratuit pour souffler de l'air. Grâce à la surface lisse du tuyau, il résiste à la saleté et est facile à nettoyer lors de l'entretien.
Pour le fonctionnement des chaudières à combustible solide dans une maison privée, des tuyaux pouvant résister à une température de 650 degrés sont utilisés. De plus, ils doivent être neutres à la combustion des suies et fonctionner à sec.
Avantages et inconvénients des deux systèmes
Ventilation naturelle
Vous n'avez besoin d'aucune compétence particulière pour équiper vous-même une telle hotte, bien qu'elle présente de nombreux avantages:
- L'absence de mécanismes rend cet échange d'air fiable et durable.
- Il n'est pas nécessaire de dépenser de l'argent pour acheter des appareils.
- Facilité d'utilisation.
- Silence pendant le fonctionnement.
À un moment donné, une telle hotte répondait pleinement à ses exigences, mais avec l'avènement de nouveaux équipements à gaz, la vision à ce sujet a changé.
Dans le même temps, les inconvénients importants suivants ont été découverts:
- Dépendance de la circulation optimale de l'air en fonction de la saison et des conditions climatiques.
- Incapacité de réguler le débit d'air.
- Pénétration de particules étrangères à travers le système.
Nous vous recommandons de vous familiariser avec : Comment bien organiser la ventilation dans la cuisine à l'aide d'une hotte
Et aussi avec une diminution de l'entrée d'air, il y a une possibilité d'augmentation de l'humidité dans la pièce.


Ventilation artificielle
La hotte artificielle est la meilleure option lors de l'installation de chaufferies à gaz, car:
- Il existe une possibilité d'autorégulation de l'alimentation en air.
- L'importance de cette ventilation dans les espaces confinés.
- Beau microclimat dans la chambre.
- La possibilité de réguler l'échange d'air à l'aide de la télécommande.
- Indépendance vis-à-vis des conditions météorologiques.
S'il y a une chaudière avec une sortie coaxiale dans la maison, le ventilateur intégré crée automatiquement une atmosphère favorable à la vie humaine.
Le seul inconvénient d'un tel système est le coût assez élevé de cette installation.


Ventilation de la chaudière: ses paramètres et son schéma
Une chaudière à gaz avec une chambre de combustion isolée est équipée d'un conduit coaxial.Cette cheminée permet d'évacuer la fumée et de délivrer de l'oxygène frais en même temps.
La structure se compose de deux tuyaux de diamètres différents, dont le plus petit est situé à l'intérieur du plus grand. La fumée est évacuée par un tuyau intérieur de plus petit diamètre et de l'oxygène frais pénètre par l'espace entre les tuyaux.
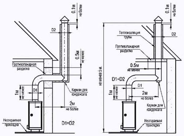
Normes d'installation d'une chaudière à gaz et d'organisation de la ventilation:
- Un ou deux appareils à gaz peuvent être raccordés à la cheminée, pas plus. Cette règle s'applique indépendamment de la distance et de l'emplacement.
- Le conduit de ventilation doit être étanche.
- Les coutures sont traitées avec des mastics dont les propriétés permettent de fournir une isolation sous l'influence des températures élevées.
- Le système doit être constitué de matériaux non combustibles.
- Les sections horizontales de la hotte doivent être constituées de deux canaux: l'un pour l'extraction de la fumée, l'autre pour le nettoyage.
- Le canal destiné au nettoyage est situé à 25-35 cm sous le canal principal.
Il existe des exigences strictes en matière de ventilation en termes de paramètres dimensionnels et de distances:
- L'espace entre le tuyau horizontal et le plafond est d'au moins 20 cm.
- Les murs, le sol et le plafond de la pièce doivent être faits de matériaux incombustibles.
- À la sortie du tuyau, tous les matériaux combustibles doivent être gainés d'une couche d'isolant non combustible.
- La distance entre le mur extérieur d'où sort le tuyau et l'extrémité de la cheminée ne doit pas être inférieure à 30 cm.
- S'il y a un autre mur opposé au tuyau horizontal, la distance à celui-ci ne doit pas être inférieure à 60 cm.
- La distance entre la surface de la terre et le tuyau est d'au moins 20 cm.
Exigences de ventilation pour la chaudière à combustion ouverte:
- Un conduit d'évacuation des fumées est équipé.
- Le système général est équipé d'une alimentation efficace des volumes d'oxygène requis.
La ventilation d'extraction et d'alimentation pour une chaudière à gaz est située dans les coins opposés, équipée d'un clapet anti-retour. Il assurera une protection en cas de violation du sens de circulation des flux, lorsque les produits de combustion sont aspirés dans le bâtiment et que l'air frais sortira.
Les paramètres dimensionnels de la ventilation sont calculés en fonction des volumes requis d'élimination de gaz et d'alimentation en oxygène. Les volumes d'excrétion sont égaux à trois unités du taux d'échange d'air dans la pièce. Le taux de renouvellement d'air est la quantité d'air traversant la pièce par unité de temps (une heure). L'apport d'oxygène est égal à trois unités de multiplicité plus le volume absorbé par la combustion.
Le diamètre du conduit d'air requis est calculé en fonction de la puissance de la chaudière.


Le diamètre du conduit est calculé en fonction de la puissance de la chaudière
Un exemple de calcul des paramètres d'échange d'air:
- Dimensions de la pièce: longueur (i) 3 mètres, largeur (b) 4 mètres, hauteur (h) 3 mètres. Le volume (v) de la pièce est de 36 mètres cubes et est calculé par la formule (v = I * b * h).
- Le taux de renouvellement de l'air (k) est calculé par la formule k = (6-h) * 0,25 + 3. Nous considérons - k = (6-3) * 0,25 + 3 = 3,75.
- Le volume qui passe dans une heure (V). V = v * k = 36 * 3,75 = 135 mètres cubes.
- Section transversale de la hotte (S). S = V / (v x t), où t (temps) = 1 heure. S = 135 / (3600 x 1) = 0,037 mètre carré m. L'entrée doit être de la même taille.
La cheminée peut être équipée de différentes manières:
- Sortez horizontalement dans le mur.
- Sortez dans le mur avec un virage et montez.
- Sortie verticale vers le plafond avec un coude.
- Sortie verticale directe par le toit.
Le schéma de ventilation dans une maison privée avec une cheminée coaxiale est le suivant:
- une chaudière à gaz;
- courbure coaxiale coudée;
- tuyau coaxial;
- évacuation des condensats;
- filtre;
- grille de protection;
- pointes horizontales et verticales;
- coussin de toit.
Calcul du système de ventilation
Les performances des équipements à gaz et la sécurité des personnes dépendent de l'installation correcte des dispositifs d'extraction dans la chaufferie, à cet égard, vous n'avez pas besoin de tout faire vous-même dans un souci d'économie.
SUR UNE NOTE! Lors de l'élaboration d'un projet, il est nécessaire de rapprocher au maximum la sortie du tuyau d'alimentation de la chambre à combustible pour une meilleure circulation de l'air et, par conséquent, pour une combustion optimale du combustible.
Lors du calcul du système de ventilation, il est important de connaître les paramètres suivants:
- Vitesse de l'air.
- Le volume de la pièce, en tenant compte de la hauteur sous plafond.
- Échange d'air dans la pièce par unité de temps.
Le volume de l'espace aérien est calculé selon la formule suivante V = L × S × H × n, où: V est le volume d'air à échanger pendant 1 heure; L est la longueur de la pièce; S - largeur; H - hauteur; n est le taux d'échange d'air.
Pour les chaudières à gaz au sol, le ventilateur est choisi avec une réserve de marche dépassant la charge habituelle de 25 à 35%.


Ventilation artificielle
Un tirage supplémentaire dans le système d'échappement est créé par les ventilateurs. Leur puissance et leur nombre dépendent de la charge d'air sur le conduit et du volume de la pièce.
- la puissance est tirée du calcul: charge maximale plus une marge de 25-30%:
max * 1,25, où max est la charge maximale;
- le nombre d'appareils est choisi proportionnellement au volume d'air requis pour le pompage (le volume de la pièce doit être multiplié par trois):
(h + b + l) * 3, où h est la hauteur du plafond, b est la largeur, l est la longueur;
- la longueur de la cheminée, sa géométrie et le nombre de coudes sont pris en compte.
Le ventilateur est protégé par un boîtier d'installation. Cette boîte est faite de matériaux incombustibles et inoxydables. Le cuivre ou les alliages d'aluminium sont généralement utilisés.
La conception de la ventilation artificielle est similaire à l'installation de la ventilation naturelle. Après avoir installé le tuyau d'alimentation, le ventilateur de conduit est installé. Ensuite, les constructeurs posent le câblage pour alimenter le moteur, installent des capteurs, un absorbeur de bruit et un filtre. De la même manière que lors de l'installation d'une ventilation naturelle, des grilles sont fixées aux deux extrémités du tuyau. Le dispositif pour la cheminée est installé de la même manière, avec la seule considération que l'air est aspiré et non forcé.
La ventilation artificielle nécessite des coûts énergétiques constants. Parfois, ils économisent de l'argent pendant la construction en installant le ventilateur uniquement sur la hotte d'extraction ou uniquement sur l'alimentation en air. Cependant, une circulation plus efficace est obtenue en utilisant les deux.
Le système de ventilation automatique vous permet d'éteindre les ventilateurs avec l'arrêt de la chaudière et de les allumer avec le démarrage.
Avez-vous aimé l'article? Économisez pour ne pas perdre!
Lors de l'utilisation d'une chaudière à gaz comme principale source de chauffage et de chauffage de l'eau dans une maison privée, il est impératif de respecter les conditions de fonctionnement de l'équipement. Une condition importante pendant le fonctionnement de l'unité est une hotte d'extraction pour la chaudière, qui est toujours nécessaire, quel que soit le type de chauffage.





