Comment fermer un balcon avec du polycarbonate de vos propres mains
Pour le moment, il est particulièrement apprécié avec divers travaux visant à améliorer l'apparence des locaux résidentiels. De plus, la plupart des propriétaires de maisons et d'appartements privés préfèrent effectuer tous les travaux d'installation de leurs propres mains, sans recourir à l'aide de spécialistes hautement qualifiés.
Cette approche permet d'économiser significativement le budget familial et de montrer aux autres ce dont vous êtes capable. Certains artisans de la maison apprennent ainsi quelque chose de nouveau et en même temps ennoblissent l'apparence de la maison.
Le revêtement de balcon en polycarbonate est actuellement considéré comme une nouveauté, car ces produits sont principalement utilisés pour construire des serres dans leur chalet d'été.
Avantages et inconvénients du polycarbonate pour un balcon
Aujourd'hui, le polycarbonate cellulaire pour la décoration est un type de matériau de construction innovant et populaire. Un balcon recouvert de polycarbonate présente un grand nombre d'avantages, parmi lesquels on peut noter les points suivants:
- En raison de son faible poids, le polycarbonate est considéré comme l'un des matériaux de construction les plus légers utilisés pour la décoration, y compris pour la décoration d'un balcon. Une particularité est le fait que, malgré son faible poids, le matériau de finition présente des indicateurs de résistance plutôt élevés. Un avantage supplémentaire qui ne peut être ignoré est que la charge sur le cadre installé sera minime.
- Faible conductivité thermique - cet indicateur du matériau en polycarbonate est bien inférieur à celui du verre. Comme le montre la pratique, la structure du matériau de finition est constituée d'un grand nombre de cellules poreuses, qui contiennent de l'air. En raison de la présence d'un tel entrefer, le produit a des propriétés d'isolation thermique.
- Haut niveau de résistance et de résistance aux dommages mécaniques.
- Sécurité totale pendant le fonctionnement - si un élément est sujet à la destruction, les arêtes vives n'apparaîtront pas, ce qui ne peut être dit à propos du verre.
- Haut niveau de résistance au feu.
- Il est assez facile à installer et à manipuler - aucun outil de construction spécial n'est nécessaire pour percer des feuilles de polycarbonate pour le revêtement, car le produit fini a un haut niveau de flexibilité.
Un inconvénient important de ce type de matériau de construction est sa capacité à se dilater lorsqu'il est chauffé par des rayons ultraviolets. Lors de travaux d'installation sur le revêtement du balcon, il est nécessaire de le faire en modifiant le fait que le matériau de finition se dilatera pendant le processus de chauffage et reviendra à son état antérieur après refroidissement.
À la suite d'une telle expansion, un espace de 2,5 mm par 1 mm peut être formé avec une augmentation du régime de température à +40 degrés. Comme le montre la pratique, le froid et la chaleur peuvent pénétrer dans les interstices qui apparaissent. Un autre inconvénient relevé par de nombreux consommateurs est qu'il est assez facile de rayer les feuilles de polycarbonate lors du fonctionnement du balcon.
Attention! Si nécessaire, vous pouvez monter le toit du balcon en polycarbonate monolithique.

Avantages matériels
Ce choix a été facilité par les avantages particuliers du matériau:
- Durabilité et fiabilité grâce auxquelles les feuilles de polycarbonate sont dites «anti-vandalisme».Par exemple, il est presque impossible de casser un panneau en polycarbonate de quatre millimètres avec un marteau, mais un verre de même épaisseur éclatera instantanément, après le premier coup.
- Taux de transparence élevé, qui est de près de 90% pour une vue monolithique et de 85% pour une vue cellulaire.
- Faible conductivité acoustique et thermique. La structure elle-même ne chauffe pas, mais elle retient parfaitement la chaleur. Par conséquent, si vous vernissez le balcon avec du polycarbonate monolithique, il sera toujours beaucoup plus silencieux et chaud, et donc plus confortable.
- Léger, ce qui est très important lors du vitrage du balcon dans les vieilles maisons, l'utilisation de polycarbonate ne rendra pas la structure plus lourde.
- Une grande variété de couleurs, il est donc toujours possible d'équiper le balcon non seulement au goût des membres de la famille, mais également en fonction de la palette de couleurs du bâtiment ou de la maison privée.
- Protection UV.
- Résistance aux changements climatiques et aux lectures de température du thermomètre.
- Facilité d'installation et de traitement : les panneaux en polycarbonate se prêtent bien au collage, à la découpe, au pliage, de sorte que presque tous ceux qui savent tenir une perceuse, un marteau et d'autres outils simples dans leurs mains peuvent fabriquer un vitrage de balcon.
Préparation pour revêtir le balcon avec du polycarbonate
Avant de vernir vous-même le balcon avec du polycarbonate, vous devrez effectuer des travaux préparatoires. Il est nécessaire d'installer d'abord un cadre sur le balcon, sur lequel les feuilles de polycarbonate seront fixées à l'avenir. C'est pourquoi des cadres en aluminium doivent être installés.


Dans le cas où il n'y a pas certaines compétences et compétences dans le domaine de la construction, il ne fonctionnera pas pour fermer le balcon avec du polycarbonate seul, à la suite de quoi vous devrez demander l'aide de spécialistes qualifiés. C'est la seule façon d'obtenir un balcon en polycarbonate de haute qualité. Il est important de comprendre que le résultat final, le niveau de résistance et la durée de vie opérationnelle de la structure érigée dépendent entièrement de la qualité des travaux d'installation effectués.
Si vous envisagez d'utiliser du polycarbonate cellulaire pour la finition du balcon, vous devrez d'abord couper le matériau de construction en fonction de la taille du balcon. Comme vous le savez, le matériau de construction en polymère a des dimensions standard, qui sont de 3050x2150 mm. Afin de couper les feuilles en morceaux de la taille souhaitée, vous pouvez utiliser une scie circulaire avec les plus petites dents.


Un petit espace de 4 mm doit être laissé entre la feuille de polycarbonate et le cadre en aluminium - cette taille est considérée comme optimale par de nombreux spécialistes de la construction.
Étant donné que dans la plupart des cas, les feuilles de matériau de finition peuvent empêcher la lumière directe du soleil de pénétrer dans la pièce, il est recommandé de privilégier les produits transparents, à savoir les produits monolithiques. Sans aucun doute, si vous utilisez des modèles de couleurs, l'apparence du balcon sera bien meilleure.


Conseils! Il n'est pas recommandé de couper les feuilles dos à dos. Il est important de prendre en compte le fait que la taille des produits peut varier en fonction des fluctuations de température. Si vous négligez ce moment, l'apparence d'origine peut être désespérément perdue.


Options de conception
Le choix des matériaux pour le vitrage de vos propres mains dépend de l'objectif auquel l'espace du balcon est destiné à l'avenir. S'il n'est utilisé que par temps chaud, vous pouvez acheter le matériau de la plus petite épaisseur. Mais maintenant, il devient à la fois à la mode et important d'équiper un jardin d'hiver, un bureau, une zone de loisirs sur le balcon, qui sera utilisé toute l'année.Vous pouvez transformer un balcon en une extension isolée d'un appartement en utilisant du polycarbonate cellulaire de 16 ou même 32 mm d'épaisseur. Il existe plusieurs types de ce matériau en vente, dont le choix détermine combien d'années l'extension ravira par son aspect et sa qualité:
- l'économie protégera ses propriétés pendant 8 à 9 ans, de sorte que le vitrage de balcon fabriqué soi-même durera environ dix ans;
- la vue optimale durera encore quelques années;
- élite garantit 12-13 ans de service impeccable;
- La prime est de 20 à 25 ans de haute qualité et d'une excellente apparence.
Vitrage à faire soi-même du balcon avec polycarbonate
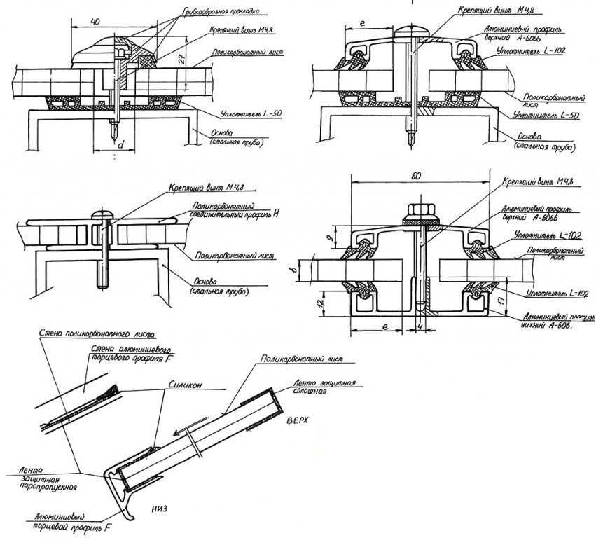
Avant de commencer à vitrer un balcon avec du polycarbonate, il convient de considérer le fait que les feuilles doivent être fixées à l'aide de vis ou de vis autotaraudeuses. Afin d'éviter l'apparition de microfissures, il est recommandé d'utiliser des pinces spéciales avec une tête de serrage épaissie pendant les travaux d'installation. De nombreux experts conseillent dans ce cas de choisir des vis autotaraudeuses avec rondelles thermiques.


La rondelle thermique utilisée doit avoir une patte dont l'épaisseur doit correspondre à l'épaisseur de la feuille de polycarbonate utilisée. Ainsi, l'indicateur peut varier de 1,5 mm à 2,5 mm. Grâce à l'utilisation de rondelles thermiques, il est possible de protéger le produit d'un éventuel processus de déformation et de réduire considérablement le niveau de perte de chaleur grâce aux vis autotaraudeuses, qui sont dans la plupart des cas des ponts froids.
Lors de l'aménagement d'un balcon à l'aide de produits polymères, il faut comprendre qu'une telle structure ne pourra pas supporter de lourdes charges à l'avenir, tant que le matériau reste flexible. C'est pourquoi il n'est pas recommandé de réaliser une structure d'un matériau polymère comme support. Une fois l'installation terminée, il vaut la peine d'examiner attentivement le balcon et de déterminer s'il y a des fuites.


Comme le montre la pratique, dans la plupart des cas, les coutures ne sont pas des zones étroites, qui devront être traitées avec du silicone à l'avenir. Grâce à la haute densité du silicone et à la résistance aux intempéries, il est possible d'obtenir un degré élevé d'isolation pour le balcon.


Important! Il est préférable d'utiliser un pistolet spécial pour appliquer le silicone.
Travail préparatoire
Nous préparons la salle pour l'installation de polycarbonate. Avant de commencer les travaux, nous calculons les charges admissibles sur la dalle, en tenant compte du fait que la structure métallique soudée au mur transférera une partie de la charge de la dalle au mur.
Nous préparons des approches pratiques sur le chantier.
Nous effectuons, si nécessaire, des révisions ou des réparations planifiées de la base du balcon. Toute la charge tombe sur la dalle, elle doit donc être en parfait état, nous nettoyons toutes les fissures existantes de la poussière, les humidifions et les remplissons de béton.
Nous renforçons ou remplaçons les garde-corps métalliques, traitons l'acier avec un composé anticorrosion. Si vous prévoyez d'utiliser le balcon tout au long de l'année comme espace de vie, nous changeons les garde-corps en un parapet en blocs de mousse.
Nous choisissons l'épaisseur du polycarbonate en fonction de la saisonnalité de l'utilisation des locaux et de la fonctionnalité prévue.
Les nuances de la finition du balcon avec du polycarbonate
Une fois le cadre en aluminium complètement prêt, vous devrez envelopper les panneaux utilisés de l'extérieur avec une pellicule de plastique. Ceci est nécessaire afin de protéger le produit contre les dommages et les rayures lors des travaux d'installation sur le revêtement du balcon.
Il vaut la peine de couper le matériau en tenant compte de la taille requise et du nombre de trous percés pour les fixations. Le diamètre des trous doit être d'environ 1,5 à 2 mm plus grand que le diamètre de l'élément de fixation utilisé pour l'installation.De nombreux experts recommandent d'installer un toit en polycarbonate sur un balcon.


Séquence d'installation


Pendant le processus d'installation de vos propres mains, alignez les plaques le long de la ligne du bord supérieur de la structure. Le profilé de base doit être solidement fixé à la structure avec des vis autotaraudeuses, qui doivent être situées sur la ligne médiane du profilé. Pour les boulons autotaraudeurs fixant la plaque en polycarbonate à la poutre inférieure de la structure du balcon, vous devez percer un trou dans la plaque d'un diamètre légèrement supérieur au diamètre des boulons eux-mêmes. Ceci est nécessaire pour compenser la dilatation thermique du panneau en polycarbonate (jeu). Après avoir installé la plaque de base du profilé, vous devez installer le couvercle du profilé de serrage. Lorsque vous travaillez avec un profilé en polycarbonate, assurez-vous que le couvercle du profilé de serrage est solidement connecté à la base du profilé sur toute sa longueur. Répétez toutes les étapes dans le même ordre avec la plaque suivante et les profils de raccordement jusqu'à la fin de l'installation. La dernière étape de l'installation est le retrait du film plastique protecteur de la surface extérieure du matériau.
Il convient de rappeler que la finition en polycarbonate a une capacité élevée de stockage de chaleur, de sorte que la surface des impostes et des évents doit représenter au moins 30% de la surface de toute la structure. Avec un poids beaucoup plus léger, le polycarbonate alvéolaire garantit la même isolation thermique qu'un vitrage isolant d'épaisseur comparable. Il est inférieur au verre en matière de transmission de la lumière, mais cette fonctionnalité vous permet de ne pas dépenser d'argent pour des stores ou des rideaux sur le balcon.
La finition du balcon, qui utilise du polycarbonate de bonne qualité, est respectueuse de l'environnement. Il ne se détériore pas à cause de la pluie, du soleil ou de la neige. Si vous souhaitez obtenir votre propre confort fait à la main à faible coût, portez votre attention sur ces designs originaux.
Photo de balcons en polycarbonate
Afin de comprendre exactement à quoi ressemble le polycarbonate sur le balcon, vous pouvez voir des photos de projets déjà mis en œuvre. Dans ce cas, les produits polymères peuvent être utilisés non seulement transparents, mais également colorés, ce qui rendra l'apparence plus attrayante.
Calcul du matériel requis
Pour calculer correctement le volume de matériau, vous devez dessiner une esquisse de la future structure:
- supprimer au préalable les dimensions des zones qui seront fermées ;
- les résultats de mesure sont transférés sur le dessin;
- un cadre est requis pour l'installation. Habituellement, il est assemblé à partir d'un coin métallique avec une étagère de 25-30 mm. La disposition des éléments de cadre est appliquée au dessin.
Vous pouvez maintenant compter le nombre de pièces et la surface de chaque feuille attachée au cadre. La surface totale est liée à la surface d'une feuille de polycarbonate standard et le nombre de feuilles est déterminé. Pour qu'il reste moins de chutes, des lignes de coupe sont marquées sur le papier.







