Boot photo P44T
Ces bottes se trouvent dans différentes maisons. Par exemple, dans les maisons de la série P-44, P-44T et P-44P, série P-44M. Les loggias dans les vieilles maisons et dans les nouveaux bâtiments diffèrent de 3 à 7 cm.
Cette loggia possède de nombreuses fonctionnalités. Dans la plupart des cas, le parapet est en béton. Moins fréquemment, le parapet est soudé à partir de coins métalliques.
La botte est bordée d'un bateau. Ici, pour le voisin, il n'y a pas de mur solide - il y a du vide sous la poutre en forme de L. Avec le mur opposé - tout n'est pas non plus facile. Si la loggia est au milieu de la maison, alors ce n'est pas du tout (ils ont mis une cloison en panneaux durs). Si le coffre est sur le bord de la maison, alors à cet endroit se trouve un mur de béton à part entière.
Vitrage et finition clé en main des balcons P-44
Si vous vivez dans une maison de la série P-44, vous savez de première main que votre loggia a une forme géométrique complexe. Par conséquent, si le vitrage et la décoration du balcon P-44 sont réalisés sans expérience appropriée, des surprises désagréables sont garanties. Par exemple, c'est le froid et le bruit, les fuites constantes, les éléments de décoration extérieure qui bombent. Avez-vous besoin de toutes ces « joies » ? Pas? Ensuite, il suffit de connaître certaines des nuances pour éviter ces erreurs. Et maintenant, nous allons vous parler de ces nuances.

Vitrage chaud de la loggia P-44
Il n'y a aucune restriction sur le vitrage des balcons P-44. Le vitrage chaud peut être installé sur des parapets en béton et en métal, y compris avec une extension. Le mythe selon lequel il est impossible de monter des fenêtres en plastique sur un parapet métallique existe depuis longtemps, mais personne ne peut vraiment expliquer pourquoi. On parle de ponts froids, mais le métal peut être isolé. Tout cela se résume à une incompétence élémentaire en la matière. Nous attachons même des loggias P-44 à un appartement avec une clôture métallique sans maçonnerie, et elles s'avèrent plus chaudes que certaines avec de la maçonnerie.


Vitrage aluminium froid
Le vitrage en aluminium des balcons P-44 est peu coûteux, mais son isolation thermique n'est pas non plus excellente. Convient comme protection contre les influences environnementales - le vent, les précipitations, la poussière et les mégots de cigarettes jetés par les "bons" voisins d'en haut. Le système en aluminium Provedal a des portes coulissantes et battantes. Si vous souhaitez vitrer un balcon à petit prix, optez pour une option coulissante, car le vitrage battant coûte presque comme du plastique avec une fenêtre à double vitrage, tandis que les fenêtres en PVC sont plusieurs fois plus étanches et plus fiables.


Le niveau laser n'est pas une bagatelle
Le parapet de coffre (grande loggia avec une niche) se compose de trois sections dont le niveau est loin d'être idéal, la différence d'horizon peut atteindre cinq centimètres. Souvent, le niveau horizontal est déterminé à l'œil nu lors de la mesure. Par conséquent, les fenêtres finies sont soit plus petites, soit plus grandes que la taille requise, et elles ne peuvent pas être installées correctement. Lors de l'utilisation d'un niveau à bulle pour l'édition, la probabilité d'erreur est très élevée, car tout profil est légèrement incurvé et la précision est hors de question ici. Par conséquent, lors de la mesure et de l'installation, nos spécialistes déterminent l'horizon et le fil à plomb avec des niveaux laser.


Un détail important à retenir
L'une des principales tâches à résoudre lors du vitrage du balcon P-44 est l'élimination des zones ouvertes à l'endroit où se trouve le passage du feu entre les balcons adjacents. Ici, le mur principal de la maison n'atteint pas le parapet d'environ 70 centimètres. Et le passage lui-même est fermé par une cloison. Quelqu'un utilise une doublure en bois ou en plastique pour cela. En fait, ces options ne sont pas bonnes. Le fait est que l'arbre pourrit avec le temps et que le revêtement en plastique peut s'envoler par vent fort.Nous abordons la solution de ce problème différemment - nous fermons toutes les fissures avec de la tôle. Cependant, il existe une autre option ici - faire une maçonnerie à partir d'un bloc de mousse. Il est idéal pour un balcon chaleureux.


Faire attention aux visières et aux reflux
Sur le "botte" le vitrage se compose de trois sections et a deux coins ouverts sur lesquels les fenêtres, les auvents et les marées descendantes sont joints. Il n'y a qu'un seul coin sur le fer. Ici, vous devez faire attention aux joints des visières et des reflux et à leur étanchéité. Ils doivent s'ajuster parfaitement et uniformément les uns contre les autres et être scellés avec du silicone neutre. Faites attention aux balcons vitrés de votre maison, bien sûr, il y a des balcons avec de la mousse jaunie ouverte qui dépasse au-dessus de la verrière, cela ne devrait pas être le cas. En plus d'un aspect non esthétique, une telle "étanchéité" est lourde de fuites et de soufflage du balcon.
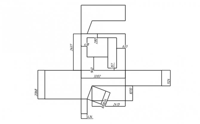
Plan balcon (scan) avec dimensions en proportion réelle
Pour vous, People's Windows a réalisé un dessin en proportion réelle. Les mesureurs utilisent généralement de tels balayages. Ici, les dimensions des murs, du sol, du plafond sont indiquées. Ce sont des mesures internes. Tout est en millimètres - comme sur les dessins. Les informations sont les nôtres et ont été collectées au fil des années de travail.
Cette loggia peut être qualifiée de moyenne. Ses dimensions sont de 3202 mm de large, 2637 mm de haut, 2068 mm de profondeur.
Les dimensions de la paroi avant sont de 3202 mm sur 2637 mm. La largeur de la pente est d'environ 9 cm et il y a un seuil modéré de 157 mm. Par conséquent, lorsque le sol s'élève légèrement, cela n'interfère pas du tout.
Le mur de droite est large, sa hauteur est de 2637 mm, sa largeur est de 2068 mm. Pour une raison quelconque, ce mur ne va pas jusqu'au bout. Par conséquent, lors de l'installation de cadres de vitrage à cet endroit, il est conseillé d'installer une maçonnerie en blocs de mousse.
Le mur de gauche mesure 2637 mm de haut, 1124 mm de large. Il y a une partition de panneau dur ici. Il est conseillé de ne pas le toucher, mais de replier la paroi du bloc de mousse à côté. Les clients économisent souvent de l'argent et érigent ensuite un mur de contreplaqué et de barres.
Le parapet de ces bottes mesure 1070 mm de haut. Il se compose de 3 parties. Sa partie principale mesure 2413 mm de long, la partie médiane mesure 1008 mm et l'orteil étroit mesure 434 mm. En raison de l'orteil étroit, il est difficile de travailler ici. Vérifiez les installateurs à cet endroit. P>
Le sol et le plafond ont la forme d'une botte. Sa longueur est de 3202 mm, sa largeur de 2068 mm. Le sol prend une 6ème forme complexe. La surface au sol de cette botte est de 4,18 m2.
La superficie totale de tous les murs est de 16,68 m2.
Plafond et surface au sol - 4,18 m2 chacun.
À l'intérieur du seuil haut
Lors de la décoration d'un balcon, vous pouvez immédiatement résoudre le problème du franchissement inconfortable d'un seuil élevé. Pour ce faire, il vous suffit d'élever le niveau du sol au niveau du seuil. Il existe plusieurs manières :
- Faire une chape de ciment. Il se distingue par sa haute résistance et sa surface finie lisse. Et permet également d'installer un système de chauffage par le sol. L'inconvénient est une augmentation de la charge sur la dalle du balcon en raison du poids important de la chape en sable-ciment.
- Chape d'argile expansée. Il présente de nombreux avantages : faible poids, montage rapide, aucun séchage nécessaire (chape sèche), isolation thermique supplémentaire. Il est recommandé d'utiliser de l'argile expansée de taille fine et moyenne, ainsi que de tasser soigneusement la couche inférieure. Des feuilles de tout matériau uniforme sont placées sur le dessus: contreplaqué, cloison sèche, aggloméré.
- Élever sur des rondins de bois. La méthode est considérée comme optimale si la hauteur du sol est très faible. La charpente en bois légère ne stressera pas la dalle. L'isolation peut être placée dans les cellules résultantes. Les bûches de bois sont mieux utilisées sur un balcon vitré. Le bois non traité à forte humidité se détériorera rapidement.
- Construisez un cadre en métal. La méthode est similaire à la précédente. La différence de poids de la structure est que la caisse en fer est plus lourde que la caisse en bois, mais elle est plus solide et plus durable. Certaines parties du cadre sont fixées par soudage.
Dimensions du bloc de fenêtre (fenêtre + porte)
Les dimensions du bloc de balcon sont indiquées ci-dessous en proportion réelle. Ces dimensions peuvent varier légèrement. En règle générale, les mesureurs choisissent des nombres supérieurs à 50 mm sur le dessin.
Les dimensions de la porte sont de 2200 mm de haut et 630 mm de large. Les dimensions de la fenêtre sont de 1397 mm de haut et 1521 mm de large.
La superficie du bloc balcon est de 3,51 m2. Parmi ceux-ci, la surface de la fenêtre est de 2,12 m2, la surface de la porte est de 1,39 m2.


Vitrage du balcon Boot du fabricant !
En continuant à utiliser cette ressource, vous reconnaissez avoir lu les termes et conditions et accepté les droits et obligations qui y sont décrits. Les informations diffusées sur le Site le sont à titre informatif uniquement. ... Plus loin dans le texte, la Compagnie.
En envoyant vos données personnelles via une application sur le site https://zavodbalkonov.ru/ ou en appelant vos données lorsque vous parlez au téléphone, vous acceptez cet accord d'utilisation. Vous acceptez le traitement de vos données personnelles et leur utilisation par la Société et/ou ses partenaires pour une durée illimitée.
1 Contrat d'utilisation
1.1 Je, le sujet des données personnelles, conformément à la loi fédérale n° 152 du 27 juillet 2006 "sur les données personnelles", donne mon consentement au traitement des données personnelles spécifiées par moi dans le formulaire sur le site Web sur Internet, qui appartient à la Société.
1.2 Les données personnelles du sujet des données personnelles désignent les informations générales suivantes : nom, adresse e-mail et numéro de téléphone.
1.3 En acceptant le présent Contrat, j'exprime mon intérêt et mon consentement total pour que le traitement des données personnelles puisse inclure les actions suivantes : collecte, systématisation, accumulation, stockage, clarification (mise à jour, modification), utilisation, transfert (mise à disposition, accès), blocage , enlèvement, destruction, effectués à la fois avec l'utilisation d'outils d'automatisation (traitement automatisé) et sans l'utilisation de tels outils (traitement manuel).
1.4 Je comprends et j'accepte que les informations fournies sont complètes, exactes et vraies ; la fourniture d'informations ne viole pas la législation en vigueur de la Fédération de Russie, les droits et intérêts légaux des tiers ; toutes les informations fournies sont renseignées par moi-même par rapport à moi-même ; les informations n'appartiennent pas aux secrets d'État, bancaires et/ou commerciaux, les informations ne font pas référence à des informations sur la race et/ou la nationalité, les opinions politiques, les convictions religieuses ou philosophiques, ne font pas référence à des informations sur l'état de santé et la vie intime.
1.5 Je comprends et j'accepte que la Société ne vérifie pas l'exactitude des données personnelles que j'ai fournies, et n'a pas la capacité d'évaluer ma capacité juridique et procède du fait que je fournis des données personnelles fiables et que je les tiens à jour. .
1.6 Je comprends et accepte que la Société a le droit de m'envoyer des notifications sur les nouveaux produits et services, les offres spéciales et divers événements en envoyant des e-mails, des SMS, des messages dans des messageries instantanées et des appels.
1.7 Le consentement est valable lors de la réalisation des objectifs de traitement ou en cas de perte de la nécessité d'atteindre ces objectifs, sauf disposition contraire de la loi fédérale.
1.8 Le transfert d'informations personnelles conformément à la législation de la Fédération de Russie n'est pas considéré comme une violation de ces obligations.
1.9 La Société peut utiliser la technologie des «cookies».
1.10 Le consentement peut être révoqué par moi à tout moment sur la base de ma demande par courrier
2. Pertinence des informations
2.1. Le Site contient des éléments à caractère purement informatif et ne constituent pas une offre publique.
2.2. La Société se réserve le droit de modifier/améliorer les produits, services, données, prix présentés sur le Site sans préavis.
3. Droits d'auteur
Les informations sur le Site sont la propriété intellectuelle de la Société et sont protégées contre le piratage (voir la législation de la Fédération de Russie sur le droit d'auteur et les droits voisins).Toute transmission, copie, reproduction, édition ou publication sur une autre source nécessite l'autorisation écrite de la Société.
Dimensions du vitrage pour Boot p44t
Vitrage Le coffre se compose de 3 parties. Sa hauteur est de 1567 mm. La largeur de la partie large est de 2413 mm. La largeur de la partie médiane est de 1008 mm. Et la partie étroite est de 434 mm.
Ce n'est pas le vitrage le moins cher. Ici, vous avez besoin à la fois de tuyaux de baie vitrée et de finitions. Trois rabats sont réalisés le long de la partie large. Il est préférable de faire le dernier au mur avec un sandwich. Ensuite, il sera possible de mettre un placard ici.
Assurez-vous de rendre la partie centrale articulée - sinon elle ne sera pas lavée. Je vous conseille de bourrer le bec avec un sandwich. Cela n'enlèvera pas beaucoup de lumière. À propos, vous pouvez mettre une garde-robe chic dans cette partie - suivez le lien. Ensuite, bloquez les deux parties extrêmes du vitrage avec des sandwichs.
La surface vitrée totale est de 6,04 m2.


En dehors du parapet tordu
Si l'état du mur du balcon extérieur n'est pas satisfaisant, il doit être renforcé ou remplacé. S'il est solide, mais a un aspect inesthétique à l'extérieur, il suffit de le recouvrir de matériaux de protection. Ils donneront non seulement au balcon un aspect plus décoratif, mais fourniront également une chaleur et une imperméabilisation supplémentaires.
Pour cela, les matériaux suivants sont utilisés :
- platelage;
- Doublure en vinyle;
- Revêtement en aluminium ;
- Panneaux PVC.
Le bardage extérieur est réalisé avant ou pendant les travaux de vitrage.
























