Pour la décoration d'une fenêtre ou d'une porte, l'entreprise REHAU produit un profil Euro économique avec des caractéristiques de haute performance et un prix abordable. Il a l'air élégant, isole de manière fiable la chaleur, le bruit et est conçu pour 60 ans de fonctionnement. Vous pouvez découvrir les principales caractéristiques, avantages, application du modèle dans notre revue du profil REHAU Euro.

Fenêtres en plastique Rehau Euro Design 60
Fenêtre aveugle
Taille: 1000 mm x 1000 mm
- Profilé blanc 60 mm - élément de fenêtre double vitrage 3 verres - ferrures métalliques
Fenêtre à guillotine simple
Taille: 600 mm x 1200 mm
- Profilé blanc 60 mm - élément de fenêtre double vitrage 3 verres - ferrures métalliques
Fenêtre à double battant
Taille: 1200 mm x 1200 mm
- Profilé blanc 60 mm - élément de fenêtre double vitrage 3 verres - ferrures métalliques
Fenêtre à trois vantaux
Taille: 1800 x 1200 mm


- Profilé blanc 60 mm - élément de fenêtre double vitrage 3 verres - ferrures métalliques
Porte de balcon
Taille: 800 mm x 2000 mm
- Profilé blanc 60 mm - élément de fenêtre double vitrage 3 verres - ferrures métalliques
Porte d'entrée
Taille: 900 mm x 2100 mm
- Profilé blanc 60 mm - élément de fenêtre double vitrage 3 verres - ferrures métalliques
Traverse
Taille: 750 mm x 450 mm
- Profilé blanc 60 mm - élément de fenêtre double vitrage 3 verres - ferrures métalliques
Fenêtre ronde
Taille: 750 mm x 450 mm
- Profilé blanc 60 mm - élément de fenêtre double vitrage 3 verres - ferrures métalliques
Fenêtre triangulaire
Taille: 1200 mm x 1400 mm x 500 mm


- Profilé blanc 60 mm - élément de fenêtre double vitrage 3 verres - ferrures métalliques
Fenêtre triangulaire
Taille: 1400 mm x 1300 mm x 600 mm
- Profilé blanc 60 mm - élément de fenêtre double vitrage 3 verres - ferrures métalliques
Les profilés en PVC renforcé de métal ont prouvé leur viabilité en raison de la présence d'un certain nombre de paramètres qui se sont révélés très précieux pour le consommateur - protection contre la chaleur, l'humidité et le bruit. Mais dans différents modèles, certaines qualités s'expriment plus ou moins.


Les fenêtres du profilé Rehau Euro 60 en ce sens sont quelque peu supérieures à la série Basic: elles ont une plus grande épaisseur de la paroi du profilé extérieur, ce qui garantit une amélioration des caractéristiques importantes pour le client.
Dans le même temps, le coût des fenêtres en pvc finies reste tout à fait abordable pour le consommateur de masse.
Fenêtres en plastique du profil européen Rehau (systèmes de fenêtres Rehau Euro - 3 caméras / 60 mm)


Prix: 4 980 roubles.
Calculez le coût des fenêtres en fonction de leur taille
Votre candidature a été envoyée avec succès!
Le calcul de la valeur de la commande ne prendra pas plus de 15 minutes.


Acheter Windows Rehau Euro sans prépaiement


Achetez des fenêtres par versements auprès du fabricant, sans la participation des banques


Remise supplémentaire 3%
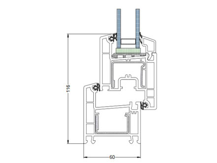
Système de profilé de fenêtre Rehau Euro (60mm)


Système de profil
Système de profilé de conception classique avec une profondeur de système de 60 mm. Trois chambres isolantes fournissent des valeurs d'isolation thermique Ropr. = 0,65 m2 ° C / W, ce qui équivaut à un mur de briques de 76 cm d'épaisseur.


Armature en acier et renfort de châssis
Le profilé de fenêtre est équipé d'un cadre en acier sur tout le périmètre du produit. Le renforcement confère une résistance et une rigidité particulières à la structure, excluant la possibilité de déformation de la fenêtre. Améliore les propriétés anti-effraction de base jusqu'à la classe WK3.


Unité en verre
L'unité à double vitrage de 32 mm d'épaisseur, avec un verre toutes saisons à économie d'énergie, a un niveau élevé de transmission de la lumière, bloque efficacement la perte de chaleur, réfléchit la chaleur solaire et réduit considérablement les coûts énergétiques.


Raccords Roto
Le système modulaire d'ensembles de connexion vous permet de mettre en œuvre n'importe quelle version de l'opération de châssis de fenêtre, de l'oscillation à l'oscillation ou au coulissement. Un grand choix d'éléments supplémentaires peut être facilement intégré dans le système, anti-effraction ou différents types de ventilation, vous obtenez ainsi une fenêtre de haute technologie et confortable.
Système de profil
Système de profilé de conception classique avec une profondeur de système de 60 mm. Trois chambres isolantes fournissent des valeurs d'isolation thermique Ropr. = 0,65 m2 ° C / W, ce qui équivaut à un mur de briques de 76 cm d'épaisseur.
Armature en acier et renfort de châssis
Le profilé de fenêtre est équipé d'un cadre en acier sur tout le périmètre du produit. Le renforcement confère une résistance et une rigidité particulières à la structure, excluant la possibilité de déformation de la fenêtre. Améliore les propriétés anti-effraction de base jusqu'à la classe WK3.
Unité en verre
L'unité à double vitrage de 32 mm d'épaisseur, avec un verre toutes saisons à économie d'énergie, a un niveau élevé de transmission de la lumière, bloque efficacement la perte de chaleur, réfléchit la chaleur solaire et réduit considérablement les coûts énergétiques.
Raccords Roto
Le système modulaire d'ensembles de connexion vous permet de mettre en œuvre n'importe quelle version de l'opération de châssis de fenêtre, de l'oscillation à l'oscillation ou au coulissement. Un grand choix d'éléments supplémentaires peut être facilement intégré dans le système, anti-effraction ou différents types de ventilation, vous obtenez ainsi une fenêtre de haute technologie et confortable.
Fenêtres à double vitrage écoénergétiques
Les fenêtres à double vitrage à économie d'énergie contribueront à rendre l'atmosphère de la maison plus chaleureuse et plus confortable, afin d'optimiser les coûts de chauffage. Cette structure transmettant la lumière avec un revêtement spécial réduit efficacement les fuites de chaleur pendant la saison froide.
En été, le problème de la surchauffe des locaux d'habitation dans de nombreuses maisons n'est pas moins aigu que celui du chauffage en hiver. Des fenêtres multifonctionnelles à double vitrage spéciales peuvent éliminer cet inconvénient. Ils sont pulvérisés des deux côtés, pour cette raison, les rayons du soleil par temps chaud sont réfléchis dans l'atmosphère et la pièce maintient le confort et la fraîcheur.
Le rapport optimal entre prix abordable et haute qualité pour un large éventail d'acheteurs
Le profilé Rehau Euro est la solution optimale pour la production de fenêtres en plastique de style classique, dont la qualité est standard, et les avantages économiques sont prévus dès le début. Le profilé à trois chambres d'une profondeur de 60 mm possède les propriétés de consommation les plus importantes et incarne la qualité traditionnelle allemande.
Les fenêtres Rehau Euro retiennent de manière fiable la chaleur et servent de barrière aux bruits parasites, à condition qu'une unité de verre correctement sélectionnée ait des propriétés isolantes élevées. Deux circuits d'étanchéité ne laissent aucune chance aux courants d'air, à l'humidité ou à la poussière de pénétrer dans la pièce.


Profil Rehau Euro 3


Profil Rehau Euro


Profil Rehau Euro 6
Profil Rehau Euro 3


Profil Rehau Euro 5
Le système d'étanchéité EPDM à double circuit fournit une haute densité de feuillure d'ouvrant, protégeant de manière fiable contre l'eau, la poussière et les courants d'air.
En empêchant l'air chaud de s'échapper de la pièce, contrairement aux vieilles fenêtres en bois, Rehau Euros est en mesure de réduire les pertes de chaleur jusqu'à 65%. La chaleur reste toujours là où vous en avez le plus besoin - dans votre maison!
Fournis une unité de verre correctement sélectionnée avec des propriétés d'isolation phonique élevées, ils sont capables de fournir un degré élevé de protection contre le bruit extérieur à l'extérieur de la fenêtre. Le meilleur choix pour les habitants des grandes villes!
Fournit des caractéristiques d'économie d'énergie élevées en combinaison avec des fenêtres à double vitrage, qui comprennent du verre à économie d'énergie. Un microclimat confortable est créé dans la maison et le besoin de chauffage supplémentaire de la pièce avec des appareils électriques est réduit.
La surface blanche comme neige et lisse du profil ne jaunit pas avec le temps. Résistant aux dommages mécaniques légers - rayures et éclats.
Le profil de la fenêtre ne se déforme pas lorsqu'il est chauffé (exposé au soleil) ou à basse température pendant la saison froide. Résiste aux chutes de température de + 45 ° С à -60 ° С.
Spécialement formulé, le matériau lisse (RAU-PVC) du profilé ne permet pas d'absorber la saleté et les taches. Toute contamination est éliminée sans trop de difficulté avec une petite quantité d'eau, sans nécessiter l'utilisation de détergents spécialisés dans le soin.


Caractéristiques du profil Rehau Euro
Vitrage avec fenêtres Rehau Euro en stricte conformité avec les normes du parc immobilier
Avantages du vitrage avec fenêtres en plastique du profil Rehau Euro 60 mm
Économisez de la chaleur
Protection contre les précipitations
Étanchéité
Protection contre le bruit
Sécurité
Conception
Fenêtres en plastique Rehau Euro dans le style de votre intérieur
Rehau Thermo decor Chêne doré


Gris anthracite-2


Chocolat brun


Acajou


Chêne des marais-2
Promotion - Cinq décors de fenêtres Rehau Euro populaires à prix réduit
Prix: 6 141 roubles.
Calculez le coût des fenêtres pour une promotion
Votre candidature a été envoyée avec succès!
Le calcul de la valeur de la commande ne prendra pas plus de 15 minutes.
Vous ne pouvez passer une commande de fenêtres en plastique qu'après avoir mesuré les ouvertures des fenêtres. La mesure est une condition préalable au calcul précis du coût des structures et des autres services nécessaires. Après avoir mesuré et déterminé le coût de la commande, un contrat de vitrage peut être conclu:
Politique de confidentialité
Toute information transmise par les Parties entre elles lors de l'utilisation des ressources du Site est une information confidentielle.
L'utilisateur autorise l'administration du site à collecter, traiter et stocker ses données personnelles personnelles, ainsi qu'à envoyer des informations textuelles et graphiques à caractère publicitaire.
Les Parties s'engagent à respecter le présent accord régissant les relations juridiques liées à la mise en place, à la modification et à la résiliation du régime de confidentialité des informations personnelles des Parties et à ne pas divulguer d'informations confidentielles à des tiers.
L'administration du site collecte deux types d'informations sur l'utilisateur:
- les informations personnelles que l'Utilisateur a délibérément divulguées à l'Administration du Site afin d'utiliser les ressources du Site;
- les informations techniques collectées automatiquement par le logiciel du Site lors de sa visite.
Lorsque l'utilisateur visite le site, le service d'assistance devient automatiquement des informations disponibles à partir des journaux de serveur standard. Cela comprend l'adresse IP de l'ordinateur de l'utilisateur (ou du serveur proxy, s'il est utilisé pour accéder à Internet), le nom du fournisseur Internet, le nom de domaine, le type de navigateur et de système d'exploitation, des informations sur le site à partir duquel l'utilisateur a effectué la transition vers le Site, les pages du Site que l'Utilisateur visite, la date et l'heure de ces visites, les fichiers que l'Utilisateur télécharge. Ces informations sont analysées par programme sous une forme agrégée (impersonnelle) pour analyser le trafic du site Web, et sont utilisées dans le développement de propositions pour son amélioration et son développement. La relation entre l'adresse IP et les informations personnelles de l'Utilisateur n'est jamais divulguée à des tiers, sauf lorsque requis par la législation du pays dont l'Utilisateur est un résident.
L'administration du site prend très au sérieux la protection des données personnelles de l'utilisateur et ne fournit jamais les informations personnelles de l'utilisateur à quiconque, à moins que cela ne soit directement requis par l'organisme d'État autorisé (par exemple, sur demande écrite du tribunal). Toutes les informations personnelles de l'Utilisateur sont utilisées pour communiquer avec lui, pour exécuter une transaction conclue entre les Utilisateurs du Site en utilisant les ressources du Site, pour analyser le trafic du site, pour élaborer des propositions pour son amélioration et son développement, et peuvent être divulguées à d'autres tiers uniquement avec sa permission.
L'administration du site protège les informations personnelles de l'utilisateur, en appliquant des méthodes de sécurité généralement acceptées pour assurer la protection des informations contre la perte, la distorsion et la distribution non autorisée. La sécurité est mise en œuvre par un logiciel de pare-feu, des procédures de vérification d'accès, l'utilisation d'outils de protection des informations cryptographiques et le respect de la politique de confidentialité.
Le Site met en œuvre une technologie d'identification des utilisateurs basée sur l'utilisation de cookies. Les cookies sont de petits fichiers qui sont stockés sur l'ordinateur de l'Utilisateur au moyen d'un navigateur Web.Des cookies peuvent être stockés sur l'ordinateur utilisé par l'Utilisateur pour accéder au Site, qui sera ultérieurement utilisé pour une autorisation automatique, ainsi que pour la collecte de données statistiques, notamment sur le trafic du Site. L'administration du site ne stocke pas de données personnelles ni de mots de passe dans les cookies. L'utilisateur a le droit d'empêcher le stockage de cookies sur l'ordinateur utilisé pour accéder au Site en ajustant son navigateur en conséquence. Il convient de garder à l'esprit que tous les services utilisant cette technologie peuvent ne pas être disponibles.
Rehau euro
L'un des choix les plus pratiques peut être considéré comme le profil Rehau Euro, un profil à petit budget avec une profondeur de système de 60 mm de classe qui répond à toutes les dernières exigences.
Des paramètres tels que l'isolation thermique et phonique, la fiabilité, la durabilité et la conception moderne. Ce système de fenêtre en PVC s'intégrera parfaitement dans les intérieurs de pièces modernes et classiques. Aspect élégant grâce à 150 biseaux sur la surface extérieure du profilé. Le profilé Rehau Euro Desingn est parfait pour la construction privée et la construction d'installations avec des exigences structurelles et d'installation typiques. Les fenêtres peuvent être soit blanc standard, soit stratifiées dans différentes couleurs, ainsi que répéter la structure de l'arbre.
- Consultations gratuites de nos managers
- Prix des fenêtres les moins chers
- Installation de haute qualité avec une garantie
- Une large gamme de services fournis
- Départ libre du mesureur à Moscou
- Temps de production du PVC à partir de 3 jours
- Installation de fenêtres et de pentes en une journée
- Livraison gratuite de produits à Moscou
Commentaires des acheteurs:
Marina, 48 ans, Moscou
Nous avons décidé d'installer un Rehau Euro d'une épaisseur de 70 mm et une unité à double vitrage à deux chambres après avoir lu les critiques d'autres personnes qui les ont installés chez eux. Nous étions satisfaits: la chaleur ne part pas, il n'y a pas de bruit de la rue, même en considérant que nous habitons juste à côté de la route.
Antonina, 32 ans, Simferopol
Ils ont préféré le profil rehau euro 60 en raison de son coût attractif combiné à de bonnes caractéristiques. Satisfait de la surface du cadre et du châssis - lisse et brillant, facile à nettoyer avec de l'eau claire et un peu de détergent.
Anatoly, 53 ans, Kirov
Il a fallu beaucoup de temps pour choisir comment vernir la loggia du sol au plafond pour que les fenêtres durent longtemps et que le froid ne pénètre pas. Après consultation des artisans, nous nous sommes installés sur Euro-Design 70. Le profil lui-même est solide, résiste facilement à un double vitrage lourd, malgré les grandes dimensions des châssis. Le cadre lisse avec des parcloses arrondies, qui cachent le joint noir, est magnifique.
REHAU EURO - 60mm
EURO-DESIGN: UN CHOIX PRATIQUE
Le système à trois chambres REHAU EURO-Design d'une profondeur de 60 mm répond aux exigences modernes d'isolation thermique et acoustique, de conception, de fiabilité et de durabilité. Deux circuits d'étanchéité deviendront une barrière fiable contre les courants d'air, l'humidité et la poussière, et la surface lisse des profilés ne gênera pas le client dans l'entretien quotidien des fenêtres.
La forme des fenêtres en profilés REHAU EURO-Design peut être modifiée en fonction de l'architecture du bâtiment et de la conception originale du client.
- Profondeur du système / nombre de chambres: 60 mm / 3 chambres
- Isolation thermique: Ropr. = 0,64 m² ° C / W
- Anti-effraction: installation de dispositifs de verrouillage renforcés grâce au déplacement de 13 mm de l'axe de la rainure de l'instrument
- Étanchéité à l'air et à l'eau: protection fiable contre les courants d'air, la poussière et l'eau grâce à deux circuits d'étanchéité (joint de 8 mm se chevauchent à l'extérieur et à l'intérieur)
- Surface: lisse, facile à nettoyer
DANS LE STYLE DE VOTRE MAISON
Le système de fenêtres REHAU EURO-Design s'intègre parfaitement dans les meubles classiques et modernes. Il a un look extérieur élégant grâce à des biseaux de 15 degrés sur la face du profil. La forme des fenêtres en profilés REHAU EURO-Design peut être modifiée en fonction de votre conception architecturale.
ACCENTS LUMINEUX
À l'aide de la forme et de la couleur originales de la fenêtre des profilés REHAU EURO-Design, vous pouvez placer des accents décoratifs lumineux ou intégrer harmonieusement la fenêtre dans le style général de la maison. Nous vous offrons:
- Aspect élégant grâce à des biseaux à 15 pas et des rayons de 2 mm sur les surfaces extérieures visibles du profil.
- La version classique de l'ouvrant avec la surface extérieure décalée par rapport au cadre.
- Variété de formes de fenêtres à partir des profilés REHAU EURO-Design: du rectangulaire au bombé ou rond.
- Une large gamme de solutions de couleur grâce à la finition avec des films décoratifs qui reproduisent la couleur et la structure des bois précieux.
- Rehau Blitz - 60 mm
- Rehau EURO - 60 mm
- Rehau Sib-Design - 70 mm
- Rehau Delight-Design - 70 mm
- Rehau Brillant-Design - 70 mm
- Rehau Geneo (nouveau) - 86 mm
- Couleurs des poignées ROTO


- Types de fenêtres à double vitrage
Isolation des vitrages de façade
Remplacement du vitrage de façade froide
Caractéristiques d'installation et de réglage
L'installation du système Euro-Design 60 (70) prévoit la préparation de l'ouverture de la fenêtre. Pour cela, la conformité des surfaces horizontales et verticales est vérifiée. Ils doivent être corrigés si nécessaire.


Tout d'abord, il est fixé aux pentes au moyen de bandes métalliques sur les chevilles, avec la préservation obligatoire d'un horizon régulier. Si nécessaire, utilisez des blocs de bois de la bonne épaisseur pour niveler le cadre. Après une fixation ferme, les fissures sont remplies de mousse de polyuréthane.
Il est conseillé d'installer d'abord le cadre séparément, puis d'installer les portes et les fenêtres à double vitrage. Si tout le travail est effectué à la main, il est recommandé de maintenir l'intégrité de la structure et de tout installer en même temps.
Le déplacement du vantail par rapport à la charpente de 13 mm permet une installation avec un mur extérieur sans risque de condensation et effet de "fenêtres qui pleure", si les murs du bâtiment sont minces et qu'il est nécessaire de préserver la surface de l'ouverture autant que possible dans la pièce sous le rebord de la fenêtre.
Comme les autres designs de la marque Rehau, Euro-Design est équipé de ferrures avec fonctions de personnalisation - réglage des fenêtres en 3 plans:
- la position de l'ouvrant par rapport au cadre (pince) dans une plage allant jusqu'à 2 mm;
- mouvement par rapport au plan horizontal et vertical à moins de 2 mm;
- la possibilité de déplacer l'ouvrant à une distance allant jusqu'à 2 mm par rapport à l'extrémité sur laquelle se trouvent les charnières et le mécanisme de commande.
Toutes les manipulations sont effectuées avec une clé hexagonale, que vous deviez tourner la vis ou l'excentrique. Le serrage de certains éléments nécessitera un tournevis à boucle.
Le catalogue de produits du profil Euro-Design comprend une large gamme de composants et de ferrures, de couleurs et de solutions géométriques. Ces fenêtres se distinguent par leur coût abordable (un simple modèle rectangulaire de fenêtre standard coûtera 40 $ par m²).
Prix moyen à Moscou à partir de 3600 roubles par mètre carré
Pieds de fenêtres 1400/1350 mm à partir de 16800 roubles
Si vous le souhaitez, le châssis est équipé de ferrures anti-effraction ou d'un vitrage isolant thermique, ce qui affectera le prix du produit fini.
Le coût de l'installation dépend de l'entrepreneur, de la complexité de l'installation et du nombre d'étages de l'ouverture.


Obtenez des conseils détaillés sur le profil Rehau EURO Design sur.

















