mur c'est la principale partie structurelle du bâtiment. Son objectif principal est de porter le poids des structures sus-jacentes et de le transférer à la fondation. Par conséquent, il doit avoir la résistance et la stabilité nécessaires (qui est calculée selon des méthodes spéciales), ainsi que résister avec succès aux charges verticales et horizontales émergentes.
Étant donné également que les murs renferment également des structures qui divisent les bâtiments en pièces séparées et les séparent de l'environnement extérieur, ils doivent avoir le coefficient de conception requis de résistance au transfert de chaleur. Autrement dit, pour maintenir les paramètres requis de température et d'humidité dans les locaux.
Les murs ont également une fonction décorative, puisqu'à l'aide de diverses solutions en termes d'architecture, ils forment l'aspect compositionnel global d'un bâtiment ou d'une structure.
Les technologies de construction modernes offrent une grande variété de matériaux de construction à partir desquels les murs sont fabriqués. Mais le matériau le plus populaire reste la brique. Il peut être utilisé aussi bien pour les murs extérieurs que pour les murs intérieurs et les cloisons.
Briques et maçonnerie
La taille standard des briques en céramique est de 250 × 120 × 65 mm. Lors de la réalisation de maçonnerie, les briques sont posées sur un mortier de 1 cm d'épaisseur. Pour que la maçonnerie soit solide et stable, les briques sont posées dans la maçonnerie, avec le soi-disant bandage des joints.

Dimensions de la maçonnerie en brique standard
L'épaisseur des murs est prise comme un multiple de la taille de la moitié de la brique. Par exemple, 120 mm est une demi-brique, 250 mm est une brique entière, 380 mm est égal à une brique et demie, 510 mm est deux briques, et ainsi de suite. Les briques en céramique sont creuses et pleines, c'est-à-dire avec ou sans vides.


Dimensions de la maçonnerie
Les briques pleines sont utilisées dans les endroits où il est nécessaire de résister à des charges réparties. Par exemple, dans les fondations, les plinthes et ailleurs. Bien que les murs extérieurs puissent être construits en briques solides. Mais cela devrait être conseillé, car l'épaisseur de la paroi peut augmenter considérablement afin d'assurer la conductivité thermique standard.
Les briques creuses, en raison de la présence de vides à l'intérieur, sont moins conductrices de chaleur, c'est-à-dire que leurs parois peuvent être plus minces que les solides. Et en raison de leur poids propre plus faible, ils chargent moins les fondations du bâtiment.


Dimensions d'une brique standard


Brique avec sept vides fendus


Pierre de béton légère avec des vides fendus
La brique est un excellent matériau utilisé dans la construction depuis longtemps. Mais son utilisation réussie dépend en grande partie de la qualité de la maçonnerie. Pour rendre la maçonnerie uniforme, utilisez un appareil spécial - la commande.
La commande est une barre avec des divisions, qui sert de modèle pour une maçonnerie uniforme et de haute qualité.
La commande peut être effectuée en usine, mais vous pouvez également l'assembler vous-même en respectant les principes de conception de base. Il aide à contrôler le niveau vertical et horizontal lors de la pose de briques, accélère le travail, car la vérification prend moins de temps.
En règle générale, la commande est faite à partir d'un coin en métal ou en bois. Le coin est pris avec une taille de 60x60 millimètres et les lattes en bois - avec une section de 5x5 centimètres. Les divisions sont appliquées aux poteaux de commande verticaux, en fonction de l'épaisseur de la brique, en tenant compte de la largeur des coutures, soit environ 77 millimètres pour les briques ordinaires (65 millimètres est l'épaisseur de la brique, plus 12 millimètres pour le coutures) et 100 millimètres pour les briques épaissies (88 + 12). Si une brique de taille différente est utilisée, la distance entre les divisions sera différente.
Les divisions peuvent être indiquées par des marques en forme d'empattements ou de fentes, qui sont également utilisées pour étirer le cordon d'amarrage. Il marquera l'horizon de la maçonnerie et la ligne de correction verticale. Le cordon d'amarrage est situé au niveau du haut de la brique dans une rangée, chaque rangée de maçonnerie lui est égale.La commande peut mesurer de 1 à 5 mètres de long. Il est utilisé dans la construction de divers objets: murs, clôtures, poêles, etc.
Pour la commodité du travail, l'ordre est établi de l'extérieur, par des divisions vers l'intérieur, afin que le maçon puisse les parcourir pendant le processus de maçonnerie.


La commande d'un profilé métallique est placée sur les coins d'un bâtiment ou d'une structure et fixée à des pinces. L'extrémité de la pince est enfoncée dans la couture, la vis est serrée. La deuxième pince est installée de la même manière plusieurs rangées plus haut. Après avoir posé le niveau, la commande est réorganisée dans la pince supérieure et celle du bas est déplacée à la hauteur du niveau suivant. Il est préférable de nettoyer la commande du mortier avant chaque mouvement.
Les commandes intermédiaires sont montées sur des murs droits avec une différence de 10 à 12 mètres. Ils sont fixés sur des supports métalliques en forme de U équipés d'une barre transversale. La pièce est placée dans le joint horizontalement après 5-7 rangées de maçonnerie. Les agrafes sont placées l'une au-dessus de l'autre, s'approfondissant avec les extrémités et la barre transversale dans la couture. Lors de l'installation, il est important de vérifier la verticalité de la commande à l'aide d'un fil à plomb. L'emplacement des marques (encoches ou trous) est vérifié avec un niveau. Lorsque tous les paramètres sont vérifiés, vous pouvez enfin fixer la commande et tirer sur le cordon d'amarrage. Pour éviter que le cordon ne s'affaisse sur les sections les plus longues du mur, une balise intermédiaire est placée en dessous, sur laquelle repose le cordon.
Au fur et à mesure que vous montez, le cordon d'amarrage se déplace vers le niveau supérieur de chaque nouvelle rangée avec un retrait par rapport au plan mural d'environ 3 millimètres. Sur les frontières et aux coins des murs, un phare est aménagé - un refuge shtraba. Cela simplifiera non seulement les travaux ultérieurs, mais vous permettra également de faire une pause.
Les courbures sont faites de 6 rangées de haut et servent à attacher le cordon d'amarrage. Ubezhnaya shtraba est une méthode de pose dans laquelle les briques sont empilées dans une "échelle" avec une différence d'une demi-brique. Cela aide à rendre le pansement plus sûr. Il est utilisé pour sécuriser le cordon d'amarrage et relier les sections de maçonnerie. Ce shtraba est particulièrement utile lorsque vous devez construire une cloison plate entre les murs. L'amarrage aux phares est fixé avec des agrafes tous les 5 mètres ou fixé à un clou inséré dans la couture.


Lorsque toutes les commandes sont installées et que les cordons sont tendus, vous devez les vérifier à nouveau avec un niveau et un fil à plomb. D'autres ajustements peuvent être effectués à l'aide d'agrafes et de balises. Lorsque vous travaillez à l'intérieur, au lieu de commander, en règle générale, des supports d'amarrage sont utilisés. L'extrémité inférieure du support est insérée dans le joint de la maçonnerie et l'autre doit reposer sur la brique du phare. C'est à cette partie que le cordon d'amarrage est attaché. La deuxième extrémité est attachée à la brique phare de l'autre côté de la maçonnerie. Le cordon d'amarrage doit passer du support au plan supérieur de la brique du phare.
Ces structures sont placées avec une fréquence de plusieurs rangées. Elle est autorisée à travailler dans des endroits où il est impossible d'établir l'ordre. Les briques de maçonnerie peuvent être pleines ou creuses. Un mortier différent est utilisé pour chaque type de brique. Mais dans tous les cas, il ne doit pas être trop liquide, sinon sa consommation augmentera considérablement. Pour la pose de briques, vous aurez besoin d'une commande avec un cordon d'amarrage, un fil à plomb, une truelle, une pioche, un niveau et un joint.
La commande permet non seulement de simplifier les travaux de maçonnerie, mais garantit également la construction d'un mur lisse sur toute la longueur. Bien que ériger plus de six rangées à la fois, seul un maçon avec une vaste expérience le peut.
Commande de dessins
Lors de la réalisation de dessins de sections de bâtiments, avec une échelle de dessin de 1:50 ou moins, la maçonnerie sur eux est ombrée de lignes fines avec un angle d'inclinaison de 45 degrés. Il est également possible de les tracer le long du contour avec une ligne principale pleine.


Commande verticale à partir de pierres de béton légères
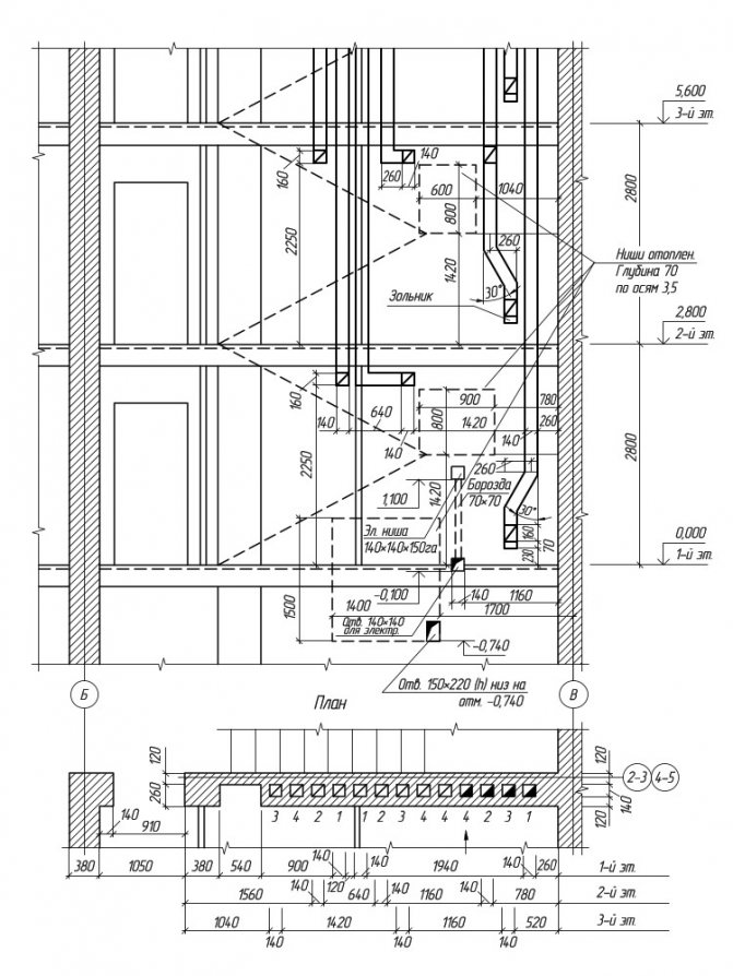
Pour représenter la maçonnerie, des dessins spéciaux sont utilisés, appelés ordres... Ils sont généralement fabriqués à une échelle de 1:10 à 1:20. L'illustration de droite montre la disposition verticale.À savoir, une coupure dans la zone de la fenêtre du mur extérieur dans une maison à deux étages. Comme on peut le voir sur le dessin, ses murs sont revêtus de deux types de briques : 390 × 90 × 188 mm et moitiés longitudinales 390 × 90 × 188 mm avec un joint de mortier de 10 mm. Dans le dessin, les lignes sont numérotées, toutes les dimensions nécessaires à la lecture sont définies, les marques de hauteur sont définies et les inscriptions nécessaires sont faites pour l'explication.
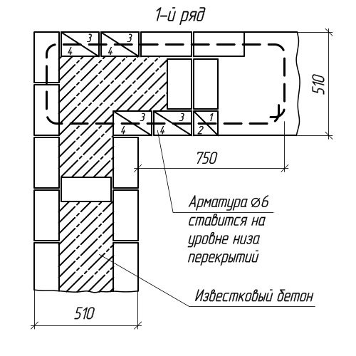
S'il est nécessaire de clarifier le type et le type d'éléments structurels individuels, un dessin des éléments de maçonnerie individuels est effectué. Les figures explicatives ci-dessous montrent un ordre horizontal de deux rangées adjacentes pour le coin de la paroi extérieure, en briques céramiques. Le ferraillage utilisé dans la maçonnerie est marqué par une ligne en pointillés.


Ordre horizontal de la première rangée


Ordre horizontal de la deuxième rangée
Maçonnerie BBQ en brique
Vous trouverez ci-dessous une classe de maître sur la pose d'un barbecue en brique avec un reportage photo étape par étape.
Par exemple, une extension d'un barbecue sur un mur blanc d'un gazebo en brique sera réalisée.
Le barbecue est posé sur un socle en béton (dalle armée de 30 cm d'épaisseur). Veuillez noter qu'une couche d'imperméabilisation est d'abord réalisée sous le four à barbecue (2 feuilles de matériau de toiture sont découpées à la taille).
Un mélange réfractaire à base de ciment "Hercules" est utilisé comme mortier pour la pose de briques.
Conseil d'expert: si vous utilisez une solution d'argile, alors 200-250 gr peuvent être ajoutés à un seau de mélange argile-sable. ciment M400.
Des briques réfractaires en argile réfractaire sont utilisées pour la construction. Plus précisément, pour cette conception, un barbecue aura besoin d'environ 1200 pièces.
Épaisseur du joint de maçonnerie:
- pour le mélange résistant à la chaleur "Hercules" - 5-7 mm;
- pour le mélange au four "Martel" - 3-5 mm.
Découpe de brique:
- Chanfreinage d'une brique (coupe du bord, fait pour donner à la brique un effet décoratif) - un coupe-carreaux avec un disque diamant de 180 mm est utilisé
- Découpe de brique - réalisée avec une meuleuse avec une lame diamantée de 230 mm
Avant qu'une brique en argile réfractaire tranchante ne soit trempée pendant 5 à 10 minutes, une brique rouge - à partir de 20 minutes (plus le grade est bas, plus le temps de trempage est court). Pour le chanfreinage (bord), la brique est uniquement mouillée.
Modèle plat de murs avec canaux
Si des canaux sont fournis dans le mur pour la ventilation ou les cheminées, des dessins spéciaux du balayage mural avec canaux sont réalisés.
La figure montre un modèle plat pour les murs avec des canaux, ainsi qu'un plan de mur. Pour faciliter la lecture du dessin, les canaux sont mis en évidence par une ligne principale continue. Les ouvertures dans les conduits de ventilation sont représentées en diagonale, et dans les conduits de fumée, à moitié obscurcies. L'endroit exact où se trouvent ces canaux est indiqué en se liant au sol du sol et au mur extérieur.
Pour chaque canal, une valeur numérique est indiquée séparément, indiquant à quel étage le canal commence. Comme vous pouvez le voir sur la figure ci-dessus, à chaque étage du bâtiment, il y a deux conduits de ventilation situés dans la salle de bain et les toilettes et un pour la cheminée partant de la cuisine.


Balayage mural avec conduits de ventilation et cheminées
Commande de maçonnerie décorative


En fait, il y a une commande vingt types de maçonnerie décorative.
Nous ne les toucherons pas tous pour le moment. Mais je voudrais attirer votre attention sur quelques-uns des principaux. De plus, ils sont considérés comme les plus populaires et, à mon avis, ne nécessitent pas de gros investissements.
il maçonnerie gothique, composé de rangées alternées, où les briques cuillère et crosse sont disposées en alternance. Vous retrouverez ce type de maçonnerie dans sept cas sur dix. Cela n’a rien d’étonnant. Parce que, comme je l'ai dit, la commande avec la maçonnerie gothique est considérée comme la plus populaire et souvent utilisée dans la construction et le revêtement d'une maison. Et bien sûr, la commande de la maçonnerie croisée. Dans cette maçonnerie, il y a aussi une alternance de cuillères et de rangées de briques.La seule différence est que l'alternance ici va comme ceci: deux cuillères, un bout, etc.
Remarque : la maçonnerie collée est lorsqu'une brique avec son côté étroit (poke) fait face à l'extérieur du mur.
Maçonnerie gothique


Schéma de maçonnerie gothique en 1 et 2 briques (cliquez sur l'image pour l'agrandir)
Les murs créés avec une épaisseur de deux briques avec l'ordre de la maçonnerie gothique sont disposés dans l'ordre suivant. La rangée initiale du verst extérieur - alternant les briques cuillère et bout à bout, le verst intérieur - briques posées avec un coup de poing, une colonne vertébrale de cuillère, la rangée suivante du verst extérieur est la même que la première, uniquement avec un bandage des coutures verticales ; le verst intérieur est disposé de la même manière que le verset extérieur, seul le zabutka est déjà fait avec des pokes.
Remarque: un verst correspond aux rangées de briques les plus à l'extérieur qui forment la surface du mur. ZABUTKA est une maçonnerie située entre le verst extérieur et extérieur (intérieur).
Les angles droits de la maçonnerie avec un motif gothique de coutures sur la façade commencent à se répandre dans l'ordre suivant:


Maçonnerie gothique
Ligne initiale:
- avec trois ou quatre et une brique entière, nous commençons à disposer la verste extérieure. De plus, des deux côtés du coin, nous alternons des briques cuillère et bout à bout;
- le verst intérieur est composé de deux trois ou quatre disposés avec une cuillère, et se poursuit en poussant;
- la sauvegarde est effectuée avec des cuillères, dans le coin, quatre et moitiés de briques sont disposées.


Pose des coins
Rangée suivante:
- le verst extérieur commence par trois ou quatre et une brique entière, puis nous alternons des cuillères avec des pokes, faites avec un bandage de coutures verticales sur la façade;
- le verst intérieur copie le verset extérieur;
- zabutka est réalisé avec des coups de poing et le coin est rempli de quatre et trois ou quatre.
Lors de la pose de piliers avec des motifs gothiques de coutures sur la façade, la rangée initiale est posée de la même manière que sur des sections de murs vierges, uniquement avec des quartiers dans le verst extérieur. Dans la deuxième rangée, les verstes intérieurs et extérieurs sont identiques - ce sont des pokes et des cuillères en alternance. Pour observer l'habillage, les coins de la verste intérieure se terminent par trois ou quatre. Les fenêtres Zabutka sont faites par quatre.
Maçonnerie croisée


Maçonnerie croisée en 1 et 2 briques
Les murs d'une épaisseur de deux briques avec un motif de coutures de maçonnerie croisée sur la façade sont alignés dans l'ordre suivant:
- la première rangée du mille extérieur - en alternant les coups avec deux cuillères;
- verst intérieur - briques doublées de pokes;
- zabutka est disposé à partir de briques de cuillère.


Maçonnerie croisée
La rangée suivante du mille extérieur imite la première, mais de sorte que la couture verticale entre les cuillères soit au milieu de la crosse inférieure;
- le verst intérieur copie le verset extérieur; - le zabutka est composé de mégots.
Les angles droits de la maçonnerie des murs sont disposés dans l'ordre suivant.
Ligne initiale:
- le verst extérieur commence par deux trois ou quatre, posés avec une cuillère, puis les briques de crosse et de cuillère sont disposées, puis il y a une alternance de crosse et de deux cuillères, de l'autre côté du coin, le verst extérieur est posé en alternant la crosse et deux cuillères;
- le verst intérieur commence par deux trois-quatre et se poursuit par des jabs des deux côtés du coin;
- la sauvegarde se fait avec des cuillères.
Deuxième rang:
- le mille extérieur commence par deux trois ou quatre, posés avec des coups, puis un coup et deux cuillères alternent, d'autre part, un coup et des cuillères se joignent à un trois ou quatre, puis une alternance de coups, deux cuillères;
- le verst intérieur commence par deux trois-quatre, liant les briques situées en dessous. La pose des briques se poursuit dans le même ordre que dans le verst avant;
- zabutka est réalisé avec des pokes, mais deux cuillères sont placées dans la partie intérieure du coin.
Piliers avec motifs de point de croix sur la façade sont disposés dans le même ordre:
- la rangée initiale est la même que dans les sections de murs blancs, seulement avec la pose de deux trois-quatre dans le verst extérieur;
- la rangée suivante - les verstes intérieurs et extérieurs sont les mêmes, mais pour observer l'habillage, des moitiés et des trois-quatre sont utilisés;
- l'épine dorsale est composée de briques posées avec un poke, remplissant les espaces avec une brique incomplète.



