Les spécificités du travail d'un fumoir pour une cuisinière à gaz
Tous les fumeurs ont le même principe de fonctionnement: les produits posés sur une grille ou suspendus à des crochets sont traités à la fumée de copeaux de bois fumants. En fonction de la durée de la séance et du régime de température, on distingue les méthodes de fumage à froid et à chaud.
Un fumoir domestique pour cuisinière à gaz a ses propres spécificités, ce qui vous permet de fumer sans nuire à l'environnement. Pour cela, le dispositif prévoit une sortie de fumée ou un joint étanche à l'eau qui ne permet pas à la fumée de se répandre dans toute la pièce. Le couvercle est bien fermé.
Fumoir domestique et ses types
Les fumoirs domestiques sont classés par type en fonction d'un certain nombre de facteurs:
- par le type de tabagisme - froid ou chaud;
- pour le bois de chauffage, le gaz et l'électricité;
- par matériau de fabrication. Le matériau le plus populaire pour les appareils à fumer domestiques est l'acier inoxydable.
Tout fumoir domestique fume des produits avec de la fumée réfrigérée et chaque type a ses propres avantages.
Le fumoir électrique est pratique à utiliser, car le tabagisme ne nécessite aucun contrôle. Le consommateur règle les paramètres de température et de temps requis et reçoit un produit prêt à l'emploi.
Le fumoir électrique est un appareil polyvalent, donc il peut être utilisé comme gril
dans la cuisine. De plus, l'appareil peut être placé sur le balcon pour plus de commodité.
Un fumoir domestique au gaz est un appareil très facile à assembler. Dans un ensemble général, qui comprend une bouteille de gaz et un boîtier en aluminium. Fumer dans un tel appareil est absolument sans danger, car les briquettes sont introduites dans le générateur de fumée à l'aide d'un tuyau automatique. Les briquettes sont chauffées à la température requise, après quoi elles tombent dans un récipient contenant de l'eau et y sont éteintes.
Les dispositifs sont rectangulaires ou cylindriques et peuvent être constitués de deux ou trois étages. Ils sont fabriqués sous forme de valises, de boîtes et équipés d'un joint étanche à l'eau. Un fumoir domestique avec un joint étanche à l'eau est pratique car empêche la fumée de s'échapper
et empêche l'oxygène de pénétrer dans les puces.
Un fumoir conventionnel en acier inoxydable au feu de bois est le modèle le plus populaire. C'est un récipient dans lequel se trouve une grille pour les produits semi-finis et dans sa partie inférieure il y a une place pour un plateau qui recueille la graisse. Fumer au feu et à la fumée parfumée fait des produits finis de ce fumoir l'un des meilleurs en termes de qualité.
Tous les modèles portables en acier inoxydable sont compacts et faciles à transporter.
Avantages du corps de plaque
Pour faire un fumoir à partir d'une cuisinière à gaz, il faut qu'il y ait un four. La table de cuisson n'est pas adaptée à cet usage. Pour le fumage à chaud, un fumeur à partir d'une casserole est installé sur la plaque de cuisson.
Le four possède tous les éléments nécessaires:
- chambre d'une taille de 50 litres;
- guides dans les murs pour l'installation de grilles avec de la nourriture et un plateau pour recueillir la graisse;
- fermeture hermétique de la porte;
- un brûleur à gaz situé à la distance requise du fond de la chambre;
- un régulateur qui vous permet de régler le feu du brûleur, le chauffage de la sciure et la température dans le fumoir.
Important! Lors de l'utilisation d'une telle installation, le four acquiert une odeur de fumée et devient inutilisable pour l'usage auquel il est destiné.
Le four à fumer est un appareil compact (jusqu'à 10 litres), dans lequel vous pouvez fumer des aliments à votre table à domicile en 1 heure.

Il a une forme cylindrique, donc il s'adapte facilement sur un brûleur d'une cuisinière à gaz. Il s'agit d'un modèle de fumeur à domicile sûr et très pratique. Le dispositif n'est pas compliqué: les produits sont suspendus sur une tige spéciale au-dessus du plateau pour collecter les graisses. Le couvercle supérieur contient cette conception.
De la chaudière
Il n'est pas nécessaire de se précipiter pour jeter l'ancienne chaudière. Son corps est adapté à la création d'un fumoir.
Fabrication du boîtier
La première chose est faite - les couvertures sont sciées
dispositifs. Le réservoir intérieur est ensuite retiré. Un trou avec une porte est percé dans le réservoir externe, comme un registre pour un poêle. À lui
tonneau soudé
sans fond et réservoir externe. Ceci est nécessaire pour créer une isolation thermique. Au bas de la structure, au-dessus de l'ouverture avec une porte, des rainures pour palettes sont organisées, et au milieu pour un treillis.
Comment faire un treillis
Pour la fabrication du treillis, du fil non peint est utilisé. Un cadre en est fabriqué, dont la taille correspond à la taille interne de la structure. Des morceaux de fil sont soudés au cadre à une distance de 4 cm
une part.
Les plateaux sont découpés dans une feuille de métal pour la sciure et la collecte de la graisse des produits. Il doit être de la même taille que le gril.
Cheminée
La cheminée ici est toit ouvert
constructions.
Assemblée
La structure est placée sur une tôle, fond de trou
avec une porte. Il y aura un feu ouvert ici. Une palette avec des copeaux ou de la sciure de bois est installée sur la première rainure, sur la seconde - une palette pour collecter la graisse des produits. Le gril pour les aliments est fixé au centre. Après cela, vous pouvez commencer à fumer.
Types de fours fumés: nous nous assemblons
La conception du fumoir dépend du poêle utilisé pour fabriquer le fumoir de vos propres mains.
Fumoir fumé à chaud d'un four à gaz
Les poêles et fours les plus courants sont les cuisinières à gaz. En fait, c'est un fumoir prêt à l'emploi. Pour assembler un fumoir à partir du four, plusieurs grilles sont nécessaires, qui peuvent être prises dans d'autres fours similaires.
Le principe de fonctionnement de cette installation est le même que celui des autres fumoirs fumés à chaud. Pour la conversion, il n'est pas nécessaire de dessiner un dessin de l'appareil. Le processus d'assemblage consiste à installer les grilles:
- verser la sciure et les copeaux sur le fond;
- dans la rangée la plus basse de fixations, installez une grille avec un bac collecteur;
- aux niveaux supérieurs, installez des racks avec des produits;
- allumer le feu;
- après le début de l'émission de fumée, réduisez le feu et maintenez la température requise à l'intérieur de la chambre.
Vous pouvez utiliser une vieille plaque à pâtisserie comme plateau. Pour augmenter le nombre de rangées de grilles et la productivité du fumoir, il peut être installé sur un support au bas de la chambre de fumage.


Lorsque vous travaillez, de la fumée sort du fumoir, un tel fumoir ne convient donc pas à un appartement. Mieux vaut l'utiliser à l'extérieur ou dans une grange. Dans la cour, le fumoir de la cuisinière à gaz n'est pas connecté au système d'alimentation en gaz, mais simplement un feu est fait sous le fond. Si vous fabriquez un tel fumoir dans le pays de vos propres mains, vous pouvez y préparer diverses collations pour la table de fête.


Fumoir du four
Le dispositif et le principe de fonctionnement du four dans le poêle, qui est alimenté au bois ou au charbon, sont similaires à ceux d'un four à gaz. Par conséquent, le fonctionnement d'un fumoir directement dans un poêle à bois ne diffère pas d'une installation de fumage à partir d'un poêle à gaz.
Si le four est démonté du poêle, il doit être installé sur un support, par exemple, composé de quatre briques, et un petit feu doit être allumé sous le fond.


Fumoir de cuisinière électrique
Les fours électriques sont installés dans des fours électriques.Ils diffèrent par leur conception des fours à gaz et à combustible solide.
La chambre est chauffée par des appareils de chauffage de différentes conceptions:
- Éléments chauffants. Il est nécessaire d'installer un récipient avec de la sciure de bois, par exemple une vieille poêle en fonte.
- Chauffage électrique plat ou à disque. Dans ce cas, la sciure de bois est versée directement sur le radiateur.
Si l'appareil est équipé d'un ventilateur intégré, il doit être allumé pour accélérer le traitement. Le même fumoir est fabriqué à partir de fours électriques de différentes tailles.
Important! Dans les fours électriques, des radiateurs sont installés en haut et en bas. Pour fumer, les radiateurs électriques supérieurs ne sont pas allumés.


D'un bar
Un fumoir en bois est fabriqué de la même manière qu'un fumoir en bois, mais ici, au lieu de planches, le corps est entièrement constitué de poutres.
Fabrication du boîtier
Le corps du fumoir est fait de poutres, longueur 1,3-1,5 m et section 20x50 ou 50x50 mm
... Le cadre de l'appareil est formé à partir d'eux. C'est une boîte rectangulaire. Il en outre
sur trois côtés
gainé de planches,
section 20x150 ou 25x150
.
Lorsque vous créez un boîtier à partir de poutres, vous devez décider toit
constructions. Si un toit à pignon est supposé, les guides sont créés à partir des barres, qui représentent un triangle isocèle. De haut en bas, la médiane est effectuée.
Alors fait porte
... Les planches sont rembourrées, 20 cm de long en haut et en bas. Une porte est fixée dans l'ouverture, un toit avec un trou pour un tuyau est installé sur le dessus. Après cela, le corps du fumoir est gainé de planches à clin. Une feuille de métal est posée sur le toit, le trou pour le tuyau n'est pas fermé en même temps.
À l'intérieur du fumoir, rainures pour la fixation de la grille et de la palette
... Pour cela, on utilise des planches dont la longueur est
90 cm
... Passant par
des vis
ils sont vissés sur les côtés de la caméra.
Comment faire un treillis
La grille est en fil de fer non peint. Tout d'abord, un cadre est réalisé, dont les dimensions correspondent aux dimensions de l'espace intérieur de la caméra. Les fils y sont soudés à une distance de 4 cm
une part. Le gril est prêt.
Un plateau pour collecter la graisse des aliments qui s'écoule des aliments lorsqu'ils sont fumés est en tôle. Ses dimensions correspondent aux dimensions du treillis.
Cheminée
Pour faire une cheminée, il faut creuser tranchée de trois mètres
entre le foyer et le fumoir,
largeur - 0,5 m, profondeur - 0,3 m
... Il est installé
cheminée
, qui est coulé avec du mortier de béton. Une couche de terre est versée sur le dessus, épaisse
pas moins de 15 cm
... Cela empêchera la cheminée de geler même en hiver.


Photo 2. La cheminée de l'ancienne cheminée mène à un endroit préparé pour la fournaise. Grâce aux briques réfractaires, il est tout à fait sûr d'y faire un feu ouvert.
Assemblée
Avant une vérification pour installer un fumoir sur le site, une fondation est faite pour cela. Pour cela, il est déterré fosse
, correspondant à la taille du fumoir, profondeur -
40 cm
... Le fond de la fondation est recouvert
décombres
, des blocs de béton sont fixés le long des murs à l'aide d'un renfort, après quoi toute la fosse est remplie d'une solution de ciment. Sur lui
caméra fixe
... À l'intérieur de laquelle devraient déjà être installés un plateau pour recueillir les graisses libérées par les produits lors du fumage, et une grille.
À la fondation cheminée
... À une extrémité de celui-ci, un carré de fer soudé à partir d'une feuille de métal est fixé. Il doit être dimensionné en fonction de la caméra. Il est installé sur la fondation. À l'autre bout de la cheminée, un
foyer
... Il doit être fait de briques réfractaires et équipé d'une porte en métal. Ce sera l'endroit où le feu est fait.
La dernière étape est l'installation d'un fumoir. Il est placé directement sur la fondation. Deux structures sont fixées ensemble avec supports métalliques
... Le fumoir est prêt!
Appareil pour fumer à froid à partir d'une cuisinière à gaz
Pour convertir un four à gaz en fumoir fumé à froid, un générateur de fumée et une cheminée séparés sont nécessaires. Les instructions de conversion étape par étape se composent de trois points:
- installer le corps sur un support de manière à ce qu'il soit au-dessus du générateur de fumée;
- percer des trous pour la cheminée dans les parois latérales intérieure et extérieure à une hauteur de 3 cm;
- connectez le générateur de fumée et le fumoir à une cheminée.
Conseils! Le même fumoir peut être fabriqué à partir d'un four électrique et à combustible solide.
La figure suivante montre un schéma d'un tel appareil.


Une cuisinière à gaz n'est pas le seul matériau pour fabriquer des fumoirs. En son absence, l'appareil à fumer est assemblé à partir de n'importe quel récipient approprié. Par exemple, un fumoir fabriqué soi-même à partir d'une machine à laver se révèle bien.


Le poisson et la viande fumés sont considérés comme des mets délicats pour une raison: le tabagisme permet non seulement de donner aux produits un goût et un arôme uniques, mais aussi de prolonger considérablement la durée de conservation. Malheureusement, les produits du magasin ne peuvent pas être appelés fumés - ils ont longtemps été utilisés pour la production de masse. En conséquence, le goût est médiocre et leurs avantages sont complètement discutables.
Avantages et inconvénients des fumeurs en différents matériaux


?
Chaque fumoir discuté ci-dessus a ses propres avantages et inconvénients.
Donc, dans la conception en bois, poutres ou contreplaqué
vous pouvez cuire les aliments en utilisant la méthode
fumer à chaud et à froid
... C'est le principal avantage du fumoir. Les inconvénients comprennent le moment où les documents soumis ont
courte période opérationnelle
.
Plus la conception acier inoxydable
est-ce qu'elle
Facile
dans la fabrication et
transportable
... Il peut être utilisé à la fois dans une maison privée et dans un appartement. Un autre avantage d'un tel fumoir est
longue période opérationnelle
.
Inconvénient - vous pouvez cuisiner des aliments.
Fumoir d'une vieille cuisinière à gaz
fais
Plus facile
Le total. Ici, tous les détails sont déjà complétés. Un autre avantage est qu'il peut être utilisé à la fois dans l'appartement et à la campagne. La conception a
longue période opérationnelle
, mais vous pouvez cuisiner ici
seulement en fumant à chaud
... C'est le principal inconvénient de l'appareil.
Les principaux avantages d'un fumoir de la chaudière et du tuyau
est un
longue durée de vie
... Désavantage -
impossibilité de fumer à froid
des produits.
Faire un fumoir à partir de matériaux de rebut est une affaire assez simple
... Le processus prend un peu de temps et ne nécessite pas beaucoup d'efforts, et le produit fini durera plus d'un an, se délectant de délicieuses spécialités fumées.
Types et conditions de tabagisme
Vous pouvez fumer des produits complètement différents: du poisson, de la viande et du saindoux, familiers à tous, ainsi que des noix, des fromages, des légumes et même des fruits et des baies. Bien sûr, ils ont besoin de différents modes: la température de la fumée et la durée du fumage, ainsi que les copeaux de bois utilisés pour cela.
- froid, avec une fumée légèrement chaude 30-50 ° C;
- chaud, avec une température de fumée de 70-120 ° C;
- mi-chaud, à 60-70 ° C
- Principalement, la chambre de combustion est située directement sous la chambre de fumage... Il n'est pas nécessaire de fabriquer une chambre de combustion à bois, vous pouvez le faire vous-même à partir d'un brûleur à gaz ou d'une cuisinière électrique. L'essentiel est de chauffer le fond du fumoir à la température à laquelle les copeaux commenceront à brûler.
- La chambre de fumage des fumoirs fumés à chaud est scellée... Cela garantit un chauffage plus uniforme de tous les niveaux du produit - il peut y en avoir plusieurs dans le fumoir et vous permet également d'utiliser complètement la fumée, en l'empêchant de fuir.
- Certains modèles de fumeurs ont un couvercle avec un joint d'eau... Ce piège à odeurs est un évidement en forme de U autour du périmètre de la chambre, dans lequel de l'eau est versée. Les bords du couvercle s'insèrent dans cet évidement, ce qui crée une barrière à l'air extérieur et à la fumée intérieure. Le piège à odeurs vous permet non seulement d'isoler la chambre, mais réduit également la quantité de cancérogènes dans la fumée.
- Les grilles ou tiges amovibles sont placées sur un ou plusieurs niveaux pour accrocher des crochets. Les produits sont placés dessus lorsque vous fumez. Vous pouvez utiliser des grilles de barbecue de taille appropriée si vous faites des supports dans le coin avec vos propres mains sous celles-ci et que vous coupez les poignées avec un moulin.
- Une autre condition préalable est un plateau pour collecter le jus et la graisse... S'ils coulent directement au fond du fumoir, la graisse brûlera et la nourriture aura un goût amer.Pour le poisson, en raison de la faible température de combustion de ses graisses, il est préférable de le fabriquer avec une sortie de la chambre. La palette doit également être amovible, elle doit être régulièrement nettoyée de la graisse résiduelle.
Plus la température est élevée, plus la viande et le poisson sont cuits rapidement. Donner à la fumée la température requise est une tâche résolue par la conception correcte du fumoir.
Fumé à froid
Sa principale différence est une cheminée prolongée, dans lequel les gaz de combustion ont le temps de brûler complètement, les cancérogènes nocifs qui en découlent se déposent sur les parois de la cheminée et les produits fumés sont enveloppés d'une légère fumée aromatique. Après un tel traitement, la viande peut être stockée pendant plusieurs mois, le poisson - de trois à 12 semaines.
La figure montre un fumoir traditionnel fumé à froid, il peut être installé sur le site dans une maison de campagne. Les dimensions sont arbitraires, donc seuls les principaux éléments structurels sont indiqués sur le dessin.


Un fumoir fumé à froid se compose de trois blocs principaux: un foyer, un fumoir et une cheminée les reliant. La chambre de combustion peut être pliée en blocs, en briques ou soudée en métal. Il doit être équipé d'un bac à cendres facilement nettoyable - le temps de fumage de certains produits est de plusieurs jours et les cendres doivent être éliminées pendant le processus de chauffage.
Lire aussi: La tronçonneuse tire sur la cause du silencieux
La sortie de fumée est réglable; lors de l'allumage et au début du bois de chauffage, ils émettent une fumée sombre piquante, qui peut gâcher le goût des viandes fumées. Par conséquent, la chambre de combustion est équipée d'un clapet anti-fumée qui dirige son flux soit dans la cheminée, soit à l'extérieur. Le plus souvent, il se présente sous la forme d'un couvercle de chambre de combustion.
Pour fumer, vous ne pouvez pas utiliser de résine - épinette, pin ou goudron émetteur - érable, bouleau, bois de chauffage. Les meilleurs bois sont le cerisier, l'aulne, le chêne et la pomme.


Sur la photo - un fumoir fumé à froid à partir d'un tonneau en bois, équipé de tiges amovibles.
En raison de la basse température, la chambre de fumage peut être faite de n'importe quoi, par exemple du métal ou du bois. L'utilisation de matériaux poreux tels que les briques n'est pas recommandée - absorbant la fumée, et après la fin de l'humidité de fumer, ils forment un sédiment, qui finit par acquérir une odeur de pourriture désagréable.
L'option la plus simple est un tonneau en métal ou en bois. avec un trou dans le fond, dans lequel la fumée entrera. Il est équipé de crochets ou de grilles pour placer les aliments. Le rôle du couvercle est généralement joué par une toile de jute humide - il emprisonne la fumée à l'intérieur de la chambre, tout en absorbant l'excès d'humidité. La photo montre un exemple de chambre à fumer en saule, recouverte de toile de jute sur le dessus.


Le moment crucial est le dispositif de cheminée. Comme le fumoir, il ne doit pas être en brique, car il absorbe l'humidité et les substances nocives de la fumée. Le métal fonctionnera mieux, mais il est nécessaire d'en éliminer le condensat et la suie en temps opportun, sinon une odeur se formera avec le temps. La meilleure option est une cheminée creusée dans le sol... Le sol non seulement refroidit efficacement la fumée, mais absorbe également le condensat, et les micro-organismes contenus dans le sol en traitent avec succès les cancérogènes.
Faire un tel fumoir de vos propres mains est assez simple. Pour ce faire, sélectionnez une zone avec une légère pente qui permet un tirage naturel de la fumée. Une chambre de combustion est placée au bas de la pente. Une rainure est creusée sur la pente, qui servira de cheminée. D'en haut, il est recouvert de feuilles de fer et une couche de terre est versée dessus pour une meilleure isolation thermique. La cheminée est sortie dans le fumoir, elle peut être réalisée de différentes manières.


Fumé à chaud
Le fumage à chaud est un processus assez rapide, de 15 minutes à plusieurs heures, selon la taille des morceaux individuels de viande ou de poisson. Dans le même temps, la fumée est plus chaude, environ 100 ° C, et n'est pas obtenue à partir de bois de chauffage, mais à partir de copeaux spéciaux, par conséquent, la conception d'un fumoir fumé à chaud a ses propres caractéristiques.
Un dessin avec des options pour faire un fumoir pour fumer à chaud est montré ci-dessous.


Le meilleur matériau pour un tel fumoir est l'acier inoxydable, mais ils sont souvent fabriqués à partir de déchets, par exemple, à partir d'un tonneau en métal, comme le montre la vidéo.
Mini-fumeurs fumés à chaud portatifs


Les modèles de fumoirs ci-dessus sont parfaits pour un chalet d'été ou une maison de campagne, mais vous ne pourrez pas les emmener avec vous pour un pique-nique ou une pêche - ils sont trop volumineux. Sur le terrain, ils seront remplacés avec succès mini-fumoir sous forme de boîte avec couverclecomme dans le dessin. Vous pouvez le faire vous-même et l'utiliser à la fois dans le pays et le transporter dans le coffre d'une voiture jusqu'à un lieu de repos.
La température dans un tel fumoir est maintenue de manière optimale au niveau de 60-70 ° C, ce qui correspond au mode de fumage semi-chaud. La préparation des produits pour un tel fumage est de courte durée et leur durée de conservation est d'environ trois jours.


La conception d'un mini fumoir est simple: une boîte avec un couvercle, équipée d'une lèchefrite et de grilles. Les copeaux sont versés sur le fond; lorsque le fumoir est placé sur un feu, il commence à se consumer. La fumée remplit la chambre et les aliments sont cuits rapidement. Le couvercle, si vous le souhaitez, peut être équipé d'un joint hydraulique et d'une sortie de fumée de petit diamètre, comme sur la photo.
Matériau de fabrication - tôle d'acier, de préférence inoxydable... L'épaisseur doit être telle que, lorsqu'elle est chauffée, elle n'enlève pas les parois du fumoir, sinon, en raison d'un chauffage inégal, elle se déforme. Acier noir généralement utilisé de 2-3 mm d'épaisseur, acier inoxydable - à partir de 1,5 mm. Dans tous les cas, les grilles doivent avoir un revêtement en acier inoxydable.
Vidéo: comment faire un mini-fumoir de vos propres mains.
Produits à fumer
Il existe deux types de produits à fumer:
- du froid;
- plus chaud.
Fumer à froid
Si le produit est traité à l'aide d'une "fumigation" avec de la fumée réfrigérée et en même temps n'est pas soumis à un traitement thermique, alors ce processus est appelé fumage à froid. Le traitement de la fumée est effectué pendant plusieurs jours et sa température est de 20 à 25 degrés.
Les produits fumés à froid sont stockés pendant une longue période, mais en raison de la longueur du processus technologique cette méthode est moins utilisée
que le tabagisme à chaud.
Fumer à chaud
La fumée utilisée dans la méthode chaude de traitement des aliments atteint une température de 45 à 120 degrés et après quelques heures, vous pouvez manger un plat délicieux.
- Le fumage à chaud utilisant la technologie de cuisson de la viande ou du poisson est similaire aux processus qui se produisent lors de la friture, de l'ébullition ou de la cuisson des produits.
- Le fumage à chaud est tout à fait réalisable à la maison, en randonnée ou à la campagne.
Bois de chauffage et copeaux: comment choisir le bon
La clé du goût des viandes fumées est le bois de chauffage correctement sélectionné... On sait que la fumée de différents types de bois a une saveur complètement différente. Dans ce cas, le moyen le plus simple est d'utiliser les puces achetées en choisissant celle qui convient à chaque type de produit:
- aulne - universel, adapté à la viande, au saindoux, au poisson et aux légumes;
- chêne - principalement pour fumer le gibier et la viande rouge;
- saule, bouleau - le gibier avec un goût spécifique, par exemple le wapiti ou l'ours, ainsi que le poisson des marais;
- cerise, pommier - fromages, légumes, fruits à coque et baies.
La teneur en humidité du bois de chauffage et des copeaux de bois doit être inférieure à 15%, sinon trop de vapeur se formera et les viandes fumées seront mouillées, après quoi elles seront mal stockées.
Les coûts de fabrication d'un fumoir sont insignifiants; vous pouvez utiliser des matériaux improvisés et des restes. Un fumoir fait à la main et un mode de fumage correctement sélectionné vous permettront de préparer de délicieuses spécialités uniques à votre goût et de surprendre votre famille et vos invités.
Variétés de fumeurs pour fumer à chaud
Actuellement sur le marché, vous pouvez trouver des options adaptées pour un fumoir domestique, extérieur ou professionnel. Ça peut être:
- fumoir à domicile;
- fumoir domestique;
- fumoirs de camping de diverses modifications.
Afin de choisir le bon fumoir domestique, vous devez savoir à quelles exigences il doit répondre:
- Le fumoir utilisé dans les locaux d'habitation ne doit pas fumer. Vous ne pouvez acheter qu'une version domestique basée sur le chauffage externe, mais ne laissant pas sortir de fumée. Dans ce cas, les copeaux de bois couvent sans accès d'air. Un contenant où un produit maison est directement fumé, doit être scellé
avec un joint d'eau. - En fumant, il est recommandé d'utiliser des copeaux de bois secs. Fumer avec des copeaux de bois imbibés ne donne pas le résultat escompté.
- Le fumoir idéal est celui dans lequel les copeaux sont isolés du produit lui-même. Cette exigence est une conséquence de la technologie du processus de fumage, dans lequel la graisse et le jus formés à la suite du traitement thermique peuvent se retrouver sur les copeaux. Dans ce cas, la fumée est saturée non pas de l'arôme du bois, mais de l'odeur des composants de la combustion des graisses.
Ainsi, la version domestique du dispositif de fumage à chaud a la portabilité et les fonctionnalités nécessaires, ainsi qu'un principe de fonctionnement autonome.
Fumoir pour four à gaz
Aujourd'hui, sur le marché, il existe un certain nombre de modèles de fumoirs de haute qualité utilisant un appareil à gaz tel qu'une cuisinière. Pour tous les modèles présentés, le tabagisme se fait sans interférence externe. Ici la cheminée est une hotte aspirante
, et le poêle est le foyer.
Un fumoir installé sur un appareil à gaz possède les données techniques suivantes:
- matériau - acier inoxydable à haute résistance. Différents modèles ont des dimensions différentes et diffèrent par l'épaisseur de la paroi;
- haute étanchéité;
- est complété par un couvercle, des grilles, des plateaux pour la graisse, des briquettes (avec un sac pour leur transfert). Les appareils équipés d'un joint étanche à l'eau sont populaires.
Le consommateur doit savoir que l'appareil dans la version avec joint étanche à l'eau, pour un fonctionnement normal, nécessitera que le tuyau soit conduit dans le trou de ventilation (éventuellement à travers une fenêtre).
Pour effectuer le fumage des produits, le fumeur est installé sur une cuisinière à gaz. Ensuite, de l'eau est versée dans le joint hydraulique. Après cela, un signet de produits à fumer est créé. La présence d'un joint d'eau exclut la pénétration de fumée ou d'odeur dans la pièce
, qui est l'avantage de l'appareil.
Le fumoir du four à gaz ne commencera à fumer qu'après que le brûleur à gaz aura chauffé le fond et que les copeaux commenceront à brûler lentement. La température requise dans le boîtier de l'appareil est réglée en régulant l'alimentation en gaz. Le poêle doit être allumé jusqu'à ce que le travail soit terminé.
Le fumeur «intelligent» effectue tout le processus de fumage à domicile indépendamment, sans votre intervention. En outre, il garantit le respect de l'environnement et l'économie
dans la consommation de la source d'énergie consommée.
Vous pouvez mettre en œuvre indépendamment un projet de fumoir domestique très simple en utilisant une cuisinière à gaz et une hotte.
Séquençage:
- attacher les produits à fumer à la base de la cagoule;
- mettre un plat (plateau) en dessous pour faire couler la graisse;
- utilisez un pot, par exemple, à partir de pâte de tomate, comme récipient pour les chips. Un tas de copeaux de bois doit être posé sur le fond et le brûleur de la plus petite puissance doit être allumé;
- allumez la hotte et augmentez progressivement la chaleur. Lorsque les copeaux de bois fument, réduisez progressivement la flamme.
Le fumage à chaud du produit avec cette méthode est dû au fait que la distance parcourue par la fumée jusqu'au produit brut est suffisante pour le refroidir à la température souhaitée. Avec la bonne technologie fumer exclut l'allumage
des copeaux de chauffage et des morceaux de bois de même taille vous permettent d'obtenir des produits fumés uniformément de tous les côtés.
Des informations plus complètes sur le thème d'un fumoir fait à la main et une photo de son exécution étape par étape peuvent être trouvées sur Internet, si vous le souhaitez.
Incinérateur à cuisinière
Souvent, les ordures dans le pays deviennent le problème numéro un.La plupart des résidents d'été essaient de brûler les ordures et d'utiliser les cendres comme engrais. Mais il n'est pas toujours pratique de brûler les ordures à l'aide d'un feu: soit le vent transporte les cendres brûlantes, maintenant il est humide autour, puis les plantes près du feu se fanent. Tous ces problèmes disparaissent avec l'utilisation d'un incinérateur.
À transformer un vieux poêle en incinérateur
, il est nécessaire de démonter tous les brûleurs, canalisations, isolation thermique, raccords en plastique. Le verre de la porte doit être remplacé par une feuille de métal. Un genou avec un tuyau est coupé dans la paroi arrière du four et une grille est assemblée sous le four à partir d'une grille et de briques. À la suite de ces transformations simples, on obtient
un incinérateur petit mais sûr, sur lequel vous pouvez même chauffer quelque chose pendant la combustion des ordures
, par exemple, de l'eau pour laver la vaisselle ou laver.
Fumoir d'un seau, casserole, lait peut
Pour un tel fumoir fait maison, une conception plus complexe est nécessaire; un seul feu ne suffit plus. Mais tout de même, des moyens improvisés seront utilisés, tout ce qui se trouve habituellement dans le pays.
Faire un seau à fumer ne devrait pas prendre longtemps.


Nous prenons un vieux seau (non galvanisé), vous pouvez même en avoir un qui fuit. Le seau doit avoir un fond (vous n'avez pas besoin de le couper), nous y verserons de la sciure de bois. À une distance de 3 à 4 centimètres au-dessus du fond, vous devez placer un plateau pour recueillir la graisse qui coule - elle ne doit pas couler sur la sciure couvante, car elle peut prendre feu. Pour une telle palette, nous utilisons simplement un bol ou un bassin. Il n'est pas souhaitable de le placer directement sur la sciure de bois, il est donc préférable de faire une grille avec des jambes, qui sera placée au fond du seau, et déjà sur cette grille, il sera possible de mettre un bol.
Placez les grilles alimentaires au-dessus de la palette. L'option la plus simple et unique si vous n'avez vraiment pas le temps de déconner est juste des bâtons coupés au diamètre du seau, comme sur deux de ces photos. Une option plus soignée consiste à percer des trous dans le godet et à insérer des fils. Une option encore plus correcte consiste à insérer des boulons dans les trous percés autour de la circonférence du seau, à les fixer avec des écrous, de sorte que les tiges des boulons dépassent dans le seau. Sur ces butées, vous pouvez poser un treillis métallique sur le dessus, par exemple, un morceau de treillis "chain-link". N'oubliez pas que la grille doit être amovible, sinon le bac à graisse ne sera pas atteint.


À propos, exactement la même grille peut être abaissée, au-dessus de la sciure elle-même - afin d'y placer un plateau pour la graisse.
Enfin, une couverture est nécessaire. Les experts conseillent que le couvercle ne se ferme pas hermétiquement et que l'air pénètre un peu à l'intérieur. Juste un peu, sinon la sciure à l'intérieur pourrait prendre feu.
Un simple fumoir fait maison est prêt. Comment utiliser:
- on verse de la sciure ou des copeaux d'arbres feuillus au fond du seau,
- mettre un plateau pour la graisse sur le dessus,
- nous installons le gril,
- mettre les aliments préparés sur la grille,
- fermer avec un couvercle,
- nous mettons tout en feu, par exemple, sur des briques au coin du feu.
Fumoir à faire soi-même
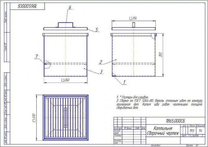
Êtes-vous convaincu que la construction de fumeurs à domicile est simple? Ensuite, vous pouvez essayer de fabriquer vous-même un appareil similaire et économiser un montant décent. Le moyen le plus simple est de souder une boîte de fumoir avec un joint d'étanchéité à l'eau. Pour une valise de 30x30x60 cm, les matériaux suivants seront nécessaires:
- 1,5 carré de tôle d'acier 1,8-2 mm et 0,2 m2 "un";
- 10 m de fil d'acier inoxydable d'un diamètre de 0,3 à 0,5 mm;
- Tuyau s 2,5 mm et d 40 mm (vous pouvez trouver un morceau d'acier inoxydable approprié - 10-15 cm suffisent);
- 2 mètres de canal 3x3 cm - pour un joint d'eau.


Parmi les outils, vous aurez respectivement besoin: d'un onduleur, d'une perceuse et d'une meuleuse.
Un corps rectangulaire doit être constitué d'une tôle d'acier épaisse et soudé le long du contour supérieur avec un canal pour obtenir une rainure d'étanchéité solide. Pendant le fonctionnement du fumoir, il ne permettra pas à l'odeur et à la fumée de se répandre dans la cuisine.
Le couvercle est soudé aux dimensions du contour du canal de sorte que ses bords tombent strictement au centre de la rainure.Les côtés sont soudés avec une hauteur de 20-30 mm et ce n'est pas effrayant s'ils n'atteignent pas le bas du boulon. Dans la partie supérieure du couvercle, vous devrez également percer un trou pour la sortie de fumée et y souder un tuyau en abaissant son extrémité de 10 mm vers l'intérieur. Dès la coupe, il vaut la peine de chanfreiner à un angle - cela facilitera la mise en place du tuyau de vidange sur le tuyau de dérivation. Et n'oubliez pas de faire quelques poignées pour pouvoir retirer facilement le couvercle du fumoir.
Si vous voulez tout faire à fond, préparez un autre trou dans le couvercle - pour la sonde de température.
Nous collectons la palette et la grille
Pour le dispositif de fumage à chaud, vous aurez besoin d'un plateau supplémentaire pour collecter la graisse dégoulinante - il s'agit d'une plaque à pâtisserie ordinaire légèrement plus petite que la chambre principale. Ajustez simplement les dimensions afin qu'il puisse être soigneusement retiré du fumoir sans renverser le contenu. Du bas à la palette, vous devrez souder 4 pieds de la même hauteur (80-100 mm) - assurez-vous de vérifier la plaque à pâtisserie finie avec un niveau, sinon, avec une grande quantité de graisse, tout se déversera depuis une surface inclinée.


Il ne reste plus qu'à faire une grille à partir d'un fil rigide pour la mise en page des produits. Si vous le souhaitez, il peut être combiné avec une palette afin de retirer toute la structure du fumoir. Pour cela, vous aurez besoin de:
- Percez des trous dans la feuille et passez les supports verticaux du treillis à travers eux.
- Fixez les tiges au verso - en soudant, ou mieux avec des écrous, après avoir préalablement coupé les filets aux extrémités avec une matrice.
Si la grille n'a pas son propre support, elle peut être posée sur les coins soudés à l'intérieur du corps. Mais c'est une perte de temps et d'efforts, et il est facile de brûler accidentellement une feuille mince par soudage. Lors de la fabrication et de l'installation de la grille, respectez les distances suivantes:
- 50 mm - du bac de récupération des graisses;
- 80 mm - du bord du fumoir;
- 60-80 mm - entre les niveaux de la grille à plusieurs niveaux.
Une autre option de montage simple, mais un peu barbare: percez des trous appariés sur les côtés opposés du boîtier et insérez à travers les broches le même fil épais à travers eux. Après cela, il vous suffit de préparer quelques crochets métalliques et de les accrocher sur les traverses résultantes. Ensuite, les produits ne peuvent pas être disposés, mais accrochés, mais ce n'est pas pour tout le monde.
Fumoir-brasero
Un design polyvalent qui combine deux fonctions. Vous devrez travailler dur sur la fabrication d'un tel appareil, c'est plus de travail pour un soudeur expérimenté.


Ce n'est qu'une des options. Comme vous pouvez le voir sur la figure, l'appareil se compose d'un brasier ou d'un brasier conventionnel et d'une chambre de fumage verticale. Le brasier peut être fermé avec un couvercle, et donc utilisé comme cheminée pour le mode fumage.
Le fumoir est équipé d'une porte pour un accès facile à l'intérieur. Dans la partie inférieure, il y a un plateau pour recueillir la graisse, dans la partie supérieure, il y a des barres pour suspendre les aliments.


De telles unités combinées peuvent être fabriquées à la fois en tôle de fer et en bouteilles de gaz. Parfois, selon l'imagination du maître, ils ne sont qu'une œuvre d'art du parc et décorent les chalets d'été!
Plus de détails sur ces conceptions universelles peuvent être trouvés dans un article séparé.
Spécificités et types de tabagisme
Tous les fumoirs à domicile se répartissent en deux catégories principales:
- Fumé à chaud. Les dimensions de ces appareils sont petites. Au sein de ces modifications, le taux de fumage des produits est plus élevé. La raison: ils sont affectés par la fumée et des températures de 60 à 140 ° C. Vous pouvez conserver les viandes fumées créées dans de tels appareils pendant un maximum de cinq jours. Si votre famille est petite, vous devriez acheter un petit fumoir
- Fumé à froid. Dans ces versions, les paramètres de température sont bien inférieurs. Et les experts ne leur conseillent pas de développer plus de 40 ° C. Cela peut prendre très longtemps pour atteindre les objectifs souhaités - jusqu'à trois jours (par analogie avec les versions fumées à chaud). Mais les produits qui en résultent peuvent être stockés beaucoup plus longtemps. Les paramètres de ces modèles sont beaucoup plus grands.Raison: les produits doivent se concentrer sur des positions plus éloignées des copeaux qui couvent. Certes, la nourriture peut également être placée sur toute la masse de l'unité, c'est-à-dire dans des volumes très décents.


