Le système de chauffage est sous une forme ou une autre, mais il est présent dans chaque maison. Si auparavant il était basé sur un poêle, il a aujourd'hui été remplacé presque partout par des appareils spéciaux - des appareils de chauffage.
Mais si la plupart d'entre eux ont des conceptions similaires, le schéma de la chaudière à pyrolyse en diffère beaucoup. Cela est dû aux travaux sur différents types de carburant.
Cependant, la façon dont il est brûlé peut également être différente. Pour vous en assurer, considérez en détail le dispositif de la chaudière à pyrolyse, son principe de fonctionnement et le schéma de raccordement.
Nouveau dans le chauffage au bois
Le fait que le fonctionnement de tout poêle domestique et de nombreux appareils de chauffage modernes repose sur la combustion de combustible, avec l'apport obligatoire d'air enrichi en oxygène, est connu de tous. Mais les modèles modernes de chaudières à gaz ont fondamentalement rayé ce principe.
Leur fonctionnement nécessite une température élevée avec un manque d'oxygène, ce qui signifie que la conception de la chaudière à pyrolyse est fondamentalement différente des autres modèles. Que devient le bois dans ce cas ?
Sous l'influence de la température élevée, ils se décomposent en composants:
- Résidus solides (charbon)
- Gaz de pyrolyse
- Résine
- Alcool méthylique
Toutes les substances obtenues sont inflammables et sont brûlées pendant le fonctionnement de l'appareil, tandis que plus le bois est chauffé, plus le gaz obtenu à la sortie sera important. Et le fonctionnement de l'appareil est basé sur sa combustion, pour laquelle ils sont souvent appelés générateurs de gaz.
Pour comprendre comment ce processus se déroule, nous examinerons la conception des chaudières à pyrolyse et les fonctions remplies par chacune des unités.
Fonctionnement d'une chaudière à pyrolyse

Le principe de fonctionnement d'une chaudière à pyrolyse repose sur la décomposition thermique du combustible solide en composants chimiques :
- carbone;
- gaz de pyrolyse.
Le processus de génération de gaz de pyrolyse combustible à partir du bois et d'autres types de combustibles solides est possible à des températures élevées comprises entre 200 et 8 000, dans des conditions de manque d'oxygène et de postcombustion subséquente du gaz libéré, qui est mélangé à de l'air chauffé secondaire postcombustion. Dans le processus de combustion par pyrolyse, les fumées à la sortie de la chaudière contiennent principalement du dioxyde de carbone et de la vapeur d'eau, la quantité d'impuretés nocives est minimisée.
Schéma d'appareil classique


Les principaux éléments de la chaudière à pyrolyse :
- Chambres de postcombustion et de gazéification
- Conduits d'alimentation en air
- Échangeur de chaleur à eau
- Grille
- Cheminée
- Capteurs de température et de pression
- Ventilateur ou extracteur de fumée
Cependant, afin d'avoir une bonne idée de l'ensemble du processus de fonctionnement de l'unité de chauffage, nous examinerons le dispositif des chaudières à pyrolyse et nous familiariserons avec le but de chacune des unités qui y sont incluses.
Pour commencer, tout appareil de chauffage est conçu pour chauffer l'eau à la température requise et la fournir au système. Un échangeur de chaleur à eau est utilisé à cet effet. Le liquide de refroidissement y pénètre par la conduite de retour, se réchauffe et revient par la conduite d'alimentation.
La chambre de combustion est utilisée pour la combustion du carburant et sa décomposition en cas de manque d'air primaire. Le montant de ce dernier est régulé par un thermostat indépendant.
Le compartiment de post-combustion est nécessaire à l'oxydation du gaz de pyrolyse lors de l'interaction avec l'air secondaire et la collecte des cendres. Le raccordement des fumées et la cheminée sont nécessaires à l'émission de fumées dans l'atmosphère.
Schéma de fonctionnement du Pyroboiler


Le schéma d'une chaudière à pyrolyse comprend la séquence des processus suivants:
- chargement du combustible dans le four de la chaudière, allumage;
- après que le carburant s'est enflammé, le volet est fermé, le processus de combustion se transforme progressivement en une étape de combustion lente;
- par le canal primaire, de l'air extérieur est fourni à la chambre de chargement, dont une partie est utilisée pour maintenir le processus de combustion lente et atteindre la température de gazéification requise ;
- les gaz de pyrolyse pénètrent dans la chambre de combustion par la grille ;
- pour assurer le processus de combustion des gaz de pyrolyse, de l'air est fourni à la postcombustion par le canal secondaire ;
- les produits volatils brûlent en dégageant une certaine quantité de chaleur dont une partie est dirigée sous la grille et sert à entretenir la pyrolyse, la seconde va directement au chauffage de la chaudière ;
- les déchets de combustion passent à travers un échangeur de chaleur à eau et sont évacués dans la cheminée ;
- le maintien de la température de combustion optimale est soutenu par un système de contrôle thermique.
Des informations supplémentaires sur le fonctionnement de la chaudière à pyrolyse sont disponibles dans la vidéo
Fonctionnement phasé de la chaudière de pyrolyse


Afin d'avoir l'idée la plus complète des caractéristiques de conception de l'appareil et du principe de son fonctionnement, considérons le dispositif de la chaudière à pyrolyse et ses schémas de connexion sur la photo ci-dessous.
Les chambres sont situées l'une au-dessus de l'autre et sont séparées par une grille. Initialement, le bois de chauffage est chargé dans la partie supérieure, qui est un bunker à combustible, et incendié.
Après avoir fermé la porte et démarré l'extracteur de fumée ou le ventilateur, le bois est séché. De plus, lorsque la température atteint 200 degrés ou plus et qu'il y a un manque d'oxygène dans la chambre, la décomposition en un résidu solide et du gaz de bois se produit - c'est le processus de pyrolyse.
Le compartiment inférieur ou chambre de combustion sert à brûler les gaz de pyrolyse et à récupérer les cendres restantes après combustion. Dans celui-ci, de l'air secondaire est ajouté aux substances volatiles libérées et une combustion de gaz se produit, et une partie de la chaleur retourne à la couche inférieure du bois de chauffage, augmentant la température et maintenant le processus de pyrolyse.
Dans ce cas, la puissance de la chaudière est régulée en pressurisant l'air secondaire à travers les canaux utilisés pour son alimentation.
Au stade suivant, la chaleur obtenue lors de la réaction est utilisée pour chauffer de l'eau dans un échangeur de chaleur, qui entre ensuite dans le système de chauffage.
Modes de fonctionnement de la chaudière du générateur de gaz
Toutes les chaudières à pyrolyse prévoient un fonctionnement en trois modes :
Un chargement supplémentaire de combustible doit être effectué à un rythme rapide afin d'éviter de remplir l'air de monoxyde de carbone et de pertes de chaleur.
Schéma de câblage en détail
Il ne suffit pas d'acheter un appareil de chauffage, il est également nécessaire de l'installer correctement et de le connecter au système.
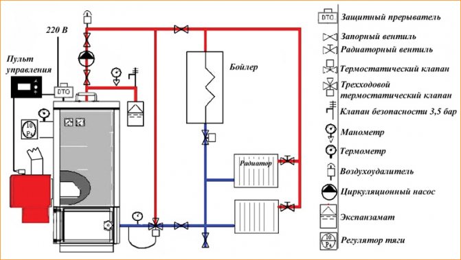
Le raccordement de la chaudière à pyrolyse peut se faire de plusieurs manières :
- Simple
- Avec contour de mélange
- Avec une flèche hydraulique
- Avec ballon de stockage et circuit ECS


Le premier, en plus de l'appareil lui-même, comprend : une pompe de circulation, un vase d'expansion et un groupe de sécurité. Avec une telle connexion, une petite quantité de condensation peut se produire, mais l'unité de contrôle réagit à son accumulation. Dans ce cas, il coupe l'alimentation électrique de la pompe et évite ainsi la formation d'une grande quantité de condensation.
Le deuxième schéma de connexion d'une chaudière à pyrolyse, en plus des nœuds énumérés précédemment, comprend également un circuit de mélange et des robinets nécessaires pour régler la quantité de liquide de refroidissement. C'est un peu mieux qu'un simple et élimine complètement la formation de condensat sur les parois de la chaudière.
Le troisième est le plus souvent utilisé pour les systèmes à plusieurs circuits de chauffage et contient une flèche hydraulique. Son rôle principal est d'exclure l'effet hydraulique des pompes entre elles. Mais il est également capable de dégazer le système de chauffage.
Et le dernier est le schéma de fonctionnement de la chaudière à pyrolyse avec Laddomat 21. Il comprend un ballon d'accumulation et un circuit d'eau chaude dont le fonctionnement idéal est assuré par une unité supplémentaire. La sélection du volume du conteneur est effectuée selon les indicateurs suivants: pas moins de 25 litres pour 1 kW de puissance.
Ce circuit, grâce à la présence du bloc Laddomat 21, est capable de remplacer le schéma électrique classique, constitué d'éléments séparés. Il fonctionne dans le mode suivant. L'eau est chauffée à la valeur de consigne en ajustant son débit du réservoir de stockage à l'aide de la vanne thermostatique. Il augmente ou diminue la section transversale de la conduite de retour et affecte ainsi l'atteinte des paramètres spécifiés par le liquide de refroidissement.
De plus, la présence d'un ballon de stockage dans celui-ci permet à la chaudière de fonctionner en mode optimal. Et en cas de coupure de courant brutale, il permet de maintenir la température du liquide de refroidissement à un niveau donné pendant deux jours.
L'efficacité du circuit ECS est obtenue en utilisant l'énergie de la chaudière. Obtenir de l'eau chaude pour les besoins ménagers est possible grâce à la libération d'une partie de sa chaleur par le liquide de refroidissement à travers les parois du réservoir.
Quel schéma de connexion d'une chaudière à pyrolyse, parmi ceux discutés ci-dessus, sera optimal, dépend des spécificités du système de chauffage et en partie de la disponibilité d'une somme d'argent gratuite.
Mais dans tous les cas, ils doivent remplir les conditions suivantes :
- Répondre aux exigences de sécurité
- Assurer une bonne circulation du liquide de refroidissement dans le système
Et n'oubliez pas que plus la tuyauterie de la chaudière est équipée, plus elle sera économique en fonctionnement et plus pratique à utiliser et à entretenir.
Fabrication de tambour de chaudière
Pour assembler une chaudière à pyrolyse de vos propres mains, il est recommandé d'utiliser des matériaux en acier de 4 mm d'épaisseur. Mais afin d'économiser de l'argent pour le tubage de la structure, métal de 3 mm.
- Prenez 2 tuyaux dont le diamètre doit être respectivement de 1500 et 1300 mm. Le plus petit tuyau est encastré à l'intérieur de l'analogue plus large et est relié à ce dernier par un anneau, qui est également fabriqué à la main à partir d'une garniture d'angle de 2,5x2,5 cm.
- Un cercle d'un diamètre de 450 mm est découpé dans de l'acier et soudé au fond du tube intérieur. On obtient ainsi un fût soudé sur le circuit de chauffe-eau, d'une largeur de 25 mm.
- Couper à partir de l'extrémité inférieure du fût trou rectangulaire 150 mm de largeur et 80 mm de hauteur. Le trou résultant sera la porte du cendrier. Ensuite, le cendrier est soudé et la porte est montée, qui est équipée de charnières et d'un loquet en métal.
- Un trou rectangulaire est découpé en haut de la chemise d'eau, dans lequel le carburant sera chargé plus tard. La porte de chargement est soudée, une porte est équipée, qui est également équipée de charnières métalliques et d'un loquet.Il est préférable d'utiliser une double porte dans une cavité vide, avec laquelle insérer un joint en matériau amiante. Cela réduit considérablement les pertes de chaleur.
- Également sur le dessus de la chaudière de pyrolyse soudure sur la sortie, conçu pour évacuer les gaz d'échappement dans le conduit de cheminée.
- Dans les parties supérieure et inférieure de la chemise, des buses de 4 à 4,5 cm de diamètre sont soudées, avec des fils aux extrémités, destinées à connecter la chaudière au système de chauffage.
- Tous les joints soudés sont soigneusement moussés et leur étanchéité est vérifiée. Ensuite, la chemise de la chaudière est pressée sous une pression d'au moins 2 à 2,5 kg par cm carré. Si des défauts sont détectés, ils sont éliminés à l'aide d'une machine à souder.
Je voudrais noter qu'une chaudière à combustible solide à pyrolyse avec un système de chauffage à air, et non une conception standard avec un liquide de refroidissement à eau, est combinée avec succès. Dans une telle situation, l'air est transféré à travers des tuyaux, et il est renvoyé au système par le sol. Un tel chauffage ne gèle pas par temps froid, si la chaudière est au repos et, par conséquent, il n'est pas nécessaire de vidanger le liquide de refroidissement en cas de départ des propriétaires.
Quel est l'appareil de chauffage le plus économique ?
Toutes les chaudières sont utilisées pour chauffer des locaux résidentiels ou industriels et sont divisées en trois types:
- Gaz
- Électro
- Combustible solide, longue combustion
Chacun d'eux fonctionne avec un certain type de carburant et a ses propres avantages et inconvénients. Mais comment choisir l'échantillon le plus fiable et le plus rentable économiquement ? Pour répondre à cette question, il est nécessaire de considérer chacun des modèles produits et, après avoir comparé le dispositif de la chaudière à pyrolyse lui-même et d'autres types, choisir celui qui convient aux conditions spécifiques.
Les plus courants sont le gaz
Commençons par les équipements à gaz, car ce type de carburant est considéré comme l'un des moins chers et, compte tenu des conditions climatiques russes, sa consommation en hiver sera importante. Les appareils de ce type sur le marché sont représentés par divers fabricants et une large gamme de modèles, il y a donc beaucoup de choix.
Cependant, il faut garder à l'esprit que les appareils à gaz diffèrent par:
- Méthode d'installation (sol ou mur)
- Fonctionnalité (avec un ou deux circuits - pour le chauffage et l'eau chaude sanitaire)
- Types de brûleurs (allumage électrique ou piézo)
- Élimination des produits de combustion (à tirage naturel ou forcé)


Ils ont des différences de puissance et la surface de la pièce chauffée dépend directement de sa valeur. Habituellement, pour le calcul, des données moyennes sont prises, à savoir qu'il faut 1 kW de puissance pour 10 m² avec une hauteur sous plafond ne dépassant pas 3 mètres.
Les avantages des équipements à gaz incluent le fait que pour les appareils à tirage forcé, l'équipement d'une cheminée classique n'est pas requis. Il utilise généralement un tuyau coaxial fourni avec la chaudière.
Mais les modèles à gaz ont aussi des inconvénients. Le plus important d'entre eux est la capacité de fonctionner avec un seul type de carburant et, par conséquent, la possibilité d'utiliser un tel équipement n'est disponible que dans les colonies gazéifiées.
L'électrique est le plus simple et le plus pratique


Suivant sur notre liste sont les appareils électriques. Et bien que ce type d'équipement soit considéré comme l'un des plus coûteux à exploiter en raison du coût élevé de l'électricité, vous ne devez pas l'abandonner complètement.
Les modèles électriques présentent certains avantages par rapport aux autres modèles.
Premièrement, ils sont irremplaçables dans les agglomérations suburbaines, auxquelles la conduite de gaz n'est pas raccordée.
Deuxièmement, ils sont moins chers que les modèles à combustible liquide ou solide et sont très faciles à installer, ce qui signifie qu'ils ne nécessiteront pas de coûts supplémentaires, à l'exception de leur propre coût.
Troisièmement, ils peuvent être installés dans n'importe quelle pièce, ont des dimensions et un poids réduits et surpassent les autres types d'équipement dans ces indicateurs.
Leur conception est très simple et comprend :
- Bloc de contrôle
- Échangeur de chaleur (constitué d'un réservoir et d'éléments chauffants)


Grâce à cela, ils sont très faciles à utiliser, ne nécessitent pas d'entretien préventif ni de nettoyage. Mais leur avantage le plus important est le respect de l'environnement.
Ils ne brûlent pas d'oxygène dans la pièce, n'émettent pas de substances nocives dans l'atmosphère et sont très faciles à régler.
Une large gamme de capacités permet l'utilisation de tels équipements non seulement pour chauffer des maisons et des appartements privés, mais également pour de grands locaux industriels, voire ceux dans lesquels d'autres chaudières sont interdites.
De plus, ils sont entièrement automatisés. Cela vous permet de spécifier la température souhaitée, qu'à l'avenir l'appareil maintiendra seul.
Progressif - pyrolyse
Les dernières sur notre liste sont les chaudières à combustible solide pour une longue durée de vie. Ils ont aussi un autre nom - les générateurs de gaz. Leur principe de fonctionnement repose sur la combustion de bois de chauffage ou de déchets de transformation du bois, et dans certains modèles, du charbon. Dans le même temps, ils ont la capacité d'utiliser le carburant aussi efficacement que possible et d'augmenter ainsi l'efficacité.


Ils peuvent être utilisés à la fois pour le chauffage des locaux et la production d'eau chaude. Les modèles modernes sont équipés d'une automatisation qui simplifie leur fonctionnement. Les avantages incluent le coût du carburant, c'est l'un des moins chers et des plus abordables de toutes les localités.
Contrairement aux modèles à gaz, ils ne nécessitent pas d'approbation pour l'installation et les surpassent également en matière de sécurité incendie, le schéma des chaudières à pyrolyse elles-mêmes est très simple et vous permet de les installer vous-même.
Mais leur avantage le plus important est l'autonomie complète. Même en l'absence de gaz et d'électricité dans la maison, ils sauront vous fournir chaleur et eau chaude.
Sécurité chaudière
Le fonctionnement de toute unité associée au gaz présente un certain nombre de dangers potentiels. Par conséquent, le respect de règles de sécurité simples est très important. Dans ce cas, ils sont peu nombreux :
- il est conseillé d'installer la chaudière dans une zone non résidentielle ;
- il doit y avoir une base en béton ou en tôle sous l'unité;
- la distance entre les murs de la chaudière et le mur de la pièce ou le meuble le plus proche doit être d'au moins 20 cm;
- une ventilation est nécessaire dans la pièce, car en cas de fuite de monoxyde de carbone, elle doit avoir une sortie;
- il est également important d'isoler la cheminée afin que la résine et l'eau ne s'y accumulent pas.
Lors de la conception d'une chaudière à pyrolyse de vos propres mains, il est important de suivre la technologie de sa fabrication et de lire correctement les dessins. Cela vous évitera des erreurs qui seront difficiles et parfois impossibles à corriger.
Une telle unité, même exécutée de sa propre main, coûtera cher, mais il est impossible d'économiser sur la qualité des matériaux. La température de fonctionnement de la chaudière est élevée, ce qui expose toutes les parties de l'unité à des charges accrues. Des matériaux de mauvaise qualité peuvent entraîner une usure rapide des chambres de la chaudière, qui coûtera cher à réparer.
En général, une unité de bricolage coûtera 20 à 30% moins cher qu'un analogue acheté dans une usine de fabrication.


Comment se passe l'installation et l'installation d'une chaudière à pyrolyse
Lors de la première étape du travail de notre personnel, un projet est développé, un devis est établi, un schéma d'installation et d'installation d'une chaudière à pyrolyse est créé. Nous prenons en compte tous les souhaits du client, étudions les caractéristiques du bâtiment, calculons les coûts des matériaux, des équipements, la quantité de travaux à réaliser. La sécurité reste une priorité absolue dans le flux de travail. Le moindre écart par rapport à l'exactitude de la procédure d'installation, de la sélection des composants, des réglages peut entraîner une défaillance ultérieure du fonctionnement de l'équipement et, par conséquent, un danger pour la santé humaine.Il est extrêmement important que l'installation et l'installation de la chaudière à pyrolyse n'aient été effectuées que par des artisans expérimentés qui assument une énorme part de responsabilité et peuvent garantir leur qualité.
Le marché moderne est riche en une variété d'appareils de chauffage. Si vous ne parvenez pas à choisir un modèle spécifique de chaudière à combustible solide, nos spécialistes peuvent résoudre vos doutes et vous donner des conseils qualifiés.
L'installation du système de chauffage comprend les étapes suivantes :
- l'installation des communications et des appareils nécessaires qui y sont inclus ;
- travaux de mise en service;
- contrôle hydraulique et vérification du fonctionnement des éléments et nœuds du réseau ;
- mise en service du système de chauffage.
À l'avenir, la société s'engage à fournir une gamme de services requis pour stabiliser le fonctionnement de la chaudière installée, en effectuant la garantie et la maintenance. Nous ferons tout le nécessaire pour que le système de chauffage vous serve longtemps et de manière fiable. Notre entreprise est intéressée par une organisation claire et efficace de son activité de travail, qui donne de bons résultats. Croyez-moi, nous sommes extrêmement heureux si les clients se souviennent de nous avec gratitude.
Avantages et inconvénients
Les caractéristiques négatives d'une chaudière à combustible solide comprennent :
- coût très élevé;
- la nécessité de préparer du bois de chauffage, qui doit être absolument sec ;
- fonctionne à partir du réseau électrique.
Malgré les inconvénients, le dispositif générateur de gaz a ses avantages. Il:
- chaleur confortable avec une chaudière à pyrolyse;
- assez facile à utiliser;
- une très petite quantité d'éléments nocifs est libérée;
- capable de travailler assez longtemps après le remplissage du carburant;
- peut être utilisé avec tout type de système d'alimentation en chaleur;
- vous pouvez complètement automatiser le processus ;
- utilisé pour l'élimination de matériaux tels que les plastiques, le caoutchouc et les polymères.
Ce type de pieu à combustible solide pour le chauffage comporte dans sa conception plusieurs sections : des compartiments pour le four, un échangeur de chaleur et une unité qui alimente en eau l'appareil.
Lors de l'assemblage vous-même d'une chaudière à pyrolyse, il est nécessaire de faire correctement un schéma et un dessin. Ensuite, utilisez-le pour assembler l'unité, qui peut être immédiatement vérifiée et utilisée plus tard dans la vie de tous les jours. Pour créer, il suffit de suivre l'étanchéité des tuyaux de chauffage qui alimentent l'eau afin d'éviter divers problèmes à l'avenir. Avec un bon assemblage d'une chaudière à combustion longue, l'équipement chauffe très rapidement à la température souhaitée, en ne passant qu'une demi-heure.


Photo du schéma de la chaudière à pyrolyse
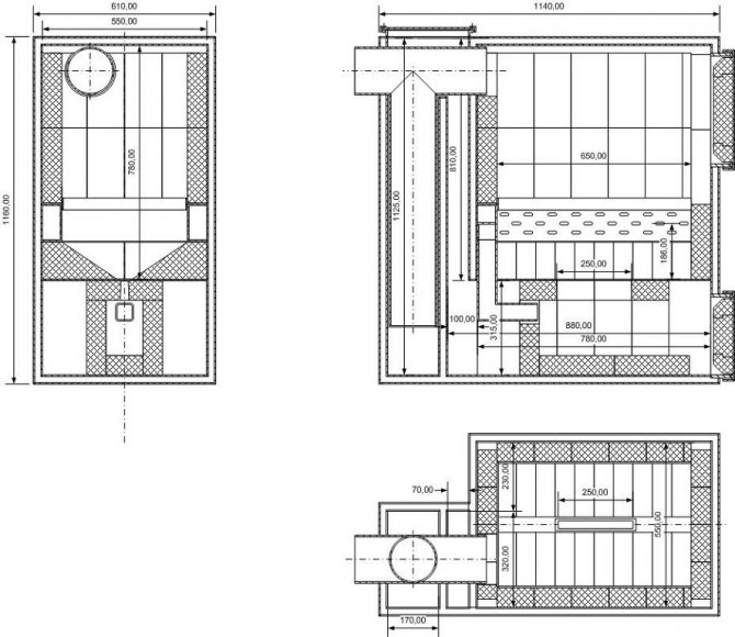
Toute machine génératrice de gaz dans sa conception contient deux chambres. Une chambre de chaudière sert à la remplir avec le combustible nécessaire, où la décomposition en résidus secs et en gaz combustible a lieu. Il passe au compartiment suivant. De l'air supplémentaire est fourni à l'intérieur de l'équipement à l'aide d'un ventilateur spécial, afin que le bois de chauffage brûle plus efficacement. La fumée générée dans ce processus est éliminée par l'aspirateur installé. Les chambres sont séparées les unes des autres par une grille en fonte.
À des températures élevées et en l'absence d'oxygène, du gaz se dégage du bois, lorsqu'il est mélangé aux flux d'air, l'échangeur de chaleur chauffe jusqu'à 1200 degrés. La chaleur est ensuite transférée au liquide de refroidissement du système. Les gaz d'échappement sortent par un conduit de cheminée spécial. La composition comprend un mélange de vapeur d'eau et de dioxyde de carbone. Il est recommandé de faire une couche de matériau dans la cheminée, qui se compose de laine minérale, recouverte d'une feuille spéciale sur le dessus. Il est fait pour que le goudron et la condensation ne se forment pas pendant le refroidissement, ce qui peut avoir un effet plutôt négatif sur le tuyau.
Toutes les sections de la chaudière à pyrolyse sont équipées d'un revêtement réfractaire en briques réfractaires. C'est elle qui crée les conditions favorables à la combustion du combustible dans une chaudière à pyrolyse.
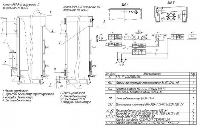
Éléments principaux
Par exemple, prenons un schéma prêt à l'emploi d'une chaudière Belyaev d'une puissance de 40 kW. Il contient les éléments principaux suivants :
- Régulateur pour le circuit chaudière.
- Porte de chargement de carburant.
- Couvercle de bac à cendres.
- Aspirateur de fumée.
- Manchon pour sonde fusible de température.
- Connexion de la ligne d'urgence.
- Ligne d'approvisionnement.
- Alimentation en eau froide de l'échangeur de chaleur de protection.
- Alimentation en eau chaude de l'échangeur de chaleur de protection.
- La ligne de retour.
- Raccord de vidange et vase d'expansion.


Bien sûr, ayant de l'expérience et des connaissances en ingénierie, vous pouvez modifier la conception de la chaudière sans aucun problème. Le schéma de raccordement de la chaudière à pyrolyse peut être modifié à votre guise. Cependant, le travail doit être effectué de manière à ne pas perturber les dimensions de la chambre intérieure.


