Dans la distribution de tous les modèles de cheminées en fonction de la façon dont ils sont placés dans la pièce, un groupe distinct est composé de cheminées d'angle. Ils sont montés le long de deux murs dans l'angle de la pièce et peuvent se présenter sous la forme d'un prisme à base triangulaire ou pentagonale. Les modèles d'angle sont installés dans de petites pièces afin de gagner de la place. Dans une grande pièce, la cheminée située dans le coin sera invisible.
Le principal avantage du modèle décrit est que la pièce est visuellement perçue comme grande et spacieuse. Le fait est que la ligne d'intersection des plans des murs (angle) détermine les dimensions de la pièce. Le corps de la cheminée cache ce coin, il y a donc une illusion d'espace accru.
Dans l'aménagement intérieur, les cheminées d'angle ne sont pas différentes des cheminées murales du même type. Parmi toutes les options, les cheminées en brique sont considérées comme les plus populaires. Les amateurs de design original se tournent de plus en plus vers les classiques lors du choix d'un foyer. Une cheminée d'angle en brique répond aux besoins des consommateurs. De plus, les travaux de construction peuvent être effectués indépendamment, de vos propres mains.

Prêt à la maison
Préparation de projet
Pour construire une cheminée d'angle de vos propres mains, vous devez élaborer une série d'instructions qui détermineront le déroulement des travaux. De telles instructions sont appelées un projet. Il comprend une description du modèle, des outils et matériaux utilisés, des dessins de la cheminée dans différents plans, ainsi qu'un schéma détaillé de la pose du corps de la cheminée.
Les projets prêts à l'emploi, développés par des artisans professionnels, vous permettent de construire une cheminée de toute complexité. Pour les utiliser, vous devez choisir l'option qui convient en apparence et en performances. De nombreuses ressources spécialisées dans les domaines de la maçonnerie des foyers et des poêles proposent des projets payants pour les commandes personnelles.


Modèle dessiné de la cheminée
L'auto-préparation comprend les calculs des principales dimensions de la cheminée. Curieusement, mais ces dimensions n'incluent pas les dimensions externes. Énumérons les exigences de base de l'appareil.
- Pour une combustion efficace du combustible et assurer l'élimination des produits, une différence de pression dans la cheminée est nécessaire. Une bonne traction est un indicateur direct de la bonne exécution de tous les travaux d'installation.
- Les fonctions de chauffage du foyer doivent fournir suffisamment de chaleur pour remplir la pièce de chaleur en moins d'une heure.
- La chaleur dégagée doit être dirigée dans la pièce et ne pas être évacuée par la cheminée vers l'extérieur.
La mise en œuvre de toutes ces exigences est possible avec une combinaison compétente des dimensions de l'insert de cheminée avec les dimensions de la pièce chauffée. Il existe des tableaux prêts à l'emploi dans lesquels les paramètres du four sont indiqués, qui, selon une certaine formule mathématique, dépendent des dimensions linéaires de la pièce. Il est nécessaire de choisir la valeur de surface la plus appropriée et d'utiliser des données tabulaires. Si cela n'est pas possible, tous les calculs devront être effectués indépendamment.


Exemple de tableau avec les dimensions des cheminées
Pour calculer les dimensions de base, vous devez vous rappeler quelques formules élémentaires. La surface du trou du four = la surface de la pièce: 50. Au sens strict, cette formule doit établir la dépendance de la surface au volume de la pièce, car la hauteur de la pièce affecte considérablement la quantité d'énergie pour le chauffage. L'option de calcul spécifiée suppose une certaine réserve de marche.
Bon à savoir: Comment construire un foyer extérieur de vos propres mains, un bref programme éducatif
Pour les dimensions spécifiques de l'ouverture de cheminée, vous devrez résoudre une équation simple et choisir la hauteur et la largeur, qui, dans un rapport fractionnaire, sont déterminées par la proportion de 2: 3. Les résultats spécifiques obtenus permettent de calculer la profondeur de la chambre de combustion, qui correspond aux 2/3 de la hauteur de l'ouverture.
Le nœud suivant à calculer est la cheminée. Ici, ce n'est pas tant sa longueur qui importe que la taille de la partie dépassant du toit du toit. Avec une distance suffisante de la crête, vous devez utiliser la règle suivante. La ligne tracée à travers la crête et le haut de la cheminée fait un angle de 10 ° avec la ligne horizontale. Naturellement, un tel principe donnera des résultats très approximatifs, car il n'est pas possible de mesurer cet angle exactement sans instruments spéciaux.
Cheminées d'angle dans la conception du salon
Publié le 22 décembre 2014
Les cheminées d'angle varient en forme, modèle, taille, matériau. Dans la société moderne, ils sont utilisés autant que possible dans les maisons et les appartements.
Les cheminées d'angle sont très technologiques, simples et confortables. Les cheminées angulaires sont compactes, prennent peu de place, idéales pour les salons d'appartements.
Cette source de «chaleur vivante» met en valeur le bon goût des propriétaires, la sophistication de l'intérieur, la valeur des traditions.


Photo: un éclairage placé symétriquement près de la cheminée ajoutera de l'originalité au design de votre salon


Materielle préparation
La phase de préparation détermine le rythme des travaux ultérieurs. Si vous vous préparez soigneusement à la construction d'une cheminée, tous les autres travaux peuvent être effectués sans distraction. En tant que matériau nécessaire à la construction d'une cheminée en brique de vos propres mains, des briques réfractaires rouges sont utilisées. Mais la chambre de combustion elle-même, où la combustion directe du bois de chauffage aura lieu, est garnie de briques en argile réfractaire. En outre, vous pouvez faire une liste de matériaux supplémentaires.


Une petite structure pour créer le confort dans la maison
- Matériau de toiture, il est nécessaire d'assurer l'imperméabilisation de la fondation.
- Treillis de renfort ou autre matériau approprié pour couler la fondation.
- Coins métalliques qui permettent un chevauchement de la chambre de combustion.
- Sable, argile, ciment ou mélange prêt à l'emploi pour la pose de fours.
- Clapet de cheminée et porte de soufflerie.
- Matériaux pour la décoration extérieure.
Pour la construction de différentes parties de la cheminée, une solution de composition différente est nécessaire. La fondation est coulée avec un mortier de ciment et de sable. La proportion de ciment ici peut varier de la moitié à un quart. La maçonnerie du foyer et du corps du foyer n'implique pas l'utilisation de ciment. L'argile et le sable dans les fractions 1 et 3, respectivement, forment une composition réfractaire. Lors de la construction d'une cheminée, du ciment et de la chaux sont ajoutés à une solution similaire.
La préparation du mortier d'argile est tout un art. Tout d'abord, vous devez choisir le bon type d'argile qui a une teneur en graisse normale. Après cela, l'argile est imbibée, broyée et mélangée avec du sable. Pour gagner du temps, il est conseillé d'utiliser un mélange prêt à l'emploi. Aujourd'hui, même les artisans professionnels ne recourent plus à l'auto-préparation de mélanges d'argile et de sable.
Bon à savoir: Quelle brique utiliser pour faire face à la cheminée, choisissez l'option appropriée
Maçonnerie de cheminée en brique
Les travaux de construction de la cheminée commencent par la pose des fondations. Une fondation séparée est posée sous la cheminée. Nous agrandissons les dimensions du sous-sol de 6 cm par rapport au sous-sol de la cheminée.
Fondation
- Creusez un trou pour la fondation 10 cm plus grand que les dimensions de la fondation finie et jusqu'à 60 cm de profondeur.
- Au fond de la fosse, remplissez la pierre concassée d'une couche allant jusqu'à 15 cm.
- Installer des coffrages en bois et traiter l'intérieur avec du bitume.
- Posez des pierres, des briques cassées et des gravats.
- Remplissez avec un mortier de ciment et de sable dans un rapport de 1: 3. La solution doit être soigneusement mélangée et uniforme.
- Nivelez la fondation complètement coulée et effectuez le contrôle horizontal.
- Couvrir le fond de teint avec du papier d'aluminium et laisser reposer pendant une semaine.
Cheminée en maçonnerie
Trois jours avant de commencer les travaux de pose de la cheminée, vous devez faire tremper l'argile en ajoutant de l'eau par petites portions afin que la solution ne soit pas trop épaisse. La qualité de la maçonnerie dépend de la qualité de la solution préparée. La pulpe d'argile finie est versée dans du sable séché lavé et soigneusement mélangée à une gelée épaisse. De petits bâtons jusqu'à 15 mm d'épaisseur sont roulés à partir du mélange fini. Avec une excellente qualité de solution, les bâtons ne se désintégreront pas et ne colleront pas aux mains.
Calibrez soigneusement les briques. Posez l'imperméabilisation sur la fondation finie, il peut s'agir d'un matériau de toiture recouvert de deux couches.
Tout est prêt pour le travail et vous pouvez commencer l'étape principale du travail.
Pour la pose de la première rangée, ajoutez jusqu'à 30% de la majeure partie du ciment Portland à la solution. L'ordre établi est conservé à côté d'eux afin de vérifier périodiquement l'exactitude du travail. Après avoir posé la rangée et vérifié le maintien de la géométrie de la structure prévue, vous devez marquer le projet. La pose d'une structure de cheminée est un travail minutieux, et un tel contrôle simplifiera grandement la tâche qui lui est confiée.
Une truelle ou une truelle est utilisée pour la pose de rangées continues. Il est préférable de poser la chambre de combustion et la boîte à fumée à la main. L'épaisseur du joint ne doit pas dépasser 5 mm. Étalez le mortier au milieu de la brique en une quantité telle qu'il ne dépasse pas les bords de la brique.
La pose du foyer, de la boîte à fumée et des conduits est réalisée avec le plus grand soin. L'excès de solution doit être éliminé
Il est très important de se rappeler que ces éléments de la cheminée à l'intérieur ne se prêtent pas au plâtre.
Pour une belle maçonnerie de haute qualité d'une voûte incurvée, vous devez installer un cercle - un coffrage temporaire. Après avoir posé la première brique au milieu de la voûte, continuez la pose dans les deux sens.
Pose de cheminée
vérifier sa verticalité. essuyer avec un chiffon imbibé d'argile liquide
Il sera beaucoup plus facile d'effectuer des travaux liés à l'installation d'une cheminée si vous utilisez des tuyaux spéciaux dans la cheminée. Il peut s'agir de cheminées constituées de tuyaux en céramique, d'acier inoxydable modulaire, de structures à parois minces en acier résistant aux acides et à la chaleur.
Installation d'éléments métalliques
Lors de l'installation de la structure de la cheminée, des raccords métalliques sont placés dans les coutures, laissant des espaces allant jusqu'à 8 mm. Il n'est pas souhaitable de poser beaucoup d'éléments métalliques dans la maçonnerie, mais vous ne pourrez pas du tout vous en passer. Une cheminée insert et une vue doivent être présentes.


Les cadres du foyer et les vannes ne sont attachés à rien, ils adhèrent parfaitement à la solution préparée. La vanne est installée à une hauteur de 2 mètres.
Finition décorative
jointoiement.
Si, néanmoins, vous souhaitez commencer à décorer la cheminée, utilisez des carreaux spéciaux lisses ou à motifs pour le revêtement qui peuvent parfaitement adhérer à la surface chaude de la cheminée.
Aujourd'hui, vous pouvez acheter des portails auprès de fabricants de cheminées fabriquées à partir de matériaux naturels de différentes qualités. Il peut s'agir de travertin, de marbre, de pierre. Les portails prêts à l'emploi pourront décorer adéquatement la cheminée que vous avez pliée et lui donner encore plus d'unicité et de beauté.
Un excellent ajout à la cheminée sera un ensemble de cheminée spécial en métal forgé non ferreux ou en fonte. Les ensembles comprennent toujours des pinces, un crochet, un balai et une pelle. Un écran beau et pratique peut protéger le tapis étendu par la cheminée de la chute accidentelle du charbon.
Fondation
Un foyer en brique doit être construit sur une fondation solide, mais même une dalle de béton installée pour les modèles en fonte ne fonctionnera pas comme telle. Ici, il est nécessaire de construire une fondation à part entière avec une fosse. Il fallait y penser même lors de la construction de la maison.Par conséquent, si vous décidez de construire une cheminée dans une maison finie, vous devrez surélever le sol pour pouvoir y travailler.


Un exemple de fond de teint bien fait
La surface de la fosse de fondation doit être légèrement plus grande que la surface du corps du foyer. La profondeur de la fosse peut varier dans la plage de profondeur de 0,50 à 0,70 m. La valeur exacte dépend de la version et du poids du modèle.
Du sable est versé au fond de la fosse et de la pierre concassée au-dessus. Pour que cette composition soit bien tassée, elle est arrosée avec de l'eau. Au-dessus des décombres, des structures métalliques sont installées, qui joueront le rôle d'élément de renforcement. La fondation est coulée en plusieurs couches. La liaison entre les couches est réalisée avec un maillage spécial. À l'aide d'un coffrage en bois, la fondation est amenée au niveau du sol. Une fois sec, il sera prêt à construire une cheminée.
Cheminée d'angle faite maison
Avant de monter une cheminée, il est nécessaire de faire un schéma de commande sur une feuille A4. La commande est une séquence claire de travail sur l'aménagement d'une cheminée. Il doit toujours être devant vos yeux, afin de ne pas vous perdre dans les rangées et de savoir clairement où poser des briques entières et à quels endroits - moitiés ou quartiers. La pose d'une cheminée d'angle est un processus de construction courant. La seule caractéristique est la création de coutures plus fines, car dans ce cas, la structure retiendra mieux la chaleur.


Même un spécialiste n'entreprendra pas l'aménagement de la cheminée sans commander
Caractéristiques de la fondation
Un foyer d'angle, comme tout poêle, doit avoir sa propre fondation, indépendante de la fondation du bâtiment résidentiel. Le croquis de la fondation est combiné avec les dessins de la chambre de combustion et du tuyau. Lors de la création d'un schéma de tuyauterie, il est nécessaire de prendre en compte son emplacement par rapport aux chevrons et poutres existants (le contact du tuyau avec les éléments structurels du toit est inacceptable).
La construction de la fondation comprend plusieurs étapes :
- Nous creusons une fosse de fondation d'environ 60 cm de profondeur.
- Nous déposons une couche de 10 centimètres de pierre concassée et la compactons.
- Nous fabriquons le coffrage à partir de panneaux de bois, le traitons avec du bitume ou le recouvrons d'une couche de matériau d'étanchéité et l'installons au fond de la fosse.
- Nous mettons de grosses pierres sur le coffrage, remplissons les espaces entre elles avec des gravats.
- Remplissez avec une couche de gravats, composée de 1 heure de ciment, 3 heures de sable et 5 heures de pierre concassée et nivelez la surface. Le niveau des gravats doit être inférieur au niveau du sol de l'épaisseur d'une brique.
- Versez de l'eau et tassez à nouveau la surface.
- Couvrir d'une pellicule plastique et laisser reposer une semaine.
Pour obtenir une résistance accrue, la fondation est renforcée avec un renfort. Une fois le temps requis écoulé, nous enlevons le coffrage et commençons à disposer la cheminée en brique selon le dessin de commande.


Un foyer d'angle, comme tout poêle, doit avoir sa propre fondation.
Pose de la base de la cheminée
La section du foyer située sous la chambre de combustion s'appelle la base. Avant de commencer sa construction, nous organisons une imperméabilisation à deux couches à partir de matériau de toiture ou de carton de toiture avec imprégnation sur le dessus de la fondation. Posez les feuilles de matériau avec un chevauchement. 72 heures avant de commencer le travail, l'argile doit être trempée, en ajoutant progressivement de l'eau à la solution d'argile et en remuant bien. Tout d'abord, nous mettons les briques sans mortier (nous les broyons) et, si nécessaire, ajustons les dimensions conformément au schéma.


Tout d'abord, nous mettons les briques pour la base de la cheminée sans mortier, c'est-à-dire que nous effectuons leur broyage
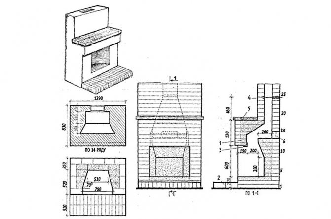
La construction d'une cheminée d'angle commence par la pose des trois premières rangées de briques, en observant leur conformité avec le module de maçonnerie. La première rangée aligne la fondation avec le niveau du sol. La taille des briques standard pour les cheminées est de 25x12x6,5 cm.La couture entre elles ne doit pas dépasser 0,5 cm.Les premières rangées, qui représentent la base fondamentale de la cheminée, sont disposées au niveau du foyer, puis les briques sont posées selon le plan avec un ordre couche par couche.
Si vous voulez rendre le foyer aussi sûr que possible, équipez le foyer d'une porte en fonte durable. Et si vous construisez une petite fenêtre en verre ignifuge dans la porte, vous pourrez alors observer les langues de flammes à travers elle.
Pendant les travaux, il est nécessaire de vérifier le plan assez souvent pour ne pas se tromper dans les caractéristiques de la maçonnerie. Vous devez également craie chaque ligne que vous mettez.


La construction d'une cheminée d'angle commence par la pose des trois premières rangées de briques
Caractéristiques de la disposition de la chambre de combustion
Après la troisième rangée, nous procédons à la construction de la chambre de combustion. Sa base est située au-dessus du sol à une hauteur d'environ 25-30 cm.Cette configuration rendra votre cheminée aussi simple d'utilisation que possible. Pour augmenter l'efficacité d'un foyer d'angle, une couche de matériau isolant thermique réfléchissant doit être posée entre celui-ci et le mur de la maison.
- A partir du quatrième rang, la construction du foyer commence. Il est présenté en entier, comme les trois premiers.
- Sur la cinquième rangée, le cendrier est disposé. En même temps, des supports pour la grille sont placés.
- La sixième rangée forme le fond et fixe les supports, et la grille est directement montée sur le lit supérieur de briques.
- Le solin inférieur de la chambre de combustion commence à partir de la septième rangée.
Dans certains schémas, le cendrier est disposé dans la troisième rangée et la grille est placée sur la quatrième rangée de blocs de briques. En conséquence, tout l'ordre est en train de changer. Lors de la pose de la cinquième rangée, les briques doivent être légèrement poussées vers l'avant, formant un chevauchement.


La base du foyer est située au-dessus du sol à une hauteur d'environ 25-30 cm
Caractéristiques de la formation du portail
Les murs de la cheminée (portail) sont disposés de la huitième à la treizième rangée. Dans ce cas, vous devez bander les coutures et mettre les coins. La paroi extérieure du portail de carburant n'est pas liée, car cela peut provoquer une déformation due à la différence de température.
Mode opératoire:
- À partir de la onzième rangée, la pose à partir du mur du fond doit être effectuée en biais, formant ce que l'on appelle un miroir. Le coin du mur du fond est nivelé par un écran métallique monté dans la maçonnerie.
- Aux quatorzième et quinzième rangées, nous continuons à panser les coutures en tenant compte du chevauchement du portail et continuons à soulever et incliner le miroir.
- Au seizième rang, nous terminons de disposer le miroir et procédons au soulèvement de la partie supérieure de la dent de cheminée avec une inclinaison de 20 degrés. Du côté de la cheminée, il doit être recouvert d'argile pour protéger de manière fiable la structure contre l'incendie. La construction de la dent de cheminée se poursuit sur deux autres rangées.
- Pour la disposition de 17 à 19 rangées (façade de cheminée), les briques sont prises avec le bord ébréché vers le haut, ou elles sont placées avec une saillie de 5-6 cm. Dans les dix-neuvième et vingtième rangées, pour rétrécir la chambre de combustion, les briques doit être poussé un peu en avant.
- L'ouverture du portail doit être fermée avec des linteaux en briques, qui sont posés le long du cercle, qui repose sur les racks pendant le fonctionnement. Si cela est prévu par la conception, une porte en fonte est installée.
- Devant la cheminée, une cheminée en briques droites est en cours de construction. Ensuite, la grille du four est installée.


Les parois de la cheminée (portail) sont formées de la huitième à la treizième rangée
Caractéristiques de la fabrication d'une cheminée
Du dix-neuvième au vingt-deuxième rang, se forme une cheminée dont les dimensions ont été déterminées plus tôt. Cette partie de la cheminée a la forme d'une cloche, à l'intérieur de laquelle se trouve un tuyau en acier qui se transforme en cheminée. Des blocs de cheminée en céramique peuvent être utilisés à la place d'un tuyau en acier.
- Les voûtes sont disposées avec des chevauchements progressifs de briques - 5 à 6 cm dans chaque rangée suivante, le mur du fond est vertical et les murs latéraux se rétrécissent à un angle de 45 à 60 °. La hauteur de cette partie de la structure doit être d'environ 5 m à partir de la surface de combustion du combustible. Pour réduire les pertes de chaleur, les parois de la cheminée doivent être assez épaisses.
- Au 22ème rang, la vanne de cheminée est en cours d'installation, dont le cadre est fixé dans la maçonnerie avec une solution liquide.
- Dans la rangée suivante, un trou de fumée en forme de queue d'aronde est formé.
- L'empilement de la boîte à fumée est terminé après la pose des 24 rangées.
- Des artisans expérimentés aménagent la cheminée à mains nues, sans utiliser d'outils. Ceci est fait pour que les petits fragments de brique et les particules étrangères qui peuvent être amenés avec la solution ne pénètrent pas à l'intérieur. Le tuyau est amené jusqu'au toit à l'aide du même mortier que celui utilisé pour former le sous-sol.
- À l'intersection de la cheminée avec le toit, une loutre et des peluches sont disposées, c'est-à-dire que la cheminée est coupée. L'espace entre celui-ci et le corps de la cheminée s'appelle un col, une vanne y est montée. En hauteur, il devrait y avoir au moins trois rangées de maçonnerie. La hauteur du duvet est de 26 à 38 cm et à l'endroit où il est disposé, le cou se dilate.
- La colonne montante est disposée sur le toit, puis un deuxième duvet est disposé, appelé loutre. Il doit dépasser le matériau de couverture supérieur d'environ 6 à 10 cm. Le tuyau au-dessus de la loutre doit être dimensionné pour correspondre à la colonne montante principale.
- L'installation de la cheminée commence par l'installation du bloc au-dessus de la cheminée. Les ouvertures du tuyau et de la cheminée sont reliées avec du mortier de ciment. Les connexions d'ancrage sont utilisées pour fixer la maçonnerie au tuyau. Ils sont insérés entre les blocs de tuyaux extérieurs et scellés dans les joints entre les blocs de briques. Il ne doit y avoir aucun espace sur les surfaces intérieures.
- La tête du tuyau est disposée avec une épaisseur d'au moins 1 brique. Pour réduire l'accumulation de condensat dans le conduit de cheminée et éviter que la structure ne prenne feu, il est nécessaire d'installer une isolation thermique et thermique.
- Un pare-étincelles conique est installé sur le dessus du tuyau (pour protéger le foyer et un immeuble d'habitation du feu) et un déflecteur à section ronde (pour augmenter la traction et protéger le tuyau du vent).
Pendant les travaux, il est nécessaire de vérifier assez souvent le plan de commande pour ne pas confondre les rangs, et également de surveiller la densité de la maçonnerie.


A l'intersection de la cheminée avec le toit, une loutre et des peluches sont disposées
Maçonnerie
Une couche de matériau de toiture est posée entre la première rangée de la base du foyer et la fondation. De plus, strictement selon le projet, dans lequel il y a une commande, la pose de la cheminée est effectuée. La commande est une instruction étape par étape qui vous permet de travailler sur la base de schémas précédemment développés qui se sont avérés positifs. Nous ne nous fixons pas la tâche de couvrir tous les projets existants, il existe d'autres ressources pour cela. Nous considérerons la version la plus simple d'une cheminée d'angle, que même un amateur de poêles peut gérer.


Commande simple
Notez que la première rangée est carrée. Disposez-le en vérifiant soigneusement la planéité du niveau. Cette condition doit être remplie. La pose des briques doit être effectuée en utilisant toutes les règles contraignantes. Avant de faire une nouvelle rangée, étalez-la sans utiliser de mortier. Cette méthode vous permettra de traiter les briques, si nécessaire, sans démonter la maçonnerie.
Bon à savoir : Installer une cheminée dans une maison en bois, les principales étapes des travaux
Il convient de présenter un commentaire sur la construction sous la forme d'une liste de types de travaux par rangées :
- 1 - la formation d'une base horizontale. Si vous ne maintenez pas le niveau, des déformations de la structure sont possibles, entraînant une violation de l'intégrité de la maçonnerie.
- 2 - l'ouverture sur le schéma est une section pour le stockage du bois de chauffage. Dans notre modèle, il joue plutôt une fonction décorative, car il s'avère assez proche.
- 3 - le chevauchement est constitué d'une tôle.
- 4 - le chevauchement avec la maçonnerie est dupliqué.
- 5 - un compartiment pour la combustion du carburant commence à se former à partir de briques en argile réfractaire.
- 6-8 - construction du foyer. La couleur montre l'utilisation de briques en argile réfractaire lors de la pose des parois du four.
- 9-13 - la formation d'une dent de fumée est observée dans le coin. Tous les autres éléments sont dupliqués.
- 14-17 - il y a un déplacement de la maçonnerie du côté avant. C'est une façon de former un manteau.
- 18-20 - l'ouverture de la cheminée pénètre dans le canal de la cheminée.
- 21-29 - canal de cheminée.
- 27 - installation du portail.
Il n'y a pas de suite sur le schéma pour la construction du tuyau de cheminée lui-même. De différentes manières de présentation, il peut être en brique ou avoir une section transversale circulaire, car un tuyau métallique est utilisé.
En assurant le passage du canal de fumée à travers le plafond, il est nécessaire de protéger la surface des effets des températures. En choisissant des combinaisons par couleur, style et, bien sûr, par objectif, vous pouvez utiliser des plaques d'amiante ou des plaques de laine minérale.


Construction prête à l'emploi
La cheminée est recouverte d'une substance isolante autour du périmètre. Une manipulation similaire doit être effectuée lorsque le tuyau est retiré à travers le toit. La tâche est compliquée par le fait qu'il est nécessaire d'assurer l'étanchéité afin que, pendant la pluie, l'eau ne pénètre pas dans le grenier. Cette tâche sera grandement simplifiée par l'utilisation de mastics modernes.
Mantel
Une cheminée d'angle est une décoration pour votre maison. Il sera toujours à l'honneur. Par conséquent, il est nécessaire qu'il fonctionne non seulement correctement et vous donne de la chaleur, mais qu'il soit également visuellement attrayant. Pour cela, il y a une finition. Mais maintenant, il y en a tellement qu'il devient difficile d'opter pour une chose. Traitons de tous ces types.
Plâtrage


Cheminée d'angle en plâtre et peint à l'intérieur
De toutes les options de revêtement existantes, le plâtre est la plus simple. En respectant les règles suivantes, vous pourrez tout faire vous-même :
- Le plâtrage ne doit être commencé que lorsque toute la structure est complètement sèche.
- Pour éviter les fissures, attendez encore un peu jusqu'à ce que le retrait se produise.
- Préparez la surface et approfondissez les coutures. Les couches de matériau de finition ne doivent pas dépasser 1 centimètre.
- Peignez la surface avec des peintures résistantes à la chaleur.
- Plâtrez uniquement sur le matériau sur lequel la maçonnerie a été posée pour une meilleure adhérence des éléments.
Tuile


Voici un dessin sans prétention obtenu à l'aide de carreaux de différentes couleurs.
Le carrelage est plus difficile, souvenez-vous-en. Et si vous n'avez pas confiance en vos capacités, faites confiance aux spécialistes.
Conseils pour le carrelage :
- Vérifiez les certificats de qualité des carreaux avant d'acheter.
- Vérifiez les instructions qui décrivent les modes d'utilisation des éléments. Souvent, les matériaux modernes ne peuvent être utilisés qu'à des températures positives et ne sont pas adaptés au gel. Ceci s'applique aux pièces avec chauffage intermittent ou vérandas ouvertes.
- Préparez correctement la base du carreau pour que sa durabilité vous plaise.
Revêtement de pierre
Une option très populaire en raison de son respect de l'environnement et de sa durabilité.


Revêtement en pierre dans le même style que l'intérieur
Comment ne pas tout gâcher:
- Faites d'abord une disposition en pierre sur le sol, ajustez toutes les dimensions pour s'adapter à votre cheminée. Et seulement après cela, attachez-le.
- L'épaisseur de toutes les pièces doit être différente. Cela donnera un aspect plus naturel à votre cheminée.
- Cirez la surface. Cela permettra de ne pas penser à la restauration, contrairement au revêtement de laque, qui remplit une fonction exclusivement décorative.
Marbre
Cette variation est considérée comme un classique du genre. En raison du fait qu'il s'agit de roche ignée, il résiste bien aux températures extrêmes. Il est durable et respectueux de l'environnement. A un grand choix de couleurs. Nécessite un bon polissage.
Le parement du marbre est un processus assez compliqué, car il est difficile de le couper en morceaux souhaités. Mais sa pose est la même que celle des tuiles. Seul l'adhésif est différent. Il existe des adhésifs spéciaux à haute résistance pour le marbre.


La finition en marbre de la cheminée lui donne une grâce particulière et un aspect riche
Brique
L'installation de briques peut être financièrement coûteuse.Cette option de revêtement est meilleure pour ceux qui ont déjà une ancienne structure qui doit être un peu restaurée.
- Ne pas utiliser d'éléments creux. Achetez des matériaux de marque auprès de M150. Idéalement, ajouter de l'argile réfractaire aux briques pour les températures élevées.
- Ne briquez pas le dessus de la cheminée. Mieux vaut utiliser un poêle.
- Le poids d'une telle structure sera très important, assurez-vous que la fondation est solide.
Bois
Cette option de revêtement n'est pas sûre lors de l'utilisation d'un feu ouvert. Par conséquent, il est préférable de gainer les cheminées électriques avec du bois, ou les soi-disant fausses cheminées.


Utiliser uniquement du bois face à une cheminée est irrationnel : il est souvent combiné avec d'autres options
- L'avantage de cette option est la large gamme de prix. Vous pouvez choisir à la fois bon marché et cher.
- Pour prolonger la durée de vie d'un bardage bois, une cheminée nécessite un entretien constant. Traitez-le avec un antiseptique spécial.
- Cette option ne convient que pour les pièces à température positive.
- Le bois massif est plus durable et plus esthétique.
Combinaison


Combinaison de bois et de tuiles
Si vous faites le revêtement de votre cheminée non pas à partir d'un seul matériau, mais de plusieurs, cela peut ajouter plus de couleur et de beauté à votre conception. Pas besoin de sculpter au hasard tout ce qui passe sous le bras. Faites-le judicieusement, réfléchissez bien et imaginez à quoi ressemblera telle ou telle combinaison.
Bardage
La décoration extérieure de la cheminée est responsable de sa perception, de sa place à l'intérieur de la pièce et du respect du style. La nécessité d'un tel travail est dictée par vos besoins et la qualité de la maçonnerie produite. Le fait est que, à condition que la maçonnerie soit soignée, dans laquelle les dimensions des joints sont les mêmes partout et les niveaux verticaux et horizontaux sont respectés, une surface avec une texture de brique naturelle semble très originale dans n'importe quel intérieur.
Si nécessaire, divers matériaux résistants à la chaleur sont utilisés pour la finition. Les plus populaires sont les carreaux de céramique, les carreaux et la pierre décorative. Ces trois variétés de matériaux sont disponibles dans une variété de couleurs et de textures.
Matériaux de revêtement pour la fabrication de cheminées
On pense que les cheminées d'angle en briques moulées, en miroir ou en carreaux sont durables, élégantes et durables. En fait, le style du modèle de cheminée n'a pas d'importance, car les éléments fédérateurs de tous les types de cheminées, sans exception, sont des grilles ou des registres, un foyer, des étagères de cheminée, un portail.
Lorsque vous choisissez un style de design de cheminée, regardez la photo à l'avance pour prendre en compte toutes les nuances de conception. Les grandes pièces spacieuses doivent simplement être exposées dans des intérieurs de styles tels que le baroque ou le rococo avec un design unique du portail de la cheminée.
Pour les petits appartements, il conviendra de concevoir dans le style du minimalisme avec une prédominance d'objets de décoration à partir de matériaux de construction modernes (par exemple, verre, acier, céramique) à l'intérieur. Il est plus rationnel d'installer un foyer bio encastrable ou un foyer électrique mural dans l'appartement. En option, vous pouvez créer un design avec une cheminée située séparément des autres éléments intérieurs.


Pour ceux qui souhaitent installer une cheminée dans le salon d'un chalet d'été ou d'une maison privée, nous recommandons de privilégier le style campagnard, qui soulignera à l'origine l'intérieur global de la pièce et créera une atmosphère ancienne et chaleureuse.
Il est accueilli à l'intérieur du salon avec une cheminée d'angle et de style Art Nouveau, car sa particularité est la combinaison de tous les détails intérieurs.
Le matériau utilisé pour la cheminée en maçonnerie à faire soi-même
Pour construire une cheminée, vous aurez besoin de: brique rouge, moellons, argile, sable, ciment et pierre concassée. Pour construire une cheminée qui peut être utilisée très longtemps, vous devez choisir soigneusement une brique - à la pièce.La brique pour cheminées doit être parfaite : pas de défauts, avoir une structure uniforme de couleur rouge orangé, une forme régulière avec des surfaces lisses et des angles droits. Chaque brique doit être vérifiée en la frappant avec un marteau - elle doit produire un son clair. Si la brique n'a pas été suffisamment traitée thermiquement, elle sera de couleur plus claire et sa fracture est de structure hétérogène. Après avoir été frappée avec un marteau, une telle brique émettra un son sourd, ce qui indique un tir de mauvaise qualité.
La brique brûlée a une couleur bleu-noir ou gris foncé ; des traces de fonte sont visibles à sa surface. Frapper une telle brique avec un marteau produira un son aigu. S'il y a des taches blanches sur la surface de la brique, elles indiquent une technologie de séchage cassée (elle est trop séchée). Le nombre de briques requis est d'environ 200 à 300 pièces (selon la taille de la cheminée et à l'exclusion de la cheminée).Les cheminées et les poêles sont disposés à l'aide d'une solution de liant composée d'argile, de ciment et de sable. Il existe une opinion selon laquelle les cheminées à bois durent le plus longtemps si vous utilisez de l'argile cambrienne (bleue) lors de leur création. Mais l'argile rouge et même ordinaire convient tout à fait. Si vous utilisez des briques réfractaires, l'argile réfractaire est nécessaire pour la maçonnerie. Vous aurez besoin de 0,2 à 0,5 m3 d'argile (selon sa teneur en matière grasse).Lorsque vous créez une cheminée de vos propres mains, vous devez prendre soin du ciment. Le ciment Portland emballé de grade 200 ou 300 est tout à fait approprié Exigence: 70-100 kg (y compris les travaux de fondation).
Ciment Portland véritable pour maçonnerie de cheminée Sable pour mortier de maçonnerie : fraction 0,2-1,5 mm, nettoyé au maximum de la saleté et des débris. Besoin : 0,7 m3 (y compris les travaux de fondation). De la pierre concassée d'une fraction de 2 à 6 cm sera nécessaire - elle sera nécessaire pour la construction de la fondation de la cheminée. Besoin : 0,2 m3. En plus des matériaux de base, vous aurez besoin de: un clapet anti-fumée (c'est aussi une vanne de poêle), une grille, des tiges de renfort (environ 15-20 pièces, d'un diamètre de 8 à 10 mm, d'une longueur de 700 mm) .
6bcc323d3a88dfb5e1dfebdd9122d511.jpe


1a89aff5580768c5db8f278b95298ffa.jpe























