Comment assembler un cadre de porte?
Le schéma d'assemblage aidera à fabriquer correctement un cadre de porte à partir d'ébauches.
- Les éléments sont disposés sur une surface plane au même niveau.
- Marquez correctement le cadre de la porte.
- Les extrémités des barres sont coupées à un angle de 45 ou 90 degrés.
- Déterminez la position des boucles et marquez-les sur un support vertical. Mesurez 200 mm du bas et du haut. Quel côté dépend de l'ouverture de la porte droite ou gauche.
- Si les charnières sont à mortaise, elles font une encoche avec un ciseau et les fixent. Les charnières supérieures sont simplement vissées en place.
- Les barres sont serrées avec des vis autotaraudeuses. La procédure est effectuée avec soin, car en exagérant un peu, vous pouvez endommager les éléments.
- Enfin, insérez le vantail de porte, alignez et vérifiez s'il y a un espace nécessaire entre celui-ci et la structure.
La boîte doit être agrandie à l'aide d'une rallonge, si la largeur du mur est supérieure à 70 mm, et les plateaux sont placés des deux côtés.

Comment scier un cadre de porte à 45 degrés?
Les éléments à section arrondie sont coupés à un angle de 45 °. Pour effectuer la coupe correcte, utilisez une boîte à onglets ou une scie à onglets avec une table rotative.


Les cadres de porte à faire soi-même peuvent être assemblés sans l'utilisation d'outils spéciaux. Dans de tels cas, vous pouvez scier l'angle souhaité sans boîte à onglets, en utilisant une règle et un rapporteur pour le marquage.
Lors de l'installation, la structure est fixée avec des vis autotaraudeuses, qui sont vissées en biais.
Assemblage de la boîte à un angle de 90 degrés
Avec cette option, l'assemblage du cadre de porte est simple et rapide.
- Il est nécessaire de scier la taille requise des crémaillères et de la barre transversale horizontale à angle droit.
- Choisissez une partie supplémentaire du vestibule.


Placez les éléments de la boîte sur le sol, alignez et fixez aux extrémités avec des vis autotaraudeuses (2 de chaque).


Pour que tous les côtés maintiennent le parallélisme, vous pouvez attacher la porte au cadre de la porte et vérifier comment elle se tiendra dans l'ouverture. La connexion du cadre de porte à 90 degrés est considérée par les spécialistes comme une technologie d'installation rapide.
Assemblage de la boîte avec un seuil
Il n'y a pas de différence significative entre l'installation de cadres de porte avec un seuil et sans celui-ci. Les seuils ont récemment perdu de leur pertinence. Mais, malgré cela, un tel système a beaucoup de fans. Ceci s'explique par le fait qu'il est plus solide et plus fiable qu'une structure sans barre transversale inférieure. De tels systèmes peuvent supporter des charges importantes et conviennent à l'installation de portes en bois massif. Les seuils sont considérés comme une condition préalable pour les salles de bains. Quel que soit le type de construction choisi, chaque personne pourra assembler le cadre de la porte intérieure.
- Préparez à l'avance des bandes verticales et horizontales.
- Couper à 45 ou 90 degrés.
- Les éléments préparés sont placés sur une surface plane.
- À leur tour, fixez les supports et les barres transversales avec des vis autotaraudeuses.


Comment installer la box?
Avant de procéder à l'installation de la structure, un outil d'installation est préparé:
- Roulette;
- Niveau laser;
- Crayon;
- Carré;
- Ciseau;
- Scie à métaux.
En plus de l'outil, des matériaux seront nécessaires, notamment de la mousse de polyuréthane et une barre pour la boîte elle-même.
Comment assembler un cadre de porte?
Pour assembler correctement la boîte, préparez une surface horizontale plane. Il est préférable d'effectuer les travaux au sol, avec un substrat mou en dessous pour éviter d'endommager les éléments de la boîte lors du montage.
Lors de l'assemblage d'une structure en MDF de vos propres mains, sciez d'abord la traverse supérieure, en fonction de la largeur de porte sélectionnée. Assurez-vous de prévoir une marge pour la libre circulation de l'ouvrant. Ensuite, tous les éléments de la boîte sont coupés.
Pour rendre le design parfaitement plat, tous les éléments à partir desquels la boîte en MDF est fabriquée sont disposés sur le sol. Tout d'abord, les éléments verticaux du sac sont placés, à côté d'eux se trouve la barre transversale supérieure. Il doit y avoir un angle droit entre la barre supérieure et les barres verticales. Tous les éléments sont posés sur le bord. Si l'angle diffère de l'angle droit dans une direction plus grande ou plus petite, l'installation d'un cadre de porte en MDF dans l'ouverture ne fonctionnera pas.
Pour éviter un déplacement accidentel des éléments les uns par rapport aux autres, de fausses bandes sont insérées dans les rainures de montage. Une fois que toutes les planches ont pris leur place, le vantail de la porte est posé. Pour qu'il y ait un espace uniforme entre le cadre et le vantail de la porte, du carton de la même épaisseur y est placé.
Une fois que la boîte a reçu la forme requise, la barre transversale supérieure est reliée aux montants. À cet effet, des vis autotaraudeuses spéciales sont utilisées, conçues pour la fixation d'éléments en bois. Lors du choix d'un point d'attache, vous devez choisir des points aussi proches que possible du centre. Deux vis suffisent pour relier deux éléments adjacents.
Conseils! Considérant que lors du processus de fixation d'éléments individuels, le MDF peut se fissurer, des trous pré-percés de petit diamètre, dans lesquels les vis sont ensuite serrées.
Après avoir assemblé la base en forme de U, la largeur de la structure est contrôlée. Après cela, l'excédent de matériau est coupé pour s'assurer que la hauteur de la structure à installer correspond. Lors de la détermination de la hauteur de la boîte, la présence ou l'absence d'un seuil est prise en compte. Après avoir coupé les poteaux verticaux de la hauteur requise, ils fixent la position spatiale des éléments de la boîte les uns par rapport aux autres.


Assemblage de la boîte
Si une structure avec un seuil est montée, elle est placée au bon endroit et fixée aux poteaux verticaux. En l'absence de seuil, lors de l'assemblage de la boîte, une plaque de montage est utilisée, ce qui aidera à fixer temporairement la position relative des éléments. La boîte ainsi assemblée doit idéalement s'adapter à la porte. Après avoir solidement fixé tous les éléments, vous pouvez l'installer en place.
Méthodes de connexion des éléments
Les barres verticale et horizontale sont interconnectées de trois manières différentes:
- Sur une épine;
- À un angle de 45 degrés;
- A l'angle droit.
La méthode de connexion par tenon est l'option la plus laborieuse de toutes. Pour le mettre en œuvre, vous aurez besoin d'un équipement spécial, à l'aide duquel une rainure de la forme souhaitée est fraisée. Mais en termes de caractéristiques de résistance, la connexion formée est la plus fiable. Avant l'assemblage, des pointes et des dépressions sont découpées aux extrémités des pièces d'accouplement, avec lesquelles vous pouvez vous assurer qu'elles s'emboîtent parfaitement.


Connexion épine
L'assemblage des éléments sur la pointe est réalisé à l'aide de colle. Pour assurer la rigidité et la résistance, des attaches sont également utilisées, vissant des vis autotaraudeuses dans les deux pièces en même temps. Lors du choix de cette méthode de connexion, gardez à l'esprit qu'après avoir connecté les parties verticales et horizontales, leurs paramètres linéaires diminueront de l'épaisseur du panneau. Cette nuance est importante lors de l'ajustement des éléments.
La variante avec la connexion de la traverse et de la planche verticale à un angle de 45 degrés est un peu plus simple. Pour assurer un ajustement parfait des bandes horizontales et verticales, à l'endroit de leur connexion, une partie du matériau est retirée sous un angle de 45 degrés. Pour le travail, il est préférable d'utiliser un couteau pour planche à pain, qui vous permet de couper même des couches minces. La barre transversale et le support vertical sont placés à angle droit et reliés par des vis autotaraudeuses. En tant que méthode de connexion supplémentaire, la colle est utilisée, ce qui permet de fixer de manière plus fiable les éléments de la boîte les uns aux autres.


Joint à 45 degrés
L'option de connecter la traverse et les lattes verticales à angle droit est la plus simple. Pour ceux qui assemblent leur box pour la première fois, cette méthode de connexion est la mieux adaptée. Dans ce cas, la barre horizontale est fixée aux extrémités des poteaux verticaux avec deux ou trois vis autotaraudeuses traversantes, après avoir percé des trous.


Connexion à angle droit
Dimensions et équipement
Les portes intérieures sont disponibles dans des dimensions standard, mais les normes varient d'un pays à l'autre.
En parlant de normes, il est nécessaire de prendre en compte les paramètres suivants:
- un espace de vie aura besoin d'une toile de 0,6 à 1,2 m de large, 2 m de haut;
- salle de bain - 0,6 m de large, 1,9-2 m de haut;
- dans la cuisine, une toile de plus de 0,7 m de large, 2 m de haut.


La largeur de la porte dépendra des paramètres de la PHOTO d'ouverture: stroikadialog.ru
Lorsque, lors du remplacement de la toile, l'ouverture ne correspond pas aux dimensions standards, les artisans utilisent des extensions spéciales.


Lors du choix d'une porte, l'accent est mis sur l'ensemble complet PHOTO: radadoors.ru
Il existe 3 types d'assemblage:
- Remplacement de la toile. Dans ce cas, la boîte est achetée en plus;
- Remplacement d'une porte par une boîte. Tout est dans le jeu complet, cependant, la boîte, généralement assemblée à partir de planches séparées, n'est pas assemblée;
- Bloc de porte. Le remplacement de l'ensemble de la structure est effectué par un maître.
Avec la même qualité de vantaux de porte, le coût de ces ensembles différera considérablement.
Démantèlement
Si les portes ne sont pas installées dans une nouvelle pièce, mais que la structure est remplacée. Ensuite, vous pouvez effectuer l'installation du cadre de la porte de vos propres mains uniquement après que l'ancien a été retiré. Le cadre de porte est démonté dans l'ordre suivant:
- Les plateaux sont retirés et les éléments de la boîte sont démontés.
- Les attaches et les boulons d'ancrage sont dévissés.
- La résistance de l'ouverture est vérifiée et, si nécessaire, elle est renforcée.


Il vaut la peine de démonter très soigneusement le cadre de la porte afin de ne rien endommager et d'augmenter ainsi le volume des travaux d'installation à l'avenir. S'il est nécessaire de remplacer le cadre de la porte, il est recommandé de le démonter à l'avance afin qu'il reste du temps pour préparer l'ouverture. Il est presque impossible de retirer un cadre de porte sans l'endommager. Par conséquent, après avoir supprimé les anciens composants, vous devrez en installer de nouveaux.
Assemblée
À la deuxième étape, vous devez ajuster correctement les dimensions des pièces. Pour ce faire, vous devez mesurer la hauteur de chaque côté et la largeur de l'ouverture. Pour une évaluation visuelle de la situation, vous pouvez placer des planches contre le mur et marquer les endroits où vous devez les raccourcir.
Si l'installation de la boîte est effectuée au moyen d'une connexion diagonale, vous devez couper les bords des planches. Comme il est assez difficile de déterminer correctement le degré et de scier le cadre de la porte, assurez-vous d'utiliser une boîte à onglets, l'assemblage ne sera pas difficile.
Avant de mettre le cadre de la porte dans l'ouverture, il est nécessaire de vérifier ses dimensions avec les dimensions de la toile. Pour ce faire, vous devez fixer toutes les pièces au sol.
Étant donné que le cadre de porte ne peut être assemblé aussi correctement que possible qu'en position horizontale, posez les lattes et la toile sur le sol. L'assemblage commence par une évaluation de la coïncidence des dimensions. Pour ce faire, disposez les détails autour du périmètre de la porte. Si tout s'emboîte, vous pouvez commencer à coller les éléments.
L'assemblage du cadre de porte nécessite précision et soin
La manière d'assembler le cadre de porte dépend du type de connexion. Si une ligne droite est utilisée, vous devez joindre les saillies aux rainures. Avec une simple diagonale, les planches sont reliées à l'aide de clous. Si vous savez comment assembler correctement et rapidement un cadre de porte de vos propres mains, il ne devrait y avoir aucun problème avec le reste du travail. Vérifier l'exactitude des dimensions et la présence d'un petit jeu pour le libre mouvement de la lame. Ce n'est qu'alors que l'installation de la boîte elle-même peut être effectuée directement.
Installation de la toile
Lorsque la boîte est nivelée et sécurisée, il est temps de passer à l'installation du vantail de porte. Tout d'abord, les charnières sont vissées sur la porte. Le plus souvent, pour les portes intérieures, des charnières fendues sont proposées, qui ont une tige amovible ou articulée. Des charnières monobloc sont également vendues, mais elles ne sont pratiquement plus utilisées.
Si des charnières avec une tige fixe sont utilisées, tout est très simple - la toile peut être facilement mise en place et retirée de la boîte. Pour ce faire, il vous suffit de soulever soigneusement la porte à une petite hauteur.
S'il ne monte pas (et sur certains modèles de portes, ce n'est vraiment pas facile à faire), alors une charnière monobloc et une tige amovible sont utilisées. Pour l'installation de ces types de charnières, elles sont également fixées avec des vis autotaraudeuses sur la boîte, puis vissées sur le vantail de la porte. Si la tige peut être retirée de la charnière, elle est simplement retirée et la bande est retirée.


Lorsque les charnières sont installées, vous pouvez procéder à l'accrochage de la toile. Il est préférable d'effectuer cette opération non pas par vous-même, mais avec l'aide de quelqu'un. Une personne tiendra la toile, la seconde installera les boucles d'une seule pièce ou dirigera la toile en place (si la boucle est pliable).
Démontage de l'ancien tablier de porte
Avant de commencer les travaux, il est conseillé de préparer un outil d'accompagnement. Le plus souvent, de tels objets sont présents dans chaque maison: un marteau, une perceuse électrique, une meuleuse, une scie sauteuse, un niveau et aussi un ciseau. Une fois que tous les outils d'accompagnement sont à portée de main, vous pouvez démonter l'ancienne porte. Cette procédure doit être effectuée dans l'ordre suivant:
- Tout d'abord, il faut enlever toutes les ferrures présentes sur la structure, à l'exception des charnières. Ici, il est nécessaire de retirer soigneusement les anciennes poignées et serrures, qui, si vous le souhaitez, peuvent être utilisées sur le nouveau vantail de porte.
- Les charnières modernes, utilisées pour les portes intérieures, vous permettront facilement de retirer la toile. Si l'une de leurs autres variétés est installée, ce qui ne permet pas de retirer facilement la toile, elle doit être dévissée une par une. Dans ce cas, ils partent de la vis la plus haute, car en commençant le démontage par le bas, vous courez le risque que la toile reste accrochée à la dernière vis, ce qui aura un effet néfaste sur les charnières.


Démontage du vantail de porte
- Ensuite, vous devez complètement déconnecter les charnières du cadre et du vantail de la porte et les inspecter pour détecter tout défaut. S'il n'y en a pas, ils peuvent être utilisés davantage.
- Après cela, vous devez dévisser la boîte de la porte. Cela n'est nécessaire que si la nouvelle toile diffère en taille de la conception précédente.
- Dès que la boîte est démontée, il est nécessaire de nettoyer soigneusement l'ouverture d'éléments tels que la mousse de polyuréthane, le plâtre et d'autres contenus.
En outre, si nécessaire, des travaux sont effectués pour rétrécir ou élargir l'ouverture intérieure. Cependant, le plus souvent, les gens essaient d'obtenir un vantail de la même taille que le précédent.


Porte vide
Comment prendre des mesures
Pour assembler une structure de haute qualité, il est important de mesurer correctement les dimensions, sinon la porte ne rentrera pas dans la boîte. Il existe plusieurs règles pour prendre des mesures à domicile:
- Tout d'abord, la porte est mesurée, les paramètres externes de la boîte doivent la dépasser de 70 mm. En ce qui concerne les paramètres internes, un espace de 3 mm autour du périmètre doit être maintenu entre le vantail de la porte et le bord du cadre.
- Il existe une règle distincte pour l'espace situé en bas, sa hauteur peut être de 10 à 15 mm. Cela est nécessaire pour assurer la circulation de l'air dans la pièce, ce qui est particulièrement important pour les pièces fermées comme une salle de bain ou un placard. Lors de l'installation de portes coulissantes, il est nécessaire de prendre en compte le fait que les profils seront installés.
- Souvent, lors de la construction des bains, les propriétaires ne font pas un grand espace au bas de la porte, cela est permis, mais, dans ce cas, il est nécessaire de mesurer soigneusement le seuil de la porte avec un niveau dans les coins .
Ces paramètres sont obligatoires, en cas de divergence, la porte doit être agrandie ou réduite. Il est plus facile de travailler avec des ouvertures artificielles en cloison sèche.
Fixation de la structure de la porte
Pour fixer le vantail de porte à des supports en acier, des éléments de fixation métalliques sont utilisés, conçus pour connecter des cadres pour plaques de plâtre. Au moins 4 supports de ce type sont requis.
Installation à faire soi-même d'un cadre de porte d'une porte intérieure dans une ouverture murale étape par étape:
Un vantail de porte complètement fini (déjà avec des ferrures) est accroché sur des crochets fixés dans le cadre. Des entretoises en carton sont insérées dans les espaces entre la toile et le cadre de la boîte. Après cela, les crochets sont vissés à l'extérieur du cadre de la porte.
Ensuite, le bloc de porte est inséré dans l'ouverture du mur, fixé avec des cales. La structure est nivelée et les points de fixation de la suspension sont marqués. Dans ces zones, le matériau est sélectionné, c'est-à-dire qu'un évidement est réalisé pour les plaques. Après cela, la porte est à nouveau alignée et les plaques sont fixées au mur.


Les dépressions avec des crochets insérés doivent être enduites et les vides qui en résultent doivent être remplis de mousse de construction.
Si une installation traversante est utilisée à l'aide d'ancrages, des trous sont réalisés à l'avance pour de telles fixations sur le côté des profilés de cadre. Pour ce faire, le balisage est effectué en premier. 2 ancrages sont fixés de chaque côté.


Au point où se trouve l'attachement, un trou d'un diamètre de 14 mm est d'abord percé avec une perceuse électrique (pour un bouchon), puis un trou d'un diamètre de 10 mm (pour une ancre). Ensuite, la boîte de porte est installée dans l'ouverture, les trous fixes et percés pour l'ancrage dans la paroi en béton de l'ouverture. Les ancres installées sont fermées avec des plateaux.


Cette méthode de fixation est suffisamment solide, respectivement, plus fiable.
Planter la boîte sur de la mousse de construction
Les portes assemblées (cadre, vantail suspendu sur charnières et entretoises entre ces éléments pour maintenir l'espace requis) sont installées dans une ouverture préalablement préparée. La structure est ajustée verticalement et horizontalement à l'aide d'un niveau de bâtiment et d'un fil à plomb. Après cela, des piquets en bois sont insérés entre la boîte et le mur de l'ouverture pour le fixer.


Il est recommandé de traiter cette étape de manière responsable afin d'éviter de déformer les portes à l'avenir. Les espaces entre le cadre de la porte et le mur sont remplis de mousse de construction spéciale. Il est recommandé de le faire avec précaution en petites portions et en fines couches jusqu'à ce que l'espace libre soit complètement rempli.
Préparer la porte
Suggérant de commander d'abord une nouvelle porte, puis de retirer l'ancienne et de préparer l'ouverture, les experts soulignent que si ces opérations sont inversées, l'appartement sera sans porte d'entrée pendant 1 à 2 nuits. La pratique montre que même les mesureurs professionnels font des erreurs lors de la détermination de la taille de l'ouverture en présence d'anciennes portes.
En raison de mesures incorrectes, vous devrez passer la nuit sans portes pendant plusieurs jours. Par conséquent, il faut choisir: soit les dimensions correctes du cadre de porte sous l'ouverture, soit les problèmes éventuels en cas d'erreurs.
Démonter l'ancienne porte
Le démontage d'une porte commence par le retrait du vantail. S'il est sur des charnières amovibles, il suffit de soulever la porte avec un levier. Les charnières non séparables sont retirées de la boîte à l'aide d'un tournevis - les vis autotaraudeuses sont dévissées. Il est préférable de commencer par le bas.
La boîte en bois est sciée au centre des montants latéraux et retirée avec un pied de biche. Pour retirer la boîte métallique, la meuleuse coupe les éléments de fixation: boulons d'ancrage ou pattes
Après avoir libéré la boîte de la fixation, elle est soigneusement pressée ou assommée.Trop de force est dangereux - les murs peuvent être endommagés
Démonter l'ancienne porte.
Préparation d'ouverture
La suppression de l'ancienne porte est la première étape de l'installation de la porte d'entrée de l'appartement de vos propres mains. Plus loin:
- les plateaux, la vieille mousse de polyuréthane, l'isolant, les morceaux de plâtre restant sur les pentes, les cales d'espacement sont enlevées et tous les éléments métalliques saillants sont coupés. Le seuil est démonté;
- la verticale du mur à l'intérieur de l'ouverture est vérifiée avec un fil à plomb. S'il y a un blocage à l'intérieur de la porte de plus de 1 cm, il doit être enlevé avec un poinçon et un ciseau - il y aura des difficultés lors de l'installation du cadre de la porte;
- existant dans les vieilles maisons, un quart de la porte est supprimé. Cela peut être fait avec une meuleuse avec un disque de diamant, qui est très bruyant et poussiéreux, ou percer des trous sur tout le périmètre avec un petit poinçon avec un petit pas, puis assommer le béton restant avec un marteau et un ciseau. Les marques au crayon de la ligne de coupe aideront à simplifier le travail;
- des mesures de la hauteur et de la largeur de l'ouverture sont prises, après quoi une commande est passée pour la fabrication de portes;
- les extrémités des murs dans l'ouverture sont soigneusement examinées. Si nécessaire, les parties saillantes du matériau de la paroi sont abattues à la main (marteau et burin) ou coupées avec une meuleuse. Les briques détachées et le béton en ruine sont enlevés. Les vides et les crevasses sont traités avec un apprêt à pénétration profonde, puis scellés avec du mortier de ciment (1 part de ciment Portland, 3 - sable). Dans ce cas, les petits nids-de-poule peuvent être ignorés et les grands peuvent être posés avec des morceaux de brique;
- la prochaine étape pour ceux qui vivent dans de vieilles maisons: inspection et réparation du plancher sous le cadre de la porte. Il y a une barre en bois montée là, qui devient pourrie de temps en temps. Il doit être supprimé. Après cela, il y a deux options: mettre un nouveau bloc ou fermer cet endroit avec une brique et le remplir d'un mélange ciment-sable;
- si le mur est en béton léger (blocs de silicate de gaz, béton d'argile expansée, etc.) ou a une épaisseur inférieure à 15 cm, les parois de l'ouverture sont échaudées avec une ossature métallique. Une telle opération est souvent nécessaire même si la maison est en panneau;
- l'ouverture prête à être installée doit être de 4 à 5 cm plus large que la porte fabriquée (20 à 25 mm de chaque côté). De tels espaces fournissent une installation et une isolation de haute qualité, augmentent la résistance et la fiabilité de la structure.
Renforcement d'une porte en blocs de silicate de gaz avec une caisse en métal.
À quoi sert un cadre de porte?
Le cadre de la porte est la partie de la structure dans l'embrasure de la porte qui garantit que la porte est correctement positionnée. En apparence, cela ressemble à un cadre. L'installation de portes intérieures est impossible sans cadres de porte.


Le cadre de porte garantit une installation correcte de la porte
Le cadre de la porte se compose de trois parties - deux latérales et une transversale. Si nécessaire, vous pouvez faire une noix. Bien que maintenant, des appuis métalliques nets soient installés sur les revêtements de sol, qui peuvent être achetés avec du stratifié ou du linoléum.
Pour fabriquer vous-même le cadre de la porte, vous devez commencer par prendre les mesures nécessaires et sélectionner le matériau.
Réparation ménagère n ° 1
Choisissez des artisans de confiance sans intermédiaires et économisez jusqu'à 40%!
- Remplissez le formulaire
- Recevez des offres avec les prix des maîtres
- Sélectionnez les artistes par prix et avis
Soumettez votre mission et découvrez les prix
Lors de l'achat de portes, vous devez être conscient que le bloc intérieur deviendra un véritable designer, qui doit être correctement assemblé. De telles conceptions du cadre intérieur de la porte permettent de ne pas déterminer immédiatement le côté de la fixation et de l'insert des serrures, mais de le faire sur place, en voyant les portes devant vous.
L'assemblage du cadre de porte peut être réalisé par un artisan ou par vous-même. Pour assembler un bloc de porte, vous devez clairement comprendre les méthodes à utiliser pour installer les portes intérieures.
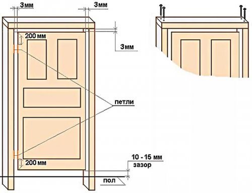
Comment assembler un cadre de porte?
Le schéma d'assemblage aidera à fabriquer correctement un cadre de porte à partir d'ébauches.
- Les éléments sont disposés sur une surface plane au même niveau.
- Marquez correctement le cadre de la porte.
- Les extrémités des barres sont coupées à un angle de 45 ou 90 degrés.
- Déterminez la position des boucles et marquez-les sur un support vertical. Mesurez 200 mm du bas et du haut. Quel côté dépend de l'ouverture de la porte droite ou gauche.
- Si les charnières sont à mortaise, elles font une encoche avec un ciseau et les fixent. Les charnières supérieures sont simplement vissées en place.
- Les barres sont serrées avec des vis autotaraudeuses. La procédure est effectuée avec soin, car en exagérant un peu, vous pouvez endommager les éléments.
- Enfin, insérez le vantail de porte, alignez et vérifiez s'il y a un espace nécessaire entre celui-ci et la structure.
La boîte doit être agrandie à l'aide d'une rallonge, si la largeur du mur est supérieure à 70 mm, et les plateaux sont placés des deux côtés.


Comment scier un cadre de porte à 45 degrés?
Les éléments à section arrondie sont coupés à un angle de 45 °. Pour effectuer la coupe correcte, utilisez une boîte à onglets ou une scie à onglets avec une table rotative.


Les cadres de porte à faire soi-même peuvent être assemblés sans l'utilisation d'outils spéciaux. Dans de tels cas, vous pouvez scier l'angle souhaité sans boîte à onglets, en utilisant une règle et un rapporteur pour le marquage.
Lors de l'installation, la structure est fixée avec des vis autotaraudeuses, qui sont vissées en biais.
Assemblage de la boîte à un angle de 90 degrés
Avec cette option, l'assemblage du cadre de porte est simple et rapide.
- Il est nécessaire de scier la taille requise des crémaillères et de la barre transversale horizontale à angle droit.
- Choisissez une partie supplémentaire du vestibule.


Placez les éléments de la boîte sur le sol, alignez et fixez aux extrémités avec des vis autotaraudeuses (2 de chaque).


Pour que tous les côtés maintiennent le parallélisme, vous pouvez attacher la porte au cadre de la porte et vérifier comment elle se tiendra dans l'ouverture. La connexion du cadre de porte à 90 degrés est considérée par les spécialistes comme une technologie d'installation rapide.
Assemblage de la boîte avec un seuil
Il n'y a pas de différence significative entre l'installation de cadres de porte avec un seuil et sans celui-ci. Les seuils ont récemment perdu de leur pertinence. Mais, malgré cela, un tel système a beaucoup de fans. Ceci s'explique par le fait qu'il est plus solide et plus fiable qu'une structure sans barre transversale inférieure. De tels systèmes peuvent supporter des charges importantes et conviennent à l'installation de portes en bois massif. Les seuils sont considérés comme une condition préalable pour les salles de bains. Quel que soit le type de construction choisi, chaque personne pourra assembler le cadre de la porte intérieure.
- Préparez à l'avance des bandes verticales et horizontales.
- Couper à 45 ou 90 degrés.
- Les éléments préparés sont placés sur une surface plane.
- À leur tour, fixez les supports et les barres transversales avec des vis autotaraudeuses.


Attaches de plateaux
L'installation des bandes aériennes s'effectue de différentes manières:
- clous de finition;
- vis autotaraudeuses;
- ongles liquides.
Lors de l'installation avec des clous de finition, la distance entre eux doit être d'environ 50 cm. Les œillets sont enfoncés à une profondeur de 2 cm. Les défauts sont masqués avec un crayon de cire.
Lors de l'installation des plateaux, ils doivent être coupés à un angle de 45 degrés pour connecter les pièces. L'amarrage peut être effectué à un angle de 90 degrés.
Les portes intérieures peuvent être divisées en plusieurs types
Sur le marché, les fabricants de structures de portes proposent une gamme assez large de modèles. Les portes intérieures finies peuvent être fabriquées à partir de différents matériaux. Les types de matériaux les plus courants sont: panneaux de fibres de bois, MDF, bois naturel.
Information utile:
- Comment construire un grenier de vos propres mains
- Installation de porte coulissante bricolage
- Fosse septique à faire soi-même d'Eurocubes
- Toilette de campagne avec vos propres mains pour 7500 roubles.
- Bouclage de parquet à faire soi-même
- Toit à faire soi-même en carton ondulé
1. Panneau de fibres de bois - porte: le cadre est en bois et gainé de panneaux de fibres de bois avec laminage.Les avantages de ces portes comprennent: un faible coût par rapport aux autres types, un faible poids, ce qui permet de les livrer du point de vente à la maison par eux-mêmes, une facilité d'installation. Compte tenu de ces points, ils sont populaires parmi les clients, grâce à quoi leur large assortiment est le plus souvent présenté en magasin.
Parmi les inconvénients, on peut noter la faible résistance du panneau de fibres de bois lui-même, à cause de laquelle la porte se brise et devient assez facilement inutilisable, une mauvaise résistance à l'humidité, la porte peut se tordre. Par conséquent, nous ne recommandons pas de l'installer dans les salles de bain avec une hotte faible, ce matériau aime les pièces sèches.


2. MDF - les portes fabriquées à partir de ce type de matériau sont l'option la plus appropriée pour choisir un rapport qualité / prix. Les avantages évidents par rapport aux portes en panneaux de fibres de bois sont une résistance élevée et une résistance à l'humidité, un niveau d'isolation acoustique plus élevé. Le coût d'une telle porte est plusieurs fois plus élevé que celui des portes en panneaux de fibres de bois.


3. Bois naturel - les portes intérieures en ce matériau sont les plus durables. Leur prix dépend directement du type de bois utilisé pour leur production. Les portes en bois précieux sont utilisées pour l'installation dans des pièces au design d'auteur; elles s'intégreront parfaitement dans un intérieur classique. La largeur des portes intérieures est adaptée à la taille de votre ouverture.


La liste des portes intérieures par type peut être complétée par des portes tout en verre, métal-plastique, acier, mais ces types ne sont pas très populaires parmi la population générale, ils ne sont donc pas inclus dans l'article pour une description détaillée.
Types de cadres de portes pour portes intérieures
La bonne porte intérieure doit se trouver dans une boîte de porte fiable, car sa qualité déterminera la durée de vie de la porte, ainsi que la conception de la porte de votre pièce. Les cadres de porte peuvent être divisés en trois types principaux.
1. Boîte en panneau de fibres de bois. Cela a l'air assez décent, mais lors du choix d'une boîte en ce matériau, la résistance de toute la structure sera discutable. Le milieu de la barre de caisse se plie à cause de son poids, sans parler des déviations possibles dues au poids du vantail lui-même. Étant donné que les principaux composants de la composition du panneau de fibres de bois sont, de manière simple, la colle et le papier, il faut garder à l'esprit qu'ils sont très fragiles et non durables. Il n'est pas recommandé d'y accrocher des portes en bois et MDF en raison de leur poids élevé.
Portes intérieures-accordéon: options de différents matériaux


2. Boîte en bois non traité. Le coût se situe au niveau des caisses en panneaux de fibres de bois, mais contrairement à ces dernières, les caisses en bois profilé sec ont une résistance supérieure. Par conséquent, lors du choix entre des caisses en panneaux de fibres de bois et des caisses en bois non traité, nous vous recommandons de choisir ces dernières. Il est également nécessaire de prendre en compte le fait que vous aurez besoin de matériaux supplémentaires pour la finition finale de la boîte.


3. Boîte en bois lamellé. Aucune finition finale requise car il est déjà laminé avec du papier. Et ici, il y a un point important, lors du choix d'une telle boîte, la qualité du laminage est très importante. Si du papier fin a été utilisé pour cela, il y a une forte probabilité d'éraflures, de rayures, de fissures, le revêtement perd son aspect. Une meilleure option serait peut-être une boîte en bois non traité avec auto-finition et peinture.


En outre, toute la porte d'une porte intérieure peut nécessiter un traitement supplémentaire après l'installation des portes. Tout sifflera dès votre ouverture, sa taille, l'emplacement de la porte en elle, l'intérieur de la pièce.
Pour un tel traitement, vous pouvez utiliser une bande et des plateaux supplémentaires. Les kits requis peuvent être achetés au magasin. Nous vous recommandons de décider de leur besoin après l'installation finale de la porte afin de comprendre le type de finition finale dont vous avez besoin.Après tout, l'achat de matériaux supplémentaires représente des coûts supplémentaires qui, en fin de compte, peuvent ne pas être nécessaires.
Installation de la porte
Une fois la boîte prête, procédez à l'installation. S'il s'agit d'une porte battante, les charnières sont vissées sur la toile. L'insertion est effectuée aussi précisément et précisément que possible, sinon le fonctionnement de la porte installée sera difficile.


Détermination de la position des boucles
Il est conseillé de réaliser l'encart à l'aide d'un outil spécial. Pour ce faire, les boucles pliées sont appliquées sur la toile, en reculant de ses extrémités d'environ 25 cm, et les entourent le long du contour. À ce stade, l'excès de matériau est enlevé à une profondeur suffisante pour que les charnières affleurent. Lors de la détermination de l'emplacement des charnières, le sens d'ouverture du châssis et le type de ferrures utilisés sont pris en compte. Les boucles sont insérées dans les nids préparés et vissées avec des vis autotaraudeuses.
La boîte préparée est insérée dans la porte, tout en surveillant sa position spatiale sans faute. Même un léger écart dans le plan vertical ou horizontal est inacceptable. Cela entraînera l'ouverture ou la fermeture spontanée de l'ouvrant. Après avoir décidé de la position de la boîte, elle est temporairement fixée avec des cales en bois.


Fixation avec mousse polyuréthane
Ensuite, la toile est accrochée. Ils contrôlent la taille des espaces verticaux et horizontaux entre la toile et la boîte. Si tout est fait correctement, il ne devrait y avoir aucun problème lors de l'ouverture ou de la fermeture du châssis. Pour éviter le déplacement accidentel des éléments structurels les uns par rapport aux autres, un carton de même épaisseur est inséré entre la toile et la boîte. Après cela, l'espace entre la boîte et le mur est expansé et lorsque la mousse sèche, elle est fixée avec du matériel spécial. Après cela, il ne reste plus qu'à installer les plateaux.
L'installation des portes en MDF peut être effectuée vous-même. Il suffit de préparer l'outil, de se familiariser avec la séquence de travail, puis de terminer l'installation conformément à toutes les règles. Dans ce cas, la structure installée se révélera belle et durable.
Voté plus de 252 fois avec une note moyenne de 4,8
Le processus de travail
Nous diviserons tous les travaux en trois parties: la collecte des matériaux et des accessoires nécessaires, l'exposition de la boîte et la fixation de la structure.
Matériaux et outils


Voici à quoi ressemble un ensemble de tout ce dont vous avez besoin.
Toutes les informations sur les composants dont nous avons besoin sont présentées dans le tableau.
| Nom | La description |
| Portes et box | Tout est clair ici: il est impossible de mettre des portes si elles ne sont pas là. Je ne recommande pas d'assembler la boîte vous-même sans compétences et outils spéciaux, alors commandez immédiatement l'assemblage de la structure et insérez les charnières et les poignées |
| Mousse de polyuréthane et un pistolet à elle | Nous fixerons la structure sur de la mousse de polyuréthane, c'est mieux s'il s'agit d'une version professionnelle. Il est beaucoup plus pratique d'appliquer la composition à partir d'un pistolet, mais si vous devez mettre 1 à 2 portes, vous pouvez le faire avec l'option ménagère avec une paille |
| Scie sauteuse et scie à métaux | Si vous avez besoin de couper quelque chose dans le processus, vous pouvez utiliser une scie à métaux ou une scie sauteuse |
| Instruments de mesure | Cela comprend un crayon, un carré et un niveau de bâtiment, le plus souvent, nous utiliserons le dernier luminaire. |
| Tournevis | Il peut également être utilisé pour différents travaux, chez nous, il a été principalement utilisé pour l'installation de la poignée et de l'emballage |
| Rinçage | Afin de ne pas gâcher le pistolet et, si nécessaire, de frotter rapidement la mousse, nous aurons besoin d'une composition spéciale |
| Cales et assiettes | Permet de positionner la porte et le cadre dans la position souhaitée et de fixer les éléments jusqu'à ce qu'ils soient fixés |


Coins d'assemblage - éléments irremplaçables lors de l'installation de portes et fenêtres


Les plaques vous permettent de régler avec précision la position du vantail de porte dans le cadre avant la fixation
Exposer la boîte
La boîte est assemblée, ce qui simplifie grandement le flux de travail, les rideaux y sont déjà intégrés, vous pouvez donc commencer à travailler tout de suite. Si vous avez le choix, il vaut mieux acheter une version plus épaisse, plus la structure est solide, mieux c'est.
Les instructions pour effectuer le travail ressemblent à ceci:
- La boîte est bien située dans l'ouverture, ici il est important de décider immédiatement si elle sera alignée avec l'un des murs ou sera située à l'intérieur de l'ouverture, alors vous décidez. Tout d'abord, des plaques ou autres éléments sont installés sous la partie inférieure afin de niveler le plan horizontal, la position est vérifiée avec un niveau;
La forme et les dimensions de la structure
Le cadre-cadre doit correspondre aux paramètres de la porte (largeur et hauteur) afin de fournir une couverture et un support complets de la structure. Une nuance importante concernant la toile est le but de la pièce à laquelle elle est destinée. Parce que les besoins en ventilation en dépendront. Dans les hammams et les saunas, les portes doivent fournir une isolation thermique fiable, de sorte que l'ouverture soit scellée aussi étroitement que possible.
La salle de bain, par contre, doit être bien ventilée pour éviter que l'excès d'humidité ne s'accumule et que la moisissure n'apparaisse. Par conséquent, l'écart entre la boîte et la porte doit être légèrement plus large. Une bonne ventilation est également nécessaire pour les pièces dans lesquelles des équipements à gaz sont installés.
Pour fournir une protection fiable contre les fuites de chaleur, un cadre rectangulaire est construit à partir de quatre barres, qui serviront de cadre de porte. Les poteaux verticaux deviendront la charnière et l'élément factice, et les poteaux transversaux deviendront le support supérieur et le seuil.


Pour un mouvement libre du rideau, l'espace entre la porte et les montants doit être d'environ 3 mm. Dans les cas où un flux d'air dans la pièce est nécessaire, la boîte est assemblée à partir de trois barres et un espace d'environ 10 à 15 mm est ménagé à la place du seuil. Une distance standard de 3 mm est laissée le long des montants et des linteaux.


La boîte assemblée est légèrement plus haute que sans
La différence est d'environ 20 mm. Il est important de prendre en compte cette nuance pour ne pas avoir à raccourcir la porte. Parce que la toile ne peut être ajustée que si elle est en bois.
L'espace entre le cadre de la porte et l'ouverture doit être d'au moins 10 mm de chaque côté, afin que la structure puisse être facilement installée et fixée.
Phase préparatoire
Avant de commencer l'installation du cadre de porte, mesurez soigneusement les paramètres de l'ouverture, qui sont déterminés après le démontage complet de l'ancien cadre.
Attention! La qualité de l'installation dépend de la précision des dimensions.


Détermination des paramètres géométriques
Vous aurez besoin de savoir:
- Profondeur. Ce paramètre est égal à l'épaisseur de la paroi. L'épaisseur de la boîte en dépend directement;
- La largeur dont dépendent les dimensions de la boîte et de la toile. 8-9 cm sont alloués pour l'installation du siphon.Une boîte standard en MDF a une épaisseur moyenne de 2,5 cm.En tenant compte du fait qu'elle est montée des deux côtés, elle s'avère 5 cm.Une surépaisseur minimale est prévue pour assurer la gratuité mouvement de l'ouvrant (environ 3 mm de chaque côté). La largeur du vantail de porte dépend des dimensions de l'ouverture. Une porte de 60 cm de large est achetée pour la salle de bain et 90 cm pour les portes résidentielles;
- Hauteur. Il s'agit de la distance entre la surface du sol et le haut de la porte. Ce paramètre affecte les dimensions de la structure (hauteur standard 2 m) et les caractéristiques de conception de la boîte elle-même. La boîte est montée avec ou sans seuil. Dans le premier cas, le calcul des dimensions est effectué par analogie avec le calcul de la largeur de la boîte. En l'absence de seuil, un espace de 3 mm est ménagé entre l'extrémité supérieure du vantail et le cadre et à 1 mm du bas.
Lors de la détermination des dimensions, vérifiez d'abord la verticalité des murs. Etant donné que l'épaisseur du mur peut varier en hauteur, des mesures sont effectuées en plusieurs points. En se concentrant sur les dimensions obtenues, ils font un choix en faveur de telle ou telle structure de porte et des ferrures adaptées.
Dans le cas le plus général, un cadre de porte en MDF se compose de deux poutres verticales et d'au moins une horizontale. Si un seuil est monté, deux barres horizontales sont fournies.
La structure se compose des éléments suivants:
- Feuille de porte;
- Des boites;
- Rack du vestibule;
- Planches supplémentaires;
- Raccords.
Caractéristiques des cadres pour portes métalliques
Pour installer une porte d'entrée, vous avez besoin d'un boîtier responsable de la solidité, de la fiabilité, de la fonctionnalité et de la résistance à l'effraction. C'est une partie fixe du bloc de porte et est intégré dans l'ouverture du mur. À l'extérieur, c'est une structure de cadre avec des charnières pour accrocher la toile, les plateaux et les accessoires supplémentaires. Le cadre de porte est un élément multifonctionnel. Remplit un rôle pratique et esthétique, protège la porte du cambriolage, de la pénétration du froid, du bruit et des odeurs.
Il existe plusieurs types de boîtiers selon la méthode d'installation.
- Coin - monté dans une plaque de recouvrement sur l'ouverture. Dispose d'une platine externe pour les charnières.
- Extrémité ou interne - située à l'intérieur de l'ouverture et fixée à la surface murale préparée. La construction n'a pas de plateaux.
- Couvrant ou télescopique - utilisé dans les conceptions de porte haut de gamme. Il est complété par des plateaux externes et internes, qui simplifient l'installation et masquent les irrégularités des murs.
Moussant
Lorsque vous installez vous-même des portes intérieures, n'oubliez pas la nécessité d'isoler les éléments du cadre de porte, de la platine et du seuil de l'humidité, quelle que soit la pièce dans laquelle cette porte sera utilisée. Si vous ne protégez pas les pièces de l'humidité, leur partie inférieure se détériorera progressivement. Pour éviter cela, il est nécessaire d'appliquer en continu du mastic silicone sur toute la longueur de leur contact avec le sol.
Le trou fendu qui s'est formé entre le mur et la boîte est rempli de mousse spéciale. Pour que la mousse polymérise bien, la surface du mur doit être saupoudrée d'eau. Des entretoises peuvent être utilisées pour éviter la déformation. A la fin de la polymérisation de la mousse, les entretoises sont retirées.
Installation de la boîte dans l'ouverture
Ainsi, une fois l'assemblage de la boîte terminé, il est temps de commencer à l'installer dans l'embrasure de la porte. Pour cela, le bloc est inséré directement dans l'ouverture et fixé avec des cales. Les experts recommandent de ne pas insérer plus de 2-3 pour chaque poteau vertical et 2 cales sur la barre supérieure.


Ensuite, la boîte est alignée sur l'axe vertical et horizontal. Le processus de réglage de l'inclinaison est facilement accompli en frappant les coins avec un marteau. Une fois le bloc de porte parfaitement positionné, le cadre est sécurisé. À l'aide d'une perceuse ou d'un poinçon, un trou est percé dans la boîte et le mur. À l'aide de chevilles, la boîte est installée dans l'ouverture.
Un ensemble d'outils nécessaires
L'installation à faire soi-même des portes intérieures est, bien que pas particulièrement difficile, mais un processus responsable et minutieux qui sera très difficile à réaliser sans les outils appropriés. Pour une exécution précise et rapide de tous les travaux, vous aurez besoin de:
- une perceuse électrique ou un marteau perforateur (selon le matériau à partir duquel les murs sont fabriqués);
- forets ou forets pour 4 et 6 mm;
- scie à main à dents fines;
- foret pour bois d'un diamètre de 4 mm;
- ciseau;
- tournevis ou tournevis cruciforme;
- ruban à mesurer et niveau du bâtiment;
- boîte à onglets;
- chevilles à montage rapide d'une longueur d'au moins 75 mm et vis à bois 3,5x60 mm;
- mousse de polyurethane.
Caractéristiques de l'installation d'une boîte avec un seuil
Un tel cadre est nécessaire pour les salles de bains et les toilettes et dans une moindre mesure pour les autres pièces. Le niveau du sol dans les salles de bain est souvent plus élevé que celui de la pièce adjacente, par conséquent l'installation d'une boîte avec un seuil est également nécessaire pour se protéger contre les infiltrations d'eau sur le parquet, le linoléum ou tout autre revêtement. La fixation des parties de la boîte avec un seuil doit être effectuée avec des vis autotaraudeuses galvanisées.L'espace d'ouverture du vantail de porte est élargi de 4 mm supplémentaires par rapport à la version sans bande inférieure.


Les cadres de porte à seuil sont plus robustes, ils peuvent donc être installés dans des endroits où le niveau de vibration est élevé, comme à côté des voies ferrées. L'installation d'un cadre avec une barre inférieure peut être nécessaire dans les pièces à fort niveau de pollution sonore. En plus de la fonction d'insonorisation, le seuil est capable d'agir comme un joint: pour empêcher la sortie d'air et, par conséquent, la perte de chaleur.
Avantages des cadres de porte avec un seuil:
- résoudre partiellement le problème avec les brouillons;
- protéger de la poussière et de la fumée.


Nous réparons le cadre de la porte
La prochaine étape de l'installation d'une porte intérieure consiste à sécuriser la boîte. L'espace qui existe entre l'ouverture et le cadre de la porte est généralement rempli de mousse de polyuréthane. Ceci est fait pour fixer le bloc de porte et augmenter l'isolation phonique et thermique. La mousse de polyuréthane comble parfaitement même les plus petits défauts, fissures et fissures. Ce matériau est facile à utiliser et fonctionne bien avec tout type de surface.
La boîte doit être fermée avant de remplir l'espace pour éviter que de la mousse ne se répande dessus. Pour ce faire, il peut être collé avec du ruban de masquage ou de construction, ou un film. Si un peu de mousse a déjà atteint la surface de la boîte, alors qu'elle est fraîche, elle peut être facilement lavée avec des solvants ou de l'alcool. Si la mousse a déjà durci, il peut être assez difficile de la retirer dans cet état - cela n'est possible que mécaniquement, ce qui entraîne des rayures inévitables.
L'une des propriétés de la mousse est qu'elle peut grossir considérablement. Cela doit être pris en compte lors de la candidature. Parfois, il arrive que le cadre de la porte soit simplement déformé - cela se produit pour ceux qui ne savent pas comment insérer correctement le cadre de la porte et la porte intérieure. Pour éviter que cela ne se produise, des entretoises en carton sont généralement utilisées. Ils sont installés entre les montants. De plus, du carton épais peut être posé entre l'ouverture fermée et la boîte.


Avant de commencer à travailler avec le récipient, il est recommandé de bien agiter son contenu pendant une minute. Pour que la mousse adhère mieux à la surface, il est conseillé d'humidifier un peu l'ouverture.
Afin d'éviter les déformations de la boîte, la mousse est appliquée en deux étapes. À la première étape, l'application est parfaite. Ensuite, après refroidissement, remplissez ce qui reste. L'excès de matériau est coupé avec un couteau tranchant.
https://youtube.com/watch?v=Djm04M2CVEE
Ensuite, il ne reste plus qu'à terminer l'installation des plateaux et des raccords. Pour ce faire, ils sont coupés à la hauteur de la boîte à un angle de 45 ° pour les bandes horizontales et universelles. Les fixations peuvent être réalisées avec des clous ou de la colle.
Voici comment insérer un intérieur ou toute autre porte de vos propres mains. Nos instructions détaillées aideront l'artisan de la maison, et dans la vidéo, vous pouvez regarder l'ensemble du processus d'installation de A à Z.























