L'industrie du meuble moderne produit des portes de différents modèles. L'une des options est une porte escamotable. Ce modèle se compose de deux portes qui se plient en deux lors de son ouverture.
Ces portes pliantes sont absolument indispensables pour les appartements aux ouvertures étroites. Ils sont de deux types: roue libre et articulés. La porte du livre, dont l'installation n'est pas du tout compliquée, peut être installée même par une personne qui n'a ni expérience ni compétence. Une telle conception peut différer dans certains détails, mais en général, des éléments communs sont présents sans exception.
Caractéristiques de la conception du porte-livre
Le «livre» pliable ne nécessite pas d'espace supplémentaire pour s'ouvrir. Du fait de leur forme en forme de 2 ou 4 vantaux reliés les uns aux autres, les panneaux se déplacent librement sur les côtés lorsqu'ils sont ouverts, sans prendre de place. Ils peuvent être installés là où il n'y aurait pas de place pour un modèle de balançoire.
Il existe plusieurs caractéristiques du mécanisme:
- L'installation d'une porte pliante ne nécessite pas l'installation d'un seuil.
- Il peut être monté de chaque côté et avec une large ouverture des deux côtés à la fois.
- Il n'est pas nécessaire d'ouvrir complètement la structure, une ouverture partielle est autorisée.
- Le mécanisme de suspension à rouleaux est utilisé.
- Matériel spécial requis.
- Le faible niveau de lumière, de chaleur et d'isolation phonique vous permet d'utiliser le modèle pour aménager des ouvertures intérieures.
Caractéristiques de la porte pliante

Porte intérieure pliante
Contrairement aux portes battantes, le livre n'a besoin d'aucun espace pour s'ouvrir. Sa toile est divisée en 2 à 4 portes reliées les unes aux autres, ce qui permet de déplacer la porte vers le montant. La zone du vantail s'étendant au-delà du cadre de la porte est réduite de 2 à 4 fois, ce qui vous permet d'installer une porte-livre là où il n'y aurait pas de place pour une porte battante.
Les autres avantages de la conception sont les suivants:
- vous permet de faire sans installer le seuil;
- la porte peut être installée à la fois sur le montant gauche et droit, et dans une large ouverture - de 2 côtés à la fois;
- si vous le souhaitez, vous ne pouvez utiliser qu'une partie de l'ouvrant (cela est pratique dans les grandes ouvertures) et, si nécessaire, ouvrez complètement l'ouverture;
- dans la construction moderne, il est possible d'utiliser un mécanisme de suspension sur rouleaux.
Le mécanisme à rouleaux a permis de fabriquer des portes à partir de lourdes portes en verre ou de bois précieux, ce qui a immédiatement attiré l'attention des propriétaires de logements de luxe. La ressemblance de la porte pliante avec un paravent à la mode l'a rendue populaire auprès des designers d'intérieur.
Les inconvénients de ces portes comprennent:
- faible isolation thermique et phonique;
- manque de fiabilité de la porte en raison de sa structure spéciale;
- l'utilisation de raccords spéciaux.
La légèreté de la structure pliante, l'absence de seuil et la présence de plusieurs portes signifient un grand nombre de fentes et de vides. Cela réduit les performances du produit, de sorte que l'installation du livre n'est possible que dans les ouvertures intérieures.
Équipement
- Panneaux de ceinture. La quantité dépend du type de produit. Fabriqué en MDF ou en PVC. Les panneaux en plastique sont plus pratiques et plus durables en fonctionnement.
- Quincaillerie nécessaire pour sécuriser les châssis et assembler la structure complète.
- Vidéos.
- S'arrête.
- Le profil requis sous la forme d'un rail supérieur et de deux côtés.
- Accessoires (rails, supports, charnières, poignées, joints, pinces, pinces).
- Instructions de montage.
L'achèvement spécifié est représenté par un ensemble minimum de composants. Chaque mécanisme suppose un certain nombre d'éléments dans un ensemble spécifique.
Si vous envisagez d'installer une porte-livre de vos propres mains, vous devez vous assurer de la disponibilité des outils nécessaires.
Instructions pour installer "accordéon"
L'installation de porte à faire soi-même n'est pas très difficile.
Il est important de mesurer soigneusement la porte à plusieurs endroits avant de l'acheter. S'il est inférieur à 1 m, le guide inférieur n'est pas nécessaire, seul le
Avec certains niveaux de finition, l'achat n'inclut pas les plateaux et les accessoires - vous devez vous en occuper en magasin.
3.1
Éléments structurels standard
Tous les modèles de portes pliantes ont les mêmes éléments et composants dans leur appareil. À savoir:
- vantail de porte sous la forme de vantaux séparés - leur taille dans l'ensemble doit correspondre à l'ouverture;
- de 1 à 2 rails de guidage horizontaux;
- charnières pour la connexion et de 2 à 4 rouleaux de chariot;
- clé de réglage;
- bouchons;
- charnières;
- vis autotaraudeuses.
3.2
Caractéristiques de la porte
Afin de mieux comprendre l'installation et l'assemblage des portes pliantes, il est nécessaire d'étudier en profondeur leur conception. L'élément coulissant principal est le rail de guidage. Son installation est réalisée en haut de la porte. Si le même rail est installé en plus en bas, la durée de vie de la structure sera considérablement réduite. Cela se produit à la suite de l'accumulation de débris dans le guide. Il ne sera pas possible de l'enlever régulièrement, car la largeur du produit est très étroite.
Pour faciliter le mouvement des volets, un mécanisme à rouleaux est utilisé. Il est fixé d'un côté sur la toile, et de l'autre dans la rainure des rails.
Pour s'assurer que toutes les pièces sont solidement fixées, des charnières et des auvents sont utilisés. De plus, toutes les portes sont reliées les unes aux autres avec des charnières légèrement inférieures à celles de fixation. Dans certains modèles, les châssis sont reliés par des clips.
Le rail de guidage est toujours en métal. Pour le décorer, utilisez du placage, du stratifié ou du vernis. Si un fabricant peu scrupuleux propose un produit fabriqué dans un matériau différent, l'appareil échouera après quelques mois de fonctionnement. Le nombre de volets peut être différent - de 2 pièces ou plus.
3.3
Outils nécessaires
Pour assembler et monter la structure de la porte, vous aurez besoin d'outils:
- percer;
- mousse de polyurethane;
- fil à plomb;
- niveau du bâtiment;
- scie à métaux;
- les bars;
- roulette;
- boîte à onglets.
Si vous envisagez d'agrandir les portes, vous devrez également acquérir un perforateur.
3.4
instructions de montage
Afin de ne pas se confondre dans les portes à panneaux, elles sont d'abord disposées au sol dans l'ordre requis. Suivi en suivant les instructions pas à pas pour l'installation:
- 1. Assemblage de plaques en un seul tout. La méthode de fixation diffère légèrement selon le modèle.
- 2. Installation verticale des bandes latérales. Dans ce cas, ils doivent utiliser le niveau. Ils sont fixés de manière rigide.
- 3. Installation de guides. Si la taille ne correspond pas, coupez à la taille requise avec une scie à métaux pour le métal. Une distance de 25-30 cm est déterminée entre les trous.
- 4. Installation de panneaux. D'une part, un verrou complète le profilé de guidage, et l'extrémité du panneau et le rouleau sont amenés dessus. Réparez les guides.
- 5. Création de trous dans les panneaux pour l'installation de charnières de fixation lors de l'assemblage du vantail de porte. Les lamelles sont placées dans l'ordre requis (la première et la dernière peuvent être marquées). La distance entre eux est de 3-4 mm. Vérifiez à nouveau les fixations.
- 6. Installation de la toile. Tous les volets sont assemblés avec un accordéon et placés dans les rainures du rail de guidage. Un contrôle final est effectué et leur position est ajustée à l'aide d'une clé de réglage.
- 7. Installation de plateaux. Coupez l'excédent avec une scie à métaux, attachez-les à des clous liquides ou à meubles.Dans ce dernier cas, les points d'insertion sont peints avec un crayon spécial d'une palette de couleurs appropriée.
Préparer la porte
Après avoir acheté le kit, vous devez commencer à préparer la porte. Pour cela, l'ancienne porte est démontée. Il est nécessaire d'enlever l'ancienne cloison sèche ou le mortier à la surface du mur afin qu'il n'y ait aucune difficulté à installer la nouvelle boîte. Une fois le démontage terminé, des mesures de l'ouverture sont effectuées. Cela est nécessaire pour déterminer s'il est nécessaire de réduire ou d'augmenter l'ouverture de la structure acquise.
Attention. La porte préparée pour l'installation doit être plate sur tout le périmètre. L'erreur dans le chevauchement supérieur est autorisée, mais pas plus de 5 mm. Ceci est déterminé par le niveau. Les côtés doivent être strictement parallèles les uns aux autres et de la même épaisseur sur toute la hauteur - sans rétrécissement ni élargissement.
Le nouveau cadre de porte est assemblé à partir des accessoires achetés. Vous pouvez les acheter dans les magasins officiels du fabricant qui fabrique des tissus et des accessoires. Dans le coin supérieur, la traverse supérieure est fixée avec des vis autotaraudeuses. La boîte assemblée est insérée dans l'ouverture. Les compléments sont fixés avec des ancres. Une boîte en forme de lettre "P" est installée dans l'ouverture, fixée avec des boulons d'ancrage et de la mousse. Lorsque vous travaillez, il vaut la peine d'utiliser un niveau pour éviter les distorsions de la boîte. Après séchage complet de la mousse, passez à l'étape suivante du travail.
Comment installer correctement un accordéon articulé rétractable?
"Accordion" est une excellente option pour les bureaux et les appartements. Elles sont relativement peu coûteuses et, comme toute autre porte de compartiment, sont associées à une compacité.
La "base" de ces produits est constituée par des rangées de divers types d'arbres, mais l'inconvénient de telles portes est qu'elles sont très difficiles. Les portes en plastique sont un «substitut» aux portes accordéon à partir de tableaux.
Moins - conception «fragile».
Plus - le prix du produit.
Pour le travail, tout d'abord, vous devez préparer correctement la porte - sans aucun doute, vous pouvez monter la porte accordéon dans un cadre de porte existant, cependant, une telle étape peut réduire considérablement la largeur de l'ouverture existante.


Il serait néanmoins conseillé d'enlever l'ancienne porte et la boîte, et de retirer tout le coulis sous celle-ci pour en faire du béton ou de la brique (le matériau à partir duquel votre maison est construite). Et puis seulement, il est nécessaire de mesurer l'ouverture, et de la vérifier avec les dimensions nominales de la porte avec un nombre de composants différent.
Ces dimensions sont écrites dans le document de la porte. Considérez uniquement la largeur des extensions. En conséquence, vous déterminez quoi faire avec l'ouverture: agrandissez-la ou, au contraire, rétrécissez-la à l'aide de mousse de construction, d'extensions et de poutres.
Les ajouts préparés sont d'abord coupés pour faire une boîte sans rebords. Ensuite, ils forent des trous avec une perceuse de deux millimètres, à la place des vis autotaraudeuses, et mettent des vis autotaraudeuses, fixent la barre transversale en haut, où se trouvent les extensions verticales.
À la fin de la construction de la boîte, celle-ci doit être insérée dans l'ouverture à l'aide de poutres. Pour attacher des extensions au mur, utilisez de longs boulons d'ancrage - 3 blagues à gauche et à droite et 2-3 en haut.
Nous prenons la mousse de polyuréthane et moussons le segment entre le mur et le mur, attendons qu'il durcisse. Et plus tard, nous commençons à installer la porte elle-même.
Comme pour l'installation de toute porte coulissante, vous devez commencer par les rails. Un tel profil est déjà inclus avec la porte. Il est nécessaire de mesurer la longueur sélectionnée du profil et de couper l'excédent.
Vous devez également couper le profil de la zone aveugle et la place sur le côté de la poignée de porte. Il est nécessaire de vérifier toutes les dimensions, en inclinant le profil, mais sans les régler. Ensuite, vous devez faire des trous dans les profils de 3 mm, et dans le profil supérieur, vous devez faire des trous avec une distance d'environ 6 cm, et sur les côtés - environ 16-17 cm.
Si le profilé est fixé avec des clips spéciaux, procédez à leur installation sur toute la zone requise de la porte.En haut, vous devriez avoir environ 7 clips et sur les côtés 4-5.
Nous commençons à assembler le vantail de la porte. Il ne faut pas oublier que toutes les bandes doivent avoir la même hauteur et que lors de l'installation, il est nécessaire de laisser un espace au bas d'environ 10 mm - pour la ventilation.
Comment assembler ce type de porte est généralement écrit dans le passeport. Si votre future porte est en plastique, les panneaux qu'elle contient sont reliés à l'aide de rainures ou à l'aide d'entretoises supplémentaires.
À la fin de la connexion de tous les composants, il est nécessaire d'assembler et de fixer tous les raccords. Il ne reste plus qu'à installer la porte assemblée dans l'ouverture.
Pour ce faire, la porte doit être fixée avec des rouleaux au profilé de guidage, puis pliée et positionnée au centre du profilé, il est ainsi plus facile d'installer le guide dans l'embrasure de porte.


Si vous utilisez des clips, le guide leur est attaché. Ensuite, vous devez commencer à installer les profils latéraux. La facilité de mouvement de la porte et l'étanchéité de son ajustement au contre-profil du côté de la poignée sont vérifiées.
Si tout est en ordre avec cela, vous devez réparer la poignée. Pendant que la porte est fermée, l'emplacement de la serrure est noté de l'autre côté et un loquet avec un aimant est fixé à cet endroit.
Quand tout est prêt, les plateaux sont réparés.
La partie excédentaire est coupée avec une scie à métaux à un angle aigu. Vous pouvez les fixer avec des ongles liquides ou spéciaux avec des têtes invisibles. L'installation de la porte accordéon est prête.
Porte de livre
Les résidents de petits appartements n'ont pas besoin d'être informés de l'espace de vie exigu, des couloirs étroits et de l'impossibilité que deux personnes se manquent dans l'allée.
Les portes battantes qui s'ouvrent sur tout le couloir sont sûrement devenues à plusieurs reprises une source de bosses et d'abrasion pour les ménages.
Par conséquent, il est tout à fait naturel que tôt ou tard les propriétaires envisagent une utilisation plus rationnelle des mètres carrés. Et le porte-livre devient une vraie bouée de sauvetage.


Corriger les étapes d'installation
Lors de l'auto-assemblage et de l'installation de la porte-livre, la séquence des étapes d'installation doit être suivie. Après avoir préparé l'ouverture, la toile est assemblée. Une description étape par étape du processus vous aidera à tout faire correctement.
Installation de la structure suspendue de la porte-livre
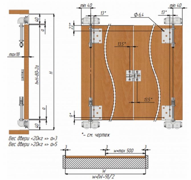
Une toile est attachée à la boîte. Le sens de pliage est déterminé à l'avance. Il est recommandé d'utiliser 3 jeux de charnières dans l'installation afin que le mécanisme puisse supporter le poids des toiles. Au travail, il est nécessaire d'incorporer correctement les boucles dans le canevas afin que l'écart entre les extensions et le canevas soit uniforme. Si les conditions ne sont pas remplies, un biais peut apparaître, ce qui menace la déformation et la réparation ultérieure.
Installation de ferrures suspendues
Raccords coulissants:
- Rail en aluminium.
- Chariot à rouleaux.
- Guide à rouleaux, avec lequel le chariot à rouleaux est fixé à la porte.
- Vis autotaraudeuses.
- Limiteurs.
Les livres utilisent un système coulissant standard pour déplacer les panneaux. En haut se trouve un rail en aluminium avec une fente de chariot intégrée et des rouleaux mobiles. Le travail se fait à l'aide d'un niveau. Ceci est nécessaire pour que le rail se fixe horizontalement sans distorsion. Le chariot à rouleaux doit se déplacer librement et facilement à l'intérieur. Des limiteurs sont intégrés le long des bords du rail, ce qui ne permet pas à la toile de heurter lors du glissement. L'étape suivante consiste à mettre en place un guide à rouleaux vers l'une des toiles. Le chariot à rouleaux et le guide sont maintenus ensemble.
Les installateurs insistent pour lubrifier le mécanisme avec de l'huile une fois l'assemblage terminé. Cela rendra la conduite douce et protégera la structure de la corrosion.
Installation de raccords supplémentaires
Les portes sont utilisées quotidiennement et sont soumises à des contraintes accrues, par conséquent, l'installation de ferrures solides est nécessaire. Ce sont des fixateurs spéciaux, des serrures, des poignées.
Pour les "livres", il est recommandé d'installer des poignées intégrées dans le canevas. Cette option n'endommage pas le panneau de porte adjacent une fois plié.La poignée, qui dépasse et s'installe dans une ouverture étroite, est traumatisante pour les passants.
Instructions pas à pas pour l'assemblage des portes accordéon
Il n'est pas difficile d'assembler et d'installer des portes accordéon. Ils sont accompagnés de fixations et de pièces détachées. Les fabricants ajoutent nécessairement des bandes de rechange aux modèles coûteux au cas où la porte devrait être étendue. Le processus d'installation lui-même comprend les étapes suivantes:
- Préparation des outils et du matériel. Vous devriez avoir sous la main: une perceuse à percussion, un ruban à mesurer, un perforateur, un niveau, un fil à plomb, une scie à métaux, une boîte à onglets, un coin, des blocs de bois, de la mousse de montage, des extras, des plateaux.
- Préparation d'ouverture. Il n'est pas nécessaire de retirer la boîte existante, mais il vaut mieux s'en débarrasser quand même. il réduit la porte.
- Formation d'une boîte sans seuil après démontage de la porte et nettoyage des surfaces de l'ouverture de la solution. Dans le même temps, la barre supérieure est fixée, en la fixant avec le côté d'extrémité vers le haut des extensions verticales et en la fixant avec des vis autotaraudeuses.
- Installation de la boîte. Il est inséré dans la porte et sécurisé avec des cales. Une fixation fiable est assurée par des barres de la même largeur que l'ouverture. Des entretoises en sont faites au centre et en bas, si cela n'est pas fait, les extensions se plieront. Les extensions elles-mêmes sont fixées au mur à l'aide de longues ancres. Disposition idéale: 2 sur le dessus et 3 sur les côtés. L'opération se termine par un moussage de l'espace entre le mur et les addons.
- Installation du profil de guidage. Tout d'abord, mesurez la longueur requise, coupez l'excédent à l'aide d'une boîte à onglets. Les dimensions sont vérifiées en appliquant le profil, mais pas en le fixant. Des trous d'un diamètre de 3 mm sont percés aux endroits du profilé où des vis autotaraudeuses seront vissées à une distance de 50-70 mm sur le profil supérieur et sur les côtés - 150-200 mm. Si la fixation du profilé à des clips est prévue, alors ces derniers sont montés le long du périmètre de l'ouverture. Dans le même temps, des rails plus grands sont utilisés pour le profil et les rails, et des rails plus petits du côté de la rainure de finition et du verrou magnétique.
- Assemblage de la porte. Les lattes qui composent le vantail de porte sont réglées en hauteur, en tenant compte de la marge du système de rouleaux inséré dans le rail de guidage et de la fente de ventilation inférieure. La porte elle-même est assemblée selon les instructions qui y sont jointes.
- Installation de rouleaux. Après l'assemblage complet de la toile, placez les rouleaux et autres accessoires inclus dans le kit. Tous les travaux sont effectués dans le strict respect de chaque paragraphe des instructions.
- Installation finale. Les rouleaux du vantail assemblé sont insérés dans le profilé de guidage. Ensuite, pour faciliter le montage du guide, la porte est pliée, placée au milieu du profilé. Lorsque des clips sont utilisés, le guide est simplement encliqueté sur eux. Si l'utilisation de vis autotaraudeuses est envisagée pour la fixation, alors le rail est d'abord fixé le long des bords et sur toute la longueur, puis les profilés sont fixés sur les côtés, puis le maillon aveugle de «l'accordéon» est fixé à Le profil.
- Vérification du mouvement de la porte et de l'étanchéité de sa pression sur l'otvetka du côté où se trouvera la poignée. S'il n'y a pas de commentaire, la poignée est installée, puis la porte est fermée, l'emplacement de la réponse de verrouillage est noté et le loquet magnétique est vissé.
- La dernière étape. Enfin, des plateaux sont installés autour du périmètre. Pour ce faire, coupez l'excédent à un angle de 450. Pour fixer les plateaux, utilisez des clous à tête fraisée ou des clous liquides.
Conseils. Lors du vissage de vis autotaraudeuses, des dommages matériels se produisent souvent. Pour éviter cela, faites d'abord les trous à l'aide d'une perceuse plus petite, puis installez les fixations.
Les portes accordéon sont une merveilleuse alternative aux portes battantes. Ils économisent non seulement de l'espace, mais peuvent également devenir un point culminant de l'intérieur.
Conseils utiles pour l'installation de la porte
Les livres de porte appartiennent à des modèles pliants, mais présentent de légères différences. L'installation du «livre» nécessite un nombre différent de guides et une méthode d'installation des panneaux. Lors de l'utilisation de deux guides, des difficultés d'installation surviennent. "Book" est très fiable et durable.
Lors de l'installation de la porte, le soin et la précision sont nécessaires. La porte a besoin d'un ajustement serré.
Avec un ajustement lâche et une fois installé hors de niveau, des craquements ou des distorsions apparaissent pendant le fonctionnement, ce qui entraîne des pannes. Les portes ne se ferment pas complètement ou hermétiquement, ne s'ouvrent pas bien.
La préparation de l'ouverture et le nivellement du sol jouent un rôle important dans l'installation et la suite de l'exploitation. Avec une installation appropriée, le mécanisme fonctionne silencieusement, en douceur. Pour un fonctionnement à long terme, une attitude prudente vis-à-vis de la structure est nécessaire. Ne cognez pas et n'ouvrez pas les portes brusquement.
Il vaut la peine d'utiliser des raccords de haute qualité de fabricants de confiance, qui garantissent un travail bien coordonné et une longue durée de vie de l'ensemble de la structure. Tout ce dont vous avez besoin peut être fourni par le fabricant de la porte ou par le fournisseur de ferrures spécialisées.
Une installation correcte de la porte de la bibliothèque, en suivant les instructions et les étapes d'installation, garantit le fonctionnement fiable de la structure et est un processus simple. Ne vous précipitez pas, observez l'exactitude et la précision des mesures. Une porte-livre correctement installée de vos propres mains durera de nombreuses années, économisera de l'espace et décorera l'intérieur avec une apparence attrayante.
Vidéo: un exemple d'installation d'une porte accordéon
(1 évaluations, la moyenne: 5,00 sur 5)
Chargement…
quoi d'autre lire:
Auto-assemblage d'une porte coulissante coulissante en 6 étapes
Remplacement de la porte d'entrée: préparation, installation, inspection
Nous réalisons des pentes sur la porte d'entrée: plâtrage, pose avec et sans cadre
Afficher tous les matériaux avec l'étiquette: portes Aller à la section: Fenêtres et portes de l'appartement et de la maison
Discussion:
Le 29/05/2014 à 09h28, Sergey a déclaré: Et lorsque nous faisions les réparations, nous avons essayé de faire autant d'arcs que possible - cela a l'air très spacieux et super. Mais le dressing qui jouxte la chambre devrait toujours être fermé, nous avons décidé que l'option idéale était précisément la porte accordéon, avant de l'installer, nous l'avons décorée sous le papier peint pour qu'elle ne soit pas visible. Je l'ai installé moi-même sans aucun problème, dans l'article il est en quelque sorte décrit avec trop de détails, mais pour les débutants en réparation, c'est le truc. J'ai passé moins d'une heure à installer! réponse
15/12/2013 à 22:38 Ekaterina Grishchenko a dit: Bonsoir, dites-moi s'il vous plaît. Ils ont installé une telle porte, car elle est vraiment très confortable, au début nous étions ravis. Mais il y a un mois, elle a commencé à se saisir, à se déformer et à grincer ... Je ne vois pas ce problème que pour moi. Peut-être que la durée de vie de ces portes est limitée? Ou avons-nous fait quelque chose de mal? Le sol et le plafond sont plats, je l'ai vérifié avec un niveau. réponse
12/04/2013 à 11h22 Sergey Alekseevich a déclaré: Le secret de l'installation de telles portes est que les guides doivent être parfaitement parallèles. Une telle porte est certainement pratique dans les endroits avec un espace limité. Avant l'installation, des travaux supplémentaires doivent être effectués pour niveler le sol et le plafond. réponse
09.11.2013 à 13:31 Ekaterina a déclaré: De telles portes sont indéniablement pratiques, mais malheureusement, leur installation n'est pas si facile. Nous avons une chambre dans une auberge, donc il n'y a pas de cuisine ou de toilettes dans la chambre, afin de séparer une petite cuisine, nous avons installé une telle porte. Je vis sans mon mari et j'ai repris l'installation, j'ai travaillé très longtemps du coup, mais le mécanisme collait tout le temps, la porte ne se replie pas complètement, en général, je n'ai pas beaucoup d'enthousiasme pour de telles portes . réponse
Le 31.10.2013 à 02:40, alexa a déclaré: Ces portes sont très pratiques dans nos appartements pas très grands. Bien sûr, les portes intérieures en bois sont belles et prestigieuses, mais il est toujours impossible de garder la porte de la pièce fermée, et une porte ordinaire ouverte prend beaucoup de place. Et sans portes à arcades, ce n'est pas pratique. C'est pourquoi nous mettons de telles portes comme un accordéon. Le résultat est un gain d'espace considérable, à la fois moderne et beau. réponse
écrivez
Nom *
Abonnez-vous aux réponses par e-mail
En cliquant sur le bouton «Ajouter un commentaire», j'accepte les conditions d'utilisation et la politique de confidentialité du site.
- https://masterim.guru/remont/ustanovka-dveri-garmoshki/
- https://remoskop.ru/ustanovit-dver-garmoshku-sobstvennyimi-silami.html
- https://glav-dacha.ru/dver-garmoshka/
- https://derevyannie-doma.com/poleznoe/dver-garmoshka-ustanovka-sborka-svoimi-rukami-poshagovaya-instrukciya.html
- https://vopros-remont.ru/okna-i-dveri/ustanovka-mezhkomnatnoj-dveri-garmoshki-svoimi-rukami/
Porte de livre à faire soi-même
Une porte-livre est une conception coulissante d'une porte intérieure, composée de deux ou quatre toiles, se pliant comme un livre. Les portes de ce type aident non seulement à économiser de l'espace, mais également à souligner les caractéristiques de l'intérieur de la pièce. Pour les portes pliantes, un matériau léger est le plus souvent utilisé, car le design classique est suspendu. Mais, si les toiles sont lourdes, par exemple en bois naturel ou en verre trempé, le système de sol à rouleaux est en outre monté. Dans ce cas, l'intégrité du revêtement de sol est violée.
Porte de livre à faire soi-même
Contenu des instructions étape par étape:
Vidéo - conception et type d'une porte-livre
Avantages d'une porte-livre suspendue
- Cette méthode de délimitation d'une pièce permet d'économiser de l'espace. La porte pliante ne nécessite pas d'espace au sol pour s'ouvrir, comme c'est le cas avec les portes battantes conventionnelles. Les feuilles sont situées dans l'embrasure de la porte et ne l'encombrent pas.
- Si la structure est suspendue, le revêtement de sol reste intact; également, pour cette porte, l'installation d'un seuil n'est pas nécessaire.
- La porte s'ouvre facilement à partir de n'importe quelle poussée, ne peut pas frapper ou appuyer sur une personne. La structure peut être installée dans des appartements où vivent de petits enfants.
- La structure de la porte pliante peut être installée dans n'importe quelle ouverture de largeur, au choix avec ouverture à droite ou à gauche.
- Le mécanisme à rouleaux renforcés suspendus se caractérise par des performances et des capacités à long terme.
Avantages d'une porte-livre suspendue
Les inconvénients d'une structure suspendue
- Les toiles lourdes décorées de verre ou d'autres inserts décoratifs coûteux nécessitent une manipulation soigneuse. Aussi, sans faute, la structure suspendue doit être équipée de fermetures qui protègent les toiles des chocs les unes contre les autres.
Les toiles lourdes décorées de verre ou d'autres inserts décoratifs coûteux nécessitent une manipulation soigneuse
Pour l'installation d'une structure pliante, des raccords spéciaux sont nécessaires
Caractéristiques, avantages et types
Lors de l'installation de telles solutions, vous pouvez économiser beaucoup d'espace dans l'appartement - les portes ne s'ouvrent pas vers l'extérieur, respectivement, elles ne forment pas une grande zone d'ouverture. Les portes de livre peuvent ne pas plaire aux détracteurs des trains et des bus, mais elles sont parfaites pour les personnes sans stéréotypes.


En règle générale, le type de construction est réalisé sous la forme d'un accordéon ou d'un livre. Les deux types fonctionnent comme des stores. D'un point de vue technique, la porte pliante du livre est constituée de panneaux fixés verticalement, interconnectés au moyen d'un mécanisme qui assure le mouvement de translation (l'un après l'autre) des panneaux. Le mécanisme fonctionne grâce aux guides le long desquels les panneaux se déplacent. L'ouverture et la fermeture de la porte du livre avec le réglage correct est fluide et silencieux.
Il existe également un type de porte comme un accordéon. Sa conception peut prévoir six vantaux, qui constituent un écran, et l'installation de telles portes n'est justifiée que pour les portes larges. De telles portes n'ont pas d'avantages sans équivoque et leur prix est nettement plus élevé que celui des portes pliantes de livres. De plus, l'accordéon doit toujours être huilé et nettoyé de la saleté, car il est très capricieux à utiliser.


Les portes de livre sont une question complètement différente. Étant donné que ces appareils n'ont que deux toiles, le mécanisme est considéré comme très simple et direct. L'apparence est assez intéressante et subjectivement meilleure que celle des "accordéons", et le prix bas attire l'attention des acheteurs potentiels.
Les portes pliantes sont produites dans différents modèles - à deux sections et à quatre sections. Les caractéristiques de conception des options répertoriées sont insignifiantes.Dans le premier cas, les portes sont ouvertes en pliant et dépliant simultanément deux sections identiques l'une à l'autre, tant en longueur qu'en largeur.


La deuxième option se distingue par la présence de sections supplémentaires, dont le principe de pliage est similaire à la première, mais la porte elle-même vous permet de couvrir une grande largeur d'ouverture. En réduisant la largeur des sections dans les solutions à quatre sections, une quantité importante d'espace de vie peut être économisée.


Le type de porte à choisir dépend de la taille de l'ouverture de la porte. Si la largeur de l'ouverture ne dépasse pas 1,5 à 1,7 m, l'installation d'une porte à deux sections sera justifiée. Avec une largeur plus grande, vous devriez penser à installer une option à quatre sections.
Pour un travail de haute qualité de portes pliantes de livres, il est nécessaire de choisir les guides corrects et fiables. La porte du livre est un mécanisme simple, car le nombre de guides varie de un à deux.
S'il y a quatre feuilles, deux guides sont nécessaires - un supérieur et un inférieur. S'il y a deux volets, seul le guide supérieur peut suffire, cependant, afin d'éviter l'inclinaison de la structure, vous pouvez penser à un deuxième guide.
Le choix de l'option requise dépend de la précision du consommateur et de la fréquence d'utilisation de la structure coulissante. S'il n'est pas utilisé souvent, vous pouvez économiser sur des mécanismes et des accessoires plus complexes.
Comment faire des toiles pour une porte de livre de vos propres mains
Vous devez d'abord décider du matériau. Il n'est pas pratique d'utiliser du bois naturel lourd ou de grandes feuilles de verre trempé pour une structure pliante. Le matériau est assez lourd, ce qui au fil du temps affectera négativement les performances du harnais.
Vous pouvez commander des toiles prêtes à l'emploi en MDF ou les fabriquer vous-même.
Il est préférable d'utiliser une structure en panneaux pour la fabrication de panneaux de porte intérieurs. Cela nécessitera le matériel suivant:
- barres en bois (25 sur 25 mm);
- chevilles;
- Colle PVA;
- Panneaux HDF.
Un cadre pour la future toile est monté à partir des barres, en fonction de sa taille. Les barres sont découpées en ébauches de la taille requise et fixées avec des chevilles enduites de colle. Il est conseillé de disposer les barres non seulement le long des bords de la toile, mais également de former des raidisseurs à partir d'elles à l'intérieur de la porte.
Panneaux HDF (3 ou 4 mm d'épaisseur) - matériau mince en feuille avec une surface lisse, fabriqué par pressage à chaud de la sciure de bois. Ce matériau est découpé en morceaux qui ont les dimensions d'un vantail de porte. Ensuite, les panneaux sont fixés au revêtement en bois. Le projet de version du vantail de porte est prêt. Il peut être peint, stratifié, plaqué, selon les préférences individuelles.
Vous pouvez également fabriquer des vantaux de porte à partir de panneaux MDF recouverts de placage ou d'un autre matériau. C'est la solution la plus simple - vous devez choisir le matériau qui est optimal en couleur et en épaisseur et le découper en toiles de taille égale. Les experts recommandent d'utiliser du MDF d'une épaisseur de 22 à 25 mm.
Les bords des portes peuvent être traités de deux manières: en collant du papier spécial avec un fer à repasser ou en utilisant des bords en plastique prêts à l'emploi qui sont emboîtés sur les extrémités des panneaux en tension. Cette dernière option se distingue par sa résistance et sa durabilité, car le papier collé après un certain temps peut simplement tomber, gâchant l'apparence de la porte.
Pour une porte-livre, deux toiles de même taille sont fabriquées et fixées avec des charnières. Pour que la structure soit solide et fiable, il est recommandé de fixer 3 jeux de charnières: en haut, en bas et au milieu de la toile. La structure résultante se plie et se déplie comme un livre ordinaire.
Installation de la structure suspendue de la porte-livre
Installation de la structure suspendue de la porte-livre
Matériaux nécessaires pour monter une porte-livre.
- Panneaux MDF (épaisseur 20-25 mm)
- Platbands.
- Accessoires de fixation pour add-ons et plateaux.
- Barres en bois.
- Mousse de polyurethane.
Systèmes de portes pliantes en aluminium
Outils pour les travaux d'assemblage.
- Perforateur.
- Scie sauteuse.
- Tournevis.
- Roulette.
- Niveau.
- Scie sur bois.
- Boîte à onglets.
- Crayon.
La première chose à faire est de préparer la porte pour les travaux d'installation. Pour cela, l'ancien cadre de porte est retiré. Ensuite, il est nécessaire d'aligner les pentes et de monter les extensions - des planches qui cachent les ouvertures en béton et agissent comme un cadre de porte.
La largeur et la longueur des extensions dépendent de la taille de la porte. Les pièces nécessaires sont découpées dans les panneaux MDF à l'aide d'une scie sauteuse électrique et fixées avec des chevilles sous la forme de la lettre P. Ensuite, la structure en forme de U résultante est insérée dans la porte et percée avec des ancrages. Lors de l'installation d'add-ons, il est recommandé d'utiliser un niveau, les ferrures de fixation doivent être percées à la même distance, ce qui aidera à éviter les distorsions du cadre de la porte.
Mécanisme de porte coulissante
Pour que les extensions tiennent fermement, il est nécessaire de faire mousser les espaces entre les panneaux MDF et le mur. À l'avenir, la mousse et les bords des add-ons seront cachés par les plateaux, ce qui affinera l'apparence de la porte.
Après avoir installé les modules complémentaires, il est nécessaire de fixer le vantail de porte au cadre, après avoir sélectionné au préalable le côté dans lequel la structure de la porte sera pliée. Il est conseillé d'utiliser 3 jeux de charnières, qui sont conçus pour des charges élevées et peuvent facilement supporter le poids des toiles pliantes. Avec cette procédure, il est important d'enfoncer correctement les charnières dans le vantail de la porte afin que l'écart entre les extensions et le vantail de porte reste égal. Sinon, toute la structure peut être biaisée et déformée, ce qui entraînera rapidement une réparation.
De quoi avez-vous besoin pour travailler?


Feuilles de contreplaqué
À la maison, il est difficile de traiter du verre trempé épais pour les panneaux de porte ou le bois massif. Le plus souvent, une structure légère est assemblée à partir des matériaux les plus abordables:
- barre de 2,5 cm d'épaisseur;
- éléments supplémentaires et platines pour le cadre de la porte (il est préférable d'acheter des pièces décoratives prêtes à l'emploi);
- contreplaqué de 0,5 cm d'épaisseur ou panneau de fibres de bois;
- boucles (carte, piano);
- accessoires et finitions décoratives (contreplaqué, films, etc.).
Il est très pratique d'utiliser des panneaux MDF prêts à l'emploi comme vantail de porte. Ils peuvent être commandés auprès d'un magasin de meubles ou d'une entreprise de construction. Ce matériau peut être découpé sur place aux dimensions prévues et collé à la découpe avec une bordure en PVC ou en feuille. Des portes inhabituellement délicates et belles sont obtenues à partir de panneaux perforés HDF. Si vous le souhaitez, vous pouvez combiner des matériaux, en ne faisant que la moitié supérieure des portes ajourée et en prenant la moitié inférieure avec des panneaux de fibres de bois ordinaires.
Pour travailler, vous devez préparer les outils:
- scie sauteuse ou scie à main;
- perforateur et ancre;
- ciseau et marteau;
- percer avec une perceuse fine et un tournevis;
- vis autotaraudeuses ou cheville de meuble;
- toile émeri;
- mousse de polyurethane;
- colle de menuisier.
Il n'est pas recommandé d'enfoncer des clous dans un bloc mince. Les connexions doivent être effectuées uniquement avec des chevilles ou des vis autotaraudeuses. Le dernier type de fixation doit être vissé dans des trous pré-préparés avec un diamètre légèrement inférieur à l'épaisseur de la vis autotaraudeuse.
Installation de ferrures suspendues
Raccords pour le mécanisme coulissant.
- Rail en aluminium.
- Chariot à rouleaux.
- Guide à rouleaux, avec lequel le chariot à rouleaux est fixé à la porte.
- Vis autotaraudeuses.
- Limiteurs qui empêchent le vantail de heurter le mur.
Un rail en aluminium coupe dans la partie supérieure de la boîte, dans laquelle se trouve une rainure pour un chariot à rouleaux. Cela doit être fait avec un niveau, en s'assurant soigneusement que le rail est fixé à la boîte strictement horizontalement. Le chariot à rouleaux doit glisser doucement à l'intérieur de la rainure sans interférence. Ensuite, des dispositifs de retenue sont fixés aux bords du rail en aluminium, qui protègent les vantaux de la porte contre le mur.
La dernière étape consiste à fixer le guide à rouleaux sur l'un des vantaux de la porte. Ensuite, le chariot à rouleaux et le guide sont connectés.
Les experts recommandent qu'après l'assemblage, enduisez soigneusement l'ensemble du système avec du lithol, ce qui améliorera le mouvement du mécanisme et le protégera de la corrosion.
Comment fabriquer soi-même une porte pliante
Vidéo - fixation des charnières et du mécanisme de suspension
Si les vantaux de porte sont en matériau lourd, les experts recommandent d'équiper en plus la structure d'un système de rouleau de sol.
Un rail en aluminium est monté dans le sol, un chariot avec des rouleaux y est inséré, qui est fixé au bas du vantail de la porte par un guide à rouleaux. De plus, ce système est équipé de brosses anti-poussière qui empêchent l'accumulation de poussière dans le rail le long duquel le chariot se déplace.
Les inconvénients du système à double rouleau sont l'enfoncement du profilé en aluminium dans le revêtement de sol, ce qui nuit à son intégrité.
Avantages - capacités opérationnelles élevées, moins d'usure des raccords, durabilité de l'ensemble du système.
Installation de la structure suspendue de la porte-livre
Éléments matériels
Comme toute autre porte intérieure, une structure pliante se compose de nombreux éléments importants. Il faut savoir que la durabilité, l'exactitude et la facilité d'utilisation de la porte dépendent directement de la qualité des ferrures. C'est pourquoi il est important de sélectionner et de surveiller soigneusement tous les détails de la structure afin d'éviter de graves dommages.


Le nombre de noms de composants qui sont des ferrures dans les portes pliantes est plus élevé que dans les produits battants en raison de la complexité de la conception. Ainsi, les éléments des ferrures de porte pour livres et accordéons comprennent:
- Rail de guidage;
- Mécanismes à rouleaux;
- Scellés;
- Mécanismes de boucle;
- Des stylos;
- Pinces et pinces.
Certains détails sous la forme de charnières et de poignées sont similaires aux mécanismes des systèmes de balançoire. Les autres éléments sont des produits strictement individuels utilisés dans les portes coulissantes.
Rail de guidage
Le rail de guidage est constitué d'un profilé en aluminium plié en forme de U et est coupé à la longueur requise lors de l'installation. Le nombre de gouttières dépend directement du type de système installé. Pour les portes pliantes, un profil avec une rainure est utilisé.


Lors du processus de sélection et d'installation du rail de guidage, il est nécessaire de contrôler strictement l'absence de défauts sur le produit, ainsi que la conformité de la position de l'appareil avec le niveau horizontal. Tout écart entraînera des problèmes dans le fonctionnement de l'ensemble de la porte. Ainsi, le produit peut commencer à s'ouvrir ou à se fermer spontanément. Il est également possible que les mécanismes à rouleaux se coincent lorsqu'ils sont en mouvement.
Dans le cas d'un système à deux guides, la charge principale est le rail situé en bas. Dans ce cas, le profil supérieur sert à assurer la structure verticale des portes pliantes.
Mécanismes à rouleaux
Les principales exigences des mécanismes à rouleaux sont d'assurer un glissement silencieux et un mouvement fluide des volets. Ces indicateurs sont obtenus grâce à l'utilisation de différentes jantes, mises sur les roues. Actuellement, les bandeaux sont:
- Caoutchouc;
- Téflon;
- Plastique;
- Fabriqué en matériau composite durci;
- Acier.


Dans le processus de production, des roulements spéciaux sont utilisés qui sont protégés contre les particules de poussière et les corps étrangers. Le mécanisme lui-même est assez simple et peut être jumelé ou asymétrique. Les produits appariés sont montés dans des profils fermés et asymétriques - dans des profils ouverts. Au moment de l'achat, les mécanismes à rouleaux sont entièrement équipés de tous les composants nécessaires, y compris les fixations.
Scellés
Le but principal des éléments d'étanchéité des portes coulissantes est de garantir que les vantaux s'emboîtent parfaitement dans le cadre.De plus, les joints assurent une protection contre les courants d'air et aident à maintenir le climat intérieur.


Le matériau des bandes d'étanchéité est du caoutchouc, du caoutchouc ou du silicone. Le caoutchouc est un matériau prioritaire en raison de sa grande élasticité et de sa résistance à l'usure. Le silicone est le plus couramment utilisé dans les produits en verre. Dans de telles conceptions, il fournit non seulement un ajustement serré des pièces, mais protège également l'ouvrant contre les dommages aux emplacements des attaches.
Mécanismes de boucle
Dans le processus d'assemblage des vantaux d'une porte-livre ou d'un accordéon, des mécanismes de charnière à mortaise de type carte sont le plus souvent utilisés. Pour leur installation, des rainures de la taille de l'épaisseur de la plaque de charnière sont découpées dans la partie d'extrémité de toutes les toiles. Après cela, les pièces sont fixées avec des vis autotaraudeuses.
Il ne faut pas oublier que le mécanisme se compose d'une plaque avec un évidement et d'une contre moitié avec une goupille. Toutes les pièces entaillées doivent être placées sur la même pièce d'extrémité. Les contre-plaques sont fixées à l'extrémité de la deuxième lame.
Après avoir placé tous les éléments et assemblé la structure ensemble, tous les châssis doivent être situés à la même hauteur. Pour assurer un assemblage correct, il est recommandé de d'abord accrocher toutes les portes ensemble sans utiliser de vis autotaraudeuses et de marquer la position de toutes les pièces séparément.


Des stylos
Dans la plupart des cas, dans les portes pliantes, un élément tel qu'une poignée de porte n'est pratiquement pas utilisé. Cela permet une certaine réduction du coût de construction. Un cadre profilé sert de support pour l'ouverture et la fermeture. Le plus souvent, un tel système est utilisé dans les portes d'armoires. Cependant, s'il existe un profil de faible épaisseur, un support spécial est placé sur la porte, ce qui vous permet de monter absolument toutes les poignées.
Dans le cas de l'équipement de la toile avec un verrou ou des loquets à base d'aimants, une poignée à part entière est installée. Dans ce cas, le produit n'est pas seulement un support pour les mains, mais contribue également activement à l'ouverture des volets. Des accessoires sous forme de poignées sont également nécessaires pour les portes pliantes en l'absence de profilés latéraux dans la conception de l'accordéon et du livre.
Le type de poignée le plus populaire lors de l'utilisation de verrous magnétiques est la mortaise. De tels produits présentent de nombreux avantages, dont l'ergonomie et la facilité d'utilisation. De plus, la pièce présente un niveau de sécurité élevé, car elle ne dépasse pas du niveau du vantail et, en cas de collision avec le vantail, protège contre les blessures.
Clips et pinces
Les pinces et les loquets sont intrinsèquement nécessaires dans les portes pliantes pour assurer la durabilité de la structure, car ils sont une sorte de limiteurs pour la course du châssis fixe extrême. Ce sont eux qui assurent l'intégrité des châssis, ainsi que des meubles et des murs adjacents à la porte.
Les plus couramment utilisés sont les fermetures magnétiques et les butées de porte. Le limiteur ne fixe pas les vantaux, mais ne leur permet pas seulement de se déplacer au-delà de la place définie. Un verrou avec un aimant monté à l'intérieur est placé dans la zone de la butée prévue de la bande. Dans ce cas, une rondelle métallique est installée sur la porte. Pendant le processus d'ouverture, la rondelle aimantée est fixe et ne permet pas à la porte de s'ouvrir davantage.
Installation de raccords supplémentaires
Étant donné que la porte entre les pièces est utilisée assez souvent, des équipements fiables et pratiques sont nécessaires: poignées, serrures, loquets.
Les experts recommandent d'utiliser des poignées encastrées dans la toile dans les portes de ce type, qui, lorsque le système est plié, n'endommageront pas le mur ou le vantail de porte adjacent. Il convient également de noter que la poignée en saillie peut blesser une personne passant par la porte. Cela est particulièrement vrai dans les cas où l'ouverture est plutôt étroite.
La porte accordéon pliante se compose de trois guides: supérieur (1c) et de deux côtés - gauche (1a) et droit (1b), ainsi que de deux demi-panneaux, gauche et droit (3), panneaux principaux (5) et éléments pour reliant les panneaux entre eux: charnière de liaison (4), rail de fixation (2), panneau de verrouillage (6). Le vantail de porte court le long du guide supérieur à l'aide de glissières (7) et est fixé avec des butées (8). Les rails de guidage sont fixés à l'ouverture avec des vis autotaraudeuses (11). La porte est fermée à l'aide de la poignée du panneau de verrouillage (9) et du loquet (10), qui est fixé au rail latéral droit
Les fermetures utilisées pour fermer en douceur les vantaux de portes ne conviennent que dans les cas où la structure est assez grande et les portes sont souvent ouvertes et fermées.
Vidéo - Porte pliante avec des toiles de différentes tailles
Choix du design
Types de structures
Pour qu'il n'y ait aucun problème lors de l'installation de la porte accordéon et qu'elle s'intègre harmonieusement dans l'ouverture et à l'intérieur de la pièce, il est nécessaire de faire le bon choix du modèle.
Pour ce faire, vous devez suivre certaines recommandations:
- Vous devez acheter une porte accordéon en fonction de l'intérieur de la pièce, en tenant compte des caractéristiques techniques des pièces adjacentes.
- N'installez pas de porte accordéon dans une ouverture de 0,5 mètre de large. En position ouverte, il sera difficile de se déplacer d'une pièce à une autre.
- Correctement, vous devez calculer le nombre de toiles nécessaires pour une ouverture intérieure particulière.
- Cela ne vaut pas la peine d'économiser lors de l'achat d'un produit, qui ne sait pas qu'un avare paie deux fois. Dans les modèles bon marché, dans la production, ils utilisent du plastique de mauvaise qualité et des raccords fragiles qui ne résistent pas à des charges importantes et fréquentes.
Kit standard (option):
- guides (1 ou 2);
- charnières de liaison et rouleaux de chariot (2 ou 4 pièces);
- panneaux;
- accessoires et une clé de réglage.
Il faut faire attention au nombre de panneaux et à leur largeur. Ensemble, ils doivent couvrir complètement la porte.
De plus, la correspondance des noms et le nombre de fixations. Sinon, l'installation prendra beaucoup de temps.
Ce à quoi vous devez faire attention lorsque vous créez une porte de livre à faire soi-même
- Il n'est pas recommandé d'installer une telle conception de portes vers une salle de bain ou des toilettes. Le système de pliage a de faibles propriétés d'économie de bruit et de chaleur. La lumière, l'humidité et les odeurs peuvent pénétrer à travers les interstices du sol et les espaces entre les feuilles.
- Si la porte est trop large, il est recommandé de considérer la conception du côté gauche et du côté droit des portes pliantes. Cela réduira la charge sur le harnais et facilitera l'ouverture et la fermeture des toiles.
- Pour les toiles lourdes, il est optimal d'utiliser un système de suspension renforcé pouvant supporter des charges maximales, s'il n'est pas souhaité de monter un rail de plancher supplémentaire.
Nikolay Zhuravlev
Rédacteur en chef
Auteur de la publication 28.01.2015
Avez-vous aimé l'article? Économisez pour ne pas perdre!
Porte de livre à faire soi-même: technologie d'installation (vidéo)
Aujourd'hui, le moment est venu où la question de la fonctionnalité de l'espace de vie s'est posée. Les propriétaires d'appartements doivent mesurer en permanence jusqu'à un centimètre de surface habitable pour installer confortablement des meubles et rendre leur maison plus confortable. Pour économiser de l'espace, la meilleure option serait d'installer une porte intérieure sous la forme d'un livre. Il s'agit d'un design d'intérieur très pratique et efficace dans un petit espace. Au fil des ans, les vêtements changent, les coiffures deviennent différentes. La mode de la porte change tout autant. Ces dernières années, les cadres de portes pliantes sont devenus très populaires. Ces modèles inhabituels et plutôt confortables conviennent à une variété de pièces. Ils présentent de nombreux avantages par rapport à une porte battante conventionnelle.


Une porte pliante peut avoir soit deux vantaux, soit une structure entière de vantaux pliants.
Comment faire un livre de porte de vos propres mains? Est-il possible de réaliser son installation sans l'aide de maîtres à la maison?
L'industrie moderne produit des portes d'une grande variété de designs. Le livre a deux rabats qui se plient en deux lorsqu'il est ouvert. Cette conception est une bouée de sauvetage pour les appartements dans lesquels les portes ont des dimensions minimales. Les portes pliantes sont libres de mouvement ou sont articulées.
Le montage de la porte n'est pas un processus technologique complexe. Son installation peut être effectuée par une personne sans certaines compétences ni expérience en construction. Ces conceptions peuvent différer légèrement dans les options de conception, mais chacune a les mêmes éléments qui sont obligatoires.
Quand est-il pratique d'utiliser un porte-livre


Ce produit est une excellente alternative à la conception de la balançoire. Il a des rabats qui glissent le long des guides métalliques. La porte pliante pliante a une taille compacte. En raison de cette caractéristique, il est utilisé dans l'agencement de petites pièces (dressings, couloirs étroits, salle de bain et cuisine).
Avantages et inconvénients
En plus d'économiser de l'espace, la décoration intérieure présente les avantages suivants:
- praticité (certains modèles s'ouvrent de 2 côtés);
- faible coût (par rapport aux analogues);
- facilité de travail d'installation;
- fonctionnement silencieux (adapté à toutes les pièces).
À l'aide d'un livre, la pièce peut être divisée en zones. Cette option de portes dans la cuisine est particulièrement acceptable, où il est nécessaire de mettre en évidence les zones de travail et de salle à manger.
Nuances de conception, techniques de production


Diagramme d'élément de porte pliante.
La version standard de ce livre est considérée comme une porte avec deux toiles. Il y a des portes dont le nombre de vantaux est beaucoup plus grand. Cela est dû aux exigences de fonctionnalité et aux désirs personnels du propriétaire. La division asymétrique des portes est considérée comme l'une des variétés de la porte-livre. Ce modèle a l'air très impressionnant et pratique.
Le principal avantage du livre est la possibilité de moduler l'espace. Une variété de solutions de couleurs utilisant une variété de matériaux permettent d'intégrer harmonieusement la porte à l'intérieur de l'appartement. Le design original est réalisé en sélectionnant le modèle souhaité.
Une installation facile est considérée comme une qualité positive supplémentaire du livre. Pour installer un vantail dans un cadre de porte, vous n'avez pas besoin de compétences particulières en menuiserie. Il vous suffit de lire les instructions et de suivre ses instructions. La porte pliante peut être installée même lorsque l'installation d'une porte battante n'est généralement pas possible. Vous pouvez installer indépendamment une porte pliante dans le couloir le plus étroit. Parfois, cette conception devient une partition interne.
Schéma du mécanisme de la porte pliante
Les structures pliantes les plus connues sont:
Le second type comprend deux toiles de même taille, se repliant lors de l'ouverture.
Les portes pliantes sont fabriquées à partir d'une grande variété de matériaux :
- Aggloméré;
- bois;
- Plastique;
- verre, qui est encadré par un cadre en métal.
Les combinaisons de bois avec d'autres matériaux sont impressionnantes. L'industrie utilise du cuir, du vitrail et plus encore. Avant d'installer la porte, il est nécessaire de choisir le bon matériau et la conception future de la structure.
La technologie d'auto-installation et d'installation d'une porte-livre


Le schéma de fixation du mécanisme à rouleaux au rail en aluminium.
Le dispositif de cette porte intérieure est assez simple. La porte du livre est fixée sur un côté du bloc de porte, pour lequel ils utilisent des supports ou des charnières standard ordinaires.
Le plus pratique est l'installation d'un livre à l'aide de charnières de porte. Le vantail de la porte s'adapte parfaitement au bloc de bois.
Pour l'auto-installation, le vantail de porte est d'abord assemblé.Chaque section doit être assemblée strictement dans l'ordre requis.
Les auvents sont accrochés au vantail de la porte. Les charnières sont fixées au bloc de porte. Pour que la porte subisse une charge uniforme, quatre charnières doivent être installées. Cette porte durera longtemps, elle sera solide et fiable.
Si vous n'utilisez pas de charnières, pour l'installation, vous devrez fixer le rail de guidage en aluminium en haut et en bas. Pour que cette conception fonctionne pendant une longue période, il est recommandé d'utiliser des rouleaux spéciaux avec roulements. Pour que le glissement des rouleaux soit régulier, les rails doivent être enduits d'huile de machine.


Schéma de montage d'un vantail de porte à deux vantaux.
L'opération finale de l'installation est la fixation du bus en aluminium. Ce rail sera une sorte de guide sur lequel sont fixés des rouleaux et des accessoires supplémentaires:
Pour plus de sécurité, vous pouvez également installer un rail supplémentaire. Toutes les opérations sont effectuées dans l'ordre suivant:
- le pneu est coupé à la taille souhaitée, fixé avec des vis;
- des rouleaux sont installés;
- le pneu est fixé au bloc et au sol.
La poignée de porte doit être fixée à 90 cm au-dessus du sol.
Pour une fixation supplémentaire de la porte, une serrure à mortaise est installée.
Une variété de matériaux sont utilisés dans la fabrication des portes de livre. Le revêtement en pin est devenu le plus demandé et le plus populaire en raison de son faible coût. Le panneau de bois a un beau motif de lumière qui se distingue par des taches sombres. Le côté négatif était sa douceur. La dureté du pin est assez faible. Un coup avec un objet pointu peut entailler et ruiner la beauté de la porte. Les panneaux les plus chers et les plus résistants à l'usure sont:


Le cadre de la porte doit correspondre strictement à la structure pliante, sinon les châssis ne s'ajusteront pas parfaitement au cadre et un espace se formera.
L'apparence de ces portes est plus belle et originale. Les matériaux artificiels, tels que les panneaux de particules, sont beaucoup moins chers. Cependant, leur temps de fonctionnement est beaucoup plus court. La toxicité de ces matériaux ne répond souvent pas aux exigences environnementales.
Dans la production de portes aujourd'hui, le verre de différents types est devenu très souvent utilisé:
Les verres sont installés dans des lattes de bois. Ce cadre est le plus cher. Pour terminer les travaux, vous aurez besoin des outils suivants:
De différents matériaux
Les portes pliantes en accordéon, comme les portes de livres, peuvent être fabriquées à partir de différents matériaux. Jetons un coup d'œil à eux dans les galeries de photos ci-dessous.
Porte accordéon en bois naturel


Bois naturel. Un matériau durable, soumis à son traitement compétent: le bois est imprégné d'un antiseptique, recouvert de teinture et de vernis. Au fil du temps, le revêtement se renouvelle. Une porte faite de ce matériau ne résiste pas aux changements d'humidité.
Porte pliante en MDF


MDF. Le matériau le plus résistant, insensible aux effets destructeurs de la moisissure et du mildiou. Comparé au panneau de particules, le matériau est plus adapté à la fabrication de portes complexes. L'aggloméré est suffisamment solide, léger, écologique, résistant à l'humidité et ignifuge.
Porte accordéon en aggloméré


Aggloméré. Pas cher, car il s'agit d'une feuille de sciure de bois collée. Une porte faite d'un tel matériau se révélera fragile. Comme il se compose de sciure de bois pressée et collée ensemble, les vis ne tiennent pas très fermement. L'avantage du matériau est une bonne isolation thermique et phonique, cependant, la conception de la porte accordéon ne permet pas au matériau de montrer pleinement ces qualités. Les panneaux de particules ont également une résistance à l'humidité et une biostabilité élevées, mais pour les portes pliantes, c'est loin d'être la meilleure option.
Porte pliante en plastique


Plastique. Matériau bon marché, résistant à l'usure et à l'eau. Idéal pour les cabines de douche. Facile à traiter, ne s'écaille pas, ne raye pas ou ne se fissure pas, ne sèche pas. Pour les portes intérieures, on utilise généralement du plastique avec un motif: sous un arbre, pour correspondre à la couleur des murs, etc.
(photos, instructions, master class vidéo)


Alors, disons que vous avez préparé la porte, installé le rail et que vous êtes prêt à installer le vantail de la porte. Eh bien, n'attendons pas, commençons l'installation dès maintenant!
Tout d'abord, vérifiez si tout correspond à la taille requise, si oui, alors c'est parfait. Vous devez installer des rouleaux sur le vantail de la porte - la partie principale du mécanisme de déplacement, au fait, voici une autre différence entre une porte accordéon intérieure pliante et une porte du compartiment coulissant: les rouleaux sont situés dessus non pas verticalement, mais horizontalement, par rapport au sol, de sorte qu'ils se déplacent le long des parois du guide, en outre, respectivement, l'axe de rotation est dirigé dans l'autre sens, et, en outre , les rouleaux ont également une unité de rouleau pivotant, il est nécessaire pour que la porte puisse se plier. Sinon, les étapes sont les mêmes que pour l'installation d'une porte coulissante, c'est-à-dire qu'à l'extrémité supérieure du vantail de porte, un rouleau est installé en deux parties. Une fois les rouleaux installés, vous devez installer l'essieu inférieur, sur lequel une partie du vantail de la porte sera fixée. Vous pouvez maintenant insérer les rouleaux dans le guide.
Ce que vous devez faire pour cela:
Vous souvenez-vous que le guide devait être fixé, pour l'instant, avec une seule vis, qui devait être placée au centre de la porte? Ainsi, maintenant, en raison d'une fixation aussi instable, vous devez déplier le guide et, une fois plié, installer le battant de porte dessus, puis le guide se déplie avec le battant de porte, dont une partie extrême est fixée sur l'axe inférieur . Eh bien, c'est tout, il ne reste plus qu'à fixer le rail en aluminium avec quelques vis supplémentaires, et à le lubrifier pour un meilleur glissement des rouleaux. Votre porte coulissante est prête, vous pouvez l'utiliser en toute sécurité!
Voici une autre chose, je vous ai dit à quel point il est important de préparer la porte et qu'il vaut mieux le faire avec une fausse boîte, ce modèle est la preuve la plus claire de mes propos, il suffit de regarder cette porte cassée!
Photos d'installation étape par étape
Lien vers la classe de maître vidéo:
Titre original: Accordion Door. Installation à faire soi-même Vidéo par: Repairman's School
Regardez la master class vidéo:



































