Tuyauterie de chaudière à gaz dans le système de chauffage
Une fois la chaudière à gaz murale installée et le radiateur placé sur le mur, la première étape consiste à le connecter au système de chauffage. Selon le modèle installé à un ou à deux circuits, il existe différents schémas de cerclage. Nous considérerons le processus de raccordement à l'aide de l'exemple d'une chaudière à gaz double circuit murale.

Comme vous le savez, une chaudière à double circuit, en plus du chauffage, est capable de produire de l'eau chaude pour les besoins des ménages. Structurellement, ceci est réalisé en installant un échangeur de chaleur bithermique ou deux échangeurs de chaleur séparés. Une chaudière à double circuit ne produit pas beaucoup d'eau chaude, mais elle suffit amplement pour 1 à 2 points de distribution (par exemple, un robinet de cuisine et une douche).
Une chaudière à gaz à charnière moderne est très compacte et contient déjà à l'intérieur d'elle-même les principaux éléments nécessaires au fonctionnement d'un système de chauffage à circulation forcée, tels que: une pompe de circulation, un vase d'expansion, un groupe de sécurité. Dans les systèmes de chauffage des petites maisons de campagne privées, c'est plus que suffisant, mais si nécessaire, vous pouvez installer un vase d'expansion supplémentaire ou une autre pompe.
Au bas de toute chaudière à double circuit à charnière, il y a 5 buses. Ils sont connectés à: les conduites d'alimentation et de retour du système de chauffage, l'alimentation et le retour de l'alimentation en eau chaude, le gaz principal. L'entrée de gaz est généralement centrée et colorée en jaune. Toutes les autres conduites peuvent être disposées dans n'importe quel ordre, selon le modèle de la chaudière à gaz. Par conséquent, avant de commencer le cerclage, il est nécessaire de clarifier le but de chacun d'eux dans le mode d'emploi.


La tuyauterie d'une chaudière à gaz murale est réalisée avec des tuyaux en polypropylène ou en métal. La section transversale des tuyaux de chauffage est généralement plus grande que les tuyaux d'eau chaude sanitaire de 3/4 et 1/2 pouces, respectivement. Le système de chauffage est relié à la chaudière par les écrous «américains». Des vannes à bille sont installées sur chaque ligne, pour faciliter le démontage de la chaudière à gaz sans vidanger le liquide de refroidissement et pour isoler la chaudière du système de chauffage, si nécessaire. Pour assurer l'étanchéité, toutes les connexions doivent être effectuées à l'aide de ruban FUM de plomberie ou de lin.
Des filtres grossiers doivent être installés dans la conduite de retour du chauffage et dans la conduite d'alimentation en eau chaude sanitaire. Pour faciliter le rinçage et le nettoyage, ils sont également coupés par des vannes d'arrêt. Souvent, afin d'augmenter la durée de vie de l'échangeur de chaleur secondaire d'une chaudière à double circuit, un filtre fin magnétique est en plus installé sur l'alimentation en eau chaude.
Normes existantes pour la cuisine


Avec une puissance supérieure à 60 kW, le volume de la cuisine doit être d'au moins 15 m2.
Si la puissance de l'unité ne dépasse pas 30 kW, le volume de la cuisine doit être d'au moins 7,5 mètres cubes. mètres. Lors de la mise en place d'une chaudière de 60 watts, conformément aux exigences, elle doit répondre aux exigences suivantes:
- volume - pas moins de 15 mètres cubes mètres;
- avec une plus grande puissance de l'unité, elle est ajoutée d'une unité par kilowatt;
- la hauteur des chambres est d'au moins 2,5 mètres.
La ventilation doit être installée dans la pièce, qui est équipée de différentes manières. L'approche la plus courante consiste à utiliser une hotte dont les performances sont sélectionnées en fonction du volume de l'espace habitable - elle doit le dépasser trois fois. Il est également important qu'il y ait une fenêtre avec une imposte et une ouverture disposée dans la partie inférieure du vantail de la porte.
Raccordement électrique de l'appareil à gaz
Les chaudières à gaz modernes existent avec 2 options de raccordement au secteur: un câble isolé à trois conducteurs et une fiche pour le raccordement à une prise. Dans les deux cas, vous devez respecter la règle: l'appareil à gaz est connecté via un disjoncteur individuel au blindage et vous devrez certainement prendre soin de la mise à la terre. Il est recommandé d'utiliser des régulateurs de tension ainsi que des alimentations redondantes pour se préparer à une panne de courant.
Un dispositif d'arrêt automatique doit être installé à proximité de la chaudière afin de pouvoir l'éteindre rapidement et facilement. Ne reliez pas l'appareil à une conduite de chauffage ou de gaz. Afin d'assurer une bonne mise à la terre, il est nécessaire d'équiper une boucle de masse ou une mise à la terre ponctuelle.
Raccordement de la chaudière murale au secteur
La plupart des chaudières à gaz murales modernes sont équipées d'une automatisation sophistiquée. Il contrôle de nombreux processus, transformant la chaudière de chauffage en une mini-chaufferie autonome, dont le fonctionnement ne nécessite pratiquement pas l'intervention du propriétaire. Bien entendu, l'unité de commande et les différents capteurs nécessitent une connexion au secteur.
Les chaudières murales à double circuit sont disponibles en deux versions: avec la prise habituelle et avec un câble pour se connecter directement à la machine. Dans tous les cas, ils doivent être alimentés par le secteur via une machine individuelle. Si vous avez acheté un modèle avec une prise, une prise individuelle pour une chaudière à gaz doit être située à côté, mais en aucun cas en dessous. C'est l'une des exigences de sécurité pour qu'en cas de fuite de liquide de refroidissement, un court-circuit ne se produise pas.


Une chaudière à gaz nécessite une mise à la terre obligatoire. À ces fins, vous pouvez acheter un kit de mise à la terre ponctuelle. Il est installé au sous-sol ou à côté de la maison et occupe une petite surface d'environ 0,25 m².
Attention! Il est strictement interdit de relier la chaudière à gaz murale au radiateur de chauffage ou à la conduite d'alimentation en gaz. Ceci est une violation flagrante des règles de fonctionnement des équipements à gaz et est extrêmement dangereux.
L'automatisation de la chaudière est très sensible à la qualité de la tension d'alimentation. Avec un niveau insuffisant ou une forme sinusoïdale imparfaite à l'entrée, les appareils tombent rapidement en panne. Pour éviter les pannes fréquentes et prolonger la durée de vie de l'unité, il est nécessaire de connecter des stabilisateurs de tension pour les chaudières à gaz. Pour éviter d'arrêter l'équipement de chauffage en cas de panne de courant, vous devez en plus acheter une alimentation sans coupure.
Normes d'installation d'une chaudière à gaz
Le gaz reste le type de carburant le moins cher à ce jour. En conséquence, le chauffage le moins cher est obtenu précisément au gaz naturel. Certes, l'installation d'une chaudière à gaz est associée à certaines difficultés - les locaux doivent être conformes aux normes de sécurité incendie.
Pour l'installation de chaudières à gaz puissantes, une pièce séparée est nécessaire
Normes d'installation des chaudières à gaz
Pour éviter tout problème lors de la mise en service de la chaudière à gaz, vous devez sélectionner l'emplacement d'installation conformément à la réglementation en vigueur. L'installation d'une chaudière à gaz dans une maison privée (unifamiliale ou verrouillée) est réglementée par SNiP 31-02-2001, et les règles d'installation dans les immeubles à appartements sont énoncées dans SNiP 2.08.01.
Pour les maisons privées
Selon les normes, la chaudière à gaz peut être installée dans une pièce ventilée, qui se trouve:
- au premier étage de la maison;
- au sous-sol ou au sous-sol;
- dans le grenier:
- des chaudières à gaz jusqu'à 35 kW (selon MDS 41.2-2000 jusqu'à 60 kW) peuvent être installées dans la cuisine.
En ce qui concerne l'installation de chaudières dans la cuisine, deux normes s'appliquent actuellement à la fois.Selon un document, des appareils de chauffage d'une puissance ne dépassant pas 35 kW peuvent être placés, selon un autre - pas plus de 60 kW. Et nous ne parlons que d'appareils de chauffage. Les cuisinières à gaz ou autres appareils utilisant du gaz ne sont pas comptés.
Comment et où placer une chaudière à gaz
La façon de procéder? Vous devez savoir quelles normes sont respectées dans votre GorGaz. Après tout, ce sont leurs représentants qui mettront l'équipement en service. En fait, le concepteur devrait vous dire toutes les subtilités, mais il est également conseillé de le savoir - vous devrez préparer la pièce pour l'installation.
Maintenant, où et comment vous pouvez localiser des équipements à gaz de différentes capacités. Il s'agira de chaudières à gaz et de chauffe-eau, leur puissance se résume:
- avec une puissance jusqu'à 150 kW inclus - dans une pièce séparée à n'importe quel étage, y compris au sous-sol et au sous-sol;
- de 151 kW à 350 kW inclus - dans une pièce séparée du premier, du sous-sol ou du sous-sol, ainsi que dans une pièce attenante séparée.
Les installations plus puissantes ne sont pas utilisées dans les maisons privées.
Exigences pour les cuisines dans lesquelles une chaudière à gaz est installée
Lors de l'installation d'un chauffe-eau à gaz à circulation directe ou d'une chaudière à gaz d'une puissance maximale de 60 kW dans la cuisine, la pièce doit être conforme aux normes suivantes:
Il y en a un de plus, qui n'est pas précisé dans les normes, mais qui existe: l'installation d'une chaudière à gaz n'est autorisée que dans une pièce avec portes. À la lumière des dernières tendances, la suppression des cloisons et la réalisation d'arcs au lieu de portes peuvent être un problème. Sans porte, l'autorisation ne sera pas signée. Le moyen de sortir est de mettre des portes coulissantes (coulissantes) ou pliantes. Une autre option est les portes en verre. Ils ne «chargent» pas l'intérieur, mais ils sont perçus précisément comme des portes.
Toutes ces conditions doivent être remplies. En cas de violation, vous ne signerez tout simplement pas de certificat d'acceptation.
Exigences pour les chambres individuelles
Les exigences pour les chaufferies individuelles sont similaires, mais il existe quelques différences:
- Hauteur du plafond - pas moins de 2,5 m;
- Le volume et la superficie des locaux sont déterminés par la facilité d'entretien, mais ne doivent pas être inférieurs à 15 m3.
- Les murs menant aux pièces adjacentes doivent avoir une limite de résistance au feu de 0,75 heure et une limite zéro pour la propagation du feu le long de la structure (brique, béton, blocs de construction).
- Hotte d'extraction avec les mêmes exigences: pour l'écoulement - trois fois l'échange, pour l'entrée dans le même volume, plus l'air pour la combustion.
- Il devrait y avoir une fenêtre dans la pièce. Surface vitrée - pas moins de 0,03 m2 par mètre cube de volume.
Si l'équipement est installé avec une puissance de 150 kW ou plus, l'une des conditions préalables est l'accès à la rue. Une deuxième sortie peut être équipée - vers une buanderie (non résidentielle). Cela peut être un garde-manger ou un couloir. Les portes doivent être ignifuges.
C'est ainsi que la cheminée est retirée de la chaudière à gaz murale avec une chambre de combustion fermée
Veuillez noter que lors du calcul des fenêtres, la surface du verre est prise en compte et non les dimensions de l'ouverture de la fenêtre. De plus, dans certains cas, au moins un verre d'une superficie d'au moins 0,8 mètre carré est requis. S'il est problématique d'agrandir les fenêtres, vous pouvez faire une fenêtre similaire dans la porte (le règlement ne dit pas qu'elle devrait être dans le mur).
Comment attacher les chaufferies
Parfois, il n'y a aucun moyen d'attribuer une pièce séparée dans la maison. Dans ce cas, la chaufferie est attenante. Les normes pour la hauteur des plafonds, le volume, le vitrage et la ventilation restent les mêmes que pour les pièces individuelles, seules des normes spécifiques sont ajoutées:
Veuillez noter que l'extension doit être enregistrée. Personne ne vous fournira de gaz sans documents officiels. Et encore une chose: lors de sa conception, posez toutes les normes sans écarts, sinon ils ne l'accepteront pas. Si l'installation d'une chaudière à gaz est prévue dans une pièce existante, ils peuvent fermer les yeux sur certains écarts ou proposer une compensation (en cas de manque de volume ou de hauteur sous plafond, il peut leur être demandé d'augmenter la surface de vitrage).Il n'y a pas de tels rabais pour les bâtiments nouvellement construits (et les dépendances aussi): ils doivent contenir toutes les normes.
Cuisines unies
Aujourd'hui, il est devenu à la mode d'avoir des studios ou de combiner une cuisine avec un salon. Il s'agit d'un seul grand espace dans lequel il est facile de mettre en œuvre des idées de conception. Mais, le service de gaz considère une telle pièce comme résidentielle et interdit l'installation d'équipements à gaz.
Il est possible d'installer une chaudière à gaz dans la cuisine uniquement s'il y a une ventilation et des portes fonctionnelles
Il ne sera pas possible de résoudre le problème avec un studio, mais avec un combiné, il y a une issue. Si vous envisagez simplement de combiner la cuisine et le salon, lorsque vous rédigez les documents, nommez la pièce résultante comme une cuisine-salle à manger. Cette chambre n'est pas résidentielle, il n'y aura donc aucune restriction. Si les papiers ont déjà été publiés, vous pouvez essayer de les refaire ou opter pour une autre solution - installer une cloison coulissante. Certes, dans ce cas, une retouche des documents sera nécessaire.
Lieu d'installation d'une chaudière à gaz
Parlant spécifiquement des appartements, des chaudières à gaz y sont installées principalement dans les cuisines. Il y a toutes les communications nécessaires ici: alimentation en eau, gaz, il y a une fenêtre et une hotte aspirante. Il ne reste plus qu'à déterminer un emplacement approprié pour la chaudière. Pour une telle installation, des chaudières murales (articulées) sont utilisées. Ils sont installés sur plusieurs crochets fixés aux murs (généralement inclus).
En ce qui concerne l'installation dans d'autres locaux d'un appartement ou d'une maison, en règle générale, aucun d'entre eux ne répond aux exigences. Par exemple, il n'y a pas de fenêtre avec lumière naturelle dans la salle de bain, le couloir ne correspond généralement pas à la taille - il n'y a pas assez de tolérances des coins ou du mur opposé, il n'y a généralement pas de ventilation ou c'est insuffisant. Le même problème concerne les salles de stockage - il n'y a pas de ventilation et de fenêtres, il n'y a pas assez de volume.
La distance exacte par rapport aux murs et autres objets est indiquée dans le mode d'emploi de la chaudière.
S'il y a un escalier dans la maison menant au deuxième étage, les propriétaires souhaitent souvent placer la chaudière sous les escaliers ou dans cette pièce. En termes de volume, il passe généralement, mais en termes de ventilation, il faudra le rendre très puissant - le volume est considéré en deux niveaux et il faut assurer son triple échange. Cela nécessitera plusieurs tuyaux (trois ou plus) de très grande section (au moins 200 mm).
Après avoir choisi une pièce pour installer une chaudière à gaz, il reste à lui trouver une place. Il est sélectionné en fonction du type de chaudière (murale ou au sol) et des exigences du fabricant. La fiche technique détaille généralement les distances entre le mur et la droite / gauche, la hauteur d'installation par rapport au sol et au plafond, ainsi que la distance entre la surface avant et le mur opposé. Ils peuvent différer d'un fabricant à l'autre, il vaut donc la peine de lire attentivement le manuel.
Normes d'installation selon SNiP
- Les chaudières à gaz peuvent être installées sur des murs ignifuges à une distance d'au moins 2 cm de celle-ci.
- Si le mur est difficilement combustible ou combustible (bois, charpente, etc.), il doit être protégé avec un matériau incombustible. Il peut s'agir d'une feuille d'amiante de trois millimètres, sur laquelle une feuille de métal est fixée. De plus, pour la protection, une couche de plâtre avec une couche d'au moins 3 cm est considérée.Dans ce cas, la chaudière doit être suspendue à une distance de 3 cm.Les dimensions du matériau incombustible doivent dépasser les dimensions de la chaudière. de 10 cm des côtés et du bas, et d'en haut doit être 70 cm plus large.
Des questions peuvent se poser concernant la feuille d'amiante: aujourd'hui, elle est reconnue comme une matière dangereuse pour la santé. Vous pouvez le remplacer par une couche de carton de laine minérale. Et gardez également à l'esprit que les carreaux de céramique sont également considérés comme une base ignifuge, même s'ils sont posés sur des murs en bois: une couche de colle et de céramique donne juste la résistance au feu requise.
La chaudière à gaz ne peut être accrochée aux murs en bois que s'il y a un support incombustible
L'installation d'une chaudière à gaz par rapport aux parois latérales est également réglementée.Si le mur est incombustible, la distance ne peut pas être inférieure à 10 cm, pour les murs combustibles et difficilement combustibles, elle est de 25 cm (sans protection supplémentaire).
Si une chaudière à gaz au sol est installée, la base doit être incombustible. Si le plancher est en bois, un support incombustible est réalisé, qui doit fournir une limite de résistance au feu de 0,75 heure (45 minutes). Ce sont soit des briques posées sur des cuillères (1/4 de brique), soit des carreaux de sol en céramique épais posés sur une feuille d'amiante fixée sur une feuille de métal. Les dimensions de la chaîne incombustible sont 10 cm plus grandes que les dimensions de la chaudière installée.
stroychik.ru
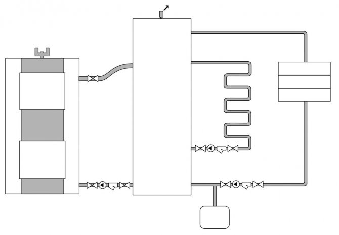
Comment connecter une chaudière à gaz à double circuit
Un appareil à double circuit diffère d'un appareil à circuit unique en ce qu'il contient 2 échangeurs de chaleur: l'un est le principal, qui chauffe l'eau pour le chauffage, et l'autre est un supplémentaire, qui chauffera l'eau pour l'alimentation en eau chaude. Dans la plupart des cas, ces chaudières sont fixées au mur et représentent une chaufferie de haute technologie, où tout est automatisé et fourni.
Raccordement d'une chaudière gaz double circuit.
Vous devez faire attention à la figure, qui représente l'intérieur d'un appareil à double circuit. 5 tuyaux y seront connectés: 1 - un tuyau avec un liquide de refroidissement du système de chauffage, qui sert de chauffage supplémentaire; 2 - un tuyau avec de l'eau froide allant à l'échangeur de chaleur afin de chauffer l'eau pour l'alimentation en eau chaude; 3 - tuyau de gaz; 4 - tuyau d'alimentation en eau chaude avec eau chaude; 5 - tube avec caloporteur chaud pour le système de chauffage
Tous les automatismes des chaudières à double circuit sont disposés à l'intérieur. Le fluide caloporteur par défaut, qui est chauffé par le brûleur principal de la chaudière, est envoyé au système de chauffage et renvoyé à la chaudière refroidie. Ainsi, il y a une circulation chaudière-chauffage-chaudière. Cependant, dès que quelqu'un ouvre un robinet sur l'un des consommateurs avec de l'eau chaude, l'eau froide commencera à couler dans la chaudière par le tuyau. La vanne à trois voies redirigera immédiatement le liquide de refroidissement, qui ne sortira pas de la chaudière, mais circulera dans l'échangeur de chaleur principal. Le caloporteur chauffera l'alimentation en eau chaude jusqu'à ce qu'elle ne soit plus utilisée. Dès que le robinet est fermé, le liquide de refroidissement commence à circuler dans le système de chauffage.
Schéma de raccordement direct pour une chaudière à gaz double circuit.
En pratique, un appareil à gaz à deux circuits n'est pas capable de fournir une grande quantité d'eau pour l'alimentation en eau chaude. La chaudière n'a pas le temps de la chauffer dans le volume requis. C'est pourquoi ils sont utilisés exclusivement dans les petites familles et, pour chauffer un plus grand volume d'eau, un chauffe-eau est également utilisé.
Selon ce schéma, le liquide de refroidissement chauffe uniquement l'eau de la chaudière et le système d'alimentation en eau lui-même vers le 2ème circuit sera fermé. Cela permet d'augmenter considérablement la durabilité du dispositif à double circuit, qui souffre grandement de l'eau dure enregistrée.
Schéma de raccordement d'une chaudière à gaz double circuit avec un chauffe-eau à chauffage indirect.
Après environ un an, l'échangeur de chaleur supplémentaire pour l'eau chaude sanitaire se colmate et tombe en panne. À cet égard, la circulation d'un liquide de refroidissement propre dans le 2ème circuit est une solution plus économique. Cependant, cela n'a aucun sens d'utiliser une conception à deux circuits. Il est beaucoup plus rentable et pratique d'installer dans ce cas une chaudière à circuit unique de puissance plus élevée.
Le raccordement d'une chaudière murale à gaz associée à une chaudière électrique ordinaire en tant que réservoir de stockage d'eau chaude est également autorisé. Dans ce cas, l'eau chaude entrera dans la chaudière à partir de la chaudière, et lorsque sa quantité diminuera jusqu'à un point critique, la chaudière recommencera à chauffer l'eau afin de remplir la chaudière. Une option est possible dans laquelle la chaudière est remplie d'eau chaude de la chaudière, et sa température supplémentaire sera maintenue à l'aide de l'élément chauffant.
Comment organiser correctement et commodément les prises dans la cuisine
Positionnez commodément les prises dans la cuisine
La cuisine moderne est remplie d'appareils électroménagers, et la question: comment placer les prises dans la cuisine pour qu'elles soient pratiques à utiliser et ne violent pas les EIC (Règles d'installation électrique) devient de plus en plus pertinente.
En effet, dans une cuisine moderne, trois prises, qui recommande l'installation de la clause 12.27 BCH 59-88, ne peuvent pas être supprimées. Par conséquent, en décidant de réparer le réseau d'alimentation de votre cuisine, vous devez prévoir toutes les petites choses.
Comment organiser l'alimentation électrique de la cuisine
La question de l'alimentation électrique de la cuisine comprend toute une série de problèmes, en commençant par les prises, les fils et les disjoncteurs à choisir et en terminant par la question: comment organiser les prises dans la cuisine. Seule une approche intégrée pour résoudre tous ces problèmes créera un réseau électrique fiable.
Comment choisir les appareils électriques pour la cuisine
Tout d'abord, vous devez choisir le bon fil (voir. Nous calculons la section du fil par puissance), les prises et les disjoncteurs pour l'installation d'un réseau électrique. Cela dépend non seulement du fonctionnement ininterrompu de tous les équipements électriques, mais également de leur sécurité.
Par conséquent, vous ne devez pas compter sur le hasard, et si vous faites tout le travail de vos propres mains, vous devez tout compter et tout peser.
La photo montre des prises de différents pays
- Commençons par la sélection des disjoncteurs pour connecter les groupes d'alimentation électrique de la cuisine. Il est recommandé de les diviser en un groupe d'éclairage de cuisine et un groupe de prises de cuisine. Selon la clause 6.2.2 du PUE, le courant nominal de ces machines ne doit pas dépasser 25A. Par conséquent, les charges doivent être réparties de manière à ce que le courant nominal dans chaque groupe ne dépasse pas cette valeur.
- Typiquement, un groupe d'éclairage est obtenu à 10 ou 16A et un groupe qui alimente des prises à 16 ou 25A. Dans de rares cas, lors de l'installation d'un grand nombre d'équipements électriques puissants dans la cuisine, l'installation de deux groupes de prises est possible. De plus, si une cuisinière électrique est installée dans la cuisine, un disjoncteur de 25A est également installé pour son alimentation, conformément à la clause 9.6 ВСН59-88.
Noter! S'il y a une cuisinière électrique dans la cuisine, votre machine d'entrée dans l'escalier, selon la clause 9.6 du VSN 59-88, doit être à un courant nominal d'au moins 40A.
- Le choix correct des points de vente est également un facteur de succès important. Pour ce faire, vous devez savoir exactement quel équipement électrique vous allez y connecter. En effet, il existe actuellement sur le marché des prises pour 6, 10, 16, 25 et 32A. Par conséquent, pour connecter des poêles électriques puissants, vous devez choisir des prises avec un courant nominal élevé (voir Prise pour poêles électriques legrand: caractéristiques, sélection et installation).
- Afin de choisir la bonne prise, notre manuel conseille d'utiliser la formule I = P / U × cosα, où I est le courant nominal, P est la puissance nominale de l'appareil (généralement indiquée dans le passeport) et cosα est le facteur de puissance de l'appareil (généralement indiqué dans le passeport de l'appareil, mais si vous ne l'avez pas trouvé, il peut être pris égal à 1).
- Les courants nominaux des appareils électriques obtenus selon cette formule doivent être pris en compte lors du choix des prises. De plus, la valeur la plus élevée la plus proche doit être choisie.
- De nombreux articles sont consacrés au choix des fils pour alimenter le réseau électrique, y compris sur notre site Internet. Par conséquent, nous n'y consacrerons pas beaucoup de temps. La seule chose que nous soulignerons est que, selon le tableau. 7.1.1 PUE, leur section ne doit pas être inférieure à 1 mm2 pour les fils de cuivre et non inférieure à 2,5 mm2 pour les fils d'aluminium.
Choix de l'emplacement des prises
L'une des options pour placer des prises dans la cuisine
Nous arrivons maintenant à la question la plus intéressante: comment placer correctement les prises dans la cuisine? Les normes PUE et autres réglementations n'imposent aucune exigence particulière pour le site d'installation.
La principale et seule exigence est la commodité de leur utilisation.Par conséquent, étant donné le grand nombre de solutions de conception en termes d'aménagement des cuisines, nous ne donnerons que les normes de base généralement acceptées pour l'emplacement des points de vente.
- La prise du réfrigérateur est généralement installée à une hauteur de 30 cm du sol derrière elle. Souvent, vous n'avez pas besoin d'opérer avec, donc pour le cacher, c'est la solution idéale.
Noter! Si vous avez une chaudière de chauffage au gaz installée, il est conseillé de connecter la prise du réfrigérateur au groupe d'alimentation de la chaudière. Cela est dû au fait qu'en cas d'absence prolongée, vous pouvez désactiver tous les groupes d'éclairage sauf celui-ci. Cela gardera votre maison et vos aliments au chaud pendant votre absence et minimisera les risques d'incendie.
- En utilisant la même règle, nous répondons à la question: où placer les prises dans la cuisine pour le reste de l'équipement électrique. Il peut s'agir de congélateurs, de machines à laver, de lave-vaisselle, de fours à micro-ondes, de fours, etc. Souvent, il n'est pas nécessaire de fonctionner avec ces prises, il est donc plus rentable de les placer sur le mur directement derrière l'installation électrique.
- L'alimentation électrique du système de ventilation forcée est basée sur le même principe. Beaucoup sont confus par l'emplacement de la prise sous le plafond, mais vous ne violez aucune norme. À propos, étant donné que la charge d'une telle ventilation n'est pas importante, des prises intégrées aux meubles peuvent être utilisées pour les connecter.
- Une autre question est de savoir comment positionner correctement les prises dans la cuisine pour alimenter les appareils portables. Ceux-ci peuvent être des mélangeurs, des robots culinaires, des bouilloires électriques, etc. Le plus souvent, ces appareils sont utilisés dans ce que l'on appelle la zone de travail de la cuisine. Par conséquent, une prise triple y est généralement placée (voir Comment connecter une prise triple de vos propres mains) à ces fins. Si vous prévoyez d'utiliser un grand nombre d'appareils électriques en même temps, ce nombre peut être augmenté à cinq.
- Si vous avez une cuisinière électrique dans votre cuisine, il y a certaines exigences pour l'installation de cette prise (voir Comment installer une prise pour une cuisinière électrique de vos propres mains). Selon la clause 12.30 VSN 59-88, de telles prises ne peuvent pas être placées sous et au-dessus des éviers, ainsi que dans les armoires de cuisine. En général, il est recommandé d'appliquer cette règle lors de l'installation d'autres prises. Mais dans le cas d'une prise de cuisinière électrique, c'est prohibitif.
Option pour installer des prises dans la cuisine
- Un autre problème est l'utilisation de la vidéo et d'autres appareils électroménagers dans la cuisine. Tout dépend de la stationnarité d'une telle installation. Si vous avez installé, par exemple, un téléviseur de manière permanente, il est conseillé de cacher la prise pour la connecter derrière une armoire ou un autre appareil électrique. Si vous avez besoin d'une prise, par exemple, pour recharger votre mobile, alors il est conseillé de le placer dans un endroit accessible. Les douilles intégrées dans les meubles sont bien adaptées pour cela.
Règles d'installation pour les sockets
Par ailleurs, je voudrais m'attarder sur certaines règles d'installation, bien que tout à fait logiques, mais souvent non applicables. Leur utilisation vous fera gagner beaucoup de temps et éliminera les problèmes avec votre réseau électrique à l'avenir.
- Utilisez un fil conforme à la clause 1.1.29 du PUE. Le fil neutre doit être bleu et le conducteur de mise à la terre doit être vert-jaune.
- Utilisez des borniers pour connecter les branches du fil principal. De plus, selon la clause 3.239 SNiP 3.05.06 - 85, ils doivent avoir une section suffisante pour connecter un fil d'au moins 4 mm2.
- Quel que soit l'endroit de la cuisine où placer les prises, le fil posé ne doit pas avoir d'angles autres que 90 °. Après tout, certains essaient d'économiser de l'argent et de poser le fil le long du chemin le plus court. En conséquence, cela se transforme en problèmes gigantesques lors des réparations ou lors de l'installation d'un simple clou dans le mur.
- Lors du raccordement du fil à la prise, conformément à la clause 3.241SNiP 3.05.06 - 85, il est nécessaire de laisser une petite réserve de fil, suffisante pour la reconnexion.Le prix de ces fils de 10 à 15 cm deviendra clair pour vous lorsque vous aurez besoin de vous reconnecter et que le fil se rompra. Si vous décidez d'être gourmand maintenant, vous devrez plus tard broyer le mur d'une nouvelle manière.
Prises de connexion avec et sans contacts de mise à la terre
- Cela n'est pas exigé par les règles, mais nous conseillons aux groupes de prises à partir desquels le lave-linge, le lave-vaisselle et les équipements similaires sont alimentés, d'être connectés via une machine RCD.
Production
Vous savez maintenant où placer les prises dans la cuisine et comment organiser l'alimentation électrique de cette pièce. Il ne reste qu'une petite chose: effectuer l'installation lentement et avec arrangement.
Dans ce cas, n'oubliez pas l'insécurité du courant électrique. Par conséquent, si vous n'avez pas au moins des connaissances minimales en génie électrique, il est préférable de confier cette question à un spécialiste.
Les chaudières à combustible solide sont une unité indispensable pour augmenter le niveau de chaleur dans les bâtiments qui ne sont pas raccordés à la conduite de gaz. Ils seront également un excellent appareil pour chauffer les maisons avec un câblage électrique affaibli. La chaudière à combustible solide est capable de maintenir une température normale pendant trois jours. Le propriétaire d'un tel appareil n'a pas besoin de jeter constamment du bois de chauffage. Ainsi, même loin de la civilisation, la maison peut être chauffée selon toutes les normes.
Les fabricants modernes produisent une large gamme de ce type d'équipement. Le développement de nouveaux modèles se poursuit constamment. Les chaudières à combustible solide ont commencé à gagner en popularité en tant que principale source de chauffage. Cela est dû au coût élevé de raccordement du bâtiment au gazoduc. L'augmentation des tarifs des services publics est également prise en compte. C'est pourquoi les industriels se sont fixé comme objectif d'offrir aux acheteurs potentiels de bonnes conditions d'épargne.
De manière conventionnelle, vous pouvez définir plusieurs types de chaudières à combustible solide:
- ... La chaudière la plus populaire, caractérisée par une praticité et une facilité d'utilisation accrues. Dans la fabrication de cette conception, l'accent a été mis sur la possibilité d'une combustion la plus longue possible. Si vous remplissez cet appareil avec la quantité de carburant spécifiée, il pourra maintenir la température souhaitée dans la maison pendant plusieurs jours. Dans le même temps, il n'a pas besoin d'une surveillance constante et d'un approvisionnement en carburant.
- ... Ce type de chaudières à combustible solide brûle séparément le combustible qui y est placé et les substances volatiles qui en sortent. De telles chaudières se caractérisent par un maintien accru d'un niveau de chaleur donné. Ils sont capables de régler la température de l'air souhaitée pendant environ 12 heures à partir d'un seul onglet de carburant. Le carburant brûle complètement, garantissant ainsi une efficacité totale. De plus, ces chaudières n'émettent pratiquement pas de substances nocives dans l'atmosphère, étant relativement respectueuses de l'environnement.
- ... Ils sont considérés comme les chaudières les plus confortables. Ils fonctionnent à base de granulés - ce sont des granulés de bois qui sont utilisés comme combustible. Cette technique se caractérise par une durée de vie accrue. Il est garanti de pouvoir servir son propriétaire pendant environ 25 ans. L'appareil est plus économique. Son efficacité est de 95%.
Comment choisir une bonne chaudière à combustible solide
Les équipements de ce type sont achetés dans l'attente d'une utilisation à long terme. C’est pourquoi la question de son choix doit être abordée avec la plus grande responsabilité. Tout d'abord, vous devez choisir le type le plus rationnel de ces appareils. Pour ce faire, il convient d'étudier les caractéristiques individuelles des trois types de chaudières à combustible solide, pour connaître les détails de leur fonctionnement. Après cela, vous pouvez prendre une décision sur l'option la plus rationnelle.
Le matériau à partir duquel cette technique est réalisée ne mérite pas moins d'attention. L'un des types les plus courants est considéré comme une chaudière en acier. Il se caractérise par une résistance et une stabilité assez élevées. Une option plus durable est la fonte.Il résiste beaucoup mieux au stress mécanique. De plus, il est capable de résister à une longue durée de vie.
Vous devez également faire attention au fabricant de ce type d'équipement. Parmi tous les fabricants, le plus populaire était la société Cordy. Il produit des chaudières de qualité qui fonctionnent bien pendant l'utilisation. Les produits de ce fabricant consomment du carburant de manière économique. Ils sont mis en œuvre selon une politique tarifaire rationnelle.
Pour déterminer les avantages et les inconvénients d'un modèle particulier, il convient de consulter les critiques des acheteurs précédents. Ils parleront de leur expérience dans l'acquisition de tels équipements et de la manière dont ils se manifestent tout au long de leur vie opérationnelle. Vous pouvez trouver ces informations sur le site Web de la boutique en ligne et dans des forums spécialisés.
Pour un système de chauffage autonome, l'écrasante majorité des acheteurs de Moscou et non seulement choisissent des chaudières de chauffage au gaz. Avec leur aide, vous pouvez atteindre la plus haute efficacité énergétique et réaliser des économies significatives. Une chaudière à gaz pour son fonctionnement utilise l'une des deux options de combustible:
- Méthane;
- Propane-butane.
À la suite de la combustion, toute l'énergie thermique va dans le réservoir de chaleur, où l'eau du système de chauffage est chauffée.
Il est également pratique qu'une chaudière à gaz soit non seulement un prix rentable, mais également une option de chauffage extrêmement sûre. Malgré l'utilisation d'une substance dangereuse pour le travail, l'équipement est équipé de systèmes de sécurité fiables qui éliminent toutes sortes de risques.
Conditions requises pour l'utilisation du RCD
Les exigences relatives à l'utilisation de disjoncteurs différentiels à des fins de sécurité électrique sont régies par le PUE, chapitres 1.7, 6.1, 7.1. Le courant de déclenchement d'un disjoncteur différentiel installé à des fins de sécurité électrique ne doit pas dépasser 30 mA (utilisez un disjoncteur différentiel avec un courant de déclenchement de 10 mA et 30 mA).
La valeur nominale du disjoncteur différentiel pour le courant de déclenchement est sélectionnée conformément aux exigences de la clause 7.1.83 du PUE. Le courant de fuite total du réseau en mode normal ne doit pas dépasser 1/3 du courant nominal du RCD. Puisqu'il n'y a pas de données sur les courants de fuite, le calcul des courants de fuite est effectué conformément aux exigences du présent paragraphe. Lors du calcul, le courant de fuite du récepteur électrique est pris de 0,4 mA pour chaque 1 A du courant de charge, et le courant de fuite du réseau est de 10 μA pour chaque mètre de longueur de câble.
Les exigences relatives à l'installation d'un disjoncteur différentiel afin de se protéger contre l'incendie sont régies par les documents suivants:
- PUE, clause 7.1.84 «Pour augmenter le niveau de protection contre l'incendie en cas de court-circuit aux parties mises à la terre, lorsque la valeur de courant est insuffisante pour déclencher la protection de courant maximum, à l'entrée d'un appartement, d'une maison individuelle, etc. il est recommandé d'installer un disjoncteur différentiel avec un courant de déclenchement jusqu'à 300 mA ";
- Loi fédérale du 22 juillet 2008 N 123-FZ "Règles techniques relatives aux exigences de sécurité incendie". Article 82, partie 4 «Les lignes d'alimentation électrique des locaux des bâtiments et des structures doivent être munies de dispositifs d'arrêt de protection pour éviter le déclenchement d'un incendie. Les règles d'installation et les paramètres des dispositifs à courant résiduel doivent tenir compte des exigences de sécurité incendie établies conformément à la présente loi fédérale. "
Conformément à ces exigences, un disjoncteur différentiel avec un courant d'actionnement de 100 mA ou 300 mA est installé à l'entrée de l'appartement. Un tel DDR est appelé un dispositif de sécurité incendie.
Si le calcul montre que le courant de fuite total de la carte d'appartement ne dépasse pas 10 mA, vous pouvez économiser de l'argent et installer un disjoncteur différentiel avec un courant de fonctionnement de 30 mA sur l'entrée de l'appartement. Ce RCD agira comme un RCD «anti-incendie» et un RCD utilisé à des fins de sécurité électrique.
Sinon, un DDR «coupe-feu» avec un courant d'actionnement de 100 mA ou 300 mA est installé à l'entrée de l'appartement, et un DDR avec un courant d'actionnement de 10 mA ou 30 mA est installé sur les lignes sortantes (où l'installation d'un disjoncteur différentiel est nécessaire pour des raisons de sécurité électrique).
Raccordement d'une chaudière à gaz à une cheminée
Le diamètre de la cheminée doit être égal ou supérieur au diamètre de la sortie de l'appareil.
Dans la plupart des cas, le diamètre de la cheminée dépend de la puissance:
- 100 kW - 230 mm;
- 80 kW - 220 mm;
- 60 kW - 190 mm;
- 40 kW - 170 mm;
- 30 kW - 130 mm;
- 24 kW - 120 mm.
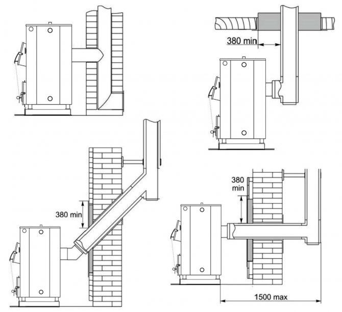
Les cheminées ordinaires sont dirigées vers le haut, à 0,5 m au-dessus du faîte de la maison. Ils sont disposés à la fois à l'intérieur du mur de la maison et à l'intérieur de la maison ou derrière son mur. Pas plus de 3 coudes sont autorisés sur le tuyau. La première section du tuyau qui relie la chaudière à la cheminée principale ne doit pas dépasser 25 cm et doit avoir une ouverture pouvant être fermée pour le nettoyage. Pour les chaudières avec des cheminées ordinaires et une chambre de combustion ouverte, un grand débit d'air est nécessaire. Il peut être pourvu d'une fenêtre ouverte ou d'un tuyau d'alimentation séparé.
La cheminée doit être en tôle de toiture ou autre matériau résistant aux acides. La chaudière ondulée ne doit pas être raccordée à la cheminée principale. Une cheminée en brique ne peut pas non plus être utilisée.
La cheminée coaxiale doit être installée horizontalement et dirigée vers le mur. Ce type de cheminée est un tuyau dans un tuyau. Il doit s'écarter d'au moins 0,5 m du mur.Si la chaudière est ordinaire, la cheminée doit avoir une légère pente vers la rue. Si l'appareil se condense, la pente doit être vers l'appareil lui-même. Ainsi, le condensat pourra s'écouler dans un tuyau spécial, qui devra être évacué dans les égouts. La longueur maximale des conduits coaxiaux est de 5 m.
Règles de placement des tuyaux et des prises
Lors de la pose d'un câble électrique, il faut garder à l'esprit qu'il se réchauffe à cause des courants et qu'un radiateur à proximité chauffe également l'air ambiant. Par conséquent, il est préférable d'éviter de poser des fils à proximité des tuyaux de gaz et de chauffage. Mais si cela ne fonctionne pas, il convient de rappeler que les normes du PUE (règles pour les installations électriques) sont réglementées de sorte que la température de l'air dans de tels cas ne doit pas dépasser + 25 ° C, par conséquent, afin de se conformer à la sécurité incendie règles, la distance entre les câbles et les fils et les tuyaux de chauffage doit être d'au moins 100 mm et jusqu'aux tuyaux de gaz - 400 mm. Lors du croisement de fils avec des canalisations chaudes, la distance entre eux doit être d'au moins 50 mm et avec des canalisations de gaz - au moins 100 mm.
L'interrupteur, la prise du tuyau de gaz doit être situé à une distance d'au moins 0,5 mètre. Cette exigence est due au fait qu'il y a un gaz inflammable dans le gazoduc et, en cas d'urgence, la moindre étincelle de la prise ou de l'interrupteur causera des problèmes irréparables.
Une prise à proximité d'une conduite de gaz peut provoquer une urgence, car l'électricité est adjacente à un gaz inflammable.
Conditions de conformité
Selon les exigences, l'installation de chaudières à gaz dans une maison privée doit être effectuée dans un local non résidentiel séparé, à condition que sa puissance dépasse 30 kW. Pour l'équipement d'une mini-chaufferie, un sous-sol ou toute structure attenante au chalet convient bien. Cela permet de chauffer non seulement le salon principal, mais également les locaux techniques.
Les chaudières à gaz ne créent pas de bruit ni de suie et sont capables de chauffer des pièces jusqu'à 300 mètres carrés
Un immeuble résidentiel est équipé d'une chaufferie sous réserve des conditions suivantes:
- surface par chaudière - au moins 4 mètres carrés;
- hauteur du plafond - à partir de 2200 mm;
- doit avoir une fenêtre (comme source de lumière naturelle) d'une superficie d'au moins 0,5 mètre carré;
- ouverture de porte - à partir de 800 mm;
- la distance entre la chaudière et l'entrée de la pièce est d'au moins 1300 mm;
- la distance entre la chaudière et le mur est d'au moins 1300-1500 mm, ce qui est dû à la nécessité d'accéder à l'équipement en cas de panne ou de maintenance préventive;
- le revêtement de sol doit être fait d'un matériau ininflammable et ininflammable.
Il est recommandé d'isoler la surface des murs les plus proches de la chaudière avec des matériaux résistants à la chaleur. L'unité doit être placée horizontalement, les vibrations et le niveau de bruit pendant le fonctionnement dépendent de sa stabilité. Dans la pièce où se trouvent les chaudières, toutes les prises électriques doivent avoir une boucle de masse, ce qui est dû au raccordement d'éléments individuels au réseau d'alimentation (pompe, allumage).
Dans la mini-chaufferie, une alimentation en eau froide est nécessaire et dans le sol il y a un système de drainage pour éliminer le liquide de refroidissement. L'accès à la fenêtre d'inspection doit être libre, car le nettoyage est effectué régulièrement en raison de canaux obstrués.
Dois-je mettre à la terre une chaudière de chauffage au gaz et pourquoi
- Panne de l'automatisation - les chaudières équipées d'un microprocesseur électronique sont sensibles aux surtensions du réseau. Échec, l'automatisation peut également provenir d'une tension statique. Une chaudière à gaz sans mise à la terre ne fonctionnera pas longtemps. Le remplacement de la carte d'automatisation coûtera environ la moitié du coût de l'équipement de la chaudière.
- Risque d'explosion - L'accumulation de tension statique est l'une des causes les plus courantes d'incendie dans les équipements à gaz. L'effet positif de la mise à la terre sur le fonctionnement de la chaudière réside dans le fait que l'apparition d'une étincelle, conduisant à une explosion en cas de fuite de gaz, est totalement évitée.
Le PUE 1.7.103 spécifie les paramètres et les exigences pour le raccordement des équipements de chauffage. Avant de délivrer un certificat de vérification de la mise à la terre de la chaudière à gaz, l'inspecteur vérifiera que l'installation du circuit est conforme aux normes spécifiées.
Raccordement du chauffage à une chaudière au gaz
Schéma de câblage d'une chaudière à double circuit avec ballon / chauffe-eau.
L'emplacement des tuyaux peut varier. Cela dépendra des fabricants et des modèles.
Si le système de chauffage a déjà été utilisé auparavant, et pour le moment, seule la chaudière sera remplacée. vous devrez vidanger le liquide de refroidissement du système et le rincer plusieurs fois. Une grande quantité de sels différents se dépose sur les parois des radiateurs et des tuyaux, et il est donc nécessaire de rincer le système.
L'antigel et l'eau peuvent circuler dans le système de chauffage. Dans la documentation technique, assurez-vous de lire s'il est possible d'utiliser de l'antigel dans le modèle sélectionné.
Il est judicieux d'utiliser de l'antigel comme liquide de refroidissement dans le système de chauffage lorsque la chaudière n'est mise en marche que périodiquement. Dans ce cas, l'eau dans les tuyaux peut geler, mais pas l'antigel. Cependant, si l'utilisateur est constamment dans la maison et que la chaudière ne s'éteint pas pendant le gel, l'eau peut être utilisée comme caloporteur.
- Pompe de circulation (si nécessaire).
- Robinet à bille.
- Filtre grossier.
- Robinet à bille.
- Connexion américaine.
La pompe de circulation doit toujours être arrêtée sur la conduite de retour. Des vannes à bille sont nécessaires pour déconnecter facilement le système sans vidanger le liquide de refroidissement et retirer rapidement le filtre pour le nettoyage et l'entretien. Un filtre grossier dans le système de chauffage est nécessaire pour protéger l'échangeur de chaleur contre le colmatage par le sel. Il doit être placé directement devant la chaudière, de préférence sur une section horizontale avec le receveur vers le bas.
Schéma de raccordement ECS à un appareil à double circuit de gaz:
- Filtre à eau grossier.
- Robinet à bille.
- Filtre magnétique ou filtre fin.
- Robinet à bille.
- Connexion américaine.
Afin de maximiser la durée de vie de l'échangeur de chaleur supplémentaire d'une chaudière à 2 circuits et d'assurer sa protection contre le tartre, un filtre magnétique et un nettoyage grossier doivent être installés sur le tuyau d'alimentation en eau froide. Si le dernier filtre a déjà été installé auparavant, il n'est pas nécessaire de l'installer devant la chaudière.
Toutes les connexions devront être scellées avec un câble, une pâte de plomberie spéciale ou du ruban FUM.
INSTALLATION ET RACCORDEMENT AU SYSTÈME DE CHAUFFAGE
Attention!
- Tous les travaux d'installation de la chaudière, de sélection et d'installation des accessoires de la chaudière et du système de chauffage dans son ensemble doivent être effectués par des spécialistes qualifiés titulaires d'un permis (licence) pour l'installation de systèmes de chauffage.
- L'employé de l'organisation d'installation qui met la chaudière en service est tenu de familiariser l'utilisateur avec les précautions de sécurité lors de l'entretien et du contrôle du fonctionnement de la chaudière; les opérations que l'utilisateur a le droit d'exécuter de manière indépendante et les opérations que seul un technicien de service qualifié a le droit d'exécuter.
- Un employé de l'organisation d'installation est obligé de faire une inscription dans la carte de garantie avec confirmation obligatoire par signature et sceau. En l'absence de ces enregistrements, la carte de garantie sera invalidée et les réparations sous garantie ne seront pas effectuées.
- Avant d'installer la chaudière, il est nécessaire de vérifier son intégrité et son exhaustivité, et également de s'assurer que le modèle de chaudière sélectionné est adapté au fonctionnement dans ces conditions en fonction de ses paramètres d'entrée.
- La pression dans le système doit être le minimum requis pour la circulation du liquide de refroidissement. Une surpression suffisante de + 0,02 ... 0,03 MPa dans le système à la pression de chargement d'un bâtiment particulier.
Il ne faut pas oublier qu'à mesure que la pression augmente, le point d'ébullition augmente également et que l'élévation de température n'est pas autorisée lors de l'utilisation de la plupart des liquides de refroidissement et des tuyaux non gelants en matériaux polymères, et aggrave également les conséquences d'un accident probable. Le raccordement direct d'une chaudière à combustible solide à un système de chauffage constitué de canalisations en polymère est interdit. Dans de tels cas, le séparateur hydraulique capacitif ZSU-210 doit être installé.


Attention!
Avant la mise en service, il est nécessaire de sceller le bouchon d'alimentation et le raccord du thermomètre! Pour la tuyauterie de la chaudière des systèmes de chauffage avec circulation forcée du liquide de refroidissement à l'aide d'une pompe de circulation, des tuyaux d'une section d'au moins DN 40 (G1 1/2 ″) doivent être utilisés, pour le câblage - au moins DN 20 (G3 / 4 ″). La pompe de circulation doit être installée dans la conduite de retour avec un filtre grossier installé devant la pompe (en aval). Des vannes d'arrêt sont installées des deux côtés de la pompe et du filtre pour l'entretien et le remplacement de la pompe et du filtre. Pour la tuyauterie de la chaudière à circulation naturelle, des tuyaux d'une section transversale de DN 40 (1 1/2 ") doivent être utilisés, et le système doit être assemblé avec des pentes qui assurent une vidange complète de l'eau à travers la vanne de vidange sur le tuyau de retour et distillation de l'air du système lorsqu'il est rempli d'eau de bas en haut. Le collecteur de sortie doit avoir une section de DN40 (G1 1/2 ″) jusqu'au dispositif de sécurité du vase d'expansion ouvert ou de la soupape de sécurité. Avec un système de chauffage ouvert, la canalisation d'alimentation monte verticalement vers un vase d'expansion ouvert et le liquide de refroidissement est démonté après avoir passé le point supérieur. Un groupe de sécurité est installé sur le couvercle de la chaudière.


Un système de chauffage fermé doit être équipé d'un vase d'expansion à membrane d'un volume d'au moins 1/10 du volume total du liquide de refroidissement qui y circule.
Calcul du vase d'expansion
Pour calculer le volume de travail d'un vase d'expansion à membrane, il est nécessaire de déterminer le volume total du système de chauffage en ajoutant les volumes d'eau de la chaudière, des appareils de chauffage, des canalisations. Volume du vase d'expansion V = (VL x E) / D, où VL - volume total du système (chaudière, radiateurs, tuyaux, échangeurs de chaleur, etc.) E - coefficient d'expansion liquide% ré - l'efficacité du vase d'expansion à membrane Le volume du système de chauffage est assez difficile à calculer, par conséquent, un calcul approximatif peut être obtenu, connaissant la puissance du système de chauffage, en utilisant la formule - 1 kW = 15 ch Par exemple: capacité de chauffage d'une maison 44 kWt, puis le volume total (capacité) du système de chauffage VL = 15 x 44 = 660 CV Expansion liquide - 4 % env.pour les installations de chauffage à eau chaude à température maximale jusqu'à 95 ° С Si l'éthylène glycol est utilisé comme caloporteur dans le système, un calcul approximatif du coefficient de dilatation peut être effectué à l'aide de la formule suivante: 10% - 4% x 1,1 = 4,4% 20% - 4% x 1,2 = 4,8% etc. efficacité du vase d'expansion à membrane D = (PV - PS) / (PV + 1)où PV - la pression de service maximale du système de chauffage (la pression de conception de la soupape de sécurité est égale à la pression de service maximale), pour les chalets, elle est généralement suffisante 2,5 bar PS - la pression de charge du vase d'expansion à membrane (doit être égale à la pression statique de l'installation de chauffage; (0,5 bar = 5 mètres)
Un exemple de sélection approximative d'un réservoir
La surface chauffée de la maison est de 400 m², la hauteur du système est de 5 m, la puissance de chauffage requise est de 44 kW, puis le volume du vase d'expansion requis sera: VL = 44 x 15 = 660 CV PV = 2,5 bar; PS = 0,5 bar D = (2,5 - 0,5) / (2,5 + 1) = 0,57 V = 660 x 0,06 / 0,57 = 69,5 Choix: Vase d'expansion 70 litres Reflex NG 50, pression de charge 0,5 bar L'emplacement optimal du réservoir est sur la conduite de retour devant la pompe de circulation. Lors de l'installation, il est nécessaire de vérifier la pression dans le vase d'expansion. Elle doit être de 0,7 à 0,8 de la pression nominale pour un système de chauffage spécifique.
Attention!
- Dans un système fermé, une soupape de sécurité doit être prévue sur la colonne montante, conçue pour une pression ne dépassant pas 0,3 MPa.
- Il est nécessaire de prévoir des vannes pour purger l'air du système de chauffage.
La puissance thermique nominale de la chaudière ne doit pas dépasser la consommation de chaleur. Les combustibles solides doivent brûler avec la formation d'une flamme même avec une puissance calorifique réduite de la chaudière. Lors de l'installation de systèmes de chauffage à faible volume, il est recommandé d'utiliser un accumulateur de chaleur du circuit de chauffage. Avec un volume suffisant de l'accumulateur de chaleur du circuit de chauffage, la chaudière peut fonctionner pendant une longue durée de combustion avec une puissance thermique nominale et un faible niveau d'émissions de substances nocives.


L'accumulateur de chaleur du circuit de chauffage assure un chauffage rapide et une extraction suffisante de la chaleur. Son volume devrait être, selon les calculs moyens, de 40 litres pour 1 kW de puissance de chaudière.


S'il est nécessaire de connecter deux ou plusieurs consommateurs, de coordonner deux ou plusieurs sources de chaleur ou de connecter la chaudière à des systèmes modernes avec des canalisations en matériaux polymères, le système de chauffage est connecté à la chaudière via un séparateur hydraulique (capacitif), qui fonctionne partiellement comme un réservoir tampon. Son volume est calculé à 10 litres pour 1 kW de puissance de chaudière.


Les raccords filetés doivent être scellés avec un enroulement: linge sanitaire avec gel sanitaire ou pâte spéciale appliquée sur la surface d'enroulement et la surface intérieure du raccord fileté de la chaudière. Il est permis d'utiliser des enroulements de plomberie, par exemple imprégnés Tangit UniLock, Loctite®55... L'élément chauffant et l'adaptateur enfichable sont scellés avec un joint torique en caoutchouc. Après avoir rempli le système avec de l'eau, vérifiez l'étanchéité des raccords filetés. Si un contrôle répété de l'étanchéité révèle une fuite, il est nécessaire de trier le raccord fileté. Après avoir vérifié l'étanchéité, il est nécessaire de mettre sous pression le système de chauffage avec la chaudière à une pression de 0,3 MPa (si le système est fermé). Vérifiez à nouveau l'étanchéité des raccords filetés et des soudures et, en plus, vérifiez le fonctionnement de la soupape de sécurité.
Attention!
- S'il est nécessaire de vérifier le système de chauffage pour une pression supérieure à 0,3 MPa, déconnectez la chaudière et le réservoir à membrane du système. L'augmentation de la pression doit être de courte durée (jusqu'à 10 minutes)
- Les schémas d'accompagnement sont de base pour la création d'appareils qui répondent aux tâches assignées et ne remplacent pas la conception professionnelle requise pour le travail sur site.
Dispositifs de sécurité: soupape de sécurité, doit être située sur le collecteur de sortie de la chaudière sans dispositifs d'arrêt intermédiaires. La chaudière peut être équipée de dispositifs qui régulent la combustion en mode automatique - régulateur de combustion.


Le système de chauffage doit être conçu et installé de manière à assurer une évacuation complète de l'air lors de son remplissage et une évacuation complète du caloporteur par le drainage lors de la vidange. La chaudière est connectée au système de chauffage à l'aide d'un filetage de tuyau. Raccords filetés: Tuyaux de dérivation «Retour», «Alimentation», raccords de thermomètre, régulateur de tirage automatique ou bouchons pour son raccord - doivent être scellés à l'aide de serpentins de plomberie spéciaux. Ne serrez pas excessivement la bague - il suffit d'étirer jusqu'à 2 ... 2,5 mm de l'écart. C'est environ la moitié du diamètre de l'anneau.
Exigences en matière de liquide de refroidissement
L'eau potable doit être utilisée comme caloporteur, conformément à GOST 2874, avec une dureté carbonatée ne dépassant pas 0,7 mg-eq / kg, qui a été traitée. Le choix de la méthode de traitement de l'eau pour alimenter les chaudières et les systèmes de chauffage doit être fait par un organisme spécialisé (conception, mise en service). Il est permis d'utiliser un liquide de refroidissement domestique non congélateur certifié pour les locaux d'habitation, selon les instructions d'utilisation. Cependant, il n'est pas conseillé d'utiliser un liquide antigel comme caloporteur dans le système de chauffage. Lors de l'utilisation d'un liquide non givrant pour les systèmes de chauffage, il ne faut pas oublier que sa capacité thermique est 20% inférieure à celle de l'eau. Un liquide non givrant dégage et accumule de la chaleur pire, ce qui fait que la puissance de la chaudière peut chuter à 10 - 15% de la valeur nominale. Ceci doit être pris en compte lors du choix d'une chaudière. La durée de vie moyenne des fluides antigel est de cinq ans, après quoi ils doivent être remplacés.
Attention!
- Il est interdit d'utiliser de l'antigel contenant de l'éthylène glycol et d'autres liquides non certifiés pour les systèmes de chauffage domestique.
- La garantie ne couvre pas les défauts (défauts) causés par le colmatage de la chaudière par les polluants du système de chauffage, ou les défauts causés par le colmatage.
Installation de chaudières et de cheminées
L'installation de la chaudière, l'installation de la cheminée et du système de chauffage doivent être effectuées conformément aux "Règles pour la construction et le fonctionnement en toute sécurité des chaudières à vapeur avec une pression de vapeur ne dépassant pas 0,07 MPa (0,7 kg / cm2) , chaudières à eau chaude et chauffe-eau dont la température de chauffage de l'eau ne dépasse pas 338 ° K (115 ° C) ".
Attention!
- La chaudière doit être raccordée à une cheminée séparée. Il est interdit d'utiliser la ventilation et d'autres canaux non prévus à cet effet comme cheminée.
- Pour les chaudières avec brûleur à gaz, il est nécessaire d'utiliser une cheminée étanche au gaz composée de tuyaux soudés avec des joints hermétiquement scellés.
Il est recommandé d'utiliser des cheminées en acier inoxydable à paroi mince en acier comme cheminée pour une chaudière à combustible solide. La meilleure solution consiste à installer des modules de tuyaux préfabriqués de type sandwich avec isolation thermique. De plus, en tant que cheminée pour une chaudière à combustible solide, il est permis d'utiliser une cheminée en brique avec une section de cheminée de 140 à 200 cm2. Le conduit de fumée doit avoir une section transversale constante sur toute sa longueur. Lorsque la cheminée traverse les planchers, la distance entre les surfaces extérieures de la cheminée et les structures en bois est d'au moins 380 mm. La cheminée ne doit pas être encastrée dans des structures en béton et en brique. L'espace entre le manchon de cheminée et la structure du plafond doit être rempli d'un matériau isolant thermique (argile expansée, laine de silice, etc.). Les trous dans les murs ne doivent pas être utilisés comme partie de la cheminée (le manchon de cheminée doit passer). Il est optimal de connecter la chaudière à la cheminée à l'aide d'un té de révision avec un coude à 45 °.


La hauteur de la cheminée, à partir de la grille, doit être d'au moins 5 m.La hauteur des cheminées situées à une distance égale ou supérieure à la hauteur d'une structure solide faisant saillie au-dessus du toit doit être:
- pas moins de 500 mm au-dessus d'un toit plat;
- pas moins de 500 mm au-dessus du faîte du toit ou du parapet - lorsque le tuyau est situé à une distance maximale de 1,5 mètre;
- pas en dessous du faîte du toit ou du parapet - lorsque le tuyau en est situé à une distance de 1,5 à 3 mètres;
- pas plus bas qu'une ligne tirée de la crête vers le bas à un angle de 10 ° par rapport à l'horizon - lorsque le tuyau est situé à une distance de plus de 3 m de celui-ci.
Exigences de sécurité incendie
sont des extraits du SP.713130.2009 pour les poêles de sauna, du SNiP II-4-79 pour les chaudières, du SNiP 41-01-2003 pour les cheminées Les chaudières fixes doivent être installées dans des bâtiments et des locaux qui satisfont aux exigences de SNiP II-35-76 "Chaudières" et aux Règles pour la construction et le fonctionnement en toute sécurité des chaudières à vapeur avec une pression de vapeur ne dépassant pas 0,07 MPa (0,7 kg / cm2), les chaudières à eau chaude et les chauffe-eau dont la température de chauffage de l'eau ne dépasse pas 388 K (115 ° C). La pièce dans laquelle la chaudière est installée doit être équipée d'une cheminée individuelle et d'une ventilation. La ventilation naturelle doit permettre un renouvellement d'air trois fois plus élevé en une heure, à l'exclusion de l'air nécessaire à la combustion. Les pièces où la chaudière est installée doivent être suffisamment éclairées et éclairées la nuit par un éclairage électrique. Les lieux qui, pour des raisons techniques, ne peuvent pas être éclairés par la lumière naturelle doivent être équipés d'un éclairage électrique. L'éclairage doit être conforme à SNiP II-4-79 «Éclairage naturel et artificiel». Pour les chaudières dont la longueur de grille (entretenue par l'avant (paroi avant)) ne dépasse pas 1 m, la distance entre l'avant des chaudières ou les parties saillantes du four à la paroi opposée de la chaufferie doit être d'au moins 2 m Il est permis d'installer des pompes devant la chaudière, ainsi que de stocker des approvisionnements en combustible solide pour pas plus d'un changement de fonctionnement de la chaudière. Dans ce cas, la largeur des passages libres le long de l'avant de la chaudière doit être d'au moins 1,5 m, et l'équipement installé et le combustible ne doivent pas interférer avec l'entretien des fours et de la chaudière. La largeur des passages entre la chaudière et le mur de la pièce doit être d'au moins 1 m. La largeur du passage entre les différentes parties saillantes de la chaudière, ainsi qu'entre ces parties et les parties saillantes du bâtiment, des échelles et autres structures en saillie - pas moins de 0,7 m. côté service, la largeur des passages entre la chaudière et le mur de la pièce doit être d'au moins 1,5 m La largeur de ces passages, ainsi que la largeur entre la chaudière et la paroi arrière de la pièce doit être d'au moins 1 m.Lors de l'installation de la chaudière à proximité de murs ou de colonnes, la chaudière ne doit pas être proche de la paroi de la pièce et être éloignée d'au moins 70 mm de celle-ci. Les planchers de la pièce où la chaudière est installée doivent être faits de matériaux incombustibles avec une surface non lisse et non glissante; ils doivent être de niveau et comporter des dispositifs d'évacuation de l'eau dans les égouts. Lors de l'installation de la chaudière sur un plancher en bois, un écran de protection du sol doit être installé en dessous, ou un joint ignifuge constitué d'une tôle d'acier sur une couche de carton d'amiante imprégné d'une solution d'argile doit être installé devant la chaudière.
Connexion électrique
La connexion d'alimentation électrique doit être effectuée par une organisation agréée avec un personnel qualifié et certifié, conformément aux exigences des règles d'installation électrique (PUE). Chaque élément chauffant doit être connecté avec un câble avec une section de fil de cuivre d'au moins 2,5 mm2 et des disjoncteurs 16A. Pour un bloc d'éléments chauffants 3 × 2 kW, le raccordement en parallèle de trois éléments chauffants via un disjoncteur 30 A est autorisé avec un câble d'une section de conducteurs en cuivre d'au moins 4 mm2.
Attention! Mettez à la terre l'élément chauffant!
C'est interdit:
- installer une vanne d'arrêt sur la canalisation entre la chaudière et le groupe de sécurité ou ouvrir le vase d'expansion;
- inonder la chaudière sans liquide de refroidissement;
- utiliser du lin sans mastic pour sceller les joints filetés;
- installer la chaudière dans une pièce qui ne répond pas aux exigences de sécurité incendie;
- utiliser des cheminées non certifiées;
- installer des équipements sans groupe de sécurité.
Pourquoi garder la distance
La cuisine est la zone la plus chargée d'appareils électriques. Réfrigérateur, four à micro-ondes, système d'échappement, lave-vaisselle - c'est une petite fraction des appareils ménagers, sans laquelle il est impossible d'imaginer. Par conséquent, la sécurité dans cette partie de l'appartement doit être la priorité. L'électricité, le gaz et l'eau sont des inventions utiles, mais entre les mains d'un pirate ou d'une personne irresponsable, ils provoquent des incendies, des blessures, des accidents. Pour éviter de tels problèmes lors du développement d'une cuisine, vous devez examiner attentivement tous les détails de l'intérieur, ainsi que l'emplacement des prises par rapport au tuyau de gaz, à la plaque de cuisson et aux appareils de chauffage. La santé, le bien-être et parfois la vie d'une personne en dépendent.
La distance minimale entre la sortie et le gazoduc ou le tuyau de gaz est de 50 cm.






