Couper l'eau chaude est un phénomène fréquent. Cela se produit en raison des réparations, de la prévention et des accidents dans le système d'approvisionnement en eau, ce qui provoque de nombreuses difficultés, notamment des difficultés de chauffage de l'eau. De tels arrêts ont un effet particulièrement négatif pendant la saison froide.
La solution à ce problème sera l'installation d'un chauffe-eau. Cet appareil fournira de l'eau chaude à un appartement ou à une maison en mode constant et, surtout, avec cet appareil, vous pourrez économiser sur le coût des services publics. Qu'est-ce qui est important lors du choix d'une chaudière et laquelle est préférable d'acheter en termes de qualité et de coût?

Il sera utile de savoir : Types de chaudières : découvrez comment choisir un chauffe-eau pour une maison d'été ou un appartement
Caractéristiques techniques des chauffe-eau avec un réservoir de 100 litres
| Séries | Modèle | Indicateurs | ||||||
| puissance, kWt | Tension, V | Température de fonctionnement, °C | Pression, bars | Temps de chauffe de l'eau à 45°C, min | Dimensions, millimètres | Poids (kg | ||
| Velis | QH, INOX QH | 1,5+1 | 230 | 80 | 8 | premier réservoir - 53, deuxième - 139 | 1275x490x270 | 30 |
| PUISSANCE, PUISSANCE INOX | 1,5+1 | 80 | Le premier réservoir est 91, le second est 139 | |||||
| Pro | R | 1,5 | 75 | 206 | 913x450x480 | 26 | ||
| ÉCO | 1,5 | 80 | 232 | 1338x450x470 | 26 | |||
| Blu | R | 1,5 | 75 | 232 | 913x450x480 | 26 | ||
| ÉCO PUISSANCE | 2,5 | 80 | 130 | 1338x450x470 | 29 | |||
| TI | TI TRONIC | 1,5 | 80 | 232 | 913x450x480 | 26 | ||
| TI TECH QB | 2,0 | 75 | 170 | 963x493x499 | 34 | |||
| PERLA | 100 VRTD / 5 | 1,5 | 80 | 232 | 913x450x480 | 25 | ||
| SG | SG R100L / RTDTS | 1,8 | 80 | 6 | 175 | 904x450x470 | 35 | |
| SGA | SUPER SGA | 4,4 | — | 45 | 8 | 71 | 950x495x510 | 35 |


Avantages et inconvénients
Les qualités positives des chaudières Ariston comprennent:
- Chauffage rapide du volume d'eau requis.
- Traitement de cuve utilisant la technologie AG+ et Titane+.
- Système ABS, qui protège l'installation des pannes liées aux surtensions, aux fuites, etc.
- Des thermostats mécaniques et électroniques simples et fiables qui vous permettent d'obtenir la régulation la plus précise avec une erreur ne dépassant pas 1 ° C.
- Possibilité d'utiliser à basse pression dans le système d'alimentation en eau.
- La fonction ECO permet de purifier l'eau des éléments chimiques nocifs.
- Avec toutes les innovations techniques utilisées dans la fabrication, le prix reste abordable pour toutes les catégories de consommateurs.
- La période de garantie est de 5 à 10 ans.
À en juger par les critiques, le chauffe-eau n'est pas sans inconvénients:
- La charge sur le réseau électrique augmente en moyenne de 1 à 1,5 kW.
- Si la lumière est éteinte, un tel équipement ne fonctionnera pas.
- L'ensemble ne comprend pas les supports pour le montage sur un mur, les tuyaux flexibles pour une ligne d'alimentation et un tuyau pour l'évacuation des condensats.
Lire aussi : Refroidisseur de lait de type ouvert
Comment installer un chauffe-eau Ariston
Selon les instructions, la chaudière à accumulation électrique Ariston doit être installée dans des pièces sèches, chaudes et bien ventilées. Ce processus dure environ 2 heures et comprend les étapes suivantes :
1.À l'aide d'un perforateur, des trous sont percés dans le mur pour les ancrages sur lesquels le chauffe-eau est accroché.
2. Il se connecte à la conduite d'eau avec des tuyaux flexibles. En règle générale, l'entrée d'eau froide est marquée en bleu. Une soupape de surpression est placée dessus. La sortie rouge est connectée au robinet d'eau chaude. Le câble est enroulé sur toutes les articulations.
3. Les robinets sont ouverts et toutes les connexions sont vérifiées pour les fuites.
4.À l'aide du connecteur, l'appareil est connecté au secteur. Le contact sur la borne du chauffe-eau, marqué de la lettre L, indique «phase», la lettre N - «zéro», la mise à la terre est marquée en jaune.
En cas de dysfonctionnements pendant le fonctionnement, il est préférable de confier la réparation de la chaudière Ariston à un spécialiste en contactant un centre de service agréé.
Ces bureaux sont ouverts dans toutes les grandes villes de Russie. L'auto-réparation peut endommager des composants coûteux et annuler le service de garantie.


Les prix moyens en roubles à Moscou sont différents et dépendent de la série et du modèle de la chaudière. L'installation TI Shape 100 V la moins chère coûte 4 800 - 5 660. De plus, il faut noter que le prix du chauffe-eau Ariston TI Shape 15 UR, équipé d'un réservoir beaucoup plus petit (seulement 15 litres), n'est pas beaucoup moins - 4 100 - 4 500.
- Le modèle ABS Blu R 100 V coûtera entre 5 900 et 7 000.
- Vous pouvez acheter Ariston ABS PRO ECO 100 V pour 7 100 - 8 600, ABS Pro-R 100V est légèrement moins cher - 5 800 - 8 380.
- Le coût d'un chauffe-eau à chauffage rapide pour 100 l Ariston Velis est de 12 700 à 14 910.
- Les unités combinées Perla 100 VRTD / 5 coûteront en moyenne 9 440 à 10 400.
- Les unités les plus chères sont SGA-17 100 - 1 9 700 gaz.
« J'ai installé une chaudière Ariston ABS Velis QH 100V dans mon nouvel appartement. Au moment de choisir, j'avais peur : si je prenais le bon modèle, s'il était fiable, etc. Un ami averti a convaincu et je ne regrette pas l'achat. Grâce à son corps mince, il a l'air très compact. Il n'y a pas eu de difficultés de gestion. J'ai rapidement compris les instructions, et grâce à l'affichage numérique, tout le reste est clair et facile. J'ai entendu dire qu'il consomme beaucoup d'électricité. D'après mes observations, ce n'est guère plus qu'une machine à laver."
« Ariston Blu ECO 100V a été acheté pour leurs parents âgés. Ils l'ont choisi car les personnes âgées ont besoin d'une chaudière simple et fiable. Après 2 mois, nous avons évalué notre choix. Ce modèle est complètement protégé contre les dysfonctionnements dus à une pression sur le mauvais bouton. C'est-à-dire qu'il ne peut pas être allumé sans eau, en cas de surchauffe, il s'éteint automatiquement et ainsi de suite. Et à un prix de 6,5 mille roubles, cela rentre dans le budget. "
Stepan Aristov, Voronej.
« De ma propre expérience, j'étais convaincu qu'un réservoir de cent litres était la meilleure option pour une famille de 4 personnes. Nous avons acheté un Ariston TI Shape 100V. En plus du prix raisonnable, j'ai été satisfait de sa taille compacte, de sa facilité d'utilisation et de sa précision de travail. Si vous prenez une douche et lavez la vaisselle sans fioritures, alors nous quatre avons assez d'eau pour toute la journée. »
Parmi le grand choix de chauffe-eau, les appareils Ariston se distinguent par leur originalité, leurs critiques positives et leurs caractéristiques techniques élevées.
Table des matières:
Concept général des chauffe-eau Ariston
Les chauffe-eau Ariston sont des appareils qui remplissent la fonction de chauffage et de maintien de températures d'eau élevées.


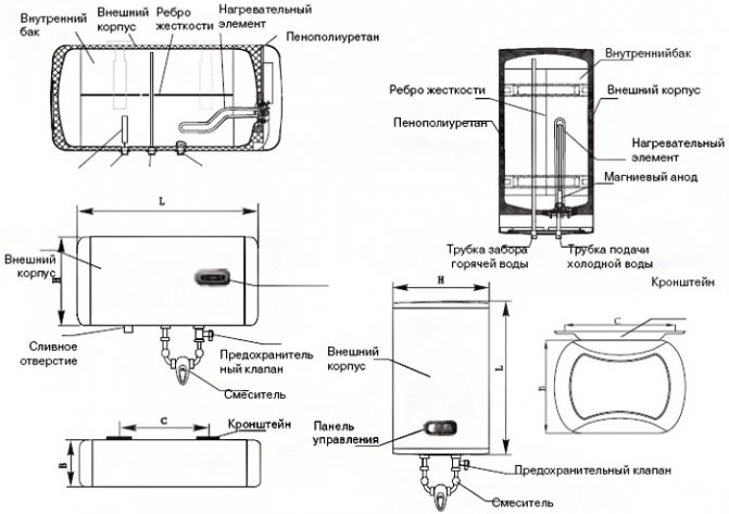
Les chauffe-eau Ariston se composent de :
- boîtier externe en acier ou en plastique ;
- attaches - supports;
- un réservoir interne avec un revêtement protecteur AG +, qui assure la purification de l'eau et la protection des parois internes du réservoir;
- anode en magnésium, qui offre une protection supplémentaire contre la formation de rouille;
- dispositifs d'entrée et de sortie d'eau et diviseur Nanomix ;
- isolation en mousse de polyuréthane, qui ne permet pas de perte de chaleur supplémentaire;
- capteur de température;
- élément chauffant en cuivre ou élément chauffant;
- panneaux de commande et affichage numérique;
- une bride qui maintient l'élément chauffant, l'anode et le capteur de température ;
- dispositifs à courant résiduel;
- protection contre la mise en marche du chauffage lorsqu'il n'y a pas d'eau;
- protection électrique;
- protection contre les micro-organismes.


Avantages d'acheter et d'installer des chauffe-eau Ariston:
1. Un design élégant aidera à adapter le chauffe-eau dans n'importe quel intérieur. Les chauffe-eau Ariston sont conçus avec les dernières technologies.
2. Le revêtement moderne des parois intérieures du réservoir protège le chauffe-eau de la rouille et des dépôts. Ainsi, le chauffe-eau durera plus longtemps.
3. Le diviseur innovant Nanomix ne mélange pas l'eau froide et l'eau chaude, maintenant ainsi la température de l'eau chauffée.
4. Grâce à l'isolation thermique, l'eau reste chaude longtemps, économisant ainsi de l'énergie ou du gaz.
5. Capteurs de contrôle de température pour éviter la surchauffe de l'appareil.
6. En cas de chutes de tension soudaines, un dispositif d'arrêt de protection se déclenche, ce qui élimine le risque d'endommagement du chauffe-eau et de choc électrique pour une personne.
7. Certains modèles de chauffe-eau sont équipés d'une protection professionnelle contre les bactéries, ce qui vous permet de recevoir de l'eau chaude purifiée.
8. La protection contre la mise en marche du chauffe-eau, au moment où il n'y a pas d'eau dans le système, protège l'appareil contre les dommages.


Variétés de chauffe-eau Ariston
Selon le principe de fonctionnement, les chauffe-eau Ariston sont divisés en:
Le deuxième nom d'un chauffe-eau à accumulation est une chaudière.C'est un petit réservoir dans lequel l'eau pénètre et est chauffée par une source de chaleur spécifique.
Les chaudières sont divisées en:
- chauffe-eau à chauffage direct qui chauffent l'eau à l'électricité ou au gaz;
- chaudières à chauffage indirect, situées à proximité d'un échangeur de chaleur, par exemple une chaudière.
La chaudière est un réservoir en acier qui a une isolation thermique obligatoire pour éviter les pertes de chaleur.
Selon le principe et le lieu de travail, les chaudières sont divisées en:
- dispositifs de type ouvert,
- appareils de type fermé.


1. Les chauffe-eau ouverts sont en plastique. De telles chaudières sont utilisées dans un système d'alimentation en eau individuel pour fournir de l'eau chaude à un point de soutirage spécifique. L'eau entrant dans la chaudière et remplissant le récipient est fermée jusqu'à ce qu'elle soit complètement chauffée, puis le mélangeur pousse l'excès d'eau dans l'évier. Mais l'eau chaude n'est fournie que pendant que l'eau froide entre dans la chaudière. C'est-à-dire que vous ne pouvez pas utiliser toute l'eau chaude puis remplir le réservoir. Dans un appareil de type ouvert, l'entrée d'eau froide est située en bas et pour l'eau chaude d'en haut, par conséquent, sans la pression de l'eau froide, l'eau chaude n'entrera pas dans le système. L'eau chaude étant en haut et l'eau froide en bas, l'eau de la chaudière ne se mélange pas, ce qui permet un chauffage progressif de l'eau.
Lire aussi : La terre est froide, les oiseaux se sont envolés
2. Les chauffe-eau fermés sont utilisés pour plusieurs points de soutirage. Le matériau pour la fabrication de la cuve de chauffage d'une telle chaudière est du métal, du cuivre, de l'inox ou de l'acier émaillé. Le récipient contenant de l'eau étant fermé et, lorsque l'eau est chauffée, elle se dilate, l'ensemble complet d'une telle chaudière comprend une soupape de sécurité, une vanne de récupération et un clapet anti-retour. Si la pression dans l'appareil augmente, une soupape de sécurité se déclenche, ce qui ouvre une vanne spéciale et l'excès d'eau s'écoule dans les égouts. Pour éviter la formation de rouille, dans les chaudières de type fermé, une protection cathodique à partir d'une anode en magnésium ou galvanisée est utilisée.


Un chauffe-eau à circulation a un petit réservoir, de sorte que l'élément chauffant est le plus souvent placé dans un petit morceau de tuyau. Pendant l'écoulement de l'eau à travers cette section, l'élément chauffant chauffe le liquide.
Les chauffe-eau instantanés sont:
- chauffage direct,
- chauffage indirect.
Les chauffe-eau à chauffage direct produisent le chauffage de l'eau à l'aide d'un élément chauffant, d'une spirale ou d'un brûleur à gaz.
Les chauffe-eau à chauffage indirect utilisent un fluide chauffant qui chauffe un tuyau rempli d'eau.
Les chauffe-eau à débit sont divisés en :
En plus du stockage, les chauffe-eau instantanés fermés alimentent plusieurs points de soutirage, et les ouverts - un seul.
Selon le type d'allumage, les chauffe-eau à circulation d'air émettent :
- allumage piézoélectrique de gaz,
- allumage électronique du gaz,
- allumage par gaz de turbine hydraulique.


Lorsque l'eau se déplace à travers un tube avec un élément chauffant, un signal est reçu via les capteurs de débit et l'élément chauffant est mis en marche pour chauffer l'eau. Lorsque l'eau chaude est coupée ou que le tuyau surchauffe, l'élément chauffant de l'eau est éteint. Les chauffe-eau instantanés n'ont pas de mélangeurs d'eau chaude et froide.
Selon le type de chauffage, il existe :
- chauffe-eau à gaz à circulation directe,
- chauffe-eau électriques à débit.
Dans un chauffe-eau à gaz, la température de l'eau est régulée par la quantité de gaz fournie, et dans un chauffe-eau électrique, des capteurs de contrôle de température spéciaux sont installés.
Caractéristiques des chauffe-eau Ariston
Ariston Thermo Group est une entreprise italienne qui fabrique des équipements de chauffage et de chauffage de l'eau depuis plus de 50 ans.
La société Ariston produit des chauffe-eau électriques et à gaz, des chauffe-eau à accumulation et instantanés.
Avis sur les chauffe-eau Ariston - la plupart du contenu positif, de nombreux consommateurs caractérisent les chauffe-eau Ariston comme des appareils durables dotés de fonctions utiles modernes et d'une apparence attrayante.


1. Chauffe-eau électriques Type de stockage Ariston :
- la série de chauffe-eau Ariston ABC produit des chauffe-eau muraux Eco Slim - dimensions compactes, Platinum Slim - avec un revêtement en acier inoxydable, Silver Platinum Slim - avec un revêtement spécial en argent qui empêche la formation de rouille, le modèle Shuttle est fabriqué en une forme rectangulaire plate;
- les modèles de la série TI Shape ont un revêtement en titane et un écran à cristaux liquides pour régler le fonctionnement du chauffe-eau, le modèle TI Shape Control a une télécommande ;
- la série Super Glass Resin représente des modèles minimisés qui sont faciles à installer au-dessus ou au-dessous de l'évier et ont un revêtement d'émail finement dispersé;
- le modèle Eureka a une forme de ballon inhabituelle et est équipé d'un robinet ou d'une douche, au choix de l'acheteur, le matériau du réservoir est en plastique résistant à la chaleur;
- la série Industrial représente des modèles conçus pour chauffer l'eau dans les grandes entreprises, qui se distinguent par un revêtement en titane et sont de deux types: mural ou au sol;
- Velis - chauffe-eau à télécommande et double puissance, les chauffe-eau ont une forme plate et permettent l'installation d'écrans couleur interchangeables.


2. Chauffe-eau électriques Type de débit Ariston :
- Bravo E - dispose d'une commande électronique, d'indicateurs d'allumage et de réglage de la température de l'eau ;
- Bravo M - équipé d'un système de contrôle mécanique, en plus du chauffe-eau, l'ensemble comprend une pomme de douche et un filtre intégré.
3. Chauffe-eau à accumulation au gaz :
- Modèle Super SGA - fixé au mur, à tirage naturel, recouvert d'émail finement dispersé, offre une consommation de gaz économique, indépendante de l'alimentation électrique;
- SGA - a une chambre de combustion ouverte, un couvercle extérieur en acier, des capteurs de sécurité et fonctionne au gaz liquéfié ;
- NHRE est un grand chauffe-eau au sol qui peut chauffer 600 litres d'eau en 24 minutes de fonctionnement, a une isolation thermique, qui est faite de laine minérale, les murs extérieurs sont garnis de cuir vinyle.


4. Chauffe-eau à gaz à circulation Ariston :
- DGI - chauffe-eau à allumage électronique, la régulation de la puissance se fait manuellement, la fumée est évacuée de manière naturelle, les chauffe-eau ont une forme rectangulaire plate;
- Fast CF - ne nécessite pas d'alimentation supplémentaire, l'échangeur de chaleur est en cuivre, ce qui réduit considérablement les pertes de chaleur;
- Marco Polo g7s - une chambre de combustion fermée qui offre une sécurité supplémentaire, la présence d'un écran tactile et un design moderne, font de ce modèle l'un des plus populaires parmi les consommateurs ;
- Marco Polo M2 est un modèle avec une chambre de combustion ouverte et un ventilateur pour l'évacuation des fumées, deux étages de protection de l'appareil contre la surchauffe garantissent un haut niveau de sécurité et une longue durée de vie de l'appareil.
5. Chaudières de type indirect :
- Série BACD de chauffe-eau connectés à des chaudières murales ou au sol ; le package comprend un package pour connecter un chauffe-eau à la chaudière ;
- le modèle BS1S a un échangeur de chaleur en spirale et un boîtier extérieur en acier, il est possible d'installer un thermostat pour réguler la température, et les pieds d'installation sont également inclus avec le chauffe-eau ;
- le chauffe-eau BS2S se caractérise par la présence de deux échangeurs de chaleur, recouverts d'émail finement dispersé, et le revêtement en titane protège le boîtier intérieur de la formation de corrosion ;
- modèle de chauffe-eau ВСН convient pour une installation aussi bien au mur qu'au sol, la garantie pour ce modèle est d'un an.
Les prix des chauffe-eau Ariston dépendent du type et du principe de fonctionnement de l'appareil. Le coût minimum d'un chauffe-eau électrique à accumulation Ariston est de 110 $, et un chauffe-eau électrique à circulation est de 90 $. Le prix d'un chauffe-eau instantané au gaz est de 190 $, le coût minimum d'un chauffe-eau à accumulation au gaz est de 210 $.


Raccordement chauffe-eau Ariston
Avant d'installer l'appareil, vous devez étudier les instructions du chauffe-eau Ariston, qui détaillent les caractéristiques individuelles de l'installation d'un modèle de chauffe-eau particulier.
Schéma d'installation du chauffe-eau Ariston :
1. Fixation de la chaudière au mur. Avant de commencer ce processus, assurez-vous que le mur est capable de supporter deux fois le poids du chauffe-eau. À l'aide d'un crayon et d'un niveau, tracez l'emplacement du chauffe-eau et installez les fixations. Faites attention à la hauteur de montage, le lieu d'installation doit être pratique pour la maintenance ultérieure de l'appareil. La distance entre les fixations est indiquée dans les instructions. Par exemple, pour un chauffe-eau de 30 litres, la distance est de 27 cm. Quatre trous doivent être percés afin d'installer les bandes sur lesquelles le chauffe-eau est monté.
2. L'installation du chauffe-eau au sol est plus facile, il vous suffit de fixer les pieds au sol à l'appareil.
3. Une fois le chauffe-eau installé, connectez l'appareil à l'alimentation en eau. Placez les tuyaux sur les trous d'entrée d'eau froide et de sortie d'eau chaude, fixez les tuyaux avec des écrous. Dans la plupart des cas, aucune étanchéité supplémentaire n'est nécessaire, mais utilisez un joint en caoutchouc ou un mastic si vous le souhaitez.
A lire aussi : Mode d'emploi de l'huile de pépins de raisin
4. Ouvrez l'eau et attendez que le réservoir soit plein. Vérifiez l'appareil pour les fuites et allumez-le seulement.
5. Lors de l'installation d'un chauffe-eau électrique, il est préférable d'utiliser une prise reliée à la terre.
6. Sélectionnez la puissance requise pour le fonctionnement du chauffe-eau et vérifiez la température de l'eau après un certain temps.
La marque italienne Ariston n'a guère besoin de publicité supplémentaire. Les appareils de cette marque populaire sont présents dans presque tous les foyers du monde. "Ariston" est l'un des leaders de la vente d'appareils électroménagers et a à juste titre mérité ce prestige. Le réseau de distributeurs de cette société compte des milliers de filiales et d'entreprises, grandes et petites, et continue de s'étendre.
Maintenant, l'assortiment de produits Ariston est très large. Du gros électroménager aux petits électroménagers « intelligents » pour la vie : lave-linge, réfrigérateurs, congélateurs, cuisinières électriques à gaz, fours et plaques de cuisson convertisseurs, lave-vaisselle, appareils de chauffage et systèmes de climatisation.
Chauffe-eau instantanés et à accumulation
Selon la méthode de chauffage, les chauffe-eau sont divisés en débit et stockage. L'eau du chauffe-eau est chauffée au moment du débit, c'est-à-dire uniquement lorsque vous ouvrez le robinet, et le reste du temps, la chaudière est au repos. Avec le schéma de travail cumulatif, l'eau est chauffée comme dans une grande bouilloire, plus convenablement, dans un samovar.
Avantages et inconvénients d'un système de chauffage à circulation continue :
- Manque de chaleur, et par conséquent, pertes électriques qui surviennent lors de toute tentative de stockage d'une grande quantité d'eau chaude. Pour chaque litre d'eau chauffée, vous paierez 10 à 30% de moins par rapport au régime par capitalisation.
- Petite taille. Un radiateur à circulation d'air est plus petit qu'un micro-ondes, ce qui, bien sûr, plaît bien plus à l'œil de toute femme au foyer qu'un énorme baril de la taille d'un réfrigérateur.
- Avec des avantages évidents, les radiateurs à circulation d'air ont un gros inconvénient : des courants élevés dans le circuit électrique, c'est-à-dire une charge élevée sur votre réseau électrique.Pendant que vous vous prélassez au lit, la chaudière à accumulation vous réchauffera lentement avec un ou deux kilowatts d'eau pour votre douche matinale, et ce qu'elle a fait en quelques heures, la chaudière à flux devra le faire en cinq minutes de votre Exercice matinal. Un réchauffeur à circulation d'une capacité de 3 à 5 kW parvient à augmenter la température de 10 à 15 degrés. En été, lorsque l'eau chaude était coupée dans l'appartement et que vous veniez de la rue pour prendre une douche, cette option est une bonne chose. Cependant, dans tous les autres cas, un appareil plus puissant est requis, et ici beaucoup dépend du manque de possibilités techniques pour connecter un tel, surtout dans le cas d'une famille nombreuse.


Les radiateurs à circulation d'air sont plus économiques et compacts que les radiateurs à accumulation, mais ils imposent des exigences beaucoup plus importantes au réseau électrique.
Vidéo : chauffe-eau instantané ou chaudière, que choisir
Caractéristiques de la chaudière
Consultez également ces articles
- Imprégnation du bois pour l'extérieur
- Installer son chez-soi est un moment important et significatif
- Caractéristiques du choix des outils de jardin pour donner
- Horloge de bricolage
Caractéristiques du chauffe-eau Drazice OKC 200 NTR :
- échangeur de chaleur en spirale puissant;
- température maximale de l'eau de chauffage 110 ° C, pression 1 MPa;
- thermostat;
- soupape de sécurité;
- réservoir en acier émaillé;
- anode de magnésium intégrée;
- isolation en polyuréthane de haute qualité;
- alarme de fonctionnement du chauffe-eau ;
- contrôle précis de la température de l'eau;
- la capacité d'activer la circulation;
- installation et raccordement simples à la source d'eau de chauffage;
- chauffage très rapide de l'eau.






