Appareil et principe de fonctionnement
Comme mentionné ci-dessus, les chaudières de chauffage à combustible liquide sont structurellement similaires aux chaudières à gaz à deux et trois passes. En raison de leur conception, les produits sont fabriqués dans une conception au sol.
Pour référence. Dans les systèmes de chaudière avec échangeur de chaleur à tubes de combustion, les produits de combustion peuvent changer plusieurs fois de direction de mouvement, effectuant plusieurs passages à travers les tubes de combustion et dégageant de manière intensive la chaleur vers la chemise d'eau. En fonction du nombre de courses, l'échangeur de chaleur se voit attribuer une caractéristique - à trois ou à deux voies.
La similitude réside dans la conception de l'échangeur de chaleur constitué de tubes à flamme enfermés dans une chemise d'eau. Au centre, il y a une chambre pour brûler du carburant, uniquement pour une unité diesel, elle a une forme cylindrique. Cela est dû aux caractéristiques de conception du brûleur utilisant du combustible liquide. Les principaux éléments et détails sont indiqués sur la figure.
le dispositif de la chaudière fioul Viessmann
A - coque thermo-isolante externe; B - surfaces d'échange thermique des tubes à flamme; C - chambre de combustion; D - unité de commande électronique; E - dispositif de brûleur.
Dans les produits des principaux fabricants étrangers, la chambre de combustion est en acier inoxydable résistant à la chaleur, les générateurs de chaleur domestiques à faible coût peuvent également être en métal épais ordinaire. Le matériau de l'échangeur de chaleur est de la fonte ou de l'acier; la fibre de basalte ou la mousse de polyuréthane dense est utilisée pour l'isolation thermique. Un brûleur fonctionnant au combustible liquide et présentant un intérêt particulier, sa conception avec une explication des éléments est illustrée ci-dessous.

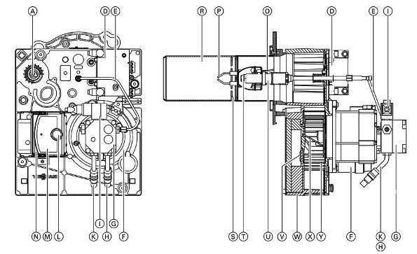
Dessin de brûleur diesel
A - papillon des gaz pour la régulation de l'air; D - bloc du système d'allumage avec capteur de contrôle de flamme; E - conduite de carburant; F - moteur de ventilateur; G - pompe; K, N - conduites d'alimentation et de retour de carburant; І - électrovanne; L - bouton pour réinitialiser le signal de dysfonctionnement; M - contrôle automatique du chauffage; N - console; О - câble d'allumage; Р - électrodes du système d'allumage; R - pièce de travail cylindrique; S - dispositif de mélange; T - buse; U - tige avec réchauffeur de carburant; V - dispositif d'admission d'air; W - corps de brûleur; X - canal d'air; Y - roue du ventilateur.
La partie travaillante est réalisée sous la forme d'un cylindre avec de nombreux trous, à travers lesquels la flamme passe. Lorsque le combustible est brûlé, la flamme du brûleur chauffe les parois cylindriques du four, comme indiqué sur la photo.
Fonctionnement du brûleur à mazout
Un conteneur spécial est destiné au combustible, il peut être autonome ou suspendu au mur, une conduite d'alimentation est posée de celui-ci au brûleur. Certains brûleurs ont une conduite de retour carburant pour décompresser, puis l'installation de la chaudière et son raccordement sont assurés par deux tuyaux - alimentation et retour, allant au réservoir avec du carburant. L'allumage est effectué en mode automatique à la commande de l'unité de commande.
Buse de fioul - la base de la technologie de chauffage
L'un des principaux éléments de toute chaudière fonctionnant au carburant liquide de divers types (carburant diesel, essence) est la buse. La tâche principale d'une telle unité est le mélange optimal et efficace du carburant avec de l'air et son alimentation dans la chambre de combustion. La présence d'un tel équipement permet d'obtenir la stabilité du processus de combustion, d'augmenter le transfert de chaleur et d'éliminer les coûts élevés du carburant.
Un brûleur à mazout peut avoir une certaine conception et des caractéristiques, en fonction du type de chaudière elle-même. Mais dans le même temps, les brûleurs universels ont acquis une grande popularité, qui brûlent tout aussi efficacement des matériaux liquides de différentes viscosités, de l'essence au diesel et même au mazout.
Dispositif fioul pour chaudière de chauffage
Les principaux types de brûleurs à mazout
Selon le type d'appareil combustible utilisé pour le chauffage des chaudières, il peut être divisé en plusieurs groupes:
- Diesel. Conçus pour brûler du carburant diesel, ils présentent certaines caractéristiques de conception, grâce auxquelles un approvisionnement efficace en carburant est assuré, et sa consommation excessive est exclue;
- Brûleurs à fioul lourd. Ils sont utilisés pour travailler sur le fioul ou «minier», ils brûlent bien même les substances les plus épaisses sans traitement supplémentaire avec une sorte de solvants;
- Le brûleur à combustible liquide GRZH 1 est un équipement modulaire qui utilise des matériaux liquides ménagers spéciaux comme combustible.
La classification des brûleurs pour chaudières se fait également selon le principe du contrôle des nœuds:
- Contrôle manuel. Il est entendu que le propriétaire de la propriété contrôle de ses propres mains le fonctionnement de la chaudière, l'alimentation en liquide de la chambre de combustion et la température du liquide de refroidissement à la sortie de la source de chaleur;
- Contrôle automatisé. L'instruction pour la technique suppose que les appareils de ce type ne nécessitent pas la participation constante de l'opérateur, ils vous permettent d'établir un fonctionnement de haute qualité du système de chauffage. En particulier, de tels brûleurs comportent des unités d'allumage automatique, d'alimentation en carburant et d'arrêt, le contrôle de la température en fonction des paramètres réglés.


Variétés de brûleurs fonctionnant au combustible liquide
Conseils. Si les opportunités financières le permettent, il est préférable d'opter pour des appareils à carburant liquide avec un système de contrôle automatique. Grâce à un tel équipement, il est possible d'équiper le fonctionnement économique et productif du chauffage, éliminant ainsi la probabilité de pannes et d'autres problèmes.
Il convient de noter que le type de régulation de puissance affecte également un paramètre des brûleurs tel que le prix. En particulier, sur le marché intérieur, vous pouvez trouver des unités avec un système de réglage à une ou deux étapes et, surtout, c'est la deuxième option qui est populaire. Tout est question de possibilité de réglage en douceur, garantissant le fonctionnement le plus économique.
Découvrez également les avantages des chaudières à combustible solide à combustion longue.
Avantages des brûleurs pour les applications liquides
Dans les photos et vidéos publiées sur notre portail Internet, vous pouvez voir que des chaudières avec équipement à combustible liquide intégré sont actuellement installées dans de nombreuses maisons privées et institutions publiques. Les raisons de la popularité de cette technique particulière résident dans la masse des avantages et des caractéristiques de conception des unités, qui sont directement responsables de la combustion du liquide dans la chambre.
Les principaux avantages des brûleurs à combustible liquide sont:
- Possibilité d'automatisation complète des équipements. Grâce aux brûleurs automatiques, il est possible d'établir le fonctionnement le plus économique, mais en même temps productif de tout système de chauffage autonome;


Système d'huile industrielle
- Économies de carburant. Un grand choix d'unités à combustible liquide pour le chauffage des chaudières permet l'utilisation d'une grande variété de types de combustibles, du diesel aux huiles usagées. De plus, tous ces matériaux sont beaucoup moins chers que le gaz traditionnel;
- Chauffage rapide du liquide de refroidissement. En raison de leur conception, les brûleurs à combustible liquide fournissent une alimentation efficace en combustible en une quantité telle que la combustion est effectuée avec un niveau élevé de transfert de chaleur.
Conseils.Les chaudières, qui sont équipées d'unités spéciales et peuvent fonctionner au combustible liquide, sont le meilleur choix pour les objets où un chauffage rapide du fluide de travail ou la génération de vapeur en grands volumes est nécessaire.
Découvrez également les avantages des chaudières mixtes "Bois de chauffage - électricité".
Que sont les chaudières à charbon à combustion longue pour les maisons privées
Une chaudière à charbon à combustion longue est un appareil de chauffage moderne conçu pour générer de l'énergie thermique, puis chauffer le liquide de refroidissement en brûlant certains types de combustibles solides, principalement du charbon et du lignite, de l'anthracite, des briquettes de charbon, etc.
Application et efficacité
Les chaudières à combustible solide n'ont pas besoin d'une conception avancée d'un projet de construction, elles sont donc utilisées partout - non seulement pour la formation d'un nouveau, mais aussi pour la modernisation d'un système de chauffage existant dans une pièce (à usage domestique, industriel et commercial fins).


L'exploitation au charbon n'implique pas de dépendance vis-à-vis des communications réseau, c'est pourquoi ces chaudières sont idéales pour les maisons privées situées dans des zones non gazéifiées. Dans de telles conditions, ils révèlent pleinement leur potentiel, car, s'ils le souhaitent, ils peuvent être adaptés pour la préparation et le chauffage de l'eau.
L'efficacité des chaudières à charbon à combustion longue atteint 80–87% (contre 70–75% standard), mais on ne peut pas les qualifier d'option de chauffage très bon marché.
Comparaison de l'efficacité des chaudières à charbon à combustion longue (tableau):
| Ressource principale | Pouvoir calorifique, mJ (kW) / kg (m3) | Prix du carburant, RUB / t (m3, kW) | Efficacité | Le coût du kW de chaleur, roubles |
| charbon | 22,1 (6,2)–27,6 (7,7) | 6000–7000 | 80–87 % | 1,04–1,20 |
| charbon anthracite | 28,3 (7,8)–31,1 (8,7) | 8000–8500 | 80–87 % | 1,12–1,28 |
| gaz naturel | 33,5 (9,3)–36,5(10) | 5400–5700 | 90–95 % | 0,60–0,64 |
| bois de chauffage haché | 11,2 (3,1)–14,3 (4,0) | 1500–1800 | 60–65 % | 0,69–0,80 |
| électricité | 3,6 (1) | 2.5-4.3 (tarif) | 98–99 % | 2,55–4,34 |
Comme le montre le tableau, les chaudières à gaz sont les plus rentables d'un point de vue financier. Lorsqu'il est brûlé, le gaz est presque entièrement converti en énergie thermique, il n'est donc pas nécessaire de «gaspiller» le prix des déchets, qui sont inévitablement générés lors de la combustion de tout combustible solide.
Le coût du bois de chauffage est également inférieur à celui du charbon, mais à long terme, un tel chauffage perd toujours: puisque le bois a une densité et une masse plus faibles, avec le même volume du four, une charge complète de bois de chauffage (même en tenant compte de l'augmentation en temps de combustion) suffit pour 8 à 48 heures et le charbon brûle jusqu'à 1 à 7 jours.
Appareil et principe de fonctionnement


Le principe de fonctionnement d'une chaudière à charbon à combustion longue à l'exemple du modèle Stropuva S20.
Le dispositif des chaudières à charbon à combustion longue est généralement similaire à toutes les autres unités à combustible solide, mais il présente certaines caractéristiques:
- chambre de chargement - occupe presque tout l'espace interne du corps cylindrique, ce qui explique la capacité accrue de la chaudière;
- l'entrée de la chambre de combustion est nécessairement située dans le tiers supérieur de la chambre de chargement, tandis que la porte elle-même peut être située à la fois verticalement et horizontalement;
- la chambre à air est en même temps un récupérateur, grâce auquel l'air qu'elle contient se réchauffe et entre dans la zone de combustion déjà chaude;
- distributeur mobile - est une "crêpe" métallique plate nécessaire pour mesurer l'air sur la surface de combustion du carburant;
- conduit télescopique - ressemble à un tube à allongement dynamique qui relie la chambre à air et le distributeur;
- cendrier - il est placé en standard dans la partie inférieure du corps, mais il ne joue plus le rôle d'un ventilateur, comme dans les chaudières conventionnelles, il doit donc être fermé hermétiquement;
- cheminée - a une forme «cassée» (genou), de sorte que la fumée qui la traverse accumule mieux la chaleur et est évacuée dans la cheminée déjà refroidie;
- échangeur de chaleur - "chemise d'eau" est intégrée dans le corps de la chaudière, elle (contrairement à un serpentin) entoure la chambre de combustion et le canal de cheminée sur tout le périmètre.
À première vue, il peut sembler qu'une longue période de fonctionnement continu est obtenue en augmentant la chambre de chargement, mais ce n'est pas tout à fait vrai.
Le principe de fonctionnement de ces chaudières est de mettre en œuvre une "combustion supérieure": pour cela, l'air n'est pas fourni par le bas - à travers la grille, comme dans les chaudières conventionnelles (combustion directe), qui fonctionnent au tirage naturel, et par le haut - par un conduit d'air, utilisant un flux forcé.
Dans de telles conditions, le processus de combustion devient totalement contrôlable: il n'est actif que dans la zone d'alimentation en air et n'affecte quasiment pas la majeure partie du carburant. En fait, la combustion est réduite à une combustion couche par couche (sans flamme) - des couches supérieures aux couches inférieures, ce qui permet un transfert de chaleur plus uniforme.
Processus visuel de combustion à long terme du charbon.
Conception d'équipement
Un des principaux éléments d'une chaudière à combustible liquide, doué dans l'utilisation de l'essence ou du diesel, un injecteur. Il est conçu pour un mélange optimal et efficace du carburant avec de l'air et l'alimentation du mélange dans la chambre de combustion.
Grâce à cet équipement, il est possible de prendre:
- la résistance du processus de combustion;
- transfert de chaleur accru;
- économie de carburant.
En gros, les caractéristiques de conception d'un brûleur à mazout dépendent du type de chaudière où il est utilisé. Malgré le fait que les produits universels ont commencé à acquérir une immense popularité, les personnes talentueuses brûlent également bien des matériaux liquides de viscosités différentes. En plus de ce qui précède, il est possible d'y ajouter du mazout.
Les types
Les brûleurs à combustible liquide peuvent être divisés en fonction du type de combustible qu'ils utilisent pour chauffer les chaudières:
| Diesel | Conçu pour fonctionner avec du carburant diesel. Posséder certaines caractéristiques constructives, qui fournissent un approvisionnement en carburant efficace sans dépenses excessives. |
| Pour le fioul | Ils sont capables de travailler avec du carburant visqueux - fuel-oil ou "working off", ils sont également autorisés à brûler les matériaux les plus courants sans traitement supplémentaire avec des solvants. |
| AnGR 1 |
|
Classification
Il est possible de superviser le fonctionnement des brûleurs de chaudière:
- Manuellement, à un moment où le propriétaire gère la chaudière de ses propres mains, par exemple, fournit du combustible à la chambre de combustion et surveille la température du liquide de refroidissement à la sortie de la source de chaleur.
- Au moyen de l'automatisation. L'instruction pour l'équipement suppose que les unités de ce type n'ont pas besoin d'une surveillance constante de l'opérateur, ce qui permet d'établir un fonctionnement de haute qualité du système de chauffage. Par exemple, ces brûleurs sont équipés de:
- blocs d'allumage automatique de carburant;
- son classement et son arrêt;
- régulateur de température, qui le régule lui-même dans les paramètres définis.
Conseil: la meilleure option est les chaudières à combustible liquide avec un système de contrôle automatique. Grâce à un tel équipement, il est possible de créer un système de chauffage économique et efficace qui fonctionne sans pannes ni autres problèmes.
Le prix des brûleurs dépend également du type de régulation de puissance. Par exemple, le marché intérieur offre des options avec une ou deux étapes d'ajustement, et la seconde est très demandée. Il permet d'effectuer le réglage en douceur, ce qui offre le mode de fonctionnement le plus économique.
Avantages
Des équipements de chauffage avec des dispositifs à combustible liquide intégrés sont maintenant installés dans de nombreux bâtiments et installations industrielles. Les circonstances d'une telle popularité de la technologie peuvent être trouvées dans la masse des avantages et des points forts de la conception des unités qui sont spécifiquement responsables de la combustion du liquide dans la chambre. (Voir aussi l'article Chauffage au gaz: points forts.)
Examinons de plus près ces avantages:
- Automatisation complète des équipements... Grâce aux dispositifs automatiques, il est possible de créer le fonctionnement le plus économique et le plus productif d'un système de chauffage individuel.
- Utilisation économique du carburant... Une large gamme d'assemblages de combustibles liquides permet l'utilisation de divers types de carburants - du diesel à l'huile usée. Le prix de ces matériaux est bien inférieur à celui du gaz classique.
- Le chauffage du liquide de refroidissement se produit en peu de temps... La conception du brûleur à combustible liquide permet une alimentation efficace en combustible en une quantité telle qu'il soit brûlé avec le plus haut niveau de transfert de chaleur.
Conseil: les chaudières équipées d'unités spéciales qui leur permettent de fonctionner au combustible liquide sont considérées comme le meilleur choix pour les installations où un chauffage rapide du liquide de refroidissement est nécessaire ou une production de vapeur importante.
Dans la plupart des cas, ils essaient d'utiliser des dispositifs à combustible liquide dans des zones où il n'y a pas d'approvisionnement en gaz centralisé et il n'est pas rentable d'acheter du combustible dur. L'équipement est compatible avec tous les types de chauffe-eau et générateurs de chaleur. Il vous suffit de calculer correctement sa puissance et de sélectionner le type de carburant afin d'assurer les performances requises de l'appareil et un bon transfert de chaleur vers le liquide de refroidissement. (Voir aussi l'article Chauffer une maison privée avec du bois: points forts.)
Un large choix d'unités et de carburant vous permet d'acheter un certain type d'équipement, qui convient dans ses paramètres pour un petit chalet et pour un grand pavillon commercial.
Emplacement de la chaudière
Le cadre réglementaire qui réglementerait l'installation d'une chaudière à combustible solide dans une maison privée n'a pas encore été élaboré. Néanmoins, les exigences de base pour l'installation de ces équipements peuvent être trouvées dans SNiP "Chauffage et ventilation" et SNiP 31-02-2001 "Maisons unifamiliales" (pour la Fédération de Russie), ainsi que dans un certain nombre d'autres actes individuels .
Il est à noter que les «Installations de chaudières» SNiP, souvent mentionnées sur Internet, ne sont pas conçues pour les appareils électroménagers de faible puissance - ses exigences s'appliquent aux équipements d'une capacité supérieure à 360 kW, et les règles d'installation des équipements à gaz sont trop strict.


Sur la base de l'analyse du cadre réglementaire disponible, qui concerne la procédure de placement des appareils de chauffage sur le bois, les conseils suivants peuvent être distingués sur la façon d'installer une chaudière à combustible solide dans une maison:
- Tout type de combustible solide, qu'il s'agisse de bois, de charbon ou de granulés, crée beaucoup de poussière. De plus, pendant le fonctionnement de la chaudière, différentes quantités de fumée peuvent pénétrer dans la pièce. À cet égard, il n'est pas recommandé d'installer une chaudière à combustible solide à l'intérieur des pièces à vivre de la maison. Bien que le cadre réglementaire n'interdise pas directement l'installation d'une chaudière à combustible solide dans la cuisine, le couloir ou d'autres pièces, à l'exception de la chambre.
- La meilleure option pour placer une chaudière à combustible solide sera une chaufferie séparée équipée ou une chaufferie attenante à la maison commune. Vous pouvez également vous arrêter aux locaux techniques de la maison elle-même, au sous-sol, au garage ou au couloir bien ventilé.
- L'équipement de chauffage doit être situé le plus près possible de la paroi extérieure afin de faciliter la pose de la cheminée, de ne pas créer une section horizontale trop longue ou de ne pas faire passer le tuyau à travers le plafond.
- Toute chaudière à combustible solide nécessite un nettoyage et un entretien périodiques de l'échangeur de chaleur. Par conséquent, il est nécessaire de fournir un accès gratuit à celui-ci. Pour ce faire, il reste au moins 1 m d'espace à l'avant, et environ 60 cm à l'arrière et sur les côtés, mais au moins 25 cm.
- Il est interdit de raccorder le conduit de fumée d'une chaudière à combustible solide à des conduits de ventilation en brique à l'intérieur des murs.


Dans les chaufferies de petite taille, il est possible de placer les équipements de chauffage suffisamment près du mur, mais uniquement du côté sans surveillance. Dans ce cas, l'espace peut être d'au moins 10 cm, et au moins 25 cm doivent rester derrière.
Recommandations pour le choix des chaudières diesel pour les maisons de campagne
- Type d'échangeur de chaleur - les chaudières sont proposées équipées d'un échangeur de chaleur en fonte ou en acier.
- Caractéristiques du travail - les chaudières au carburant diesel pour chauffer les maisons privées, les chalets, sont produites dans la version classique, conçues pour être connectées à des systèmes de chauffage à haute température. efficacité et économie et travail avec des systèmes de chauffage, type basse température.
- Unité d'automatisation et de contrôle. Les chaudières diesel fonctionnent comme des stations de chauffage entièrement autonomes et indépendantes. En option, une télécommande et une unité de notification sont fournies. Le contrôle des processus de travail s'effectue via n'importe quel appareil mobile.
- Le nombre de contours.
- Performance.
- Marque du fabricant.
- Coût.
Chaudière diesel à un ou deux circuits
- Les chaudières à circuit unique sont des modèles de grande capacité conçus pour être raccordés au système de chauffage. La possibilité de chauffer de l'eau chaude n'est pas prévue.Si plus tard, un raccordement ECS est nécessaire, une chaudière de chauffage indirect est intégrée au système de chauffage. L'avantage des modèles à circuit unique est la capacité de chauffer de grandes maisons.
- Chaudières à double circuit - l'appareil fournit des circuits d'ECS et de chauffage. Selon le fabricant, un échangeur de chaleur bithermique ou séparé est utilisé dans la conception.Les modèles modernes sont équipés d'un réservoir de stockage intégré. L'avantage de cette conception d'une chaudière diesel sur carburant diesel est la fourniture instantanée d'eau chaude au consommateur, immédiatement après l'ouverture du robinet d'alimentation en eau.
Quelle marque de chaudière diesel choisir pour la maison
- La notation des chaudières est traditionnellement dirigée par les produits des entreprises allemandes. Les marques se distinguent favorablement:
- Série Buderus Logano G125 et G225,
- Viessmann Vitorondens,
- Vaillant iroVIT VKO.
- Les chaudières françaises ne sont en aucun cas de qualité inférieure: à en juger par leur popularité auprès des consommateurs européens, De Dietrich a réussi à créer une concurrence sérieuse pour les chaudières fabriquées en Allemagne.
- Un acheteur national préfère les marques moins chères fabriquées en Italie:
- Fondital Capri série RTF et RTFD,
- Série Nova Florida BTF et BTFD, RTF et RTFD.
- Coréen:
- Série Kiturami STSO et Turbo,
- Olympia OLB.
- Il existe des produits récemment apparus sur le marché des équipements de chauffage, mais qui ont déjà gagné en popularité:
- DanVex B (Finlande),
- EnergyLogic EL (États-Unis).
Caractéristiques de chargement et de fonctionnement du carburant


Montage du système de chauffage
À partir d'une simple chaudière, où une alimentation en air à part entière est nécessaire dans tout le volume de combustion du combustible, la conception de la combustion à long terme, comme indiqué précédemment, diffère par l'offre limitée de cette alimentation. De plus, le volume de chargement influe directement sur le temps de combustion, par conséquent, dans notre cas, le four est chargé de manière extrêmement serrée de sorte qu'il n'y ait aucun espace.


Firebox de l'intérieur
Le carburant est chargé dans cette séquence.


Chargement de la chaudière


Essai d'allumage de la chaudière
Étape 1. Le capot supérieur de la structure est retiré.
Étape 2. Retirez le régulateur d'air.
Étape 3. La chaudière est chargée de combustible jusqu'au niveau de la cheminée.
Étape 4. Par le haut, le carburant est versé avec une petite quantité de liquide d'allumage (carburant diesel, huile usée, etc.).
Étape 5. Le régulateur d'air est remis en place et le couvercle est placé sur le dessus.
Étape 6. Le registre d'air s'ouvre à la limite.
Étape 7. Un morceau de papier est incendié et jeté dans la structure. Lorsque le carburant commence à brûler, le starter se ferme.


Système de chauffage. Cerclage


Système de chauffage. Cerclage
Le fait que la combustion permanente a commencé peut être jugé par la fumée sortant de la cheminée. Au fur et à mesure que le carburant brûle, le tuyau d'un diamètre plus petit descend avec le régulateur d'air - selon ce type d'indicateur, vous pouvez déterminer la quantité de carburant restant.
Chaudière au fioul
En principe, une chaudière à combustible liquide (ou plusieurs chaudières jumelées) peut être utilisée comme station de chaudière, mais il est alors plus rentable de la chauffer au fioul, car avec la même consommation de fioul et de gaz, la chaleur spécifique dégagée par le carburant gazeux est beaucoup moins.Il y a cependant un péché dans de tels appareils de chauffage, qui n'est pas de gâcher l'image globale, mais de faire penser à l'installation fondamentale. On parle maintenant d'allumage (début de fonctionnement), qui est à la base du fonctionnement de la chaudière et du début de la saison de chauffage. Ce n'est un secret pour personne que tout hydrocarbure est en fin de compte un matériau combustible (certains nécessitent un traitement approprié), mais, contrairement à l'essence, l'huile et le carburant diesel démarrent le processus de combustion à des températures plus élevées (cela peut être vu si vous essayez d'allumer quelques gouttes d'essence. d'une allumette) et le mazout).
Conception de chaudière à combustible liquide
Autrement dit, toutes choses étant égales par ailleurs, les hydrocarbures plus lourds ont une température d'allumage plus élevée, à partir de laquelle on peut conclure que la conception d'une chaudière à combustible liquide devrait avoir un allumeur pilote et des éléments réfractaires de l'échangeur de chaleur avec une durée de combustion sérieuse. Le carburant diesel, le mazout et l'huile assurent une combustion stable et à long terme à condition que du carburant soit systématiquement ajouté à la chambre de combustion.
Le dispositif le plus simple pour une chaudière à combustible liquide
L'option la plus simple pour comprendre et décrire les propriétés de ces types de chaudières est un poêle à faire soi-même avec un compte-gouttes. Un four standard pour poêles a une porte pour l'allumage avec du bois ordinaire, et au sommet il y a une chambre de goutte à goutte en acier à travers laquelle le combustible entre directement dans la chambre de combustion. Pour allumer l'appareil, il est nécessaire de l'inonder comme un poêle ordinaire, de le laisser se réchauffer, puis d'ouvrir le compte-gouttes au minimum. Le réglage du dosage du carburant liquide augmente ou diminue automatiquement la température de combustion, et la force de combustion (intensité) est contrôlée par un ventilateur (ventilation d'alimentation). Plus le volume d'air entrant est petit, plus la combustion est faible, plus le carburant est sûr et plus la température de chauffage est stable.
Le chauffage au combustible liquide ne peut être organisé qu'avec un approvisionnement ininterrompu en combustible, il n'est donc pas recommandé d'éteindre les chaudières au combustible liquide pendant une courte période (uniquement pour la période estivale). La création de conditions pour un approvisionnement correct en liquide inflammable et le réapprovisionnement en temps opportun du stock dans le réservoir crée une autre nuance - une odeur caractéristique.
Avantages et inconvénients
Parmi les indicateurs qualitatifs et techniques, il n'y a pas de moins ou d'avantages sans ambiguïté, car certains, à première vue, des caractéristiques négatives peuvent être destinées à élargir la liste des aspects positifs. Tout a déjà été discuté dans l'article, mais il ne sera pas superflu de rappeler et de classer toutes les nuances.
Donc les pros:
- l'autonomie (dans ce cas, nous devrions parler d'isolement des systèmes d'ingénierie et de l'électricité);
- selon le type de combustible utilisé: si un seul type est un moins, et si la chaudière est représentée par un système combiné, c'est un plus;
- combustion stable et maintien d'une température uniforme (à condition que le dosage soit le même, le maintien de la combustion, même avec le vent ou les précipitations, n'est pas difficile).
Comme 100% contre, on note:
- chauffage intense du carburant pour atteindre la température d'allumage;
- pas de pause dans le fonctionnement du chauffage (consommation de carburant injustifiée);
- température minimale régulée dans le système (chacun a le sien et dépend du volume du liquide de refroidissement, de la taille de la chambre de combustion et de la densité du raccordement hydraulique).
Chaudière à huile usagée bricolage (vidéo)
Combustibles liquides
La liste des types de carburant liquide est assez longue. Le choix d'un type spécifique dépend du modèle de chaudière. Le plus souvent utilisé:
- essence;
- Gas-oil;
- kérosène;
- huile usagée.
C'est intéressant: sélection d'une chaudière diesel pour une maison privée.
Le mazout et le diesel sont des carburants assez légers. Ils sont faciles à transporter et à stocker. En raison de la faible viscosité du carburant, il brûle aussi efficacement que possible. La quantité minimale de cendres et de soufre dans la composition garantit la sécurité des équipements et minimise les émissions dans l'environnement.
Lors du choix d'un combustible pour une chaudière à combustible liquide, vous devez faire attention à la viscosité et à la quantité de soufre dans la composition. Le prix d'un produit à faible teneur en soufre est plus élevé, mais son utilisation présente des avantages:
- consommation économique;
- faibles coûts d'entretien et de réparation des équipements;
- quantité minimale d'émissions nocives dans l'atmosphère.
Vous ne pouvez pas économiser sur le carburant. Sinon, vous devrez constamment changer les injecteurs, le filtre à carburant et nettoyer les réservoirs des sédiments.
Informations générales sur les chaudières en état de marche
Le concept de recyclage des matériaux combustibles usés existe depuis le début du problème de l'utilisation des déchets huileux. Cependant, dans les équipements de chaudières, une telle approche n'a trouvé sa pleine vie que récemment - depuis le développement des technologies de pyrolyse et des systèmes de combustion à long terme par les grands fabricants. Ces développements sont plus vraisemblablement liés au recyclage des mélanges de gaz à partir de combustibles solides, mais leurs principes peuvent être transférés au concept de chaudières à huile usée. Pour l'huile, dans ce cas, un brûleur spécial est utilisé, connecté à une chambre de combustion d'inversion et à un tube de fumée.


Bien entendu, le principal point de différence entre cet équipement et les unités à combustible liquide classiques est la matière première du combustible usé. Il existe encore une certaine segmentation selon le type de produits de développement technologique utilisés, mais l'avenir de tels modèles appartient à l'universalisation en termes d'approvisionnement en carburant. D'une manière ou d'une autre, les chaudières à huile usée pour la maison fonctionnent principalement aux dépens du kérosène, du diesel et d'autres dérivés du diesel. Certaines modifications favorisent également la combustion lorsqu'elles sont remplies d'huiles végétales et d'huiles de chauffage spéciales. Dans le cas des modèles industriels, on peut parler de l'utilisation de compositions hétérogènes grossières avec des impuretés.
Variétés de chaudières
Tous les modèles peuvent être divisés en plusieurs groupes en fonction du principe de fonctionnement et du carburant utilisé. Il existe deux principes de combustion de carburant:
- L'évaporation du carburant liquide se produit à partir de la surface du bol. Le carburant lui-même brûle lentement, de sorte que le volume de vapeur est assez important. Le plus souvent, ce principe d'action se retrouve dans les appareils artisanaux.
- Un brûleur torche est utilisé. Le carburant, comme dans la première méthode, passe par pyrolyse. Cependant, le mélange est préparé, vaporisé et brûlé directement dans la flamme de la torche.
Les chaudières Flare sont plus polyvalentes. Le plus souvent, ils sont utilisés pour chauffer les maisons de campagne. Ils peuvent travailler pour:
- essence;
- diesel;
- gaz réduit;
- travailler.
C'est intéressant: comment faire une chaudière à huile usée.
Les appareils qui ont une pré-évaporation ne peuvent pas brûler de carburant diesel et de gaz. Les unités de chauffage peuvent également être divisées en unités d'usine et artisanales. Les premiers sont plus sûrs et plus efficaces.
Chaudière à fioul diesel
Un type répandu d'unités à carburant liquide - le carburant diesel. Ils sont peu coûteux, très efficaces et faciles à utiliser. Les appareils de chauffage domestique utilisant du carburant liquide - carburant diesel - ne nécessitent pas d'autorisation spéciale pour être installés dans un réseau de chauffage local. Ils peuvent être modifiés à la main: connectés à la conduite de gaz.
L'unité de chauffage diesel a une conception qui comprend:
- brûleur diesel;
- filtres à carburant;
- pompe;
- panneau de commande séparé pour le système automatisé;
- capteurs de sécurité pour maintenir une combustion stable et la température requise du liquide de refroidissement dans le système.
- Le carburant est mélangé à de l'air dans un brûleur gonflable.
- Mélangé à l'air, il passe dans la chambre de combustion grâce à un puissant ventilateur, où il brûle.
- Le liquide de refroidissement chauffe, comme les parois de la chambre dans laquelle il se trouve.
- Les gaz formés en cours de fonctionnement quittent le système de l'appareil par une cheminée spéciale fournie par la conception.
En raison du fait que la chaudière au diesel n'est pas très différente de celle au gaz. et il est possible de le reconfigurer de vos propres mains, car la principale différence réside dans le type de brûleur. Mais leur modification de leurs propres mains n'est possible que pour les chaudières à carburant diesel avec un brûleur à charnière. Une telle astuce ne fonctionnera pas avec celle intégrée.
La rénovation à faire soi-même du four à l'aide des pièces incluses dans le kit de la chaudière ne doit avoir lieu que conformément aux dessins proposés et rien d'autre.
Certains fabricants créent des chaudières de chauffage à combustible liquide 2 en 1 qui peuvent fonctionner à la fois au diesel et au gaz. La plupart du temps, ils sont posés sur le sol. Avant d'acheter une chaudière diesel pour le système de chauffage d'une maison privée, il est impératif de calculer la consommation de carburant de l'appareil et sa capacité de chauffage.
C'est facile à faire grâce à la formule: puissance de la chaudière en kW / 10 = kg de combustible pour 1 heure de fonctionnement. Pour une région aux conditions climatiques moyennes, 3 tonnes de solarium seront nécessaires pour alimenter un bâtiment d'une superficie de 300 m 2 en caloporteur. En moyenne, 0,1 l / heure pour 1 kW de puissance de l'appareil. La consommation peut varier en fonction des besoins en température des résidents - si quelqu'un se sent à l'aise à une température de 22-24 ° C, alors pour d'autres, la température optimale sera de 25 ° C.Et plus la température est élevée, plus la consommation de carburant est élevée.
Caractéristiques de fonctionnement
Pour que les chaudières à combustible liquide fonctionnent efficacement et correctement, il est nécessaire de respecter les recommandations de fonctionnement de base. Il est nécessaire de surveiller en permanence la quantité de combustible dans la chaudière.
L'inspection technique et la maintenance de l'appareil sont effectuées périodiquement. Il est recommandé de procéder au nettoyage et à une inspection détaillée des dommages au moins 2 fois par an. Le premier contrôle est effectué avant le début de la saison de chauffage et le second immédiatement après sa fin.
Une nuance importante est l'utilisation uniquement de carburant de haute qualité et l'installation d'un filtre spécial pour le nettoyer. Périodiquement, il est nécessaire de vérifier l'intégrité des conteneurs dans lesquels le carburant liquide est stocké.
Les chaudières à combustible liquide à combustion longue, si elles fonctionnent correctement, peuvent servir pendant une longue période. Il est important d'effectuer une inspection technique et de dépanner à temps. Ce n'est que dans ce cas que le fonctionnement de l'appareil sera non seulement efficace, mais également sûr.
Variétés de chaudières diesel
Ainsi, en raison de l'incapacité d'utiliser d'autres sources d'énergie courantes, vous avez décidé d'organiser le chauffage au combustible liquide dans votre maison. Il est temps de choisir une chaudière de chauffage, puis vous devez déterminer quels types de ces produits existent et choisir l'option la plus appropriée. Les fabricants proposent des chaudières à combustible liquide des types suivants:
- chaudières diesel;
- unités universelles, elles prévoient la possibilité de passer du diesel au gaz naturel;
- chaudières à condensation pour carburant diesel;
- installations qui brûlent tous types d'huiles usagées.
Si dans un avenir prévisible aucun changement de la situation avec les ressources énergétiques n'est prévu, votre option est de chauffer une maison privée avec une chaudière de chauffage du premier type, ne brûlant que du carburant diesel.
Pour référence. La plupart de ces installations peuvent fonctionner avec du carburant biologique liquide, qui est obtenu à partir de cultures industrielles (biodiesel). Cette option peut être très utile si un tel vecteur d'énergie est à votre disposition.
Certains propriétaires à la recherche d'une chaudière pour le chauffage pensent que dans une chaudière diesel, ils pourront brûler et travailler leur voiture. C'est la mauvaise approche, et pour les raisons suivantes:
- Tous les brûleurs ne fonctionnent pas avec des huiles contaminées.
- Le pouvoir calorifique du carburant liquide est beaucoup plus élevé que celui des huiles usagées. En conséquence, les surfaces des surfaces d'échange thermique sont calculées pour le combustible liquide; lors de la combustion du développement, le rendement sera beaucoup plus faible.
- L'entraînement de combustion émet beaucoup plus de suie, qui s'installe dans tout le trajet de la fumée. Cela peut être un gros problème lors de l'entretien et du nettoyage des tubes d'incendie.
De par leur conception, les chaudières à combustible liquide sont très similaires aux générateurs de chaleur fonctionnant au gaz naturel. En conséquence, de nombreux fabricants proposent des installations d'eau chaude universelles avec une utilisation alternée de combustibles liquides et gazeux. Le passage d'un type de combustible à un autre s'effectue en remplaçant le dispositif brûleur. Certes, une chaudière universelle fonctionnant au combustible liquide et au gaz principal vous coûtera un peu plus cher.
Si la superficie de la pièce ou du bâtiment chauffé est inférieure à 200 m2 et que vous prévoyez d'être connecté au gazoduc dans un proche avenir, vous ne devriez pas vous précipiter pour acheter un radiateur universel.
Le fait est que le coût d'un bloc chaudière et de deux brûleurs peut s'avérer plus élevé que celui de deux unités à part entière distinctes. Par conséquent, dans un premier temps, vous pouvez mettre la chaudière au carburant diesel et, après la connexion au secteur, acheter et installer un générateur de chaleur à gaz. Vous pouvez trouver plus d'informations en regardant la vidéo:
Les chaudières domestiques à condensation pour carburant diesel sont les représentants les plus économiques et les plus efficaces de cette famille de sources de chaleur. Les fabricants déclarent l'efficacité de leurs unités de condensation à 97%, ce qui est le plus élevé parmi tous les autres appareils de chauffage. Comme d'habitude, leur coût est assez élevé et tous les propriétaires ne peuvent pas se permettre d'inclure un produit aussi high-tech dans le système de chauffage.
C'est très bien si vous avez accès à une ressource secondaire telle que l'huile de voiture usagée en quantités suffisantes. Puis spécialement à cet effet il y a une chaudière à huile usée, le produit est fabriqué et proposé sur le marché par de nombreux fabricants. En outre, des chaudières similaires pour le chauffage sont bien maîtrisées par divers artisans qui fabriquent des appareils de chauffage faits maison.
Variétés
Il existe plusieurs types de brûleurs conçus pour fonctionner avec du combustible liquide.
Type de carburant
Le combustible liquide peut être différent, par conséquent, pour son utilisation, il est nécessaire d'utiliser différents types de brûleurs:


- Diesel. Il s'agit d'un équipement conçu pour fonctionner avec du carburant diesel. Dans leur conception, il existe un dispositif qui élimine la consommation excessive de carburant, l'excédent s'écoule à travers la canalisation de retour dans le réservoir.
- Huile. Il s'agit d'un équipement spécial conçu pour fonctionner avec des produits pétroliers visqueux. Il peut s'agir de mazout ou d'huile moteur usagée. Ils se caractérisent par une pression d'alimentation en carburant accrue et des diamètres de buses importants, de sorte que des matériaux visqueux peuvent être utilisés sans les diluer.
- Universel. Ce type d'équipement peut fonctionner avec différents types de carburant, y compris le gaz. Cette option est choisie si dans un premier temps il est prévu d'utiliser une chaudière à combustible liquide, et après un certain temps, elle passera au gaz. Cependant, il convient de garder à l'esprit que les modèles universels, malgré le prix plus élevé, ont une efficacité moindre. Par conséquent, il est plus rentable d'acheter deux modèles différents - le pétrole et le gaz. S'il est nécessaire de passer à un autre combustible, il sera nécessaire de remplacer le brûleur.


