Calcul du système de ventilation
La ventilation est une partie importante des systèmes d'ingénierie de chaque installation. Les principales tâches du système sont l'apport d'air pur dans la pièce, l'élimination et l'élimination de la composition utilisée, la mise en œuvre d'un échange d'air à une fréquence donnée et à une vitesse calculée. Une ventilation insuffisante dans l'atmosphère du bâtiment réduira le niveau d'oxygène, qui sera remplacé par du dioxyde de carbone. Ceci est inacceptable, car le bilan gazeux correct affecte la santé et le bien-être des personnes. Avec une ventilation instable, un excès d'humidité s'accumule dans les locaux, ce qui entraîne le développement d'agents pathogènes. Une humidité relative incontrôlée provoque le développement de moisissures et a un effet néfaste sur le mobilier et l'équipement.
effectue le calcul, la conception, l'installation, l'ajustement des systèmes de ventilation. Nous proposons des équipements innovants et de nouvelles solutions d'ingénierie qui minimisent les coûts de mise en œuvre du projet et réduisent les coûts d'exploitation ultérieurs. Le calculateur en ligne, qui est affiché sur la page de profil du site, vous aidera à vous familiariser avec le prix préliminaire du système..
Méthodes de calcul des conduits: formules et calculateurs en ligne
Le réseau de distribution d'air affecte la qualité du microclimat dans la pièce. La fonction principale d'un tel système est d'éliminer l'air vicié qui affecte négativement la santé humaine. Avant de procéder à l'installation de cette communication, il est nécessaire d'en créer un projet détaillé. Alors, comment calculez-vous l'aire d'un tuyau?
Le calcul de la superficie à lui seul n'est généralement pas suffisant pour concevoir un réseau de distribution d'air optimal. Il y a d'autres paramètres importants qui nécessitent une attention, à savoir: la forme des tuyaux, le nombre de connecteurs, l'indice de section, etc.
Pour rédiger vous-même un projet, vous devez utiliser l'une des deux méthodes courantes:
- en utilisant des formules;
- calcul sur une calculatrice en ligne.

Avant d'acheter toutes les pièces de la ventilation, il est nécessaire de calculer la surface selon les formules, pour économiser votre argent
La première méthode est plus compliquée, car tout le monde ne pourra pas utiliser correctement la formule. La deuxième option populaire consiste à utiliser un calculateur en ligne pour calculer les conduits de ventilation. Cette méthode est simple, car pour effectuer des calculs, il vous suffit de spécifier les paramètres d'un réseau spécifique et le programme fera tout pour vous.
Calcul du périmètre d'un rectangle à l'aide de formules
Des formules spéciales sont utilisées pour déterminer les valeurs requises aussi précisément que possible. Mais cette méthode ne convient pas à tout le monde, car elle est assez difficile et prend beaucoup de temps. Pour calculer la section transversale, vous devez connaître deux nombres importants. Le premier doit correspondre à la quantité minimale d'air transporté et le second à sa vitesse.
Information utile! Il est important de se rappeler que la section transversale est un paramètre clé. Il détermine la vitesse à laquelle les masses d'air se déplaceront le long de la communication. Dans ce cas, le schéma suivant peut être tracé : plus les dimensions de la section transversale sont grandes, plus la vitesse de l'air dans le réseau est faible. Pour calculer la quadrature du conduit, vous pouvez également utiliser plusieurs méthodes à la fois, ce qui permet de comparer les résultats.


Les calculs pour l'installation du conduit peuvent être effectués à la fois indépendamment et à l'aide d'une calculatrice spéciale
Les structures de distribution d'air avec une grande section transversale affectent également le niveau de bruit global, le réduisant. Dans ce cas, les coûts électriques sont également réduits. Cependant, l'installation de grandes unités de ventilation nécessite plus de matériel, de temps et d'efforts.
Lors du calcul de la section transversale du conduit, la forme de la structure joue un rôle important. En fonction de cet indicateur, on distingue les produits rectangulaires et ronds. Les premiers n'ont pas des débits aussi élevés que les seconds, car ils ont plus de résistance au flux d'air. Cependant, dans certaines situations, leur utilisation est plus justifiée. Par exemple, ils s'intègrent bien à l'intérieur (ils sont montés bout à bout sur des surfaces de travail, ainsi que sur des meubles).
La formule de la section transversale d'une communication rectangulaire est calculée comme suit:
S = L x 2,778 / Voù:
S - aire (cm²);
L est la quantité d'air consommée (m³ / h);
V est la vitesse de déplacement de la masse d'air (m / s);
2,778 est le coefficient requis.


Le tuyau de ventilation est l'un des éléments du système de ventilation
Et aussi, à l'aide de la formule, vous pouvez déterminer la superficie réelle d'un réseau de transport aérien de ce type:
S = A x B / 100où:
S - indicateur correspondant à la surface réelle;
A - hauteur;
B est la largeur.
Sur Internet, vous pouvez trouver d'autres formules qui vous permettent de calculer l'aire d'un rectangle. Dans de tels calculs, les experts vous recommandent d'être très prudent et d'indiquer toutes les valeurs conformément aux exigences.
Calcul de l'aire d'un cercle à l'aide de formules
Les lignes de transport aérien rondes sont faciles à installer et à haut débit. Cette forme des tuyaux minimise la résistance aux courants d'air en mouvement. Le choix des paramètres de communication se fait en fonction des préférences individuelles des consommateurs, des caractéristiques de l'aménagement des locaux et du système lui-même.
Lors du calcul du réseau de distribution d'air, une règle importante doit être prise en compte. Afin d'économiser des matériaux, la longueur des lignes doit être aussi courte que possible, mais en même temps, le système doit faire face aux tâches qui lui sont assignées. La surface du conduit circulaire dépend de la quantité d'air transporté et de sa vitesse. La formule de calcul de la surface dans ce cas ressemble à celle des systèmes rectangulaires (S = L x 2,778 / V).


Plus la section transversale du tuyau est grande, moins le niveau de bruit sera
À son tour, la superficie réelle est déterminée comme suit:
S = 3,14 x D² / 400où:
S - indicateur correspondant à la surface réelle;
D est le diamètre de la communication;
3.14 est une constante mathématique (nombre pi).
Information utile! Il existe des documents réglementaires spéciaux qui vous permettent de comparer les dimensions des sections de tuyau avec les indicateurs requis. Cela facilite la détermination de la bonne taille de conduit. Le plus connu de ces documents est celui des codes et règlements du bâtiment (SNiP).
Lors des dernières étapes du calcul de l'aire d'un cercle, il est recommandé de prendre en compte certaines conditions. Par exemple, les dimensions de la section de chaque pied droit doivent être notées séparément. Il est impératif d'utiliser dans les calculs la résistance exercée sur le flux d'air. Les experts conseillent également de commencer à élaborer un projet à partir du canal principal (principal).
Souvent, la vitesse de déplacement des masses d'air dépasse les paramètres recommandés, ce qui affecte le facteur de bruit pendant le fonctionnement du système. Pour faire face à ce problème, il est courant d'augmenter le diamètre de l'élément de bride de conduit principal. Vous pouvez également acheter des appareils spéciaux - des silencieux.


Afin d'économiser de l'argent, il est nécessaire de réduire au maximum la longueur des lignes.
En cas de problèmes d'auto-calcul, il est recommandé de faire appel à une assistance technique. Il est préférable de confier le calcul de la surface du conduit à un organisme compétent.
Calcul technique du système de ventilation
Avant de commencer la conception, il est nécessaire d'effectuer un calcul précis du système de ventilation. Il est réalisé par des ingénieurs ayant une formation appropriée. Selon les données calculées, le modèle d'écoulement est déterminé, le type de ventilation est établi, la puissance, les performances de l'équipement d'alimentation et la section transversale des conduits d'air sont sélectionnés. Ces informations sont essentielles pour la conception ultérieure d'un système de ventilation économique et efficace.
Les erreurs de calcul consistent en un mauvais choix de puissance de l'équipement.
- Des performances excessives augmenteront considérablement le prix du projet lors de l'achat de centrales électriques. Leur coût dépend directement de la puissance. Les flux formés se déplaceront à une vitesse excessive, créant des brouillons. Les coûts d'exploitation augmenteront plusieurs fois.
- Les équipements avec une puissance insuffisante ne pourront pas former des flux directionnels stables, la ventilation ne répondra pas aux normes établies.
Le calcul est effectué selon la méthodologie développée, qui prend en compte:
- dimensions, but de l'objet, caractéristiques de la solution architecturale;
- la fréquence d'échange d'air requise, le volume d'alimentation en air par personne ou par mètre carré de surface (en tenant compte de la hauteur des plafonds);
- puissance des éléments de chauffage / refroidissement, types de filtres, résistance du système;
- pression, débit généré par les ventilateurs;
- niveau de bruit des centrales électriques en fonctionnement, circulation de l'air à travers les canaux.
Tous ces facteurs ont été pris en compte lors du développement de projets typiques avec des exigences différentes pour les paramètres de l'air. Nos ingénieurs ont réalisé un calcul complet de la ventilation de soufflage et d'extraction, le calculateur installé sur le site aidera chacun à se familiariser avec ces informations.
Pourquoi avez-vous besoin de calculer la surface des conduits d'air et des raccords
La communication de ventilation est une structure complexe qui comprend non seulement des tuyaux, mais également un grand nombre d'éléments de connexion auxiliaires. De nombreux consommateurs, avant d'acheter et d'installer des communications, s'intéressent à la question de savoir comment trouver la zone du tuyau.


Variété de raccords de ventilation
Noter! Effectuer les calculs corrects vous permet de déterminer la quantité de matériel nécessaire pour organiser un réseau de distribution d'air. Cela vous permet d'économiser des finances et de monter le système optimal pour une pièce particulière, en tenant compte de ses caractéristiques.
Considérez quels autres paramètres sont affectés par la zone des conduits d'air:
- la quantité d'air transporté;
- la vitesse de déplacement des masses d'air;
- étanchéité;
- niveau de bruit;
- frais d'électricité.
Pour déterminer les valeurs nécessaires à l'installation de la ventilation, il est recommandé de contacter un spécialiste. Ils aideront à élaborer une conception optimale du réseau de distribution d'air, mais cela nécessite certains coûts. Si vous le souhaitez, le comptage des matériaux et d'autres calculs peuvent être effectués indépendamment. Il y a plusieurs moyens de le faire.


Processus d'installation des conduits intérieurs
Types de ventilation
La ventilation peut être divisée en deux sous-groupes: naturelle et forcée. Les schémas peuvent se compléter ou être appliqués indépendamment.
Naturel
Dans un tel schéma, le mouvement des masses d'air est assuré par des causes naturelles, des différences de pression à l'intérieur et à l'extérieur du bâtiment. Plus le bâtiment est haut, plus la ventilation est efficace. Tous les immeubles d'habitation, écoles, jardins d'enfants, etc. sont équipés de tels systèmes, mais avec l'utilisation de matériaux de construction innovants, ce système devient obsolète. La lutte pour l'efficacité énergétique passe par l'étanchéité des bâtiments, la limitation des entrées. Par conséquent, la ventilation naturelle fait partie de schémas plus complexes.
Forcé
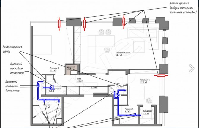
L'échange d'air dans ce cas assure le fonctionnement des centrales électriques, qui créent un flux stable et efficace qui remplace l'air un nombre de fois calculé. La ventilation est assurée par un équipement différent.
Fournir
Une caractéristique de cet échange d'air est l'injection d'air préparé dans la pièce. Le mélange de déchets est évacué par des canaux naturels à travers des traverses, des bouches d'aération, etc. Ce schéma est utilisé dans les immeubles résidentiels, les appartements et avec une modernisation mineure des installations industrielles. L'avantage de conception de l'équipement est la possibilité de préparer l'air (filtration, contrôle de la température et de l'humidité). Nos ingénieurs ont préparé des projets, calculé la ventilation d'alimentation des locaux, un calculateur en ligne peut fournir ces informations. Le calculateur du système de ventilation d'alimentation permet, connaissant le type et la surface de l'objet, de comprendre le coût approximatif d'un système complexe.
Calculateur de ventilation par extraction
Ce système fonctionne de manière opposée. L'air pénètre dans la pièce par des ouvertures ouvertes et est évacué par des équipements d'extraction situés dans les «zones sales». Sa tâche est de localiser la pollution, en empêchant l'air de se répandre dans la pièce. Un schéma similaire est utilisé pour l'équipement des entreprises industrielles dans lesquelles la pollution se produit dans un ou plusieurs endroits limités. Les postes de soudage en sont un exemple.
Ce schéma est également utilisé dans la construction de logements privés. De tels programmes sont recommandés dans les zones écologiquement propres, car il est impossible d'effectuer une préparation efficace de l'air. La société a calculé la ventilation par aspiration, le calculateur vous aidera à vous familiariser avec le prix des bâtiments à diverses fins en quelques secondes. Le calculateur de calcul du système de ventilation par aspiration de la société Avimos vous permet de choisir le type de pièce et de surface requis et de connaître le prix approximatif d'une solution toute faite.
Alimentation et évacuation
Il s'agit du système de ventilation le plus efficace, car l'alimentation et l'évacuation sont entraînées par les centrales électriques. En conséquence, des flux clairement dirigés se forment et se déplacent à une vitesse calculée. Le régime ne dépend pas des conditions naturelles et maintient les modes spécifiés tout au long de l'année. Une préparation efficace de l'air vous permet de créer un microclimat dans tout le bâtiment et dans des zones individuelles des locaux et vous aidera à déterminer le coût approximatif d'un système de ventilation avec installation.
Exemples de calcul manuel
C'est une tâche assez difficile à laquelle les spécialistes doivent faire face. Souvent, les jeunes entreprises qui viennent tout juste de faire leur entrée sur le marché n'offrent que l'aménagement de zones résidentielles et commerciales. Fondamentalement, cette approche est choisie en raison du faible niveau de qualification. Les gars n'ont tout simplement pas l'impossibilité d'effectuer des opérations complexes, dans lesquelles il est possible de prendre en compte la capacité de l'équipement du magasin, ses déchets, son évaporation, le nombre de personnes, etc. Nous effectuons des tâches de tout niveau.
Exemple de calcul dans un atelier de production
La formule calcule le transfert de chaleur excédentaire Q = Tu + (3,6S - pTu * (Tz - Tp) / p * (T1 - Tp)
Ensuite, les fumées combustibles et simplement toxiques sont calculées à l'aide de la formule Q = Qu + (X - Qu (Zm - Zp) / (Zu - Zp)
:
- Tu est le volume enlevé par l'aspiration;
- S est la chaleur générée pendant le fonctionnement;
- p est la capacité thermique;
- Tz - t de l'air émis à évacuer du bâtiment à l'aide d'un système local;
- T1 - t de l'air rejeté, qui sera évacué via le réseau d'échange général;
- Tp - t flux entrants.
- Zm (mg / m³) - toxines éliminées par les pentes locales ;
- Zp (mg / m³) - le nombre de poisons rejetés dans l'environnement;
- Zu (mg / m³) - toxines excrétées par le système d'échange général;
- X (mg / h) - le volume de toxines généré en 1 heure de fonctionnement de l'atelier.
Lors du calcul de l'échange d'air dans l'atelier, il est également nécessaire de calculer les indicateurs d'humidité. Ceci est fait en utilisant la formule Q = Qu + (V - 1,2 (Pl - Pk) / (P1 - Pk)):
- V (mg / h) - humidité entrant dans la pièce en 1 heure;
- Pl (g / kg) - vapeur à distance;
- Pk (g / kg) - teneur en humidité de l'air entrant;
- P1 (g / kg) est le volume de vapeur évacué du réseau central.
Le personnel est également pris en compte - Q = C * f
où C indique le nombre de travailleurs et f la quantité d'air consommée par une personne.
Exemple de calcul dans un magasin
Ici, la formule ci-dessus est utilisée pour corréler le nombre de personnes avec les ressources qu'elles consomment. Cependant, l'espace de vente au détail a ses propres règles. Ici, l'activité des personnes est prise en compte. Pour les employés, le chiffre est généralement fixé à 60 m³ / h et pour les clients à 20 m³ / h. En outre, différentes températures sont sélectionnées:
- Bouge un peu (caissier) - 22-24 ° C à un débit d'air de 0,1 m / s;
- Marche périodiquement (garde) - 21-24 ° C, à une vitesse. 0,1 m / s;
- Déplace, transporte des objets légers (marchandiseur, empileur) - 19-21 ° C à vitesse. 0,2 m / s;
- Il marche beaucoup, porte des objets jusqu'à 10 kg (un chargeur dans le hall) - 17-21 ° C, vitesse. ventilateurs 0,2 m / s;
- Il bouge beaucoup et transporte des objets lourds pesant plus de 10 kg (un chargeur dans un entrepôt) - 16-20 ° C, vitesse 0,3 m / s.
L'humidité est toujours réglée entre 40 et 60%. Plus en été, moins en hiver, car pendant la période froide, l'effet des vêtements mouillés dans le froid peut être créé.
Caractéristiques du calcul dans le hot shop et dans la cuisine
Ce secteur a des exigences particulières. Les hottes locales sont activement utilisées ici. Ils doivent fonctionner à une vitesse de 0,35 m / s. Cela signifie que l'alimentation sera effectuée au même rythme. La quantité d'air par personne ne doit pas être inférieure à 100 m³ / h. Et les températures vont de +16 à +27.
La ventilation par extraction est calculée selon la formule S = 3600 * X * B
.
- S (m³ / h) - consommation d'air;
- X (m / s) - vitesse de déplacement;
- B (m²) - section.
En parallèle, les indicateurs de consommation d'air dans le flux convectif et la quantité de minage retirée par le parapluie sont calculés.
Caractéristiques du calcul de SV dans les salles blanches
Dans les établissements médicaux, des exigences de propreté sont ajoutées. Toutes les chambres du bâtiment sont divisées en 4 catégories:
- Très propre - «A»: dans les salles d'accouchement, les salles de brûlures, etc., le nombre de micro-organismes ne doit pas dépasser 200 UFC / 1 m³ avant le début, et pas plus de 500 pendant le travail;
- Commun - "B": dans les vestiaires, les laboratoires, etc. l'indicateur est plus bas. Il est> 500 et> 750 CFU / 1 m³;
- Conditionnellement propre - «B»: couloirs à proximité des salles d'opération et des maternités. Ici> 750 et> 1000 CFU / 1 m³.
Il existe également des blocs sales - "G", mais il n'y a pas d'exigences particulières pour eux.
Calcul pour la chambre
Le prix préliminaire de la ventilation de tous les types de bâtiments peut être trouvé sur le site Web. Les ingénieurs de l'entreprise ont effectué un calcul technique de plusieurs projets types, sélectionné des équipements et fait une analyse de rentabilisation.
Les résultats des travaux ont été compilés dans un calculateur en ligne pratique. Il suffit de choisir le type de bâtiment dans la liste proposée, la superficie de l'objet est de 50 à 10000 m2, le type de ventilation. Le prix sera déterminé en quelques secondes.
Si vous avez besoin d'un calcul de la ventilation de la pièce, contactez le chef d'entreprise qui enverra notre ingénieur sur le site. L'employé se familiarisera avec les caractéristiques de la structure, étudiera les processus technologiques, découvrira les paramètres d'échange d'air pour assurer le fonctionnement des équipements de production (pour les entreprises et les bâtiments commerciaux). Sur la base de ces données, un schéma préliminaire d'échange d'air sera élaboré, un ensemble efficace d'éléments de base et auxiliaires sera sélectionné et le type de ventilation sera développé. Le calcul économique servira de base à la proposition commerciale, qui sera préparée par le gestionnaire et transférée au client.
- un partenaire responsable et fiable. Nous proposons une tarification flexible pour les services complexes. Il y a des promotions constantes sur le site, où vous pouvez acheter des systèmes de ventilation prêts à l'emploi à prix réduit. Nos travaux et le matériel utilisé sont accompagnés d'une garantie officielle.
Deuxième étape
Les chiffres de traînée aérodynamique sont calculés ici. Après avoir choisi les sections transversales standard des conduits d'air, la valeur du débit d'air dans le système est spécifiée.
Calcul de la perte de charge par frottement
L'étape suivante consiste à déterminer la perte de pression de friction spécifique sur la base de données tabulaires ou de nomogrammes. Dans certains cas, une calculatrice peut être utile pour déterminer des indicateurs basés sur une formule qui vous permet de calculer avec une erreur de 0,5%. Pour calculer la valeur totale de l'indicateur caractérisant la perte de charge sur toute la section, il faut multiplier son indicateur spécifique par la longueur. A ce stade, le facteur de correction de rugosité doit également être pris en compte. Cela dépend de l'ampleur de la rugosité absolue d'un matériau de conduit particulier, ainsi que de la vitesse.
Calcul de l'indicateur de pression dynamique sur un segment
Ici, un indicateur caractérisant la pression dynamique dans chaque section est déterminé en fonction des valeurs:
- débit d'air dans le système;
- la masse volumique de la masse d'air dans les conditions standard, qui est de 1,2 kg / m3.
Détermination des valeurs des résistances locales dans les sections
Ils peuvent être calculés sur la base des coefficients de résistance locale. Les valeurs obtenues sont résumées sous forme de tableau, qui comprend les données de toutes les sections, et non seulement des segments droits, mais également de plusieurs raccords. Le nom de chaque élément est inscrit dans le tableau, les valeurs et caractéristiques correspondantes y sont également indiquées, en fonction desquelles le coefficient de résistance locale est déterminé. Ces indicateurs se trouvent dans les matériaux de référence pertinents pour la sélection des équipements pour les unités de ventilation.


En présence d'un grand nombre d'éléments dans le système ou en l'absence de certaines valeurs des coefficients, un programme est utilisé qui vous permet d'effectuer rapidement des opérations lourdes et d'optimiser le calcul dans son ensemble. La valeur de résistance totale est déterminée comme la somme des coefficients de tous les éléments du segment.
Calcul des pertes de charge sur les résistances locales
Après avoir calculé la valeur totale finale de l'indicateur, ils procèdent au calcul des pertes de charge dans les zones analysées. Après avoir calculé tous les segments de la ligne principale, les nombres obtenus sont additionnés et la valeur totale de la résistance du système de ventilation est déterminée.











