Installation ciblée du système de capteurs
Mais il est impossible d'installer un système de chauffage par collecteur dans un appartement d'anciens immeubles à plusieurs étages, car un système de chauffage en té y fonctionne déjà. Pour que le système collecteur fonctionne, il est nécessaire de fermer le circuit hydraulique, ce qui est nécessaire pour créer une circulation du liquide de refroidissement dans le système. Si un circuit hydraulique fermé est créé dans un appartement, les autres appartements seront coupés du système de chauffage.
Le système de chauffage du collecteur ne peut pas non plus être utilisé dans les zones où l'alimentation électrique est instable, car lorsque la pompe de circulation s'arrête, l'eau gèlera et les tuyaux tomberont en panne. Mais la situation peut être quelque peu améliorée en utilisant
Système de chauffage par collecteur. Les principes de son travail.
Comment installer une unité de mélange pour un sol chaud de vos propres mains
Comme je l'ai dit plus tôt, ce type de système de chauffage est le plus souvent utilisé dans des immeubles à deux étages ou plus. Mais personne ne vous interdira de l'utiliser dans une maison à un étage. Tout dépend de l'opportunité. En plus des appareils de chauffage, une chaudière à chauffage indirect ou un système de chauffage de piscine ou de serre peut être connecté au collecteur. Ce genre d'astuce peut donc être utilisé dans une maison à un étage. L'essentiel est de ne pas oublier que seule la circulation forcée du liquide de refroidissement peut se faire dans le système de chauffage du collecteur. Cela signifie qu'il doit comporter au moins une, et le plus souvent plusieurs pompes de circulation. Nous regardons l'image ci-dessous:

La figure montre un schéma sans chaudière à chauffage indirect. Ceci est fait ici car une chaudière à gaz à double circuit est utilisée. Eh bien, si la chaudière est à circuit unique, alors tout sera un peu différent:


Il a tout ce que les propriétaires modernes aiment :
- Radiateurs.
- Planchers chauffés à l'eau.
- Réserve chaudière électrique.
- Chaudière à chauffage indirect.
Si vous ne comptez pas avec la pompe de la chaudière, il y en aura 5. Afin que les pompes de circulation ne créent pas de différence de pression entre les collecteurs « alimentation » et « retour », une flèche hydraulique est utilisée ici. Grâce à cela, la pompe de circulation de la chaudière peut toujours fournir le débit requis du caloporteur à travers l'échangeur de chaleur de la chaudière, ce qui a un effet positif sur sa durée de vie. Les circuits de chauffage par le sol sont reliés par leurs collecteurs à des groupes de circulation autonomes. Ici, vous devez prendre en compte la possibilité d'une panne de courant d'urgence. Pour assurer le fonctionnement du «cerveau» de la chaudière et des pompes de circulation lors de l'arrêt, vous en aurez besoin. Sans cela, la circulation du liquide de refroidissement dans le système s'arrêtera, ce qui entraîne toutes sortes de conséquences désagréables.
Le principal avantage d'un tel système de chauffage est la possibilité d'éteindre des branches individuelles sans arrêter l'ensemble du système. Cette fonctionnalité aide beaucoup lorsqu'une réparation d'urgence est nécessaire. Eh bien, l'inconvénient sera peut-être le prix de tout ce plaisir. Bien que, si vous le faites pour vous-même et pendant longtemps, il est alors logique de tout faire selon votre esprit. Sinon, votre avarice vous fera payer deux fois ! Sur cette note optimiste, je terminerai ce post, en attendant vos questions et likes sur les réseaux sociaux !
Comment fonctionne un collecteur avec vannes à deux voies
Si une unité collectrice pour un sol chaud est achetée avec une pompe, des vannes à deux voies seront utilisées pour une solution peu coûteuse. Ils fonctionnent selon le schéma suivant :
- un capteur de température surveille en permanence la température de l'eau dans la zone de mélange de liquide ;
- dès que les indicateurs dépassent la valeur définie, l'alimentation en eau chaude est coupée ;
- la pompe de circulation continue de fonctionner, pompant le liquide de refroidissement;
- lorsque la température de l'eau baisse, la vanne à deux voies s'ouvre légèrement et l'eau chaude de la chaudière est ajoutée aux circuits de chauffage.
La principale caractéristique du système, qui fonctionne sur des vannes à deux voies, est de couper périodiquement l'alimentation en eau chaude. Par conséquent, afin d'éviter les pics de température, il est recommandé de raccorder la structure de chauffage à des chaudières conçues pour pomper non pas un débit de fluide constant, mais un débit variable.
La vanne à deux voies présente un inconvénient majeur. Il a une faible bande passante. Cela n'affecte pas le fonctionnement du système, car la fourniture d'eau chaude en mode équilibré est relativement faible. Mais un faible débit d'eau obstruera inévitablement la vanne. Par conséquent, il doit être installé immédiatement afin que le remplacement ou l'entretien puisse être effectué. Autre recommandation pour l'utilisation de vannes à deux voies: utilisez-les pour chauffer des surfaces de moins de 200 mètres carrés.
Débitmètres électromagnétiques
Raccordement d'un sol chaud à un thermostat thermostatique
Leur principe de fonctionnement est basé sur la loi de l'induction électromagnétique, selon laquelle une CEM est induite dans un liquide électriquement conducteur traversant un champ électromagnétique, qui est proportionnel à la vitesse du flux (conducteur).
De tels débitmètres ont trouvé une application dans les systèmes de mesure volumétrique pour le caloporteur et l'eau dans les centrales industrielles et électriques. L'inconvénient est le coût et le poids élevés pour les diamètres supérieurs à 300-400 mm, la complexité du retrait pour vérification.
Les compteurs d'eau électromagnétiques à tige fonctionnent sur le principe de l'immersion du capteur dans un liquide, où le débit est mesuré. Ces compteurs déterminent le débit d'eau froide dans des canalisations complètement remplies.
Sélection, installation et réglage des débitmètres
Quelle chaudière électrique pour un sol chaud est préférable de choisir
En règle générale, un sol isolé par l'eau se compose de plusieurs circuits de tuyaux en plastique. L'eau chaude qui les traverse, dégage sa chaleur et revient par la partie retour du système. Le collecteur (système de peigne) du plancher d'eau chaude est conçu pour collecter l'eau refroidie, mélanger et fournir de l'eau chauffée. En d'autres termes, c'est une unité qui contrôle le fonctionnement du système de chauffage par le sol.
Pour réguler la température, des débitmètres sont prévus dans le collecteur. Ces dispositifs contrôlent le débit du liquide de refroidissement, en l'occurrence de l'eau.
Pourquoi avez-vous besoin d'un débitmètre
Théoriquement, il est tout à fait possible de se passer d'installation dans le collecteur du débitmètre. Cependant, si vous n'installez pas cet appareil, alors :
- Dans différentes pièces, la température sera différente;
- Une consommation excessive d'électricité pour chauffer l'eau dans le système est possible;
- Différents circuits chaufferont de manière inégale.
Un exemple simple peut être donné : une salle de bain et une chambre. Une chaudière à gaz ou électrique chauffe l'eau de la même manière pour le bain et pour la chambre. Mais la salle de bain est au moins 3 fois plus petite que la chambre.
En conséquence, il fera chaud dans la salle de bain et frais dans la chambre avec la même alimentation en eau du système de chauffage par le sol. Cette situation est due au fait que la longueur totale des tuyaux en plastique dans la zone est beaucoup plus grande dans la chambre.
C'est afin de réguler un régime de température confortable dans tout l'appartement que l'installation d'un tel appareil est souhaitable.
Conseils! Lors de l'installation d'un sol chauffé à l'eau, vous devez vous efforcer de créer les contours des tuyaux d'environ la même longueur. Cela réduira les coûts énergétiques et permettra un contrôle plus précis de la température.
Principe d'opération
L'appareil est installé sur les robinets collecteurs de retour. Lorsqu'une température prédéterminée est atteinte dans le système de soupape de collecteur, la lumière du vecteur d'énergie est rétrécie ou complètement fermée. Ce principe de fonctionnement est possible avec une automatisation complète du système.Pour cela, le capteur est équipé d'une sonde de température.
Le débitmètre lui-même se compose de plusieurs parties :
- Logement;
- Flacon transparent avec une échelle;
- Flotter.
Le flacon est généralement en verre durable, le corps peut être en plastique ou en laiton. Le flotteur est situé à l'intérieur du ballon, il sert d'indicateur de la vitesse du liquide de refroidissement. Aussi appelé débitmètre à flotteur.
Dans le collecteur automatique d'un plancher chauffant à eau, l'équilibrage du débit de fluide caloporteur est réalisé à l'aide d'une sonde de température. Si ce dernier n'est pas fourni, le débitmètre peut être réglé manuellement.
Instructions pas à pas pour l'installation et le réglage
H2_2
Le rotamètre est installé strictement verticalement. Pour garantir que le niveau de liquide dans le ballon est précis, le collecteur lui-même est également monté en fonction du niveau. Si la ligne de collecteur est installée de travers, le contrôle de la température sera incorrect.
Étant donné que les travaux de finition ont souvent lieu après l'installation du capteur, il est nécessaire de protéger l'unité et ses composants contre d'éventuels dommages. La meilleure option est de lui faire une niche dans le mur ou une armoire spéciale.
Installation et réglage :
- À l'aide d'une clé, vissez le débitmètre dans l'entrée de procédé de la ligne de retour du collecteur ;
- En tournant la membrane (flacon) dans le sens inverse des aiguilles d'une montre, ouvrez le manomètre ;
- Retirez la bague de protection d'usine ;
- Tournez la bague du corps en laiton dans le sens des aiguilles d'une montre jusqu'à la tête souhaitée. Ceci équilibre le débit du vecteur énergétique. Le flotteur sur l'échelle indiquera la valeur définie;
- Fermez l'anneau en laiton avec une plaque de recouvrement. Ceci doit être fait pour éviter d'endommager l'appareil, surtout si le chauffage au sol à eau n'est pas enfermé dans une niche ou un meuble ;
- Vérifiez le fonctionnement du système.
Pendant le fonctionnement de l'ensemble, le bulbe reste ouvert pour que l'on puisse voir le niveau du flotteur d'eau. Si un équilibrage est nécessaire pendant le fonctionnement, la membrane tourne simplement dans la direction souhaitée.
Choisir un débitmètre pour un plancher chauffant à eau
Les débitmètres à section variable de haute qualité doivent être accompagnés d'une garantie de 5 à 7 ans de fonctionnement stable. Il est recommandé de choisir des débitmètres avec un corps en laiton
Vous devez également faire attention au ballon, il doit être en verre transparent avec une bonne visibilité de l'échelle de niveau d'eau. Cependant, il y a un avis qu'il est préférable de choisir des produits avec une membrane en plastique résistant aux chocs.
Lors du choix d'un appareil, vous devez prendre en compte la zone du système de canalisation
Il est également important que le nœud soit automatisé ou non. Dans le premier cas, l'équilibrage sera extrêmement rare, les collecteurs mécanisés nécessitent plus d'attention.
Une source:
Fonctionnalité du débitmètre
Un rotamètre, ou, si nous donnons une définition complète à cette unité, un rotamètre à flotteur, à première vue, est un appareil mécanique ordinaire. La conception du produit est basée sur un boîtier en plastique (il existe des modèles en laiton), à l'intérieur duquel est placé un flotteur en polypropylène. Le corps est équipé d'une ampoule transparente avec une échelle de marquage. Le déplacement du flotteur de haut en bas à l'intérieur de l'appareil indique une certaine valeur sur l'échelle, par laquelle vous pouvez évaluer le volume de liquide de refroidissement circulant dans le système de canalisations - est-ce suffisant pour le fonctionnement complet des circuits de chauffage.


Débitmètre traditionnel pour capteurs de chauffage par le sol en différentes versions: à gauche - dans un boîtier en plastique, à droite - en laiton.
D'un point de vue théorique, le système de chauffage peut fonctionner sans cet appareil. Dans ce cas, vous devrez ajuster manuellement le volume d'eau entrant dans le circuit, en fonction de vos sentiments personnels lorsque la température de l'air dans la pièce change.
Sur une note : par le bruit d'une pompe en marche et par l'intensité du chauffage du plancher chaud, on peut juger du degré d'exhaustivité de l'alimentation en liquide de refroidissement chaud de tous les circuits de chauffage.
Le refus d'utiliser le débitmètre lors de l'installation d'un chauffage par le sol pose les problèmes suivants :
- les contours individuels du plancher d'eau seront alimentés en liquide de refroidissement sans tenir compte des caractéristiques de la pièce, ce qui entraînera une différence entre les valeurs de température de la surface du sol des pièces chauffées;
- la consommation du vecteur énergétique utilisé pour faire fonctionner les appareils de chauffage (électricité ou gaz) sera augmentée.
Par exemple, vous envisagez de chauffer une salle de bain et une chambre de bébé en même temps. Une chaudière à gaz autonome chauffera l'eau de la salle de bain et de la crèche de la même manière, dans le même mode de température. Cependant, la salle de bain est plus petite et il faut moins d'eau de chaudière pour la chauffer que pour alimenter un sol chaud dans une crèche. Il est possible d'obtenir une alimentation optimale en caloporteur pour les sols chauds dans chaque pièce à l'aide d'un débitmètre. Par conséquent, grâce au fonctionnement de cet appareil, il sera possible d'atteindre des valeurs de température individuelles pour le confort dans la salle de bain et la chambre des enfants.
En évaluant le fonctionnement et le principe de fonctionnement de l'appareil, les conclusions suivantes peuvent être tirées:
- l'appareil fonctionne de manière totalement autonome, sans nécessiter d'alimentations supplémentaires ;
- le principe de fonctionnement du débitmètre vous permet de créer un débit optimal de liquide de refroidissement pour les circuits de chauffage, réduisant considérablement la consommation d'énergie des appareils de chauffage;
- la conception de l'appareil permet un contrôle visuel de la quantité d'eau dans les canalisations;
- le collecteur, associé aux débitmètres de chauffage au sol, facilite grandement le contrôle du fonctionnement de l'ensemble du système, est facile à installer et sans prétention à entretenir.
Important! L'installation de l'appareil est effectuée strictement en position verticale, simplement en vissant l'appareil dans une prise spéciale du collecteur. L'appareil est fixé avec un écrou-raccord.
Sur une note : Lors de l'installation d'un plancher chaud, essayez d'obtenir la même longueur de caloducs pour tous les circuits d'eau - malgré d'éventuelles différences de configuration, cela simplifie grandement la régulation de l'ensemble du système de chauffage et vous permet d'obtenir des paramètres de température optimaux.
Réglage manuel de la température de l'agent de chauffage


Les méthodes de contrôle de la température dépendront entièrement de l'équipement utilisé. Par exemple, si un système avec un régulateur de température et un servomoteur est installé, le réglage est effectué conformément aux instructions du fabricant de cet appareil. Dans ce cas, le réglage est effectué en mode automatique. Nous allons maintenant considérer une méthode manuelle de réglage de la température à l'aide de têtes thermiques.
L'installation de têtes thermiques peut être effectuée à la fois pour l'alimentation et le retour du liquide de refroidissement.
Tout d'abord, le système au sol chaud doit être complètement rempli de liquide de refroidissement et exempt d'air
Mais ici, il est important de ne pas se précipiter, sinon des bourrages d'air peuvent se former. Si le raccordement a été fait à partir de la chaudière, alors avant de démarrer l'eau dans les circuits de chauffage, fermez tous les robinets
Après cela, ouvrez l'alimentation / le retour sur une boucle, en la remplissant de liquide de refroidissement. L'air qui en sort doit s'échapper par l'évent. Allumez maintenant la pompe de circulation pour que le liquide de refroidissement commence à se déplacer dans cette boucle. Dans le même temps, allumez la température de la chaudière à 35 °. Au toucher, vous devriez sentir que de l'eau chaude a coulé sur le retour et l'alimentation dans le circuit de chauffage. Si tout fonctionne correctement, fermez cette boucle et ouvrez-en une nouvelle. Grâce à cette méthode, vous pompez et vérifiez chaque boucle du circuit de chauffage. Lorsque vous avez configuré chaque circuit, vous ouvrez tous les robinets et ajustez la température souhaitée au toucher. Dans certaines charnières, le robinet devra être complètement ouvert, tandis que dans d'autres, il suffit de l'ouvrir légèrement.


La température du liquide de refroidissement dans chaque circuit peut être différente. Il y a plusieurs raisons à cela, comme la longueur de la boucle. Plus le contour est court, plus il chauffe vite et vice versa.
Ainsi, un contrôle manuel de la température est effectué. Il suffit de le faire une fois par an. Mais ici, il est important de prendre en compte la nuance. Le système de chauffage au sol est inertiel.Qu'est-ce que cela signifie en pratique? Si vous avez apporté des modifications à l'une des charnières, vous devrez attendre quelques heures pour ressentir les changements nets de la température intérieure.
Si vous avez installé des débitmètres sur le collecteur, la différence entre les lectures peut atteindre jusqu'à 0,5 litre.
Plancher chaud et place occupée par le collecteur avec débitmètres
La particularité d'un sol chaud en tant que système de chauffage est que le liquide de refroidissement chauffé, se déplaçant le long du circuit de chauffage, transfère une partie de l'énergie thermique à la surface du sol. Ainsi, du fait du chauffage du sol, la chaleur est transférée à la masse d'air circulant à l'intérieur de la pièce dans le sens du bas vers le haut. Un certain nombre d'appareils interviennent dans l'alimentation en eau chaude des circuits de chauffage, l'intensité et le débit, notamment :
Le contrôle de la distribution du liquide de refroidissement est effectué par le débitmètre pour le plancher chaud. Ce dispositif joue l'un des rôles clés dans le fonctionnement de l'ensemble du groupe de pompage et de mélange. Les collecteurs pour le chauffage par le sol sont conçus pour fournir de l'eau chaude et collecter le caloporteur résiduel pour son utilisation ultérieure dans la canalisation du système de chauffage. Dans l'unité de pompage et de mélange, l'eau chaude provenant de la source de chauffage est mélangée au liquide de refroidissement renvoyé dans le circuit - le flux de retour. La fonctionnalité et l'efficacité du chauffage par le sol reposent sur ce principe de fonctionnement.


Unité de mélange avec rotamètres pour systèmes de chauffage par le sol
Avec le fonctionnement des soupapes de sécurité, les rotamètres sont conçus pour réguler la température du liquide de refroidissement dans les circuits individuels du plancher d'eau. Grâce à ces dispositifs, le volume d'eau traitée requis est fourni au système de chauffage par le sol. En d'autres termes, cet équipement surveille la quantité de liquide de refroidissement dans le caloduc et, par conséquent, la fonctionnalité de l'ensemble du système de chauffage.
Système de chauffage combiné VALTEC
Nous attirons votre attention sur un exemple de système de chauffage moderne et économe en énergie basé sur l'équipement VALTEC. Il est conçu pour une maison de campagne ou tout autre objet avec une source de chaleur autonome (chaudière, etc.). Le schéma prévoit l'utilisation combinée de radiateurs traditionnels et de chauffage par le sol. Cette combinaison de technologies, ainsi que l'automatisation appliquée permettent d'offrir un haut niveau de confort à des coûts optimaux pour l'achat des équipements et leur fonctionnement. Le diagramme utilise et affiche les composants de l'assortiment VALTEC actuel.


| № | code de fournisseur | Nom | Fabricant |
| 1 | VT.COMBI.S | Unité de mélange à pompe | VALTEC |
| 2 | VTC.596EMNX | Bloc collecteur avec débitmètres | VALTEC |
| 3 | VTC.586EMNX | Bloc collecteur en acier inoxydable devenir | VALTEC |
| 4 | VT.K200.M | Contrôleur à compensation météorologique | VALTEC |
| 4a | VT.K200.M | Sonde de température extérieure | VALTEC |
| 5 | VT.TE3040 | Servo variateur électrothermique | VALTEC |
| 6 | VT.TE3061 | Servo analogique | VALTEC |
| 7 | VT.AC709 | Chronothermostat d'ambiance électronique avec sonde de température au sol | VALTEC |
| 8a | VT.AC601 | Thermostat d'ambiance | VALTEC |
| 8 | VT.AC602 | Thermostat d'ambiance avec sonde de chauffage au sol | VALTEC |
| 9 | VT.0667T | Bypass avec vanne by-pass pour circulation avec boucles fermées | VALTEC |
| 10 | VT.MR03 | Vanne mélangeuse à trois voies pour le maintien de la température de retour | VALTEC |
| 11 | VT.5012 | Tête thermique avec capteur de fixation externe | VALTEC |
| 12 | VT.460 | Groupe de sécurité | VALTEC |
| 13 | VT.538 | Raclette | VALTEC |
| 14 | VT.0606 | Mamelon à double collecteur | VALTEC |
| 15 | VT.ZC6 | Communicateur | VALTEC |
| 16 | VT.VRS | Pompe de circulation | VALTEC |
Explications pour le diagramme:
L'utilisation du groupe pompe-mélangeur VALTEC COMBIMIX permet de relier les circuits haute température (chauffage par source de chaleur et radiateurs) et les circuits de plancher chauffant à basse température d'eau en un seul système.
La répartition des flux de fluide caloporteur est organisée à l'aide des blocs collecteurs VALTEC VTc 594 (chauffage par radiateurs) et VTc 596 (chauffage au sol).
La distribution du système de chauffage haute température et les circuits de chauffage sont réalisés en tubes métal-plastique VALTEC. Les canalisations ont été installées à l'aide de raccords à sertir de la série VTm 200 ; connexion aux collecteurs - raccords de collecteur à compression pour tuyaux métal-plastique VT 4420.
Le fonctionnement du chauffage par le sol est contrôlé par un contrôleur VALTEC K100 avec une fonction de compensation climatique. De ce fait, la température de l'eau dans les circuits de chauffage par le sol évolue en fonction de la température extérieure, ce qui garantit des économies de ressources énergétiques utilisées pour le chauffage. Le signal de commande du contrôleur est envoyé au servo de vanne de commande électrothermique analogique de l'ensemble COMBIMIX.
Le confort thermique des pièces avec chauffage au sol est assuré par un thermostat d'ambiance VT AC 602 et un chronothermostat VT AC 709, équipés de sondes de température d'air et de sol. Grâce à des entraînements électrothermiques, ces modules d'automatisation contrôlent les vannes sur le collecteur de retour de l'unité VTc 596.
Un thermostat avec sonde de température à distance VT AC 6161 est utilisé comme thermostat de sécurité.Il arrête la pompe de circulation de l'unité COMBIMIX en cas de dépassement de la température maximale réglée de l'agent de chauffage dans l'alimentation des circuits de plancher chauffant.
Le transfert de chaleur des radiateurs est régulé par le thermostat d'ambiance VT AC 601, qui commande les vannes du bloc collecteur VTc 594 à l'aide de servomoteurs électrothermiques.
Le circuit de source de chaleur est équipé d'un groupe de sécurité chaudière, d'un vase d'expansion à membrane et de clapets anti-retour et de vidange VALTEC.
Les vannes à bille de la série VALTEC BASE ont été utilisées comme vannes d'arrêt.
Pourquoi avons-nous besoin de débitmètres
Le bref principe de fonctionnement sur lequel le capteur de chauffage au sol est construit dans le système de circulation est discuté ci-dessus. Mais après avoir résolu le problème de l'abaissement de la température du fluide caloporteur à l'entrée des circuits, un autre problème se pose. Elle peut se résumer ainsi :
- de l'eau de température égale entre dans chaque pièce;
- la longueur des tuyaux posés dans le sol de chaque pièce est différente;
- l'eau de différentes températures pénètre dans le capteur pour le chauffage par le sol après avoir traversé les circuits de chauffage des pièces individuelles.
Sans équilibrer le débit, le capteur de chauffage au sol créera une situation où il fait très chaud dans les petites pièces et froid dans les grandes. De tels sols chauds peuvent difficilement être qualifiés d'efficaces. Le débitmètre pour le capteur de chauffage au sol résout le problème d'équilibrage de la chaleur comme suit :
- équipé d'un capteur de température, détermine les caractéristiques du liquide provenant du retour;
- selon les résultats obtenus, il réduit ou bloque complètement le débit d'eau chaude ;
- le mélange du caloporteur chauffé de l'alimentation est arrêté jusqu'à ce que la température de retour tombe à la valeur de consigne.
Capteur de chauffage au sol Valtec pour 2-4 circuits 20-60 m².


Surface de plancher chauffée maximale : 60 m² ; Régulation manuelle. (Pour la régulation automatique, il est nécessaire d'installer en plus un servo variateur VT.M106.0.230 et un thermostat de régulation ou contrôleur)
spécification
- 1 - Mitigeur MIX 03 3/4 "- 1 pièce;
- 2 - Mamelon-adaptateur 1-3 / 4 "(VTr.580.N.0605) - 2 pcs;
- 3 - mamelon 3/4 "(VTr.582.N.0005) - 1 pièce;
- 4 - té 3/4 "vn.-vn.-vn. (VTr.130.N.0005) - 1 pièce;
- 5 - genou 3/4" Nar.-Nar. (VTr.093.N.0005) - 1 pièce ;
- 6 - American 3/4 "(VTr.341.N.0005) - 1 pièce;
- 7 - pompe de circulation avec 1 "écrous union ;
- 8 - robinet à tournant sphérique 3/4 "vn.-vn. (VT.217.N.05) - 2 pièces ;
- 9 - collecteur 3 / 4-1 / 2 "planches. (VTc.500.N.0502) - 2 pièces;
- 10 - connecteur collecteur 16-1 / 2 "(VTc.710.N.1604) - 4 pcs;
- 11 - connecteur avec ext. fils. 20-3 / 4 "(VTm.302.N.002005) - 1 pièce;
- 12 - connecteur avec lits de planches. fils. 20-3 / 4 "(VTm.301.N.002005) - 1 pièce;
- 13 - té collecteur (VTc.530.N.0500) - 2 pièces;
- 14 - purgeur d'air automatique 3/8 "(VT.502) - 2 pièces;
- 15 - vanne de vidange 1/2 "(VT.430) - 2 pièces;
Lien
À l'aide de connecteurs (10), un chauffage par le sol en tube métal-plastique 16x2 est connecté. L'alimentation du circuit haute température (alimentation chaudière) est raccordée à la borne 16, et le retour chaudière est raccordé à la borne 17.
Collecteur de chauffage par le sol Valtec avec réglage manuel pour 2 circuits. Les charnières doivent être de longueur approximativement égale pour un bon fonctionnement. A l'entrée et à la sortie du système de chauffage 16, 17, il est conseillé de monter des robinets américains.
Si 3 ou 4 circuits sont utilisés dans l'unité de mélange ci-dessus pour le chauffage au sol, alors deux capteurs (9) sont remplacés par un capteur variable (VTc.560n) et un capteur avec robinets à tournant sphérique (VTc.580n).
Collecteurs de réglage avec compteurs de réglage
Le préréglage des capteurs de chauffage au sol est nécessaire et important. Même si le système a des thermostats, des contrôleurs et d'autres automatismes. Si vous confiez le réglage à l'automatisation, après un certain temps, tous les flux seront aussi ouverts que possible. Donc, avant de démarrer le système, nous installons le collecteur. Ajuster le débit sur une installation froide sans allumer la chaudière. Le chauffage est démarré après avoir réglé les coûts pour les boucles - pour vérifier la température.
Qu'est-ce qu'un débitmètre et son appareil
Les débitmètres sont utilisés pour le réglage initial des débits, ce qui est plus facile, plus précis et plus rapide avec eux. De plus, en fonctionnement, ils permettent d'estimer le débit actuel par rapport à celui réglé lors de la configuration. Pour comprendre la mécanique du réglage, vous devez savoir comment fonctionne le compteur et comment il fonctionne. Il s'agit d'un corps creux avec une soupape à champignon supportée par un ressort. Le ressort est calibré. Son sommet est mis en évidence dans un cône transparent avec une échelle.


Comment fonctionne le débitmètre Valtek
Afin de pouvoir naviguer par les valeurs de débit et, en fait, de les réguler, un indicateur de débit est fixé au ressort. Pour les débitmètres installés à la livraison, l'indicateur de débit est installé par défaut en haut du corps. Dans cette position, il pointe vers "0" et le flux est bloqué (comme sur la photo ci-dessus). Si les compteurs sont destinés à être montés sur un collecteur de retour, l'indicateur de débit est en bas.
Problèmes pouvant survenir
Donnons un exemple concret.
Difficultés dans l'installation du système


La longueur des contours dans les pièces de différentes tailles est différente. Cela crée des problèmes.
- Le contour du plancher chaud est installé dans la salle de bain, le salon et la cuisine.
- Il se connecte à un collecteur.
- Il est clair que la surface au sol de ces pièces est différente. Par conséquent, la longueur des canalisations posées sous le revêtement est également différente.
- Cela signifie que la consommation du liquide de refroidissement qu'ils contiennent sera également différente.
Noter! Dans les anneaux chauffants courts, le niveau de résistance hydraulique des tubes est plus faible. Sur cette base, l'eau y circule plus rapidement que dans leurs homologues longs.
Par conséquent, à la même température du liquide sur le collecteur d'alimentation, le sol sera surchauffé dans certaines pièces, tandis que dans d'autres, il restera froid.
La même situation peut se produire lors de l'utilisation de circuits de chauffage par radiateurs avec un nombre différent de sections et des longueurs de tuyaux différentes, qui sont connectés au même collecteur d'étage. C'est-à-dire que certaines pièces seront surchauffées, tandis que d'autres seront froides.
Pour éviter que cela ne se produise, la notice recommande de déterminer la consommation d'eau dans le système de radiateurs en installant un thermostat sur chaque batterie. En fait, c'est une vanne qui contrôle quantitativement le débit. À peu près la même chose peut être faite sur un système de chauffage par le sol.
Façons de résoudre le problème
Il est possible d'équilibrer les circuits de chauffage des systèmes de chauffage par le sol qui sont connectés au même groupe de capteurs de deux manières.
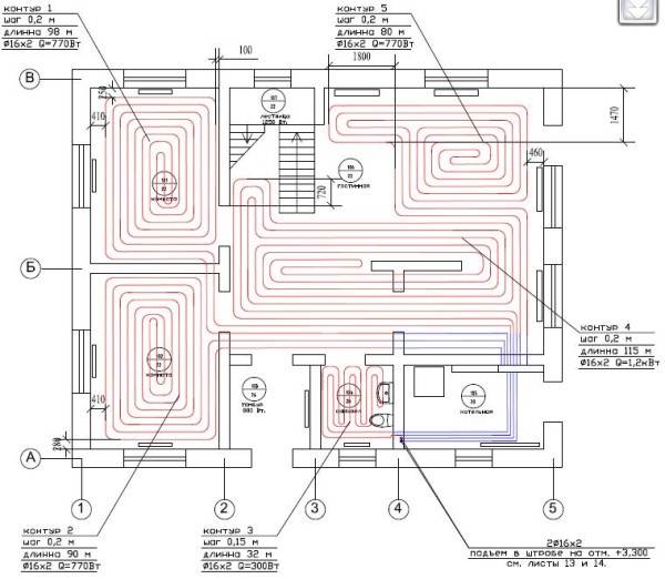
- En appliquant le premier d'entre eux, vous devez créer tous les anneaux de longueur égale et les répartir correctement sous le couvercle. Par exemple, trois circuits seront dans la chambre d'amis, deux dans la cuisine et un dans la salle de bain.
- La deuxième façon est de ne monter que 3 circuits, en fonction du nombre de pièces.Cependant, ils devront être connectés non pas directement aux collecteurs, mais via des dispositifs spéciaux - des débitmètres pour le chauffage par le sol, ils sont également appelés rotamètres. De par leur conception, ce sont des vannes d'équilibrage.
Dans l'exemple donné, le terme "débitmètre" ne désigne pas un appareil de mesure, mais un robinet spécial, avec lequel il est possible de contrôler et de régler la consommation du caloporteur.
Il convient de garder à l'esprit que les appareils de certains fabricants ne peuvent être connectés qu'à un collecteur de retour.


Conception optimale du groupe collecteur.
- La meilleure option, lorsque l'ensemble collecteur a une telle conception, est que le collecteur d'alimentation soit équipé d'un rotamètre et qu'un thermostat soit placé sur l'analogue inverse.
- De ce fait, la partie alimentation du groupe dirige un volume dosé avec précision du caloporteur dans chacun des circuits de chauffage. Le collecteur de retour se ferme, ouvre les circuits, au fur et à mesure que le liquide se refroidit dans les canalisations.
- De plus, il est souhaitable que le collecteur d'alimentation pour le chauffage par le sol avec débitmètre dispose d'un purgeur d'air automatique et soit connecté au bypass analogique de retour doté d'une vanne de bypass.
Noter! L'air qui interfère avec son fonctionnement est évacué du système de chauffage par un évent. Lorsqu'il fait plus chaud à l'extérieur, les thermostats ferment les circuits, à ce moment la vanne de dérivation s'ouvre et abaisse la pression de saut.
À l'heure actuelle, les fabricants produisent de nombreux débitmètres, qui sont à la fois des appareils de mesure et des régulateurs du débit du caloporteur. Il existe également des appareils qui combinent ces fonctions. Naturellement, leur prix est plus élevé.
Si vous achetez uniquement un appareil de mesure, il devra être installé avec une vanne ordinaire. En ouvrant ou fermant le robinet, selon les lectures de l'échelle rotamètre, vous pourrez régler le débit du liquide de refroidissement.
Comment équilibrer les circuits de chauffage


Un exemple d'équilibrage d'un système.
- Le débit total du liquide de refroidissement à travers le collecteur (l / min) est considéré comme 100 pour cent.
- En outre (également en pourcentage), la consommation pour chacun des circuits est déterminée. Par exemple - 15%, 35% et 50%. Ils sont convertis (proportionnellement) en litres par minute.
- Ensuite, vous devez dévisser ou tordre la tête du rotamètre (ou la vanne connectée au débitmètre de mesure), définissant ainsi les lectures requises.
- Il convient de garder à l'esprit que seul l'équilibrage calculé des circuits peut être effectué de cette manière.
Assemblage du collecteur avec des débitmètres.
- Le réglage proprement dit se fait en fonction du débit réel du liquide de refroidissement. Pour cela, il est nécessaire de placer un rotamètre de mesure devant la partie alimentation du capteur de chauffage au sol. Sur la base de ses lectures, il sera possible de répartir les coûts totaux le long des circuits connectés au groupe collecteur.
Exploitation
Le circuit collecteur de plancher chauffant est relativement simple. Mais pendant son fonctionnement, il est nécessaire de vérifier périodiquement les performances des éléments individuels et de l'ensemble du système dans son ensemble. Pour ce faire, il est recommandé d'établir un calendrier de vérification des équipements et de réalisation de travaux préventifs de cette nature :
- Surveillance des performances des éléments de l'appareil.
- Vérification des paramètres du liquide de refroidissement dans chacune des lignes - vitesse, température. Pour ce faire, il est nécessaire de prendre périodiquement des lectures des dispositifs de contrôle.
- Contrôle de l'intégrité du raccordement des canalisations aux peignes, de l'absence de fuites et de dépressurisation.
- Respect du régime de température du système en reprenant les données des thermomètres.
En exécutant ces procédures simples, vous pouvez maintenir le bon fonctionnement de l'ensemble du système et de ses différentes parties. Mais la condition principale est le raccordement professionnel du capteur de chauffage au sol. L'opérabilité de l'appareil et ses performances dépendent de l'exactitude de cette étape d'installation.
Compteurs à ultrasons à impulsions temporelles
La méthode des impulsions temporelles (ou, en d'autres termes, le déphasage) est basée sur la mesure du temps de parcours d'un signal à contre-courant et dans le sens du mouvement du fluide. Pour convertir le signal ultrasonore, deux ou quatre éléments piézoélectriques déplacés le long du mouvement de l'eau sont installés sur la canalisation. En règle générale, des éléments de disque sont utilisés, moins souvent des éléments annulaires (pour les petits diamètres).
Les éléments piézoélectriques peuvent être installés à l'intérieur du flux (sur les parois internes d'un tuyau ou d'un canal) ou à l'extérieur du pipeline (dans ce cas, le signal passe à travers la paroi externe). Selon les capteurs utilisés, les compteurs peuvent être installés dans des systèmes gravitaires (ouverts et fermés), ainsi que dans des canalisations complètement fermées avec surpression du fluide. Il existe de tels types de capteurs de vitesse :
- tuyau - coupé dans l'alimentation en eau de l'extérieur. Peut être utilisé dans des environnements pressurisés et non pressurisés;
- en forme de coin - installé sur le fond ou la paroi intérieure du tuyau. En règle générale, ils sont utilisés dans des canaux à écoulement libre ou dans des canalisations de grand diamètre, si l'installation et la maintenance du capteur de l'extérieur ne sont pas pratiques;
- sphérique ou hémisphérique - monté sur des parois inclinées de canaux trapézoïdaux ouverts;
- tige - ont la forme de tubes, sont installés sur les parois verticales des canaux;
- aérien - capteurs sans contact, placés sur la surface extérieure du pipeline.
Selon la manière dont les capteurs sont installés, une distinction est faite entre les appareils à contact et sans contact. L'avantage des débitmètres portables sans contact est la possibilité de les installer sur des canalisations sans rompre l'intégrité. Ils sont rarement installés de manière permanente, le plus souvent ils sont utilisés pour des mesures de vérification en différents points.
Les compteurs de temps à impulsion sont adaptés pour trouver le débit d'eau propre ou d'eau légèrement contaminée (avec une petite quantité de matières en suspension). Ils sont utilisés dans l'approvisionnement en eau et l'évacuation des eaux usées, dans les circuits de refroidissement, dans les systèmes d'irrigation et d'irrigation, dans les stations de pompage, dans les canaux et rivières naturels et artificiels à ciel ouvert. Ils sont utilisés à la fois pour la comptabilité commerciale et technologique.
Comment se fait l'équilibrage
Selon le modèle de débitmètre, après installation et test de pression du système de chauffage, ils sont mis en position initiale "ouvert". Pour les instruments qui n'ont pas de vanne intégrée avec graduation de vitesse, la vanne supplémentaire est réglée sur la position « complètement ouverte » et le système est équilibré après le démarrage.


Assemblage standard du groupe collecteur
Dans les modèles combinés, il existe une possibilité de préréglage en fonction du nombre de tours complets de la vanne. Chaque tour diminue le jeu d'un montant fixe.
Dans un premier temps, le volume de liquide de refroidissement nécessaire pour chaque circuit est calculé et son pourcentage est déterminé par rapport au volume total de liquide de refroidissement pour l'ensemble du système. Conformément à ces indicateurs, la position initiale de la tête de vanne du débitmètre sur chaque circuit est définie.
Le réglage final est effectué pendant le fonctionnement. En même temps, ils procèdent de véritables indicateurs de température et de sensations de confort.
Important! Lors du réglage, modifiez les paramètres en douceur, car une diminution du débit dans un anneau du système entraînera une augmentation du débit dans les autres anneaux.
Compteurs à ultrasons à corrélation croisée
Ces débitmètres fonctionnent selon la méthode de corrélation croisée par ultrasons. Cette technique est basée sur le principe de tracer des vitesses pour différents niveaux d'écoulement, le compteur permet de construire un véritable diagramme de la distribution des vitesses dans le cours d'eau. Le débit est également mesuré.
Avec des compteurs d'eau, des capteurs de vitesse à tube à ultrasons et en forme de coin sont utilisés, installés dans le flux, le niveau de liquide est déterminé à l'aide de capteurs de surface et sous-marins.L'exécution de capteurs de vitesse et de niveau combinés est possible.
Les compteurs sont utilisés dans les systèmes à pression et gravité, ouverts et fermés. C'est une méthode de mesure précise qui donne des résultats fiables pour des flux de différents niveaux de contamination, et qui est également efficace dans des milieux hétérogènes. Les débitmètres sont utilisés dans les pipelines technologiques, les usines de traitement, dans les rivières et les réservoirs, etc. Dans les grands canaux, plusieurs capteurs peuvent être installés sur toute la largeur pour obtenir des résultats plus précis.
Comment fonctionne le système de vanne à 3 voies
Une vanne à trois voies est considérée comme la meilleure solution pour chauffer de grandes pièces, à condition qu'il y ait plusieurs circuits. Ce nœud fonctionne comme suit :
- il y a un septum à l'intérieur de la valve;
- les liquides du retour et de l'alimentation de la chaudière sont constamment mélangés;
- pour régler la température, il suffit de tourner la tête de soupape supérieure.
Des systèmes simples offrent un contrôle manuel de l'unité de mélange. Mais la vanne à trois voies assure une régulation automatique. Cela se fait à l'aide d'un servo variateur qui reçoit les signaux des capteurs de température. Il peut s'agir d'appareils situés dans des pièces spécifiques ou déterminant les paramètres du climat à l'extérieur du bâtiment.
Les inconvénients d'un capteur à trois voies incluent la possibilité d'une forte augmentation de la température dans le circuit de chauffage. Cela se produit après un léger tour de tête, ce qui complique le réglage manuel des paramètres du microclimat. Lors de l'utilisation de capteurs de température et de servomoteurs, il existe également un risque de recevoir des données incorrectes. Mais il est relativement petit. La vanne 3 voies a une bonne capacité de débit, est fiable et se bouche rarement.
Comment fonctionne le collecteur de chauffage.
Le collecteur d'équilibrage horizontal le plus courant est conçu comme suit :


Il existe de nombreux modèles de collectionneurs différents sur le marché aujourd'hui. La figure ci-dessus montre un collecteur horizontal avec une flèche hydraulique, mais il existe des options verticales pour une conception similaire et cela ressemble à ceci:


L'essence ici est similaire à celle mise en œuvre dans la conception verticale. Mais il y a une légère différence dans la tuyauterie. Ici à qui, quoi plus confortable il faut regarder la place. Un tel collecteur peut être réalisé à partir d'un tuyau en polypropylène de grand diamètre. Dans ce cas, il est conseillé de conserver les proportions indiquées sur la figure.
Si vous êtes à l'étroit dans l'espace, il existe un autre design très intéressant. On peut l'appeler coaxiale :


Ici, deux tuyaux sont insérés l'un dans l'autre. Dans ce cas, la flèche hydraulique ne peut être connectée que séparément.
D'accord, parlons des collecteurs, et regardons maintenant un système de chauffage basé sur celui-ci. En avant !
Nivellement hydraulique d'un plancher chauffant à eau
Pour un plancher d'eau dans une maison privée, il est préférable d'utiliser des collecteurs avec des débitmètres, dans ce cas, il sera beaucoup plus facile de contrôler le système. Si vous lisez cet article, mais que vous avez un sol chaud similaire dans un appartement ou une maison avec chauffage central, faites attention à la pression de service maximale du capteur que vous avez choisi, généralement pour les capteurs avec débitmètre, elle est de 6 bars. Cela peut ne pas être suffisant pour le système central.
Le débit du liquide de refroidissement à travers le circuit peut être calculé à l'aide de la formule:
Q est la puissance spécifique du sol chaud, W/m 2 ; si vous ne savez pas lequel installer, substituez 50 W/m2
1,163 est un facteur de correction.
Ainsi, le moyen le plus simple de niveler hydrauliquement un sol chaud est:
Ces actions fourniront ce qu'on appelle le "pré-réglage". Si tout est calculé correctement, cela suffira amplement. Mais en fait, pendant le fonctionnement, le chauffage par le sol peut nécessiter un réglage en fonction de la sensation de confort.Lors du réglage, il faut comprendre que les circuits sont hydrauliquement interdépendants, "visser" l'un peut augmenter le débit à travers l'autre. Vous devez également être prêt à ce que la pompe de la chaudière et la pompe de chauffage au sol s'influencent mutuellement. Ce n'est pas effrayant, mais lorsque la pompe de la chaudière s'allume, il est impossible de régler le chauffage au sol, il faut attendre qu'il s'arrête.
Avec un chauffage au sol à eau, vous pouvez réguler la température de la surface du sol et la température de l'air dans la pièce. Dans les pièces dans lesquelles, en plus du sol chauffant, il y a également des radiateurs, il est préférable de donner aux radiateurs la possibilité de maintenir la température de l'air, et le sol chaud fournira une température de surface confortable.
La température de surface d'un chauffage par le sol dépend de la température du fluide caloporteur dans les capteurs de départ et de retour, ainsi que du débit et de la puissance calorifique spécifique, et en particulier de la structure du sol et du revêtement de sol. Soulignons l'essentiel: avec les indicateurs calculés ou réels suivants, vous devez vous méfier d'une augmentation de la température de la surface du sol au-dessus de la norme:
Vous pouvez sélectionner vos paramètres individuels pour le chauffage par le sol dans le programme en ligne de calcul du sol chaud. Remplissez vos données d'origine et essayez d'expérimenter avec les métriques.


Méthode Doppler
Les compteurs utilisant cette méthode mesurent la différence de longueur d'onde réfléchie par un flux en mouvement par rapport à la longueur d'onde du signal émis. La mesure du signal reçu et transmis pour déterminer la différence entre eux est effectuée à l'aide de capteurs de vitesse en forme de coin ou de tuyau installés au fond du canal ou du tuyau.
Les compteurs d'eau Doppler sont utilisés dans les systèmes à pression et à gravité, les tuyaux entièrement et partiellement remplis, les canaux ouverts. Ils fonctionnent dans des cours d'eau plus ou moins pollués (sauf pour l'eau pure). Les débitmètres Doppler sont utilisés pour le comptage commercial dans les canalisations et les canaux gravitaires, pour mesurer les débits dans les rivières et les canaux des systèmes d'irrigation, dans les égouts pluviaux, dans les stations de pompage, les canalisations de prise d'eau et de rejet dans les plans d'eau.


















