Accueil ›Systèmes d'ingénierie› Solutions intégrées ›Ventilation et chauffage› Installation de chauffage et ventilation
Vous pouvez commander l'installation de systèmes de chauffage et de ventilation clé en main avec installation en appelant à Moscou. Conception et fourniture de systèmes de chauffage et de ventilation en Russie. Nous vous demandons d'envoyer une candidature écrite par e-mail ou via le formulaire sur le site.
- Qu'est-ce que SNiP ?
- Technologie de séquence d'installation du système de chauffage
- Installation de types de chauffage de base
- Technologie de séquence d'assemblage du système de ventilation
- Ventilation et chauffage au moyen d'un récupérateur
Déposez votre candidature et obtenez un devis
- Des prix
pour l'installation de systèmes d'ingénierie
L'installation d'un système de chauffage et de ventilation moderne implique la présence de dispositifs spéciaux pour le raccordement des tuyaux (un fer à souder pour le plastique - pour un conducteur thermique en plastique). Lors de l'achat, le système vous est livré sous forme démontée, et en plus des tuyaux, il contient des coins, des tés, des raccords, des bouchons. Vous pouvez tout mettre en place avec un plan ou un projet élaboré par des experts. Les pièces nécessaires pour relier les éléments du système sont appelées accouplements. Ils sont souvent rares, il vaut donc la peine de s'en approvisionner.
"Standard Climate" est une entreprise climatique professionnelle, prête à mettre en œuvre des solutions à tous les problèmes d'équipements climatiques et autres équipements d'ingénierie sur une base clé en main. Nous réaliserons un cycle complet de travaux : sélection des équipements, conception, installation, livraison et maintenance. Sur le site airclimat.ru, vous pouvez envoyer une candidature. Appelle maintenant: +7(499) 350-94-14
... Soumettez votre candidature
Qu'est-ce que SNiP ?
Les règles de conception et d'installation des systèmes d'alimentation en chaleur, de ventilation et de climatisation sont décrites en détail dans SNiP, qui est un ensemble de documents réglementaires pour la construction. En plus des codes et réglementations du bâtiment, SNiP décrit également les mesures sanitaires, de sécurité incendie et environnementales qui doivent être respectées lors de l'exploitation de tels systèmes.
Bien entendu, en plus du SNiP, du chauffage, de la ventilation et de la climatisation, il existe également toute une liste de SNiP, SanPiN, GOST, ainsi que d'autres documents décrivant les exigences pour le respect des dimensions, tolérances, mesures de sécurité et certains conditions d'hygiène. Lors de l'élaboration d'un projet d'un système particulier, il est très important de respecter les normes et les règles données dans les documents. Par conséquent, vous devez vous familiariser plus en détail avec SNiP. Il existe différents SNiP, qui révèlent des règles importantes pour la conception et l'installation des systèmes de chauffage, de climatisation et de ventilation.
Par exemple, il existe de telles versions de documents :
- 2.04 05 91 chauffage, ventilation et climatisation : contient les exigences de sécurité incendie pour ces systèmes.
- 41-01-2003 : décrit les normes sanitaires, environnementales et de sécurité incendie des systèmes d'alimentation en chaleur. Il s'agit d'une version plus récente.
En observant la coentreprise de chauffage, de ventilation et de climatisation lors des travaux de développement et d'installation du projet, vous pouvez être sûr de la qualité et de la fiabilité du système équipé. Mais il ne suffit pas de concevoir correctement le système. Il est également important de l'utiliser correctement. À ces fins, un manuel d'instructions a été élaboré pour le fonctionnement du système de chauffage et de ventilation, qui établit un certain nombre d'exigences pour l'utilisation du réseau de chauffage, les tests, les démarrages, ainsi que les ajustements de la structure.
Technologie de séquence d'installation du système de chauffage
Lors de l'installation de systèmes de chauffage, il faut s'assurer :
exécution précise des travaux conformément au projet et aux instructions de SNiP; densité des connexions, résistance des fixations des éléments du système; verticalité des contremarches ; respect des pentes de la distribution et des sections principales; absence de courbure et de plis dans les sections droites des pipelines; fonctionnement fonctionnel des vannes d'arrêt et de commande, des dispositifs de sécurité et de l'instrumentation ; la possibilité de retirer l'air, de vider le système et de le remplir d'eau ; fixation fiable des équipements et des protections de leurs pièces rotatives.
Lors de l'installation du CO, la séquence de travail suivante est appliquée :
- déchargement, prélèvement, livraison des tuyaux et des unités de chauffage sur le lieu d'installation;
- installation de canalisations principales;
- installation d'appareils de chauffage;
- installation de colonnes montantes et de connexions;
- test du système.
L'installation des canalisations principales est réalisée après la disposition des ensembles de montage sur les supports et leur accrochage aux structures du bâtiment en assemblant les assemblages sur du lin et du plomb rouge ou en joignant les assemblages avec leur soudage ultérieur. Ensuite, les lignes sont vérifiées et fixées sur des supports et des cintres.
Après avoir assemblé les canalisations principales, les colonnes montantes et les branches leur sont connectées à l'équipement. Tout d'abord, les unités de chauffage sont installées en place et vérifiées par niveau et fil à plomb, puis les unités de chauffage sont connectées à l'aide d'un insert interplancher. Les éléments chauffants sont reliés aux inserts interplanchers par filetage ou par soudage.
Composants obligatoires
Les symboles suivants seront utilisés pour calculer un système de chauffage forcé :
- "ST" - colonne montante d'eau OS ;
- "GST" - la colonne montante d'eau principale du système d'exploitation;
- "ГВ" - branche horizontale;
- "K" - compensateur.
Le système de chauffage dans son ensemble sera appelé "OS".
Les schémas nous présentent le système de chauffage avec les marquages ci-dessus. Sur le plan les OS sont représentés par des points.
Leur diamètre est d'environ 2 mm. Les systèmes de chauffage en coupe, ses dessins ou schémas sont reproduits aux échelles suivantes :
- Installations de ventilation et de chauffage Implantation, plan - 1 à 400, 1 à 800
- Coupes et plans - 1 à 50, 1 à 100 ;
- Coupes et plans - 1 sur 100, 1 sur 200

Schéma du circuit de chauffage
Lors de la conception détaillée des données ci-dessus, des échelles sont utilisées - 1 à 2, 1 à 5, 1 à 10. Les systèmes d'exploitation ne sont pas conçus séparément. Plus précisément, leur image séparée n'est pas trouvée. Le plus souvent, un dessin, un schéma, combine une image d'un système de chauffage, d'un système de ventilation et d'un système de climatisation intérieur.
Installation de types de chauffage de base
- Chauffage par eau chaude. L'élément principal ici est le chauffe-eau, mais lors de l'installation, une plus grande attention est accordée aux conduites d'eau. Ils peuvent être n'importe quoi, du fer au plastique mince.
- Chauffage à la vapeur chaude. Pour ce type, il est nécessaire d'installer un générateur de vapeur et des canaux de système à travers lesquels la vapeur chaude s'écoulera. Il peut s'agir de tuyaux en acier avec radiateurs, qui seront sélectionnés lors de la conception du système.
- Chauffage à air pulsé. Agit sur le principe du conditionnement. L'air entrant dans l'appartement passe par le radiateur.
- Chauffage électrique. L'installation de ces systèmes est assez compliquée, ils sont plus coûteux à travailler que d'autres.
Système à deux tuyaux


La composition d'un tel système de chauffage comprend des tuyaux d'alimentation et d'évacuation. Le liquide de refroidissement s'écoule par le tuyau d'alimentation vers les radiateurs connectés en parallèle. Par la sortie (retour), le liquide qui a dégagé de la chaleur retourne dans la chaudière. Ce système est bien adapté pour un immeuble à appartements.Mais, malgré tous les avantages, il ne convient pas à tous les objets, car il nécessite une infrastructure développée. Un type de système à deux tuyaux est un câblage de collecteur.
Lors de l'installation de ce type de système de chauffage, il est préférable de poser le tuyau de retour le long du sol. S'il y a des obstacles sur le chemin, comme des portes, vous pouvez utiliser une entretoise sous le sol ou les contourner avec un tuyau en U. Lors de l'utilisation d'un joint sous le plancher, il est impossible de permettre la présence de joints dans cette zone. Sinon, si une fuite se produit, son élimination sera considérablement compliquée.
Le routage supérieur est effectué sous le plafond à une distance de 0,4 à 0,5 mètre. Afin de ne pas gâcher l'aspect des pièces d'habitation, le câblage peut se faire sous un faux plafond ou dans les combles. Dans ce cas, une isolation thermique poussée du parcours est réalisée afin d'éviter des déperditions de chaleur importantes avec une forte baisse de la température extérieure. Le tuyau d'alimentation peut passer sous les rebords de fenêtre ou sur des appareils de chauffage. Mais dans ce cas, le système se réchauffera plus lentement. L'inconvénient peut être minimisé en installant un vase d'expansion.
Le système de chauffage à deux tuyaux atteint la plus grande efficacité énergétique dans les bâtiments à deux étages ou plus. Ceci est obtenu grâce à la plus grande différence de hauteur entre l'équipement de la chaudière et les appareils de chauffage. Il augmente la circulation du liquide de refroidissement dans la canalisation, entraînant une combustion plus complète du combustible dans la chaudière.


Le liquide de refroidissement de la chaudière est fourni par une colonne montante verticale, puis le long d'une canalisation inclinée jusqu'aux radiateurs de chauffage. Le fluide caloporteur excédentaire est évacué dans le vase d'expansion. Lors de l'utilisation du câblage inférieur, le tuyau d'arrivée est posé au niveau du radiateur ou au-dessus du sol.
Le principal inconvénient des communications avec un câblage inférieur est la forte probabilité d'encombrement aérien dans le pipeline.
Pour éliminer ce défaut, les radiateurs doivent être équipés de grues Mayevsky. Une alternative est la pose de tuyaux d'air spéciaux, qui assurent l'évacuation de l'air dans la colonne montante et une évacuation ultérieure à travers le vase d'expansion.
Système monotube "Leningradka"


Une caractéristique d'un système de chauffage monotube est une connexion en série de radiateurs. Le liquide de refroidissement se déplace le long d'une boucle annulaire. Au fur et à mesure qu'il progresse, il se refroidit, de sorte que le système monotube ne permet pas un chauffage uniforme de toutes les pièces. "Leningradka" est mal adapté aux grands bâtiments. Dans de telles installations, il est préférable de combiner des systèmes à un et deux tuyaux. Le câblage des appartements individuels est réalisé au moyen d'un système à deux tuyaux et à l'intérieur d'un étage - un système à un tuyau.
Lors de l'installation d'un circuit monotube, les deux types de câblage peuvent être utilisés. Le plus bas implique la pose horizontale du pipeline le long du sol. Ensuite, les tuyaux montent aux radiateurs. Ce câblage est facile à régler. Si nécessaire, par exemple, en cas de fuite, il est aisé de le refermer complètement.
Avec le câblage supérieur, le liquide de refroidissement est acheminé jusqu'au point le plus élevé de la conduite principale de chauffage, d'où il est déjà distribué aux colonnes montantes. Le routage supérieur permet un mouvement fluide plus rapide et est bien adapté aux systèmes de circulation naturelle.
Sections de contournement
Quel que soit le câblage utilisé, lors de l'installation du système de chauffage, des sections de dérivation sont toujours réalisées. Dans les schémas monotubes, ils sont effectués à l'aide de tuyaux de diamètre inférieur à celui du tuyau d'alimentation. De plus, dans de telles zones, il est possible d'installer des équipements d'étranglement - des vannes thermostatiques.
Étant donné que dans un système de chauffage à un tuyau, la chaleur du liquide de refroidissement est distribuée différemment que dans un système de chauffage à deux tuyaux, il est nécessaire de s'assurer que les radiateurs sont correctement connectés. Les appareils de chauffage situés dans les pièces les plus sollicitées en chaleur sont d'abord raccordés au tuyau d'alimentation.Un circuit doit avoir une puissance thermique ne dépassant pas 12 kW. De même, une très forte différence de température à l'intérieur d'un circuit ne doit pas être tolérée.
Le schéma de Tichelman
Le schéma de Tichelman est une sorte de système à deux tuyaux. Son deuxième nom passe par chevauchement. Il est utilisé dans des bâtiments de grande surface, pour chauffer des locaux industriels, des hangars, des entrepôts, etc. Il se distingue du schéma bitube habituel par la présence de dispositifs de restriction sur le tuyau d'alimentation et de retour. Ils assurent une répartition uniforme des débits vers tous les radiateurs. Les éléments de constriction de l'alimentation et du retour sont montés dans une image miroir.
Le premier radiateur est raccordé à l'aide du tuyau de sortie de plus petit diamètre. Le diamètre augmente progressivement. Le plus grand jeu de tuyauterie est utilisé pour connecter les tuyaux d'alimentation et de retour au tout dernier radiateur.
Circuit collecteur (faisceau)


Avec un circuit collecteur, chaque radiateur est connecté indépendamment, ce qui permet de réguler la température de chaque radiateur du système. Le collecteur (peigne) est l'élément le plus important. Il s'agit essentiellement d'un tuyau de grand diamètre, dans lequel le nombre requis de sorties et une entrée sont montés.
À travers les sorties, de petits circuits sont connectés au collecteur, dont chacun alimente un seul radiateur. Chaque circuit peut avoir des paramètres de chauffage différents. Dans ce cas, une flèche hydraulique est utilisée - un type de collecteur avec un grand volume interne.
Dans un tel système, la chaudière chauffe en permanence le fluide caloporteur circulant dans le circuit primaire. Le prélèvement d'eau de la flèche hydraulique s'effectue à différentes distances des découpes des contours, ce qui permet d'obtenir différentes valeurs des modes de chauffage. Le système avec une flèche d'eau est bien adapté aux maisons où les radiateurs traditionnels et le chauffage par le sol sont utilisés comme appareils de chauffage. Si nécessaire, chaque circuit peut être équipé de son propre équipement de pompage. Dans ce cas, il n'est pas nécessaire de prendre en compte les valeurs de perte de charge.
Essais hydrauliques
Après l'installation du système de chauffage, quel que soit le schéma et le câblage utilisés, il est obligatoire de le mettre sous pression, ou des tests hydrauliques, qui sont un test de fonctionnement.
Le test de pression commence par le remplissage du système de chauffage avec de l'eau. Après cela, la pression à l'intérieur monte à un niveau dépassant les paramètres de fonctionnement et est maintenue pendant un certain temps. Le contrôle est effectué à l'aide d'un manomètre.
Si le système est installé correctement, la pression à l'intérieur restera inchangée. Une diminution de cet indicateur indique que les connexions fuient et que le fluide fuit. Si les tests montrent une fuite, toutes les connexions sont vérifiées, les défauts sont réparés et le test de pression est répété.
Détermination du schéma de chauffage axonométrique
L'axonométrie est l'une des branches du dessin appliqué qui étudie, examine et offre la possibilité d'obtenir des images suffisamment précises de n'importe quel objet en deux ou trois projections. La projection axonométrique rectangulaire se produit lorsque les lignes qui projettent l'image d'un objet sont situées perpendiculairement au plan de projection axonométrique. La projection rectangulaire comprend isométrique et dimétrique. Si l'angle de projection n'est pas de 90 °, une telle projection est appelée axonométrie oblique. Il comprend également des projections dimétriques et trimétriques frontales.


Câblage du collecteur en projection axonométrique oblique
Il s'ensuit qu'un schéma de chauffage axonométrique est tout schéma de tout chauffage d'un bâtiment à plusieurs ou petits étages, réalisé en axonométrie, et non dans un seul plan.Cela permet de visualiser le câblage et les autres éléments du système de chauffage en termes réels. Avec cette approche d'affichage des éléments chauffants, la projection de chaque objet s'effectue comme suit :
- L'élément est situé sur le diagramme selon les trois axes de coordonnées ;
- Le "plan de l'image" est défini - l'élément sera projeté dessus. Dans ce cas, le "plan de l'image" ne doit pas être parallèle à l'un des axes de coordonnées ;
- Le nœud ou l'élément projeté est complètement transféré dans le diagramme.
Les exigences relatives à l'élaboration de dessins de chauffage et d'autres systèmes d'un bâtiment résidentiel ou industriel sont définies dans GOST 21.602-2003. Tous les éléments chauffants et assemblages conformes à GOST ont leurs propres désignations: ce sont des marquages et des numéros de série inclus dans le dessin. Les conventions suivantes sont utilisées:
| Élément ou nœud | Marquage |
| Colonne chauffante | St |
| Colonne chauffante principale | TPS |
| Compensateur | À |
| Tuyauterie horizontale | GW |
| Thermomètre | T |
| Manomètre | R |


Fragment de GOST 21.206-93 sur la désignation des tuyaux et des connexions de pipeline
Selon GOST 21.206-93, les systèmes de pipelines sont indiqués graphiquement. Cela s'applique à ces nœuds:
- Canalisation commune ;
- Élévateur vertical orienté vers le bas ;
- Élévateur vertical, dirigé vers le haut ;
- Canalisation flexible ;
- Traversée de canalisation sans connexion ;
- Connexion simple du pipeline ou de ses éléments ;
- Le raccordement de la canalisation ou de ses éléments est à brides;
- Connexion filetée d'accouplement;
- Accouplement à déconnexion rapide;
- Prise de courant.
Les désignations des vannes, radiateurs et autres éléments sont indiquées dans GOST 21.205-93. Par exemple, tels que :
- Lavabo;
- Bain de pieds;
- Toilette;
- Thermostat de chauffage ;
- Filet de douche;
- Sèche-linge.


Fragment de GOST 21.205-93 sur la désignation des vannes
Aucune axonométrie ne peut être affichée à l'aide des moyens standard autorisés dans GOST, et il existe des exigences et des autorisations supplémentaires pour cela. Par example:
- Les élévations de hauteurs et de niveaux peuvent être placées à l'extérieur de l'élément ou indiquées directement sur les contours des objets ;
- Un dessin axonométrique d'un circuit de chauffage avec un câblage inférieur ou de tout autre circuit peut être réalisé à l'échelle 1:50, 1:100 ou 1:200.
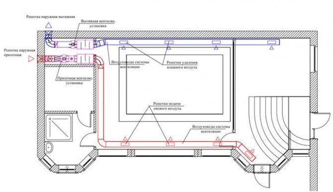
Technologie de séquence d'assemblage du système de ventilation
Les travaux d'installation et de montage des systèmes de ventilation et de climatisation comprennent les principaux processus suivants exécutés séquentiellement :
- préparation de l'installation pour l'installation de systèmes de ventilation;
- réception et stockage de conduits d'air et d'équipements;
- achèvement des conduits d'air, des raccords et des pièces de ventilation; sélection et réalisation des équipements de ventilation et, si nécessaire, réalisation d'un audit de pré-installation des équipements ;
- assemblage d'unités; livraison des ensembles, pièces et éléments sur le site d'installation ; installation de moyens de fixation;
- installation d'équipements;
- assemblage élargi des conduits d'air;
- installation de conduits d'air principaux;
- fabrication et installation de mesures;
- rodage des équipements installés;
- réglage et régulation des systèmes ;
- mise en service des systèmes.
Lors de l'installation de conduits d'air métalliques, les exigences de base suivantes doivent être respectées : ne pas laisser les conduits d'air reposer sur l'équipement de ventilation ; les conduits d'air verticaux ne doivent pas s'écarter du fil à plomb de plus de 2 mm par 1 m de longueur de conduit ; Les brides de conduit et les joints de plaquettes ne doivent pas être encastrés dans les murs, les plafonds, les cloisons, etc.
L'installation des conduits d'air, quels que soient leur configuration et leur emplacement, commence par le marquage et l'inspection des sites d'installation afin d'identifier les moyens les plus pratiques de transporter et de soulever les conduits d'air et les fixations manquantes. Ensuite, les moyens de levage sont installés au niveau des marques de conception, les pièces de conduit d'air sont livrées à la zone de travail d'installation et les pièces encastrées manquantes sont abattues.En outre, des blocs agrandis sont assemblés à partir de pièces individuelles conformément à la liste de sélection avec l'installation de pinces pour suspendre les conduits d'air.
Lors du montage sur les brides, assurez-vous que les joints entre les brides assurent une connexion étanche et ne dépassent pas dans le conduit.
L'installation des équipements de ventilation est effectuée conformément aux cartes technologiques standard dans l'ordre suivant : vérifier l'intégralité de la livraison ; faire un audit de pré-assemblage; livré sur le lieu d'installation ; soulevé et installé sur une fondation, une plate-forme ou des supports ; vérifier l'exactitude de l'installation, redresser et fixer dans la position de conception; vérifier les performances. Lors de la fourniture d'équipements de ventilation en vrac, un certain nombre d'opérations d'assemblage et d'agrégation d'équipements s'ajoutent aux opérations technologiques répertoriées, qui peuvent être effectuées directement sur le site d'installation ou sur le site d'assemblage. Méthode d'installation et méthodes de montage de l'équipement de ventilation.
Systèmes naturels et artificiels
La ventilation peut créer un flux d'air de manière naturelle ou forcée. Le mouvement naturel des masses d'air est créé par les différences de température et de pression. Dans les systèmes forcés, le débit d'air est assuré par des équipements de ventilation.
Le schéma le plus simple d'un système de ventilation naturelle est présenté dans des bâtiments typiques conventionnels. En eux, les ouvertures des portes et des fenêtres assurent la circulation de l'air. L'air est évacué par des conduits de ventilation et des hottes situés, en règle générale, dans la cuisine et dans les salles de bains. La ventilation naturelle n'a pas de contrôle automatique, elle est fiable, durable et facile à installer. Le principal inconvénient de ces systèmes est la dépendance à des facteurs externes sur lesquels une personne ne peut pas influencer. Il est impossible de réglementer un tel système.
Dans le cas où la ventilation naturelle ne peut pas fournir un flux d'air normal dans les bâtiments, des schémas artificiels ou forcés sont utilisés. Ils comprennent divers éléments - ventilateurs, filtres, aérothermes, humidificateurs, etc., permettant de fournir des valeurs normales de microclimat pour tous les locaux, en fonction de leur destination, qu'elle soit résidentielle, administrative ou industrielle.
Systèmes d'alimentation et d'échappement


Ces systèmes diffèrent dans la direction du mouvement de l'air. La ventilation d'alimentation fournit de l'air à l'intérieur des locaux. Selon les éléments qu'il contient, l'air fourni peut subir une préparation supplémentaire - filtration, humidification ou déshumidification, etc. La tâche des systèmes d'échappement est d'éliminer l'air pollué du bâtiment.
En règle générale, une ventilation combinée d'alimentation et d'extraction est utilisée pour assurer un microclimat normal dans un bâtiment résidentiel ou des locaux industriels.
Tous les éléments des systèmes combinés doivent être soigneusement équilibrés les uns avec les autres. Sinon, une surpression ou une pression trop faible peut se former et l'effet d'une « porte qui claque » apparaîtra dans la pièce.
Systèmes locaux et généraux
La ventilation locale est le plus souvent utilisée pour les locaux industriels. L'option d'approvisionnement local permet de fournir un approvisionnement local en air pur, et l'option d'extraction permet d'éliminer l'air pollué des endroits où s'accumulent les substances nocives. Des systèmes d'échappement locaux peuvent être utilisés pour empêcher la propagation de substances toxiques à partir des zones de production dans l'ensemble de l'installation. Dans les conditions domestiques, la ventilation locale est largement utilisée dans les cuisines sous la forme d'une hotte aspirante.
Les systèmes d'échange général ou général sont utilisés pour ventiler l'air dans toutes les zones du bâtiment. Les systèmes d'échange général d'alimentation sont le plus souvent complétés par des éléments de filtration et de chauffage de l'air. Les hottes se distinguent par une conception plus simple, car il n'est pas nécessaire de traiter l'air évacué.
Systèmes de composition et de monobloc
Les systèmes de composition sont assez complexes. Ils sont assemblés à partir de composants individuels - un ventilateur, des filtres, des starters, une automatisation, etc. Ils surpassent les monoblocs dans la capacité de ventiler n'importe quel objet. Ils peuvent être installés dans un petit bureau ou un appartement, ainsi que dans des bâtiments publics. De tels systèmes sont bien adaptés aux entrepôts, hangars et locaux industriels.
Leur inconvénient est la complexité de la conception basée sur des calculs professionnels et des dimensions globales. Des systèmes puissants pour les locaux industriels ou les bâtiments de grande surface sont montés dans une chambre de ventilation spécialement équipée. Les systèmes de faible puissance peuvent être montés derrière un faux plafond.
La ventilation monobloc est contenue dans un seul boîtier. Contrairement aux systèmes de composition, il ne fait pratiquement pas de bruit, de sorte que son installation peut être effectuée dans des bâtiments résidentiels sans équipement pour les chambres de ventilation. De tels systèmes diffèrent de la composition et de la facilité d'installation.
Règles pour effectuer l'axonométrie de la ventilation d'alimentation et d'échappement
Axonométrie de ventilation.
Les schémas de ventilation sont réalisés par des ingénieurs en vue isométrique frontale. Cela nous permet d'évaluer les communications en trois dimensions, ce qui est dû au troisième axe. Cette caractéristique distingue le schéma de ventilation axonométrique des plans et des coupes. Vous devez commencer à dessiner un schéma en choisissant la direction de l'angle de vue par rapport à la pièce ou à l'ensemble de la structure où l'évacuation ou l'afflux sera effectué.
Il est recommandé de choisir la direction du côté qui se trouve en bas du dessin. Si un croquis est en cours, vous pouvez dessiner selon vos besoins. L'essentiel est alors de ne pas oublier la conception correcte de la version finale. Si cela n'est pas fait à temps, alors une partie du projet devra être refaite. Tous les conduits d'air sont représentés par des lignes épaisses continues. Dans ce cas, il convient d'observer certaines caractéristiques:
- un canal parallèle à l'angle de vue sélectionné doit être exécuté sous la forme d'une ligne horizontale;
- les conduits d'air verticaux sur un diagramme axonométrique sont représentés par des lignes verticales ;
- si le canal est placé sur le plan perpendiculairement à l'angle de vue sélectionné, il doit être appliqué à la feuille à un angle de 45 degrés;
- conformité totale avec l'échelle.
Un certain nombre d'exigences sont mises en avant pour le dessin qui doit être remplie par le concepteur.
Chaque conduit est identifié par une ligne d'extension. En même temps, le diamètre (taille de la section) et le débit d'air sont indiqués. De plus, la hauteur est indiquée à différentes parties du système. Le schéma de ventilation axonométrique peut contenir des hottes locales - parapluies. Ils sont affichés avec une légende. Les ventilateurs, diffuseurs et autres éléments sont également représentés par des symboles. L'équipement est marqué par des numéros.
Avant de chauffer dans le garage, vous devez bien l'isoler, de préférence à l'extérieur.
Quel est le câblage de chauffage dans le garage, lisez cet article.










