Quand avez-vous besoin d'un système de ventilation dans la piscine ?
La ventilation de piscine résout 3 problèmes : elle fournit de l'air pour la respiration, élimine l'humidité et les odeurs. Un déshumidificateur n'élimine que l'humidité et l'air reste vicié. Mais:
Un déshumidificateur pour piscine avec miroir de 15 m2 est moins cher qu'une ventilation. Tout est dans le prix de départ. Le coût initial de tout système de ventilation adéquat: 300 000 roubles. « Construction complète ». Un déshumidificateur pour une piscine de 15 m2 - le même Danvex DEH-600 coûtera moins cher - 170 000 roubles. Rentable!
La ventilation dans une piscine avec miroir d'eau > 25 m2 sera moins chère et plus efficace qu'un déshumidificateur. Si le miroir d'eau fait moins de 25 m2, installez un déshumidificateur.
Les principaux problèmes et leurs solutions
Le problème avec toute piscine avec une grande surface d'eau est l'excès d'humidité. Il est éliminé de deux manières :
- assimilation par l'air entrant - réalisée en remplaçant l'air humide par de l'air purifié et préparé de la rue. A cet effet, une ventilation forcée est utilisée dans la piscine.
- Condensation et déshumidification - le processus utilise une unité spécialisée qui, en utilisant une température élevée, élimine l'humidité de l'air, la redirigeant vers le système.
La première méthode est justifiée pour les grands objets, la seconde convient aux petits espaces privés.
Les fortes fluctuations de la température de l'air affectent négativement la santé des visiteurs. La différence idéale entre les indicateurs de chauffage de l'eau et de l'air est de 2 à 4 0С. Pour résoudre ce problème, nous utilisons des équipements de différents types :
- l'unité de récupération fournira un chauffage stable. Mais sa puissance est faible et dépend de la température ambiante ;
- un radiateur électrique qui élève la température aux valeurs requises, mais le coût élevé de l'électricité rend son utilisation peu pratique ;
- un système équipé d'un équipement d'échange de chaleur à eau est capable d'élever la température en pompant de l'air chauffé. L'équipement est monté directement dans la boîte de conduit et connecté à l'alimentation électrique. Le vecteur d'énergie peut provenir d'un système centralisé ou d'une chaudière locale. De cette façon, vous pouvez non seulement chauffer, mais aussi refroidir la pièce en abaissant la température du réfrigérant.
L'application de l'automatisation garantira que le paramètre spécifié est précis. Le système est contrôlé de diverses manières pour obtenir des performances optimales.
L'air stagnant entraînera les conséquences irréversibles du développement de bactéries et la formation de moisissures. Ces agents pathogènes sont difficiles à gérer, la ventilation doit donc fonctionner en permanence, même un arrêt temporaire provoquera la concentration d'odeurs désagréables et une forte augmentation de l'humidité. La solution à ce problème est l'échange d'air forcé avec une puissance et des performances calculées. Pour les grandes structures, un système composé de plusieurs composants parallèles est utilisé. Ils sont inclus de manière séquentielle lorsqu'il est nécessaire d'ajuster les principaux indicateurs.
La ventilation doit être dimensionnée et installée par des spécialistes. Cette approche assurera l'efficacité et l'économie du système. Les ingénieurs et les équipes de montage ont l'expérience et les connaissances nécessaires pour mettre en œuvre des projets complexes et des solutions techniques non standard.
Comment l'humidité peut-elle être éliminée par ventilation? Principe d'opération
En été, lorsque l'air extérieur est humide, nous soufflons simplement dans l'espace piscine avec un volume d'air accru. À ces fins, nous utilisons des unités d'alimentation et d'échappement séparées.
En hiver, lorsque l'air extérieur est froid et sec, nous le réchauffons simplement dans l'unité d'alimentation et l'injectons dans la piscine. Les jets d'alimentation sont dirigés vers le miroir d'eau pour maximiser l'absorption d'humidité. Nous accrochons les unités d'alimentation et d'évacuation sous le plafond du garage ou dans tout autre local technique. Sous le plafond de la piscine, nous déployons un réseau de conduits d'aération par lesquels nous évacuons l'air humide vers la rue.
En hiver, la vidange de la piscine nécessite 7 fois moins d'air qu'en été. La centrale de traitement d'air fonctionne au minimum en hiver, aucun récupérateur n'est donc nécessaire.
Ainsi, les unités de ventilation pour piscines fonctionnent en 2 modes - Eté et Hiver.
L'été: L'air extérieur est chaud et humide, il est donc fourni à la salle de billard sans chauffage. La teneur en humidité en été est très élevée - 12,8 g / kg. Par conséquent, afin d'éliminer l'humidité de la piscine avec l'air extérieur déjà humide, vous devez souffler la salle de la piscine avec un grand volume d'air, c'est-à-dire ne prenez pas la qualité, mais la quantité.
L'hiver: La situation est inversée. L'air extérieur est froid et doit être réchauffé pour l'amener à la piscine. Mais l'essentiel est qu'il soit très sec. Son taux d'humidité n'est que de 0,39 g/kg, c'est-à-dire air d'hiver 32 fois plus sec qu'en été, ce qui signifie que le volume de cet air est beaucoup moins nécessaire.
par example, pour déshumidifier l'air dans une piscine avec une surface d'eau de 25 m2, en été, vous avez besoin d'environ 3000 m3 / h d'air et en hiver - seulement 400 m3 / h., ce qui est 7,5 fois plus petit.
Combien coûte une ventilation de piscine clé en main ?
L'entreprise reçoit des prix différents. Dans le tableau ci-dessous, j'ai donné les prix optimaux pour le marché. Je suis designer et je gagne de l'argent grâce à la conception. J'affiche les prix non pas dans le but de faire pression sur les entreprises d'installation, mais dans le but que mes Clients comprennent l'ordre des prix et ne s'évanouissent pas.
Contrairement aux mêmes déshumidificateurs, le coût des équipements de ventilation ne dépend pratiquement pas de la taille de la piscine. Le principal prix réside dans le branchement du réseau de conduits d'air et le coût des travaux d'installation.
| Espace miroir d'eau | |||||
| Le coût | 15 m2 | 21 m2 | 28 m2 | 35 m2 | 40 m2 |
| Équipement | 180 000 | 220 000 | 230 000 | 250 000 | 280 000 |
| Matériaux (modifier) | 110 000 | 140 000 | 160 000 | 190 000 | 210 000 |
| Travail | 70 000 | 80 000 | 80 000 | 110 000 | 140 000 |
| Le total | 370 000 | 440 000 | 470 000 | 550 000 | 630 000 |
Il existe plus de 20 marques d'équipements de ventilation sur le marché avec des politiques de prix différentes. Le tableau montre le système de ventilation de piscine le plus simple et le plus efficace basé sur les équipements NED et Breezart. Sans projet, vous ne pouvez pas être sûr de la justesse des décisions et les installateurs ne peuvent pas assembler le système.
Cout du projet de 25 000 à 36 000 roubles.
CComparaison avec les séchoirs : Oui, dans certains cas un déshumidificateur sera moins cher qu'une ventilation Par exemple, dans les piscines d'une surface d'eau de 25 m2, le déshumidificateur est 20% moins cher. Mais lors de l'installation d'un déshumidificateur, dans tous les cas, vous devrez installer un système de ventilation simple pour une ventilation banale de la pièce. En conséquence, le système combiné de ventilation et de déshumidification sera beaucoup plus coûteux que la ventilation complète conçue pour éliminer l'humidité. Dans les piscines avec un miroir de 35 m2 ou plus, le coût d'un déshumidificateur et d'une ventilation est le même, mais la fonctionnalité du déshumidificateur est bien moindre.
Sélection du système de ventilation de la piscine
Pour la ventilation de la piscine, vous pouvez utiliser avec succès des unités de ventilation de différentes configurations, dont le coût peut différer plusieurs fois. L'option la plus simple et la moins chère est une centrale de traitement d'air conventionnelle et un ventilateur d'extraction synchronisé avec elle en termes de vitesse de rotation. La réduction de l'humidité est réalisée par un sécheur d'air autonome (en été, l'assimilation de l'humidité par l'air extérieur n'est pas toujours possible). L'inconvénient d'un tel système est une consommation d'énergie élevée, par exemple, pour une piscine d'une surface d'eau de 20 m², un débit d'air de 600 à 800 m³ / h sera nécessaire, ce qui entraînera une consommation d'environ 13 kWh en hiver . Les centrales de traitement d'air spécialisées modernes peuvent réduire la consommation d'énergie plusieurs fois, mais un tel système de ventilation coûtera plus cher.L'économie d'énergie est assurée non seulement par des systèmes de récupération à plusieurs étages (plusieurs cascades d'un récupérateur à plaques + pompe à chaleur / sécheur d'air), mais également par des réglages du système modifiables de manière flexible en fonction des paramètres d'air extérieur et du mode de fonctionnement sélectionné. Même avec des tarifs de gaz et d'électricité relativement bas, le coût de possession (démarrage + exploitation) d'un système d'approvisionnement et d'extraction d'air moderne est susceptible d'être inférieur à celui d'un système à passage unique peu coûteux. Notez que le coût de la centrale de traitement d'air peut augmenter en raison de fonctions supplémentaires telles que le refroidissement de l'air ou le chauffage de l'eau de la piscine avec un excès de chaleur généré lorsque le refroidisseur fonctionne en mode déshumidification.
Les unités de ventilation conventionnelles peuvent-elles être utilisées pour la ventilation de la piscine ? S'il s'agit d'un système d'alimentation qui ne reçoit que de l'air extérieur, alors il n'y a pas beaucoup de différence. Cependant, les centrales de traitement d'air et les centrales de traitement d'air avec chambre de mélange doivent avoir une protection anti-corrosion pour les échangeurs de chaleur, car le transport d'air chaud et humide peut entraîner la corrosion des surfaces métalliques non traitées. Ainsi, par exemple, un récupérateur à plaques doit être constitué d'un matériau inerte tel que le polypropylène, mais si un récupérateur traditionnel en aluminium est utilisé, celui-ci, comme les autres échangeurs de chaleur (chauffe-eau, évaporateur, condenseur), doit avoir un protection anticorrosion.
Modes de fonctionnement de la centrale de traitement d'air
Dans les centrales de traitement d'air spécialisées modernes avec un système d'automatisation numérique, tous les modes de fonctionnement sont configurés une fois lors de la mise en service. A l'avenir, l'utilisateur n'a plus besoin de modifier quoi que ce soit dans les paramètres du système : pour le contrôler, il lui suffira de basculer entre les modes de fonctionnement de travail et de veille (cela peut être fait soit à partir de la télécommande, soit à l'aide d'un interrupteur conventionnel à cet effet).
Si une unité de ventilation avec un système d'automatisation simplifié ou un modèle non prévu à ces fins est utilisé pour la ventilation de la piscine, alors l'utilisateur devra contrôler indépendamment la vitesse du ventilateur et le mode de fonctionnement du chauffage, régler l'humidité de l'air en fonction de la saison et modifiez les autres paramètres. Et un tel système de ventilation, en raison de réglages sous-optimaux, ne permettra très probablement pas de maintenir un microclimat confortable avec la consommation d'énergie la plus faible possible.
Les modèles spécialisés de centrales de traitement d'air pour piscines fonctionnent selon deux modes principaux:
- En mode travail
(peut aussi être appelé Mode Jour). Dans ce mode, l'unité de ventilation fonctionne pendant le fonctionnement de la piscine, lorsqu'il y a des personnes dans la pièce, tandis qu'une quantité prédéterminée d'air extérieur est constamment fournie à la pièce (pas inférieure à la norme sanitaire). La déshumidification peut être réalisée à la fois par assimilation de l'humidité à l'air extérieur, et de manière combinée (assimilation + déshumidification par condensation de l'air). Dans le second cas, la consommation électrique sera plus faible. - Mode veille
(peut aussi être appelé Mode Nuit). Dans ce mode, l'unité de ventilation fonctionne lorsqu'il n'y a personne dans la pièce. L'air extérieur n'est pas fourni à la pièce, l'unité de ventilation fonctionne en mode recirculation (cela permet d'économiser de l'énergie sans la gaspiller pour chauffer l'air extérieur). Dans le même temps, l'automatisme surveille en permanence l'humidité de l'air et, lorsqu'elle dépasse un niveau prédéterminé, met en marche le compresseur du circuit frigorifique pour la déshumidification par condensation (si la centrale de traitement d'air est équipée d'un déshumidificateur), ou fournit de l'air extérieur à assimiler l'humidité (s'il n'y a pas de déshumidificateur). La centrale de traitement d'air peut avoir un mode de ventilation réglable en mode veille - une fois par jour, de l'air frais est brièvement fourni dans la pièce afin que les odeurs désagréables ne s'y accumulent pas.
Certains modèles ont mode d'urgence
travail.En cas de dysfonctionnement d'un déshumidificateur intégré ou autonome et que l'humidité de l'air dépasse un niveau critique, l'alimentation en air extérieur est augmentée pour assimiler l'humidité.
Pour plus de détails sur chaque mode de fonctionnement et les caractéristiques de l'équipement, vous pouvez trouver dans la documentation sur les sites des fabricants.
Variantes de solutions techniques pour la ventilation de piscine
Ci-dessus, nous avons déjà brièvement évoqué les différences entre les unités de ventilation conventionnelles et les modèles spécialisés conçus pour organiser la ventilation des piscines. Nous allons maintenant examiner plus en détail les solutions techniques appliquées en pratique sur la base de divers équipements.
Unité d'alimentation et d'extraction, sécheur d'air autonome.
C'est l'une des options les plus simples et les moins chères. Les unités d'alimentation et d'extraction maintiennent l'apport d'air frais requis par les normes sanitaires dans la pièce, et assurent également le vide requis. L'humidité de l'air est maintenue par un déshumidificateur mural séparé (autonome), qui crée également la mobilité de l'air nécessaire : le ventilateur du déshumidificateur fonctionne en continu et le compresseur est activé par une commande de l'hygrostat lorsque l'humidité de l'air dépasse la valeur définie . En mode veille, la ventilation n'est pas nécessaire et doit être désactivée pour économiser de l'énergie.
Si dans la région où se trouve la piscine, la température de l'air extérieur peut dépasser la température de l'air intérieur pendant une longue période, vous devrez alors utiliser une unité d'alimentation en air avec un refroidisseur au fréon, en collaboration avec KKB.
L'avantage de l'option envisagée est uniquement la possibilité d'utiliser des équipements communs non spécialisés. Il a beaucoup d'inconvénients :
- Contrôle peu pratique : les paramètres doivent être réglés sur deux systèmes indépendants (ventilation et déshumidificateur).
- Un déshumidificateur mural situé dans la salle de billard dégrade le design de la salle et fait beaucoup de bruit lorsque le compresseur est en marche.
- Problèmes d'organisation de la répartition uniforme de l'air dans tout le local piscine, car la mobilité de l'air est assurée par un flux sortant d'un point (un déshumidificateur mural ne permet pas de lui raccorder des conduits d'air pour répartir le flux d'air).
- Consommation d'énergie élevée en raison du manque de récupération de chaleur.
Il est à noter qu'avant l'avènement des déshumidificateurs muraux, l'humidité n'était réduite que du fait de l'assimilation de l'humidité par l'air extérieur : le système décrit ici était utilisé dans les piscines, uniquement sans déshumidificateur. Un inconvénient sérieux d'un tel système était la nécessité d'assurer la mobilité aérienne avec de l'air soufflé, ce qui entraînait des pertes d'énergie colossales pendant la saison froide. Si les performances de la centrale de traitement d'air sont réduites à une norme sanitaire, il existe un risque élevé de condensation sur les fenêtres et dans les coins de la pièce, où l'air ne se mélange pas bien. Ci-dessous, dans le tableau avec les résultats des calculs de consommation d'énergie, l'option sans déshumidificateur est indiquée au numéro 0 pour démontrer l'inopportunité économique d'une telle solution.
Est-il possible de se passer d'un déshumidificateur coûteux si les conditions climatiques permettent à l'air d'admission d'assimiler l'humidité ? Oui, pour cela, il suffit d'utiliser une unité d'alimentation avec une chambre de mélange, comme dans la version suivante.
Unité d'alimentation avec chambre de mélange, unité d'extraction, sécheur d'air autonome.
Si l'unité d'alimentation est équipée d'une chambre de mélange, où l'air extérieur et l'air recirculé seront mélangés dans une proportion donnée, la mobilité de l'air requise peut être fournie par le système de ventilation et le déshumidificateur ne sera nécessaire que pour réduire l'humidité de l'air. en été, lorsque le taux d'humidité de l'air extérieur devient trop élevé.Ainsi, nous nous sommes débarrassés du problème de la répartition uniforme de l'air : le mélange d'air soufflé et repris est alimenté par des distributeurs répartis dans toute la pièce.
Si dans la région où se trouve la piscine, il n'y a pas de périodes (ou elles sont très courtes) où le taux d'humidité élevé de l'air extérieur ne permet pas de réduire l'humidité de l'air par assimilation, alors le déshumidificateur d'air ne peut pas être installé . Cela réduira considérablement le coût global du système. Et les jours où il fait trop chaud et humide dehors, vous ne devez tout simplement pas utiliser la piscine (la surface de l'eau doit être recouverte d'un film pour réduire l'évaporation de l'humidité).
Déshumidificateur de gaine avec mélange d'air extérieur, unité d'extraction.
La raison de la plupart des inconvénients des deux premières options était l'utilisation d'un sécheur d'air autonome. Si, à la place de celui-ci, un sécheur en conduit avec un réchauffeur et la possibilité de mélanger l'air extérieur est installé, alors l'unité d'alimentation peut être abandonnée : tout le traitement de l'air d'alimentation aura lieu dans le séchoir en conduit. Cette option peut déjà être recommandée pour une utilisation dans les petites piscines privées, car en termes de coût, elle est à peu près la même que les deux premières options, mais en même temps elle est dépourvue de tous leurs inconvénients, à l'exception de la forte consommation d'énergie, qui reste exactement le même. En effet, l'ensemble du système est contrôlé à partir d'un seul panneau de commande, et le bruit de l'équipement ne sera pas entendu si le déshumidificateur est situé dans une pièce séparée.
PVU avec séchoir/pompe à chaleur.
Si nous combinons le déshumidificateur de gaine de la version précédente avec une unité d'extraction, nous obtenons une unité de traitement d'air avec un sécheur qui peut fonctionner comme une pompe à chaleur, ce qui permet de multiplier par 3 la consommation d'énergie. Cette possibilité apparaît lorsque le condenseur du sécheur est situé dans le conduit d'évacuation, et l'évaporateur dans le conduit d'alimentation. Le flux d'air chaud chauffe le condenseur, le compresseur transfère la chaleur à l'évaporateur, qui chauffe l'air soufflé. Dans le même temps, la déshumidification fonctionne toujours : lorsque l'air humide est refroidi, une condensation d'humidité se produit sur l'évaporateur (pour plus d'informations sur le fonctionnement du refroidisseur, voir la section Fonctionnement du climatiseur)
Un autre avantage majeur est l'utilisation d'une seule unité pour gérer à la fois l'air soufflé et extrait. Cela permet non seulement d'équilibrer plus facilement la vitesse des ventilateurs d'alimentation et d'extraction pour maintenir le vide requis, mais vous permet également de modifier de manière flexible les modes de fonctionnement de tous les composants pour obtenir un confort et une efficacité énergétique maximum. Dans le PVU, la possibilité de contrôle de scénario est généralement mise en œuvre, lorsque la commutation des modes de fonctionnement est effectuée par une minuterie, les modes de ventilation, de régulation en cascade et autres sont pris en charge. De plus, il est en option possible d'utiliser un refroidisseur pour refroidir l'air soufflé.
PVU avec récupérateur et séchoir/pompe à chaleur.
L'option précédente est presque idéale, mais une pompe à chaleur est utilisée pour chauffer l'air, qui a besoin d'électricité pour fonctionner. Et dans la plupart des régions de Russie, il est plusieurs fois plus rentable de se chauffer au gaz qu'à l'électricité. Si pour obtenir une certaine quantité de chaleur lors de l'utilisation d'une chaudière à gaz, vous devez payer 3 à 4 fois moins que lors de l'utilisation d'un radiateur électrique, alors l'avantage de la pompe à chaleur est perdu et chauffer l'air devient économiquement plus rentable avec un chauffe-eau (la pompe à chaleur génère 2 à 5 fois plus de chaleur, ce qu'elle consomme, la valeur exacte dépend des équipements utilisés et de la température extérieure - plus elle est basse, plus le COP est faible). Dans ce cas, nous recommandons d'utiliser un PVU avec un récupérateur à plaques, qui économise de la chaleur et ne consomme pas d'électricité. Et le compresseur du déshumidificateur ne s'allume que lorsqu'il est nécessaire de réduire l'humidité de l'air ou de le refroidir.
Notez que si la piscine est située dans une région au climat froid, où l'air peut être efficacement déshumidifié en été en assimilant l'humidité, alors un déshumidificateur devient inutile, et il peut être abandonné pour réduire le coût du système. Il serait alors optimal d'utiliser un PVU spécialisé avec un récupérateur à plaques sans sécheur.
Les PVU spécialisés sont généralement équipés de tous les capteurs nécessaires pour surveiller l'état de l'environnement, ce qui leur permet de maintenir les paramètres d'air spécifiés avec une efficacité énergétique maximale. Dans le cadre de cette revue, nous ne pouvons pas parler en détail de toutes les possibilités d'un PVU pour piscines, mais cette information se trouve dans la documentation sur les sites Web des fabricants.
Tableau récapitulatif avec les avantages et les inconvénients des différentes solutions techniques
| № | Solution technique | Bruit | Conception | Distribution air | Refroidissement inf. air | Bilan d'approvisionnement / vous êtes t. | Effet énergétique. | Caractéristiques du |
| 0 | PU à flux direct, VU (sans déshumidificateur) | Risque de condensation sur les fenêtres, consommation d'énergie élevée | ||||||
| 1 | Déshumidificateur autonome PU, VU à flux direct | Bruit du déshumidificateur, difficulté de contrôle, échange d'air assuré. déshumidificateur | ||||||
| 2 | PU avec chambre de mélange, VU, sécheur autonome | Bruit du déshumidificateur, difficile à contrôler | ||||||
| 3 | Déshumidificateur de conduit avec adjuvant externe air., WU | Solution de piscine privée peu coûteuse | ||||||
| 4 | PVU avec sécheur | Une solution équilibrée pour toutes les tailles de piscine | ||||||
| 5 | PVU avec sécheur et récupérateur | Une solution écoénergétique pour toutes les tailles de piscine |
Calcul de la consommation d'énergie de diverses solutions techniques
Lors de la description de toutes les options, nous avons parlé de l'efficacité énergétique - l'un des indicateurs les plus importants d'un système de ventilation de piscine. Pour plus de clarté, nous avons déterminé la consommation d'énergie pour chaque option en hiver à l'aide de l'exemple d'une petite piscine privée avec une surface d'eau de 14 m² et avons résumé ces données dans un tableau. Nous avons calculé la puissance nécessaire pour chauffer l'air extérieur à la température de consigne, ainsi que la puissance totale, qui comprend la puissance du système de chauffage de la piscine (la puissance totale est déterminée par la température et l'humidité de l'air évacué). La différence entre ces deux paramètres s'explique par le fait que l'air fourni a une teneur en humidité pratiquement nulle, par conséquent, d'abord (à l'intérieur de l'unité de ventilation) de l'énergie est dépensée pour chauffer l'air sec, puis pour l'humidifier lors de l'évaporation de l'eau du piscine (l'énergie provient du chauffage de l'eau et du système de chauffage). A noter que la ventilation fonctionne généralement en mode de maintien de la température de consigne à la sortie du canal d'alimentation (pour cette option, les calculs ont été effectués). Cependant, le système de ventilation peut exécuter la fonction de chauffage et fonctionner en mode de maintien de la température de consigne dans la pièce (mode de contrôle en cascade), alors la puissance consommée pour le chauffage sera supérieure à celle indiquée dans le tableau, mais la puissance totale ne sera pas monnaie. Le tableau indique également la puissance totale de veille lorsque la piscine n'est pas utilisée.
Donc, les données initiales:
- Consommation d'air pour organiser la mobilité aérienne nécessaire: 700 m³ / h.
- Consommation d'air selon les normes sanitaires (2 personnes): 160 m³ / h.
- Capacité de déshydratant requise: 2 kg / h.
- Température et humidité intérieures: 30 ° C et 45%.
- Température et humidité de l'air extérieur (pour Moscou): -28 ° C et 84%.
- La surface de l'eau est recouverte d'un film lorsque la piscine n'est pas utilisée.
Tableau avec les résultats du calcul de la puissance requise pour diverses solutions techniques
| № | Solution technique | Échange d'air total | Flux d'air extérieur | Energie thermique ventust. | Débit d'échappement air | Extrait T / φ. air | Puissance thermique totale | Possible. devoir. régime | Puissance en service. dir. |
| 0 | PU à flux direct, VU | 700 m³ / h | 900 m³ / h | 12,3 kW | 800 m³ / h | 30 ° C / 45% | 24,2 kW | 24,2 kW | |
| 1 | PU à flux direct, WU, déshumidificateur | 700 m³ / h (déshumidifié) | 160 m³ / h | 3.1kw | 180 m³ / h | 30 ° C / 45% | 5,4 kW | 0,3 kW | |
| 2 | PU avec chambre de mélange, VU, sécheur | 700 m³ / h | 160 m³ / h | 3.1kw | 180 m³ / h | 30 ° C / 45% | 5,4 kW | 0,3 kW | |
| 3 | Déshumidificateur de conduit avec adjuvant externe air., WU | 700 m³ / h | 160 m³ / h | 3.1kw | 180 m³ / h | 30 ° C / 45% | 5,4 kW | 0,3 kW | |
| 4 | PVU avec sécheur (pompe à chaleur) | 700 m³ / h | 160 m³ / h | 1,2 kW | 180 m³ / h | 23 ° C / 57% | 2,3 kW | 0,3 kW | |
| 5 | PVU avec sécheur (pompe à chaleur) et récupérateur | 700 m³ / h | 160 m³ / h | 1,2 kW | 180 m³ / h | 13 ° C / 90% | 1,4 kW | 0,3 kW |
Régions aux climats froids et chauds
Dans les régions aux climats très froids ou chauds et humides, des options supplémentaires peuvent être nécessaires pour un fonctionnement efficace de l'équipement:
- Si la température de l'air descend en dessous de -20 ° C pendant une longue période, un préchauffage supplémentaire peut être nécessaire.
- Là où il fait chaud et humide en été, comme à Sotchi, des options pour refroidir l'air soufflé seront utiles. À ces fins, diverses solutions techniques peuvent être utilisées: un refroidisseur avec un KKB externe, un sécheur (machine frigorifique) avec un condenseur à distance, et d'autres.
Conseils pratiques
Centrale de traitement d'air avec pompe à chaleur (sécheur d'air)
Pour la ventilation des locaux de la piscine, des équipements spécialisés et des unités de traitement d'air conventionnelles sont utilisés. Dans le second cas, il est possible de réduire considérablement le coût du système, mais faire fonctionner la piscine sans déshumidificateur est risqué, car le condensat qui est tombé peut endommager la décoration de la pièce.
Un système peu coûteux peut être assemblé selon l'option 2: unité d'alimentation + chambre de mélange, unité d'extraction et, en option, un sécheur d'air autonome. Ce système peut être installé par étapes: d'abord, installez le système de ventilation, puis, après le début de l'opération, décidez si un déshumidificateur est nécessaire. L'unité d'alimentation peut être quelconque, mais il est préférable d'utiliser un modèle avec une chambre de mélange intégrée et une prise d'air extérieur réglable, par exemple, Mélange pour piscine Breezart... Le choix d'un déshumidificateur autonome n'est pas difficile; parmi les marques populaires, on peut distinguer DanVex, Dantherm, Cotes, Micropuits.
Si vous êtes déterminé à utiliser un déshumidificateur, alors au lieu de la solution précédente, il est préférable de choisir l'option n ° 3 basée sur un déshumidificateur à conduit - ce sera déjà un modèle spécialisé avec adjuvant d'air extérieur, destiné à être utilisé dans les locaux de la piscine. Les déshumidificateurs de conduits pour piscines produisent Dantherm (Série CDP), Calorex (Série Variheat), Breezart (Série Pool DH), Aérien autre.
La solution technique décrite dans l'option 5 se distingue par une fonctionnalité maximale et une faible consommation d'énergie: un PVU avec un sécheur / pompe à chaleur et un récupérateur. Cependant, le coût d'un tel PVU sera 2 à 3 fois plus élevé que le coût d'un séchoir à conduit. Un équipement similaire est proposé par Menerga (Série ThermoCond), Dantherm (Série DanX), Frivent (Série AquaVent), Breezart (Série Pool Pro) et autres.
Le site Breezart dispose d'un calculateur en ligne qui vous permet d'estimer la consommation d'énergie de diverses options d'équipement dans des conditions données.
Pourquoi ne pouvez-vous pas contacter immédiatement la société d'installation?
La ventilation de la piscine est un système technologique. Il n'est PAS calculé en utilisant les méthodes standard de taux de renouvellement de l'air et est donc fondamentalement différent de la ventilation dans un chalet, un bureau ou un restaurant. Par conséquent, les décisions que les entreprises d'installation mettront dans votre estimation dans 90% des cas seront incorrectes.
Si vous avez déjà un devis pour l'installation, vous pouvez me l'envoyer et je vous raconterai toutes leurs erreurs.
tout d'abord, Dans la plupart des piscines privées, des installations spécialisées avec des récupérateurs et un déshumidificateur ne sont pas nécessaires. Ils sont chers et sont utilisés à des fins très différentes. En deuxième, L'automatisation, intégrée à la plupart des installations, nécessite des spécifications en usine. Vous ne pouvez pas acheter de plate-forme et l'accrocher. Un tel équipement ne fonctionnera pas correctement. Les unités doivent être programmées selon le programme d'humidité. Troisièmement, Les entreprises d'installation sélectionnent les installations au hasard. Et ce n'est pas un glissement de langue de ma part. Pour faire le bon choix, ils doivent vous demander quel équipement supplémentaire vous prévoyez d'installer dans la piscine et le mode d'allumage de cet équipement. Le plus souvent, personne ne demande rien. Par exemple: pour une piscine à contre-courant, un équipement pour 1500m3 / h est nécessaire pour 230000 roubles et pour une piscine sans contre-courant - pour 900m3 / h pour 145000 roubles. Une question permet au client d'économiser 85 000 roubles.
Installation d'un complexe climatique
L'équipement de ventilation pour une piscine privée et une piscine publique ne diffère pas de l'équipement pour d'autres locaux dans des paramètres purement technologiques et de conception. Leur seule caractéristique est les matériaux à partir desquels il est assemblé. Ceux-ci doivent être des matériaux résistants à la corrosion qui ne se corroderont pas lorsqu'ils sont en contact avec une humidité élevée.
À tous autres égards, il s'agit de centrales de traitement d'air ordinaires, dans lesquelles deux ventilateurs sont installés: l'un pour l'alimentation en air frais, le second pour l'extraction des déchets humides. Ce type d'équipement est obligatoirement pourvu de filtres. Dans certains modèles, des déshumidificateurs, des aérothermes sont installés.
La principale exigence pour l'installation d'équipements climatiques est le strict respect des règles du processus d'installation, qui sont fixées dans SNiP 41-01-2003.
Taux de change de l'air dans la piscine
Standard de la piscine principale SP 310.1325800.2017
Je considérerai les exigences les plus importantes:
1. Il est nécessaire de maintenir 30 ° C à l'intérieur toute l'annéepuisque les gens se promènent nus, donc la température de l'air soufflé n'est pas calculée à 23 ° C, comme dans les pièces ordinaires, mais à 30 ° C.
2. Humidité relative de l'air pas plus de 55-65%. Dans les piscines des maisons en bois, l'humidité de l'air ne doit pas dépasser 45%. Un changement d'humidité d'au moins 5% nécessite un changement des volumes d'air de 35%, par conséquent, l'humidité pour le calcul de la ventilation de la piscine est l'indicateur le plus important.
3. Mobilité aérienne 0,2 m / s. Par conséquent, il y a toujours de très grandes grilles de ventilation dans la piscine. La vitesse des barres doit être maintenue au minimum afin que les gens n'attrapent pas froid.
4. Les hottes sont plus grandes que l'entrée. Dans les halls pour piscines, le volume d'air soufflé est supérieur de 10% au volume d'air extrait. Ceci est fait pour que l'air humide ne s'échappe pas dans les pièces adjacentes.

Taux de change de l'air dans la piscine
Ils m'interrogent constamment sur le taux de renouvellement de l'air. Il ne peut y avoir de concept de «multiplicité» dans les piscines.
Le volume de la pièce est compris dans la multiplicité. Le volume de la pièce ne joue aucun rôle dans la ventilation de la piscine. La pièce peut être grande, mais la piscine est très petite et vice versa. Nous ne sommes pas intéressés par le volume, mais par la zone du miroir d'eau. C'est donc une mauvaise idée de calculer rapidement le réglage «à genoux» par la multiplicité et de donner au Client la version correcte.
Vous devez envisager des équipements supplémentaires: geysers, fontaines, contre-courants. Ils modifient le fameux "taux de change de l'air".
Pour calculer correctement le volume d'air, vous pouvez utiliser la méthode ABOK, ou un programme spécialisé (https://www.softhvac.ru/ventilacia-bassejna)
Si les résultats se traduisent empiriquement en multiplicité, il en ressort de 6 à 15 en période estivale de l'année.
De combien d'air a-t-on besoin pour ventiler la piscine?
La consommation d'air pour la ventilation de la piscine est calculée en fonction de la libération d'humidité c.-à-d. la quantité d'humidité libérée par le miroir d'eau.
La quantité d'humidité en excès dépend de la région de construction, de la présence d'un déshumidificateur, de la surface du bol (surface de la surface de l'eau), du coefficient de taux d'évaporation (Δßb). Les manèges ont un impact important sur la consommation d'air: toboggans, contre-courant, masseur, jets sous-marins, fontaines et geysers.


Calcul de la ventilation de la piscine
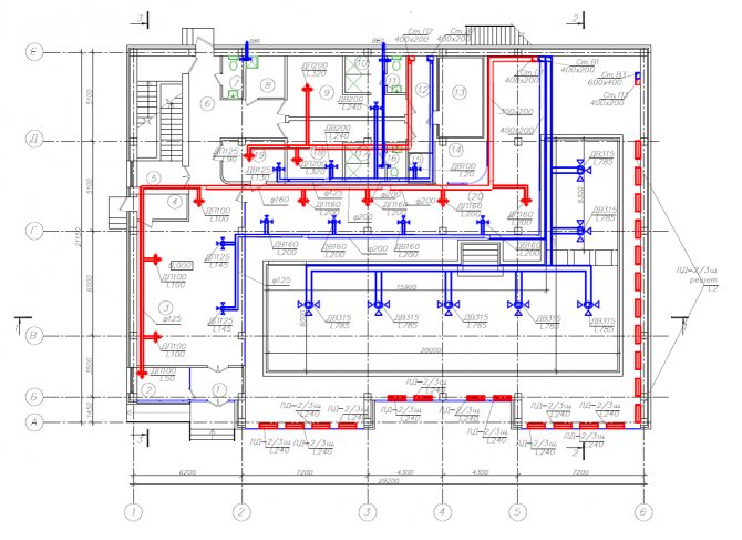
J'analyserai le calcul de la ventilation à l'aide de l'exemple d'une piscine de 23 m2
| Piscine 6,9x3,4m dans le gîte | Capacité de ventilation de la piscine 23 m2 selon les conditions: | ||||
| Avec contre-courant, jets sous-marins (sans sécheur) à Moscou | Avec contre-courant, jets sous-marins (avec séchoir) à Moscou | Avec geyser et fontaine (sans déshumidificateur) à Moscou | Avec contre-courant, jets sous-marins (sans sécheur) à Samara | Avec geyser et fontaine (sans déshumidificateur) à Samara | |
| Afflux | 1540 m3 / h | 770 m3 / h | 1030 m3 / h | 1390 m3 / h | 940 m3 / h |
| capuche | 1710 m3 / h | 860 m3 / h | 1 150 m3 / h | 1550 m3 / h | 1040 m3 / h |
| Déshumidificateur | – | 117 l / jour | – | ||
Comme vous pouvez le constater, le volume d'air pour une même piscine de 23 m2 est différent selon les conditions, les calculateurs en ligne ne peuvent donc pas prendre en compte tous les indicateurs et compter avec une marge. Par exemple, un système à contre-courant dans une piscine augmente la taille des équipements de ventilation de 33% et l'installation d'un toboggan aquatique de 50%!
Pour un calcul précis de votre piscine, je vous conseille de développer un projet de ventilation et de ne pas épargner 25 à 40000 roubles. Pour la conception, vous aurez besoin de plans architecturaux au format DWG (AutoCAD).
Alimentation en air du fond de la piscine


Alimentation en air du fond de la piscine
Il y a une image sur Internet où l'air est fourni à la piscine depuis le sol, et il y a une unité de ventilation à l'étage technique. Je dois expliquer à mes clients qu'en pratique, il est impossible de faire cela:
• Il est impossible de percer des trous d'une taille telle que la vitesse de l'air à partir de ceux-ci soit inférieure à 0,5 m / s, et à une vitesse plus élevée, il y aura des courants d'air et une gêne sur lesquels repose le bol. Assez problématique • Dans la zone de la fenêtre, il y a des convecteurs de chauffage et des tuyaux. Vous devrez commander des convecteurs sur mesure, ce qui est long et coûteux.
Finalement: dans les piscines privées, un tel dispositif est abandonné dans 90% des cas. Dans les piscines commerciales, ce type d'alimentation en air est souvent utilisé, mais il est envisagé au stade structurel du bâtiment, où la cuvette est un monolithe séparé.
Systèmes de ventilation de piscine privée
Tous les programmes d'entretien du microclimat sont réduits à une combinaison de ventilation et d'un déshumidificateur. C'est la méthode de déshumidification combinée.
Il existe 3 options:
• unités d'alimentation et d'extraction (séparées) • unité d'alimentation et d'extraction (simple) avec canal de dérivation; • centrale de traitement d'air (monobloc) avec récupérateur.
Les 3 options sont combinées avec un déshumidificateur et nous obtenons 3 autres schémas:
• unités d'alimentation et d'évacuation (séparées) avec un sécheur • unité d'alimentation et d'évacuation (simple) avec un canal de dérivation et un sécheur; • centrale de traitement d'air (monobloc) avec récupérateur et déshumidificateur.
Voyons cela, mais pour l'avenir, je dirai:
Il n'y a qu'un seul système de ventilation et de déshumidification correct pour une piscine privée. Le tout premier. Les déshumidificateurs sont chers et stupides. Et la récupération et la dérivation ne conviennent que pour les grandes piscines commerciales.
Analysons chaque équipement dans l'ordre, et tout deviendra clair.
À propos des systèmes d'échange d'air
L'afflux d'air pur et l'évacuation de l'air évacué dans les piscines sont réalisés à l'aide d'une ventilation spécialement équipée. Aujourd'hui, il existe deux options pour organiser ce processus:
- des systèmes d'alimentation et d'échappement séparés fonctionnant de manière autonome;
- unité unique d'alimentation et d'extraction.
Ventilation forcée
Le dispositif de cette méthode d'aération de l'air est installé principalement lors des travaux généraux de construction sur l'équipement du réservoir.
Son élément principal est un ventilateur intégré aux conduits d'évacuation. La prise d'air est effectuée à l'aide des dispositifs suivants:
- des dispositifs d'admission d'air, équipés d'une soupape qui empêche l'air froid de circuler dans la pièce en hiver lorsqu'elle ne fonctionne pas;
- filtre purificateur d'air;
- réchauffeur d'air;
- ventilateur d'admission;
- bloc pour maintenir le niveau de température et le volume de l'air d'admission.
FONCTIONNALITÉ! La ventilation de soufflage apporte de l'air frais dans la pièce. De plus, cela se fait séparément de l'élimination de l'air déjà humidifié, qui est effectuée en parallèle.
Ventilation par extraction
Il prévoit le fonctionnement d'un ventilateur d'extraction, qui est intégré dans des conduits spécialement préparés. Cela comprend également une vanne d'air (anti-retour), ainsi qu'un système d'automatisation. L'air est distribué par des conduits d'air spéciaux en acier galvanisé. Il est alimenté et retiré par les grilles de ventilation.


La diffusion de l'air de la piscine à travers les pièces et les couloirs voisins est empêchée par un réglage spécial du système de ventilation, qui prévoit une augmentation de la quantité d'air évacué au-dessus de l'air d'alimentation.
L'installation de systèmes d'alimentation et d'échappement fonctionnant séparément se distingue par une installation simple et un coût relativement faible. Le principal inconvénient d'un tel équipement est sa consommation d'énergie élevée.... Dans le même temps, cela ne peut pas dans tous les cas résoudre le problème de la ventilation complète d'une pièce avec un niveau d'humidité élevé.
Si cet équipement est combiné avec un sécheur d'air, l'effet peut être beaucoup plus fort. C'est le programme le plus approprié pour les bassins du secteur privé.
Mais quant à une seule unité d'alimentation et d'extraction, bien que coûteuse, elle résout tous les problèmes de ventilation des réservoirs artificiels du complexe.
Récupérateur pour la piscine. Pourquoi pas nécessaire?
Un récupérateur est une section d'une centrale de traitement d'air qui économise 50% de la chaleur pour chauffer l'air soufflé en hiver.


Il fait froid dehors en hiver, vous devez donc le chauffer pour fournir de l'air à la piscine. Il peut être chauffé avec de l'eau ou de l'électricité, mais il s'agit toujours d'un coût supplémentaire. Le client veut économiser sur les coûts d'exploitation et fait ce qu'il faut, mais le récupérateur n'est pas nécessaire dans les piscines et est même nocif.
Voilà pourquoi:
En hiver, l'air extérieur est froid, mais très sec, il en faut donc très peu pour vider la piscine - 7 fois moins qu'en été. Il ne reste plus qu'à chauffer. De ce fait, le volume d'air pour la vidange de la piscine en hiver est très faible, de 350 à 500 m3 / h, et un minimum de 1500 m3 / h est nécessaire pour la récupération du récupérateur.
Le récupérateur est nécessaire dans les piscines avec une surface d'eau d'au moins 80 m2.
En hiver, la centrale de traitement d'air réduira la vitesse et le réchauffeur d'air fonctionnera au minimum. Il s'avère qu'il n'y a tout simplement rien à sauver. En été, l'unité augmentera l'alimentation en air, mais le radiateur ne fonctionnera pas.
Avec l'installation d'un récupérateur dans la piscine, nous avons un gros problème.
Le récupérateur de la piscine gèle constamment et la condensation coule. En raison du fait que l'air d'échappement est humide et que l'air d'alimentation de la rue est très froid, les parois du récupérateur sont très refroidies. L'air extrait humide se condense sur les parois froides du récupérateur c.-à-d. l'humidité tombe de l'air. En conséquence, en automne et au printemps, des condensats s'écoulent constamment de l'installation. Et lorsque le temps froid s'installe, l'humidité sur les parois du récupérateur gèle et l'équipement active constamment le mode de dégivrage.
Production: Le récupérateur dans la ventilation de la piscine n'est tout simplement pas nécessaire. Le volume d'air d'alimentation en hiver est trop petit pour économiser de la chaleur et l'air extrait est trop humide, ce qui entraînera de la condensation sur les parois du récupérateur et une congélation ultérieure.
Si vous voulez vraiment conserver la chaleur dans votre système de ventilation, pensez à des persiennes pour couvrir le miroir d'eau en dehors des heures de bureau. Vous pouvez ainsi réduire le dégagement d'humidité de la piscine, et donc réduire le volume d'air et la consommation du système de ventilation de 70%.
Avantages d'un système d'alimentation et d'échappement avec récupérateur
Les récupérateurs sont des installations dans lesquelles l'air entrant à basse température est chauffé à partir de l'air chaud sortant. Tout se passe dans le boîtier, où les ruisseaux sont séparés par une cloison métallique. C'est à travers lui que la chaleur est transférée d'un flux à un autre.
Les avantages des unités de ventilation pour ce type de piscine sont évidents.
- Aucune consommation d'énergie en termes de chauffage des masses d'air entrant.
- Réduit le coût de chauffage de la pièce.
- La centrale de traitement d'air fonctionne normalement sans modifier les paramètres.
- Il est possible de contrôler le régime de température.
Autrement dit, la ventilation de soufflage et d'extraction avec récupération de chaleur est un système économiquement viable. De plus, il ne nécessite pas de dépenses importantes en termes d'investissements monétaires.
Unité de ventilation de piscine
Pour les piscines, nous utilisons des unités d'alimentation et d'extraction séparées conventionnelles. Dans ce cas, nous avons la possibilité d'aborder de manière plus flexible le placement des équipements. Les unités séparées prennent beaucoup moins de place que les systèmes avec récupérateur. Ils peuvent être situés dans différentes pièces, par exemple dans le grenier, au sous-sol et même dans le plafond suspendu de la piscine elle-même. La centrale de traitement d'air, fonctionnant en 2 modes, délivre 3000 m3 / h en été, et chauffe et ne fournit que 400 m3 / h en hiver. L'unité d'extraction d'air projette de l'air humide à l'extérieur et le câble chauffant sur les grilles extérieures les protège des glaçons.
Il s'agit du système de ventilation le plus simple et le plus efficace.Pour chauffer 400 m3 / h d'air, il suffit de 7,5 kW d'énergie thermique de la chaudière (à ne pas confondre avec la consommation électrique) et cela à -25 ° C à l'extérieur.


Système de ventilation correct dans la piscine d'une maison privée
Les entreprises fournisseurs vous convaincront d'acheter des unités de traitement d'air coûteuses pour les piscines, qui dans 90% des cas ne sont pas du tout nécessaires. Dès que vous dites «piscine», ils ont des «installations de piscine» dans la tête. Et pourquoi une telle attitude est nécessaire - ils ne peuvent pas expliquer.
Les sociétés Svegon et Menerga proposent des équipements à partir de 600 000 roubles. 100% des piscines privées n'en ont pas besoin et 90% des piscines commerciales utilisent 2 unités séparées, l'une avec déshumidificateur et l'autre sans.
Dans les projets de piscines dans les maisons privées, nous utilisons des unités d'alimentation et d'extraction conventionnelles de NED, Breezart, Systemair, Ventmachine. Nous concevons des installations suspendues de type canal dans un boîtier insonorisé avec un ensemble complet d'automatisation.
L'essentiel est un microclimat normal
Les systèmes d'échange d'air dans les piscines privées présentent plusieurs différences par rapport à la ventilation ordinaire.
La caractéristique principale est que les paramètres de conception de l'installation sont fortement influencés par les indicateurs de température de l'eau et de l'air.
Cela s'inscrit dans les principes de distinction de la ventilation dans les pièces avec et sans piscine, dont les principaux sont:
- à l'emplacement des ouvertures d'échappement - puisque l'air humide est plus léger que l'air sec et qu'il s'accumule en haut, sous le plafond, par conséquent, les trous pour son retrait doivent être situés à cet endroit;
- dans la bonne régulation du mouvement de l'air - l'intensité de son mouvement au-dessus de l'eau conduira au fait qu'une personne se baignant dans un étang commencera à geler, et si elle l'affaiblit ou en manque, cela provoquera l'accumulation de vapeur au-dessus du l'eau et, par conséquent, la congestion;
- dans le chauffage obligatoire de l'air fourni à la pièce - il est particulièrement important d'éviter une baisse de température et la présence de courants d'air en hiver, car les courants froids peuvent provoquer des rhumes chez les nageurs.
L'essentiel dans l'organisation de la ventilation dans un réservoir privé (des exemples de calcul de la ventilation d'une piscine dans une maison privée ou un chalet sont juste en dessous) est de faire en sorte qu'une personne soit à l'aise d'être nue.





