Les fenêtres coulissantes en aluminium créent non seulement une atmosphère chaleureuse dans la maison, mais ne prennent pas non plus un centimètre d'espace libre supplémentaire lorsqu'elles sont ouvertes. En raison de la résistance des profilés en aluminium, les fenêtres coulissantes sont fiables et durables, et ont également une transmission lumineuse maximale. Ces fenêtres ont fière allure dans n'importe quel intérieur.
Semblables à une armoire, les fenêtres coulissantes sont idéales pour les balcons et les loggias. Ils n'interfèrent pas avec la libre circulation dans une petite pièce. Vous pouvez aménager une serre entière sur le balcon, en forçant le rebord de la fenêtre avec des fleurs, sans vous soucier du réarrangement constant des pots de fleurs lorsque vous ouvrez la fenêtre. Le châssis de la fenêtre coulissante est équipé d'une serrure spéciale qui fixe la fenêtre en position fermée, protégeant l'appartement de la poussière et des précipitations.
Dans cet article, nous examinerons étape par étape comment assembler indépendamment une fenêtre coulissante en aluminium.
Retour au contenu
Recommandations d'installation des charnières
L'installation et le réglage des charnières de porte sont effectués lorsqu'une nouvelle unité de porte est installée ou lorsque d'anciens éléments de quincaillerie usés sont remplacés par de nouvelles pièces.
Lors de l'exécution de tout travail d'installation et de réparation, il est recommandé de se conformer aux exigences établies pour l'installation des structures de porte. Toutes les actions doivent être effectuées séquentiellement selon les instructions afin que pendant le fonctionnement, il n'y ait pas de problèmes avec les portes.
Lors de l'installation de charnières aériennes, il est nécessaire de mesurer avec précision les points de perçage des trous pour la fixation des produits afin que la toile après l'installation ne soit pas biaisée. Pour certains modèles suspendus, les fabricants fournissent des fixations supplémentaires.
Comment régler correctement
Les nuances de réglage dépendent de l'élément des fenêtres coulissantes en aluminium qui ne fonctionne pas correctement. Pour installer les rouleaux et les loquets, vous devez d'abord étudier les instructions et préparer un ensemble d'outils de base.

Vidéos
Les mécanismes à rouleaux sont situés sur les parties supérieure et inférieure de la structure coulissante en aluminium. Ils sont placés sur des patins, le long desquels ils se déplacent, ouvrant et fermant la fenêtre. Si, lors d'une tentative d'expansion, la structure ne cède pas à la force ou ne se déplace pas assez facilement, un ajustement est nécessaire de la manière suivante:
- Ils trouvent les vis de réglage qui se trouvent sous les garnitures de protection à partir du bas de l'ouvrant aux deux extrémités. Pour ajuster les vis de taille standard, vous avez besoin d'une douille hexagonale de 4 mm.
- Placez l'hexagone dans l'ouverture et faites défiler vers la gauche.
- Ajustez la hauteur de l'ouvrant des deux côtés en continuant à tourner les vis et en déplaçant les mécanismes à rouleaux. À ce stade, il est recommandé d'utiliser le niveau du bâtiment afin d'éviter toute inclinaison dans la direction diagonale.
Après avoir fixé l'emplacement des rouleaux, vous devez vérifier l'état de la structure coulissante en aluminium. Pour cela, la fenêtre est fermée et ouverte plusieurs fois, en s'assurant qu'elle fonctionne correctement.
Loquet
La procédure de réglage du verrou dépend du type de problème. S'il n'y a pas d'adhérence de la languette à la barre en raison du placement à différents niveaux, il suffit alors de déplacer la contrepartie à la hauteur requise. Pour cela, la barre est dévissée à l'aide d'un hexagone avec une base de 2,5 mm. Lorsque la barre se déplace en douceur le long du cadre, elle est installée de sorte que le bord inférieur de la contrepartie avant le biseau soit situé à la même hauteur que la partie supérieure de la languette de verrouillage.


Dans une situation où le problème est associé à un fort approfondissement de la languette dans le cadre de la fenêtre du balcon, vous devez déplacer avec précaution la poignée d'ouverture vers le bas, placer un hexagone de 3 mm dans le trou vide et tourner la vis de fixation. Tournez la clé hexagonale dans la direction opposée à la recherche des raccords.
Si la poignée est située à l'extrémité gauche du châssis de la fenêtre, la clé est tournée vers la droite et vice versa.
Après avoir desserré la vis de fixation, la languette est soigneusement tirée au niveau souhaité, puis la vis est serrée dans la direction opposée. À condition que le réglage de la structure coulissante soit effectué correctement, le châssis se fermera étroitement avec le loquet. Une fois le réglage terminé, vous devez immédiatement vérifier le fonctionnement de la structure.
Démontage de l'ancien cadre, préparation de l'ouverture
Avant d'installer la fenêtre, vous devez retirer l'ancien cadre et préparer l'ouverture de la fenêtre.
p, blockquote 11,0,0,0,0 ->
Les cadres en bois sont sciés à plusieurs endroits. Pour cela, il est plus pratique d'utiliser une scie sauteuse électrique, mais une scie à métaux ordinaire fonctionnera également. Les éléments du cadre sont supprimés avec un petit pied de biche. À l'aide d'un ciseau et d'un marteau, retirez la dalle de seuil.
p, citation de bloc 12,0,0,0,0 ->
L'ouverture doit être nettoyée des fragments de béton, des anciennes attaches. S'il est gravement endommagé ou déformé, il devra être nivelé avec du mortier de ciment. Vous ne pouvez passer à l'étape suivante qu'après que le mélange de nivellement a complètement durci.
p, blockquote 13,1,0,0,0 ->
Avant l'installation, vérifiez soigneusement l'intégralité du produit et lisez attentivement les instructions ci-jointes. Dans la plupart des cas, le kit de livraison comprend les cadres, les fenêtres à double vitrage et les ferrures séparément.
Caractéristiques du
Les principaux avantages des fenêtres coulissantes sont la facilité d'utilisation, la facilité du système et l'économie d'espace utile dans la pièce.
L'ajustement est tout à fait accessible à un profane. Les principales raisons de leur échec peuvent être:
- opération incorrecte ou imprudente;
- si le bâtiment est neuf, son rétrécissement est tout à fait possible;
- installation incorrecte ou de mauvaise qualité;
- mariage.
Si les coulissants commençaient à mal se fermer et que des fissures apparaissaient dans l'ouverture, vous devez effectuer le réglage. Vous aurez besoin d'un hexagone spécial et d'instructions pour savoir où régler.
Vous devez maintenant inspecter soigneusement les fenêtres coulissantes, en faisant attention aux châssis inférieurs et supérieurs. À l'aide d'un hexagone, nous ajustons la vis en ne tournant que dans un sens
Après cela, nous regardons le résultat. Ce n'est que par essai qu'un non-spécialiste pourra déterminer dans quelle direction la vis doit être tournée. En fermant et en ouvrant à nouveau la fenêtre, vous comprendrez si vous avez tourné dans la bonne direction et si vous avez besoin d'un défilement supplémentaire. Un résultat positif sera un ajustement serré des volets, l'absence de bruit et de courants d'air.
Installation pour les fenêtres La décoration des ouvertures de fenêtres, qui sera faite avec suffisamment de précision, peut rendre l'apparence du bâtiment très digne et.
La plupart des matériaux de finition peuvent être installés indépendamment, à l'exception des structures particulièrement complexes, où l'aide d'un partenaire peut être nécessaire.
Travaux d'isolation et de finition
Après l'achèvement des travaux de finition extérieure et l'installation des fenêtres, la pièce est isolée. Ces travaux sont effectués quels que soient les profils utilisés. Dans tous les cas, le balcon doit protéger l'appartement du vent et garder la chaleur dans la pièce. La mousse de polystyrène ou la laine minérale est souvent utilisée comme isolant. La face interne est gainée d'un épais film de cellophane, la face externe - d'un pare-vent.
Le plafond et le sol doivent également être isolés. L'isolation du sol est en polystyrène, sur lequel les panneaux sont posés. Si la question des carreaux est décidée, il est en outre nécessaire de créer un système de sols chauds.Le plafond peut également être isolé avec de la laine minérale, surtout si l'appartement est au dernier étage. La décoration intérieure du balcon est le plus souvent réalisée à l'aide de cloisons sèches. Ce matériau est ensuite mastic et peint. Pour une meilleure isolation de la pièce, vous pouvez utiliser une doublure en bois parfaitement vernie.
Nous ajustons les fenêtres de tous les fabricants
Nous ajustons les fenêtres en aluminium avec tout type d'ouverture de guillotine: battante, basculante, pivotante, lucarne, ainsi que des portes. Nos spécialistes réussissent également à corriger les défauts matériels des représentants nationaux et étrangers: Roto, Maco, Sigenia-Aubi, G-U, AGB, WinkHaus. Chaque employé de l'entreprise est équipé des outils nécessaires et d'une lubrification spéciale, de sorte qu'un simple réglage ne prend pas plus de 30 minutes.
Si la cause du dysfonctionnement est une pièce cassée, nous la remplacerons. Dans ce cas, nous changeons la pièce uniquement pour la pièce de rechange d'origine de votre fabricant. Les pièces nécessaires des mécanismes de verrouillage et de rotation sont toujours disponibles: ciseaux, gâches, engrenages angulaires, charnières, boîtes de vitesses, etc. Nous offrons une garantie d'un an pour toutes les pièces de rechange.
Caractéristiques des raccords de réglage de vos propres mains
Avant de procéder au réglage de la fenêtre en plastique, vous devez acquérir des outils et des matériaux tels qu'une clé hexagonale de 4 mm, un jeu de tournevis en étoile (marques T et TX), des pinces / pinces, un tournevis Phillips 3x4, un spray WD-40 / huile de machine ... Il convient de noter que le réglage des fenêtres coulissantes est beaucoup plus facile - dans ce cas, seule la distance entre les chariots à rouleaux dans lesquels le châssis est fixé est réglée.
L'auto-ajustement des fenêtres en plastique peut inclure le réglage du châssis, son serrage, ainsi que le réglage de la poignée et des goupilles.
La position du châssis de la fenêtre peut être modifiée dans 3 plans grâce au réglage des charnières. À partir de la vidéo ci-dessous, vous apprendrez sous une forme visuelle comment les ferrures de fenêtre sont ajustées à la maison.
Réglage de la poignée
Si la poignée de la fenêtre est lâche, il vous suffit de resserrer sa fixation en retirant le couvercle et en serrant les boulons avec un tournevis cruciforme. Dans ce cas, vous devez retirer le support sans utiliser d'outils - il vous suffit de le tourner de 90 degrés.
Pour remplacer la poignée ou installer celle qui est équipée d'un fusible, vous devez activer l'opération similaire à la précédente, seuls les boulons dans ce cas sont dévissés, puis l'ancienne poignée est soigneusement retirée du connecteur et une nouvelle est attaché à sa place.
Si la poignée colle ou arrête d'atteindre l'une des positions, le mécanisme de serrage devrait peut-être être légèrement desserré et la poignée elle-même, après l'avoir démontée, devrait être nettoyée et lubrifiée.
De plus, le réglage automatique des fenêtres est effectué si la poignée est bloquée. Dans ce cas, il est nécessaire de réajuster le mécanisme de verrouillage situé côté poignée à l'extrémité du châssis de fenêtre.
Châssis de fenêtre affaissés
Si le châssis de la fenêtre «raye» sur le cadre ou touche les ferrures lors de l'ouverture et de la fermeture, cela signifie qu'il s'est affaissé. Le châssis de la fenêtre est ajusté à l'aide d'un hexagone qui peut être utilisé pour lever / abaisser le châssis ou déplacer sa partie supérieure / inférieure vers les charnières.
Presser l'ouvrant contre le cadre
Dans ce cas, vous devez "travailler" avec les excentriques (ce sont des broches) situés le long du périmètre de la fenêtre. Dans ce cas, pour l'hiver, la pince peut être augmentée (l'excentrique tourne dans le sens des aiguilles d'une montre), et en été, elle peut être affaiblie (l'excentrique tourne dans le sens antihoraire).
Dans le cas des fenêtres en aluminium, le réglage des fenêtres de vos propres mains se fait de la même manière - en tordant les boucles (inférieures ou supérieures) avec un hexagone.
L'ajustement des ferrures de fenêtres en bois est un processus beaucoup plus compliqué que dans le cas des fenêtres en plastique ou en aluminium. Dans ce cas, vous devez absolument appeler l'assistant, car même lui effectuera la correction par étapes.
Cas où il est temps de contacter un spécialiste pour ajuster les raccords
- La fenêtre ne se ferme pas hermétiquement, lors de la fermeture, il faut faire un effort;
- Lors de l'ouverture ou de la fermeture des fenêtres, des bruits parasites se font entendre: grincements, clics, etc.
- Dysfonctionnement de la boucle;
- De la condensation est apparue sur les fenêtres;
- La géométrie de la fenêtre est cassée, un biais est visible, les châssis s'affaissent, etc.
Si vous remarquez des irrégularités dans la conception de la fenêtre, n'attendez pas pour appeler les spécialistes, ils effectueront le réglage et, si nécessaire, remplaceront les raccords.
Les employés de l'entreprise détermineront sur place quel élément doit être réparé. Après cela, un ajustement complet des ferrures de fenêtre est effectué et les mécanismes de rotation sont lubrifiés avec un aérosol spécial.
Réglage des ferrures de fenêtre en mode été - hiver
En principe, la seule chose qui peut être faite sans contacter des spécialistes est d'ajuster la pression de l'ouvrant pour la période hivernale ou estivale. Le seul outil dont vous avez besoin pour cela est un hexagone. La première étape consiste à déterminer les endroits dans lesquels le vestibule sera renforcé ou affaibli.
Après cela, vous devez trouver la broche la plus proche de cet endroit. Il dispose d'un indicateur de pression (point ou empattement). Pour passer la fenêtre en mode hiver, tournez le tourillon avec une clé hexagonale, l'encoche doit être vers la pièce; pour le mode été, l'encoche sur le tourillon tourne vers la rue.
En conclusion, nous vous rappelons une fois de plus que les fabricants de fenêtres et de ferrures de fenêtres vous recommandent de ne pas effectuer le réglage vous-même, mais de contacter des entreprises spécialisées. Et rappelez-vous, si vos fenêtres sont sous garantie, le service est effectué par l'entreprise auprès de laquelle les fenêtres ont été achetées.
Vidéo: Comment régler la densité de pression de l'ouvrant
- Ferrures pour fenêtres Les ferrures G-UWindow de la société allemande Gretsch-Unitas (G-U) sont installées dans presque toutes les fenêtres.
- Ferrures pour fenêtres - charnières En règle générale, les ferrures pour fenêtres en bois sont non métalliques ou métalliques.
- Ferrures de fenêtre Roto
- Les ferrures de fenêtre Winkhaus ont commencé leur vie il y a plus de 100 ans. Loin.
Comment régler les fenêtres coulissantes en aluminium?
L'installation finale des fenêtres est l'installation d'une fenêtre à double vitrage, la suspension des châssis et le réglage de toutes les ferrures.Pour l'installation d'une fenêtre à double vitrage, il faut au moins une équipe de 2 personnes.
Lors du réglage des fenêtres, vous devez tout d'abord lire attentivement les instructions de réglage de la structure, qui sont nécessairement incluses dans le kit de livraison.
Il est nécessaire de faire attention et, le cas échéant, d'éliminer les inconvénients suivants à l'aide d'un outil de réglage spécial - un hexagone. En insérant alternativement l'hexagone dans les vis de réglage, nous ajustons les cadres, obtenant un ajustement parfait de toutes les pièces structurelles
En insérant alternativement l'hexagone dans les vis de réglage, nous ajustons les cadres, obtenant ainsi un ajustement parfait de toutes les pièces structurelles.
La séquence des opérations: 1. Placez les inserts autour du périmètre de la structure. 2. Nous montons soigneusement l'unité en verre. 3. Nous fixons l'unité en verre. 4. Installez le châssis.
Avant d'installer une fenêtre à double vitrage, un audit de tous les aménagements est effectué.
Nous ajustons les ferrures pour une installation correcte de tous les composants de la structure à l'aide de vis de réglage.
Et regardez également une vidéo sur les fenêtres en aluminium:
Les fenêtres coulissantes en aluminium créent non seulement une atmosphère chaleureuse dans la maison, mais ne prennent pas non plus un centimètre d'espace libre supplémentaire lorsqu'elles sont ouvertes.En raison de la résistance des profilés en aluminium, les fenêtres coulissantes sont fiables et durables, et ont également une transmission lumineuse maximale. Ces fenêtres ont fière allure dans n'importe quel intérieur.
Semblables à une armoire, les fenêtres coulissantes sont idéales pour les balcons et les loggias. Ils n'interfèrent pas avec la libre circulation dans une petite pièce. Vous pouvez aménager une serre entière sur le balcon, en forçant le rebord de la fenêtre avec des fleurs, sans vous soucier du réarrangement constant des pots de fleurs lorsque vous ouvrez la fenêtre. Le châssis de la fenêtre coulissante est équipé d'une serrure spéciale qui fixe la fenêtre en position fermée, protégeant l'appartement de la poussière et des précipitations.
Dans cet article, nous examinerons étape par étape comment assembler indépendamment une fenêtre coulissante en aluminium.
Retour au contenu
Prix moyens
Le prix abordable des structures en matériau éprouvé plaît aux clients. À faible coût, vous pouvez acheter un produit de haute qualité et durable qui ne présente aucun défaut ni dommage.
Actuellement, les structures coulissantes de fabricants bien connus sont très populaires.
| Fabricant | Prix |
| Prouvé | à partir de 17000 roubles |
| Alutech | à partir de 16500 roubles |
| Glissières | à partir de 17000 roubles |
Le prix des produits dépend des caractéristiques d'un produit particulier, de la taille, de la complexité des travaux d'installation. Profitant de la réduction, le client achètera des produits pour un peu moins de 17 000 roubles.
Les promotions offrent une opportunité économiser un montant décent De l'argent. Vous pouvez choisir n'importe quelle option de conception: coulissante, coulissante de levage ou pivotante.
Que rechercher lors du choix de produits modernes et pratiques? La conception des fenêtres coulissantes en aluminium est durable, une rigidité accrue en utilisation constante. Le profil bas en aluminium offre une occasion unique de fournir une excellente transmission de la lumière.
En plus d'utiliser des profilés en aluminium à froid, les fabricants utilisent activement vitrage en aluminium chaud... Les produits, complétés par des inserts spéciaux en polyamide, vous permettent de bien rester au chaud dans chaque pièce. Ce fait doit être pris en compte lors du choix d'un design spécifique pour votre maison.
Les types mêmes de profilés en aluminium pour le balcon et pour les fenêtres peuvent être réalisés en différentes couleurs. Vous pourrez arrêter votre regard aussi bien sur des teintes calmes que sur des teintes plus lumineuses, plus saturées et frappantes. Le profil pour fenêtres coulissantes est durable.
Comment ajuster la quincaillerie du cadre coulissant en aluminium
Ensuite, nous examinerons à la fois les situations d'apparition de problèmes avec un cadre coulissant en aluminium et comment les résoudre.
Comment régler les rouleaux sur le châssis d'un cadre coulissant en aluminium
Pour régler (lever le vantail), vous avez besoin d'une clé n ° 4, soit 4 mm. Aux deux extrémités du châssis, il y a des trous dans le cadre avec une doublure noire par le bas, dans lesquels on voit une vis de réglage, il tourne avec un hexagone de 4 mm.
Pour soulever l'ouvrant, vous devez tourner la clé dans le sens antihoraire. La même chose se fait de l'autre côté. Lors du réglage de la hauteur des rouleaux, il est nécessaire de s'assurer que l'ouvrant ne s'incline pas en diagonale, sinon il ne sera pas verrouillé. Pour cela, il est préférable d'utiliser un niveau ou, dans les cas extrêmes, un fil à plomb.
Comment régler le loquet d'un cadre coulissant en aluminium
Si le problème est que la contrepartie est mal vissée, il suffit de la tordre. Pour ce faire, prenez une clé numéro 2.5, insérez-la dans le trou central de la pièce et dévissez-la jusqu'à ce que la réponse se déplace librement dans le cadre. Maintenant, il doit être vissé de manière à ce que la partie inférieure de l'otvetka avant le biseau soit au niveau de la partie supérieure de la languette avant le biseau.
Dans le second cas, lorsque la languette ne s'enclenche pas, vous devez la retirer. Prenez la clé numéro 3. La languette retient la vis de fixation. Pour y accéder, vous devez tirer la poignée d'ouverture vers le bas (étape 1 sur l'image).Un trou apparaîtra en haut, dans lequel un hexagone de 3 mm est inséré et tourné dans la direction opposée à l'emplacement du matériel (étape 2 sur l'image). Par exemple, si le loquet est situé à l'extrémité gauche du châssis, la clé tourne vers la droite et vice versa. En desserrant la vis de fixation, vous pouvez tirer en toute sécurité la languette mobile vers l'extérieur jusqu'à ce qu'elle affleure le bord du cadre (étape 3 sur l'image).
À la fin du processus, la vis de retenue est serrée. Si tout est fait correctement, l'ouvrant se fermera hermétiquement avec le loquet!
Types de structures
Les fenêtres en aluminium ont une longue durée de vie en raison de leurs caractéristiques de conception inhérentes.
Les caractéristiques de conception des fenêtres en aluminium assurent une longue durée de vie
La configuration de la fenêtre peut être:
- rabat - la ceinture fonctionne exclusivement pour la ventilation. Ce type d'ouverture est utilisé dans les pièces manquant d'espace libre;
- rotatif - il s'agit d'un type d'ouverture de châssis pivotant traditionnel;
- swing-out - une combinaison d'ouverture de l'ouvrant pour la ventilation et de la méthode d'oscillation. Ce type d'ouverture est courant lors du vitrage d'ouvertures résidentielles;
- aveugle - il s'agit d'un vitrage continu de l'ouverture sans possibilité d'ouverture en l'absence de châssis. Ce type de vitrage se retrouve souvent dans les espaces publics et les bureaux. Dans les bâtiments résidentiels, certaines ouvertures sont vitrées de cette manière, s'il y en a plus de deux dans une pièce - c'est typique pour les bâtiments anciens;
- multi-châssis - avec ce type d'ouverture, plusieurs châssis sont utilisés dans une grande ouverture de fenêtre, lorsque chaque châssis a son propre type d'ouverture;
- L'ouverture des portes coulissantes au format «compartiment» est courante pour les pièces étroites, où chaque mètre carré compte - sur les loggias et les balcons.
La configuration du système de fenêtres est sélectionnée en fonction de l'objectif de la pièce
En fonction du degré d'isolation thermique, les fenêtres profilées en aluminium sont divisées en types «froids» et «chauds».
Le profilé de fenêtre "chaud" a un insert d'isolation thermique dans sa conception. Cela affecte la largeur du profil, qui est plus grande que celle du "froid".
Le profil chaud comprend une couche isolante
Les profilés de fenêtre «froids» ne sont pas utilisés dans les locaux d'habitation. Ils peuvent être trouvés sous forme de cloisons ou de portes dans les bureaux et autres locaux non résidentiels.
Vitrage sans cadre


Avec le vitrage sans cadre, il n'y a pas d'éléments verticaux dans la structure
De tels cadres permettent aux rayons du soleil de pénétrer librement dans le balcon, ce qui est important pour le côté ombragé.
- des verres trempés spéciaux (5-10 mm d'épaisseur) sont utilisés;
- les profilés sont en aluminium;
- les verres bougent grâce à des roulements à roues;
- il y a des superpositions;
- il est nécessaire de monter le platband et le reflux;
- il est nécessaire d'installer des pinces;
- il doit y avoir des verrous sur les poignées;
- il est nécessaire d'utiliser des joints en acrylique ou en caoutchouc;
- les châssis sont fixés avec du ruban adhésif.


L'installation d'une structure sans cadre est effectuée dans un ordre strict:
- fixez fermement le reflux supérieur;
- un profil en aluminium avec des roulements est renforcé dessus;
- monter le joint en silicone supérieur;
- le verre est installé, en parallèle, ils sont connectés avec un joint;
- fixer la partie inférieure du reflux;
- les interstices formés pendant le fonctionnement (entre le verre et la paroi) sont scellés avec un scellant.
Pendant le travail, des matériaux tels que des clous et des vis ne sont pas utilisés. Une colle spéciale est utilisée comme connecteur pour les feuilles de verre.
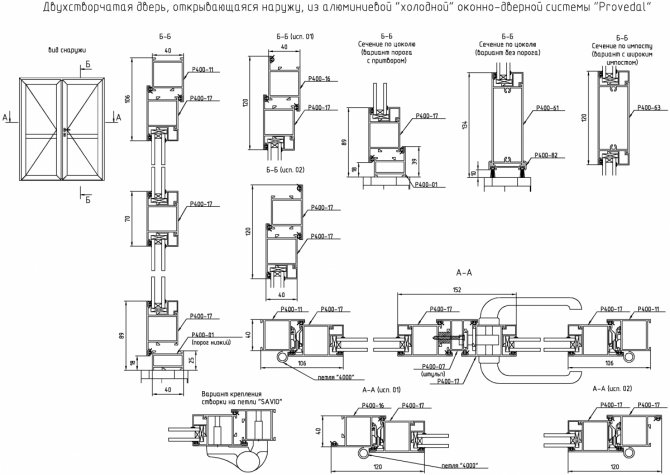
Schéma de montage des fenêtres coulissantes en aluminium - avancement général des travaux
Il est très important d'inspecter la surface de l'unité de verre et le cadre pour les fissures et les rayures avant d'assembler une fenêtre coulissante en aluminium. La fenêtre coulissante défectueuse est renvoyée à l'entreprise où elle a été achetée
La fenêtre coulissante défectueuse est retournée à l'entreprise où elle a été achetée.
À partir de l'installation de fenêtres coulissantes en aluminium, vous devez démonter soigneusement l'ancienne fenêtre avec un rebord de fenêtre et préparer l'ouverture de la fenêtre.
Après le démontage de l'ancienne structure, les fragments restants de béton et de fixations sont retirés de l'ouverture de la fenêtre. Les ouvertures gravement endommagées et inclinées sont nivelées avec du mortier de ciment et laissées jusqu'à ce qu'elles soient complètement durcies.
Avant d'installer des fenêtres coulissantes en aluminium, il est préférable d'amorcer l'ouverture.
Installation du cadre
L'installation de fenêtres coulissantes en aluminium commence par l'installation du cadre. La vidéo ci-dessous montre en détail le processus d'assemblage du cadre de fenêtre coulissante en aluminium.
1. Fondamentalement, les détails de la construction des fenêtres coulissantes sont déjà démontés, séparez le cadre de l'unité en verre avec des ferrures. Dans la structure assemblée, le cadre est libéré de l'unité de verre et des châssis et, à l'aide de cales, est placé dans l'ouverture de la fenêtre et nivelé.
2. Sur la longueur du cadre et du mur, des trous sont percés pour les fixations, dans lesquelles des vis sont vissées, afin d'insérer davantage les fenêtres à double vitrage. Afin de ne pas vous confondre avec les parcloses, vous pouvez les marquer avec un marqueur.
3. Si l'écart entre l'ouverture latérale et le cadre de la fenêtre coulissante dépasse 5 mm, des plaques supplémentaires doivent être utilisées.
4. Le cadre est fixé au mur avec un boulon d'ancrage ou avec une plaque d'ancrage. Il est préférable d'utiliser une plaque d'ancrage, cela n'endommage pas tellement le profil. Il est fixé avec deux vis autotaraudeuses. L'un est vissé au cadre, l'autre au mur.
5. Le cadre installé est recouvert de mousse de polyuréthane sur toute la fenêtre de bas en haut. Après deux heures, les cales sont soigneusement retirées du dessous du cadre. Les vides résultants sont à nouveau remplis de mousse de polyuréthane.
La fenêtre coulissante en aluminium est un système de rails avec châssis intégrés. Les châssis coulissants se déplacent dans la direction souhaitée à l'aide de rouleaux et peuvent être combinés avec des châssis fixes.
1. L'installation de châssis de fenêtres coulissantes commence par l'installation de guides. À l'aide d'un ruban à mesurer, la longueur du haut et du bas du cadre de la fenêtre est mesurée et les marques sont appliquées sur les guides le long desquels la longueur requise est coupée. La coupe à la scie est lissée avec une lime.
2. Les guides finis sont fixés au cadre avec des vis, d'abord en haut et en bas du cadre, puis sur les côtés. L'espace entre les trous de vis est de 30 cm.
L'espace entre les guides et le cadre ne doit pas dépasser 5 cm, car en hiver, le mur peut geler.
3. En outre, une forme en forme de U est formée à partir des éléments supérieur et inférieur et un côté du châssis, où une unité à double vitrage ou un verre simple d'une épaisseur de 4 à 5 mm est inséré. Les côtés du verre doivent être préalablement recouverts d'un joint en caoutchouc. Pour une meilleure adhérence du joint à la surface, des coupes y sont effectuées dans les coins du verre. Le verre de fenêtre fini est inséré dans le châssis, auquel le deuxième côté du châssis est fixé avec des vis.
L'ouvrant est soutenu par 2-3 rouleaux, qui sont fixés au bas de l'ouvrant avec des vis à 5 cm des bords. Les vis doivent être serrées à basse vitesse.
4. Un joint à brosse est inséré dans les rainures du châssis de la fenêtre coulissante, les poils se faisant face. Shegel doit dépasser de quelques millimètres les dimensions de la pièce.
5. Le châssis de la fenêtre coulissante est d'abord placé dans la partie supérieure du cadre, puis placé sur les glissières inférieures du rail.
6. Dès que la fenêtre coulissante en aluminium est entièrement assemblée, la hauteur des galets pour un meilleur glissement des vantaux le long des rails de guidage est ajustée au bas du vantail avec une vis de réglage.
Fermer une fenêtre coulissante en aluminium pour la première fois demandera beaucoup d'efforts pour mettre le châssis en place.Le fait est que les trous dans les coins supérieurs de l'ouvrant sont de plus grande taille par rapport aux coins inférieurs afin d'éviter un positionnement incorrect.
Les fenêtres coulissantes en aluminium sont faciles à nettoyer. Une belle apparence est assurée en essuyant la vitre et le cadre avec de l'eau savonneuse ou des détergents spéciaux.
Pour une durée de vie plus longue, les raccords doivent être nettoyés de la saleté et lubrifiés avec des huiles une fois par an.
Utile? Enregistrez-le sur votre mur! Merci d'avoir aimé!
Installation d'un rebord de fenêtre


L'installation d'un rebord de fenêtre en aluminium n'est pas très différente de son homologue en plastique - enroulez-le sous le cadre, insérez-le dans une rainure spéciale, alignez et utilisez de la mousse pour "atterrir". Une fois l'installation terminée, vous pouvez utiliser un mastic silicone et le faire marcher le long du joint.
D'ailleurs! Il est préférable de l'installer sous une légère pente - de cette façon, moins d'humidité s'infiltrera.
La conception des produits
Les fenêtres coulissantes sont un système de guides avec des volets intégrés. Grâce aux rouleaux, l'ouvrant se déplace dans la direction souhaitée dans les coulisses. Ils sont principalement constitués d'ensembles constitués de deux ou trois guides profilés à rabats dont le nombre peut varier de un à cinq.
La commodité d'installer des fenêtres coulissantes en aluminium est d'économiser de l'espace, car le balcon n'a pas une grande surface. Lors de l'ouverture, les châssis ne prennent pas de place, ils se déplacent le long de la fenêtre.
Pour les structures de fenêtres coulissantes à deux guides, un profilé en aluminium d'une épaisseur de 64 mm est utilisé. Lors de la fabrication du système, ils commencent par la construction d'un cadre en aluminium dans lequel les châssis sont insérés. Les verres sont utilisés avec une épaisseur d'au moins 4 cm et toute la structure est scellée avec un système de brosse, qui fournit un niveau élevé d'isolation phonique et thermique.
Les rouleaux sont responsables du mouvement des volets, qui sont considérés comme le point faible de toute la structure en raison de la charge élevée. Pour éviter leur détérioration, la surface de ces éléments est recouverte d'une coque en polymère. Cela rend les roulettes pratiques et durables, de sorte que le système a une longue durée de vie. L'emballage comprend également des ferrures composées de poignées et de serrures. Dans certains modèles de systèmes, il existe des pièces supplémentaires qui améliorent leurs propriétés opérationnelles.
Coût d'ajustement
Pour ceux qui ont besoin d'ajuster les fenêtres, le prix du service est tout aussi important que le professionnalisme des artisans. Le coût dépend des facteurs suivants:
- la complexité et le type de travail effectué;
- la nécessité de remplacer les raccords cassés par un neuf;
- urgence et durée des travaux.
Le prix de l'ajustement des fenêtres est abordable et acceptable pour un large éventail de consommateurs. Vous pouvez en savoir plus sur le coût de ce service en appelant notre représentant à tout moment.
Est-il possible d'ajuster la fenêtre battante de vos propres mains?
Certaines personnes préfèrent se passer de l'aide de spécialistes et résoudre les problèmes par elles-mêmes. Est-il possible d'ajuster les fenêtres en aluminium de vos propres mains? Si vous avez les compétences et les outils nécessaires, alors oui.
L'ajustement des fenêtres en aluminium de vos propres mains peut inclure les étapes suivantes:
- Si les charnières et les loquets ne fonctionnent pas correctement, il est nécessaire de fournir à ces raccords une quantité suffisante de graisse spéciale. Pour éviter que ce problème ne se reproduise, les mécanismes des fenêtres doivent être lubrifiés au moins 2 fois par an.
- Si l'ouvrant s'affaisse, vous devez d'abord retirer les couvercles décoratifs des charnières à l'aide d'outils spéciaux. Ensuite, vous devez bien serrer les boulons. Un tel ajustement du châssis de la fenêtre est effectué conformément aux instructions, que vous pouvez télécharger sur Internet sur des sites spécialisés.
- Si la poignée se casse, les actions suivantes doivent être prises: tournez la plaque décorative située sous la poignée, vous donnant ainsi accès aux vis.Ensuite, vous devez retirer la poignée cassée, la remplacer par une nouvelle et la fixer en toute sécurité avec des outils spéciaux.
Concepts de vitrage de balcon froid et chaud


Vitrage à froid des loggias
Le vitrage à froid est réalisé à l'aide de vitrages simples installés dans des cadres de fenêtres légers. En été, il sera assez confortable dans une telle pièce, mais en hiver, un tel balcon ne peut être utilisé que comme débarras.
Il est important que le cadre de support d'un tel vitrage soit suffisamment fiable. Il n'est pas nécessaire d'économiser trop sur cet élément structurel, car
c'est le cadre qui absorbe l'essentiel de la charge due au vent.


Balcon vitré
Le vitrage de balcon chaleureux, équipé de toutes les règles et exigences de la technologie, vous permet d'utiliser confortablement la pièce à tout moment de l'année.
Lors de la réalisation d'un tel vitrage, il est important de créer des conditions dans lesquelles le point de rosée ne pourrait pas se déplacer dans la pièce. Sinon, de la condensation commencera à tomber sur votre balcon, ce qui réduira à néant tous les efforts pour augmenter la surface utilisable.
De plus, le point de rosée ne doit pas pénétrer entre les verres installés. Cette condition est particulièrement difficile à respecter si le balcon est situé à l'extérieur du contour du bâtiment.
Pour éviter les problèmes pouvant résulter de la condensation, 4 conditions de base doivent être remplies, à savoir:
- fournissent une isolation thermique et d'humidité de haute qualité du plancher et du parapet du balcon. Tout type de fissures ou de chemins de chaleur de l'extérieur vers la pièce entraînera de la condensation;
- installer des cadres avec double vitrage et le même joint de haute qualité. Dans le cas de l'utilisation de cadres en bois ordinaires, il est impératif de créer un double joint lors de l'installation de vantaux battants et de sceller toutes les fissures dans les éléments structurels aveugles;
- prévoir la possibilité de fournir une ventilation naturelle contrôlée. Les systèmes de balcon en métal-plastique de style moderne sont généralement équipés d'amortisseurs dès le début. Dans le cas de l'installation de cadres en bois, la vanne est installée dans le parapet;
- assurer le niveau d'échange d'air requis entre le balcon et l'espace de vie. Pour cela, la conception de la fenêtre reliée au balcon est complétée par un ventilateur d'extraction. De plus, une grille de ventilation spéciale est installée au bas de la porte.


















































