
Le poêle à fusée peut être fabriqué indépendamment en utilisant de l'acier ordinaire.Le poêle à fusée est largement connu comme une structure de chauffage à combustible solide à longue combustion. Pour atteindre une efficacité maximale, j'ai dû travailler dur. Un poêle à combustible liquide est capable de céder toute son énergie, mais le bois est plus difficile à traiter. Pour révéler tout le potentiel du bois, une chambre de post-combustion des gaz a été équipée dans des fours à jets.
Le principe de fonctionnement du four à fusée à combustion longue
La fusée ou le four à réaction Shirokov-Khramtsov ne tire pas son nom de son lien avec l'espace. Le point est dans la forme de l'appareil et le bruit qui est créé pendant le fonctionnement, qui rappelle le fonctionnement d'une fusée. Mais ce son indique que le four n'est pas utilisé correctement.
Types de fours à fusée à combustion longue:
- Portable (mobile);
- Stationnaire (pour le chauffage).
Le modèle de fusée le plus populaire est le Robinson. Il est souvent utilisé lors de randonnées. Grâce au petit appareil portatif, vous pouvez comprendre le principe de fonctionnement des fours à jet. La forme du four ressemble à la lettre "L".
Si le poêle fait trop de bruit et bourdonne pendant le fonctionnement, un tel mode est inefficace et coûteux. Normalement, il devrait y avoir un son calme, un petit bruissement.
Le four réactif a une trémie de réception. C'est la partie horizontale du tuyau. Dans le canal lui-même, une poussée se produit, c'est celle-ci qui affecte l'intensité de la combustion, qui chauffe le corps. C'est pourquoi il est conseillé de limiter l'apport d'oxygène. Sinon, le bois brûlera rapidement et toute la chaleur s'évaporera.


Un four à fusée à combustion longue est souvent utilisé pour chauffer les garages et les locaux techniques.
La fournaise fonctionne sur un jet d'air en raison du flux naturel d'air chaud. Plus la température des parois du four est élevée, meilleure est la combustion du bois. Cela vous permet de chauffer rapidement de l'eau dans un grand récipient, indispensable pour un road trip. Si vous équipez le tuyau d'une isolation thermique, après le réchauffement, des bûches épaisses peuvent être brûlées.
Principe d'opération
Malgré le fait que le four à fusée soit assez simple, son principe de fonctionnement repose sur les processus suivants:
- Circulation naturelle des gaz et de l'air chauffés à l'intérieur des canaux. Cela signifie que l'appareil ne nécessite pas de soufflage supplémentaire et que le tirage interne est créé par le système de cheminée. Plus la cheminée est haute, plus le tirage est fort.
- La post-combustion des gaz non travaillés (processus de pyrolyse) est effectuée avec une alimentation insignifiante en oxygène dans la chambre à combustible. Il permet une augmentation rapide de l'efficacité de l'appareil et une consommation efficace de matière combustible pendant la combustion.


Le processus de combustion du four lui-même est effectué comme suit:
- Le bois de chauffage est placé dans le compartiment à combustible et l'allumage est effectué.
- En outre, le mode de fonctionnement standard du four est établi, dans lequel la partie verticale de la structure - la cheminée - est complètement chauffée.
- Un chauffage suffisant du corps du four assure l'inflammation des substances volatiles dans la cheminée et la raréfaction de l'air dans sa partie supérieure.
- La poussée naturelle augmente, ce qui entraîne un afflux d'air dans le compartiment à carburant et une augmentation de l'efficacité du processus de combustion.
- Pour maintenir une combustion complète du matériau combustible, la structure du four doit être équipée d'une zone spéciale pour la postcombustion des gaz de pyrolyse.


Une version simple d'un poêle-fusée constitué d'un tuyau profilé est destinée à la cuisson et au chauffage des aliments, ainsi qu'au chauffage des maisons de jardin, des chalets d'été et des bains de camp.
Four à fusée à faire soi-même: avantages, dessins, inconvénients
La conception conventionnelle du four peut être améliorée si on le souhaite.Le poêle ventru perd donc beaucoup de chaleur, mais en équipant l'appareil d'un circuit d'eau ou d'une maçonnerie, vous pouvez résoudre ces problèmes. Pour toutes ces manipulations, des dessins sont réalisés.
Avantages des fours à jet:
- Conception simple et économique. Vous pouvez utiliser les matériaux à portée de main, sans coûts financiers importants. Tout le travail peut être fait à la main, des connaissances et des compétences spéciales ne sont pas nécessaires.
- Vous pouvez contrôler indépendamment la combustion en choisissant l'intensité souhaitée.
- Haute efficacité. En général, tout dépend de la qualité de l'installation. L'essentiel est de tirer le maximum d'énergie des gaz de combustion.
Mais une conception aussi simple et pratique présente également des inconvénients importants. Vous devez donc sélectionner un combustible spécial pour le poêle. N'utilisez pas de bois humide, sinon la pyrolyse ne se produira pas. La chambre de combustion peut commencer à fumer abondamment et tous les gaz iront dans la maison. De plus, le four à fusée nécessite des exigences de sécurité accrues.
Le modèle portable le plus populaire est le four à fusée Robinson. Il a été modifié et une grille a été ajoutée.
Les fours à jet faits maison ne sont pas utilisés pour chauffer le bain. Ils sont inefficaces en lumière infrarouge, qui joue un rôle important dans le hammam. Les structures de surface ont une petite zone de chauffage, elles ne peuvent donc pas chauffer le bain.
La version la plus simple du four à fusée
Un four de type fusée à marche simple se caractérise par une facilité d'autoproduction, un gain de temps et de ressources dans le processus d'utilisation, une taille et des dimensions compactes. Tous les travaux prendront 2-3 heures avec la préparation des outils et du matériel, ce qui est très pratique dans une randonnée ou un chalet d'été.
Une caractéristique de conception à prendre en compte est que la partie inférieure de l'unité, qui joue le rôle de fond de la chambre à combustible (grille), doit être mobile. Ceci est fait pour faciliter le processus de pose du bois de chauffage et de son chargement dans le bunker du four.
Si des copeaux sont utilisés, l'élément structurel rétractable sert de support pratique lors du chargement du combustible dans le four. De plus, la partie mobile facilite grandement le processus de nettoyage de l'unité des cendres.


Four de fusée à tube simple
Préparation des matériaux
Pour fabriquer un four à fusée, vous devez acheter:
- Un tuyau de section carrée (15 cm × 15 cm × 3, 40,5 cm) - 1 pc.
- Le tuyau est également carré (il est optimal de choisir 15cm × 15cm × 3,30 cm) - 1 pc.
- Bande d'acier (dimensions recommandées 30 cm × 5 cm × 3 mm) - vous devez acheter 4 articles de ce type.
- Une autre version d'une bande d'acier (avec des paramètres idéaux pour le travail 14cm × 5cm × 3mm) - 2 pcs.
- Un treillis, également en bon métal (acier) (choisissez les dimensions 30cm × 14cm) - 1 pièce.
De plus, vous devrez acheter une barre d'acier (3: 5 mm) - 2,5 mètres afin de fabriquer vous-même le caillebotis si vous le souhaitez. Un four Robinson de haute qualité à faire soi-même est le coût minimum du financement, un peu d'attention et de temps.
Instruments
Pour effectuer tous les travaux nécessaires, vous aurez besoin de:
- Bulgare.
- Soudage.
- Ciseaux pour métal.
Vous devriez également avoir des lunettes et des gants de sécurité.
Dessin
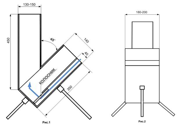
Les travaux sont effectués selon le schéma et le dessin indiqués ci-dessous:


Dessin du four de fusée le plus simple à partir d'un tuyau profilé
Instruction de fabrication
Tous les travaux de création d'un appareil de chauffage doivent être effectués par étapes. Le guide d'action se compose de plusieurs étapes qui doivent être suivies séquentiellement:
- Les tuyaux carrés doivent être découpés en ébauches de la taille requise selon le dessin.
- Faites des marques dessus, en tenant compte du fait que l'un de leurs bords devra être coupé (l'angle de coupe est de 45 degrés). Le travail est effectué par un broyeur.
- Les tuyaux résultants devront être soigneusement soudés - en conséquence, vous devriez obtenir une structure qui ressemble à une botte.
Lorsque vous fabriquez un four Robinson de vos propres mains et utilisez des dessins, il est important de suivre les recommandations concernant la taille des pièces qui y sont contenues. Les prochaines étapes seront comme ceci:
- Des coupes sont effectuées (sur le dessus du tuyau ou sur ses côtés) - les dimensions sont de 20 mm de profondeur et 3,5 mm de largeur (un support y sera installé pour l'installation de conteneurs).
- Une bande d'acier (qui a des paramètres 30cm × 5cm × 3mm) 1 de l'achat, doit être coupée exactement en deux.
- Marquez la deuxième bande d'acier restante (également avec des dimensions 30 cm × 5 cm × 3 mm) exactement au milieu.
- Soudez-y pour une performance de haute qualité de toutes les étapes du travail, les éléments des deux côtés de la bande coupée (vous devriez obtenir une forme cruciforme).
- Bandes d'acier (les dimensions à choisir sont 30cm × 5cm × 3mm) - les 2 pièces restantes et les pièces restantes de 14 cm de long, le cadre est soudé, qui sera rétractable.
- Les éléments ne sont pas soudés côte à côte, mais se chevauchent.
En outre, les travaux suivants sont réalisés, qui sont définitifs.
Au-dessus du cadre fini, à l'aide d'une machine de soudage par points, une grille prête à l'emploi (achetée en plus / spécialement) ou des morceaux d'une bonne tige d'acier coupés à la longueur souhaitée sont fixés. La distance à laquelle les pièces sont fixées est de 1 cm Ensuite, un support est installé sur le dessus du tuyau, la grille est poussée dans la trémie de combustion. Les principaux travaux de production du four peuvent être considérés comme terminés.
La phase de validation et de test du comportement a commencé. Il est nécessaire de mettre du combustible solide dans la chambre de combustion et de faire fondre le four.Si aucun problème n'est identifié dans son fonctionnement, vous devez attendre que tous les éléments structurels se soient complètement refroidis. Enfin, des travaux de peinture peuvent être effectués sur le four pour protéger les pièces de la corrosion. Pour cela, une peinture résistante à la chaleur est utilisée. Vous pouvez augmenter le confort d'utilisation en soudant une poignée à la porte de la chambre de combustion.
Dessins d'un four à jet à partir d'une bouteille de gaz et d'autres types
Les longs poêles à combustion sont divisés en stationnaires et mobiles. Les fours mobiles sont utilisés dans les randonnées, les pique-niques, dans la nature pour le chauffage et la cuisine. Les fixes servent à chauffer une maison, des dépendances, des serres et un garage. Dans le même temps, on distingue 4 types de structures.
Types de fours à jet:
- Réchaud de camping fait maison en tuyaux métalliques, seaux, bidons;
- Conception réactive à partir d'une bouteille de gaz;
- Four en brique avec un récipient en métal;
- Cuisinière avec un banc de poêle.


Les dessins d'un four à jet à partir d'une bouteille de gaz peuvent être téléchargés sur Internet ou réalisés à la main
La structure portable est équipée de sections de tuyaux. La seule différence concerne le bac à cendres installé. Pour la partie inférieure, une grille peut être utilisée.
Un appareil à partir d'une bouteille de gaz est plus difficile à construire, mais augmente considérablement l'efficacité. Pour l'installation de la structure, un baril ou une bouteille de gaz est nécessaire. Le bois de chauffage dans la chambre de combustion brûle en raison de l'arrivée d'oxygène en se chargeant à travers une fenêtre spéciale.
Les gaz brûlent dans le tuyau, qui est situé à l'intérieur de la structure, en raison de l'alimentation en air secondaire. L'effet est renforcé par l'isolation de la chambre intérieure. De l'air chaud est placé dans la hotte, puis dans la chambre extérieure. Les produits de combustion sont évacués par la cheminée.
Pour créer un tirage, le haut de la cheminée est placé 4 cm au-dessus de la fenêtre de chargement.
Le modèle combiné de brique et de métal est une structure stationnaire. Grâce à sa capacité calorifique élevée, le poêle à bois emmagasine et restitue la chaleur pendant plusieurs heures. C'est pourquoi les pièces à vivre sont chauffées avec une telle conception.
L'unité de fusée avec un banc de poêle est un appareil amélioré qui est capable de retenir la chaleur plus longtemps. Comme une partie de la chaleur sort par la cheminée, sa longueur a été augmentée. En raison de l'excision rapide des gaz chauds et d'une cheminée plus grande, ce problème a été résolu.
C'est ainsi que l'on obtient des poêles massifs avec un banc de poêle, qui ressemblent à un canapé ou un lit. Ce sont des appareils fixes en brique ou en pierre.Grâce à sa conception unique, le poêle est capable de retenir la chaleur toute la nuit.
Règles de fonctionnement des fours à fusée
Les fours à fusée, ainsi que d'autres modèles à combustion longue, doivent être lancés sur un tuyau chaud. Et si pour la deuxième version du four, cela n'est pas si important, alors pour la première, une cheminée froide ne conduira qu'à une combustion inutile de carburant. Pour cette raison, la structure a besoin d'un chauffage préalable - chauffage avec de la sciure de bois, du papier, etc.
Noter! L'échauffement ne peut être trouvé terminé qu'une fois que le bourdonnement a changé ou s'est complètement calmé. Après cela, le carburant est chargé. Il n'est pas nécessaire de le mettre en feu, car il prendra feu à cause du carburant "accélérant".
Il convient également de noter que le four à jet est incapable de s'auto-régler.Par conséquent, au début, le ventilateur s'ouvre complètement et n'est couvert qu'après que la structure commence à bourdonner puissamment. À l'avenir, l'accès à l'oxygène diminue progressivement.
Dessins DIY du poêle Ognivo et autres modèles
Il est préférable de fabriquer de vos propres mains de petites structures portables: la fusée Ognivo et Robinson. Il est facile d'effectuer le calcul, et le travail nécessitera des tuyaux en forme de coupe et des compétences en soudage des métaux. Les dimensions peuvent différer du dessin, ce n'est pas un problème. Il est important de respecter les proportions.
Pour augmenter l'intensité de la combustion, il est conseillé d'ajouter des buses improvisées à la structure. De l'air de combustion secondaire y sera fourni.
Les fours à fusée fixes sont fabriqués à partir d'une bouteille de gaz ou d'un baril en métal. Ces éléments servent de corps. À l'intérieur, le poêle est équipé de tuyaux plus petits ou de briques en argile réfractaire. À partir d'un cylindre, vous pouvez créer à la fois une unité fixe et une unité mobile.
Schéma du four à combustion continue:
- Cheminée;
- Casquette;
- Isolation;
- Trémie de chargement;
- Zone de combustion;
- Zone de postcombustion.


Le poêle Ognevo peut être acheté dans un magasin spécialisé à un prix assez raisonnable.
Il peut être difficile de calculer un four à fusée, car il n'y a pas de méthode exacte. Faites attention aux dessins finis vérifiés. Il est nécessaire de déterminer la taille de l'équipement de chauffage pour une pièce particulière.
Le principe de fonctionnement du four à fusée


Fourniture de fours fixes de type fusée casquettes spéciales, dont la fonction est la conservation des fumées et leur transfert pour chauffer la pièce.
En cours les produits de combustion se réchauffent, atteignent une température maximale (jusqu'à +1 000 ° C), montent sous la hotte, puis commencent à se refroidir progressivement et à descendre dans le conduit de cheminée.
En même temps, ils agissent simultanément trois forces:
- la gravité, forçant des masses de gaz plus lourdes et plus froides à couler;
- la pression des produits combustibles à incandescence nouvellement fournis;
- le tirage naturel de la cheminée.
La puissance totale de ces trois forces permet de fixer des canaux de fumée de forme arbitraire à des fours de fusée stationnaires. Cette fonctionnalité utilisé pour aménager de confortables lits chauffés.
Assemblage d'un four à jet de vos propres mains pour le chauffage
La construction du four commence par des travaux préparatoires. Vous devez d'abord décider du lieu de construction. Il est choisi en fonction des exigences relatives aux structures combustibles solides: bois ou charbon.
Lorsque le lieu a été décidé, il est nécessaire de bien le préparer pour la construction. Le parquet sous le poêle est en cours de démontage. Ils creusent une petite fosse et tassent le fond.
Dans une petite pièce, un four à jet est placé dans le coin. La trémie de chargement occupe un côté et la chaise longue de l'autre.
Le canon ou le cylindre doit également être préparé pour l'installation. Pour ce faire, le couvercle et le robinet en sont coupés. Ensuite, la structure est nettoyée. Ensuite, une solution est préparée.
Étapes de construction d'un four à jet avec un banc de poêle:
- Le fond du trou creusé est aménagé avec des briques en argile réfractaire. Le coffrage est réalisé le long du contour de l'évidement. Le renforcement est effectué.
- La base est aménagée et coulée avec du béton. Un jour plus tard, lorsque le béton durcit, d'autres travaux commencent.
- La base du poêle est constituée de briques en argile réfractaire. Soulevez les parois latérales, faites le canal inférieur.
- La chambre de combustion est recouverte de briques. Il y a deux trous sur les côtés. L'un est pour la chambre de combustion, le second est pour le tuyau vertical (colonne montante).
- Le corps métallique est équipé d'une bride dans laquelle coulera le canal horizontal du poêle. Tous les câbles doivent être étanches à l'air et bien scellés.
- Une sortie latérale est fixée au tuyau horizontal, qui sert de cendrier.
- Un tube à feu est fait de briques. En règle générale, il est carré.
- Le tube à flamme est équipé d'un boîtier. Les trous sont recouverts de perlite.
- L'assemblage du bouchon se fait à partir de la partie coupée du canon ou du cylindre. Il est équipé d'une poignée.
- Équipez le corps du four de brique ou de pierre.
- Équipez la façade du four. Tracez le contour souhaité.
- Un canon préparé est placé sur la base. La partie inférieure doit être scellée avec de l'argile.
- À l'aide d'un tuyau ondulé, un canal est formé qui relie la chambre de combustion à la rue.
- Les tuyaux de l'échangeur de chaleur sont connectés au tuyau inférieur.
- Installez une cheminée. Tous les éléments doivent être scellés à l'aide d'un cordon d'amiante et d'un revêtement réfractaire.


Pour assembler correctement un four à jet de vos propres mains, vous devez d'abord regarder la vidéo de formation et étudier les recommandations des spécialistes.
Ensuite, vous devez donner au poêle la forme d'un canapé. La cheminée extérieure est équipée d'un piège à feu et à goudron. Lorsque tous les matériaux sont secs, la conception peut être testée.
Four fusée amélioré avec circuit d'eau
Une chaudière à combustion longue peut être obtenue en équipant le poêle d'une chemise d'eau. L'eau de chauffage peut ne pas être suffisamment efficace. Le fait est que la majeure partie de l'air chaud pénètre dans la pièce et les conteneurs sur les plaques de cuisson. Pour créer un chaudron de fusée, vous devez abandonner la possibilité de cuisiner sur la cuisinière.
Matériel nécessaire pour équiper un poêle avec un circuit d'eau:
- Briques et mortier en argile réfractaire;
- Tube en acier (diamètre 7 cm);
- Baril ou cylindre;
- Isolation;
- Tôle d'acier et barillet d'un diamètre plus petit que la coque pour créer une chemise d'eau;
- Cheminée (diamètre 10 cm);
- Détails de l'accumulateur de chaleur (réservoir, tuyaux, tuyau de raccordement).
Une caractéristique des fours fusées à circuit d'eau est que l'isolation de la partie verticale assure la combustion des gaz de pyrolyse. Dans ce cas, l'air chaud est dirigé dans un serpentin avec un circuit d'eau et dégage de la chaleur vers le poêle. Même lorsque tout le combustible est brûlé, de l'air chaud continue d'être fourni au circuit de chauffage.



