Parfois, des situations surviennent lorsqu'il est nécessaire, sans coûts matériels importants, de chauffer une petite pièce (garage, atelier ou entrepôt) aussi efficacement et rapidement que possible. Une excellente solution au problème sera un poêle compact à faire soi-même, qui nécessite de l'ingéniosité, du désir, des outils et du métal pour créer.
Un simple poêle à ventre plat peut être construit à partir de matériaux à portée de main. Vous pouvez utiliser une canette ordinaire ou un baril à paroi épaisse. De nombreuses années de pratique ont montré qu'un métal très épais (plus de 8 mm) est trop difficile à réchauffer. Ainsi, l'efficacité diminue et la majeure partie de la chaleur n'est pas utilisée pour le chauffage.
Si le métal s'avère trop fin, sous l'influence de températures élevées, il commencera à se déformer et perdra rapidement sa forme d'origine. La meilleure option est des murs d'environ 3-4 mm.
Poêle rectangulaire avec réflecteur
Au moment de décider de la forme et de la taille d'un poêle fini, chacun doit être indépendant. Une personne ayant une formation et des compétences en ingénierie peut prendre n'importe quelle conception, même la plus simple, et apporter les modifications souhaitées pour l'améliorer.
Dessin d'un poêle ventral rectangulaire :

Un poêle à faire soi-même simple et multifonctionnel est fabriqué à partir des matériaux suivants:
- Contour et dessin de conception simple montrant toutes les dimensions de base
- Tôle (sa quantité dépend des dimensions souhaitées du four)
- Coins en acier (épaisseur 4-5 mm)
- Tube métallique 25-30 mm
- Tuyau 180 mm
- Machine de soudage
- Main de travail et outil électrique
Le corps du four sera réalisé sous la forme d'un rectangle avec des tôles d'acier soudées bout à bout les unes aux autres. Il est nécessaire de couper les pièces sous cinq plans principaux (parois inférieure, supérieure, latérale et arrière). Sur le panneau avant, il y aura un ventilateur et une porte pour la fournaise, il sera donc possible de résoudre le problème plus tard.


Tout d'abord, les surfaces latérales sont soudées vers le bas. Il est nécessaire de s'assurer qu'ils sont situés strictement verticalement, à l'aide d'un niveau ou d'un carré, et ancrés à angle droit. Après avoir attrapé dans 2-3 endroits, une fois de plus nous sommes convaincus de l'exactitude de leur emplacement et de leur cuisine.


Après cela, la paroi arrière est soudée. Tout l'espace interne doit être divisé en trois parties:
Lecture recommandée: un article sur la façon de fabriquer soi-même une chaudière à pyrolyse
Les deux derniers doivent être séparés par une grille sur laquelle sera déposé du combustible solide (tourbe, bois de chauffage). Cela se fait comme suit:
- De l'intérieur sur les côtés à une certaine hauteur (10-15 cm), les coins sont soudés sur toute la longueur
- Pour le treillis, il est nécessaire de préparer des bandes de tôle d'acier épaisse d'une largeur de 25-30 mm et d'une longueur correspondant à la largeur du poêle


- La distance entre les plaques est d'environ 5 cm
- Les bandes sont soudées à deux tiges métalliques d'un diamètre de 15 à 20 mm de manière aussi fiable que possible, car elles ont un autre rôle à jouer: les raidisseurs


Il n'est pas nécessaire de souder la grille aux coins intérieurs. Si nécessaire (nettoyage du poêle, réparation), il peut être facilement obtenu. Après un certain temps, certaines plaques peuvent griller et devront être remplacées. Il existe de nombreuses autres raisons de laisser la grille amovible.


À l'étape suivante, vous devez souder deux tiges métalliques sur le dessus, sur lesquelles le réflecteur sera situé. Ce dernier est une feuille de métal qui sépare le flux de fumée et la chambre de combustion. Le réflecteur est amovible.


Il est nécessaire de positionner le réflecteur de manière à ce qu'un canal soit formé à l'avant, permettant à la fumée de s'échapper.Il se réchauffera le plus à l'intérieur, il est donc fait de métal très épais (12-16 mm).
Il est temps de commencer les dernières étapes du travail. Tout d'abord, la future couverture de poêle est soudée. Il ne sera pas superflu de prévoir à l'avance une ouverture pour la cheminée. Puis le linteau supérieur est découpé et soudé, puis un plus étroit, placé au niveau de la grille et séparant les portes de la grille et du cendrier.


Vous ne devriez pas vous soucier beaucoup de la taille des portes. L'essentiel est qu'il soit pratique de passer du bois de chauffage à travers eux et d'enlever les cendres et les cendres. La porte de la chambre de combustion est généralement faite sur presque toute la largeur, de sorte que le réflecteur et la grille puissent être retirés, pour le cendrier - plus étroit.


Ensuite, vous devez souder les poignées des portes du poêle, les loquets et les rideaux. Ces derniers sont recommandés pour être fabriqués par vous-même à partir d'une tige épaisse et d'un tube en acier. Un tel travail ne devrait pas être difficile.


Après avoir tout rassemblé, il est temps de réfléchir à la façon d'installer la structure finie sur les jambes. Il est recommandé qu'ils soient constitués d'un tube métallique de 2-3 cm de diamètre et 8-10 cm de longueur avec un écrou soudé à l'extrémité et un boulon vissé. Cela vous permettra d'ajuster la hauteur. Pour beaucoup, une telle étape peut sembler étrange, mais pendant le processus d'installation, tout deviendra clair.
Il est temps de penser à la cheminée, qui sera faite d'un tuyau d'un diamètre de 15 à 18 cm et qui devrait en même temps être conduite par un trou dans le mur. Les coudes sont faits à un angle de 45 degrés, il ne doit pas y avoir de sections horizontales.


Un registre rotatif doit être fourni à l'extrémité inférieure de la cheminée. Pour cela, un cercle est découpé dans une tôle, d'un diamètre légèrement inférieur à la caractéristique similaire du tuyau, dans lequel un trou est percé sous la poignée pour rotation. Ce dernier peut être réalisé à partir d'une barre métallique.
Il est nécessaire de placer la cheminée sur un manchon de 15-20 cm de hauteur, il est fabriqué à partir d'un produit d'un diamètre légèrement inférieur à la cheminée et est soudé le long du trou au couvercle supérieur. Il est temps d'installer le poêle, d'ajuster la hauteur et c'est tout - vous pouvez chauffer la pièce.
Peut-être serez-vous également intéressé par un article sur la façon de mettre en œuvre le chauffage alternatif d'une maison privée.
Réchaud à ventre plat simple à partir d'une canette
Le réchaud à ventre plat à faire soi-même le plus simple est fabriqué à partir d'une boîte de conserve ordinaire. Il n'est pas nécessaire de parler de la durabilité d'une telle structure, mais elle est rapidement construite, facile à assembler et donne suffisamment de chaleur.
Tous les travaux consistent en l'installation des pieds, la disposition du tuyau de sortie et quelques opérations cosmétiques. Pour travailler, vous avez besoin de:
- Pouvez
- Tuyau de cheminée
- Grille de fil
- Machine de soudage
- Outils


Commencer
- Nous plaçons la boîte horizontalement et marquons l'emplacement du ventilateur, qui a la forme d'un rectangle ou d'une faucille. Placez-le sous le couvercle
- Un trou est percé dans le mur ou le fond de la boîte, égal au diamètre de la cheminée
- Pour fabriquer une grille, vous devez vous approvisionner en fil d'acier. Il est plié, porté à travers le couvercle vers l'intérieur et légèrement déplié pour que le zigzag soit dans la position souhaitée, tout en restant pratique pour poser des copeaux, du bois de chauffage, etc.
- La boîte doit être fixée sur des pieds, qui sont découpés dans des tubes ou des coins et soudés
- La cheminée est soudée
Matériaux et outils
Pour créer un poêle à ventre plat, vous aurez besoin de: • métal d'une épaisseur de 3 ± 0,5 mm: des feuilles plus minces brûleront rapidement, de plus, sous l'influence de la température élevée, elles peuvent être entraînées et le four deviendra informe; le métal à paroi épaisse se réchauffera très longtemps; • tuyau de cheminée; • tiges 16 mm; • une feuille de métal d'une épaisseur de 0,3 mm pour l'installation d'un caisson de collecte des cendres; • ruban à mesurer, règle,un morceau de craie; • machine à souder 140-200A; • meuleuse pour la coupe du métal; il est plus pratique d'utiliser un coupe-gaz pour faire des trous ronds; • brosse métallique pour le nettoyage des points de soudure; • roue émeri pour le réglage des portes; • percer et percer.
Schémas de Burzhuik
Le principal avantage d'un poêle rectangulaire
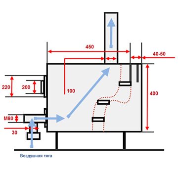
, contrairement aux produits ovales constitués de tuyaux ou de bouteilles de gaz, il consiste en une plus grande surface de la surface chauffée, son efficacité sera donc beaucoup plus élevée. La taille optimale pour un poêle à ventre plat est de 800x450x450 mm. Un poêle de cette taille ne prend pas beaucoup de place et peut facilement s'adapter même dans une petite pièce.


Une distinction importante Fours Loginov
est la présence de deux plaques (
réflecteurs
) en haut de la chambre de combustion. Comme
chemin de gaz
dans le même temps, il augmente, le transfert de chaleur d'un tel poêle à ventre est nettement supérieur à celui d'un poêle en métal conventionnel.
Conseils
... S'il est nécessaire de réduire la taille du four Loginov, il est souhaitable de ne modifier que sa largeur. Avec une modification de la longueur et de la hauteur de la structure, son efficacité peut être considérablement réduite.


Schéma détaillé du poêle Loginov
Conception du four
Tout poêle pour un bain se compose de plusieurs éléments essentiels :
- Casserole à cendres... Il est situé immédiatement sous la chambre de combustion, de sorte que les cendres restantes après la combustion du carburant y pénètrent. Le réservoir doit être nettoyé de temps en temps des cendres.
- Soufflé... Il s'agit d'une porte spéciale qui permet à l'air d'entrer dans le four, ce qui permet au combustible de mieux brûler.
- Registre de cheminée... Cet amortisseur assure la traction dans le four. Plus il est ouvert, plus le combustible brûle de manière intensive et rapide dans le four. Une fois que les charbons et le poêle ont complètement brûlé et refroidi, ces registres sont complètement fermés pour retenir la chaleur. Si les charbons couvent encore, pour éviter l'empoisonnement au monoxyde de carbone, laissez un espace de 2 cm pour la ventilation.
- Serpentin ou chaudière... Dans ces cellules, intégrées dans le compartiment à carburant, l'eau est chauffée. La vapeur qui s'en échappe crée le microclimat nécessaire dans le bain.De plus, l'eau n'aura pas besoin d'être bouillie en plus.
Chacun des types de poêles a ses propres caractéristiques, qui doivent être prises en compte lors du choix de la meilleure option pour créer certaines conditions dans le bain.
Il existe des fours tels que:
- Sur le bois... Cette conception de four est la plus courante et la plus courante. Il comprend une chambre de combustion, une grille, un cendrier et une cheminée. Le matériau du poêle peut être en brique ou en métal. Il est à noter que de telles structures, avec leurs petites dimensions, sont capables de réchauffer rapidement et efficacement même une pièce spacieuse. Ils sont souvent utilisés dans les bâtiments où l'alimentation centrale en gaz n'est pas connectée. C'est un poêle à bois pour un bain qui est le plus facile à cuisiner de vos propres mains. Un bonus agréable est le léger crépitement du bois lors de la combustion, qui calme et apaise.
- Fonte... Selon la technologie de fonctionnement, ces poêles sont à combustion constante et temporaire (plus en détail: «Comment choisir un poêle en fonte pour un bain - trucs et astuces»). Les constructions temporaires sont chauffées au bois. Vous ne pouvez commencer à utiliser le hammam qu'une fois que le carburant est complètement brûlé. Mais les fours à chauffage constant fonctionnent au gaz ou au combustible liquide. Dans ce cas, vous pouvez rester dans le hammam tout le temps pendant que le poêle est chauffé, et la vapeur est répartie uniformément dans toute la pièce, et elle se réchauffe beaucoup plus rapidement.
- Électrique... Les usines de ce type sont disponibles en différentes tailles, capacités et rendements. De tels fours sont capables de rattraper rapidement la température requise, ils sont durables et dégagent bien de la chaleur. Au prix d'une fournaise électrique, ce n'est pas très cher, de plus, ils n'ont pas besoin de cheminée.
- Pour les saunas finlandais... La conception même de ces fours implique la production de vapeur sèche et à haute température dans le hammam. Ils peuvent être électriques ou au bois. En présence de dessins spéciaux, le soudage d'un poêle pour un bain de type finlandais peut être effectué indépendamment (pour plus de détails: "Quel poêle finlandais pour un bain est le mieux adapté").
Il convient de prêter attention à un certain nombre de caractéristiques des fours de différentes conceptions.
En particulier, les poêles à bois peuvent être alimentés avec d'autres types de combustibles solides, par exemple du charbon ou des briquettes.
Les installations au gaz en fonte doivent être raccordées à un système d'alimentation en gaz centralisé. L'utilisation de bouteilles de gaz n'est pas recommandée en raison du risque élevé d'explosion ou d'incendie.
De plus, les poêles au mazout ont une odeur spécifique qui est émise lors de la combustion. Et leur risque d'incendie est aussi grand que celui du gaz.
Si vous envisagez d'installer un équipement électrique, il convient de vérifier l'état du câblage et l'épaisseur du câble. Et du point de vue de l'économie, en raison des prix élevés de l'électricité, il est préférable d'utiliser de tels fours uniquement dans de petites pièces.
Mais si vous déterminez combien il en coûte pour cuisiner un poêle pour un bain, tout dépendra de la taille du poêle et de la quantité de matériaux nécessaires.
Les principales étapes de la fabrication d'un poêle à ventre plat
1. Tous les détails sont marqués sur une feuille de métal : 6 rectangles en acier pour les parois du four, 1 rectangle pour créer un réflecteur de fumée, une plaque pour une grille et un loquet pour une porte. 2. Découper
une feuille de métal est possible à n'importe quelle base métallique. La guillotine, contrairement au moulin, vous permet de le couper (hacher) plus précisément. Dans ce cas, le redressage (alignement des feuilles) n'aura pas à être effectué. 3. Le corps du four est réalisé sous la forme d'un rectangle. Leurs côtés sont réunis à un angle de 90 ° et soudés ensemble.


Soudage de caisses
4. Pour éviter les erreurs, la boîte du four n'est d'abord collée que par soudage à plusieurs endroits, puis seulement après avoir vérifié son horizontale et sa verticale, ses coutures sont soudées.
Important!
Toutes les connexions dans le boîtier sont soigneusement soudées;
pour vérifier les coutures
pour l'étanchéité, vous pouvez enduire les joints de craie ou de kérosène.
5. Les cordons de soudure sont nettoyés avec une brosse métallique. 6. L'espace intérieur du poêle est divisé en trois parties: une chambre de combustion, une chambre à fumée et un cendrier. Pour séparer la chambre de combustion du bac à cendres, une grille est posée entre eux, sur laquelle le combustible sera placé. Pour ce faire, à une hauteur de 10-15 cm du bas du four, les côtés et à l'arrière de la boîte sont soudés coins 5x5 cm
sur lequel le treillis sera situé.
Conseils.
Il est préférable de faire une grille à partir de 2-3 parties détachables. Sinon, lors du remplacement d'une grille brûlée, il sera difficile de la sortir de la chambre de combustion.
7. La grille est soudée à partir de barres ou bandes d'acier épaisses de 30 mm de large. Ils sont attachés à 2 raidisseurs - des tiges d'un diamètre de 20 mm. Étant donné que les grilles brûlent avec le temps, il est préférable de rendre une telle grille amovible.


Fabrication d'une grille
8. À une distance de 15 cm du haut de la boîte, deux tiges solides sont soudées, sur lesquelles elle sera agitée un ou deux réflecteurs amovibles
- des tôles à parois épaisses, qui emprisonneront le flux de gaz chauds et les enverront en postcombustion. Cependant, ils ne doivent pas couvrir complètement le four. Pour que la fumée chaude pénètre dans la cheminée, un retrait d'environ 8 cm est pratiqué à l'avant (pour la première feuille) et à l'arrière du poêle.


Schéma du passage des gaz dans le plus simple poêle et four avec un réflecteur installé
9. Ensuite, la partie supérieure de la boîte est soudée, puis découpée trou de tuyau
.


Trou de tuyau
10. La partie avant du poêle avec des trous pour les portes de la chambre de combustion et du bac à cendres est soudée en dernier. 11. La taille de la porte du foyer doit être suffisamment grande pour permettre de faire le plein et de changer la grille sans effort. Le trou pour le bac à cendres est légèrement plus petit. 12. Les charnières sont soudées d'abord à la porte, puis au corps du poêle. Ils peuvent être achetés prêts à l'emploi ou soudés à partir de deux tubes de diamètres différents. Les poignées de porte peuvent être constituées d'une bande de métal ou d'une barre.


Soudage de la porte
Important!
Lors de la fixation des portes,
les adapter au corps
aussi étroitement que possible; pour cela, ils sont redressés (nivellement) et nettoyés à la meule d'émeri. Les loquets en coin qui ferment les portes s'adaptent aussi étroitement que possible au corps.
13. Ce four peut être utilisé pour cuire des aliments ou de l'eau chaude. Pour cela, un trou du diamètre requis est découpé dans la partie supérieure du caisson. Brûleur de four
qui rentrera dans ce trou peut être acheté dans n'importe quelle quincaillerie. 14. Pour la facilité d'utilisation, la conception
installé sur pattes
ou un support de tube soudé. 15. La cheminée est reliée au poêle
en utilisant un manchon
. 16.
Pour insérer un registre
régulant la sortie des fumées, deux trous sont percés dans le tuyau. La tige métallique est insérée dans les trous et pliée à 90 °. Un "penny" en métal est saisi au centre du tuyau - une porte dont le diamètre doit être légèrement inférieur au diamètre du tuyau lui-même de 3 à 4 mm.
Comment faire un poêle en métal
Étant donné qu'aucun calcul et dessin complexes ne sont nécessaires pour créer un poêle de bain, de nombreuses personnes préfèrent effectuer ce travail elles-mêmes. Un design fait maison prêt à l'emploi dans ses caractéristiques fonctionnelles ne différera en aucun cas d'un homologue d'usine. En règle générale, un tel four nécessite le chauffage de l'évier, du dressing et du hammam.
Avant de cuisiner de vos propres mains une cuisinière pour un bain, vous ne devez acheter que des matériaux et consulter des spécialistes.
Les éléments suivants sont nécessaires pour souder le four:
- tôle d'acier d'une épaisseur de 8 mm ou tube métallique d'une section transversale de 50 cm;
- cheminée d'une section transversale de plus de 10 cm;
- tiges de renfort d'une section transversale de 1 cm ou plus;
- barres de grille;
- réservoir d'eau en métal d'une capacité de 1000 litres;
- portes pour la chambre de combustion et le bac à cendres;
- Machine de soudage;
- meuleuse avec un jeu de roues pour la coupe et le meulage.
Pour comprendre comment bien cuire un poêle de sauna, nous vous suggérons d'étudier les instructions détaillées avec une photo.
Dispositif de cheminée
• Pour éviter que la chaleur précieuse ne s'échappe trop rapidement par le tuyau, celui-ci doit être spécialement conçu. Un tel dispositif comprend deux parties principales: verticale
hauteur de 1,2 m, installée à un angle de 90 ° au-dessus du four et une partie inclinée, appelée
porc
, D'une longueur de 2,5 à 4,5 m ou plus, dans laquelle la fumée s'éteint. C'est le sanglier qui donne jusqu'à 1/4 de la chaleur de tout le four.


Les porcs de cheminée
• Une personne de grande taille peut toucher un tuyau chauffé, le porc doit donc avoir une housse de protection en forme de filet. Pour éviter les brûlures, la distance entre le sol et ce tuyau doit être de 2,2 M. La partie verticale du tuyau provenant du four est en outre enveloppée d'isolant thermique.
Important!
Le tuyau doit être situé à une distance de 1,2 m des murs plâtrés et à 1,5 m des structures en bois.
Conseils.
La pose d'un tuyau à travers un plafond et un toit en bois est un processus assez laborieux. Il est beaucoup plus facile de le faire sortir par un trou dans un mur ou une fenêtre.


Sortie de fumée par la fenêtre
Règles pour une installation sûre d'un four métallique
Le poêle ventru chauffe beaucoup plus fort qu'un poêle en briques, donc tous les objets inflammables doivent être à une distance suffisante du poêle. Si le sol de la pièce est en bois, il est installé uniquement sur des briques ou des tôles. Le métal, à son tour, est posé sur une feuille d'amiante avec un retrait de celui-ci à 35 cm ou plus des bords du poêle. Devant la chambre de combustion, elle doit dépasser de 5,5 cm.L'amiante peut être remplacé par du feutre imbibé d'argile. Il est également possible d'installer un tel écran pour réfléchir la chaleur sur le béton.
Important!
Un four en état de marche nécessite une surveillance. Vous ne devez pas quitter la pièce pendant une longue période, où le poêle est chauffé.


Installation d'un poêle à pans de bois sur une base en brique
Matériaux de production et sécurité pendant le fonctionnement des fours
Les fours à fer sont le plus souvent en acier ou en fonte. Ces matériaux peuvent supporter des températures très élevées sans modifier leurs propriétés.
Pour augmenter le transfert de chaleur et ralentir le refroidissement du four, vous devez procéder comme suit:
- Couvrir le four avec de la pierre ou des briques réfractaires;
- Installez des foyers spéciaux dans le poêle qui réduisent le taux de perte de chaleur.


La sécurité lors de l'allumage et de l'utilisation du poêle est un point très important.Par conséquent, quel que soit son objectif, les points suivants doivent être rappelés et respectés:
- Les matériaux réfractaires doivent être placés dans le four aux endroits où il y a à proximité d'une flamme nue;
- Il est conseillé de recouvrir les matériaux de finition de la pièce autour du poêle avec du métal ou de traiter avec de l'amiante. Cela les empêchera de brûler;
- Le tuyau de cheminée posé doit être fini avec des matériaux qui ne sont pas inflammables;
- L'épaisseur de la maçonnerie du four et les joints entre les briques doivent être conformes aux normes;
- Avant d'utiliser le poêle, il doit être soigneusement vérifié, assurez-vous que la fumée ne pénètre pas à travers la maçonnerie dans la pièce;
- Lors du chauffage du four, il est nécessaire d'utiliser des dispositifs qui vous permettront d'éliminer rapidement les matériaux de combustion;
- Le combustible avec lequel le poêle sera allumé doit correspondre à sa destination. Il n'est pas recommandé d'utiliser un type de matériau inapproprié pour allumer le four;
- Il est strictement interdit d'utiliser de l'essence ou du kérosène comme matériau pour accélérer l'allumage. Ils sont capables non seulement de s'enflammer et de s'enflammer brusquement, mais aussi en raison de la substance qui est libérée lors de leur combustion, ils peuvent exploser;
- Une flamme nue ne doit pas être laissée sans surveillance dans le four. Vous devez également être en mesure de bien réguler le tirage et en aucun cas de bloquer la cheminée avec un registre;
- Il est conseillé d'acheter un extincteur, qui sera situé près du poêle.


Les règles ci-dessus sont en mesure d'assurer le fonctionnement sûr du four.
Nous augmentons l'efficacité du four
Le poêle à souder est capable de chauffer la pièce en quelques minutes seulement. De plus, tout ce qui tombe sous la main peut être jeté dans le foyer : comme il n'y a pas de réseau ramifié de cheminées à l'intérieur, et que les fumées y sortent « directement », il n'y a pas à craindre qu'elles s'encrassent.
Mais si un poêle ordinaire, installé dans des locaux de résidence permanente, dispose d'un vaste réseau de cheminées qui emprisonnent la chaleur, dans un poêle, il entre directement dans le tuyau, son efficacité n'est donc pas trop élevée. C'est pourquoi il est trop "glouton" et nécessite beaucoup de carburant.
Pour réduire la consommation de carburant, vous pouvez utiliser les conseils suivants de fabricants de poêles expérimentés: • porte de la chambre de combustion et a soufflé
dans un tel four doit être aussi étanche que possible; sinon, l'alimentation en air du poêle augmentera et le combustible brûlera trop rapidement; • pour réguler la sortie de fumée chaude dans la cheminée
il est souhaitable de prévoir un amortisseur
; • près du poêle peut être fourni
écrans métalliques latéraux
à une distance de 5-6 cm du poêle, auquel cas il chauffera la pièce non seulement par rayonnement de chaleur, mais aussi par convection (circulation d'air chaud); • un réchaud à ventre plat, «habillé» d'un boîtier métallique, aidera à conserver la chaleur plus longtemps;


Poêle Potbelly dans un boîtier


Four rond avec postcombustion et boîtier avec pistolet thermique
• pour retenir la chaleur dans la pièce, des coudes doivent être formés dans le tuyau; cependant, en même temps, la suie s'y attardera, il est donc conseillé de créer une structure pliable; • le tuyau peut également avoir une forme en gradins: disposer les coudes par étapes, chaque pas tournant de 30 °; en outre, chacun des genoux doit être solidement fixé au mur avec des tiges;


Poêle avec coudes de cheminée
• débit de cheminée
doit être inférieure à la capacité du four lui-même, auquel cas les gaz chauds n'entreront pas immédiatement dans le tuyau; son diamètre ne doit être que 2,7 fois plus grand que le volume du four, par exemple, avec un volume du four de 40 litres, le diamètre doit être de 110 mm; • vous pouvez augmenter l'efficacité du four et utiliser
soufflage de cheminée avec un ventilateur
- cela transformera le four en une sorte de canon à fumée; • réduire la circulation de l'air
bois de chauffage au four
devrait s'ajuster aussi étroitement que possible; s'il est chauffé au charbon, remuez le plus rarement possible les cendres qui en résultent; • pour réguler le débit d'air, la porte de la soufflante peut être rendue réglable en l'équipant de
fentes et loquet
qui couvrira ces lacunes; • pour augmenter la surface de chauffe, il peut être nervuré, c'est-à-dire soudé sur son corps perpendiculairement au four
rayures métalliques
; • si vous mettez de la vapeur sur le poêle
seaux ou boîte en métal avec du sable
, alors ils accumuleront la chaleur et la stockeront même après l'extinction du four;
remplissage de sable ou accumulateur de chaleur en pierres
peut être cousu à l'intérieur du corps métallique du four;


Le schéma d'un poêle à ventre avec un remblai de sable, le four est constitué d'un tuyau d'un diamètre de 500 mm, sa longueur est de 650 mm
• cuire, doublé de 1-2 couches de brique
, gardera au chaud beaucoup plus longtemps;


Écran de brique
• le volume du four compte également: plus la superficie de ses murs
, plus ils donneront de chaleur dans la pièce; •
briques ou tôles
, sur lequel le poêle est installé, aidera non seulement à protéger la pièce du feu, mais aussi à rester au chaud.
Vidéo connexe: Poêle à faire soi-même
D'après ma propre expérience, je sais qu'acheter même le poêle le plus simple peut porter un coup dur au budget d'une personne ordinaire. Après avoir étudié les nombreux modèles de poêles disponibles, j'ai décidé de donner la préférence à Buleryan. Une modification maison d'un poêle étranger bien connu a parfaitement pris racine dans mon garage.


Poêle Buleryan à faire soi-même - dessins et schéma de montage
ventilateur de four
Dans cette vidéo, vous savez comment faire un soufflage pour le four de vos propres mains, ce sera un ventilateur fait maison comme ...
deuxième chaîne sur youtube - https://www.youtube.com/channel/UCedSQ_YEeQ8-3osEysAHh8Q groupe en contact pour des questions et commentaires, sur ...
Fabrication de fourrures de forgeron maison à partir de contreplaqué et de dermantine Une autre fourrure de forgeron https: //www.youtube.com/watch? V = pb-tXoQ5Ns8 ...
Comment souffler de l'air dans une forge maison de vos propres mains à la maison.
Choix de deux ventilateurs par une règle empirique et connexion via une alimentation informatique, pour un brûleur ...
Hotte productive pour sorbonne, c'est aussi un souffleur pour forge, qui peut être alimenté ...
Fabriqué un four puissant pour la fusion des métaux ...
Forge forge, forge démontable, version garage de la forge, ventilateur BLACKSMITH VT1-2.
Fabriqué à partir de déchets, sauf pour le moteur) Dans la vidéo, quand je l'ai allumé, j'ai étouffé le son, juste des caméras ...
Masse faite maison avec un percuteur rond. Ceci est une masse d'essai, à l'avenir je ne ferai exactement la même chose qu'à partir d'arbres ...
Il y a beaucoup de controverses et de spéculations sur ce qu'il faut utiliser comme ventilateur pour une fournaise à gaz….
Refonte du système de soufflage et de nettoyage du bac à cendres dans une forge artisanale au charbon. partenaire vidéo: https: // al ...
Une courte vidéo sur le nouveau four à charbon et des conseils sur comment et comment le fabriquer. J'utilise une vieille cuisine pour souffler ...
Robiv bon, ale pas dovgo,
Une option abordable pour l'alimentation en air de la fournaise.
Comment connecter un moteur électrique 12V d'un réchaud de voiture via une alimentation d'ordinateur pour faire sauter un four !!!
Présentation du remplacement moderne des soufflets - BlackSmith Forge Fan ...
Ventilateur Forge VT1-2 Blacksmith - https://www.smsm.ru/product/18961 Ventilateur Forge VT1-2.5 Forgeron ...
J'ai fabriqué un four à soufflage électrique à partir d'un vieux barbecue, il s'est avéré deux en un.
Ventilateur en corne VT1-2 Blacksmith. Il est utilisé comme escargot pour une forge fournissant de l'air à un hôpital ...
Ma deuxième vidéo sur la fabrication d'une forge à charbon. Cette forge est beaucoup plus simple que la première à faire, mais à partir de ...
Fait un soufflage pour une nouvelle forge, la nouvelle forge sera dans la prochaine vidéo) moteur du poêle Volga.
Comment faire un HORN sans problèmes! Une option budgétaire. Je suis sur instagram https://www.instagram.com/aleksandrlopata Je suis sur facebook ...
Canal d'aide: don https://yasobe.ru/na/dvokat https://www.paypal.me/advocatttt Ceci est une vidéo sur mon forgeron portable fait maison ...
Dans cette vidéo, la suite du thème du forgeron, la préparation et la fabrication d'équipements et d'outils pour la maison ...
Corne, # soufflage, # forgeage.
Dans cette vidéo, je vais vous montrer comment fabriquer une forge de vos propres mains. Bonne visite. Comment souffler ...
Aide pour l'auteur - https://www.donationalerts.ru/r/74pavlo Plus d'abonnements à VOTRE chaîne - https://vktarget.ru/?ref=2816489.
Fabriqué à partir de pièces de rechange indésirables La vidéo est disponible sur https://www.youtube.com/watch?v=jCSM0E5fUFw Pour des questions et des conseils, veuillez écrire ...
Ventilateur inertiel. Ça souffle pas mal. Mais pour l'instant une expérience. Je vais vérifier en pratique ce qui est quoi ...
brskills loader firmware sm-j500m mod herobrine 1.5.2 ddtank apple transformar bravissimo em fantôme diminuir voltagem com diodo modo de recuperacao iphone 5s fonte do gta san andreas récepteur siècle midiabox shd7050 analogico digital hd 3d vitinho joga minecraft
debojj.net
Kit de fabrication de four
Tout d'abord, j'ai préparé tout ce dont j'avais besoin pour assembler le buleryan de mes propres mains. Tout d'abord, j'ai sorti une perceuse du garde-manger avec un ensemble de perceuses pour toutes les occasions, une meuleuse avec des disques du kit, une machine à souder, des pinces et d'autres petites choses.


Ma perceuse
J'ai dû bricoler les matériaux. Pour rendre Buleryan vraiment fiable et de haute qualité, j'ai décidé de le fabriquer en acier de chaudière résistant à la chaleur. Ce matériau est capable d'assurer un fonctionnement fiable et à long terme de l'unité de chauffage. Trouvez le matériel mentionné dans votre foyer ou achetez-le dans un magasin spécialisé.
J'ai également utilisé une tôle d'acier de 4 mm. Une tôle de dimensions 100x200 cm me suffisait. De plus, il me fallait un peu (40x70 cm) de tôle d'acier de 6 mm, environ 4 mètres de tuyau d'un diamètre de 11 cm, environ 10 m de tuyau profilé de dimensions de 57x4 mm. De plus, j'ai acheté des poignées, des charnières et des serrures pour ranger les portes, préparé des morceaux d'un tuyau de 35 centimètres et, en général, plusieurs ébauches métalliques au cas où.
Prix des modèles populaires de machines à souder
Comment le faire vous-même
Matériaux et outils
Si vous souhaitez créer une porte pour le poêle de vos propres mains, vous aurez besoin de:
- Matériau principal (tôle de fonte, tôle d'acier, bois).
- Carton, feutre, ciseaux pour faire un gabarit.
- Grinder pour couper le métal, scie sauteuse.
- Fil d'un diamètre de 1,2 cm (pour les structures en acier).
- Ébauches de poignées avec attaches (des tiges d'acier en forme de U sont plus souvent utilisées).
Pour la décoration, vous aurez besoin de: ruban de masquage, vernis résistant à la chaleur, détails forgés pour la décoration (en option).
Dessins et dimensions
Aucun dessin spécial requis... Vous pouvez faire un blanc en carton de vos propres mains. Un morceau de carton est pris un peu plus grand que la bouche, un trou est fait au centre.
Le carton est placé latéralement dans l'arc, en le tenant par le trou central, pressé de l'intérieur contre la paroi de l'ouverture du four, et les bords sont encerclés avec un stylo-feutre. Vous devez maintenant retirer la pièce, ajouter 3-4 millimètres à la ligne dessinée et découper le gabarit.
Le pochoir en carton vaut la peine d'être vérifié avant de commencer à créer la porte principale. Vous devez essayer de l'insérer dans la bouche du four. Le gabarit doit se déplacer facilement vers le milieu de la bouche, puis reposer contre les murs (sans tomber vers l'intérieur).


Instructions pas à pas
Le schéma de création d'un registre de four comprend les étapes:
- Le gabarit en carton est appliqué sur la base, souligné.
- Des trous sont percés pour la fixation des poignées.
- La porte est coupée le long du contour dessiné.
- Les éléments en excès qui apparaissent lors de la coupe sont éliminés avec une meuleuse ou une meule.
- Le bouclier sur la face arrière est fixé avec des chevilles de type "queue d'aronde".
- Pour éviter que la feuille de fer ne se plie le long du bord, elle est enroulée autour d'un fil. Les extrémités du fil sont pliées par le bas - ces «jambes» maintiendront fermement l'obturateur à l'intérieur de la bouche.
- L'étape suivante consiste à installer la poignée. Les extrémités sont fixées avec des rivets en acier dans des trous pré-percés.


Schéma de fabrication
La porte est décorée si nécessaire. L'option de décoration la plus simple consiste à le recouvrir d'une peinture spéciale. Ceci est fait comme ceci: la partie avant de l'amortisseur est recouverte de ruban de masquage et le dos est traité avec une peinture sombre résistante à la chaleur. Après séchage, le ruban de masquage est enlevé, la face avant est traitée avec un agent thermorésistant uréthane (vernis transparent qui ne donne que de la brillance, ou peinture colorée). D'en haut, vous pouvez appliquer de la peinture ou attacher des éléments décoratifs forgés par soudage.
Vous pouvez améliorer la conception. Certains maîtres suggèrent d'installer des minuteries et des thermomètres sur les barrières. D'autres insèrent des fenêtres en verre résistant à la chaleur au centre (vous permettent d'observer le feu sans avoir à déplacer la porte). Cela prive le poêle de son charme national d'origine, mais ajoute à la commodité d'utilisation.
Comment j'ai modernisé Buleryan
Les caractéristiques de l'appareil du poêle en question sont telles qu'il peut initialement distribuer qualitativement et uniformément l'oxygène en lui-même. Les tubes aspirent de l'oxygène froid par le bas et l'air chauffé est évacué par ceux installés en haut. Si vous le souhaitez, vous pouvez fournir une circulation forcée d'oxygène.
J'ai pris des tubes d'un diamètre approprié et des adaptateurs soudés dans les trous du tuyau de poêle situés en dessous. J'ai branché l'adaptateur sur un bord.
J'ai connecté l'autre côté avec un ventilateur.
J'ai décidé d'utiliser des modèles de ventilateurs "escargot". Pour assurer leur travail, dans mon cas, un moteur de 90 watts à 2800 tr / min suffisait.
Les résultats sont excellents - après la modification, Buleryan a commencé à travailler encore plus efficacement.
Je pense également à connecter l'ondulation aux sorties supérieures et à l'étaler dans différentes directions - vous obtiendrez un système de chauffage à part entière.
Vous pouvez penser aux instructions à votre manière. Je suis heureux de lire vos suggestions et peut-être même de mettre quelque chose en pratique.
Mes instructions vous aideront à assembler de vos propres mains un poêle fiable, efficace, durable et productif.
Vidéo - Four Buleryan à faire soi-même
Vous avez aimé l'article ? Économisez pour ne pas perdre!
- 5
- 4
- 3
- 2
- 1
5
Vladimir Pechurin.
Fabriqué en buleryan selon vos recommandations. Le résultat était époustouflant. Dire que c'est un bon four, c'est ne rien dire. Le four est super. Merci pour l'article.
Vladimir Pechurin.
J'ai fabriqué un poêle selon les recommandations de l'auteur de l'article. Dire que le four est bon, c'est ne rien dire. Elle est tout simplement merveilleuse! Je n'ai jamais rien rencontré de mieux.
Evgeny
Nous n'avons pas essayé de considérer le tube carré profilé.




















