Des articles
Toutes les photos de l'article
Souvent, dans les appartements de l'ère soviétique, des blocs de fenêtres à châssis étroit sont installés, qui, selon le plan des concepteurs, sont destinés à fonctionner comme une fenêtre. Cependant, il n'est pas toujours pratique de l'ouvrir, de sorte que de nombreux artisans à domicile sont obligés de fabriquer eux-mêmes la fenêtre.
En outre, la nécessité de sa fabrication peut survenir dans les cadres de fenêtres "aveugles" des anciennes maisons privées.

Fenêtre en bois avec une fenêtre
Pour vous aider, nous verrons ci-dessous comment fabriquer vous-même une feuille de fenêtre dans un cadre en bois.
Fenêtres en bois bricolage
Malgré la popularité des fenêtres en plastique, elles ne peuvent pas remplacer complètement les fenêtres en bois ordinaires. Le bois "respire" et les produits fabriqués à partir de celui-ci sont totalement sûrs. La couleur et la texture naturelles attirent toujours l'attention, de sorte que votre maison aura un look original et non officiel. Bien sûr, pour fabriquer de vos propres mains des fenêtres en bois pour une résidence d'été, vous devez essayer un peu. Les compétences nécessaires pour travailler avec des outils de menuiserie tels qu'un avion, une fraiseuse, un tournevis, une scie circulaire vous seront utiles. Si tout est en ordre avec ce cas, nous commencerons immédiatement à travailler.
Comment faire une fenêtre en bois de vos propres mains?
- Pour le travail, vous pouvez utiliser du pin bon marché. Le chêne, bien sûr, est plus résistant, mais si vous vous lancez dans la production de fenêtres pour la première fois, il est préférable d'acheter un matériau peu coûteux. Les ébauches pour notre fenêtre auront des dimensions de 140x40 mm.
- Les ébauches sur les évents se présenteront sous la forme de barres de 40x50 m.
- Ensuite, vous devez choisir un quart pour le verre 10x15 mm. Sur les racks latéraux, cela se fait d'un côté et sur la barre transversale, qui se trouve au milieu, un quart est sélectionné des deux côtés. Il est préférable d'utiliser une machine circulaire pour cela.
- Les quartiers sont prêts, vous pouvez mesurer les ébauches pour les couper à la longueur désirée.
- Les fenêtres en bois à faire soi-même sont mieux faites sur un équipement de menuiserie spécial. Par exemple, nous effectuons ce travail sur une machine circulaire.
- Sur la barre transversale, nous faisons une coupe aux deux extrémités - une largeur de 40 mm et une profondeur de 10 mm.
Choix du matériau bois
Comme une fenêtre en bois ne peut être fabriquée qu'à partir de bois sec ou collé (bois de placage stratifié), ces matériaux sont choisis pour la fabrication de cadres de fenêtres.
Il est préférable de fabriquer une jardinière en chêne, en mélèze ou en pin. Si nous comparons les bois les uns avec les autres, le chêne a un coût élevé. Faire des fenêtres en bois de vos propres mains avec une qualité élevée et peu coûteuse - c'est tout à fait possible, pour cela, vous devez choisir le bon matériau.


- Bois lamellé-collé. C'est un matériau léger et durable qui ne se déforme pas et possède des propriétés de résistance à l'humidité. Il a acquis de telles caractéristiques en raison de sa stratification et de son séchage maximal. Ce matériau est plus convenable pour la fabrication de fenêtres en bois. Dans ce cas, la taille la plus rationnelle du bois est de 5 × 5 cm.
- Bois massif. Parfois, le matériau présente des fissures et des nœuds, donc lors de son achat, il est soigneusement examiné pour sa présence. De plus, la planche peut conduire, et elle changera de forme. Il existe également un risque que le châssis se fissure pendant le fonctionnement. Malgré ses inconvénients, le bois massif est un bon rapport qualité-prix.
- Feuilles de contreplaqué. C'est le matériau le moins cher et de mauvaise qualité. Le contreplaqué a tendance à absorber rapidement l'humidité et à se détériorer.Par conséquent, le matériau n'est utilisé que pour les fenêtres dont l'installation est prévue à l'intérieur.
Comment faire une fenêtre
Voyons maintenant plusieurs options pour créer une fenêtre.
PREMIÈRE OPTION - lorsque le cadre étroit est divisé en deux parties.
DEUXIÈME OPTION - lorsqu'un bloc de fenêtre est inséré dans un cadre large.
Tout d'abord, je vous suggère de considérer les détails dont le cadre lui-même est constitué 1 verre, 2 raccords, 3 pointes. Bien sûr, tout le monde sait ce qu'est le verre. Ceux qui ne sont pas familiers avec les raccords feraient mieux de ne pas travailler et de ne pas abîmer le cadre. Une unité de fenêtre coûte plus cher que ce que vous payez au maître. Mais nous parlerons du navire séparément.
SHIPKA - mais sous un autre nom "poutre de cadre". Le cadre du cadre est assemblé à partir de cette pièce. Nous travaillerons avec cette poutre de cadre.
Tout d'abord, regardons la première version de l'encart de fenêtre. Pour être honnête, je le recommande toujours à tous les clients.
Le cadre double retiré, sans le diviser, il faut le découper en deux parties, dans la future fenêtre et le futur cadre.Tout d'abord, on enlève les ferrures (sauf les charnières du cadre), on enlève le verre. Ensuite, nous mesurons la longueur du cadre, la divisons par 3. Nous mesurons le nombre obtenu à partir du haut du cadre et le coupons soigneusement, à angle droit.


Eh bien, commençons. A titre d'exemple, nous prenons la poutre de cadre de votre cadre (je vous préviens!) Il n'y a pas de cadres identiques, bien qu'ils soient fabriqués dans la même usine de menuiserie, et même sur la même machine), qui est dessinée sur la première figure.
Dans la deuxième image, une barre est dessinée à partir de laquelle la pointe sera faite.
Les lignes rouges indiquent les dimensions qui doivent correspondre à l'échantillon de notre barre de cadre. Je n'écris pas spécifiquement les paramètres de la barre. Je le répète encore une fois, c'est différent sur chaque cadre (en moyenne, il fait 4 x 5 cm).
La troisième photo montre le quart enlevé pour le verre (il est conseillé de faire cette opération sur une machine-outil. Mais si vous ne possédez pas de machine-outil, alors vous pouvez vraiment en faire un quart avec un simple ciseau, bien que vous en ayez besoin compétence).
Pour que le pic soit presque prêt, vous devez supprimer la phase, comme indiqué dans la quatrième figure. Et - presque - parce que nous le terminerons déjà sur le cadre.


De l'autre côté du tenon, effectuez la même connexion de tenon.


Sur quoi travaillez-vous maintenant?
Cela dépend aussi beaucoup de la taille de la fenêtre. Nous avons des fenêtres à trois vantaux. Au départ, seules deux portes extérieures étaient prévues pour l'ouverture, et une seule des portes (à droite) sous le plafond avait une fenêtre, et la porte du milieu était stationnaire (sans ouverture). Les cadres étaient à double vantail, y compris la fenêtre. I., à mon avis, le système bidirectionnel a résolu le problème de l'insonorisation de la rue, car le son s'est éteint dans l'allée entre les cadres, il est entré dans la pièce avec des décibels beaucoup plus faibles, et je ne me souviens pas non plus que les fenêtres étaient parsemées d'isolant. Elle a grandi dans cet appartement depuis l'enfance et il faisait toujours chaud et la fenêtre était toujours entrouverte. Quand je les ai remplacées par des fenêtres en plastique, je n'ai regretté qu'un seul cas. L'insonorisation est devenue idéale, presque nulle, mais sous la condition d'une fenêtre complètement fermée, mais la ventilation a commencé à apporter une grande gêne sonore - toutes les voitures maintenant "PASS" dans notre chambre)))). À propos, dans la nouvelle fenêtre, la fenêtre a été déplacée vers la partie centrale du châssis et les fenêtres extérieures ont été laissées stationnaires. Je pense que la disposition du côté droit des évents dans les fenêtres précédentes était justifiée - le son de la rue était dirigé dans l'espace inter-cadres avec une grande surface et y était éteint))
J'ai vu dans une publicité que maintenant, pour ventiler une pièce avec des fenêtres en plastique, des spécialistes sont invités qui découpent un petit trou en forme d'ellipse dans le cadre en haut au milieu (5-7 cm de long et 1,5-2 cm de haut), et insérez une valve dans ce trou, qui n'est pas nécessaire de fermer ou d'ouvrir. C'est la fenêtre "entrouverte" toute l'année))))
instructions vidéo pour la fabrication, l'installation, la réparation, les dessins, les extensions cintrées, la photo et le prix
Toutes les photos de l'article
Les fenêtres à double vitrage en plastique qui sont populaires aujourd'hui présentent de nombreux avantages, mais il n'est pas toujours logique de les installer. Par exemple, si vous avez besoin de glacer une maison en bois dans le pays, ayant au moins un peu d'expérience avec le bois, il sera beaucoup moins cher et plus pratique de fabriquer des cadres faits maison ou de mettre à jour des cadres existants. Ci-dessous, nous nous familiariserons avec la technologie de fabrication des fenêtres et examinerons également comment mettre à jour les vieilles fenêtres en bois de nos propres mains.


Fenêtre en bois à deux vantaux
Fabrication de fenêtres
Pour fabriquer une fenêtre en bois de vos propres mains du début à la fin, vous devez effectuer les étapes suivantes:
- Rédaction d'un projet;
- Fabrication et installation de la boîte;
- Fabrication de cadres de fenêtres;
- Installation et vitrage de la charpente.
Ci-dessous, nous examinerons de plus près toutes ces étapes de travail.


Un exemple de schéma de fenêtre en bois
Rédaction d'un projet
Tout d'abord, vous devez compléter les dessins sur la fabrication d'une fenêtre en bois de vos propres mains. Pour ce faire, vous devez décider de la taille du futur produit et de sa conception. En conséquence, vous devez d'abord mesurer l'ouverture de la fenêtre.
Afin de dessiner correctement les dessins de fenêtres en bois de vos propres mains, vous pouvez vous familiariser avec les projets existants et choisir le plus optimal d'entre eux. Dans ce cas, il ne reste plus qu'à ajuster les dimensions de la structure aux ouvertures des fenêtres du bâtiment.
En conséquence, les dessins à faire soi-même de fenêtres en bois doivent afficher tous les détails du produit, ainsi que leurs dimensions, indiquées nécessairement en millimètres. La présence d'un tel projet simplifiera grandement le flux de travail, car toutes les nuances de la conception seront sous vos yeux. En conséquence, la probabilité de commettre des erreurs est réduite.
Ci-dessous, à titre d'exemple, considérez comment réaliser la conception la plus simple - une fenêtre en bois sourde de vos propres mains.


Schéma de la boîte de fenêtre
Fabrication de boîtes
La boîte est, bien que les éléments les plus simples de la fenêtre, elle doit être abordée de manière très responsable, car c'est lui qui prend toute la charge de la fenêtre. Pour la fabrication de la boîte, vous ne pouvez utiliser que des planches bien séchées, sans aucun défaut. Les planches de pin sont une excellente option, car elles sont assez résistantes à l'humidité.
Les instructions pour faire ressembler la boîte à ceci:
- Le travail commence par l'exécution d'ébauches. Pour ce faire, il est nécessaire de scier quatre parties d'une planche de 5 cm d'épaisseur - deux égales à la largeur de l'ouverture et deux égales à sa hauteur.
- Ensuite, aux extrémités des planches, qui s'adapteront le long de la largeur de l'ouverture, vous devez couper une épine avec une scie sauteuse. Pour les ébauches verticales, des rainures correspondantes sont réalisées à partir des extrémités.
- En outre, sur chaque planche, à l'aide d'une raboteuse, une rainure est choisie avec une profondeur de 4 mm et une largeur de 50 mm.
- Après cela, la boîte est assemblée. Les joints doivent être collés avec de la colle à bois. De plus, la structure peut être renforcée avec des coins métalliques.
- À la fin des travaux, la boîte est insérée dans le mur. Il peut être fixé dans l'ouverture de différentes manières, en fonction du matériau des murs. Habituellement, des épingles ou des clous de cheville sont utilisés.
Production
Ayant de l'expérience dans le travail du bois, il n'est pas difficile de fabriquer soi-même une fenêtre. Cependant, ce travail nécessite du soin et de la précision. Dans le même temps, les opérations qui ne peuvent être effectuées de manière indépendante doivent être confiées à des spécialistes (voir également l'article «Euro-fenêtres en bois: comment fabriquer une boîte et un cadre»).
Vous pouvez obtenir des informations utiles supplémentaires sur le sujet ci-dessus à partir de la vidéo de cet article.
Est-il possible de fabriquer des fenêtres en bois de haute qualité de vos propres mains? - Il s'avère que si vous avez les outils, les compétences et un plan détaillé, vous pouvez, et dans cet article, nous vous expliquerons comment.
Ce matériau concerne la production artisanale à la maison, environ fabrication industrielle Nous parlons des fenêtres euro dans cet article: Comment fonctionne la production en usine.


Les fenêtres en plastique sont très demandées par les consommateurs, mais les fenêtres et les portes en bois sont une option économique et plus écologique. Comme il n'est pas difficile de fabriquer soi-même une fenêtre en bois, beaucoup les installent dans leur datcha. L'essentiel est de comprendre le fonctionnement de la structure de la fenêtre. Pour que le produit soit de haute qualité, il est nécessaire de respecter la technologie de production, les règles de transformation du bois et la méthode d'assemblage. Une instruction étape par étape avec une description détaillée vous y aidera.
Voulez-vous commander des fenêtres en bois prêtes à l'emploi de la production moscovite de Dentro Windows avec une garantie de 5 ans? Voici des exemples de prix au m2:
| Feuille simple | Bivalve | Tricuspide | Bloc de balcon |
| de 12 500 frotter | de 12 800 frotter | de 13 400 frotter | de 12 500 frotter |
Calculez le coût des fenêtres en bois dans
(Uniquement pour les résidents de Moscou et de la région de Moscou), envoyez une demande pour calculer le coût:
Évents en bois: options de base. Processus de fabrication. Modification des châssis de fenêtre
Souvent, dans les appartements de l'ère soviétique, des blocs de fenêtres à châssis étroit sont installés, qui, selon le plan des concepteurs, sont destinés à fonctionner comme une fenêtre. Cependant, il n'est pas toujours pratique de l'ouvrir, de sorte que de nombreux artisans à domicile sont obligés de fabriquer eux-mêmes la fenêtre.
En outre, la nécessité de sa fabrication peut survenir dans les cadres de fenêtres "aveugles" des anciennes maisons privées.
Fenêtre en bois avec une fenêtre
Pour vous aider, nous verrons ci-dessous comment fabriquer vous-même une feuille de fenêtre dans un cadre en bois.
informations générales
Y a-t-il un besoin pour une feuille de fenêtre?
Pour répondre par vous-même à cette question, nous vous recommandons de vous familiariser avec ses avantages:
- Lors de l'ouverture, il y a un mouvement uniforme des masses d'air dans la pièce, mais il n'y a pas de courants d'air.
- Augmente la résistance de la fenêtre en raison de la présence d'entretoises.
- La possibilité d'ajuster la plage d'ouverture. Par exemple, la nuit, lorsque le corps est le plus sensible aux courants d'air, vous pouvez l'ouvrir légèrement pour fournir un apport modéré d'air frais.
De cela, nous pouvons conclure que les fenêtres en bois avec une fenêtre pour un appartement sont en effet un élément utile qui augmente le confort de vie dans une maison. Par conséquent, si votre fenêtre ne possède pas de fenêtre, il est conseillé de l'équiper de cet élément.
Fabrication
Matériaux et outils
Avant de créer une fenêtre dans une fenêtre en bois, vous devez préparer du matériel et des outils:
- Barres pour un cadre d'une section d'environ 50x60 mm (sélectionnées individuellement);
- Étriers;
- Ciseau de menuisier;
- Un marteau;
- Roulette;
- Scie à métaux;
- Rabot électrique;
- Roulette.
Noter! Pour que le produit serve longtemps, les blocs de bois doivent être séchés et de bonne qualité - sans nœuds ni fissures. De plus, ils doivent d'abord être traités avec un agent antiseptique qui empêche le bois de pourrir.
Sur la photo - bois 50x60 mm
Dessin
Après avoir préparé l'outil et les matériaux, vous devez terminer le dessin. Pour ce faire, tout d'abord, vous devez mesurer le bois à partir duquel le châssis est fabriqué afin de créer une fenêtre à partir des mêmes pièces.
Sur le schéma, il est nécessaire d'indiquer en millimètres toutes les dimensions du cadre de la fenêtre, du châssis et de tous les autres éléments. La présence d'un dessin vous permettra de découper correctement les matériaux et d'éviter les erreurs dans le processus.


Modification des châssis de fenêtre
Tout d'abord, il est nécessaire de refaire les deux châssis de fenêtre.
Les instructions pour effectuer ce travail ressemblent à ceci:
- La première étape consiste à démonter les parcloses et à retirer le verre.
- Ensuite, vous devez démonter la bande de châssis supérieure et raccourcir les racks. Si vous ne pouvez pas démonter la barre supérieure, vous pouvez découper une partie des racks au milieu.
La connexion des pièces est réalisée à l'aide de colle à bois. Si un routeur est disponible, la connexion languette / rainure peut être établie.S'il n'est pas possible de couper les rainures, vous devez renforcer la connexion avec des coins ou des bandes métalliques.
- Ensuite, il est nécessaire de raccourcir les vitres et les parcloses pour pouvoir les insérer dans le cadre.
De la même manière, la deuxième ceinture extérieure est réalisée, il ne faut pas oublier qu'elle doit être plus petite que la ceinture intérieure pour pouvoir s'ouvrir librement.
Conseils! Les rideaux ordinaires interfèrent avec l'utilisation de la fenêtre. Par conséquent, vous pouvez acheter des stores enrouleurs spéciaux pour les fenêtres en bois avec un évent ou des stores.


Exemple - stores sur des fenêtres en bois avec une fenêtre
Fabrication
Vous pouvez maintenant commencer à faire les évents.
Le travail se fait dans cet ordre:
- Tout d'abord, il est nécessaire de compléter le cadre de la future structure, qui, en fait, est un analogue d'un châssis de fenêtre, mais dans une version réduite. À ce stade, vous aurez besoin d'un routeur pour faire les rainures.
S'il n'y a pas un tel outil, vous devriez demander l'aide d'un atelier de menuiserie, où, selon les dessins, des spécialistes traiteront rapidement le bois. En règle générale, le prix de ces travaux n'est pas élevé.
- Ensuite, selon le dessin, coupez le bois en bandes et faites des coupes à 45 degrés.
- Sur les coupes, il est nécessaire de faire des pointes et des œillets, à l'aide desquels les parties du cadre seront reliées les unes aux autres.
- Ensuite, vous devez couper le verre à la taille et l'insérer dans le cadre. Vous pouvez fixer le verre en découpant des perles de vitrage du cadre.
- De plus, la structure est fixée au cadre de la fenêtre avec des charnières et des ferrures.


Exemple de produit fini
Conseils! Avant de travailler sur la fabrication, vous devez "remplir votre main", par exemple, commencez par fabriquer des fenêtres en bois avec une fenêtre pour le chalet d'été.
La deuxième ceinture est réalisée et installée de la même manière. Après cela, il vous suffit de peindre les produits finis ou de les ouvrir avec du vernis. Ceci termine le processus de fabrication.
Il convient de noter que les fenêtres en bois avec un vantail de fenêtre avec une fenêtre à double vitrage sont fabriquées un peu différemment, car elles ont des portes doubles, mais le principe de fonctionnement reste le même.
Rebord de fenêtre
L'une des étapes de l'installation de fenêtres en bois avec des fenêtres à double vitrage consiste à travailler avec un rebord de fenêtre. Le matériel pour lui peut être n'importe quoi.
Installation d'un rebord de fenêtre
L'installation du rebord de fenêtre est effectuée dans l'ordre suivant:
- La forme souhaitée doit être coupée à partir du rebord de fenêtre acheté.
- Le rebord de la fenêtre doit être partiellement ramené sous le cadre; dans la partie inférieure, la fixation est réalisée à l'aide de cales en bois.
- L'espace vide ci-dessous est rempli de mousse. Par la suite, l'excédent saillant est enlevé avec un couteau.
Comment faire soi-même une feuille de fenêtre dans une fenêtre en bois?
Lorsque la question se pose de choisir des fenêtres pour de nouveaux logements ou de remplacer d'anciens cadres de fenêtres, il est plutôt difficile de se décider tout de suite. Cela est dû au grand nombre de fabricants, car les matériaux pour la production de fenêtres sont généralement un peu proposés. Le plastique, le bois, l'aluminium sont les principales matières premières pour leur production. Eh bien, les fabricants les varient et les caractéristiques des fenêtres à double vitrage et tentent de convaincre le consommateur. Cependant, avec tous les avantages des fenêtres en plastique, les fenêtres en bois, dans certaines de leurs caractéristiques, leur sont supérieures. De plus, des châssis de fenêtre en bois peuvent être construits, ce qui en dit long sur l'utilisation du bois. Il est beaucoup plus facile de créer une fenêtre ou un cadre de n'importe quelle configuration dans une fenêtre en bois.


Schéma d'une reliure en bois d'une fenêtre avec une fenêtre.
Variétés et caractéristiques des conceptions de cadre
Il existe de nombreux types de structures. Ils peuvent être standard ou fabriqués sur commande, selon l'ouverture de la fenêtre. Mais il existe plusieurs variétés principales:
Variétés et tailles de cadres de fenêtres.
- Volets aveugles qui ne peuvent pas être ouverts. Pour la pénétration de la lumière naturelle, ils sont situés, par exemple, le long d'un mur blanc, le long duquel un escalier est construit jusqu'au 2ème étage.
- Ouverture.Le nombre de châssis mobiles peut varier de 1 à 3 ou plus, si la taille de l'ouverture de la fenêtre le permet, et la largeur du châssis n'est pas trop étroite.
- Levage et glissement. Ces fenêtres diffèrent par la façon dont elles s'ouvrent et sont le plus souvent situées dans des pièces avec un intérieur spécifique pour conserver le style.
- Fixations avec l'installation d'une fenêtre. De plus, il peut y avoir plusieurs évents, et généralement leur nombre est déterminé par le nombre de châssis de fenêtre.
C'est l'utilisation d'un tel élément supplémentaire du couvre-fenêtre en tant que vantail de fenêtre qui offre un certain nombre d'avantages:
- À travers une fenêtre ouverte, l'air froid, entrant dans une pièce chaude, ne se précipite pas vers le plafond, contrairement à une fenêtre en plastique avec un mécanisme pivotant. De ce fait, l'air circule dans la pièce et il n'y a pas de courants d'air.
- Le vantail de fenêtre n'affecte pas les propriétés générales du châssis de fenêtre, tout en augmentant la résistance et la fiabilité de la structure de la fenêtre en raison de la présence d'une entretoise;
- La fenêtre a une plage de régulation beaucoup plus élevée de l'ouverture pour la ventilation, ce qui signifie qu'il y a plus de possibilités d'influencer le flux d'air froid dans la pièce. Autrement dit, en ouvrant légèrement la fenêtre pendant toute la journée, vous pouvez fournir de l'air frais à la pièce toute la nuit, lorsque le corps est particulièrement sensible aux courants d'air. Dans ce cas, la température à l'intérieur de la pièce ne subira pas de changements significatifs.
Option 2 - nous installons une fenêtre à double vitrage prête à l'emploi - (nouveau type de fenêtres)
Vous pouvez acheter une fenêtre à double vitrage sans cadre auprès de fabricants ou d'entreprises de fenêtres, bien que le choix des tailles y soit limité, alors tenez-en compte même au stade de l'élaboration des dessins de la fenêtre.
Pour fixer l'unité de verre finie dans un cadre en bois, un scellant incolore est nécessaire. Il sera invisible et ne gâchera pas l'apparence de la fenêtre.
Une fois la fenêtre prête, elle est installée dans l'ouverture de la fenêtre. Ce n'est pas difficile à faire, mais lors de l'installation, vous devez prendre en compte le type d'ouverture et le matériau à partir duquel la maison est construite. Règles d'installation d'eurowindows dans des locaux en brique et en béton:
- L'ouverture dans laquelle la vitre est installée doit être plane et propre. À l'aide d'un niveau, la géométrie de l'ouverture est vérifiée, tous les endroits inégaux sont nivelés.
- Une fenêtre à double vitrage en bois est installée dans l'ouverture et fixée avec des vis autotaraudeuses. Les montures sont faites à une distance de 70 à 80 cm les unes des autres. Il est impossible d'utiliser de la mousse de polyuréthane et des clous pour la fixation.
- Si des espaces apparaissent entre la vitre et la boîte, la fenêtre perdra ses caractéristiques. Pour éviter que cela ne se produise, lors de l'installation, la fenêtre est traitée avec un scellant.
- Toutes les fissures et tous les trous sont scellés avec de la mousse de polyuréthane. Il protégera la pièce de la poussière, de la saleté et de la pénétration d'air froid à l'intérieur.
- Lorsque la mousse durcit, coupez-la avec un couteau. À l'extérieur, la zone remplacée est scellée avec du ruban adhésif et un encaissement est installé sur le dessus. C'est pour le protéger de la destruction.


Pour garantir des performances élevées, les fenêtres sont isolées à l'aide de la technologie suédoise. La méthode tire son nom du matériau EuroStrip, qui a été choisi par les Suédois. En termes d'économie de chaleur, l'isolation des rainures des fenêtres en bois n'est pas inférieure aux vitrages en PVC. Le fabricant produit 3 types de joints: silicone et caoutchouc, ainsi que des élastomères thermoplastiques.
Qu'est-ce qui pourrait être requis pour le poste?
L'autoproduction d'une fenêtre en bois de vos propres mains commence par l'achat de bois et la préparation d'outils. Tu auras besoin de:
Pour travailler le bois, vous aurez besoin de: marteau, scie, niveau, ciseau, ruban à mesurer, crayon.
- barres pour un cadre d'une section de 50x60 mm;
- barres pour une fenêtre d'une section de 50x50 mm;
- ciseau de menuiserie;
- un marteau;
- pied à coulisse pour un marquage précis;
- ruban à mesurer (règle), carré;
- crayon (marqueur);
- une scie sauteuse électrique avec un jeu de scies de rechange ou une scie à métaux;
- papier de verre à grain moyen et fin;
- couteau de construction avec lames de rechange;
- rabot électrique.
Pour que la fenêtre fabriquée serve longtemps sans remplacement ni réparations majeures, les barres destinées à sa fabrication doivent être d'excellente qualité et sèches.
Ils doivent être exempts de copeaux, fissures et autres défauts susceptibles d'endommager le bois au moment du traitement ou du sciage. Les nœuds doivent être en quantité minimale et être petits, ou mieux absents. Un tel matériau de départ durera non seulement longtemps, mais sera également facile à traiter.
Liste des instruments possibles
Bien sûr, vous aurez besoin de tout ce que vous pouvez utiliser pour scier, moudre, traiter le bois. Il:
- Electromeska
- Juste un ciseau
- Rabot électrique
- Circulaire
- Fraiseuse manuelle pour le travail du bois
- Couteau à peindre
- Achat de perles de vitrage fabriquées à partir d'une essence de bois similaire
- Silicone
- Pistolet de construction
- Compteur de bâtiment
- Marqueur
- Crayon
- Règle en métal
- Colle de menuisier
Faire une fenêtre avec une fenêtre
Schéma de demi-préparation du châssis pour l'installation de la fenêtre.
Avant de scier les barres, vous devez faire un dessin de la fenêtre. Dans le même temps, il doit contenir les dimensions des volets, des évents. Cela permettra d'acheter uniquement la quantité requise de matériaux en bois et, à l'avenir, aidera également à effectuer le marquage et la coupe corrects des barres.
Le châssis se compose d'éléments structurels tels que:
- boîte;
- barres de cerclage verticales (droite et gauche);
- 2 châssis: 1 avec un évent et 1 sans celui-ci;
- curseur pour la fenêtre;
- traverse;
- impostes (horizontales, verticales);
- éléments de fixation (charnières).
Ensuite, vous devez préparer les parties de la fenêtre en bois. Ils commencent à le faire en sciant à partir de la barre préparée de pièces, dont la longueur correspond aux barres horizontales et verticales du cerclage, des dalles, du tableau. Leur nombre et leurs dimensions doivent correspondre strictement au dessin de la fenêtre. Selon ces dessins, vous pouvez scier les détails de la fenêtre. De plus, des plis sont réalisés sur les barres de cerclage, la dalle, le tableau arrière. La présence d'un tel évidement sur les parties de la fenêtre permettra de fixer davantage le verre.
Il est nécessaire de s'assurer que la profondeur de tous les plis est la même pour tous les éléments de la fenêtre, sinon le verre ne s'ajustera pas bien et il sera impossible de l'isoler. De plus, de tels plis sont réalisés sur la traverse de part et d'autre de la barre. Vous devez effectuer ces indentations avec un plan électrique. Vous pouvez également faire face à cette tâche avec une scie, en tenant au préalable le bloc dans un étau pour plus de rigidité.
Diagrammes des positions des fenêtres.
Cependant, la scie pour un tel travail doit être avec de petites dents, sinon, lors de la coupe, les bords peuvent s'avérer inégaux, avec des copeaux. Si, lors de la réalisation des plis, des défauts mineurs (petites indentations) se sont formés, ils peuvent être nivelés à l'aide d'un mastic spécial pour le bois.
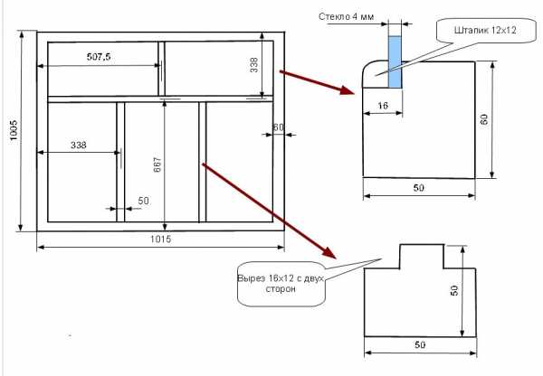
Sur l'entrejambe, en plus du pli, il est nécessaire de scier un quart dans lequel la fenêtre se trouvera plus tard. La taille du quartier sélectionné au niveau du châssis dépend du côté de la fenêtre qui s'ouvrira, vers l'extérieur ou vers l'intérieur. Si vous envisagez d'ouvrir la fenêtre vers l'intérieur, du côté du pli, une barre restrictive supplémentaire est clouée ou vissée sur les vis. Lors de l'ouverture des évents vers l'intérieur, une telle barre n'est pas nécessaire. Une indentation supplémentaire peut être faite avec un ciseau, et cela peut être fait proprement et uniformément.
Après cela, ils commencent à fabriquer des pointes et des œillets. C'est avec leur aide que le cadre sera fixé. Une pointe est une saillie spécialement coupée à la taille et une fente (rainure) est appelée œillet. L'exécution des pattes et des pointes doit être faite strictement en taille et très soigneusement, en évitant les écarts même d'un millimètre. La fiabilité de la fixation et la durabilité du cadre dépendent de leur exécution correcte. Lors de la création d'une épine, il est nécessaire de prendre en compte que son épaule avant aura la taille du pli déjà scié.Après le marquage, les coupes sont réalisées à l'aide d'une scie sauteuse électrique ou d'une lime métallique. Pour faire un œillet, il faut faire des coupes en fonction du marquage.




