- Problèmes de mouvement du liquide de refroidissement dans le système de chauffage
- Qu'est-ce que l'anneau primaire dans un système de chauffage ?
- Quel est l'anneau secondaire dans le système de chauffage?
- Comment faire passer le liquide de refroidissement dans la bague secondaire ?
- Sélection de pompes de circulation pour un système de chauffage combiné avec anneaux primaire-secondaire
- Anneaux primaire-secondaire avec flèche hydraulique et collecteur
Comprendre comment fonctionne le système de chauffage combiné, vous devez traiter un concept tel que "anneaux primaire-secondaire". C'est le sujet de l'article.
Problèmes de mouvement du liquide de refroidissement dans le système de chauffage
Une fois dans les immeubles d'habitation, les systèmes de chauffage étaient à deux tuyaux, puis ils ont commencé à être monotubes, mais en même temps un problème s'est posé: le liquide de refroidissement, comme tout le reste du monde, cherche à emprunter un chemin plus simple - le long un tuyau de dérivation (indiqué sur la figure avec des flèches rouges), et non à travers un radiateur qui crée plus de résistance :
Pour forcer le liquide de refroidissement à passer par le radiateur, ils ont proposé l'installation de tés de rétrécissement :
Dans le même temps, le tuyau principal a été installé avec un diamètre plus grand que le tuyau de dérivation. C'est-à-dire que le liquide de refroidissement s'est approché du té de rétrécissement, a rencontré beaucoup de résistance et, bon gré mal gré, s'est tourné vers le radiateur, et seule une plus petite partie du liquide de refroidissement a longé la section de dérivation.
Selon ce principe, un système monotube est fabriqué - "Leningrad".
Une telle section de dérivation est réalisée pour une autre raison. Si le radiateur tombe en panne, alors qu'il est retiré et remplacé par un radiateur en bon état de fonctionnement, le liquide de refroidissement ira au reste des radiateurs le long de la section de dérivation.
Mais c'est comme l'histoire, nous retournons « à nos jours ».
Besoin de conseils pour équilibrer le chauffage d'une maison privée
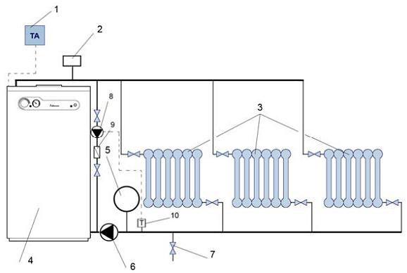
Maison rurale achevée: deux étages + grenier, superficie totale d'environ 300 m2. Le système de chauffage y est assez simple: Chaudière à gaz Vakhi Slim 48 kW, collecteur KK-25/125/40/3 + 1, c'est-à-dire en quatre branches. Le système est rempli d'antigel 1: 1 avec de l'eau. TROIS branches de radiateur: au 1er, 2e étage et dans le grenier - chaque colonne montante est soudée à partir d'un pouce PPR, puis elle se branche en deux tuyaux 3/4 boucle-deux avec une alimentation inférieure aux radiateurs (panneaux Kermi). Et une branche de plus au plancher chaud du 1er étage, il dispose immédiatement de ses propres collecteurs pour 4 boucles TP et d'un by-pass - un mélange de retour avec une vanne. Sur les conduites de retour de chaque branche devant le collecteur il y a des clapets anti-retour et des circulaires Grundfos de deux capacités : UPS 25-60 (plage de pression 50-70) sont au 1er étage et grenier, et UPS 25-80 (plage 110 -165) au deuxième étage.
Quel est le problème. Le système semble assez simple, mais instable. Tout au long de l'automne, après avoir commencé à chauffer pour la première fois, je devais faire voler un turman à la chaufferie cinq fois par jour et faire tourner les régulateurs de vitesse des circulaires. Ensuite vous chauffez le TP - et ensuite les batteries vont refroidir pendant 1 étage, puis au maximum sur les étages - il ne pousse pas dans le grenier, etc. J'avais l'impression que ces circulaires s'encrassaient, et du coup, j'agitais les pompes (je les ai déplacés plus puissamment vers le TP et plus faiblement vers les radiateurs du 1er étage, avant c'était l'inverse), comme j'ai trouvé un juste milieu, quand tout est moins chaud, seulement il fait frais dans le grenier et s'il y avait beaucoup d'invités, le grenier devait être chauffé séparément. J'ai aussi péché en aérant, en faisant bouillonner parfois un peu d'air des robinets de Mayevsky, la première année était encore remplie d'antigel.
Il a laissé le chauffage avec le " juste milieu " trouvé au minimum, et est parti pour NG, arrivé aujourd'hui - et les batteries du 2ème étage sont complètement froides. Dans le même temps, le TP était initialement éteint, la maison n'était donc chauffée qu'à partir des radiateurs du premier étage, et passablement à partir de 3 radiateurs du grenier (le grenier est isolé, la chaleur y monte par automoteur et je ne l'ai pas porté avec chauffage). Heureusement, j'ai construit pendant plusieurs années à partir d'un bloc aéré autoclavé de 400 mm sur colle, et la maison gardait bien la chaleur même d'une quantité aussi misérable, les pièces étaient dans le froid actuel de +11 à +15. Contrairement aux radiateurs, la circulaire 80ka sur le retour du 2ème étage était chaude, c'est-à-diredu collecteur il y avait un petit contre-courant vers le clapet anti-retour, de deux pompes 60ok plus faibles.
Conseiller comment équilibrer le système, quelle est l'erreur ou l'oubli ? Peut-être ne devriez-vous pas mettre des pompes de différentes capacités sur le collecteur ? Peut-être que le collecteur lui-même est "à l'étroit", vaut-il la peine d'en abandonner un autre, avec un volume et un nombre de branches plus importants et ne pas mettre de circulaires les unes contre les autres (j'ai remarqué que c'est l'option la plus compétitive et la plus conflictuelle) ? L'installation de thermostats sur les radiateurs, que je n'ai pas encore installés, améliorera-t-elle la situation ? Qui a de l'expérience, est-il judicieux de s'embêter avec des vannes d'équilibrage coûteuses ?
Pour plus de clarté, j'ai joint un schéma. Merci d'avance.
Comment faire passer le liquide de refroidissement dans la bague secondaire ?
Mais tout n'est pas si simple, mais vous devez vous occuper du nœud, entouré d'un rectangle rouge (voir le schéma précédent) - le lieu de fixation de l'anneau secondaire. Étant donné que le tuyau de l'anneau primaire a très probablement un diamètre plus grand que le tuyau de l'anneau secondaire, le liquide de refroidissement tendra vers la section avec moins de résistance. La façon de procéder? Considérez le circuit :
Le fluide caloporteur de la chaudière s'écoule dans le sens de la flèche rouge « alimentation de la chaudière ». Au point B, il y a une dérivation de l'alimentation vers le chauffage au sol. Le point A est le point d'entrée du retour du plancher chauffant dans l'anneau primaire.
Important! La distance entre les points A et B doit être de 150 ... 300 mm - pas plus!
Comment « conduire » le liquide de refroidissement dans le sens de la flèche rouge « vers le secondaire » ? La première option est un by-pass : des tés réducteurs sont placés aux endroits A et B et entre eux un tuyau de diamètre inférieur à celui de l'alimentation.
La difficulté ici est dans le calcul des diamètres : il faut calculer la résistance hydraulique des bagues secondaire et primaire, bypass... si on se trompe de calcul, alors il peut n'y avoir aucun mouvement le long de la bague secondaire.
La deuxième solution au problème est de mettre une vanne trois voies au point B :
Cette vanne va soit fermer complètement la bague primaire, et le liquide de refroidissement ira directement au secondaire. Ou cela bloquera le chemin vers l'anneau secondaire. Ou il fonctionnera comme une dérivation, laissant passer une partie du liquide de refroidissement à travers le primaire et une partie à travers l'anneau secondaire. Cela semble être bon, mais il est impératif de contrôler la température du liquide de refroidissement. Cette vanne trois voies est souvent équipée d'un actionneur électrique...
La troisième option consiste à fournir une pompe de circulation :
La pompe de circulation (1) entraîne le fluide caloporteur le long de l'anneau primaire de la chaudière à ... la chaudière, et la pompe (2) entraîne le fluide caloporteur le long de l'anneau secondaire, c'est-à-dire sur le sol chaud.
Types et options de schémas de cerclage
Un élément important de tout réseau de chauffage est la régulation de la température d'entrée et de sortie. Dans ce cas, les différences importantes doivent être exclues. Un tel système est utilisé dans les automobiles.
Jusqu'à une certaine température, le liquide de refroidissement se déplace le long d'un petit circuit. Une fois la température requise atteinte, vous pouvez la basculer sur le grand circuit principal qui chauffe l'ensemble du bâtiment.
Important! Pour qu'un système de chauffage domestique fonctionne efficacement, il est nécessaire de créer plusieurs circuits.
Listons maintenant les options pour les schémas de tuyauterie. Il n'y en a que quatre :
- Schéma avec circulation forcée du liquide de refroidissement.
- Avec circulation naturelle.
- Câblage collecteur classique.
- Un schéma de cerclage dans lequel il y a des anneaux primaires et secondaires.
En quoi diffèrent-ils les uns des autres ? Considérons-les séparément.
Schéma avec circulation naturelle du liquide de refroidissement
Ce régime ne se prête pas à une régulation automatique. L'automatisation peut être fournie, mais vous devez toujours régler manuellement la puissance du brûleur à gaz. Nous avons ajouté du gaz et la maison est devenue plus chaude. Diminué - il est devenu plus frais. De plus, il n'y a pas de pompe de circulation dans un tel système, ce qui a son propre avantage. Cela est particulièrement vrai pour les régions où il y a des problèmes constants avec l'approvisionnement en courant électrique.
https://www.youtube.com/watch?v=owCRvUbz1CI
Un tel réseau ne nécessite pas d'équipements et de dispositifs complexes tels que des bouches d'aération, des pompes et des vannes de dérivation. Le système fonctionne très bien sans tout cela. Mais il a un inconvénient - c'est une consommation de carburant élevée. Et rien ne peut être fait à ce sujet.
Vous pouvez souvent entendre des experts dire que la tuyauterie d'une chaudière de chauffage avec un système de circulation naturelle remonte au siècle dernier. Le fait est que tout dépend des coûts en espèces, en particulier les premiers. Jugez par vous-même - l'achat de systèmes d'automatisation et de sécurité, de vannes et de pompes nécessite de gros investissements. Et plus il y a de pièces et d'assemblages, plus la probabilité de défaillance de l'un d'entre eux est élevée. Plus le service d'appareils coûteux. Tout cela compensera le coût du carburant consommé.
Donc, n'annulez pas ce schéma de cerclage pour la ferraille. Elle travaillera toujours. De plus, il est si simple qu'il n'y a rien de spécial à casser dedans. Si seulement la chaudière tombe en panne. Mais les chaudières simples durent jusqu'à 50 ans.
Circuit à circulation forcée

La présence d'une pompe de circulation indique une circulation forcée
La différence entre ce schéma et le précédent réside dans la présence d'une pompe de circulation. Bien sûr, c'est beaucoup plus pratique, car cela vous permet de régler la température requise dans chaque pièce. Et la qualité d'un tel système est supérieure. Certes, avec la qualité, le coût augmente également.
Si un schéma classique est utilisé pour la construction du chauffage, alors pour son fonctionnement efficace, il sera nécessaire de disposer de dispositifs qui équilibreront les circuits de chauffage. Cela signifie que vous devrez installer un grand nombre de toutes sortes de vannes d'arrêt telles que des débitmètres, des vannes, des vannes et autres.
Soit dit en passant, si un système à deux circuits est prévu dans votre maison, chaque circuit devra alors fournir sa propre pompe de circulation. Et ce sont encore des dépenses.
Cerclage classique
Ce système de chauffage a une disposition standard. C'est un anneau avec une chaudière au centre. Le liquide de refroidissement se déplace dans une direction donnée, passant par tous les radiateurs et retournant à la chaudière. C'est simple.
Certes, il existe différentes configurations de tuyaux, où l'emplacement de ces derniers est déterminé par l'efficacité de l'alimentation en liquide de refroidissement. Cela dépend du nombre d'étages du bâtiment, du volume des locaux, du nombre de pièces à chaque étage et de la possibilité d'utiliser le sous-sol pour le câblage des tuyaux de chauffage. Il y a beaucoup de facteurs, mais le classique est que la circulation ne suit qu'un seul circuit.
Schéma multi-anneaux


Cerclage classique
Pourquoi avez-vous besoin de plusieurs anneaux (contours)? Les anneaux primaire et secondaire remplissent deux fonctions différentes. Le primaire est nécessaire dans deux cas :
- Le liquide de refroidissement, s'il se déplace le long d'un petit anneau, chauffera plus rapidement.
- Si le système commence à surchauffer, l'anneau primaire s'allume pour prélever une partie de l'énergie thermique.
C'est le circuit primaire qui est considéré comme d'urgence, donc, avec son aide, vous pouvez augmenter l'indicateur de sécurité.
Il existe des chaudières dites à double circuit, qui appartiennent également à cette catégorie. Certes, en eux, deux circuits remplissent des fonctions complètement différentes. L'un chauffe la maison et le second prépare l'eau chaude pour les besoins domestiques.
| Parcelle | Puissance thermique, W | Consommation d'eau G, kg/h | Longueur de section l, m | Diamètre nominal de la canalisation, mm | Vitesse de l'eau, m / s | Perte de charge linéaire spécifique R, MPa / m | Perte de charge linéaire Rl, Pa | La somme des coefficients de résistance locale | Perte de charge sur résistances locales | Rl + Z | Remarques (modifier) |
| Conduites d'eau et de gaz en acier (GOST 3262-75 *), Rav = 53 | |||||||||||
| 6,1 | 0,23 | 475,8 | 1,3 | 33,7 | Robinet-vanne = 0,5 ; branche = 0,8 ; | ||||||
| 3,5 | 0,23 | Té = 4 | |||||||||
| 4,5 | 0,23 | 34,5 | 155,25 | 2,7 | 59,5 | Té = 2,7 | |||||
| 1,5 | 0,19 | 103,5 | 17,6 | Té = 1 | |||||||
| 4,5 | 0,185 | 229,5 | 4,5 | 76,3 | Té = 3,2 ; embranchement = 0,8 ; robinet-vanne = 0,5 | ||||||
| 0,5 | 0,157 | 25,5 | 12,75 | 3,5 | 42,7 | 55,5 | Té = 3 ; robinet-vanne = 0,5 | ||||
| 0,5 | 0,157 | 25,5 | 12,75 | 1,07 | 24,8 | Convecteur = 0,57, registre = 0,5 | |||||
| 4,5 | 0,185 | 229,5 | 31,7 | Té = 0,7 ; embranchement = 0,8 ; robinet-vanne = 0,5 | |||||||
| 1,5 | 0,19 | 103,5 | 2,3 | 40,6 | Té = 2,3 | ||||||
| 4,5 | 0,23 | 34,5 | 155,25 | 1,8 | Té = 1,8 | ||||||
| 3,5 | 0,23 | 2,3 | 59,5 | Té = 2,3 | |||||||
| 6,1 | 0,23 | 475,8 | 3,4 | 87,8 | Té = 2,3; branche = 0,6; vanne à vanne = 0,5 | ||||||
| 41,2 | 2247,6 | 596,4 |
Perte de charge dans l'anneau de circulation principal :
CHAUFFAGE
Chauffage - artificiel, à l'aide d'une installation ou d'un système spécial, chauffant les locaux du bâtiment du jour en compensant les pertes de chaleur et en maintenant les paramètres de température à un niveau déterminé par les conditions de confort thermique des personnes présentes dans la pièce ou les exigences des processus technologiques se déroulant dans des locaux industriels.
Le fonctionnement du chauffage se caractérise par une certaine périodicité tout au long de l'année et une variabilité de la capacité utilisée de l'installation, qui dépend principalement des conditions météorologiques de la zone de construction. Avec une diminution de la température de l'air extérieur et une augmentation du vent, le transfert de chaleur des installations de chauffage vers les locaux devrait augmenter, et avec une augmentation de la température de l'air extérieur, l'exposition au rayonnement solaire, il devrait diminuer, c'est-à-dire le processus de transfert de chaleur doit être constamment régulé. Les changements d'influences externes sont combinés avec des apports de chaleur inégaux provenant de la production interne et des sources domestiques, ce qui nécessite également une régulation du fonctionnement des installations de chauffage.
Les principaux éléments structurels du système de chauffage:
source de chaleur (générateur de chaleur pour local ou échangeur de chaleur pour approvisionnement en chaleur centralisé) - un élément pour obtenir de la chaleur;
caloducs - un élément permettant de transférer la chaleur d'une source de chaleur vers des appareils de chauffage;
les appareils de chauffage sont un élément de transfert de chaleur dans la pièce. Le transfert le long des lignes de chaleur peut être effectué à l'aide d'un fluide de travail liquide ou gazeux. Un fluide (eau ou un liquide spécial antigel - antigel) ou gazeux (vapeur, air, produits de combustion de carburant) se déplaçant dans le système de chauffage est appelé caloporteur.
Le système de chauffage doit avoir une certaine puissance calorifique pour remplir la tâche qui lui est assignée. La puissance thermique calculée du système est révélée à la suite de la compilation du bilan thermique dans les pièces chauffées à la température de l'air extérieur, appelée température calculée (la température moyenne de la période de cinq jours la plus froide avec une sécurité de 0,92), est prise selon [12].