Lors de la planification d'un terrain pour une maison de campagne, la plupart des propriétaires cherchent à allouer un site pour la construction d'un bain. Cet endroit contribuera non seulement à garder le corps propre, mais aussi à donner de la santé au corps pendant longtemps, à augmenter sa vitalité. Le bain russe a toujours été plus qu'un simple endroit pour prendre des procédures d'eau. C'est tout un culte qui a traditionnellement reçu beaucoup d'attention.

La place centrale à l'intérieur est occupée par des chaudières pour un sauna au feu de bois avec un réservoir. Ce type de carburant présente un nombre important d'avantages par rapport aux autres. En outre, pendant la construction, il est possible de choisir le schéma de conception le plus confortable et ses éléments individuels pour une pièce particulière. Si vous ne pouvez pas tout faire de vos propres mains, vous pouvez simplement acheter une chaudière pour un bain public au bois, mais cela nécessitera des investissements financiers beaucoup plus importants.
En quoi consiste la chaudière
Avant de choisir une chaudière prête à l'emploi pour un bain à bois ou son projet de construction, vous devez vous familiariser avec la structure interne du système et ses composants. L'efficacité globale de la structure fait l'envie du travail bien coordonné de chaque composant avec le reste.


Dans le schéma des chaudières faites maison pour un bain à bois, les éléments suivants sont nécessairement présents:
- La partie de base est un appareil de chauffage. Il aide à accumuler la chaleur générée par le système. La durée de rétention dépend du volume total du remblai de pierre capable de retenir l'énergie thermique générée par le bois.
- Cheminée centrale. Il repose sur un tuyau vertical à travers lequel les produits légers de combustion sont évacués. Il forme également un courant d'air en faisant circuler des courants d'air.
- Les chaudières pour bains à bois à Voronej, Orel, Samara ou une autre ville ne se passeront pas d'un échangeur de chaleur à eau. Ses fonctions comprennent le chauffage de l'eau pour son utilisation ultérieure.
- Un tunnel de passage avec une petite porte permettra de chauffer des chaudières pour un bain à bois, dont le prix dépend de la conception, du vestiaire ou d'une pièce adjacente. Cette porte est souvent en verre résistant à la chaleur.
- Foyer (foyer), une zone dans laquelle le bois ou tout autre combustible solide disponible est chauffé. Dans cette zone, de la chaleur est dégagée des produits de combustion. La partie inférieure est équipée d'une grille de grilles, sur laquelle est posé du combustible pour divers, y compris des chaudières en fonte pour un bain à bois. Vous devrez monter la porte en face de la chambre de combustion, ainsi que former des chanfreins pour éliminer automatiquement les résidus de combustion.
- Au bas des chaudières, les bains à bois (les photos sont présentées sur la page) disposent d'un cendrier. Ils sont situés sous la grille et servent à collecter les cendres brûlées tombant de la chambre de combustion.
Chaque chauffe-eau pour un bain au bois, assemblé par soi-même, peut différer des analogues dans la disposition structurelle des éléments individuels. Dans ce cas, les paramètres globaux affectent ses performances.
Principe de fonctionnement et appareil
Les chaudières modernes pour bains à bois, fabriquées à la main ou achetées dans un magasin spécialisé, ont le même principe de fonctionnement que celles construites il y a de nombreuses années. Le combustible solide est placé à l'intérieur de la chambre de combustion de l'une des manières possibles. L'option dépend du type de four. Lors de la combustion, les cendres et les suies sont collectées. Ils se réveillent à travers la grille dans le cendrier. De là, les particules refroidies sont éliminées manuellement avec une spatule.


L'air chaud, réchauffé par la combustion du bois de la chambre de combustion, monte vers le haut, fournissant de la chaleur au poêle et à la couche de pierres qui s'y trouve.Ce dernier cède lentement sa chaleur à la pièce, fournissant une température confortable pour le hammam.
Les fabricants proposent des chaudières mixtes pour les bains au bois qui utilisent le gaz comme méthode de chauffage alternative. Cependant, dans tous les domaines, il n'est pas possible de se connecter au système d'alimentation en gaz, c'est pourquoi le modèle classique sur mono-carburant est plus populaire.
La différence entre les conceptions de chaudières dans un bain à bois (photo ci-dessous, le prix est ici ou sur le site du fabricant) réside le plus souvent dans l'emplacement du réservoir d'eau.
Il existe plusieurs zones de son installation, qui ont des qualités positives:
- Schémas avec réservoirs à distance. Ce type est la conception la plus populaire. Avec son aide, il est possible d'obtenir de l'eau chaude utilisée pour chauffer le reste du bâtiment. Ce modèle vous permet de réchauffer l'air à l'intérieur bien avant que l'eau n'ait le temps de bouillir. Il est demandé dans les saunas qui utilisent de l'air sec et chaud. De l'acier inoxydable de haute qualité est utilisé pour le matériau du réservoir. L'installation est généralement effectuée dans une pièce adjacente et le raccordement est effectué à l'aide de registres ou d'un tuyau flexible. L'inconvénient de la conception est la complexité relative des travaux d'installation, les coûts supplémentaires pour les registres et la complexité de l'installation.
- Le réservoir de contrôle est monté directement dans la chambre de la chambre de combustion. La conception est pertinente pour les fours constitués de tuyaux. Le chauffage de l'eau en eux est effectué au point supérieur du four. Cependant, ce n'est pas toujours une solution efficace. La règle principale utilisée dans l'installation de telles structures est l'étanchéité maximale de toutes les coutures, ce qui prolongera la durée de vie de l'appareil.
- L'installation d'un réservoir sur une cheminée se distingue par deux options d'installation: un réservoir en forme de cube ou de parallélogramme est une unité de passage sur le toit, ou un réservoir sert d'unité de passage à travers le plafond jusqu'au deuxième étage. Le réservoir est chauffé non seulement en raison de l'échange de chaleur dans le tuyau, mais également en raison des registres du four, ce qui permet l'utilisation de volumes importants lors du chauffage du liquide.
- La conception à charnière du réservoir permet un montage sur une paroi ou une autre surface verticale.L'eau est chauffée à l'intérieur en raison de l'échange de chaleur reçu des parois du four. Le matériau utilisé pour cette construction est l'acier inoxydable.
Prix moyens des fours avec différents emplacements du réservoir d'eau
| Nom (marque) | Type d'emplacement du réservoir d'eau | prix, frottez. |
| Tungusska | sur la cheminée | à partir de 12000 |
| Helo (Finlande) | intégré | à partir de 27000 |
| Sahara | articulé | à partir de 14000 |
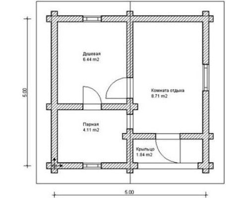
Disposition du bain
L'aménagement du bain dépend principalement du type de bain que son propriétaire a en tête et de la manière dont il va l'utiliser. Dans tous les cas, les locaux suivants doivent être présents dans un bain russe classique:
- hammam - 6-9m2;
- salle de lavage - 5-6 m2;
- dressing dressing - 4-6 m2;
- salle de repos.


Plan de bain autoportant
Salle de relaxation dans le bain
Le bain peut être sans salle de repos, ou une salle de repos peut être combinée avec un dressing. Mais, si possible, il est conseillé de prévoir une salle de repos, car un bain n'est pas seulement un endroit où les gens se lavent et prennent des bains. Pour beaucoup, c'est un endroit préféré pour se détendre en famille et entre amis. Par conséquent, dans la salle de loisirs, une attention particulière est souvent portée, ils essaient de la rendre belle et confortable. Une option très courante consiste à installer un poêle de sauna de telle sorte que le poêle à bois entre dans une pièce adjacente au hammam. Ceci est particulièrement bien combiné avec la présence de toilettes. La chambre de combustion peut être conçue sous la forme d'une cheminée et cela crée une atmosphère agréable.


Toutes les chambres ne doivent pas être séparées. La salle de repos peut être combinée avec un dressing, une salle de lavage, s'il n'y a pas de place, est souvent combinée avec un hammam. Mais il est préférable que le hammam soit séparé.
Hammam et emplacement du poêle du sauna


Il est recommandé de ne pas agrandir la zone du hammam. Après tout, il doit être réchauffé et le régime de température et d'humidité nécessaire maintenu, et la consommation supplémentaire de bois de chauffage n'intéresse personne. Les dimensions approximatives du hammam de 2,5 x 2,5 mètres peuvent être considérées comme tout à fait suffisantes pour un bain familial.
Pour un meilleur transfert de chaleur et un meilleur chauffage du hammam, il est recommandé d'installer le poêle du sauna de manière à ce qu'il soit complètement dans le hammam. Ainsi, la chaleur rayonnée par les parois chauffées du poêle réchauffe la pièce plus rapidement et toute la chaleur utile est utilisée pour créer les conditions nécessaires à la procédure de vapotage.
Dans le même temps, il est possible d'installer le poêle pour qu'il chauffe simultanément les pièces adjacentes (salle de lavage et de relaxation). Dans ce cas, 3 ou 2 parois du four restent dans le hammam. Mais la meilleure option est envisagée s'il y a quatre ou trois murs dans le hammam. Pour pouvoir chauffer le poêle à partir d'une pièce adjacente, le poêle est constitué d'un tunnel de combustion, qui communique avec la pièce voisine. Ce tunnel traverse le mur et à travers celui-ci, vous pouvez jeter du bois de chauffage dans le poêle, tandis que le poêle lui-même est complètement placé dans le hammam.


Hauteur sous plafond du hammam
La qualité du réchauffement d'une pièce est affectée par sa cylindrée. Par conséquent, la hauteur peut être ajustée au volume de la pièce afin d'obtenir le bon équilibre entre la puissance du poêle, la quantité d'énergie dépensée pour réchauffer la pièce et maintenir les conditions optimales de l'air pour le vapotage. La hauteur du hammam dépend du nombre d'étagères qu'il est prévu de fabriquer et du type de poêle qui y sera installé. Si un four électrique à convection est installé, qui est de petite taille, la hauteur de la pièce peut également être réduite. Habituellement, la hauteur de ces hammams est de 2,0 à 2,2 mètres.
Si un poêle en brique est installé, sa hauteur est généralement plus élevée, ils peuvent atteindre 1,8 à 2,0 mètres de haut. La hauteur de la pièce peut alors être de 2,3 à 2,5 mètres.
L'air chauffé et la vapeur montent vers le haut, et une soi-disant «poche de vapeur» est formée sous le plafond. Il atteint les meilleures conditions de température et de vapeur pour les procédures de bain. Afin d'augmenter la taille de cette poche et en même temps de ne pas surestimer la hauteur de la pièce, il est recommandé de ne pas rendre la porte du hammam haute. Il suffit que la hauteur de la porte soit de 1,8 m.


Il est également préférable de faire un seuil d'une hauteur de 10 à 20 cm à cette porte. Ensuite, l'air plus froid de la pièce voisine ne sera pas aspiré dans le hammam et ne refroidira pas la température déjà plus basse dans l'espace près du sol . Dans ce cas, il est tout à fait raisonnable d'obtenir la hauteur de l'étagère supérieure, sur laquelle il est possible d'effectuer des procédures de bain, égale à 1,8 mètre. Dans ce cas, il reste encore 0,5, ou mieux 0,7 mètre de la "poche de vapeur" au plafond, et des conditions plus confortables sont obtenues pour travailler avec un balai pour le baigneur.
Équipement interne du hammam
Les principaux équipements internes du hammam sont des étagères ou des bancs. Habituellement, 1 à 2 étagères sont faites. Lors de la planification de l'étagère, vous devez prendre en compte les dimensions des membres de la famille. Les tailles d'étagères standard vont de 60 à 90 cm de largeur et de longueur de 1,2-1,5 à 1,8-2,3 m.
Options de placement d'étagère possibles.
Lors de la mise en place des grilles, il est impératif de prendre en compte les distances d'incendie et de sécurité par rapport au four. Avec les fours électriques, cette distance est d'environ 20 cm, avec les fours à bois -30-40 cm.
La hauteur des étagères est d'une grande importance. Il doit être confortable pour qu'il soit pratique de grimper dessus. Et aussi la commodité pour le baigneur doit être prise en compte. Lors de la conception d'un sauna individuel, il convient de prendre en compte la croissance des membres de la famille.


Section du hammam avec étagères à deux niveaux
Il est conseillé de rendre la surface des étagères en treillis afin de permettre à l'air chaud de circuler librement et de réchauffer toute la pièce.


Ou, au contraire, l'espace sous les étagères peut être cousu étroitement, afin de réduire ainsi la cylindrée de la pièce.Ensuite, les étagères elles-mêmes doivent être solidifiées. Mais avec les étagères câblées, l'espace sous les étagères reste froid et les étagères elles-mêmes peuvent ne pas être assez chaudes.
Il faut également prévoir une place ou des étagères pour l'inventaire: bassins, balais.


Modèles avec réservoir d'eau intégré ou articulé
Un réservoir pour chauffer de l'eau est un récipient en métal d'un certain volume, dans lequel de l'eau froide est initialement versée et, lors du chauffage du four, il se réchauffe.
Un réservoir à charnière situé de l'autre côté du poêle (dans certains cas même dans une autre pièce) n'est pas toujours pratique. Le plaisir de laver le réservoir, qui est intégré dans le corps du poêle, est également discutable.
Premièrement, il est impossible de contrôler la quantité d'eau restante et s'il est nécessaire d'en rajouter. Deuxièmement, l'eau bouillante en permanence dégage trop de vapeur, ce qui n'est pas très confortable pour un petit hammam.
Avantages du réservoir d'eau à distance
Tout réservoir de stockage dans la baignoire peut être chauffé de deux manières - soit à partir de la chambre de combustion elle-même, soit à partir de la cheminée. Le réservoir à distance ne peut être chauffé qu'au moyen des tuyaux partant du serpentin du four. L'inconvénient de la conception est la nécessité d'être proche du poêle (pas plus de 300 cm), mais pour la plupart des hammams, cela suffit.
Un exemple de réservoir d'eau à distance
En général, le chauffage de l'eau dans le bain peut être organisé systématiquement - si le réservoir est grand, la cheminée sera le meilleur emplacement lorsque la fumée chaude qui passe chauffe l'eau. De petits réservoirs de stockage peuvent être installés directement sur le chauffe-eau, mais une bonne sortie de vapeur doit alors être fournie. Il est conseillé de monter de petits réservoirs à l'extérieur du hammam.
Comment choisir un poêle pour un bain
Les fours sont différents dans le matériau dont ils sont fabriqués, dans la manière de chauffer et dans la conception.
Selon la méthode de chauffage, les poêles de sauna peuvent être divisés en deux classes principales. Ce sont des fours électriques et des poêles à bois. À leur tour, les poêles électriques et à bois peuvent être appelés appareils de chauffage s'ils utilisent des pierres pour produire de la vapeur humide. Mais quel poêle est préférable de choisir pour un bain? Nous continuons à lire.
Fours électriques
Les fours électriques présentent les avantages suivants:
- échauffement rapide;
- peut être installé dans différentes pièces, même dans un appartement;
- facilité d'utilisation, possibilité de régler une minuterie;
- manque de déchets provenant du bois de chauffage et des produits de combustion;
- pas besoin de faire le plein de bois de chauffage


Les principaux inconvénients des fours électriques:
- consommation d'énergie élevée;
- créer un fond électromagnétique puissant;
- l'air qui entre en contact avec le fer rouge de l'ombre électrique modifie son ionisation naturelle, ce qui n'est pas très utile.
Poêles à bois
Les poêles à bois sont divisés en ceux qui sont cuits en «noir» et «blanc». Dans les poêles «en noir», la fumée de la combustion du bois pénètre dans le hammam. Les poêles «en blanc» sont équipés d'une cheminée et la fumée est évacuée à l'extérieur du bain vers la rue. Naturellement, les coûts de construction d'une cheminée rendent la construction d'un tel poêle beaucoup plus lourde et plus coûteuse, mais un poêle à bois, qui est chauffé "en blanc", est préférable et ce type de poêles de sauna est principalement utilisé.
Les principaux inconvénients des poêles à bois:
- massif et lourd, une fondation s'impose;
- la nécessité de préparer du bois de chauffage;
- la nécessité de construire une cheminée;
- exigences élevées en matière de sécurité incendie;
- une certaine complexité de contrôle du processus du four;
- la nécessité de nettoyer la fournaise et la cheminée des cendres.
Les poêles à bois présentent les avantages suivants:
- donner un rayonnement thermique infrarouge;
- créer la bonne atmosphère;
- sont traditionnels pour le bain russe.


En outre, les poêles à bois par type de structure enveloppante peuvent être divisés en métal et en pierre. Les fours métalliques sont largement utilisés car ils sont plus petits et pèsent moins que ceux en pierre.


Mais le meilleur poêle pour un bain est un poêle à bois en pierre. Le meilleur poêle est un poêle en pierre de rempotage (stéatite). Ces fours sont disponibles dans le commerce.Mais ils sont assez chers. Alternativement, vous pouvez acheter un four en métal recouvert de stéatite.
Pour interrompre la lecture, nous vous suggérons de regarder une vidéo fascinante.
Quel devrait être un hammam russe:
Le principe de l'appareil et les dimensions d'un poêle-poêle de sauna en brique
Dans nos conditions, ils fabriquent un poêle à bois en brique. C'est une option assez courante. La brique se réchauffe et rayonne de la chaleur infrarouge de la surface du four.
Seule la brique d'argile peut être utilisée pour le poêle et en aucun cas la brique de silicate.


Poêle de sauna


Options de fournaise
Les dimensions du poêle et, par conséquent, la surface utile rayonnant de chaleur, sont déterminées par les dimensions du hammam. La configuration et les proportions du four peuvent varier. Cela dépend également de la fonctionnalité du poêle, s'il aura, par exemple, également un réservoir pour chauffer l'eau. En gros pour un bain familial pour 2 à 4 personnes, vous pouvez prendre la taille du poêle 90x90x180 cm.


Examen des meilleurs modèles
Sur le marché, il existe des poêles à bois pour un bain avec un réservoir, des fabricants nationaux et étrangers. Passons en revue les meilleurs modèles qui ont gagné la reconnaissance de l'acheteur.
| Catégorie | Nom | prix, frottez. |
| Les meilleures chaudières étrangères pour un bain à bois avec cuve | Harvia 20 ES Pro S | 39000 |
| HARVIA 36 DUO | 89000 | |
| Kastor Karhu 18 PK ES | 49000 | |
| Les meilleures chaudières russes pour un bain à bois avec cuve | Taman 10 To | 12000 |
| Ermak 12 | 11900 | |
| Varvara Polenitsa | 18000 | |
| Volcan Elbrus 26 Standard | 24000 |
Sortie de cheminée


La conception du poêle dans une salle de bain avec foyer à distance prévoit une cheminée. Si vous envisagez de le faire sortir à travers le mur, il est préférable d'utiliser un tuyau en métal et la connexion des segments est effectuée dans une douille. La distance entre la chaudière et le mur est mesurée en tenant compte des dimensions linéaires du coude. L'artisan doit mesurer la hauteur du trou dans le mur. En plus des sections droites, deux coudes ou plus doivent être utilisés pour le dispositif de cheminée. L'un d'eux doit retourner la chaudière, tandis que l'autre doit tourner dans la rue en position verticale.
Un poêle pour un bain en métal doit être complété par une cheminée, qui est dirigée vers le mur. Pour le tuyau, des trous doivent être percés autour du périmètre de l'ouverture à l'aide d'une perceuse. Le ciseau et le ciseau enlèveront les ponts entre les trous. Les bords de l'ouverture sont alignés avec une scie, mais il ne sera toujours pas possible de la rendre ronde, qu'elle soit carrée.
Sur les côtés, la distance à la cheminée doit être de 10 cm Le tuyau métallique est coupé à la taille, en tenant compte du raccordement dans la douille. Il est traité avec un scellant noir résistant à la chaleur. La cheminée est d'abord assemblée dans les bains, et seul un morceau de tuyau séparé, dont la longueur est de 10 cm, fera saillie dans la rue.
Les meilleures chaudières étrangères pour un bain à bois avec cuve
Lors du choix d'une chaudière pour un bain au bois, vous devez également penser à sa sécurité. Les modèles nationaux sont souvent non volatils, pour les produits étrangers, une connexion électrique est nécessaire
Harvia 20 ES Pro S
La version économique du fabricant finlandais, qui se distingue par une longue durée de vie, des performances élevées et un fonctionnement pratique.


Harvia 20 ES Pro S
Spécifications du modèle:
- Dimensions - 430x760x650 mm
- Poids - 75 kg
- Puissance thermique - 18 kW
- Diamètre de la cheminée - 115 mm
- Le volume du réservoir intégré est de 20 litres.
Le boîtier externe de l'unité est en acier inoxydable, il y a une porte en fonte avec verre pour compléter l'atmosphère particulière du sauna avec des reflets de feu.
Le coût moyen du four sera de 39 000 roubles.
Instruction d'utilisation Harvia 20 ES Pro S
HARVIA 36 DUO
La particularité de ce modèle est que le corps est en acier inoxydable, résistant à la corrosion, ce qui est particulièrement important lors de l'utilisation de l'appareil dans un sauna ou un bain. Le poêle est installé dans le hammam, mais la chambre de combustion est réalisée à partir de la pièce adjacente.


HARVIA 36 DUO
Caractéristiques:
- Dimensions - 810x510x510 mm
- Poids sans pierres - 80 kg
- Puissance thermique - 31 kW
- Volume du hammam - 14 à 36 mètres cubes
- Diamètre de la cheminée - 115 mm
Le coût moyen est de 89 000 roubles.
Mode d'emploi HARVIA 36 DUO
Kastor Karhu 18 PK ES
Un modèle avec réservoir intégré d'un fabricant finlandais bien connu, qui fournit des poêles de haute qualité pour bains et saunas sur les marchés européens depuis près de 100 ans. Kastor Karhu 18 PK ES est en métal allié inoxydable, avec un insert en verre résistant à la chaleur dans la porte.
Kastor Karhu 18 PK ES
Spécifications du produit:
- Dimensions - 435x695x780 mm.
- Le volume du réservoir est de 26 litres.
- Diamètre de la cheminée - 135 mm.
- Poids du four - 76 kg.
- Le volume du hammam peut atteindre 18 mètres cubes. mètres.
Le coût moyen de ce modèle sera de 49 000 roubles.
Mode d'emploi Kastor Karhu 18 PK ES
Caractéristiques du choix d'un four électrique


Appareils de chauffage - photo
Avantages des radiateurs électriques
Les poêles électriques pour sauna présentent de nombreux avantages.
- Premièrement, ils sont compacts - un chauffage électrique moyen occupera en toutes circonstances moins de surface utile qu'un appareil à gaz et, de plus, une unité à combustible solide.
- Deuxièmement, ils sont très faciles à utiliser. Comme indiqué, l'utilisateur a accès non seulement à la possibilité de contrôler les indicateurs de température et d'humidité, mais également d'organiser une automatisation complète.
- Troisièmement, ils n'impliquent pas un arrangement de cheminée. Compte tenu de cela, l'installation directe du four nécessitera un investissement financier beaucoup plus modeste par rapport à d'autres types d'unités possibles.
- Quatrièmement, dans un hammam avec une cuisinière électrique, il sera toujours propre: vous pouvez oublier les cendres, la fumée et la poussière.
- Cinquièmement, les radiateurs électriques modernes de fabricants de confiance durent plus longtemps que les appareils à combustible solide simples d'une catégorie de prix similaire.
- Sixièmement, la cuisinière électrique est extrêmement facile à utiliser. L'utilisateur est seulement tenu d'allumer l'appareil et d'attendre un peu.
Et en ce qui concerne le choix de l'emplacement d'installation du poêle, il n'y a pas de restrictions importantes - il peut être placé près du mur, même au centre de la pièce.


Globe terrestre Harvia
Les radiateurs électriques gagnent également en matière de sécurité: un fonctionnement cyclique bien pensé et bien organisé, la présence d'automatismes sensibles et de dispositifs d'arrêt de protection permettent de minimiser la probabilité de toutes sortes de problèmes inhérents aux appareils fonctionnant sur le principe du combustible. la combustion.


Appareil de chauffage électrique pour sauna
Pour une facilité d'utilisation maximale, de nombreux modèles de poêles de sauna électriques sont équipés de télécommandes intégrées ou, mieux encore, à distance.


Radiateur électrique Télécommande KIVI PI70 incluse (Harvia)


Commande de chauffage électrique


Panneau de commande tactile électronique
Il faut relativement peu de temps pour réchauffer le hammam avec un radiateur électrique, et la chaleur qui en résulte est caractérisée par la douceur et l'uniformité.
Principaux critères de sélection
Les principaux paramètres à prendre en compte lors du choix d'un poêle de sauna électrique sont indiqués ci-dessous.
- Le volume de la salle desservie et la capacité requise du système. Les recommandations pour le calcul de ce moment ont été discutées plus tôt.
- Éléments de contrôle et de régulation. Comme indiqué, le panneau de commande du four électrique peut être intégré ou à distance. Ici, chacun doit décider par lui-même de ce qui lui convient le mieux.
- Caractéristiques du radiateur. Un des points les plus importants. Les poêles de sauna modernes sont équipés d'éléments chauffants, de ruban adhésif et d'appareils de chauffage combinés. L'élément chauffant (tubulaire) peut être chauffé à des températures très élevées, mais il sert relativement peu. Si vous décidez d'acheter un poêle avec un élément chauffant, assurez-vous qu'il est fait d'un alliage inoxydable.


Chauffage électrique tubulaireLes dispositifs à bande se caractérisent par des taux de chauffage, un respect de l'environnement et une efficacité plus élevés, alors qu'ils ne brûlent pas autant l'air que les éléments chauffants «frères», et ils durent beaucoup plus longtemps.


Élément chauffant à ruban en céramiqueLes options combinées combinent les deux types d'appareils de chauffage mentionnés. Pour le prix, ils sont les plus chers, mais ils fournissent les indicateurs les plus rapides de vitesse et de température de chauffage de la pièce desservie.
- Conception. Les fours électriques peuvent avoir une grande variété de tailles, de formes et de caractéristiques de conception.Sur ces points, la décision appartient à l'acheteur.
- Matériel extérieur. Le poêle peut être soit habillé d'un beau boîtier en métal, soit décoré de pierre naturelle, par exemple de la talcochlorite ou du talc magnésite.


Face à la poudre de talc

Bardage en talcomagnésite

Chauffage à serpentinL'utilisation d'un revêtement améliore non seulement les qualités externes du poêle, mais a également des fonctions pratiques importantes, à savoir: il augmente la protection de l'utilisateur contre les effets du rayonnement IF, favorise l'accumulation de chaleur, élimine les chutes de température de convection, assure la création de un fond thermique uniforme idéal, et a un effet positif sur le corps humain.
Important! Lorsque vous envisagez d'acheter un poêle de sauna électrique, demandez au vendeur de présenter un certificat de conformité aux exigences de ces systèmes et aux paramètres de sécurité incendie. En l'absence de tel, il est fortement recommandé de s'abstenir d'acheter un poêle.
Plus en détail, les nuances de choix d'un four électrique pour un bain et les recommandations pour son installation ont été prises en compte dans la publication correspondante de notre site Web.
Les meilleures chaudières russes pour un bain à bois avec cuve
Les modèles russes de chaudières à bois sont reconnus dans le monde entier comme des équipements de haute qualité et fiables, sans fioritures ni automatisation excessive des processus de combustion.
Taman 10 To
L'un des meilleurs modèles domestiques, qui, lors de la conception du produit, a accordé une grande attention à la question de la température des gaz de combustion sortant, la minimisant et offrant ainsi une atmosphère confortable dans le hammam.
Taman 10 To
Caractéristiques:
- Dimensions - 702x331x850 mm.
- Poids - 46 kg.
- Matériel - acier de construction.
- Le radiateur est ouvert.
- Diamètre de la cheminée - 115 mm.
- Le volume du hammam peut atteindre 10 mètres cubes.
Le principal avantage du modèle est que les parois de la chambre de combustion sont en acier de construction jusqu'à 4 mm d'épaisseur, ce qui garantit une longue durée de vie du produit. Il convient également de noter le faible coût de l'appareil - en moyenne, l'achat coûtera 12000 roubles.
Mode d'emploi Taman 10 TB
Ermak 12
Modèle compact pour aménager un petit bain avec un hammam jusqu'à 14 m2. mètres. La chambre de combustion est en acier de 6 mm d'épaisseur. Le corps et le système de cheminée sont en acier de 4 mm d'épaisseur, dans les endroits où la charge thermique est la plus élevée - acier revêtu jusqu'à 6 mm.
Ermak 12
Caractéristiques de conception:
- La profondeur de la chambre de combustion peut atteindre 500 mm.
- L'emplacement de la cheminée est central.
- Puissance - 12 kW.
Le coût moyen d'un tel four est de 11 900 roubles.
Manuel d'utilisation Ermak 12
Varvara Polenitsa
Un poêle pour bain d'un fabricant Tver, qui offre à ses clients des conceptions économiques et faciles à utiliser. Une option pratique pour un bain qui n'est pas connecté à l'alimentation en eau. Le réservoir d'eau est suspendu dans une poche spéciale sur la paroi latérale du four, le chauffage est effectué en transférant la chaleur de la paroi de la structure. Le principal avantage est que le réservoir est amovible, il est facile à retirer et à laver.


Varvara Polenitsa
Caractéristiques techniques de l'appareil:
- Puissance - 18 kW.
- Capacité de la chambre de combustion - 0, 075 mètres cubes.
- Le combustible est du bois.
- Dimensions - 860x450x720 mm.
- Poids - 120 kg.
- Le volume interne de la cheminée est de 110 mm.
- Volume du hammam - 24 mètres cubes. mètres.
- La capacité du réservoir à charnière est de 50 litres.
Parmi les avantages de ce modèle, il convient de souligner des points tels que la facilité d'installation et d'entretien, il n'y a pas besoin de système d'alimentation en eau, le réservoir d'eau est en acier de qualité alimentaire, chauffage rapide de l'eau, chauffage uniforme des pierres.
Et, bien sûr, n'oubliez pas un tel avantage principal - c'est un coût abordable - le prix moyen d'un produit sera de 18000 roubles.
Méthodes d'auto-fabrication


Disposition horizontale
Lorsque vous décidez de transformer indépendamment un poêle en bain à partir d'un tuyau, il convient de garder à l'esprit qu'il n'est pas nécessaire de parler de l'aspect élégant d'un tel design. Cependant, il remplit pleinement son objectif fonctionnel, chauffant rapidement et efficacement un hammam d'un volume allant jusqu'à 20 m3.
Structurellement, les poêles de sauna à faire soi-même à partir d'un tuyau en acier sont divisés en vertical et horizontal. Chaque variété a ses avantages et ses inconvénients. Le critère principal pour choisir une modification particulière doit être basé sur la zone et la disposition du hammam.
Disposition horizontale
S'il est fondamentalement important de garder de l'espace libre dans le hammam, une conception verticale doit être choisie. Mais le four horizontal présente plusieurs avantages évidents:
- emplacement pratique de la chambre de combustion;
- la hauteur optimale de l'appareil de chauffage en raison de la faible hauteur de la structure elle-même;
- excellent chauffage des pierres et un réservoir d'eau;
- le faible poids de la structure permet de l'installer au centre de la pièce sur une tôle d'acier ordinaire de 8 mm d'épaisseur, à condition que l'isolation ait une épaisseur de 20 mm;
- même distribution de carburant.
Le matériau pour la fabrication d'une structure horizontale peut être un tuyau d'un diamètre de 50 cm ou une ancienne bouteille de gaz.
La particularité d'un tel poêle est qu'il chauffe parfaitement toutes les pièces du hammam, à l'exception du sol.
Disposition verticale


Four vertical à partir d'un tuyau
Le niveau de transfert de chaleur et le temps de combustion d'un poêle vertical dans un bain à partir d'un tuyau est inférieur à celui d'une structure installée horizontalement. Cela est dû au fait que l'énergie thermique a tendance à augmenter, n'ayant pas le temps de réchauffer les parois métalliques.
Le taux de combustion du combustible à l'intérieur d'une structure verticale peut être réduit en fermant la porte du cendrier et en limitant ainsi l'accès de l'oxygène au four. Un autre inconvénient est que dans un poêle vertical, le combustible brûle entièrement à la fois, et dans un poêle horizontal - progressivement, assurant un chauffage uniforme de la pièce. L'avantage de la conception verticale est que les pierres sont chauffées plus intensément et que plus de vapeur saturée est obtenue.
L'efficacité d'un four horizontal est plus élevée, il est donc plus opportun de choisir une telle conception. Pour donner au poêle un aspect esthétique, il peut être en brique, peint ou bleui.
Lors du choix d'une composition pour peindre une surface métallique, sa résistance à la chaleur doit être prise en compte. La peinture résoudra le problème de l'apparence du four et protégera le métal de la corrosion. La texture et la couleur de la composition affectent le transfert de chaleur - une surface foncée mate dégage de l'énergie thermique mieux qu'une surface lisse et brillante.
Le métal chauffé émet un rayonnement infrarouge brûlant. La brique protégera contre elle, qui absorbera la chaleur et la libérera progressivement dans la pièce.
Il existe plusieurs options:
- avec un revêtement continu, le four peut être rendu esthétique, mais son efficacité de chauffage diminuera dans une certaine mesure;
- pour augmenter le transfert de chaleur et créer des conditions plus confortables à proximité immédiate du four, vous pouvez utiliser un petit écran thermique en brique;
- les options universelles incluent un dispositif de revêtement de convecteur avec des bouches d'aération.
Le traitement d'une surface métallique avec des composés chimiques spéciaux est appelé bleuissement. Cette méthode de décoration offre, en plus de l'aspect esthétique, une protection fiable contre la corrosion.
Caractéristiques du dessin


Dessin de bricolage
Afin de choisir la bonne façon de positionner le poêle dans le hammam, il est au préalable recommandé de compléter un dessin de la pièce et de la structure elle-même afin de comprendre l'espace nécessaire pour le placer.
Structurellement, le poêle de sauna se compose d'éléments fixés séquentiellement par soudage:
- corps du ventilateur, chauffage, foyer et grille;
- récipient pour l'eau;
- cheminée;
- un pare-étincelles sur la cheminée.
Le choix d'un tuyau adapté à une conception particulière est influencé par l'épaisseur de l'acier et la taille de la section interne du produit. Le marquage "diamètre * épaisseur de paroi" vous renseignera sur les paramètres du produit. Pour un poêle de sauna, la valeur préférée du diamètre est de 50 à 60 cm et l'épaisseur de la paroi est de 0,7 à 1,3 cm. Ces parois sont mieux usinables et ne se déforment pas pendant le fonctionnement sous l'influence de températures élevées.
Le plus souvent à ces fins, un tuyau d'une section transversale de 53 cm est acheté - cette valeur est considérée comme la plus optimale pour un hammam. Un petit four d'un diamètre de 42,6 cm peut être installé dans un petit sauna, qui sert principalement de salle de lavage. Pour un hammam spacieux, un tuyau d'une section transversale de 63 cm convient.
Lors du choix du diamètre et de la hauteur de la structure, il est nécessaire de prendre en compte la superficie du hammam et la quantité de carburant prévue. Plus la chambre de combustion est grande, plus le combustible brûlera rapidement et plus d'énergie thermique sera libérée.



















