désavantages
Le chauffage autonome au gaz d'une maison privée, comme tout autre système technologique, a ses propres inconvénients:
- Obtenir la permission des autorités locales pour mener des communications appropriées.
- Coûts élevés pour l'achat d'équipement de chaudière.
Tout cela ne peut porter ses fruits qu'après 3 à 5 ans. Cependant, certaines personnes expriment le chiffre de 10 à 15 ans, mais de telles déclarations nécessitent une vérification pour chaque cas spécifique. De plus, à ce jour, les prévisions de prix du gaz sont plutôt décevantes: les analyses prévoient une augmentation significative.
Chauffage au gaz: avantages
On ne peut que convenir que dans notre pays, le type de combustible le plus accessible et le moins coûteux est le gaz naturel. Aujourd'hui, le plan de gazéification omniprésente est en action, et même les coins les plus reculés de l'État peuvent utiliser le chauffage au gaz pour chauffer les maisons. Le chauffage au gaz d'une maison d'été est l'option la plus acceptable et la plus rentable pour une rénovation chaleureuse. Les avantages de ce type de chauffage sont importants.
On a déjà parlé du prix abordable du gaz. Il est à noter qu'en plus de la facilité d'installation des équipements, le chauffage au gaz est totalement sans prétention: le combustible pénètre seul dans la chaudière, aucun effort n'est donc nécessaire pour le charger et le décharger. Le chauffage d'un chalet d'été au gaz est un processus respectueux de l'environnement, le carburant ne laisse pas de suie et de suie, complètement brûlé. L'argent investi dans l'approvisionnement en carburant portera ses fruits très rapidement. De plus, le propriétaire de la datcha sera libéré de la récolte annuelle de charbon et de bois, ce qui augmentera les chances de vacances plus agréables en été.
Avant de procéder à l'approvisionnement en gaz de la maison, il est nécessaire de collecter et de préparer des documents. N'ignorez pas cette étape. L'absence d'un morceau de papier nécessaire peut entraîner la suspension des travaux.
Article connexe: Comment se débarrasser de l'odeur d'urine de chat dans un appartement à la maison
Gaz liquéfié
S'il n'y a aucune possibilité de se connecter au gazoduc principal, vous pouvez utiliser du gaz liquéfié. Il y a un conteneur spécial sur le site - un réservoir de gaz. Le coût du gaz liquéfié varie entre le diesel et le bois. Et surtout, si à l'avenir, il devient possible de se connecter au réseau d'alimentation en gaz, une reconstruction à grande échelle de l'équipement de chauffage ne sera pas nécessaire - il sera seulement nécessaire de remplacer les buses de la chaudière.

Le chauffage au gaz d'une maison privée avec des bouteilles est non seulement un système de chauffage écologique et efficace, mais aussi un système de chauffage complètement autonome qui ne dépendra pas d'une maintenance préventive ou d'accidents sur la conduite de gaz. En moyenne, un remplissage du réservoir d'essence devrait suffire pendant un an.
Commentaires des utilisateurs de systèmes de gaz autonomes
En lisant les avis sur les systèmes d'alimentation en gaz autonomes, vous faites attention à une division claire des opinions: ceux qui utilisent des appareils alternatifs et ceux qui veulent les installer.
Revue Vue d'ensemble
Les heureux propriétaires d'installations à gaz autonomes, sur la base de l'expérience acquise, attirent l'attention sur la commodité incontestable de ces appareils, en se référant à la possibilité de démarrer le système à un moment qui leur convient et au mode de chauffage souhaité, ainsi qu'au fait que la présence d'un générateur électrique à gaz permet de vivre en mode autonome.
Les résidents d'été sont très satisfaits de la possibilité d'utiliser le mode d'alimentation en gaz en mode veille, cela vous permet de réaliser des économies importantes, tout en maintenant la maison en bon état et prête à l'arrivée des propriétaires à tout moment.
Beaucoup partagent la triste expérience de l'utilisation de nœuds système peu coûteux et de mauvaise qualité. Cela vaut en particulier pour les boîtes de vitesses indiennes, dont la panne est pratiquement garantie au cours de la troisième année de fonctionnement. De plus, cela se produit au plus fort de la saison de chauffage aux températures les plus basses. L'échec est associé à la destruction de la membrane. Des appareils similaires fabriqués en Bavière fonctionnent régulièrement depuis des décennies.
Pour ceux qui pensent au chauffage autonome, les principaux problèmes sont liés au coût élevé des équipements et de leur installation. On estime que leur période de récupération est de 10 à 12 ans, et pendant cette période, des coûts supplémentaires sont inévitables. Mais en même temps, les utilisateurs potentiels sont attirés par la possibilité d'une gestion personnelle des conditions de vie.
Schéma de cerclage
Le chauffage au gaz d'une maison privée à l'aide de bouteilles présente les inconvénients suivants: en raison du faible volume, le remplacement fréquent (ravitaillement) des bouteilles vides est nécessaire, ainsi que des difficultés à contrôler la qualité du carburant à remplir. Les bouteilles de gaz pour chauffer une maison de campagne peuvent être considérées comme une solution temporaire avant d'installer un système à part entière ou comme une option de secours.


Lors du processus de combustion du gaz naturel, la suie et la suie ne se forment pas, vous n'avez donc pas à nettoyer constamment la chaudière et les cheminées. Il existe une incroyable sélection de modèles d'équipements à gaz - chaudières à simple circuit, à double circuit, atmosphériques, turbo, au sol et murales. Après avoir choisi le modèle le plus optimal, vous pourrez organiser dans une maison de campagne non seulement un système de chauffage de haute qualité, mais également une alimentation en eau chaude.
Chaudières à gaz à convection et à condensation
- Les chaudières à convection à gaz sont des appareils standard qui n'utilisent que l'énergie de la combustion du combustible. De telles unités ont une structure simple et un coût relativement peu coûteux. Le principal problème du dispositif de convection est la formation de condensat sur l'échangeur de chaleur, constitué d'eau et d'acides. Le moyen de lutter contre la perte de rosée est de maintenir une température élevée dans l'échangeur de chaleur, et pour cela, la température du liquide de refroidissement dans la conduite de retour doit être d'au moins 60 degrés. À partir des appareils de chauffage équipés de chaudières de ce type, il est permis d'utiliser des radiateurs muraux, des registres et des convecteurs. Le système de chauffage par le sol et les appareils sans tranchée avec unité de convection ne sont pas combinés, car ils ne chaufferont pas vos pieds, mais les brûleront.
- Les unités de condensation n'utilisent pas toujours pleinement leur énergie, qui est produite lors de la combustion du carburant. Ils convertissent l'énergie de condensation de la vapeur d'eau en chaleur. Pour une chaudière à condensation, il est important que l'échangeur de chaleur ait une température basse ainsi que le retour. En règle générale, un système d'alimentation en chaleur au gaz dans une maison privée avec une unité de chauffage de ce type se présente comme suit: des radiateurs sont placés sous les fenêtres et un système de chauffage par le sol est installé, pour lequel le flux de retour des batteries de chauffage est utilisé, où le le liquide de refroidissement dégage la dernière chaleur.
Lorsqu'ils chauffent une maison privée avec un équipement à gaz, ils utilisent des chaudières:
- avec circulation naturelle
- ils aspirent l'air de la pièce dans le brûleur ouvert et évacuent les produits de combustion en les dirigeant vers la ventilation générale. Leur installation nécessite une pièce séparée d'une superficie d'au moins 4 "carrés" avec une large porte et fenêtre; - circulation forcée
... Dans ce cas, afin de maintenir la combustion, l'air est prélevé dans la rue et les produits de combustion y sont évacués par un conduit d'air séparé. La chaudière peut être installée même dans une zone résidentielle.
Les chaudières à circulation naturelle et forcée, lorsqu'elles équipent des systèmes de chauffage autonomes au gaz, doivent être connectées et mises en marche uniquement par les employés des services de gaz.


Principaux éléments
Le chauffage au gaz d'une maison privée en termes d'automatisation n'est en aucun cas inférieur à l'électricité. Le processus de contrôle du fonctionnement des équipements à gaz peut être organisé au moyen de capteurs d'ambiance programmables et d'une automatisation en fonction de la météo, d'une télécommande - à l'aide de messages SMS.
Toute chaudière doit être équipée d'un système de protection en cas de coupure de courant et de gaz. Les modèles les plus avancés sont équipés d'une fonction d'alerte de code et de programmes d'auto-diagnostic.


Un stabilisateur est nécessaire pour se protéger contre les pannes de courant. Pour éviter que la chaudière ne s'arrête lorsque l'alimentation électrique est complètement coupée, il est conseillé d'installer une alimentation sans coupure.
Instructions courtes


Schéma d'installation d'une chaudière à gaz de type parapet.
Les documents techniques, qui contiennent les caractéristiques du terrain et le plan d'alimentation en gaz de la canalisation centrale, sont élaborés et exécutés par des organismes agréés. Ce sont généralement des techniciens de campagne de gaz.
L'ensemble de l'installation des équipements de raccordement au gaz (chauffe-eau, chaudière, compteur, tuyaux) est réalisé par une équipe d'installateurs.
Conclure un contrat pour la fourniture de gaz à partir du tuyau central et un contrat pour l'installation de l'équipement. Ce sont des emplois complètement différents, et ils sont exécutés selon des estimations différentes.
La pièce où vous prévoyez d'installer l'équipement à gaz doit avoir une ventilation, une fenêtre, un éclairage et un sol en béton. Si vous souhaitez installer tout le kit dans la cuisine, vous devrez percer des trous dans les portes et effectuer une ventilation à proximité des installations de gaz.
Une fois l'installation terminée, vous devez conclure un contrat pour la maintenance des équipements à gaz. Appeler un collaborateur du service contrôle gaz et rédiger un acte de mise en service des équipements et compteurs de gaz.
Article connexe: Comment choisir et installer des portes coulissantes intérieures coulissantes
Prenez l'acte d'entrée et concluez un accord au service client de la campagne gaz pour la fourniture de gaz et son paiement au compteur.
Exigences d'installation
Le système de chauffage au gaz d'une maison privée doit être aussi sûr que possible. A cet égard, des exigences assez strictes sont imposées à la chaufferie dans laquelle se trouvent les équipements et les réseaux d'alimentation en gaz sont installés. Le non-respect de cette consigne peut provoquer une diminution critique du niveau de sécurité. La chaufferie doit être équipée d'une bonne ventilation, d'ouvertures de fenêtres pour la lumière naturelle, d'un analyseur de gaz, d'une vanne pour couper automatiquement l'alimentation en gaz de l'équipement de la chaudière, d'un passage libre à tous les appareils et appareils, et les structures d'enceinte doivent avoir une certaine niveau de résistance au feu, etc.
Il n'est pas souhaitable d'aménager une chaufferie au sous-sol. Le gaz naturel étant beaucoup plus lourd que l'air, en cas de fuite, il commencera à s'accumuler, formant un mélange explosif lorsqu'il est combiné à l'oxygène atmosphérique.
Pour les équipements avec une chambre de combustion ouverte, une cheminée d'une certaine conception doit être présente dans la pièce. Compte tenu des grandes dimensions hors tout de la cheminée, il doit être pris en compte même au stade de la conception. Les chaudières à chambres de combustion fermées ne nécessitent pas de cheminées à tirage naturel volumineuses et coûteuses. Dans de tels dispositifs, un tirage forcé est utilisé, à cet égard, une canalisation d'un diamètre de 10 cm est suffisante pour éliminer les produits de combustion.


Pour chauffer au gaz une maison privée (les avis d'experts le confirment), il est sûr, il est conseillé de faire appel aux services de spécialistes exclusivement certifiés. La conception, la sélection des systèmes de chauffage, la sélection des équipements à gaz, ainsi que l'installation du système doivent être effectuées de manière professionnelle et en totale conformité avec les exigences des SNiP, GOST et les règles de sécurité incendie. Avant de commencer à faire fonctionner un nouveau système de chauffage, vous devez obtenir un permis officiel de l'organisation régionale ou de district du gaz.
Caractéristiques de l'installation du chauffage au gaz à la maison
Une chaufferie à gaz personnelle permettra parfaitement de chauffer les locaux d'une petite maison privée. Vous pouvez commander l'installation du système de chauffage chez NPO KVO LLC. Nos experts effectueront l'installation des équipements conformément à toutes les règles.
La chaufferie à gaz est montée en plusieurs étapes:
- conception du système de chauffage;
- sélection, achat et livraison du matériel nécessaire;
- installation d'équipements (installation d'une chaudière, raccordement de celle-ci à des tuyaux de transfert de chaleur);
- travaux de mise en service.
Pour le prix, une chaufferie au gaz peut être chère (grande maison, beaucoup de caloporteurs) et bon marché (petite maison, raccordement aux bouteilles). La poursuite du fonctionnement du système sera peu coûteuse, car le gaz est le carburant le moins cher.
Chauffage autonome au gaz
Si vous avez acheté ou construit, par exemple, un chalet ou un hôtel particulier, vous aurez certainement besoin du chauffage autonome au gaz d'une maison privée, une chaudière à gaz, qui en fera partie intégrante. Une maison moderne sans chauffage autonome est tout simplement impossible à imaginer. Et en général, comment les gens peuvent-ils être là si en hiver la température dans la pièce ne diffère pas beaucoup de celle de la rue?
En installant votre propre système de chauffage, vous pouvez indépendamment abaisser ou augmenter le niveau de chauffage. Et avec quoi chauffer - briquettes de bois, carburant diesel, gaz - vous choisissez également vous-même.


Choisir un système de chauffage autonome
Avoir les moyens et l'envie de faire du chauffage autonome au gaz chez soi, c'est la moitié de la bataille. Nous devrons encore consacrer beaucoup d'efforts pour obtenir l'autorisation appropriée des autorités de régulation et des autorités. C'est à ce stade que vous devrez choisir quel sera le type de futur système de chauffage autonome, quelles tâches et exigences en matière d'équipement de chauffage seront définies.
La réponse à de nombreuses questions sera donnée par le projet de système de chauffage. Le type de système de chauffage autonome correctement sélectionné pour les conditions réelles, les calculs hydrauliques et thermiques correspondants, effectués avec précision et correctement, assureront à l'avenir l'installation sûre des équipements.
Aujourd'hui, il existe deux types de chauffage domestique les plus courants:
- radiateur;
- plancher isolé thermiquement à l'eau.
Les deux systèmes ont leurs avantages et leurs inconvénients. Dans la première version, nous pouvons parler d'installation rapide et pratique. La pose de tuyaux, l'installation d'une chaudière et le raccordement de radiateurs est une activité courante et pour les professionnels, ce n'est pas particulièrement difficile.
Important! Les radiateurs de chauffage sont plus efficaces dans les pièces avec une grande surface vitrée. Pendant le processus de chauffage, un rideau thermique est créé devant les fenêtres, créant l'équilibre de température nécessaire.
Il n'y a pas d'inconvénients significatifs dans un tel système. Le coût d'installation n'est pas élevé, mais il faut en tenir compte: chaque radiateur coûte beaucoup d'argent, plus le coût de la chaudière et des consommables qui seront nécessaires pour établir les communications. Plus la zone chauffée est grande, plus les coûts sont élevés.
En termes d'efficacité, un plancher chauffé à l'eau est plus rentable. En cours de travail, en raison de la surface du sol chauffée, tout l'espace interne de la pièce est uniformément chauffé. Les inconvénients comprennent le coût élevé de l'équipement et la complexité de l'installation.
Remarque: l'air chaud monte uniformément vers le haut, tandis que l'air froid descend et ainsi de suite en cercle. Les radiateurs chauffants chauffent l'air directement à côté d'eux. Dans une pièce chauffée, l'échange d'air est lent.
Par exemple: l'air à une hauteur de 1,5 m au-dessus du niveau du sol se réchauffe jusqu'à 200 ° C, puis au niveau du sol, l'air se réchauffe jusqu'à seulement 17-180 ° C. Sous le plafond même, l'air est encore plus chaud de 24 à 250 ° C. Le résultat est une perte de chaleur accrue à travers le grenier et les panneaux muraux. La chaudière fonctionne dans un mode amélioré, la consommation de carburant augmente.


Avec un plancher d'eau, la situation est différente. La température requise pour le fonctionnement du système «plancher chaud» est inférieure à la température requise pour les radiateurs. La chaudière à gaz est capable de fonctionner avec une efficacité maximale, et la consommation de carburant dans ce cas est minime.
Lorsque vous choisissez un système de chauffage pour votre maison, n'oubliez pas que le chauffage par le sol a un transfert de chaleur limité - seulement 50-70 W par m2. Dans les pièces de grande superficie, avec un grand nombre de fenêtres et de murs extérieurs, une perte de chaleur importante se produira.
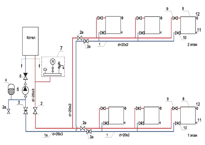
Le diagramme montre un système de chauffage à deux tuyaux, traditionnel pour la plupart des maisons du secteur privé.


Chauffage autonome aux gaz liquéfiés
L'option la plus optimale pour chauffer votre propre maison est d'équiper la chaufferie avec les composants nécessaires. Dans ce cas, la tâche principale ne devrait pas être seulement l'organisation du chauffage, mais l'installation d'un système de chauffage rentable et économique. La puissance optimale et les autres paramètres maximaux admissibles doivent être sélectionnés pour l'équipement. Il est à noter que beaucoup dépend également du choix du carburant. Par exemple, le chauffage au gaz d'une maison privée (le prix dépend du type de combustible choisi) peut fonctionner au gaz, au diesel, au charbon ou à l'énergie électrique.
Aujourd'hui, le chauffage autonome peut être qualifié de plus rentable d'un point de vue économique. Et l'essentiel est que l'avantage incontestable d'un tel système est sa sécurité pour l'environnement.
Schémas de câblage de chauffage autonome
Il existe 3 types de systèmes intérieurs utilisés pour le chauffage autonome: un, deux tubes et radial.


Dans le premier, les batteries sont connectées en série à un pipeline commun. Cette option d'installation est la plus économique, car elle nécessite moins de tuyaux, mais est inefficace, car il est difficile d'obtenir un transfert de chaleur égal de tous les appareils de chauffage, les extrêmes étant toujours plus froids. Récemment, dans un tel système, il est plus facile d'effectuer un équilibrage de température grâce à l'installation de lignes de dérivation et de thermostats sur chaque radiateur, qui modifient le volume du liquide de refroidissement circulant dans la batterie de chauffage.


Dans le deuxième schéma, les appareils de chauffage sont connectés en parallèle - à l'alimentation et au retour, ce qui garantit un chauffage à température égale de chaque élément individuel. Le coût d'installation de ce système est élevé en raison de l'augmentation du nombre de tuyaux.


Le schéma de faisceau est encore plus coûteux, car chaque batterie est liée indépendamment, par le biais d'une alimentation commune et de collecteurs de retour. En fonctionnement, ce schéma est le plus économique, permettant en mode automatique de maintenir une température individuelle dans chaque pièce isolée de la maison.
Calculateur des coûts de chauffage de la maison
Le calcul exact des coûts de production de chaleur à partir d'une source de chauffage autonome est effectué dans la section correspondante du projet d'alimentation en chaleur de la maison. Néanmoins, afin d'élaborer une décision préliminaire sur le type de chaudière et de combustible, un calcul préliminaire de la consommation de gaz combustible est effectué. La consommation estimée peut être trouvée à partir du passeport technique de la chaudière ou à l'aide de calculateurs en ligne.
Ensuite, l'indicateur horaire résultant est multiplié par 720 heures de fonctionnement de chauffage par mois et divisé par la correction pour l'utilisation réelle de la puissance maximale égale à 2 et multiplié par sept - l'indicateur moyen du nombre de mois de chauffage dans une année.
Par exemple, pour une chaudière de 13,8 kW capable de chauffer une maison dans la partie centrale de la Russie de 138 m2, avec un rendement de chaudière = 0,9, la consommation moyenne de gaz:
- 81 m2 / heure;
- 47 m2 / jour;
- 594 m2 / mois;
- 4158 m2 pour la saison de chauffage.
Le prix maximum par mètre cube de gaz pour la population est aujourd'hui de 6 roubles. 28 kopecks pour Saint-Pétersbourg. Prix total du gaz pour la saison:
4158 x 6,28 = 26100 roubles.
En plus de ces coûts, il est nécessaire de prendre en compte les coûts de l'électricité pour les chaudières volatiles et de l'eau pour l'alimentation des réseaux de chaleur. Mais dans les systèmes de chauffage autonomes bien établis, ces derniers coûts sont insignifiants et ne dépassent généralement pas 10% du coût du combustible bleu.
Chauffage au gaz d'une maison de campagne / types de systèmes
Le type de chauffage campagnard doit être choisi en fonction de l'utilisation de votre "hacienda" préférée. Les principaux critères devraient être l'économie et l'efficacité du système de chauffage.
Aujourd'hui, le chauffage au gaz d'une maison de campagne est hors concurrence à cet égard.
Les experts réalisent l'installation de différents types de systèmes de chauffage au gaz, garantissant la qualité et des prix raisonnables.
Quels sont les bénéfices?
Parmi les avantages de ce type particulier de chauffage, il convient de noter les suivants:
- Haute efficacité.
- Facilité d'utilisation.
- Haut niveau d'automatisation du système.
- Chauffage rapide de la pièce à la température souhaitée.
- Rentabilité.
- Propreté écologique.
Ne négligez pas le fait que le gaz naturel est l’un des carburants les plus abordables à l’heure actuelle. De plus, si à la datcha il n'y a pas de possibilité de se connecter à un gazoduc centralisé, vous pouvez toujours envisager des options de chauffage au gaz autonome avec alimentation électrique par des détenteurs de gaz ou en utilisant des bouteilles de gaz liquéfié.
Systèmes de chauffage au gaz: que sont-ils?
Il existe deux principaux types de chauffage au gaz:
- Centralisé
- Autonome
La première option est utilisée si une conduite principale de gaz passe près du chalet d'été. Mais, comme le montre notre pratique, peu de chalets d'été peuvent se vanter d'un tel quartier, de sorte que les consommateurs doivent généralement installer un chauffage au gaz à l'aide de bouteilles ou de supports à gaz.
De plus, si vous n'utilisez un chalet d'été qu'en été, il n'est guère nécessaire de dépenser des fonds pour de l'équipement à gaz coûteux, de passer du temps à la paperasse et à obtenir des permis. Mais si vous vivez dans le pays de manière quasi permanente, ou si vous y venez souvent en hiver (vacances du Nouvel An, week-ends, vacances), alors vous devriez penser à la question de l'installation du chauffage au gaz.
Des radiateurs et des convecteurs à gaz spéciaux peuvent être installés à l'intérieur des locaux. Ces derniers ne nécessitent pas l'installation de la chaudière, le câblage des tuyaux du circuit d'eau, ils sont assez efficaces avec un mode de chauffage irrégulier (par exemple, si vous venez au chalet uniquement le week-end).
Chauffage au gaz centralisé d'une maison de campagne
Commençons par le fait qu'il existe certaines conditions pour se connecter à la conduite de gaz.
L'installation de chauffage au gaz doit être réalisée dans le plein respect des documents réglementaires et réalisée par des organismes ayant reçu des licences. a l'autorisation d'effectuer de tels travaux. De plus, nous employons des spécialistes possédant une vaste expérience dans l'installation de divers systèmes de chauffage.
Il est important que des conditions telles que:
- mise à la terre obligatoire de la chaudière;
- fournir un accès gratuit à la chaudière;
- la présence d'une ligne électrique séparée avec arrêt automatique obligatoire;
- correspondance entre la puissance de la chaudière et la zone de la pièce où elle sera installée.
L'installation des chaudières à gaz ne doit être effectuée que par des spécialistes, alors qu'il est nécessaire d'obtenir l'autorisation d'installation de Gaztekhnadzor.
En fonction des besoins des résidents et de la superficie des locaux, des chaudières murales ou au sol peuvent être installées.
Pour les petites maisons de campagne, les structures murales seront suffisantes, qui sont compactes, et tout l'équipement est intégré dans le corps de la chaudière. Si vous avez besoin de chauffer de grandes surfaces, le meilleur choix serait d'installer des chaudières au sol. Ils ont une bonne puissance et un rendement plus élevé, mais à leur tour, des exigences plus sérieuses d'agencement et de fonctionnement leur sont imposées.
Les chaudières diffèrent selon le matériau à partir duquel le corps est fabriqué:
- Acier
- Fonte
Notre société réalise l'installation de chaudières de chauffage au gaz, à circuit simple et double circuit. Dans le second cas, en plus du chauffage, les consommateurs reçoivent de l'eau chaude, ce qui est sans aucun doute très pratique.
Chauffage autonome au gaz à la maison
S'il n'y a pas de ligne principale centralisée à proximité, et que vous souhaitez installer exactement le chauffage au gaz d'une maison de campagne, nous pouvons vous proposer l'installation d'un système qui fonctionne de manière autonome. Dans ce cas, l'énergie peut être fournie à partir de bouteilles de gaz liquéfié ou d'un conteneur spécial - un support de gaz.
Installation de chauffage au gaz à partir de bouteilles
Beaucoup de gens choisissent cette option aujourd'hui, car les bouteilles de gaz sont une excellente alternative au gaz principal.
Le système comprend les équipements suivants :
- bouteille de gaz liquéfié (volume 50 litres);
- réducteur;
- les raccords pour le câblage.
Les plus sûrs en fonctionnement sont les vérins équipés d'un réducteur fileté et d'une valve.
Il est également nécessaire de choisir un emplacement pour placer les cylindres. Cela peut être une pièce à l'intérieur du chalet d'été, mais il est préférable d'utiliser des armoires spéciales situées près du mur extérieur de la maison de campagne.
Chauffage autonome au gaz à l'aide d'un support de gaz
Les employés installent des systèmes de chauffage au gaz alimentés par des réservoirs de gaz.
Si vous n'êtes pas satisfait de la nécessité de remplacer fréquemment les bouteilles, vous pouvez choisir une option plus pratique - supports de gaz - conteneurs spéciaux pour stocker le gaz liquéfié, dont le volume est dix fois plus grand que le volume des bouteilles de gaz traditionnelles.
Le plus souvent dans notre climat, les réservoirs en acier sont utilisés avec un revêtement spécial et une protection anode-cathodique. Les détenteurs de gaz sont installés sur le territoire du site, tandis que la distance de la maison et des autres bâtiments doit être d'au moins 10 mètres. Ensuite, le gazoduc est posé du conteneur à la maison.
Il est important que la fosse du réservoir de gaz ait été creusée correctement et ait la profondeur requise, car par temps froid, le carburant doit toujours être dans la plage de température positive.
Pour l'équipement de chauffage au gaz d'une maison de campagne, en règle générale, des réservoirs de gaz d'un volume de 2 700 à 5 000 litres sont utilisés.
Quelle option choisir: raccorder le gaz principal ou installer un chauffage autonome au gaz à la maison - c'est à vous de décider. Dans tous les cas, nos spécialistes effectueront tous les travaux de manière efficace et efficiente, dans le respect de toutes les réglementations et normes établies.





